Содержание
✅ Сколько весит львовский погрузчик
Львовский погрузчик 41030
Аренда помещений в большом городе — дорогое удовольствие. Каждый, кто имеет арендованные площади, старается максимально использовать территорию не только по площади, но и по объему. Проходы делаются как можно поменьше, а стеллажи — повыше. Без использования техники — не обойтись.
Выбор погрузчиков зависит от высоты и площади помещения, веса грузов и его габаритов. Количество техники на склад рассчитывается исходя из требований законов об охране труда.
НПО Ресурс осуществляет продажу складской техники, соответствующей требованиям ГОСТа.
Конструктивные особенности и технические характеристики Львовских погрузчиков — обобщенный взгляд
Автопогрузчик 40814 львовского производства считается подъемно-транспортной техникой, имеющей большой спектр применения. Благодаря относительно небольшому весу такие машины имеют высокую проходимость, отличную маневренность, а также мощность.
При этом данные погрузчики предназначены для использования в различных климатических условиях. Но стоимость отличалась от аналогов в лучшую для покупателя сторону. Такая техника удобна и проста в использовании и ремонте. А благодаря высокой функциональности львовский погрузчик АП 40814 в свое время пользовался хорошим спросом.
Характеристика погрузчика
Львовские погрузчики 41030 на производстве предназначены для транспортирования разных грузов при помощи вилочного устройства.
Техника оснащена дизельным четырехцилиндровым мотором, который обладает отличной эффективностью работы. Система автосмазки используется для двигателя комбинированная. Тип охлаждения системы — Д-240 (водяной).
Рулевой механизм Львовского вилочного погрузчика оснащен гидростатической системой. Такая система обеспечивает достаточно легкое управление. Тип управления достаточно надежный. Коробка передач данного погрузчика — механическая.
Тормозная система не оснащена гидравликой.
Погрузчик имеет тормоза барабанного типа, которые нуждаются в систематическом техническом обслуживании. Рабочие цилиндры (диаметр 38 мм) аналогичны автомобильным ГАЗ -52, ГАЗ-53. Главный — аналогичен ГАЗ-51. Проблем с поиском запчастей не существует. Ремонт погрузчика, включая тормозную систему, ходовую часть, рулевое управление осуществляет НПО «Ресурс»
Подъемный механизм у этого погрузчика стандартный, телескопический Гидрораспределитель установлен трёхсекционный или двухсекционный.
Грузоподъемность погрузчика — 5000 кг. Высокая маневренность позволяет перевозить грузы такой массы по территории шириной немного большей 2 м.
Львовский автопогрузчик 41030 в загруженном состоянии имеет возможность передвигаться со скоростью 23 км/ч. Это подтверждает его высокую маневренность. Поднятие и опускание груза выполняет со скоростью 450 мм/с и 500 мм/с соответственно. Уклон преодоления равен 16%.
Эксплуатационные характеристики и безопасность
Еще одним отличием всех львовских погрузчиков является их устойчивость.
База погрузчика, широкая колея ведущих колес и низко расположенный центр тяжести обеспечивают устойчивость машины даже при движении по скользкой или неровной поверхности.
Задний мост АП-41030 ЛЕВ
Гидроцилиндры подъема каретки выполнены с полимерными уплотнителями, гарантирующими безремонтную эксплуатацию подъемника в течение более чем 90000 циклов подъема и опускания.
Подъемник может захватывать груз непосредственно с земли, что обеспечивается обратным наклоном в 3°. Каретка свободно поднимается и опускается без изменения высоты грузоприемника. Усиленный каркас кабины предотвращает повреждение салона и защиту оператора в случае падения груза на кабину.
Кабина, как и у всех львовских погрузчиков, удобна, комфортна, обеспечивает хороший обзор. Рычаги управления расположены в непосредственной близости от рулевого колеса, кресло оператора мягкое, на амортизирующей подвеске.
Эксплуатация погрузчика
Для работы внутри небольших помещений данная модель почти не используется.
Габаритные размеры немаленькие: длина 5 м 17 см, ширина — 2 м 35 см.
Погрузчик имеет большие выбросы двуокиси углерода. Отлично зарекомендовал себя на открытом пространстве при самых неблагоприятных погодных условиях.
Есть возможность дополнить комплектацию погрузчика некоторым сменным навесным оборудованием. Достаточно часто для этого используется ковш (объемом 0,57 м3) и стрела с крюком.
Конструкция строения львовских погрузчиков проста. Она не обеспечивает высокого уровня комфортности, не имеет плавности при разгоне. Но, при хороших навыках оператора, легко добиться точности и легкости в управлении. Погрузчик имеет много положительных сторон:
· купить погрузчик можно по цене, намного ниже зарубежных аналогов;
· все агрегаты проходят надежную проверку;
· ремонт осуществляется легко, так как большинство комплектующих распространены на грузовых отечественных автомобилях;;
· доступное обслуживание погрузчика;
· высокое качество производства;
· хорошая проходимость погрузчика.
Купить запчасти для погрузчика можно на сайте НПО Ресурс. На этом же сайте возможна продажа погрузчика. При достаточно высокой квалификации и опытности оператора, Львовский погрузчик работает на хуже зарубежных аналогов.
Данный вид погрузчиков используется на разных предприятиях, где необходимы работы по транспортировке груза большой массы на короткие дистанции. Эффективность работы модели 41030 при загрузке транспортных средства или их разгрузки не вызывает сомнения
Раньше погрузчик модели 41030 выпускался на Львовском . Позже данная модель была снята заводом с производства. Модель 41030 заменили более совершенными (ЛА04, ЛА05 и ЛА07). Однако купить модель 41030 можно у частных лиц. Для этого используются интернетсайты, газеты или журналы с объявлениями. Продажей или арендой погрузчиков занимаются организации, у которых сохранилась эта надежная техника.
Купить погрузчик, автопогрузчик, электропогрузчик можно на сайтах НПО «Ресурс»
На этом же сайте существует возможность купить шины для погрузчика.
Наиболее подходящая модель: шины цельнолитые. Особенность данных шин — отсутствие воздуха. Это дает возможность передвигаться погрузчику по любой территории без опасения проколоть камеры. Шины суперэластик исключают вероятность частого шиномонажа.
Обзор львовского вилочного погрузчика
Львовский погрузчик является подъемно-транспортным механизмом для производства транспортных и такелажных работ. Погрузчиком обеспечивается захват груза и его дальнейшая транспортировка и укладка.
Основным предназначением вилочного погрузчика является работа с грузами на открытых складских площадках, в морских и речных портах, железнодорожных станциях и в прочих местах.
Для львовских вилочных погрузчиков характерны простота конструкции, надежность в эксплуатации и неприхотливость в обслуживании.
На погрузчики устанавливается экономичный, мощный и надежный двигатель Д243 (производства МТЗ), что до минимума снижает расходы на его эксплуатацию, а запчасти к этому двигателю можно найти в любом месте России, что не вызывает проблем с ремонтом даже в глубинке.
Львовский дизельный погрузчик имеет много преимуществ перед множеством других подобных агрегатов. Это обусловлено тем, что он является простым в управлении, отсутствуют строгие требования к его эксплуатации, для работы используется недорогое топливо.
Благодаря тому, что для производства погрузчика используются автомобильные детали, обслуживание погрузчика можно осуществлять самостоятельно с минимальными затратами.
Для более удобного использования погрузчики оборудуются:
кабиной с улучшенной обзорностью, оснащенной удобным сидением для оператора, что позволяет длительное время осуществлять управление погрузчиком;

Кроме того, оснащение львовского 5 тонного погрузчика дизельным двигателем Д243, позволяет осуществлять управление мощной гидравликой даже на холостых оборотах.
Для выполнения работ в морозильной камере выпускается специальная низкотемпературная модель погрузчика.
Техническое обслуживание узлов и деталей львовских погрузчиков
Двигатель ГАЗ-51, ГАЗ-52 и его комплектующие
Двигатель ГАЗ-52, ГАЗ-51 Коленвал и маховик ГАЗ-51, ГАЗ-52 Блок цилиндров и головка блока ГАЗ-51, ГАЗ-52 Поршни и шатуны ГАЗ-51, ГАЗ-52 Механизм газораспределения ГАЗ-51, ГАЗ-52 Система смазки ГАЗ-51, ГАЗ-52 Система охлаждения ГАЗ-51, ГАЗ-52 Топливная система ГАЗ-51, ГАЗ-52
Механизмы трансмиссии львовских погрузчиков
Механизм обратного хода (МОХ) Ведущий мост львовских погрузчиков Коробка передач КПП ГАЗ-51, ГАЗ-52 Сцепление ГАЗ-53 на автопогрузчиках 4081, 40810, 40811, 40816, 41015 Коробка передач КПП ГАЗ-53 Сцепление ГАЗ-52, ГАЗ-51 Тормоза львовских погрузчиков Карданные валы львовских погрузчиков
Гидравлика погрузчиков Львов и ее компоненты
Гидроцилиндры подъема 40814-4613010-10/4014-4613011-01
Гидроцилиндр наклона 4081-4614010 грузоподъемника
Привод гидравлических насосов Грузоподъемник и каретка Гидравлическая система Гидрораспределители
Рулевое управление львовских автопогрузчиков
Гидроцилиндр 4085-3429010-10 рулевого управления Система рулевого управление львовских погрузчиков Управляемый мост львовских погрузчиков
Сборка гидроруля (гидростата) ХУ-145
Разборка гидростатического рулевого механизма (гидроруля) ХУ-85
Электрооборудование и зажигание погрузчиков ЛЗА с двигателем ГАЗ-51, ГАЗ-52
Электрооборудование ГАЗ-51, ГАЗ-52 Система зажигания ГАЗ-51, ГАЗ-52
______________________________________________________________________________
Отгрузка запчастей на львовские погрузчики 4014, 40814, 40810, 4081, 41030 производится во все города России: Кемерово, Екатеринбург, Челябинск, Новосибирск, Улан-Удэ, Киров, Пермь, Красноярск, Иркутск, Омск, Барнаул, Томск, Братск, Тюмень, Лысьва, Новокузнецк, Миасс, Серов, Чита, Берёзовский, Междуреченск, Нижний Тагил, Бийск, Минусинск, Сатка, Курган, Вологда, Нижний Новгород, Абакан, Альметьевск, Анапа, Ангарск, Анжеро-Судженск, Апатиты, Арзамас, Армавир, Астрахань, Ачинск, Балаково, Батайск, Белебей, Белово, Белорецк, Бердск, Березники, Благовещенск, Бугуруслан, Бузулук, Великие Луки, Великий Новгород, Волгодонск, Воткинск, Глазов, Дзержинск, Димитровград, Елабуга, Зеленогорск, Зеленодольск, Златоуст, Искитим, Ишим, Ишимбай, Калуга, Каменск-Шахтинский, Санкт-Петербург, Белгород, Орёл, Казань, Ростов-на-Дону, Воронеж, Брянск, Краснодар, Саратов, Мурманск, Тула, Ногинск, Волгоград, Иваново, Пенза, Чебоксары, Волжский, Ярославль, Сыктывкар, Ижевск, Самара, Махачкала, Волжск, Йошкар-Ола, Сокол, Уфа, Архангельск, Тверь, Подольск, Ульяновск, Смоленск, Тольятти, Владикавказ, Петрозаводск, Курск, Владимир, Череповец, Набережные Челны и др.
✅ Львовский погрузчик: 5 тонн, характеристики, автопогрузчик, вилочный, запчасти, инструкция по ремонту
Конструктивные особенности и технические характеристики Львовских погрузчиков
Львовский погрузчик относится к категории подъемно-транспортной техники широкого спектра применения. Имея небольшой вес, эти машины отличаются хорошей проходимостью, маневренностью и мощностью. Оборудование грузоподъемностью 5 тонн приспособлено к работе в любых климатических и погодных условиях. Цена новых изделий выгодно отличается от аналогов, изготовленных в странах Азии и Европы. Вилочный автопогрузчик прост в эксплуатации и ремонте, техника пользуется спросом за счет своей функциональности и надежности.
Обзор львовского вилочного погрузчика
Львовский погрузчик является подъемно-транспортным механизмом для производства транспортных и такелажных работ. Погрузчиком обеспечивается захват груза и его дальнейшая транспортировка и укладка.
Основным предназначением вилочного погрузчика является работа с грузами на открытых складских площадках, в морских и речных портах, железнодорожных станциях и в прочих местах.
Для львовских вилочных погрузчиков характерны простота конструкции, надежность в эксплуатации и неприхотливость в обслуживании.
На погрузчики устанавливается экономичный, мощный и надежный двигатель Д243 (производства МТЗ), что до минимума снижает расходы на его эксплуатацию, а запчасти к этому двигателю можно найти в любом месте России, что не вызывает проблем с ремонтом даже в глубинке.
Львовский дизельный погрузчик имеет много преимуществ перед множеством других подобных агрегатов. Это обусловлено тем, что он является простым в управлении, отсутствуют строгие требования к его эксплуатации, для работы используется недорогое топливо.
Благодаря тому, что для производства погрузчика используются автомобильные детали, обслуживание погрузчика можно осуществлять самостоятельно с минимальными затратами.
Для более удобного использования погрузчики оборудуются:
кабиной с улучшенной обзорностью, оснащенной удобным сидением для оператора, что позволяет длительное время осуществлять управление погрузчиком;
Кроме того, оснащение львовского 5 тонного погрузчика дизельным двигателем Д243, позволяет осуществлять управление мощной гидравликой даже на холостых оборотах.
Для выполнения работ в морозильной камере выпускается специальная низкотемпературная модель погрузчика.
Назначение
Львовский завод автопогрузчиков осуществляет выпуск грузоподъемных машин нового поколения с 1999 года. Конструкторы предприятия создали ряд высокотехнологичных машин, лучшей из которых считается модель 40814. Техника предназначена для подъема и перемещения штучных, сыпучих и длинномерных грузов в помещениях и под открытым небом.
Машина приспособлена для эксплуатации в морских и речных портах, ангарах и складах, цехах промышленных предприятий, на площадках железных и автомобильных дорог.
Расширение спектра погрузочных работ осуществляется за счет установки такого оборудования:
- вилы разной конфигурации;
- фронтальный ковш объемом до 3 м³;
- грузовая телескопическая стрела.
Прочная кабина защищает оператора от травм в случае столкновения транспорта с грузом или стенами.
Особенности конструкции
Украинские инженеры модернизировали подъемно-транспортное оборудование, которое выпускалось на протяжении десятилетий и хорошо себя зарекомендовало.
Устройство автопогрузчика не претерпело практически никаких изменений.
Машина состоит из таких частей:
- рама;
- силовая установка;
- трансмиссия;
- шасси;
- кабина;
- электрооборудование;
- гидравлическая система;
- рабочее оборудование.
Конструкторы изменили в лучшую сторону внешний дизайн изделия без ущерба его эксплуатационным характеристикам. Погрузчик приобрел презентабельный внешний вид, его возможности стали выше за счет использования передовых технологий.
Особенностью машины является совмещение в одном устройстве проверенных временем и новых разработок в области механики, управления и безопасности. Так, рама и шасси представляют собой продукцию разработки середины прошлого века. Изменения касаются кабины оператора и внешнего навесного оборудования.
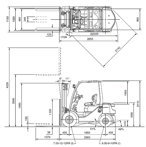
Технические характеристики
Львовский погрузчик 41030 является наиболее распространенной моделью, прошедшей полную модернизацию. Техника имеет современный внешний вид, работает плавно и тихо.
Технические характеристики машины следующие:
- грузоподъемность — 5т;
- высота подъема груза — 330 см;
- максимальная скорость движения с грузом — 23 км/ч;
- радиус поворота — 360 см;
- угол подъема — 17º.
Производство автопогрузчиков постоянно совершенствуется и расширяется. Конструкторы вносят в технику изменения, которые положительно сказываются на ее показателях и возможностях.
Навесное оборудование закрепляется на каретке, расположенной на фронтальной части агрегата. Замена опций происходит в течение нескольких минут.
Габаритные размеры
Агрегат отличается компактностью и способностью проводить погрузочные работы в тесных помещениях и узких коридорах.
Машина имеет следующие параметры:
- масса без заправки — 6400 кг;
- длина без навесного оборудования — 390 см;
- длина с вилами — 510 см;
- ширина — 235 см;
- высота погрузчика — 265 см;
- колесная база — 230 см;
- клиренс — 20 см.

Кабина погрузчика просторная и удобная, оборудована пневматическим креслом и обогревателем. Панорамное остекление обеспечивает оператору круговой обзор. С внешней части кабины установлены мощные прожекторы, дающие возможность работать в условиях ограниченной видимости. Приборы управления расположены так, что до них можно дотянуться, не меняя положения тела.
Двигатель
На автопогрузчике установлен бензиновый двигатель ГАЗ-52. Некоторые модели комплектуются моторами марки МТЗ. Эта особенность делает ремонт львовских автопогрузчиков простым и доступным по цене мероприятием. Характеристика, которую дают водители проверенному временем мотору, положительная. Запчасти к силовой установке легко найти в любом городе на территории СНГ.
Технические характеристики силовой установки следующие:
- тип — карбюраторный;
- количество цилиндров — 6;
- расположение клапанов — нижнее;
- объем двигателя — 3,5 л;
- сжатие — 6,8;
- мощность — 75 л.
с.; - расход топлива 14,4 л/ч.
Мотор имеет переднее расположение. Для придания автопогрузчику устойчивости на его кормовой части установлен противовес. Его масса может меняться исходя из специфики выполняемых задач. Многосекционный глушитель снижает шум от работающего мотора. Благодаря этому не возникает дискомфорта для окружающих даже при максимальных оборотах двигателя.
Трансмиссия и ходовая часть
Шасси закреплены на сварной коробчатой раме. Эта деталь имеет большой запас прочности, чтобы выдерживать динамические нагрузки, возникающие при поднятии тяжелых предметов. Привод выведен на передний мост. Он представляет собой модернизированную ось от автомобиля ГАЗ-52. Передние колеса сдвоенные, с пневматическими шинами. Поворот агрегата во время движения осуществляется задними колесами. На них выведена система насосов и гидравлические цилиндры, диаметр штока которых составляет 32 мм. Благодаря этому машина сохраняет маневренность при максимальных нагрузках.
Рулевое управление подключено к отдельному гидроцилиндру. Когда включена передача задняя, колеса поворачиваются легким движением кисти. Сцепление сухое, дисковое, с периферийными пружинами и демпферным устройством. Привод на сцепление при переключении передач задействуется через педаль, расположенную на полу кабины. Автопогрузчик оборудован механизмом обратного хода, обеспечивающим движение вперед и назад с одинаковой скоростью.
Тормоза состоят из колодок, рабочих цилиндров, трубок для жидкости и педали. Привод гидравлический, к рабочим тормозным цилиндрам жидкость подается от главного тормозного цилиндра. Замена колодок проводится по мере их износа. Стояночный тормоз обеспечивает фиксацию автопогрузчика на склонах крутизной до 45º.
Эксплуатация погрузчика
Для работы внутри небольших помещений данная модель почти не используется. Габаритные размеры немаленькие: длина 5 м 17 см, ширина — 2 м 35 см.
Погрузчик имеет большие выбросы двуокиси углерода. Отлично зарекомендовал себя на открытом пространстве при самых неблагоприятных погодных условиях.
Есть возможность дополнить комплектацию погрузчика некоторым сменным навесным оборудованием. Достаточно часто для этого используется ковш (объемом 0,57 м3) и стрела с крюком.
Конструкция строения львовских погрузчиков проста. Она не обеспечивает высокого уровня комфортности, не имеет плавности при разгоне. Но, при хороших навыках оператора, легко добиться точности и легкости в управлении. Погрузчик имеет много положительных сторон:
· купить погрузчик можно по цене, намного ниже зарубежных аналогов;
· все агрегаты проходят надежную проверку;
· ремонт осуществляется легко, так как большинство комплектующих распространены на грузовых отечественных автомобилях;;
· доступное обслуживание погрузчика;
· высокое качество производства;
· хорошая проходимость погрузчика.
Купить запчасти для погрузчика можно на сайте НПО Ресурс. На этом же сайте возможна продажа погрузчика. При достаточно высокой квалификации и опытности оператора, Львовский погрузчик работает на хуже зарубежных аналогов.
Данный вид погрузчиков используется на разных предприятиях, где необходимы работы по транспортировке груза большой массы на короткие дистанции. Эффективность работы модели 41030 при загрузке транспортных средства или их разгрузки не вызывает сомнения
Раньше погрузчик модели 41030 выпускался на Львовском . Позже данная модель была снята заводом с производства. Модель 41030 заменили более совершенными (ЛА04, ЛА05 и ЛА07). Однако купить модель 41030 можно у частных лиц. Для этого используются интернетсайты, газеты или журналы с объявлениями. Продажей или арендой погрузчиков занимаются организации, у которых сохранилась эта надежная техника.
Купить погрузчик, автопогрузчик, электропогрузчик можно на сайтах НПО «Ресурс»
На этом же сайте существует возможность купить шины для погрузчика. Наиболее подходящая модель: шины цельнолитые. Особенность данных шин — отсутствие воздуха. Это дает возможность передвигаться погрузчику по любой территории без опасения проколоть камеры.
Шины суперэластик исключают вероятность частого шиномонажа.
Инструкция по ремонту
Ремонт львовских погрузчиков производится самостоятельно или на базе специализированных мастерских, в зависимости от степени повреждения или износа оборудования. Руководство по эксплуатации подробно описывает порядок замены колес, тормозных колодок, прокладок и гидравлических цилиндров. Для проведения более сложного и объемного ремонта целесообразно отправлять технику на завод-изготовитель.
Перевозка неисправных агрегатов осуществляется железнодорожным, автомобильным и водным транспортом. На львовском заводе Микро-Ф есть все запчасти и полный комплект оборудования для проведения ремонтных и восстановительных работ. Персонал компании обладает большим опытом.
Технические характеристики и назначение Львовского погрузчика
Для подъема и перемещения больших грузов в торговых, транзитно-перевалочных, производственных и других складах широко используются различные автопогрузчики.
Характеристики львовского погрузчика 5 тонн таковы, что во многих случаях потребители предпочитают покупать именно эту спецтехнику. Главными особенностями, делающими этот вилочный погрузчик таким популярным, являются: надежность, прочность, простота обслуживания.
Погрузчик ЛЕВ обладает усиленными шасси, усовершенствованным каркасом кабины, повышенным клиренсом, мощным мотором, позволяющими ему работать в сложных условиях и транспортировать тяжелые грузы даже по бездорожью.
В складских помещениях закрытого типа использовать львовский погрузчик нецелесообразно, принимая во внимание его большие размеры и значительный выброс СО2. Закрытая кабина, установленная на львовском погрузчике 41030 ЛЕВ, позволяет вести погрузочно-разгрузочные работы на открытых площадках в любое время года, при любой погоде.
Львовский погрузчик 41030 грузоподъемностью 5 тонн
Вилочный погрузчик производится украинским , который располагается в городе Львове. Однако в последнее время предприятие часто фигурирует в судебных разбирательствах, которые связаны с неудовлетворительной работой руководства и притязаний на строения завода.
По этой причине трудно говорить о дальнейшем производстве как самих погрузчиков, так и деталей к ним.
Рассматриваемая техника представляет собой вилочный погрузчик повышенной грузоподъемности, работающий на дизельном топливе. Имеет осиленное шасси, каркас кабины и мачту, что способствует отличной надежности и прочности.
Назначение
Данные погрузчики используются для транспортировки различных грузов с помощью вилочного погрузчика. Для складских помещений приспособлен плохо из-за больших размеров и значительному выбросу СО2. Благодаря кабине закрытого типа прекрасно показывает себя на открытом воздухе при любых погодных условиях.
Фото львовского погрузчика на 5 тонн
Благодаря простоте конструкции могут обслуживаться на обычных мастерских, которые ремонтируют тракторы, тягачи и грузовики. В то время как электропогрузчики либо зарубежные аналоги со сложной гидравликой требуют специальное оборудование и подготовленный персонал.
Главные конструктивные отличия львовского погрузчика
В линейке львовских погрузчиков особое место занимает дизельный вилочный погрузчик ЛЕВ АП-41030.
Основными требованиями, предъявляемыми разработчикам, а затем и изготовителям машины, были простота и надежность конструкции.
Главная особенность погрузчика – его высокая грузоподъемность при сравнительно небольшом собственном весе. Машина имеет большой клиренс, позволяющий перемещать пятитонный груз, преодолевая при этом различные препятствия.
Как и на многих львовских погрузчиках, на АП-41030 установлен дизельный мотор Д-243, обладающий мощностью 78 л. с., выпущенный Минским тракторным заводом. Он является одним из самых мощных двигателей для такого рода техники. В дополнение к дизельному двигателю, на львовском погрузчике 41030 установлена трансмиссия с коробкой переключения передач от автомобиля ГАЗ-52/53.
Применение этих узлов во многом решает проблемы ремонта машин, так как произвести техническое обслуживание и восстановление этих агрегатов можно на любом авторемонтном предприятии.
В львовском погрузчике 41030 полностью механическая конструкция трансмиссии, в ней отсутствуют сложные гидравлические и другие передачи.
Крутящий момент передается от дизельного силового агрегата на колеса ведущего моста через карданную передачу. В состав механизма двойной главной передачи входит пара цилиндрических шестерен и пара конических шестерен, имеющих спиральные зубья.
Коробка переключения передач, сцепление МТЗ и механизм включения заднего хода обеспечивают плавное передвижение машины, ее максимальную устойчивость в любых условиях езды.
Характеристика погрузчика
Львовские погрузчики 41030 на производстве предназначены для транспортирования разных грузов при помощи вилочного устройства.
Подъемный механизм у этого погрузчика стандартный, телескопический Гидрораспределитель установлен трёхсекционный или двухсекционный.
Львовский автопогрузчик 41030 в загруженном состоянии имеет возможность передвигаться со скоростью 23 км/ч. Это подтверждает его высокую маневренность. Поднятие и опускание груза выполняет со скоростью 450 мм/с и 500 мм/с соответственно. Уклон преодоления равен 16%.
Эксплуатационные характеристики и безопасность
Еще одним отличием всех львовских погрузчиков является их устойчивость.
База погрузчика, широкая колея ведущих колес и низко расположенный центр тяжести обеспечивают устойчивость машины даже при движении по скользкой или неровной поверхности.
Гидроцилиндры подъема каретки выполнены с полимерными уплотнителями, гарантирующими безремонтную эксплуатацию подъемника в течение более чем 90000 циклов подъема и опускания.
Подъемник может захватывать груз непосредственно с земли, что обеспечивается обратным наклоном в 3°. Каретка свободно поднимается и опускается без изменения высоты грузоприемника. Усиленный каркас кабины предотвращает повреждение салона и защиту оператора в случае падения груза на кабину.
Кабина, как и у всех львовских погрузчиков, удобна, комфортна, обеспечивает хороший обзор. Рычаги управления расположены в непосредственной близости от рулевого колеса, кресло оператора мягкое, на амортизирующей подвеске.
Основные технические параметры львовского погрузчика АП-41030
Рулевое управление оборудовано гидростатическим рулевым механизмом типа Д-160 со встроенным в гидросистему клапаном, регулирующим подачу жидкости на рулевой привод.
Гидравлика также работает и в грузоподъемнике. Давление в гидросистеме грузоподъемника регулируется предохранительным клапаном, с ограничением по давлению 180±5 кгс/см 2 . Направление движения определяется задними колесами.
Колес в автопогрузчике шесть – два колеса на задней оси, и четыре колеса — на переднем мосту. Все шины — пневматические, камерные. На передних колесах стоят шины М-149, на задних – ЛФ-268.
Габаритные параметры (м):
- длина без вил – 3.9;
- длина с вилами – 5.1;
- ширина – 2.35;
- высота грузоподъемника (вилы опущены) – 2.65;
- база – 3.4;
- ширина колеи передних колес – 1.79;
- ширина колеи задних колес – 1.48;
- просвет между подъемником и покрытием дороги – не менее 0.2.
Весовые и другие параметры:
- масса АП-41030 – 6.
35 тонн; - масса поднимаемого груза на высоту до 3.3 м – 5.0 тонн;
- масса поднимаемого груза на высоту свыше 3.3 м – 4.0 тонны;
- угол наклона вперед рамы – 3°;
- угол наклона назад рамы – не менее 12°;
- скорость подъема каретки – не менее 0.45±0-05 м/сек.
Видео по теме: Львовский погрузчик — краткий обзор
Львовский автопогрузчик — общие сведения об устройстве
Львовские автопогрузчики модификаций АП-4014, 4043, 4045, 4081, АП-40810, 40811, 40814, 40816, 41015, 41030 ЛЕВ — это самоходные пневмоколесные неподрессоренные машины для погрузки, выгрузки, укладки в штабеля и перемещения штучных сыпучих грузов в основном на открытых площадках.
Для них характерно переднее (фронтальное) расположение грузоподъемника. На перемещающейся вертикально по раме грузоподъемника каретке устанавливаются различные грузозахватные приспособления.
Львовский погрузчик можно назвать универсальным, так как есть возможность использования его для работы с грузами разных видов.
Наиболее распространенными видами сменного оборудования являются вилочные подхваты, поворотные в вертикальной плоскости ковши и безблочные стрелы.
Возможность применения такой спецтехники в помещениях с узкими проездами и на площадках определяется маневренностью, зависящей от габарита и радиуса поворота, описываемого наиболее выступающей точкой машины.
На данных погрузчиках установлены бензиновые двигатели ГАЗ-51 (ГАЗ-52), а также дизельные двигатели водяного и воздушного охлаждения Д-243 и Д-144.
Львовские погрузчики АП-4014, 4043, 4045, 4081, 40810, 40811, АП-40814, 40816, 41015, 41030 выполнены по обычной конструктивной схеме.
Руководство по ремонту львовских погрузчиков
Запчасти для Львовских автопогрузчиков АП-40814, 4014, 4045 с двигателем ГАЗ-52. Запчасти к погрузчикам ЛЗА АП-4081, 40810, АП-41015, АП-41030 Лев с дизелем Д-243. Запасные части для автопогрузчиков АП-40811, 40816 с двс Д-144.
Техническое обслуживание узлов и деталей львовских погрузчиков
Двигатель ГАЗ-51, ГАЗ-52 и его комплектующие
Механизмы трансмиссии львовских погрузчиков
Гидравлика погрузчиков Львов и ее компоненты
Рулевое управление львовских автопогрузчиков
Электрооборудование и зажигание погрузчиков ЛЗА с двигателем ГАЗ-51, ГАЗ-52
Отгрузка запчастей на львовские погрузчики 4014, 40814, 40810, 4081, 41030 производится во все города России: Кемерово, Екатеринбург, Челябинск, Новосибирск, Улан-Удэ, Киров, Пермь, Красноярск, Иркутск, Омск, Барнаул, Томск, Братск, Тюмень, Лысьва, Новокузнецк, Миасс, Серов, Чита, Берёзовский, Междуреченск, Нижний Тагил, Бийск, Минусинск, Сатка, Курган, Вологда, Нижний Новгород, Абакан, Альметьевск, Анапа, Ангарск, Анжеро-Судженск, Апатиты, Арзамас, Армавир, Астрахань, Ачинск, Балаково, Батайск, Белебей, Белово, Белорецк, Бердск, Березники, Благовещенск, Бугуруслан, Бузулук, Великие Луки, Великий Новгород, Волгодонск, Воткинск, Глазов, Дзержинск, Димитровград, Елабуга, Зеленогорск, Зеленодольск, Златоуст, Искитим, Ишим, Ишимбай, Калуга, Каменск-Шахтинский, Санкт-Петербург, Белгород, Орёл, Казань, Ростов-на-Дону, Воронеж, Брянск, Краснодар, Саратов, Мурманск, Тула, Ногинск, Волгоград, Иваново, Пенза, Чебоксары, Волжский, Ярославль, Сыктывкар, Ижевск, Самара, Махачкала, Волжск, Йошкар-Ола, Сокол, Уфа, Архангельск, Тверь, Подольск, Ульяновск, Смоленск, Тольятти, Владикавказ, Петрозаводск, Курск, Владимир, Череповец, Набережные Челны и др.
Источник
Фронтальный погрузчик, купить фронтальный погрузчик б/у
АГРИ МИР АЛЬМАНН
AL
AL7 AL75 AL100
AS
AS7 AS18 AS50 AS85 AS90
AX
AX850
AZ
AZ6 AZ9 AZ10 AZ14 AZ45 AZ85 AZ150 AZ210
АМКОДОР АТЛАС
AR
AR 52 AR 60 AR 65 AR 75 AR 80 AR 95
АТАКА АВАНТ
420 528 635 750 860
КОЛОКОЛЬЧИК BENATI BLUMING BOBCAT
773 Серия S
S18 S70 S100 S150 S160 S175 S220 S450
ДЕЛО
321 570 580
580 л
621D 621E 695
695 СР
721
721 В 721 С 721 D 721 Е 721 Ж 721 Г
821
821 Б 821 С 821 Е 821 Ф
921
921 С 921 Е 921 Ф
1221 СХ
СХ210
SR W-серия
W15 W20 WX
ГУСЕНИЦА
216
216Б
428
428С 428Д
432
432D 432E 432F
438 906
906H 906M
907 908
908H 908M
910
910Е
914
914G
916 920 924
924F 924G 924H 924K
926 928
928F
930
930G 930H 930K 930M
936
936E 936F
938
938F 938G 938H 938K 938М
950
950B 950C 950E 950F 950G 950H 950K 950L
960
960F
962
962Г 962Х 962К 962М
966
966C 966D 966E 966F 966G 966H 966K 966L 966M
972
972Г 972Х 972К 972М
980
980Б 980К 980Ф 980Г 980Х 980К
982
982М
988
988А 988Б 988Ф 988Г 988Х 988К
990 Серия D
D3 D6 D7
ГХ серии F IT
IT14G IT18B IT28G
M-серия
M316
320 437 507
КАТМАН ЧАНГЛИН
956
ЧЕНГ ГОН CLAAS
Рейнджер Скорпион
Скорпион 6030
Кларк
55 175
175 С
275
275 С
C-серия
КТМ КУММИНЗ ДЭУ
МГ Мега
Мега 300 Мега 400
DIECI DITCH-WITCH
R-серия
R300
ДУСАН
250 дирхамов
DL
DL200 DL250 DL300 DL400 DL500 DL503
SD
SD 300
КОМОД
520 545
ДРЕССТА
534
ЭВЕРУН
ER
ER08 ER16 ER20
Евротрак
Серия W
W10 W11 W12 W13
ФАИ ФАУН
Серия F
F1400
ФИАТ ФИАТ-АЛЛИС
ФР
ФР 10 ФР 15 ФР 20 ФР 35
ФИАТ-ХИТАЧИ
FH FR
FR90 FR130 FR160 FR220
ЛХ
ЛХ 210
Серия W
W130 W170 W190 W230 W270
ФИАТ-КОБЕЛЬКО
W-серия
W130 W190
ФИМАКС ФУКС
F-серия
ФУРУКАВА ГЭХЛ
АЛ
АЛ340 АЛ540
ГИГАНТ
Серия D
D254
V-серия
V451 V4502 V6004
РОЩА
РТ
GUNSTIG Гюнтер Гроссманн HANOMAG
44C 44D 60E B-серия
B11
C-серия D-серия E-серия
HAULOTTE
HTL
HTL4017
ГЕРАКЛ ГИДРОМЕК ХИТАЧИ
ЭКС
ЭКС200
LX
LX170 LX210 LX290
ZW
ZW95 ZW140 ZW150 ZW180 ZW220 ZW250 ZW310 ZW370 ZW550
ZX
ZX220
ТСВ
L-серия
L-34
ГИДРЕМА ХАЙТЕК
ZL
ХЕНДАЙ
Серия HL
HL35 HL730 HL740 HL757 HL760 HL770 HL780 HL970
HZM Holaras IHIMER INTERNATIONAL JCB
2СХ 3СХ 4СХ 406 407 408 409411 416S 417 426 435S 436 456 457 520 526 531
531-70
535
535-95 535-125 535-140
536
536-60 536-70
540
540-140 540-170
541
541-70
560 ТМ
ТМ220 ТМ320
ДЖИНГОН ДЖОН ДИР
824 3200
JUNGHEINRICH КЕЛЬБЛЕ
SL
SL 18 SL 20 SL 22 SL 26
КАВАСАКИ
95Z7 ЗВ
KINGWAY KNEGT KNIKMOPS
км
км 250
КОМАТСУ
WA
WA70 WA75 WA80 WA100 WA180 WA200 WA250 WA 270 WA270 WA300 WA320 WA350 WA380 WA400 WA420 WA430 WA470 WA480 WA500 WA600
WB
WB70 WB93 WB97
КРАМЕР
Аллрад
Аллрад 750 Аллрад 850
КРАМЕР АЛЛРАД
880
КУБОТА
Серия D Серия R
R420 R520
Кавеко LANZ LIEBHERR
L-серия
л 506 л 507 л 508 л 509л 514 л 521 л 524 л 528 л 531 л 538 л 541 л 542 л 544 л 550 л 551 л 554 л 556 л 564 л 566 л 574 л 576 л 580 л 586
ЛР
ЛР 622
R-серия
ЛЮГОНГ
836 855 Класс
Класс 855 Класс 856
LG
LG956
ЗЛ
ЗЛ50
ЛЮНГБИ МАСКИН
L-серия
L15 L18
ЛКТ
81
LOCUST LONGGONG LONKING
CDM LG
LG833 LG855
LOVOL LUGONG LUKTON Lundberg MACAO MACKS MAMMUT MAN MANITOU
МРТ
МРТ 1542 МРТ 1635 МРТ 2150
MT
MT 625 MT 1030 MT 1233 MT 1840
МВТ
МВТ 628
Серия М
МАССИ ФЕРГЮСОН МАТБРО
TR250
МАКС МЕКАЛАК МЕРЛО
Серия P
P28.
7 P34.7 P35.13 P38.13 P40.7
ТФ
ТФ42.7 ТФ50.8
МИЧИГАН MITSUBISHI MULTIONE
Серия S
SL
МУСТАНГ
АЛ
АЛ306 АЛ506
НЕЙСОН
WL
НОВАЯ ХОЛЛАНДИЯ
Серия B
B110
Серия D LM TC Серия W
W60 W70 W80 W110 W130 W170 W190 W270
НОРКАР О&К
F-серия
F1310
Серия L
L5 L6 L8 L15 L25 L30 L35 L45
ПАЛАЗЗАНИ
№
№ 195
ПАУС
РЛ СЛ
SL655
PUMA Peecon Циндао Hezhong SANY SCHAEFF
СКБ
СКБ 900
СКЛ
СКЛ 831 СКЛ 832 СКЛ 841 СКЛ 844 СКЛ 861 СКЛ 873
80 турецких лир 100 120 турецких лир
ШМИДТ
1812
СДЛГ
ЛГ
ЛГ918 LG933 LG936 LG953 LG956 LG958 LG968
СЭМ
630 652 655 656 660
ШАНТУИ
SL
SL 30 SL 50
SINOMACH STALOWA WOLA
HSW L34 L200
Samsung Schaffer Schmelzer TAMROCK TCM TEREX
890 970
970 Элита
TL
TL65 TL70 TL80 TL100 TL120 TL210 TL260 TL310 TL450 TLB
THALER TITAN Прицепы TORO UN
053
UNC VALMET VERACHTERT VF VENIERI
VF
ВОЛЬВО
846 8500 B-серия BL
БЛ 61 БЛ 71
БМ
БМ 4200 БМ 4300 БМ 4400 БМ 4500 БМ 4600
ЕС
ЕС 460
Серия L
L20 L25 L30 L35 L40 L45 L50 L60 L70 L90 L105 L110 L120 L150 L180 L220 L330 L350
ЛМ
LM841 LM846
VOLVO-ABG Vortex WACKER WCM WEIDEMANN
917 1140 1370 1490 2002 2070 3070
ВЕРКЛАСТ
ВЛ
ВЛ 1500
РГ
РГ 18 РГ 35 РГ 45
WEYCOR WOLF Wacker Neuson Wille
655 855
СКМГ
LW
LW300 LW400 LW500 LW600 LW640
ЗЛ
ЗЛ30 ЗЛ50
КСГМА
XG
XG955
XZ YANMAR YTO ZEPPELIN ZETTELMEYER
ZL
ZL 601 ZL 602 ZL 702 ZL 801 ZL 1001 ZL 1801 ZL 5002
ЗФ ЗТС
Показать все
Купить фронтальный погрузчик, фронтальный погрузчик б/у
АГРИ МИР АЛЬМАНН
AL
AL7 AL75 AL100
AS
AS7 AS18 AS50 AS85 AS90
AX
AX850
AZ
AZ6 AZ9 AZ10 AZ14 AZ45 AZ85 AZ150 AZ210
АМКОДОР АТЛАС
AR
AR 52 AR 60 AR 65 AR 75 AR 80 AR 95
АТАКА АВАНТ
420 528 635 750 860
КОЛОКОЛЬЧИК BENATI BLUMING BOBCAT
773 Серия S
S18 S70 S100 S150 S160 S175 S220 S450
ДЕЛО
321 570 580
580 л
621D 621E 695
695 СР
721
721 В 721 С 721 D 721 Е 721 Ж 721 Г
821
821 Б 821 С 821 Е 821 Ф
921
921 С 921 Е 921 Ф
1221 СХ
CX210
SR W-серия
W15 W20 WX
ГУСЕНИЦА
216
216Б
428
428С 428Д
432
432D 432E 432F
438 906
906H 906M
907 908
908H 908M
910
910Е
914
914G
916 920 924
924F 924G 924H 924K
926 928
928F
930
930G 930H 930K 930M
936
936E 936F
938
938F 938G 938H 938K 938М
950
950B 950C 950E 950F 950G 950H 950K 950L
960
960F
962
962Г 962Х 962К 962М
966
966C 966D 966E 966F 966G 966H 966K 966L 966M
972
972Г 972Х 972К 972М
980
980Б 980К 980Ф 980Г 980Х 980К
982
982М
988
988А 988Б 988Ф 988Г 988Х 988К
990 Серия D
D3 D6 D7
ГХ серии F IT
IT14G IT18B IT28G
M-серия
M316
320 437 507
КАТМАН ЧАНГЛИН
956
ЧЕНГ ГОН CLAAS
Рейнджер Скорпион
Скорпион 6030
Кларк
55 175
175 С
275
275 С
C-серия
КТМ КУММИНЗ ДЭУ
МГ Мега
Мега 300 Мега 400
DIECI DITCH-WITCH
R-серия
R300
ДУСАН
250 дирхамов
DL
DL200 DL250 DL300 DL400 DL500 DL503
SD
SD 300
КОМОД
520 545
ДРЕССТА
534
ЭВЕРУН
ER
ER08 ER16 ER20
Евротрак
Серия W
W10 W11 W12 W13
ФАИ ФАУН
Серия F
F1400
ФИАТ ФИАТ-АЛЛИС
ФР
ФР 10 ФР 15 ФР 20 ФР 35
ФИАТ-ХИТАЧИ
FH FR
FR90 FR130 FR160 FR220
ЛХ
ЛХ 210
Серия W
W130 W170 W190 W230 W270
ФИАТ-КОБЕЛЬКО
W-серия
W130 W190
ФИМАКС ФУКС
F-серия
ФУРУКАВА ГЭХЛ
АЛ
АЛ340 АЛ540
ГИГАНТ
Серия D
D254
V-серия
V451 V4502 V6004
РОЩА
РТ
GUNSTIG Гюнтер Гроссманн HANOMAG
44C 44D 60E B-серия
B11
C-серия D-серия E-серия
HAULOTTE
HTL
HTL4017
ГЕРАКЛ ГИДРОМЕК ХИТАЧИ
ЭКС
ЭКС200
LX
LX170 LX210 LX290
ZW
ZW95 ZW140 ZW150 ZW180 ZW220 ZW250 ZW310 ZW370 ZW550
ZX
ZX220
ТСВ
L-серия
L-34
ГИДРЕМА ХАЙТЕК
ZL
ХЕНДАЙ
Серия HL
HL35 HL730 HL740 HL757 HL760 HL770 HL780 HL970
HZM Holaras IHIMER INTERNATIONAL JCB
2СХ 3СХ 4СХ 406 407 408 409411 416S 417 426 435S 436 456 457 520 526 531
531-70
535
535-95 535-125 535-140
536
536-60 536-70
540
540-140 540-170
541
541-70
560 ТМ
ТМ220 ТМ320
ДЖИНГОН ДЖОН ДИР
824 3200
JUNGHEINRICH КЕЛЬБЛЕ
SL
SL 18 SL 20 SL 22 SL 26
КАВАСАКИ
95Z7 ЗВ
KINGWAY KNEGT KNIKMOPS
км
км 250
КОМАТСУ
WA
WA70 WA75 WA80 WA100 WA180 WA200 WA250 WA 270 WA270 WA300 WA320 WA350 WA380 WA400 WA420 WA430 WA470 WA480 WA500 WA600
WB
WB70 WB93 WB97
КРАМЕР
Аллрад
Аллрад 750 Аллрад 850
КРАМЕР АЛЛРАД
880
КУБОТА
Серия D Серия R
R420 R520
Кавеко LANZ LIEBHERR
L-серия
л 506 л 507 л 508 л 509л 514 л 521 л 524 л 528 л 531 л 538 л 541 л 542 л 544 л 550 л 551 л 554 л 556 л 564 л 566 л 574 л 576 л 580 л 586
ЛР
ЛР 622
R-серия
ЛЮГОНГ
836 855 Класс
Класс 855 Класс 856
LG
LG956
ЗЛ
ЗЛ50
ЛЮНГБИ МАСКИН
L-серия
L15 L18
ЛКТ
81
LOCUST LONGGONG LONKING
CDM LG
LG833 LG855
LOVOL LUGONG LUKTON Lundberg MACAO MACKS MAMMUT MAN MANITOU
МРТ
МРТ 1542 МРТ 1635 МРТ 2150
MT
MT 625 MT 1030 MT 1233 MT 1840
МВТ
МВТ 628
Серия М
МАССИ ФЕРГЮСОН МАТБРО
TR250
МАКС МЕКАЛАК МЕРЛО
Серия P
P28.
