Содержание
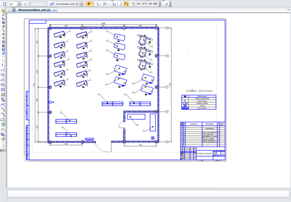
Слесарно-механический участок
4 Охрана труда и окружающей среды
4.1 Общие вопросы
В топливном К обязанностям — обеспечивать — обеспечивать — организовывать — контролировать — проводить — не допускать — не допускать Виды инструктажей Первичный инструктаж Повторный инструктаж | ||||||
ДП 2-370106 55-у ПЗ | Лист | |||||
Изм | Лист | № докум. | Подп. | Дата | ||
Внеплановый инструктаж
— при изменении правил по
— при изменении технологического
— замене оборудования и других
— при нарушении требований безопасности
— при перерывах в работе более
Целевой инструктаж
Состояние охраны
I ступень контроля
Ежедневно мастер
II ступень контроля
Еженедельно
III ступень контроля
Проводится
| ||||||
ДП 2-370106 55-у ПЗ | Лист | |||||
Изм | Лист | № докум. | Подп. | Дата | ||
4.2 Техника безопасности
К самостоятельной Слесарь, не прошедший своевременно повторный При поступлении Слесарь обязан Продолжительность Слесарь должен — легко воспламеняющиеся — оборудование, — электрический — вращающиеся — замасленная Легковоспламеняющиеся Оборудование, Слесарь должен Запрещается пользоваться | ||||||
ДП 2-370106 55-у ПЗ | Лист | |||||
Изм | Лист | № докум. | Подп. | Дата | ||
Слесарь должен
Курить разрешается
О замеченных нарушениях слесарь должен
Слесарь должен
Основными требованиями
Ручной инструмент
Отвёртки должны
Гаечные ключи
Остро-, плоско- | ||||||
ДП 2-370106 55-у ПЗ | Лист | |||||
Изм | Лист | № докум. | Подп. | Дата | ||
4.3 Электробезопасность
В топливном Топливное отделение Мероприятия, используемые в отделении — недоступность токоведущих — применение ручного механизированного — выравниванием потенциала земли — применением средств коллективной — заземление и зануление в топливном Персоналу работающему аттестацией с Основные причины поражения электрическим — случайное прикосновение к токоведущим — появление напряжения на конструктивных — появление напряжения на отключенных | ||||||
ДП 2-370106 55-у ПЗ | Лист | |||||
Изм | Лист | № докум. | Подп. | Дата | ||
в результате: ошибочного — возникновение напряжения шага
4.4 Санитарно-гигиенические
Санитарно-гигиеническое Для сохранения Так с целью Температура в тёплый период превышать 80 дБ, В топливном | ||||||
ДП 2-370106 55-у ПЗ | Лист | |||||
Изм | Лист | № докум. | Подп. | Дата | ||
35.9. Проектирование слесарно-механического участка
Слесарно-механический
участок предназначен для восстановления
деталей механической и слесарной
обработкой, изготовления отдельных
деталей нетоварной номенклатуры, которые
не поставляются с заводов автомобильной
промышленности, а также для удовлетворения
внутризаводских нужд.
Следует учитывать,
что сле-сарно-механическая обработка
восстанавливаемых на предприятии
базовых и основных деталей агрегатов
выполняется на участках ремонта
агрегатов.
Детали на участок
подаются партиями с учетом технологических
маршрутов со склада деталей, ожидающих
ремонта, и других производственных
участков (сварочно-наплавочного,
термического, кузнечно-рессорного и
др.). После слесарно-механической
обработки детали поступают на участок
комплектования или участки восстановления
деталей (гальванический, сварочно-наплавочный,
термический и др.). Часть деталей после
подготовительной слесарно-механической
обработки и восстановления на других
участках (гальваническом,
сварочно-наплавочном и др.) возвращается
на слесарно-механический участок для
окончательной (финишной) обработки.
Обычно расчетный
годовой объем работ слесарно-механического
участка увеличивают на 10 % с учетом нужд
самообслуживания производства.
На специализированных
предприятиях, как правило, работы по
восстановлению деталей выполняются на
соответствующих линиях
слесарно-механического участка.
При
этом на линиях восстановления деталей
целесообразно предусматривать выполнение
не только станочных и слесарных работ,
но и работ, связанных с восстановлением
изношенных поверхностей при помощи
наплавки, напыления или других
способов. Однако следует учитывать, что
выполнение указанных восстановительных
работ в общих помещениях допускается
лишь в тех случаях, когда это не
противоречит требованиям санитарных
норм.
На специализированных
предприятиях, когда масштабы производства
позволяют эффективно использовать
станочное оборудование при закреплении
за отдельными станками определенной
номенклатуры деталей, расстановка
оборудования на специализированных
линиях должна строго соответствовать
последовательности операций в рабочей
технологии восстановления данной
детали. При этом сокращаются затраты,
связанные с транспортировкой деталей.
На предприятиях
с относительно малыми масштабами
производства расстановка станков в
последовательности технологических
операций становится неэффективной,
поскольку это может повлечь за собой
неоправданное увеличение числа отдельных
типов станков при их малой загрузке.
В
этом случае станки группируют по их
типам: токарные, фрезерные, шлифовальные
и пр. При расстановке станочного
оборудования необходимо также учитывать,
чтобы станки с повышенной точностью
обработки устанавливались возможно
дальше от оборудования со значительными
динамическими усилиями (строгальные
станки, кривошипные прессы и т. п.).
Расстояния между станками и конструктивными
элементами зданий, установленные нормами
технологического проектирования (см.
табл. 35.2), не учитывают площадок у станков
для хранения крупных деталей, а также
устройство каналов для транспортировки
стружки.
На рис. 35.7 приведена
примерная расстановка оборудования на
слесарно-механическом участке.
Распределение
годового объема работ слесарно-механического
участка основного производства по видам
работ принимают следующим, %:
Токарные 40…50
Строгальные и
долбежные 3…6
Револьверные 7.
..
12
Сверлильные 7…
10
Фрезерные 8…
12
Прессово-штамповочные 3…6
Шлифовальные и
хонинговальные 16…20
Принятое
распределение в сумме должно давать
100 %.
NRS: ГЛАВА 655 — СЛЕСКИ И БЕЗОПАСНЫЕ МЕХАНИКИ
[Rev. 02.05.2022 8:27:35
AM—2021]
ГЛАВА 655 — Слесари и безопасные механизмы
NRS 655.010 Определения.
Ключ NRS 655.020
определенный.
NRS 655.030 Замок
определенный.
NRS 655.040 Слесарь
определенный.
NRS 655.050 Разрешение
определенный.
NRS 655.060 Сейф
механик определил.
NRS 655.070 Разрешение:
Требование; расследование; выпуск; истечение и продление; владение
держатель; отчет о смене адреса.
NRS 655.075 Оплата
алиментов: Представление определенной информации заявителем; основания для
отказ в разрешении; обязанность шерифа. [Действует до даты отмены
42 США 666, федеральный закон, обязывающий каждый штат устанавливать процедуры
о приостановлении, приостановлении и ограничении профессиональных, профессиональных и
лицензии на отдых за задолженность по алиментам и за несоблюдение
определенные процессы, связанные с установлением отцовства или выплатой алиментов.
]
NRS 655.075 Оплата
алиментов: Представление определенной информации заявителем; основания для
отказ в разрешении; обязанность шерифа. [Вступает в силу с даты отмены 42
USC 666, федеральный закон, требующий, чтобы каждый штат установил процедуры для
удержание, приостановление и ограничение профессиональных, профессиональных и
лицензии на отдых за задолженность по алиментам и за несоблюдение
определенные процессы, касающиеся производства по делу об установлении отцовства или алиментов, и
истекает через 2 года после этой даты.]
NRS 655.078 Подвеска
разрешения на неуплату алиментов или выполнение определенных повесток или
ордера; восстановление разрешения. [Действительно до 2 лет после даты
отмена 42 U.S.C. 666, федеральный закон, требующий от каждого штата установить
процедуры удержания, приостановления и ограничения профессиональной деятельности,
профессиональные и рекреационные лицензии для задолженности по алиментам и для
несоблюдение определенных процессов, касающихся отцовства или алиментов
разбирательства.
]
NRS 655.080 Штрафы.
_________
NRS 655.010 Определения. Как
используемые в этой главе, если контекст не требует иного, слова и
термины, определенные в NRS от 655.020 до 655.060 включительно, имеют значения
приписывается им в таких разделах.
(добавлен в NRS к 1971 г.,
839)
NRS 655.020 Ключ определен. Ключ
означает механическое устройство, используемое для управления замком и включает в себя, но не
ограничено:
1. Сменный ключ или ключ, предназначенный для
управлять определенным замком.
2. Ключ манипуляции или ключ,
что при различном расположении в замочных пазах замки будут работать замки.
3. Отмычка или ключ, предназначенный для
управлять серией замков, которые индивидуально управляются с помощью сменных ключей.
4. Пробный ключ или ключ, который будет работать
серия замков в большей серии замков.
(добавлен в NRS к 1971 г.,
839)
NRS 655.030 Блокировка определена.
Замок
означает механическое устройство, снабженное пружиной и болтом или аналогичным
приспособление, используемое для запирания двери, сейфа или другого предмета и открываемое
с помощью ключа или комбинации.
(добавлен в NRS к 1971 г.,
839)
NRS 655.040 Слесарь определен. Слесарь
означает лицо, чья деятельность состоит полностью или частично из:
1. Изготовление, ремонт или регулировка замков;
или
2. Приведение в действие замков механическим способом
кроме предусмотренных производителями замков.
(добавлен в NRS к 1971 г.,
839)
NRS 655.050 Разрешение определено. Разрешать
означает разрешение на работу слесарем или механиком по сейфам.
(добавлен в NRS к 1971 г.,
839)
NRS 655.060 Определение безопасного механика. Безопасный
механик – лицо, чья профессия полностью или частично
ремонт, эксплуатация, регулировка или изменение комбинаций в сейфах или хранилищах.
(добавлен в NRS к 1971 г.,
839)
NRS 655.
070 Разрешение: требование; расследование; выпуск; истечение и
обновление; владение владельцем; отчет о смене адреса.
1. Каждый человек, желающий работать
слесарь или механик должен получить разрешение от шерифа округа.
в котором находится основное место деятельности лица.
2. Шериф округа
расследует каждого заявителя и выдает разрешение каждому заявителю, который
квалифицируется в соответствии с любым постановлением, принятым советом окружных комиссаров
графство, которое регулирует занятие слесарей и которого находит
совет окружных комиссаров, чтобы быть подходящим. Постановление, принятое советом
Уездные комиссары должны указать сборы за выдачу и возобновление
разрешать.
3. Срок действия разрешения истекает через 5 лет после даты
он был получен и может быть продлен.
4. Держатель разрешения должен иметь
разрешение постоянно находится у него.
5. Держатель разрешения должен сообщать о любых
изменение адреса его или ее основного места деятельности на шерифа
округ, в котором было получено разрешение в течение 10 дней после изменения
имеет место.
(добавлен в NRS к 1971 г.,
839; 1981 г.,
268; 1999,
31)
NRS 655.075 Выплата алиментов: предоставление определенной информации
заявитель; основания для отказа в выдаче разрешения; обязанность шерифа. [Действует до
дата отмены 42 U.S.C. 666, федеральный закон, требующий от каждого штата
установить порядок приостановления, приостановления и ограничения
профессиональные, профессиональные и рекреационные лицензии на содержание ребенка
задолженность и за несоблюдение некоторых процессов, касающихся отцовства
или производство по делу об алиментах.]
1. В дополнение к любым другим требованиям
указанных в настоящей главе:
(a) Заявитель на выдачу разрешения
в заявке должен быть указан номер социального страхования заявителя
подается шерифу округа, в котором находится основное место деятельности
находится заявитель.
(b) Заявитель на выдачу или возобновление
разрешение подается шерифу округа, в котором основное место
деятельности заявителя находится заявление, установленное
Отдел социального обеспечения и вспомогательных услуг Министерства здравоохранения и
Социальные службы в соответствии с NRS 425.
520.
Заявление должно быть заполнено и подписано заявителем.
2. Шериф округа должен включать
заявление, требуемое в соответствии с подразделом 1 в:
(a) Заявка или любые другие формы, которые должны
представляться для выдачи или продления разрешения; или
(b) Отдельная форма, установленная шерифом.
3. Разрешение не может быть выдано или продлено
шерифом округа, если заявитель:
(a) Не представил требуемое заявление
в соответствии с пунктом 1; или
(b) Указывает на заявление, представленное в соответствии с
к подразделу 1, что заявитель подлежит распоряжению суда о поддержке
ребенка и не соответствует приказу или плану, утвержденному
окружной прокурор или другой государственный орган, обеспечивающий исполнение приказа о погашении
суммы задолженности по приказу.
4. Если заявитель указывает на
заявление, представленное в соответствии с подразделом 1, о том, что заявитель подлежит
судебный приказ на содержание ребенка и не соответствует приказу
или план, одобренный окружным прокурором или другим государственным органом, обеспечивающим соблюдение
приказ о возврате суммы, причитающейся в соответствии с приказом,
Шериф должен посоветовать заявителю связаться с окружным прокурором или другим
государственный орган, исполняющий приказ об определении действий, которые заявитель
может принять для погашения задолженности.
(добавлен в NRS к 1997 г.,
2184; 2005 г.,
2800, 2807)
NRS 655.075 Выплата алиментов:
Предоставление определенной информации заявителем; основания для отказа в выдаче разрешения;
обязанность шерифа. [Вступает в силу с даты отмены 42 U.S.C. 666, г.
федеральный закон, требующий от каждого штата устанавливать процедуры удержания,
приостанавливает и ограничивает профессиональную, профессиональную и рекреационную
лицензии за задолженность по алиментам и за несоблюдение определенных
процессов, связанных с установлением отцовства или выплатой алиментов, и истекает
ограничение через 2 года после этой даты.]
1. В дополнение к любым другим требованиям
указанных в настоящей главе, заявитель на выдачу или продление разрешения
подчиняется шерифу округа, в котором находится основное место
бизнес заявителя находится в заявлении, установленном Отделом
службы социального обеспечения и поддержки Департамента здравоохранения и социальных
Услуги согласно NRS 425.520.![]()
Заявление должно быть заполнено и подписано заявителем.
2. Шериф округа должен включать
заявление, требуемое в соответствии с подразделом 1 в:
(a) Заявка или любые другие формы, которые должны
представляться для выдачи или продления разрешения; или
(b) Отдельная форма, установленная шерифом.
3. Разрешение не может быть выдано или продлено
шерифом округа, если заявитель:
(a) Не представил требуемое заявление
в соответствии с пунктом 1; или
(b) Указывает на выписку, представленную в соответствии с
к подразделу 1, что заявитель подлежит распоряжению суда о поддержке
ребенка и не соответствует приказу или плану, утвержденному
окружной прокурор или другой государственный орган, обеспечивающий исполнение приказа о погашении
суммы задолженности по приказу.
4. Если заявитель указывает на
заявление, представленное в соответствии с подразделом 1, о том, что заявитель подлежит
судебный приказ на содержание ребенка и не соответствует приказу
или план, одобренный окружным прокурором или другим государственным органом, обеспечивающим соблюдение
приказ о возврате суммы, причитающейся в соответствии с приказом,
Шериф должен посоветовать заявителю связаться с окружным прокурором или другим
государственный орган, исполняющий приказ об определении действий, которые заявитель
может принять для погашения задолженности.![]()
(добавлен в NRS к 1997 г.,
2184; 2005 г.,
2800, 2801,
2807,
вступает в силу с даты отмены 42 U.S.C. 666 Федерального закона.
требование от каждого штата установить процедуры удержания, приостановления и
ограничение профессиональных, профессиональных и развлекательных лицензий для детей
задолженность по поддержке и за несоблюдение определенных процессов, касающихся
отцовства или алиментов)
NRS 655.078 Приостановление действия разрешения за неуплату алиментов или несоблюдение
с определенными повестками или ордерами; восстановление разрешения. [Действует до 2
лет после даты отмены 42 U.S.C. 666 Федерального закона.
требование от каждого штата установить процедуры удержания, приостановления и
ограничение профессиональных, профессиональных и развлекательных лицензий для детей
задолженность по поддержке и за несоблюдение определенных процессов, касающихся
производство по делу об отцовстве или алиментах.]
1. Если шериф округа получает
копия судебного приказа, выданного в соответствии с NRS
425.
540, который предусматривает приостановку всех профессиональных, профессиональных
и рекреационных лицензий, сертификатов и разрешений, выданных лицу, которое
владелец разрешения, выданного шерифом, шериф считает разрешение
выдано этому лицу для приостановления действия в конце 30-го дня после даты
по которому был издан судебный приказ, если только шериф не получит письмо, выданное
владельцу разрешения окружным прокурором или другим государственным органом
в соответствии с NRS 425.550, в котором говорится, что
владелец разрешения выполнил повестку или ордер или удовлетворил
задолженность в соответствии с NRS 425.560.
2. Шериф восстанавливает разрешение
выданный шерифом, который был приостановлен окружным судом в соответствии с NRS 425.540, если шериф получает
письмо, выданное окружным прокурором или другим государственным органом в соответствии с NRS 425.550 лицу, чье разрешение было
приостановлено, заявив, что лицо, чье разрешение было приостановлено, выполнило
повестку в суд или ордер или удовлетворил задолженность в соответствии с NRS 425.
560.
(добавлено в NRS к 1997 г.,
2184; 2005 г.,
2807)
NRS 655.080 Штрафы. Любой
лицо, нарушающее какое-либо положение настоящей главы, подлежит наказанию в виде штрафа
не более 500 долларов, и может быть дополнительно наказан отзывом его или
ее разрешение.
(добавлен в NRS к 1971 г.,
840)
Слесарные услуги: что они предоставляют?
Слесарное дело — ремесло, существующее уже много столетий. Это практика работы с запорными устройствами и их ремонта в случае их повреждения или поломки. Слесари также несут ответственность за создание новых запирающих устройств и их установку в домах и на предприятиях. Иногда мы можем оказаться в чрезвычайной ситуации, когда требуется помощь слесаря как можно скорее.
Давайте рассмотрим конкретные услуги, которые предоставляет большинство местных слесарей, и то, как они могут помочь вам защитить вашу собственность.
Некоторые из ключевых услуг, в которых мы можем положиться на слесарей, включают такие задачи, как; услуги аварийной блокировки, ремонт, замена ключей, установка новых замков и механических или электронных запирающих устройств.
Теперь, когда мы знаем большую часть услуг, которые предоставляют слесари, давайте посмотрим, что представляют собой некоторые из этих услуг.
Ремонт/восстановление замков
Когда дело доходит до ремонта замков, слесарь должен будет оценить ущерб, и в зависимости от того, насколько он серьезен, он сможет либо отремонтировать его, либо заменить некоторые внутренние детали новыми деталями. Если замок нельзя починить, то лучше всего будет его восстановить. Восстановление замка обычно происходит со старыми замками, в которые нельзя вставить новые детали. Слесари вынимут старые детали и почистят их перед установкой новых.
Установка замков
Слесари не только ремонтируют и восстанавливают замки, но и устанавливают их. Обычно это делается, когда вы впервые переезжаете в новый дом или офис, или всякий раз, когда вы хотите повысить уровень безопасности вашего текущего места жительства или помещения. Часто, когда дело доходит до установки замков, люди пытаются сделать это сами, но обнаруживают, что это не так просто, как кажется.
У слесарей есть инструменты и опыт, необходимые для правильной установки любого типа замка, от простых засовов до более сложных систем запирания.
Замена ключей замков
Еще одна распространенная услуга, которую предоставляют слесари, — это замена ключей. Я знаю, что это может сбить с толку большинство людей относительно того, что на самом деле представляет собой эта услуга, но не беспокойтесь, именно поэтому мы пишем этот блог. Замена ключа в замке просто означает изменение внутреннего механизма замка, чтобы новый ключ мог управлять им. Это действие также обычно выполняется в новом доме, новом бизнесе, офисе или при желании повысить безопасность помещения. При покупке нового дома или бизнеса настоятельно рекомендуется сменить ключи. Таким образом, вы наверняка единственный, у кого есть ключ от вашего дома, бизнеса или офиса. Кроме того, при смене руководства рекомендуется менять ключи на замках. В целях вашей безопасности при смене ключей ваши замки мы в A Carolina Locksmith тщательно изучим их, чтобы убедиться, что ваши замки находятся в надлежащем рабочем состоянии.
Ваша безопасность является нашим главным приоритетом.
Перештифтовка замков
Когда слесарю приходится перепиновывать замок, это означает, что нам придется менять штифты внутри цилиндра замка на другую высоту. Слесари обычно делают это, когда ключ застревает в замке или если неправильный ключ использовался слишком много раз и повредил штифты внутри. Как бы это ни казалось маловероятным, на самом деле это частая ошибка, с которой мы сталкиваемся, когда к нам обращаются клиенты.
Механические или электрические запирающие устройства
При работе с механическими или электрическими запорными устройствами к слесарям обычно обращаются в этом случае для установки, технического обслуживания или ремонта этих типов запорных механизмов. Часто в случае сбоя в электросети слесарь сможет обойти систему и получить доступ ко всему, что вам нужно. Что касается механических устройств, то слесари нередко обслуживают эти типы запорных механизмов на регулярной основе.
0.004-90 в соответствии с которым обязательными инструктажами
Повторный инструктаж
Проведение целевого инструктажа 

Кроме того, пары и газы,
2.003-91. Их выполнение
Размер


Отвечая