Содержание
Текущий ремонт — Техническое Обслуживание и Ремонт Автомобилей
Текущим ремонтом называют такой ремонт, который производится для устранения возникших отказов и неисправностей и способствует выполнению установленных норм пробега до капитального ремонта при минимальных простоях. Потребность в проведении текущего ремонта для автомобиля, прицепа или полуприцепа устанавливается при контрольных осмотрах, выполняемых во время проведения всех видов технического обслуживания, а также по заявкам водителя. В результате осмотра составляется акт технического состояния автомобиля. Если автомобиль по техническому состоянию не требует ремонта, то его допускают к дальнейшей эксплуатации на определенный срок, о чем делается отметка в акте.
Текущий ремонт подвижного состава производится в автотранспортных предприятиях, автокомбинатах или на станциях технического обслуживания.
При текущем ремонте осуществляют разборочно-сборочные, слесарные, сварочные и другие необходимые работы.
У агрегатов заменяют отдельные детали, достигшие предельно допустимого состояния, или поврежденные детали, кроме базовых. У автомобиля (прицепа, полуприцепа) производится замена отдельных узлов и агрегатов, требующих текущего или капитального ремонта. Как правило, текущий ремонт осуществляют агрегатным методом. Текущий ремонт должен обеспечить безотказную работу отремонтированных агрегатов и узлов на пробеге не меньше чем до очередного, второго технического обслуживания.
Наиболее распространенными работами при текущем ремонте являются: замена поршневых колец, вкладышей подшипников коленчатого вала, подшипников ступиц колес, рессор и рессорных пальцев, шаровых пальцев рулевого привода, притирка клапанов, пайка радиатора, правка и заварка крыльев, подкраска поврежденных мест кузова и др. Также при текущем ремонте осуществляют замену гаек, болтов, шпилек, шайб, прокладок. Производят слесарно-механические работы, например притирку, сверление, развертывание отверстий и т. д.
Для планирования текущего ремонта установлены нормативы трудоемкости. Нормативы не учитывают трудовых затрат на вспомогательные работы, которые устанавливаются в пределах 20—30% к суммарной трудоемкости текущего ремонта по автотранспортному предприятию.
В состав вспомогательных работ включают: обслуживание и ремонт оборудования и инструментов; транспортные и погрузочно-разгрузочные работы, связанные с ремонтом автомобилей; перегон автомобилей внутри автотранспортного предприятия; хранение, приемку и выдачу материальных ценностей; уборку производственных и служебно-бытовых помещений.
Работы, выполняемые при текущем ремонте автомобилей, подразделяются на два вида: работы по съему и установке агрегатов и узлов, а также по разборке, устранению неисправностей и сборке снятых агрегатов и узлов.
Производственные участки, предназначенные для технического обслуживания и ремонта полнокомплектных автомобилей, считаются основными, участки, специализирующиеся по видам работ, например ремонту топливной аппаратуры, аккумуляторов и др.
, обеспечивающие работу основных участков, — вспомогательными.
На промышленных предприятиях существуют два метода текущего ремонта автомобилей — необезличенный и агрегатный.
При необезличенном методе ремонта сохраняется принадлежность восстановленных составных частей к определенному автомобилю. При этом автомобиль простаивает в течение всего времени ремонта его агрегатов. Агрегатный метод является таким обезличенным методом ремонта, при котором неисправные агрегаты заменяются новыми или заранее отремонтированными. Снятые с автомобиля агрегаты, требующие ремонта, отправляют на специализированные авторемонтные заводы или вспомогательные производственные участки для восстановления. При агрегатном методе значительно сокращается время простоя в ремонте, повышается коэффициент технической готовности и тем самым увеличивается эффективность использования автотранспортных средств.
Текущий ремонт выполняется на универсальных или специальных постах. На посты возлагают выполнение всех работ по текущему ремонту одного или нескольких агрегатов, сборочных единиц и систем автомобиля.
Рекомендуется специализировать производственные участки на выполнение определенных работ по агрегатам, электрооборудованию. Узкая специализация ремонтных предприятий позволяет применять наиболее производительные технологические процессы, улучшать качество и снижать себестоимость ремонтных работ.
При текущем ремонте на СТОА происходит следующее перемещение автомобиля. При въезде на станцию автомобиль проезжает в зону приемки, где приемщик проводит его проверку, оформляет наряд-заказ на ремонт. На крышу автомобиля устанавливают опознавательный знак на магнитной подставке, номер которого вписывают в наряд-заказ. Оформляя наряд-заказ, приемщик вписывает в него данные о владельце и автомобиле, перечисляет операции, которые необходимо выполнить, указывает их стоимость по единому прейскуранту.
Оформленный наряд-заказ на ремонт приемщик передает в диспетчерскую, расположенную рядом с участком приемки. Диспетчер направляет автомобиль в определенную зону ремонта и устанавливает дату и время выдачи автомобиля из ремонта, которые отмечаются в наряде-заказе.
Затем диспетчер рассылает с помощью пневмопочты формы наряда-заказа в соответствующие подразделения станции: на склад, в расчетный отдел, начальнику производства. Одна из форм остается на автомобиле, который передается персоналом участка приемки в одну из бригад соответствующего участка.
Таким образом, как только автомобиль принят и взят на учет диспетчером, соответствующие подразделения станции получают об этом информацию.
Бригада, в которую поступил автомобиль, выполняет операции, указанные в наряде-заказе. Бригадир записывает в наряде-заказе табельные номера рабочих, проводящих ремонт, и они в нем расписываются за каждую операцию. Затем автомобиль по указанию диспетчера передается в другие бригады для дальнейших работ.
После завершения всех работ автомобиль поступает на участок выдачи, где проводится контроль работ, выполненных ремонтными бригадами. Проверенный автомобиль выдается владельцу или устанавливается на стоянку готовых автомобилей.
Нормативы следует корректировать в зависимости от условий эксплуатации, изменения режимов технического обслуживания и других факторов.
Установленная общая трудоемкость текущего ремонта автомобилей распределяется по видам работ. Распределение характера работ приводится в нормативных материалах.
ТО и ТР автомобилей
Содержание
Введение61Общая часть81.1Характеристика подвижного состава по маркам и пробегу81.2Оснащение ремонтной базы91.3Существующий технологический процесс ТО и ремонта автомобилей101.4Анализ существующей организации ТО и ремонт111.5Характеристика ТО автомобилей122Расчетная часть 142.1Выбор исходных данных 142.2Расчет годовой программы ТО и ТР152.2.1Корректирование периодичности ТО и ТР152.2.2Корректирование трудоемкости ТО и ТР172.2.3Определение коэффициента технической готовности202.2.4Расчет годовой трудоемкости работ по ТР212.2.5Расчет годовой трудоемкости электроцеха222.2.6Расчет численности производственных рабочих232.3Подбор технологического оборудования252.4Расчет производственной площади263Энергетическая часть273.1Расчет потребности электроэнергии273.2Расчет отопления283.
3Расчет вентиляции293.4Расчет потребности в воде304Технологическая часть314.1Организация ТО и ТР314.1.1Методы организации технологического процесса ТО автомобилей324.1.2Выбор метода организации технологического процесса ТО автомобилей334.1.3Организация труда рабочих на постах ТО автомобилей .
Проектирование организации труда рабочих344.1.4Организация труда на постах ТР автомобилей364.1.5Методы организации ТР автомобилей374.1.6Организация ремонта узлов и агрегатов, снятых с автомобилей384.1.7Организация контроля качества ТО и ТР автомобилей394.2Технологический процесс работы участка по ТО и ТР электрооборудования404.2.1ТО генератора404.2.2ТО системы пуска404.2.3ТО системы зажигания415Экономическая часть425.1План по труду425.2Планирование заработной платы электрика425.3Расчет отчислений на социальные нужды445.4Затраты на запасные части и материалы445.5Перечень выбранного оборудования455.6Расчет амортизационных отчислений475.7Расчет затрат на услуги обслуживающие производство485.
7.1Расчет затрат на топливо для отопления485.7.2Расчет затрат на электроэнергию485.7.3Расчет затрат на водоснабжение495.8План по себестоимости496Конструктивная часть516.1Устройство и принцип работы. Приспособление для сборки крышек
со стороны привода516.2Расчет на прочность деталей приспособления для сборки крышек536.2.1Расчет усилия, действующего на собираемую деталь536.2.2Расчет усилия развиваемого пневмокамерой546.3Расчет на прочность шарнирного соединения546.3.1Проверка пальца на срез546.3.2Проверка соединения на смятие547Организация работ по охране труда и противопожарной безопасности568Охрана природы и охрана окружающей среды618.1Влияние автомобильного транспорта на окружающую среду618.2Мероприятия по снижению вредного влияния автотранспорта на окружающую среду 63Список использованных источников64
ВВЕДЕНИЕ
Одной из важнейших задач в области эксплуатации автомобильного парка является дальнейшее совершенствование организации технического обслуживания и текущего ремонта автомобилей с целью повышения их работоспособности и вместе с тем снижение затрат на эксплуатацию.
Актуальность указанной задачи подтверждается и тем, что на техническое обслуживание автомобиля затрачивается во много раз больше труда и средств, чем на его производство.
В настоящее время на базе научно-технического прогресса получает дальнейшее развитие проверенная многолетним опытом планово-предупредительная система технического обслуживания и ремонта подвижного состава лесопромышленного комплекса в целом.
Как в области организации автомобильных перевозок, так и в области технической эксплуатации автомобилей начинают применяться различные экономико-математические методы анализа, планирования и проектирования. Все шире разрабатываются и внедряются новые методы и средства диагностирования технического состояния и прогнозирования ресурсов безотказной работы автомобилей. Создаются новые виды технологического оборудования, позволяющие механизировать, а в ряде случаев и автоматизировать трудоемкие операции по обслуживанию и ремонту подвижного состава. Разрабатываются современные формы управления производством, которые рассчитаны на применение электронно-вычислительных машин с дальнейшим переходом на автоматизированную систему управления.
При все возрастающем насыщении народного хозяйства автомобилями современная система хозяйствования предусматривает новые структурные подразделения автомобильного транспорта автокомбинаты и производственные объединения, ремонтно-обслуживающие базы, которые потенциально способствуют переходу на централизованное производство обслуживания и ремонта автомобилей.
Важнейшей задачей в любом хозяйстве является организация технического обслуживания и текущего ремонта автомобилей. Этой актуальной теме и посвящается дипломный проект.
1 Общая часть
1.1 Характеристика подвижного состава по маркам и пробегу
Характеристика подвижного состава имеющегося на предприятии и занимающихся вывозкой древесины (сортиментовозы), перевозкой людей и грузов показано в таблице 1
Таблица 1 — Характеристика подвижного состава.
№Марка
автомобиляТип
автомобиляГод
выпускаОбщий
пробег, км1ГАЗ-3307грузовой2004437692ГАЗ-3307грузовой2004605693ГАЗ-3507грузовой2004550694ГАЗ-66грузовой2002810305УАЗ-3303грузовой1999975176УАЗ-31514легковой2003570997МОСКВИЧ-21412-01легковой20011093508ГАЗ-3110легковой2003114455
Из таблицы 1 видно, что парк подвижного состава имеет небольшую разномарочность.
Это в свою очередь повышает качественное обеспечение запасными частями и проведение работ по ТО и ремонту.
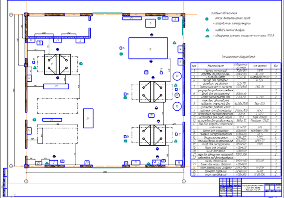
1.2 Оснащенность ремонтной базы
Оснащенность ремонтной базы предприятия технологически необходимым оборудованием показано в таблице 2
Таблица 2 — Технологическое оборудование предприятия
Наименование
цехаНаименование
оборудованияТип,
МаркаМощность
кВтКол-воСлесарный
Сварочный
Эл. технический
Дополнительное оборудование
Станок фрезерный широкоуниверсальный
Настольный сверлильный станок
Электроточило
Сварочный однопостовой трансформатор
Преобразователь сварочный
Комплект приборов для технической диагностики автомобилей
Стенд для регулирования эл.
оборудования
Верстак слесарный
Тиски слесарные поворотные
Ящик с песком
Огнетушитель675П
2М-112
ИЭ 9701-УХЛ4
СТШ-500
ПСГ-500-1
ЛВ 158
532-2М
М 1019-102
ГОСТ 4045-57
ОРГ 1468
ОХВП-101
1
1
1
1
1
1
2
2
2
2
1.3 Существующий технологический процесс ТО и ремонта
автомобилей
Для ТО автомобилей в гараже имеется комплексная бригада которая выполняет все виды ТО и ремонта.
При выполнении всех видов ТО выполняют следующие операции.
Ежедневное обслуживание (ЕО)
— очистка двигателя от пыли и грязи;
— внешним осмотром проверяют отсутствие подтекания масла, топлива, охлаждающей жидкости;
— проверяют уровень масла и при необходимости доливают его;
— проверяют натяжение ремня генератора.
Техническое обслуживание № 1 (ТО-1)
При ТО-1 выполняются операции ЕО, а также:
— проверяют уровень масла и при необходимости доливают его до уровня контрольных отверстии в агрегатах трансмиссии;
— проверяют и регулируют приборы системы питания и электрооборудования.
Техническое обслуживание № 2 (ТО-2)
При ТО-2 выполняются операции ТО-1, а также:
— промывают воздухоочистители;
— сливают отстой из фильтра грубой очистки топлива;
— заменяют масло в картере двигателя.
При сезоном обслуживании (СО) производится проверка аккумуляторных батарей (проверка уровня и плотности электролита), меняют масло и топливо соответствующее наступающему сезону.
1.4 Анализ существующей организации ТО и ремонта
Главными недостатками в организации работ по ТО и ремонту автомобилей являются:
— Нехватка запасных частей и ремонтных материалов для проведения ТО и ремонта;
— отсутствие новых деталей, агрегатов, узлов;
— нехватка специальных приспособлений, инструмента и оснастки;
— низкая квалификация ремонтных рабочих;
— отсутствие технологических карт на проведение техобслуживания.
Для высокопроизводительного использования и техобслуживания техники, а вследствие этого повышения производительности труда предлагаю ввести следующие мероприятия по устранению недостатков при ТО и ремонте
— В полном объеме снабжать предприятия по ТО и ремонту автомобилей новыми деталями и агрегатами, запасными частями и ремонтными материалами;
— проводить курсы по подготовке специалистов, обучению и консультациям рабочих кадров;
— приобрести новое технологически необходимое оборудование для повышения качества и производительности ремонтных работ.
1.5 Характеристика ТО автомобилей
Ежедневное обслуживание (ЕО) включает подготовку машины к
- Исследование фактических сроков и состав ТР электрооборудования автомобиля КамАЗ-5320
Организация работы зон ТО и ТР аккумуляторного участка автотранспортного цеха
Проект организации ТО и ремонта для АТП со списочным парком 165 автомобилей ГАЗ 3307 с подробной разработкой моторного цеха
Разработка сроков и состава работ ТР электрооборудования автомобиля ГАЗ-31029
Разработка технологического процесса ТР переднего моста автомобиля ГАЗ-31029
Разработка технологического процесса ТР топливной аппаратуры автобуса ПАЗ-3205
Разработка технологического процесса ТР топливной аппаратуры автомобиля КамАЗ-5320
Расчет затрат на ТО и ТР для автомобиля Урал-377
Расчет себестоимости ТО и ТР для автомобиля КраЗ–256 Б 1
Современное состояние и тенденции развития отечественного автомобильного транспорта
Triumph TR Series — Обзоры классических автомобилей
- Лучшая модель: Все в хорошем нике
- Худшая модель: Все безвкусное
- Бюджетная покупка: Все, что требует доработки
- Подходит для неэтилированного бензина?: Нет; вам понадобится добавка
- Поместится ли в гараже? (мм): 3840 мм x 1410 мм
- Запчасти: В целом хорошо
- Легкость своими руками?: Проще, чем Meccano
- Поддержка клуба: Отлично
- Повышающийся актив?: Да, постепенно
- Удачная покупка или до свидания?: Удачная покупка
Кокпит типичный 1950-х годов, так что общая доработка невелика, но более чем достаточна
Почти винтажная задняя часть означает, что у ранних TR есть запас стиля.
Двигатель используется совместно с трактором Ferguson и настолько же смелым, насколько это возможно. Легко переоценить
Подписка на журнал
Подпишитесь на журнал Classic Motoring Magazine и сэкономьте более 20%
Подпишитесь СЕЙЧАС
Доступно во всех хороших газетных киосках, включая WHSmith
Благодаря необычному сочетанию компонентов и волшебства модели TR2 и TR3 воплощают характер и стиль 1950-х годов без каких-либо забот
Плюсы и минусы
Великолепный как в управлении, так и на вид, прочный, хорошо обслуживаемый, простой и дешевый в обслуживании
Много грязных/грубых автомобилей, не особенно практичных, очень хороших это дорого
£3000-£20,000
Когда дело доходит до спортивных автомобилей, никто не делает их так, как британцы.
В послевоенную эпоху Великобритания лидировала в мире по количеству доступных и очаровательных спортивных автомобилей, и нигде это не проявляется так ярко, как в ранних моделях Triumph TR, TR с боковым экраном. Спустя более полувека после того, как был представлен первый представитель линейки, модели TR2, TR3 и TR3A источают очарование простоты и ностальгии, как немногие другие классические модели; Немногие автомобили могут гарантировать столько удовольствия каждый раз, когда вы садитесь за руль. Однако, несмотря на простоту проектирования и конструкции этих Triumph, неосторожные могут столкнуться с множеством подводных камней, так как в продаже много запчастей по завышенным ценам, так что действуйте осторожно. Очень осторожно.
История
Менее известный факт, что TR поделился своей ДНК с Остином-Хили, поскольку Дональд Хили был главным инженером компании. TR2 поступил в продажу в июле 1953 года, после того как Triumph дразнил публику своим концепт-каром TR1 годом ранее.
TR2 был основан на модернизированном довоенном шасси Standard Flying Nine и использовал четырехцилиндровый двигатель Triumph 2100, уменьшенный до 1991 куб.см, но доработанный до 90 л.с. Первые автомобили отличались любопытной конструкцией длинной двери, которая раньше зацепляла высокие бордюры, поэтому 19 ноября54 двери были укорочены (был вставлен порог). Популярные варианты включают овердрайв (только сверху), жесткий верх и проволочные колеса. В октябре 1955 года TR3 заменил TR2 после того, как было построено 8628 последних. Однако изменения были незначительными; было больше мощности и решетка яичного ящика, но это было примерно так.
Однако в сентябре 1956 года произошло увеличение мощности: теперь двигатель мог развивать мощность от 95 до 100 л.с. в зависимости от возраста, а дисковые тормоза (впервые для этого класса автомобилей) стали стандартным оборудованием спереди. 19 сентября57, производство TR3 закончилось, хотя модель еще несколько месяцев была доступна новой. Производство TR3 было остановлено, поскольку был представлен его преемник TR3A.
Это отличалось решеткой во всю ширину, а также улучшенными сиденьями и отделкой. Однако неофициально автомобиль был известен только как TR3A; Triumph по-прежнему называл его TR3. С 1959 года автомобиль опционально предлагался с 2,2-литровым двигателем, но дальнейшего развития автомобиля не было; к сентябрю 1961 года он был снят с производства после того, как было произведено более 58 000 автомобилей, и был заменен полностью переработанным TR4. При этом говорилось, что TR3B был только для экспорта. По сути, это был TR4, но со знакомым кузовом в старом стиле для традиционалистов, которым не нравился новый стиль 60-х.
Вождение
В этом все дело; вы, конечно, не покупаете TR с боковым экраном из-за его практичности или изысканности. Вместо этого вы покупаете его, потому что он позволяет вам гарантировать, что каждая поездка будет крик, благодаря минимальной снаряженной массе и великолепно крутящему четырехцилиндровому двигателю с верхним расположением клапанов в носу. Иногда вам приходится бороться с некоторыми элементами управления, но это только часть удовольствия.
TR3A получил передние диски, но более ранние автомобили имели барабаны по всему периметру, а поскольку сервопривода нет, если вы хотите сбросить автомобиль с высоких скоростей, вам нужно сильно нажать на среднюю педаль — но они делают это. работа. Рулевое управление тоже тяжелое, хотя это нормально, когда вы набираете скорость, но на низких скоростях управлять автомобилем может быть больно, и отсутствие блокировки не помогает. Эти ранние ТУ не для слабаков; Улучшения минимальны, и это не совсем расслабленный турер.
Цены
Ранние TR2 и поздние TR3 пользуются наибольшим спросом. Автомобили, которые грубы, но работают, стоят 3000-5000 фунтов стерлингов, но вам нужно 10 000–12 000 фунтов стерлингов, чтобы получить что-то хорошее. Действительно превосходные автомобили могут продаваться по цене более 20 000 фунтов стерлингов, но они должны быть исключительными, чтобы получить такие деньги.
Усовершенствования
Все модели TR с боковым стеклом оснащались по существу одной и той же четырехступенчатой механической коробкой передач, но с разными характеристиками.
Первые TR2 не предлагали овердрайв, затем он стал доступен только на высшей передаче. Однако с 19 мая55, любой, кто выбрал опцию повышающей передачи, устанавливал ее на вторую, третью и четвертую передачи; это наиболее желательная версия, так как это также более мощная трансмиссия. Еще лучше будет переход на полностью синхронизированную коробку передач TR4, которая встанет на место с минимальными изменениями. Если даже этого недостаточно, за 2500 фунтов стерлингов Revington TR поставит комплект для пятиступенчатой коробки передач производства Toyota. Модернизация рулевого управления популярна; многие владельцы отказываются от оригинальной коробки передач в пользу реечной системы, которая более прямая и легкая. Но при этом вы потеряете характерно звучащие звуковые сигналы и кнопки индикаторов, встроенные в рулевое колесо. Этот старый тракторный двигатель можно легко настроить так, чтобы он давал скорость, подобную TR6, а 130 л.с. легко достижимы. Однако будьте осторожны с автомобилями, которые были обновлены по частям; если все модифицировать так, чтобы все работало хорошо вместе, это нормально, но только один модернизированный компонент, вероятно, приведет к тому, что динамика будет скорее хуже, чем лучше.
Что искать
- Ценность TR в основном заключается в его кузове, поэтому тщательный и тщательный осмотр имеет решающее значение. Заводская защита от ржавчины была плохой, поэтому большинство уцелевших были восстановлены; проверьте, все ли в порядке. Подгонка панели может быть везде, и если корпус кузова был отделен от шасси, он может быть искривлен. Если автомобиль импортирован из США, более вероятны повреждения при аварии, чем коррозия, поэтому внимательно проверьте все на предмет ряби и перегибов.
- Шасси также должно быть прямым, поэтому поставьте машину на рампу и хорошенько загляните под нее. Аутригеры могут сильно сгнить — как и любые стальные детали автомобиля, но все доступно.
- У вас есть выбор панелей из сплава или стали; до 1954 года капот и крышка запасного колеса изготавливались из алюминия. Как ни странно, даже когда он сделан из стали, это единственные две области, которые обычно не подвержены ржавчине, поэтому вам нужно тщательно осмотреть весь кузов.

- Панели пола особенно подвержены гниению, наряду с передними стойками, внутренними задними панелями и боковыми панелями за дверями. Также особенно уязвимыми являются нижняя часть передних крыльев, внутренние стенки отсека для запасного колеса и лоток аккумуляторной батареи.
- Многие из сменных панелей просто вставляются на место болтами, но для некоторых репродукций потребуется много подгонки, чтобы они подошли должным образом.
- Если вам посчастливится найти автомобиль с оригинальной жесткой крышей, вам придется заплатить за него 500 фунтов стерлингов.
- При надлежащем уходе двигатель TR без проблем проедет 150 000 миль; Главное, на что нужно обратить внимание, — это 50 фунтов на квадратный дюйм на манометре масла, как только все прогреется и вы наберете скорость.
- Четырехцилиндровый двигатель с верхним расположением клапанов прост, поэтому признаки износа очевидны; стук и сизый дым при разгоне. Первое указывает на то, что необходимы новые коренные подшипники, а второе указывает на изношенные отверстия цилиндров и/или поршневые кольца.
Таппеты также могут стать вокальными через некоторое время, но обычно можно настроить все, чтобы подавить грохот. - Если требуется восстановление, достаточно легко выполнить работу дома, или вы можете нанять специалиста. Выберите первый маршрут, и вы заплатите 1500 фунтов стерлингов за детали, если не требуется много механической обработки; выберите последний вариант, и вы должны выделить не менее 3000 фунтов стерлингов плюс ваш старый блок, если он исправен.
- Настроенные двигатели — это нормально, и если все сделано правильно, то все в порядке. Даже в стандартной форме эти автомобили бодры; Установите более позднюю головку блока цилиндров, дополнительный карбюратор или немного более дикий распределительный вал, и все может быть еще лучше. Тем не менее, некоторые модификации делают автомобиль менее пригодным для использования, классический пример — чрезмерная карбюрация; близнецы Веберы популярны, но они часто не настроены должным образом.
- Все коробки передач TR надежны, но синхронизаторы могут рано или поздно выйти из строя.
Однако первым делом обычно выходят из строя подшипники промежуточного вала, выдаваемые дребезжанием при переключении передач на нейтрали, а затем тишиной при выжиме сцепления. Более серьезной проблемой является стук на первой или задней передаче, означающий, что шестерня потеряла зуб. - Задняя ось TR2, изготовленная Lockheed, не очень долговечна, если автомобиль интенсивно эксплуатируется на современных радиальных шинах. Проблема в том, что полуоси ломаются, из-за чего многие автомобили были модернизированы на ось производства Girling от TR3 и TR3A — она намного прочнее и из-за этого никогда не доставляет проблем. Какая бы ось ни была установлена, нужно убедиться, что масло не везде; утечки распространены, но их достаточно легко исправить.
- Одна из вещей, которая придает TR ощущение винтажности, — это червячное рулевое управление; это немного расплывчато, но этого недостаточно, чтобы испортить впечатление от вождения. Утечки рулевого механизма — обычное дело, и если уровень масла не поддерживается, быстрый износ неизбежен, особенно если установлены более широкие шины.
Большой люфт означает, что коробка явно изношена; Точно так же узкие места указывают на то, что кто-то перетянул вещи, чтобы скрыть износ. - Подвеска TR проста и надежна, но могут возникнуть проблемы. Скорее всего, износ цапф из-за недостаточной смазки; каждые 1000 миль необходимо закачивать смазку LM. Это спереди; сзади также могут быть сломаны пружины или амортизаторы рычагов, которые видели лучшие дни, но все это дешево и легко починить.
- Даже если требуется полная переборка подвески, работа несложная, а затраты приемлемые, если вы выполняете эту работу самостоятельно. Поскольку на ремонт каждой стороны обычно уходит не менее дня, профессиональная помощь быстро становится дорогостоящей.
- Проверить состояние протектора шины; если он изношен неравномерно, это, вероятно, потому, что одно из колес в какой-то момент было загнуто, что привело к смещению передней подвески. Наведение порядка — это сложный процесс, поэтому не думайте, что это просто вопрос отсутствия отслеживания.

- Колеса TR2 из штампованной стали изначально имели ширину всего четыре дюйма, но с мая 1954 года они увеличились на полдюйма; все колеса TR3 и TR3a были шириной 4,5 дюйма. Ранних колес осталось немного, но они есть. Какие бы колеса ни были установлены, убедитесь, что вокруг монтажных отверстий нет трещин; вам нужно будет снять колпаки, чтобы проверить правильно.
- есть и другие потенциальные проблемы, такие как изношенные шлицы и ржавые, ослабленные или сломанные спицы, поэтому почувствуйте люфт ступиц и найдите спицы, которые не натянуты. Конечно, новые колеса доступны, но они недешевы: 420 фунтов стерлингов за комплект для окрашенных колес или 755 фунтов стерлингов для хромированных.
- Внутренняя отделка TR проста и легко заменяется при необходимости. Доступно все, в том числе материалы более высокого качества, чем оригинальная пластиковая отделка и капот, но затраты возрастут, если все понадобится. Вот почему вам нужно перечислить все, что требует внимания, и выяснить, сколько будет стоить все исправить.
Внутренней отделки не так много, но опять же нужно убедиться, что все есть; Замена некоторых ярких деталей может оказаться дорогостоящей, но, по крайней мере, все это доступно. - Электрика очень похожа на отделку салона; простой, прочный и все доступно, если возникнут какие-либо проблемы. Плохая земля и хрупкие ткацкие станки являются наиболее вероятными проблемами, но их можно исправить своими руками, хотя замена ткацкого станка (около 175 фунтов стерлингов) является сложной работой. Стартеры также могут оказаться хрупкими, но устройство с высоким крутящим моментом обеспечивает полное излечение за счет оригинальности.
У проволочных колес
Тройка
Остин Хили 100/4
Если вы хотите спортивный автомобиль с волосатой грудью, но не хотите TR, это ключевая альтернатива. Это выглядит великолепно, блестяще поддерживается клубами и специалистами, плюс ценности идут только в одну сторону, и это вверх. Но самое главное, 100/4 отлично управляется; он лучше сбалансирован, чем автомобили с шестью цилиндрами, и легче, поэтому он более маневренный и практически такой же быстрый, как 9-цилиндровый.
0045
больше Healey 3000s. Бесподобный GT
В нем использовалась механика Triumph TR3, но был сделанный на заказ кузов, основанный на шасси с пространственной рамой, в комплекте с усовершенствованной задней частью De Dion. Предлагаемый только как четырехместный фастбэк, Peerless необычен, прост в обслуживании и хорош в управлении, особенно с опциональной овердрайвом. Но так как в период с 1957 по 1958 год было выпущено менее 300 машин, то их не так уж и много, не говоря уже о кузове из стеклопластика, приклепанном к шасси.
МГА
Главным соперником TR был элегантный MGA. Основанный на старом TF, MGA был более устаревшим, чем предполагалось, но некоторые все еще утверждают, что хороший автомобиль едет лучше, чем не только TR, но и MGB. Как и Triumph, они очень популярны, а клубная и специализированная поддержка не имеет себе равных. Twin Cams прекрасны, но очень дорого покупать или восстанавливать; 1600 De Luxes — лучшие универсалы
Вердикт
Независимо от того, выбираете ли вы полностью стандартный TR или модернизированный, вы будете наслаждаться каждой минутой вождения.
Вам также будет очень легко владеть машиной благодаря отличному клубу и поддержке специалистов — техническое обслуживание своими руками также не составит труда. Более того, надежные инвестиции не более надежны, чем эти сказочные британские спортсмены; если вы не покупаете действительно плохо, вы не можете проиграть.
Классические спортивные автомобили Коллекционеры классических автомобилей Британские спортивные автомобили
ТРИУМФ
ТРИУМФ
Стандарт-Триумф,
позже British Leyland действительно начала выпускать серию двухместных родстеров.
верно
после Второй мировой войны. К началу 50-х был представлен TR2, а остальное уже история.
Компания прекратила свою деятельность в 1981 году, но за эти 30 лет некоторые настоящие классики
были произведены. Каждая модель имела великолепный дизайн и стала чем-то вневременным.
с годами. Несмотря на то, что он не был слишком популярен, когда он был представлен,
TR8 со временем выглядит лучше.
Наряду с MG, эта марка является классической британской.
весь путь.
1954 Это был первый в большой серии Triumph. |
1962 Один из последних в этой серии.
|
1965 Старший
|
1967 Один из
|
1968 Только изготавливается |
1972 Фастбэк ![]() |
Очень хорошо
Мы также получаем ролл-ап
По сути, поздний кузов TR4A с «новым» шестицилиндровым двигателем TR6.
