Содержание
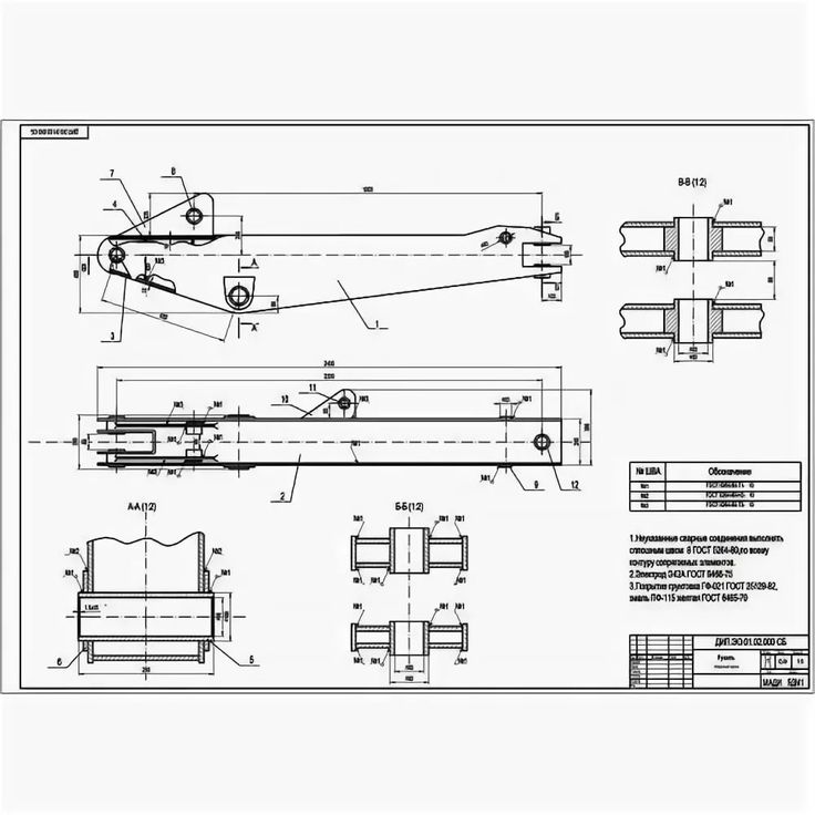
Чертежи гидроцилиндра стрелы экскаватора ЭО-4121
+7 (343) 777-00-42 Пн-Вс c 7:00 -16:00 по Москве. Помощь
Авторизация
- Чертежи
- Сборочные узлы и детали
- Гидроцилиндры
Добавить работу
Код: 03.01.09.02.27
Разместил: Якина Мария
Чтобы скачать чертежи – Зарегистрируйся и поучаствуй в развитии сайта
Как здесь скачать?
Поиск по словам: Экскаватор, Стрела, Поршень, Гидроцилиндр, Шток, ЭО-4121
Перечень чертежей:
- Сборочный чертеж гидроцилиндра стрелы экскаватора ЭО-4121 А1.
- Чертеж гайки А3
- Чертеж гайки А3
- Рабочий чертеж бобышки А3
- Поршень А3
Дополнительные материалы: прилагается расчетно-пояснительная записка на 2 страницах, где описана разработка гидроцилиндра стрелы экскаватора ЭО-4121.
Экскаватор ЭО-4121- универсальный строительный, полноповоротный экскаватор на гусеничном ходу с гидравлическим объемным приводом. Данный экскаватор предназначен для выполнения работ на предварительно разрыхленных скальных и мерзлых грунтах и грунтах I-IV категории при температуре от -40°С до +40°С, а также в тропическом исполнении до +55°С.
Применяют экскаватора для рытья траншей, котлованов, каналов, погрузки сыпучих материалов и грунта и для разработки карьеров. При установке специального сменного органа, рыхлителя, можно рыхлить мерзлый грунт и скальные породы.
В качестве сменного оборудования может быть использовано:
- Обратная лопата;
- Прямая лопата;
- Обратная лопата с удлиненной рукоятью;
- Прямая лопата с поворотным ковшом;
- Грейфер;
- Погрузочное оборудование;
- Грейфер с удлинением рыхлителя.

Экскаватор имеет ковши разных объем в зависимости от характеристики разрабатываемых грунтов и вида выполняемой работы.
Проведен расчет гидроцилиндра стрелы экскаватора.
Первой рассчитана толщина стенки гидроцилиндра – 28,3 мм. Затем определяется площадь поршня в штоковой и поршневой полостях:
- В поршневой – 153,86 см2;
- В штоковой – 90,28 см2.
После этого находят усилие, которое развивается штоком гидроцилиндра при его втягивании – 28311,81 кгс и выдвижении – 48250,5 кгс.
В ходе разработки был рассмотрен экскаватор модели ЭО-4121 и его предназначение. Также перечислены виды сменного рабочего оборудования.
Проведен расчет гидроцилиндра стрелы, в результате которого определены следующие значения:
- Толщина стенки гидроцилиндра;
- Площадь поршня в поршневой и штоковой полостях;
- Усилие, развиваемое штоком при выдвижении и втягивании.

Спецификация –присутствует на чертеже
В программе: Компас 3D v
- Сопутствующие товары (6)
- Отзывов (0)
Зарегистрируйтесь, чтобы создать отзыв.
Личное меню
Устройство стрелы экскаватора и его особенности
Главная
Информация
Статьи
Устройство стрелы экскаватора
20 май 2022
Устройство стрелы экскаватора
Чаще всего применяют экскаваторы с рабочим органом в виде стрелы, устроенной как подвижный ковш. Этот ковш закрепляется на нее при помощи рукояти или же на тросах. Заполняется ковш в момент его перемещения по разрабатываемому грунту, то есть при непосредственном резании грунта. В большинстве случаев устройство стрелы экскаватора осуществляется в виде ориентации зубьев ковша в сторону машины.
Это так называемая обратная лопата. Прямой лопатой именуют стрелы с ковшом, где направление зубьев сформировано от машины. Очень часто прямые лопаты оснащаются механизмом открытия днища ковша.
Устройство стрелы экскаватора с ковшом необходимо формировать с учетом предполагаемых работ и их объема. Ковши на конце могут быть с ровными или зубчатыми краями, со специально закрепленными стенами для выполнения строительных работ. Важно также учитывать и такой фактор, как угол среза края ковша экскаватора. Порода будет отделяться легче, чем меньше будет этот показатель. В зависимости от типа грунта ковши применяют с углом среза от 25 до 35 градусов.
В зависимости от мощности, назначения и размеров экскаватора зависит и длина стрелы. Для выполнения крупномасштабных работ в труднодоступных местах необходимо выбирать машины с длинной стрелой.
На современных моделях экскаваторов силовым приводом для стрелы и рабочего ковша служат:
-
Канатная механическая схема.
В ее основе применение лебедки из трех барабанов и системы специально подготовленных канатов. Механическая передача передает усилие на лебедку от силовой установки экскаватора. Такая схема при своей простоте имеет недостаток в виде трудности автоматизации и требует от оператора машины особых навыков и опыта работы.
-
Канатная схема электромеханического типа. Она основана на использовании индивидуальных электромоторов для формирования привода для лебедочных механизмов и устройств управления. Чаще всего канатная электромеханическая схема применяется в работе больших карьерных экскаваторов, а также машин шагающего типа, имеющих внешнее энергопитание. -
Схема гидравлического типа. В её основе гидравлические моторы и штоки гидроцилиндров, осуществляющие воздействие на исполнительные органы. Преимуществом применения гидравлической схемы в устройстве стрелы экскаватора является ее хорошее совмещение с цифровыми системами автоматического управления и контроля.
Сегодня все основные заводы-производители экскаваторов постепенно перешли на подобную схему работы стрелы.
Возврат к списку
Hyundai R160LC-9 Двухсекционный экскаватор в векторе
Hyundai R160LC-9 Двухсекционный экскаватор в векторе
Главная
/
Векторные рисунки
/
Hyundai
/
Двухсекционный экскаватор Hyundai R160LC-9
Предварительный просмотр векторного рисунка
Все чертежи автомобилей выполнены в масштабе 1:25; большинство чертежей самолетов выполнены в масштабе 1:72, 1:100, 1:250 и 1:500; остальные чертежи в различных масштабах: это всегда указано на чертеже в левом нижнем углу.
Файлы Illustrator создаются с помощью Adobe Illustrator CS3, CS4, CS5, CS6 и CC; если вы работаете в более ранней версии Illustrator, я могу экспортировать файл в устаревшем формате для вас.
Размеры на векторных чертежах автомобилей указаны в единицах СИ и, следовательно, в миллиметрах.
Hyundai R160LC-9 Контуры экскаватора с двухзвенной стрелой
Hyundai R160LC-9 Шаблоны экскаватора с двухзвенной стрелой
Hyundai R160LC-9 Экскаватор с двухзвенной стрелой Чертежи САПР
Hyundai R160LC-9Чертежи экскаватора со стрелой из 2 частей
Hyundai R160LC-9 Экскаватор со стрелой из 2 частей Чертежи
Hyundai R160LC-9 Экскаватор со стрелой из 2 частей Чертежи знаков
Hyundai R160LC-9 Экскаватор со стрелой из 2 частей виниловый шаблон
Hyundai R160LC-9 2 части
Hyundai R160LC-9 Экскаватор с двухсекционной стрелой, виниловая графика
Hyundai R160LC-9 Экскаватор с двухкомпонентной стрелой, шаблон из фольги
Hyundai R160LC-9 Экскаватор с двухкомпонентной стрелой, наклейка с наклейками
Hyundai R160LC-9 Стрела из двух частей Экскаватор беллеттеринг
Hyundai R160LC-9 Экскаватор с 2-звенной стрелой autobelettering
Hyundai R160LC-9 Экскаватор с 2-звенной стрелой fahrzeugbeschriftung
Hyundai R160LC-9 Экскаватор с 2-звенной стрелой autobeschriftung
Hyundai R160LC-9 Экскаватор с 2-звенной стрелой werbegrafik
Hyundai R26025
Hyundai R160LC-9 Экскаватор со стрелой werbebeschriftung
Hyundai R160LC-9 Экскаватор со стрелой из 2 частей fahrzeugwerbung
Hyundai R160LC-9 Экскаватор со стрелой из 2 частей marquages publicitaires
Hyundai R160LC-9 Экскаватор со стрелой из 2 частей enseigne vehicule
Hyundai R160LC-9 Экскаватор с 2 стрелами marquages
Hyundai R160LC-9 Экскаватор с 2 стрелами enseignes
Hyundai R160LC-9 Экскаватор с 2 стрелами autocollant
Hyundai R160LC-9 Экскаватор с 2 стрелами creation publicitaire
-R Hyundai 9 Экскаватор с 2 стрелами, серийный номер
Hyundai R160LC-9 Экскаватор с 2 стрелами, общедоступный
Hyundai R160LC-9 Экскаватор с 2 стрелами, поворотный
Hyundai R160LC-9 Экскаватор с 2 стрелами, персонализированный
Hyundai R160LC-9 Экскаватор с 2-звенной стрелой персонализированный
Экскаватор с 2-звенной стрелой Hyundai R160LC-9
Экскаватор с 2-звенной стрелой Hyundai R160LC-9 letreiros
Hyundai R160LC-9 Экскаватор с 2-звенной стрелой Hyundai
Hyundai serigra25 R160LC-9 Экскаватор с двухзвенной стрелой rotulacion
Hyundai R160LC-9 Экскаватор с двухзвенной стрелой letreros
Hyundai R160LC-9 Экскаватор с двухзвенной стрелой señaleticas
Hyundai R160LC-9 Экскаватор с двухзвенной стрелой autoadhesiva
Hyundai R160LC-9Экскаватор со стрелой из 2-х частей
Hyundai R160LC-9 Экскаватор со стрелой из 2-х частей
Hyundai R160LC-9 Экскаватор со стрелой из 2-х частей
Hyundai R160LC-9 Экскаватор со стрелой из 2-х частей очертания автомобиля
Hyundai R160LC-9 Стрела из 2-х частей Экскаватор get контуры
Hyundai R160LC-9 Экскаватор с двухзвенной стрелой signelements
Hyundai R160LC-9 Экскаватор с двухзвенной стрелой vecteezy
Hyundai R160LC-9 Экскаватор с двухзвенной стрелой mr Clipart
Hyundai R160LC-9 Экскаватор с двухзвенной стрелой ccvision
Hyundai R160LC-9 Экскаватор с двухсекционной стрелой арт-станция
Общие сведения о конфигурациях стрелы экскаватора — Scoop
Я часто слышу, как экскаваторы называют «швейцарским армейским ножом» в строительной отрасли, и это правда — это многозадачные машины, способные выполнять практически любую работу.
Многие люди приписывают их гибкость широкому диапазону размеров классов с несколькими вариантами крепления, но вы можете не осознавать, что большая часть того, что делает экскаваторы такими универсальными, — это стрела.
Если вы новичок в экскаваторах или используете брошюры для описания машин, эти советы по стреле могут оказаться полезными в следующий раз, когда вы будете искать на рынке машину для конкретного применения.
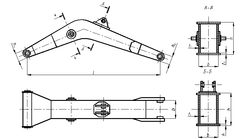
- Стандартная моноблочная стрела экскаватора
Моноблочная стрела (стандартная стрела): Это то, что мы называем стандартной компоновкой — она обеспечивает хороший вылет и приличный диапазон размеров ковша и на сегодняшний день является самой популярной компоновкой. Некоторые клиенты используют установку для массовых земляных работ, которая представляет собой более короткую стрелу и короткую рукоять. Они идут по этому пути, потому что могут поставить на него ведро большего размера. Взяв в качестве примера наш 42-тонный экскаватор Volvo 380E, вы можете выбрать стрелу для массовых земляных работ длиной 20 футов 4 дюйма (6,2 м) с рукоятью длиной 8 футов 4 дюйма, которая позволяет надеть ковш большего размера и перемещать больше материала.
. Кроме того, это быстрее, потому что вам не нужно далеко качаться. Это одна из самых продуктивных установок, но вы может быть ограниченным досягаемостью. - Двухсекционная стрела экскаватора
Двухсекционная стрела: Двухсекционные стрелы очень универсальны и могут поднять моноблочную стрелу вплотную к машине. Однако моноблочная стрела обеспечивает больший вылет и превосходит двухсекционную стрелу при полном выдвижении. Двухсекционные стрелы позволяют изменять изгиб стрелы для уменьшения ее рабочей высоты, что идеально подходит, например, для копания под мостом или в здании. Разница в цене между моноблочной стрелой и стрелой, состоящей из двух частей, не очень значительна, что дает вам возможность выбрать конфигурацию, которая лучше всего подходит для вашей работы.
- Стрела экскаватора с длинным вылетом
Стрела с длинным вылетом: Стрела с длинным вылетом отлично подходит для очистки прудов и каналов — работ, когда вы копаете в воде и вам нужен дополнительный вылет.
Длина стрелы зависит от производителя и модели машины. Например, версия экскаватора Volvo EC380 с большим вылетом имеет длину 27 футов 11 дюймов (8,5 м) по сравнению со стандартной стрелой длиной 21 фут 2 дюйма (6,45 м) и рукоятью длиной 16 футов 5 дюймов (5 м), которые обеспечивают максимальный вылет. 48 футов 5 дюймов (14,75 м).- Это хорошее напоминание о номенклатуре машин. «L» в EC380EL означает, что у него длинная ходовая часть, а «LR» в нашем EC380ELR означает большой вылет.
- Двухсекционная стрела со смещением
Двухсекционная стрела со смещением: Двухсекционная стрела со смещением — еще одна опция для некоторых моделей экскаваторов. Смещенная стрела, состоящая из двух частей, поворачивается вправо или влево. Если, например, вы работаете в узком переулке с ограниченным поворотом, вы можете согнуть стрелу так, чтобы она копала вдоль одной из гусениц рядом со строением. Обратите внимание, что на больших машинах это уменьшит вашу грузоподъемность, потому что у вас есть поворотный кулак и цилиндры на стреле, поэтому вы увеличиваете вес, который находится перед машиной.
Двухсекционные стрелы со смещением дороже и могут потребовать дополнительного обслуживания. Эта конфигурация стрелы популярна в городах с очень тесным рабочим пространством.
В целом, большой процент клиентов выбирает двухсекционную стрелу для колесных экскаваторов и стандартную моноблочную стрелу для гусеничных экскаваторов.
Заметка о колесных экскаваторах
Колесные экскаваторы становятся все более и более популярными в США, поскольку подрядчики узнают, что они копают так же, как гусеничные экскаваторы, но более универсальны. Просто поднимите выносные опоры и двигайтесь по окрестностям или по улице. Или используйте их для подъемников, шлагбаумов на трассе и т.д., и землю не разорвете. Когда вы будете готовы к другой работе, просто сложите выносные опоры, отправляйтесь на следующую рабочую площадку и снова приступайте к работе.
С выносными опорами колесные машины так же устойчивы, как и сопоставимые гусеничные, а в некоторых случаях колесные экскаваторы имеют более широкую опорную поверхность, чем гусеничные, и более устойчивые.


В ее основе применение лебедки из трех барабанов и системы специально подготовленных канатов. Механическая передача передает усилие на лебедку от силовой установки экскаватора. Такая схема при своей простоте имеет недостаток в виде трудности автоматизации и требует от оператора машины особых навыков и опыта работы.
Сегодня все основные заводы-производители экскаваторов постепенно перешли на подобную схему работы стрелы.
. Кроме того, это быстрее, потому что вам не нужно далеко качаться. Это одна из самых продуктивных установок, но вы может быть ограниченным досягаемостью.
Длина стрелы зависит от производителя и модели машины. Например, версия экскаватора Volvo EC380 с большим вылетом имеет длину 27 футов 11 дюймов (8,5 м) по сравнению со стандартной стрелой длиной 21 фут 2 дюйма (6,45 м) и рукоятью длиной 16 футов 5 дюймов (5 м), которые обеспечивают максимальный вылет. 48 футов 5 дюймов (14,75 м).
Двухсекционные стрелы со смещением дороже и могут потребовать дополнительного обслуживания. Эта конфигурация стрелы популярна в городах с очень тесным рабочим пространством.