Содержание
Принцип работы горизонтальных автоклавов АГК
МОДЕЛИ АВТОКЛАВОВ С ЭНЕРГОСБЕРЕГАЩИМИ ТЕХНОЛОГИЯМИ
ГОРИЗОНТАЛЬНЫЕ АВТОКЛАВЫ С ПРИНУДИТЕЛЬНЫМ ОРОШЕНИЕМ И ТЕПЛООБМЕННИКОМ, РАБОТАЮЩИМ НА НАГРЕВ И ОХЛАЖДЕНИЕ
Душирующее устройство работает в режиме нагрева, стерилизации и охлаждения, обеспечивая мягкое воздействие на продукт за счет постепенного нагрева и охлаждения теплоносителя (воды) через теплообменник. Душирующее устройство располагается в верхней полости автоклава и оснащено специальными форсунками, образующими паровоздушную смесь, которая существенно увеличивает теплопроводность и позволяет стерилизовать как жесткую упаковку (жесть, стекло), так и мягкие пакеты.
Система управления автоклавом обеспечивает автоматическое управление процессом стерилизации консервов с регистрацией текущих значений параметров технологического процесса в автоклаве. Одновременно хранит в памяти до 100 формул стерилизации с разбивкой на 32 шага.
Блок регистрации температуры и давления отвечает за регистрацию данных цикла стерилизации.
Отображает фактические данные температуры и давления, и сохраняет график цикла стерилизации на ПК технолога. Технолог может распечатать график цикла стерилизации. Все циклы стерилизации сохраняются на ПК в архиве и могут быть распечатаны при необходимости.
Душирующее устройство с форсунками может быть как верхним, так и совмещенным с боковым душем.
Электронасос — мощный насос, работающий с перегретой водой с высокой производительностью, обеспечивает высокую скорость циркуляции теплоносителя (воды).
Теплообменник работающий на нагрев и охлаждение.
Анимация работы автоклава
Анимация и описание принципа работы горизонтального автоклава принудительным орошением (душированием) и с теплообменником, работающим на нагрев и охлаждение.
Описание работы горизонтального автоклава: Корзины с продуктом помещают в автоклав. Оператор автоклава запускает программу стерилизации, контролируя процесс подъема температуры и давления через блок регистрации.
Система управления проверяет состояние автоклава и , если все в порядке, включает насос и открывает паровой клапан.
Стадия нагрева. Горячий пар (140 — 190°С) поступает в теплообменник и нагревает контур с циркулирующей водой из первого контура. Температуру и давление внутри автоклава регулирует система управления. Блок регистрации показывает текущие значения температуры и давления в процессе нагрева. Вода внутри автоклава, циркулируя через теплообменник, плавно нагревается до заданной температуры стерилизации. Продукт, орошаемый водой через систему душирования, плавно достигает заданной температуры стерилизации. В современных автоклавах применяется создание противодавления воздухом для предохранения различных видов упаковки от повреждения. В процессе нагрева, стерилизации и охлаждения система управления открывает и закрывает различные клапаны, регулируя заданные параметры температуры и давления.
Стадия стерилизации. Когда набранные температура и давление достигают нужного значения, соответствующего продукту в автоклаве, клапаны закрываются и автоклав работает по принципу термостата.
Но, так как температура постепенно снижается под воздействием окружающей среды и давление падает вследствие утечек клапана, при возникновении необходимости открывается клапан пара.
Стадия охлаждения. По окончании времени стерилизации система управления закрывает паровой клапан и открывает клапан для подачи охлаждающей воды из второго контура, при необходимости создавая противодавление воздухом внутри автоклава. Душирующая вода, циркулирующая по первому контуру внутри автоклава, плавно охлаждается в теплообменнике. При достижении заданной температуры охлаждения продукта (к этому моменту внутри автоклава отсутствует избыточное давление) система управления проверяет состояние автоклава и останавливает работу насоса. Оператор выкручивает механический блокиратор (ключ-марку) дверей при избыточном давлении, открывает дверь автоклава и выгружает корзины с продуктом.
МОДЕЛИ АВТОКЛАВОВ С ПРЯМЫМ ВПРЫСКОМ ПАРА
горизонтальные АВТОКЛАВЫ с принудительным орошением и ПРЯМЫМ ВПРЫСКОМ ПАРА
Продолжим описание работы горизонтальных автоклавов с душированием на примере 2х корзиночного автоклава с нагревом продукта прямым впрыском пара внутрь автоклава и охлаждением через пластинчатый теплообменник.
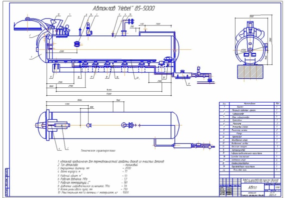
На рисунке показаны:
Барбатёр — труба внутри автоклава для подачи пара на продукцию.
Душирующее устройство с форсунками может быть как верхним, так и совмещенным с боковым душем.
Электронасос — мощный насос, работающий с перегретой водой с высокой производительностью, обеспечивает высокую скорость циркуляции теплоносителя (воды).
Теплообменник работающий на охлаждение (на рисунке отсутствует по тех. причинам).
Из схемы видно, что автоклав снабжен барбатером, через который пар поступает сразу внутрь автоклава, электронасосом и душирующим устройством, обеспечивающих циркуляцию воды по первому контуру, и теплообменником, работающим только на охлаждение по второму контуру. В этом случае при подаче пара внутрь автоклава необходимо сбрасывать излишки образующегося конденсата. В случае со спиральным теплообменником конденсат через отводчик поступает обратно в котельную для повторного использования.
ГОРИЗОНТАЛЬНЫЙ АВТОКЛАВ С СИСТЕМОЙ ДУШИРОВАНИЯ С ТЕПЛООБМЕННИКОМ, РАБОТАЮЩИМ НА ОХЛАЖДЕНИЕ.
Описание работы горизонтального автоклава: Корзины с продуктом помещают в автоклав. Автоклав заполняется водой до дна корзины (250-300 литров). Оператор автоклава запускает программу стерилизации, контролируя процесс подъема температуры и давления через блок регистрации. Система управления проверяет состояние автоклава и, если все в порядке, включает насос и открывает паровой клапан.
Режим нагрева. Горячий пар (140 — 190 °С) поступает через барбатер внутрь автоклава, где мгновенно отдает тепло стерилизующей воде (250-300 литров), циркулирующей через душирующее устройство. Температуру и давление внутри автоклава регулирует система управления. Блок регистрации показывает текущие значения температуры и давления в процессе нагрева. Вода, циркулируя внутри автоклава через душирующее устройство, плавно нагревается до заданной температуры стерилизации. Продукт, орошаемый водой через систему душирования, плавно достигает заданной температуры стерилизации.
В современных автоклавах применяется создание противодавления воздухом для предохранения различных видов упаковки от повреждения. В процессе нагрева, стерилизации и охлаждения система управления открывает и закрывает различные клапаны, регулируя заданные параметры температуры и давления, сбрасывая излишки конденсата пара.
Режим стерилизации. Когда набранные температура и давление достигают нужного значения, соответствующего продукту в автоклаве, клапаны закрываются и автоклав работает по принципу термостата. Но, так как температура постепенно снижается под воздействием окружающей среды и давление падает вследствие утечек клапана, при возникновении необходимости открывается клапан пара.
Режим охлаждения. По окончании режима стерилизации система управления закрывает паровой клапан и открывает клапан контура охлаждения и клапан подачи охлаждающей воды через теплообменник (второй контур), при необходимости создавая противодавление воздухом внутри автоклава. Душирующая вода в режиме охлаждения циркулирует по охлаждающему контуру через пластинчатый теплообменник, плавно охлаждая продукт в автоклаве.
При достижении заданной температуры охлаждения продукта (к этому моменту внутри автоклава отсутствует избыточное давление), система управления проверяет состояние автоклава и останавливает работу насоса. Оператор выкручивает механический блокиратор (ключ-марку) дверей при избыточном давлении, открывает дверь автоклава и выгружает корзины с продуктом.
Преимущества и недостатки схем работы горизонтальных автоклавов.
В каждой вышеописанной схеме работы автоклавов есть свои достоинства и недостатки. К примеру, прямой впрыск пара внутрь автоклава подразумевает повышенный расход подготовленной воды для первого контура из-за поступления пара и сброса конденсата. Однако, теплообменник будет служить долго и не потребует частого сервисного обслуживания при работе только в режиме охлаждения. Тем же предприятиям, где требуется разделение стерильных сред, не обойтись без спирального теплообменника. У каждого клиента свои потребности и возможности, и, если для одного завода применение автоклава с пластинчатым теплообменником не выгодно, то для другого, лучше варианта не подобрать.
Если у Вас появились вопросы, касающиеся автоклавного оборудования и расходных материалов, звоните нам по телефону +7 (495) 999-09-92 или пишите на электронную почту [email protected]
ТД «ФермаТек» — Автоклав Дымка 2.0
Самым распространенным способом делать заготовки впрок является консервирование. Идеальное решение использовать автоклав «Дымка 2.0» для домашнего консервирования, позволяющего проводить стерилизацию, полностью соответствующую всем стандартам качества.
Автоклав «Дымка 2.0» представляет собой современное устройство, которое консервирует различные продукты сохраняя максимальное количество витаминов и полезных веществ. С его помощью можно сделать любые домашние заготовки: фруктовые, ягодные, овощные, мясные и рыбные. Полезные вещества, содержащиеся в продуктах, их аромат и вкус надежно сохранятся за счет не длительного воздействия высокой температуры под повышенным давлением. Стерилизация при таких высоких температурах, обычно это 110-120 °C, пройдет надежно, обеспечит безопасность готовой продукции и увеличит ее срок годности.
Приобретение автоклава «Дымка 2.0» станет прекрасным поводом раскрыть свой кулинарный потенциал, начать экспериментировать, придумывать новые рецепты, неосуществимые при традиционных способах консервации. Самостоятельно изготовив консервы, Вы будете уверены в качестве и безопасности исходных продуктов и соблюдении санитарных норм.
КОМПЛЕКТАЦИЯ АВТОКЛАВА «ДЫМКА 2.0»
ОСОБЕННОСТИ АВТОКЛАВА «ДЫМКА 2.0»
Полноценный автоклав с рабочим давлением 3 атм
Скороварки с максимально рабочим давлением в 1.5 атм не могут считаться автоклавами. Рабочая температура скороварки чуть выше 100 °C. Только автоклавы способны убить микробы ботулизма и сделать ваши мясные консервы вкусными и полезными!
Точные измерительные приборы
Удобное расположение приборов на фронтальной части автоклава дает свободное визуальное наблюдение за температурой и давлением.
В автоклаве «Дымка 2.
0» используются только сертифицированные измерительные приборы 1 класса точности, которые позволяют точно следовать рецепту приготовления продукта, сохранять вкус и все минеральные вещества. В автоклаве «Дымка 2.0» консервированные продукты будут удивительно вкусными и сочными!
Погрешность в показании манометра от 1.5% до 2.5%. Если учесть, что рабочее давление 3 bar, погрешность составляет от 0.04 до 0.07 bar – сотые доли!
Не случайно в нашем автоклаве используется жидкостный термометр. Термометр имеет первый класс точности. Это лучшее решение среди всех других биметаллических термометров, которые на сегодня существуют в автоклавах. Погрешность в показании от 1 до 2 °C.
Раздельная система показаний давления и температуры позволяет максимально точно следовать рецепту.
Кран для слива воды
Почти полный слив воды из автоклава «Дымка» 2.0. Благодаря крану в нижней части куба, сливать воду очень удобно – не нужно раскручивать и снимать верхнюю крышку аппарата, необходимо только повернуть кран против часовой стрелки.
Теперь нет риска облиться, при сливе воды из бака.
Уникальные удобные кассеты
В комплекте с автоклавом идут три уникальных кассеты конусной формы. При затяжке они работают как пружина, постоянно прижимая крышки банок по всей плоскости. Наша конструкция позволяет защитить Ваши банки от срыва крышек, который в аналогичных автоклавах бывает и не редко.
Кроме того есть возможность использования 2 и 3-литровых банок, благодаря новой улучшенной кассете.
Разборность конусных кассет позволяет, в случае необходимости, удобно очистить кассеты от загрязнений.
Высокая вместимость кассет автоклава «Дымка». Больше вкусного продукта за одно и тоже время. В одну кассету вставляется 5 банок по 0,5 л. или 3 банки по 1 л. В автоклав «Дымка» входит три раздельные кассеты.
Для всех кухонных плит
В автоклаве «Дымка 2.0» нет никаких ограничений на использование кухонных плит! Усиленное 1.5 мм дно из пищевой магнитной нержавеющей стали с ребром жесткости и тепловым компенсатором служит надежной защитой от вздутия при высоком давлении.
Это дает возможность использования автоклава «Дымка 2.0» на всех видах нагревательных плит: газовая, индукционная, стеклокерамическая, электрическая.
Качественные материалы
Автоклав изготавливается полностью из пищевой нержавеющей стали AISI 430 ГОСТ 5632-72. Пищевая нержавеющая сталь считается благородной на домашней кухне, и стойкой к химическим и органическим агрессивным веществам, а это гарантия сохранности и долговечности автоклава.
Автоклав «Дымка» 2.0 сделан из высокопрочной пищевой нержавеющей стали. Усиленное 1,5 мм дно с ребром жесткости и тепловым компенсатором, служит надежной защитой от вздутия при высоком давлении. Такая конструкция автоклава выдерживает давление до 6 атмосфер, при том, что рабочее давление составляет 3 атмосферы.
Надежность и безопасность
Надежность и безопасность обеспечивается благодаря фланцевому соединению из 10 зажимных гаек на крышке. Клапан сброса сработает если будет избыточное давление.
Никакого контакта с горячим паром. Клапан будет поддерживать необходимое давление в автоматическом режиме.
Горячее копчение с автоклавом «Дымка 2.0»
Для гурманов горячего копчения предназначен специальный комплект, позволяющий использовать автоклав в качестве коптильни. Вы можете использовать автоклав 2 в 1 – это всегда удобно и намного дешевле, чем приобретение автоклава и домашней коптильни по-отдельности.
Собственный самогон – это реальность с автоклавом «Дымка 2.0»
Создавайте чистые и беспохмельные алкогольные напитки прямо на вашей кухне с нашей насадкой сухопарником-ароматизатором к автоклаву Дымка 2.0. Снимите заглушку автоклава, прикрутите насадку и самогонный аппарат готов к применению!
Сухопарник-ароматизатор сделан очень компактным и разборным. Вы можете закладывать в него натуральные ароматические ингредиенты: дубовая кора, корки лимона, сухофрукты, ягоды можжевельника и т.д. и получать сразу ароматизированный самогон.
Из 20 литров домашнего вина получается до 7 литров самогона! Купив автоклав «Дымка 2.0» с насадкой для самогоноварения вы значительно увеличиваете функционал автоклава.
Для частого использования автоклава в качестве самогонного аппарата рекомендуем вам приобрести крышку «ГУД-ШНАПС». Использование крышки «ГУД-ШНАПС» освободит вас от герметизации резьбовых соединений (в сравнении с обычной крышкой).
СХЕМА АВТОКЛАВА «ДЫМКА 2.0»
|
Автоклав – конструкция, части, принцип действия, типы, применение
Автоклав – это оборудование, используемое для стерилизации в лабораториях, исследовательских центрах и учебных заведениях, фармацевтических компаниях и некоторых отраслях промышленности.
За последние несколько месяцев из-за пандемии значительно возросло использование этого простого, но эффективного оборудования.
Введение:
Автоклав в основном используется для стерилизации. Стерилизация означает ингибирование или уничтожение микробов, таких как бактерии, споры, грибки, вирусы и т. д. Следовательно, в микробиологии и биотехнологии автоклав широко используется для стерилизации сред, стеклянной посуды и т. д. В автоклаве метод уничтожения микробов заключается в использовании влажное тепло и давление. Конструкция и принцип работы автоклава заимствованы у скороварки. И поэтому, в общем, автоклав также называют стерилизатором высокого давления. Портативный автоклав можно разместить на рабочем столе и назвать настольным автоклавом или настольным автоклавом; непереносные автоклавы размещаются на полу и называются напольными автоклавами. Это одно из наиболее часто используемых устройств для стерилизации в учебных лабораториях, научно-исследовательских институтах и фармацевтических компаниях.
Автоклав был разработан и изобретен Чарльзом Чемберлендом в 1879 году. Доступные сейчас автоклавы имеют улучшенные системы контроля и безопасности, работая по тому же первоначальному принципу. Для стерилизации он по-прежнему остается популярным выбором в фармацевтических компаниях, учебных заведениях, научно-исследовательских институтах, стоматологических клиниках, больницах и тату-индустрии.
В гидротермальном автоклаве давление может быть установлено более 2000 фунтов на квадратный дюйм и более 200 ° C, и он называется стерилизатором штока высокого давления.
Принцип работы:
Автоклав работает по принципу пара под давлением. Высокая температура и давление обеспечивают уничтожение микроорганизмов, таких как вирусы, грибки, бактерии и термостойкие споры. Высокая температура и влажный жар коагулируют и денатурируют микробные белки и ферменты. обычно он устанавливается на 121 ° C и давление 15 фунтов в течение 15 минут.
Процедура:
Этапы цикла автоклавирования-
- Фаза кипения : Электрический нагрев вызывает кипение воды и образование пара.
Произведенный пар замещает захваченный воздух за счет вытеснения. - Фаза повышения температуры : Температура повышается и достигает установленного уровня, т.е. 121°C.
- Время стерилизации : Это время уничтожения микробов.
- Сброс давления: Захваченное давление сбрасывается путем открытия клапана.
Конструкция/детали:
The autoclave is made of following components/parts-
- Vessel or pressure chamber
- Lid or door
- Pressure gauge
- Pressure releasing unit (whistle)
- Safety valve
- Electrical heater
- Vessel /барокамера –
Сосуд изготовлен из нержавеющей стали. Внутренняя камера защищена внешней оболочкой. Внутренняя камера — это место, где мы храним автоклавируемый материал для стерилизации. Размер камеры варьируется и выбирается в зависимости от мотива использования.
- Нагреватель –
Электрический нагреватель расположен под камерой. Принцип работы электронагревателя аналогичен гизеру. Электрический нагреватель начинает нагреваться, это вызывает кипение воды. Пользователь должен поддерживать уровень воды в соответствии с маркировкой. Меньшее количество воды может вызвать горение, а большее количество воды может привести к попаданию воды в экспериментальный материал.
- Крышка/дверь –
Горловина сосуда закрыта крышкой или дверью. Он также изготовлен из нержавеющей стали. Крышка позволяет улавливать и удерживать тепло и давление внутри камеры и создавать благоприятную среду для стерилизации. Крышка плотно закрывается с помощью герметичного винта.
- Манометр –
Присутствует на верхней поверхности крышки. Его функция заключается в индикации уровня давления, создаваемого во время автоклавирования. Это жизненно важная часть, потому что она позволяет нам визуально видеть рост давления и предупреждать о любой предстоящей аварии, следовательно, она обеспечивает безопасность.
- Блок сброса давления/свисток –
Свисток располагается на поверхности крышки, как скороварка. Свисток позволяет нам сбрасывать давление, когда это необходимо.
- Предохранительный клапан:
Присутствует на поверхности крышки. Их функция состоит в том, чтобы избежать катастрофической аварии, особенно когда давление внутри камеры неконтролируемо.
IMAGE
изображение предоставлено: http://www.frankshospitalworkshop.com/equipment/autoclaves_equipment.html
Типы автоклавов:
Существуют различные типы автоклавов, имеющихся в продаже вода кипит и образуется пар, он вытесняет воздух под действием силы тяжести при любом механическом содействии.
- Вертикального типа (исполнены в вертикальной форме)
- Горизонтального типа (в горизонтальной форме)
2) Перемещение под давлением: Вытеснение воздуха паром осуществляется механически.
Это обеспечивает лучшее проникновение пара. Он состоит из парогенератора и вакуумного насоса.
- Смещение с положительным давлением
- Смещение с отрицательным давлением
Использование автоклава :
Автоклав используется для стерилизации сред, стеклянной посуды, растворов и многочисленных термостойких лабораторных принадлежностей. Он также используется для обеззараживания носителя перед его утилизацией.
. //www.explainthatstuff.com/autoclaves.html
https://ehs.princeton.edu/book/export/html/380
https://labsafety.gwu.edu/autoclave-safety
Капучино JG и Шерман Н. (1996). Микробиология, Лабораторное руководство, 4-е издание. Бенджамин Камингс Инк. Калифорния.
https://tuttnauer.com/blog/autoclave-sterilation/what-is-an-autoclave
Если вам понравился этот ресурс, пожалуйста, поставьте лайк, поделитесь и подпишитесь на нас, чтобы получать больше контента.
Нажимая «Отправить», вы соглашаетесь поделиться своим адресом электронной почты с владельцем сайта и Mailchimp, чтобы получать последние сообщения, обновления и другие электронные письма от владельца сайта. Используйте ссылку для отказа от подписки в этих электронных письмах, чтобы отказаться в любое время.
Обработка…
Успех! Вы в списке.
Упс! Произошла ошибка, и мы не смогли обработать вашу подписку. Пожалуйста, обновите страницу и попробуйте еще раз.
Сангха Биджекар
+ должности
Доктор Сангха Биджекар имеет 7-летний опыт преподавания в университете. Ей нравится участвовать в учебно-воспитательном процессе. Она ведет блог с последних двух лет. Она намеревается предоставить учащимся материалы для чтения. Она заядлый любитель собак и спасатель животных. Она изучила бхаратнатьям и танцовщицу кхатак. Она увлекается ездой на велосипеде, а также любит готовить.
Нравится:
Нравится Загрузка.
..
Принцип и работа стерилизации в автоклаве PDF PPT – Проверка автоклава – Схема автоклава – Pharmawiki.in
Стерилизация в автоклаве: Автоклавы обеспечивают физический метод дезинфекции и стерилизации. Они работают с комбинацией пара, давления и времени. Автоклавы работают при высокой температуре и давлении, чтобы убить микроорганизмы и споры.
Автоклавная стерилизация
Автоклавные стерилизаторы используются для обеззараживания определенных биологических отходов и стерилизации сред, инструментов и лабораторной посуды. Регулируемые медицинские отходы, которые могут содержать бактерии, вирусы и другие биологические материалы, перед утилизацией рекомендуется инактивировать путем автоклавирования.
Автоклав используется для стерилизации хирургического оборудования, лабораторных инструментов, фармацевтических препаратов и других материалов. Он может стерилизовать твердые тела, жидкости, полости и инструменты различных форм и размеров. Автоклавы различаются по размеру, форме и функциональности.
Очень простой автоклав похож на скороварку; оба используют силу пара для уничтожения бактерий, спор и микробов, устойчивых к кипящей воде и сильнодействующим моющим средствам.
Хотите получить КАНАДСКУЮ степень магистра и доктора философии в области фармации в канадских университетах
Стерилизаторы для автоклавов:
Чтобы быть эффективными против спорообразующих бактерий и вирусов, автоклавы должны иметь пар, непосредственно контактирующий со стерилизуемым материалом (т. е. загрузка предметов очень важна).
Создать вакуум, чтобы вытеснить весь воздух, первоначально присутствующий в автоклаве, и заменить его паром.
Внедрить хорошо продуманную схему управления отводом пара и охлаждением, чтобы груз не погиб.
Эффективность процесса стерилизации зависит от двух основных факторов. Одним из них является время термической смерти, то есть время, в течение которого микробы должны находиться при определенной температуре, прежде чем все они погибнут.
Второй фактор — это точка термической гибели или температура, при которой погибают все микробы в образце.
Пар и давление обеспечивают передачу достаточного количества тепла в организм, чтобы убить их. Серия импульсов отрицательного давления используется для вакуумирования всех возможных воздушных карманов, в то время как проникновение пара максимизируется за счет применения последовательности положительных импульсов
Автоклав Применение и преимущества:
Камера автоклава стерилизует медицинские или лабораторные инструменты, нагревая их выше точки кипения. В большинстве клиник есть настольные автоклавы, размером с микроволновую печь. В больницах используются большие автоклавы, также называемые горизонтальными автоклавами. Обычно они расположены в Центральном отделении стерилизации (CSD) и могут обрабатывать множество хирургических инструментов в одном цикле стерилизации, удовлетворяя постоянный спрос на стерильное оборудование в операционных и отделениях неотложной помощи.
Они важны в тату-салонах, салонах красоты и парикмахерских, стоматологических кабинетах, ветеринарах и многих других областях.
Недостатки автоклава:
Автоклав не подходит для термочувствительных объектов.
Автоклавы Принцип работы:
Автоклавы используют пар под давлением в качестве стерилизующего агента. Основная концепция автоклава заключается в том, чтобы стерилизовать каждый предмет — будь то жидкость, пластиковая или стеклянная посуда — в прямом контакте с паром при определенной температуре и давлении в течение определенного периода времени. Время, пар, температура и давление — четыре основных параметра, необходимых для успешной стерилизации в автоклаве.
Время и температура, необходимые для стерилизации, зависят от типа автоклавируемого материала. Использование более высоких температур для стерилизации требует меньшего времени. Чаще всего используются температуры 121°C и 132°C. Чтобы пар достиг этих высоких температур, пар должен быть закачан в камеру под давлением, превышающим нормальное атмосферное давление.
Теперь, когда мы рассмотрели основной принцип использования пара под давлением для стерилизации загрязненных материалов в автоклавах, теперь мы рассмотрим принцип работы автоклавов.
Схема конструкции автоклава и детали
Подобно скороваркам, автоклавы парового стерилизатора работают быстро и эффективно благодаря своей высокой температуре. Температура машины и уникальная форма позволяют намного дольше удерживать тепло внутри. Автоклав также отлично справляется с задачей эффективного проникновения в каждую часть оборудования. Камеры автоклава обычно имеют форму цилиндра, потому что цилиндрические формы лучше приспособлены для работы с высоким давлением, необходимым для работы процесса стерилизации. Из соображений безопасности имеется внешний замок и предохранительный клапан, который предотвращает слишком высокое давление в автоклавном паровом стерилизаторе.
Как только вы закроете камеру стерилизатора автоклава, вакуумный насос удалит весь воздух из устройства или вытеснит его, нагнетая пар.
При первом способе стерилизатор нагнетается паром под высоким давлением для быстрого повышения внутренней температуры. На каждом автоклаве есть термометр, который ждет тепловой точки сладких температур, 268-273 градусов по Фаренгейту, а затем запускает свой таймер. В процессе стерилизации в автоклав постоянно поступает пар, который полностью уничтожает все опасные микроорганизмы. По истечении необходимого времени стерилизации давление и пар в камере сбрасываются, позволяя дверце открыться для охлаждения и сушки содержимого.
Способ действия Автоклавные стерилизаторы:
Влажное тепло уничтожает микроорганизмы путем необратимой коагуляции и денатурации ферментов и структурных белков. В подтверждение этого факта установлено, что присутствие влаги существенно влияет на температуру коагуляции белков и температуру, при которой происходит уничтожение микроорганизмов.
Работа автоклава – Эксплуатация:
Поместите контейнеры в автоклав.
Проверьте сетчатый фильтр на предмет засорения.
Фильтр расположен на дне камеры рядом с дверью. Автоклав не будет достигать давления, если сетчатый фильтр забит.
Закрыть дверь.
Для МАЛЕНЬКОГО автоклава поверните ручку по часовой стрелке, пока она не будет плотно закрыта.
Для БОЛЬШОГО автоклава сначала поверните маленькую внутреннюю ручку по часовой стрелке, пока она не зафиксируется. Затем поверните большую внешнюю ручку по часовой стрелке до упора.
Откройте стеклянную дверь в правом верхнем углу. Установите время СТЕРИЛИЗАЦИИ и, при необходимости, установите время СУШКИ.
Выберите нужную НАСТРОЙКУ, нажав цветную кнопку, соответствующую:
ВКЛ-ВЫКЛ БЫСТРЫЙ ВЫПУСК ЖИДКОСТИ СУХОЙ
ЗЕЛЕНЫЙ = БЫСТРЫЙ ВЫПУСК: Давление быстро снизится в конце стерилизации. Жидкости будут пузыриться, если вы используете эту настройку.
ЖЕЛТЫЙ= Жидкости: Давление снижается медленнее в конце стерилизации.
СИНЯЯ=Сухая: используйте эту настройку для бумажных изделий, ватных палочек и т.
д.
Нажмите КРАСНУЮ кнопку, чтобы включить автоклав.
Подождите, пока температура не достигнет 121°C и не загорится КРАСНЫЙ индикатор стерилизации в стеклянном ящике, прежде чем записывать давление в камере в журнал. Давление в камере должно быть 16-20 фунтов на квадратный дюйм после начала цикла стерилизации. Обо всем, что ниже 16 фунтов на квадратный дюйм, следует сообщать руководителю вашей лаборатории.
В конце цикла убедитесь, что ДАВЛЕНИЕ В КАМЕРЕ вернулось к НУЛЮ, прежде чем пытаться открыть дверь. Цикл ЖИДКОСТИ занимает гораздо больше времени, чем БЫСТРЫЙ ВЫПУСК – наберитесь терпения. Если дверь не открывается с легкостью, ПОДОЖДИТЕ 10 минут, прежде чем повторить попытку. Если вы потянете дверь гаечным ключом и попытаетесь открыть ее силой, внутренний металлический стержень, который соединяется с дверной ручкой, скрутится от давления.
Чтобы открыть дверцу:
МАЛЕНЬКИЙ автоклав: поверните ручку против часовой стрелки. Будьте осторожны, пар горит! Отойдите в сторону и приоткройте дверь.
Дайте пару выйти из камеры, затем откройте дверцу и выньте свои вещи.
БОЛЬШОЙ автоклав: Сначала поверните БОЛЬШУЮ ВНЕШНЮЮ ручку против часовой стрелки, пока она не ослабнет. Затем поверните МАЛЕНЬКУЮ ВНУТРЕННЮЮ ручку против часовой стрелки, пока дверь не откроется. Будьте осторожны, пар горит! Отойдите в сторону и приоткройте дверь. Дайте пару выйти из камеры, затем откройте дверцу и выньте свои вещи.
В качестве любезности для других, которым необходимо использовать автоклав, сразу же уберите свои вещи, когда цикл завершится, и вы сможете легко открыть дверцу. При снятии предметов надевайте защитные термостойкие перчатки.
Отходы, обработанные в автоклаве, следует вывозить непосредственно в мусорный контейнер для утилизации. Оранжевые мешки для автоклавов необходимо сложить в черные мешки для мусора перед тем, как выбросить их в мусорный контейнер.
Автоклавные циклы
Чтобы быть эффективным, автоклав должен достигать и поддерживать температуру 121°C в течение не менее 30 минут с использованием насыщенного пара под давлением не менее 15 фунтов на квадратный дюйм.
В зависимости от состава и объема загрузки может потребоваться увеличение времени цикла.
Скорость выхлопа зависит от характера нагрузки. Сухой материал можно обрабатывать в быстром цикле вытяжки, в то время как жидкости и биологические отходы требуют медленной вытяжки, чтобы предотвратить выкипание перегретых жидкостей.
Цикл жидкостей
Жидкости полагаются на цикл жидкостей, чтобы избежать явления, известного как «выкипание». Кипение — это просто жидкость, кипящая так сильно, что выливается за пределы емкости. Выкипание произойдет, если давление в камере автоклава сбрасывается слишком быстро во время фазы выхлопа цикла. Значительный объем жидкости может быть потерян из-за выкипания, что может привести к нежелательным разливам на дне камеры автоклава, которые необходимо очистить, чтобы избежать засорения дренажных линий и последующих затрат на ремонт для отделения.
Чтобы предотвратить закипание во время фазы выпуска, давление в камере должно сбрасываться медленно.
Этот процесс контролируется системой управления стерилизатора. Управление скоростью выхлопа позволяет охлаждать жидкую нагрузку по мере снижения давления в окружающей камере.
Скорость выхлопа для жидкостного цикла отличается от стандартного гравитационного или вакуумного цикла, где давление в камере сбрасывается быстро. Чтобы предотвратить выкипание, давление в камере должно снижаться медленно, чтобы температура загрузки оставалась ниже точки кипения. Если давление сбрасывается сразу, температура груза будет выше его точки кипения, что приведет к мгновенному бурному кипению.
(медленный выпуск)
Материал Рекомендуется для:
Использование со стеклянными контейнерами с вентилируемыми крышками; Только на 2/3
- Жидкая среда
- Невоспламеняющиеся жидкости
- Водные растворы
- Жидкие биологические отходы
Сухой цикл
(Быстрый выпуск)
Материал Рекомендуется для:
Стеклянная посуда: пустая и перевернутая
без плотных или непроницаемых крышек
Сухие твердые предметы, неупакованные или в пористой упаковке
Металлические предметы с пористыми частями
Другие пористые материалы
Гравитационный цикл: упакованные товары или предварительный вакуумный цикл
Традиционный «гравитационный цикл» является наиболее распространенным и простым циклом паровой стерилизации.
Во время гравитационного цикла пар закачивается в камеру, содержащую окружающий воздух. Поскольку пар имеет меньшую плотность, чем воздух, он поднимается в верхнюю часть камеры и в конечном итоге вытесняет весь воздух. Когда пар заполняет камеру, воздух вытесняется через дренажное отверстие. Выталкивая воздух, пар может непосредственно контактировать с загрузкой и начинать ее стерилизацию.
В конце цикла пар выпускается через сливное отверстие. Однако груз все еще может быть горячим и, возможно, влажным. Чтобы решить эту проблему, гравитационные автоклавы могут быть оснащены функцией вакуумирования после цикла, чтобы помочь в сушке загрузки. Стерилизатор работает в обычном гравитационном цикле, и после стерилизации загрузки вакуум вытягивает пар и конденсат через дренажное отверстие. Чем дольше вакуумная система работает в фазе сушки, тем холоднее и суше будут товары при извлечении из камеры.
Гравитационные циклы обычно используются для таких грузов, как стеклянная посуда, биологически опасные отходы (отходы автоклавных мешков), а также упакованные и неупакованные инструменты.
Материал, рекомендуемый для:
Стеклянная посуда, которую необходимо стерилизовать в вертикальном положении и/или которая может задерживать воздух
Завернутые сухие предметы, которые могут задерживать воздух
Коробки для наконечников пипеток
Обеззараживание острых предметов
9002 (в контейнерах для сбора отходов) 90 Обеззараживание 90 отходов в автоклавных мешках; может быть мокрым или сухим
Типы автоклавов и рынок
- Медицинские автоклавы
- Стоматологические автоклавы
- Лабораторные автоклавы
Медицинские автоклавы
Настольные автоклавы
большие горизонтальные автоклавы
Плазменный стерилизатор
Промывочные дезинфекторы
Автоклавы поддерживают здоровую, чистую и стерильную среду.
Быструю и эффективную дезинфекцию хирургических инструментов при подготовке к стерилизации обеспечивают автоклавы.
Автоклавы, которые удовлетворят потребности любой операционной больницы, центрального отделения стерилизации или медицинской клиники.
Стоматологические автоклавы
— Идеальный стерилизатор для стоматологов
Лабораторные автоклавы
Вертикальная нагрузка Autoclaves и Fast Liquiding Autoclaves
Life Science Labs и научно -исследовательские институты.0029
Ленточные индикаторы
Ленточные индикаторы представляют собой бумажную ленту с клейкой основой и термочувствительными химическими индикаторами. Ленточные индикаторы меняют цвет или отображают диагональные полосы, слова «стерильно» или «автоклавировано» при воздействии температуры 121°C. Ленточные индикаторы обычно размещаются на внешней стороне загрузки отходов. Если на термочувствительной ленте не указано, что в процессе стерилизации была достигнута температура не менее 121 °C, загрузка не считается обеззараженной. Если индикаторы ленты выходят из строя при двух последовательных загрузках, сообщите об этом менеджеру по безопасности отдела.
Ленточные индикаторы не предназначены и не предназначены для доказательства фактического уничтожения организмов. Они показывают, что в автоклаве была достигнута температура 121°C. EHS рекомендует НЕ использовать автоклавную ленту в качестве единственного индикатора обеззараживания или стерилизации.
Встроенные химические индикаторные полоски
Встроенные химические индикаторные полоски обеспечивают ограниченную проверку температуры и времени, отображая изменение цвета после воздействия нормальной рабочей температуры автоклава 121ºC в течение нескольких минут. Химические индикаторы изменения цвета могут быть помещены в загрузку отходов. Если химические индикаторы выходят из строя при двух последовательных загрузках, сообщите об этом менеджеру по технике безопасности вашего отдела.
Биологические индикаторы
Флаконы с биологическими индикаторами содержат споры B. stearothermophilus, микроорганизма, который инактивируется при воздействии насыщенного пара при 121,1 °C в течение минимум 20 минут.
Автоклавы, используемые для обработки биологических отходов, будут оцениваться EHS ежеквартально с помощью биологического индикатора.
Процедура валидации для автоклава:
EHS координирует биологические валидационные испытания с персоналом лаборатории.
Индикаторы инкубируют с помощью EHS в течение 24 часов при 60°C с контролем, хранящимся при комнатной температуре.
Результаты
Если автоклавированный индикатор демонстрирует рост, проверка не пройдена и будет повторена.
Если второй индикатор проверки не сработает, EHS уведомит об этом руководителя отдела безопасности и запросит обслуживание автоклава. Автоклав не следует использовать до тех пор, пока не будет проведено обслуживание и пройдены валидационные испытания.
Результаты валидационных испытаний отправляются сотрудниками EHS по электронной почте в соответствующие лаборатории и руководителю службы безопасности отдела.
EHS ведет документацию по всем проверочным испытаниям.
