Содержание
Ремонт и модернизация портальных кранов
По предварительно составленному техническому заданию или экстренный ремонт уже сегодня.
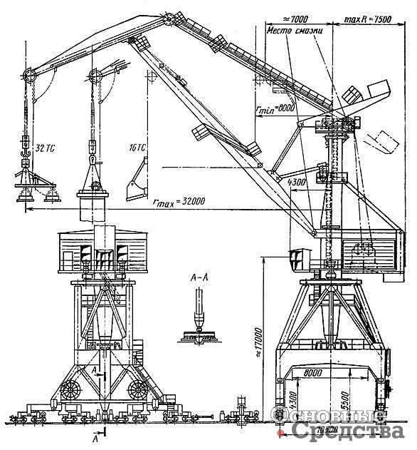
Портальный кран является сложным инженерным сооружением, предназначен для перегрузочных работ в портах (причал-море-причал) и на судостроительных верфях для формирования корпусов судов и проведения перегрузочных работ. Данные производства имеют расширенную инфраструктуру бесперебойного круглосуточного действия, что соответственно накладывает повышенную ответственность на работоспособность портального крана и на обслуживающий и ремонтный персонал.
В соответствии, с чем ремонт/модернизация портального крана
Требует разработки тщательно спланированного поэтапного проекта.
В том числе проекта производства работ, логистической схемы. Соответственно такой подход к выполнению работ значительно дороже по своим трудовым затратам, чем ремонт стандартной кран-балки или мостового крана.
К проведению ремонта допускаются специально обученные
Подготовленные, прошедшие аттестацию специалисты в различных областях деятельности.
Это сборщики-монтажники, слесаря ремонтники, стропальщики, сварщики, электромеханики, электронщики, наладчики электронных средств управления, руководители работ, инженеры, а так же специалисты по инженерной логистике, которые управляют не только технологическими процессами, но и имеют навыки в управлении бизнес-процессами специализированной организации.
Мы участвуем и побеждаем в торгах 223 ФЗ и 44 ФЗ
Работаем по внутренним конкурсным отборам и четко выполняем свои обязательства.
Наши постоянные клиенты крупные металлургические, горнодобывающие, энергетические генерирующие, судостроительные, портовые конгломераты, производственные предприятия. В настоящее время наше предприятие имеет порядка 40 текущих договоров, выполняемых на территории России, в том числе в г.
Санкт-Петербург, которые заключили с нами длительные пролонгируемые договора на различные ремонты или предупредительное обслуживание, плановое техническое освидетельствование, дооснащение новым грузоподъёмным и другим оборудованием. Всего поддерживаем партнерские отношения более чем с 3000 (тремя тысячами) организаций, которые время от времени обращаются к нам за технической поддержкой, в том числе проведения срочных ремонтов дефектных узлов грузоподъемного оборудования.
Имеющиеся производственные ресурсы
На данный момент позволяют нам реагировать на вызов в течение 3-5 часов.
Мобильная бригада, укомплектованная опытными специалистами и технологическим оборудованием, устраняет большинство типовых неисправностей на грузоподъёмном оборудовании, в том числе портальных кранах, например за один два дня можем организовывать поставку и замену грузового каната портального крана, провести замену смазки механических узлов, замену блоков, устранить незначительные дефекты металлоконструкций.
По заявке в течение 2-5 дней готовы организовать выезд и выехать в любой регион России и Евразийского экономического сообщества для проведения крупного капитального ремонта грузоподъёмного оборудования.
Наша организация дорожит своей репутацией, соответственно берёт в работу объекты, на выполнение которых может дать полную гарантию. Стоимость работ не превышает среднестатистических цен в России, рассчитывается на основании технического задания и других технических и финансовых требований Заказчика в форме сметы или калькуляции.
Работы выполняются по согласованному проекту
Где прописана логистика выполнения работ, этапы и финансовая составляющая каждого этапа.
Мы не играем в считалки по фейк запросам с анонимной почты и не участвуем в «поле чудес» и в режиссированных торгах, так как ни одна организация не станет проводить честный ремонт в убыток себе, а за финансовые средства ниже расчетных, нельзя выполнить полноценный качественный ремонт, поэтому «Организации», предлагающие провести ремонт за значительно меньшие суммы –лукавят, так как значительное число дефектов ими будет не устранено, а замазано, поставлено некачественное оборудование, что в последствии приведет к авариям и человеческим жертвам.
Gantry-Crane Service. Ремонт и техническое обслуживание портальных кранов в Санкт-Петербурге.
Своевременное техническое обслуживание портальных кранов обеспечивает необходимый уровень безопасности работы, снижает вероятность поломок и, соответственного, простоя этой дорогостоящей техники. Обслуживание портальных кранов — это целый спектр технических мероприятий для предупреждения досрочного износа оборудования путем проведения профилактических осмотров, выявления неполадок, их устранения или ремонта.
Для того, чтобы портальный кран работал исправно, необходимо организовать периодический контроль специалистами на наличие возможных дефектов: трещин металлоконструкций, механических повреждений, предельных износов. Регулярный осмотр позволит выявить дефекты на ранних стадиях, в результате чего можно избежать преждевременного капитального ремонта портального крана. Также при эксплуатации портальных кранов особое внимание надо обращать на состояние рельсовых путей, соблюдение установленных правил подъема груза, обеспечение устойчивости крана в нерабочем состоянии и соблюдение правил техники безопасности.
Обязательны при эксплуатации кранов система планово-предупредительных текущих ремонтов, регулярный осмотр кранов, регулировка и смазка отдельных узлов и деталей в соответствии с заводской инструкцией, систематический надзор за состоянием несущей конструкции крана и его механизмов. Своевременный ремонт грузоподъемного оборудования — это ключ к успеху и сокращению расходов любого предприятия.
В основу деятельности нашей организации лег многолетний опыт монтажных работ портовой техники. Отсюда и название — «Gantry-Crane Service» — «Обслуживание Портальных Кранов». Наши специалисты отлично знают монтажное дело и прекрасно разбираются в ремонте грузоподъемного оборудования. Занимаясь монтажом, демонтажом, техническим обслуживанием и ремонтом портальных кранов, мы каждый раз находим новые решения устранения проблем и совершенствуем свои навыки.
Мы предлагаем:
- Консалтинговые услуги;
- Монтаж/демонтаж портальных кранов отечественных и зарубежных производителей любого уровня сложности;
- Демонтаж, ремонт и монтаж стреловых систем;
- Замена грузовых канатов;
- Ремонт и замена подпятных подшипников;
- Техническое обслуживание в объемах, согласованных с заказчиком;
- Любые виды ремонта электрооборудования, механизмов и металлоконструкций портального крана;
Формирование стоимости услуг ООО «Gantry-Crane Service» по портальным кранам происходит следующим образом:
- Исследование заявки заказчика;
- Поиск модели и модификации портального крана по тарифам предприятия;
- Разработка технологического решения задания;
- Составление коммерческого предложения;
- Согласование цены с заказчиком.

Сейчас на рынке существует множество компаний, предлагающих подобного рода услуги, но мы не боимся конкуренции! Наши заказчики, однажды обратившись к нам, приобретают долгосрочного и благонадежного партнера!
Любую консультацию по возникшим вопросам вы можете получить у наших специалистов, связавшись с нашей организацией по телефонам, указанными на сайте ООО «Gantry-Crane Service».
Ремонт и обслуживание башенных кранов
Ремонт подъемников и кранов | Konecranes USA
Мы знаем, что когда ваше оборудование не работает, страдает ваше производство. Наши специалисты будут работать с вашим графиком работы и временными ограничениями, чтобы выполнить ваши потребности в ремонте.
Konecranes предлагает услуги корректирующего обслуживания, которые включают плановый ремонт, предварительно авторизованный ремонт и ремонт по вызову.
Свяжитесь с нами сегодня для любых ваших потребностей в обслуживании крана
Плановый ремонт
Плановый ремонт назначается в соответствии с отчетами об осмотрах и техническом обслуживании.
Ремонт скоординирован и запланирован в соответствии с вашими производственными графиками. Наши технические специалисты имеют все необходимое оборудование для выполнения широкого спектра плановых ремонтов, включая ремонт, регулировку и замену любого компонента или детали оборудования.
Предварительно санкционированный ремонт
Предварительно санкционированный ремонт предоставляет полное разрешение на выполнение корректирующего обслуживания в пределах определенной суммы, чтобы организовать и выполнить мелкий ремонт или регулировку быстро и эффективно. Обычно они выполняются во время инспекций или профилактических посещений.
В рамках наших программ технического обслуживания рекомендации по ремонту или замене компонентов составляются путем сочетания профилактического и профилактического обслуживания.
А когда в сервисную программу добавляется Предварительно авторизованный ремонт, мы можем оперативно выполнять работы, экономя время и деньги.
Ремонт по вызову
Мы можем ответить на ваши потребности в ремонте по вызову или в экстренном порядке, чтобы помочь вернуть ваше оборудование в рабочее состояние как можно скорее.
Помимо простого ремонта
Если вам необходимо более подробно изучить ваш кран и его компоненты, мы предлагаем несколько типов расширенных консультационных услуг. Эти службы используют передовые технологии и обученных специалистов для выявления критических проблем.
Узнайте больше о наших консультационных услугах
загрузок
Информационные страницы о корректирующем обслуживании и модернизации
Мощное партнерство в Карибском бассейне
История клиента
Мощное партнерство на Карибах
Konecranes Miami развивает нишевый рынок на островах
Бизнес по доставке электроэнергии потребителям Карибского бассейна всегда в движении, так как…
One…
Какая подвеска мостового крана вам подходит?
Экспертная статья
Какая подвеска мостового крана вам подходит?
Когда дело доходит до часто запрашиваемых деталей крана, подвеска мостового крана является одной из наиболее часто нуждающихся в замене. Это потому что……
Бумажная фабрика Британской Колумбии сотрудничает с Konecranes, чтобы сократить потери производительности и количество несчастных случаев
История успеха
Бумажная фабрика Британской Колумбии сотрудничает с Konecranes, чтобы сократить потери производительности и несчастные случаи
Некоторые из самых больших историй успеха может быть результатом простого аудита сайта.
Важность надевания защитного снаряжения и знакомства с клиентом……
Norris Production Solutions и Konecranes налаживают хорошие рабочие отношения
История клиента
Norris Production Solutions и Konecranes установили хорошие рабочие отношения
Norris Production Solutions — крупнейший в мире производитель насосных штанг, которые соединяют наземные и забойные компоненты возвратно-поступательного поршня…
В…
Crane Repair Co. Продажа и обслуживание мостовых кранов, лебедок, стрел, козловых кранов
(303) 791-7918
Круглосуточная ремонтная служба
Аварийное реагирование в течение 2 часов
Повысьте производительность с помощью круглосуточного ремонта кранов, создайте более безопасное рабочее место с помощью проверок и тренингов OSHA,
и найдите лучшее оборудование для любого бюджета.
Если вы хотите повысить безопасность и производительность на своем рабочем месте, вы нашли правильный ответ.
С нашими продуктами и услугами для мостовых кранов и подъемных механизмов вы сможете с легкостью сосредоточиться на том, что делает вашу работу лучше.
Позвольте нам лично проконсультировать вас, чтобы найти правильное решение для вашей отрасли, бюджета и сотрудников.
Наше круглосуточное аварийное реагирование означает, что технический специалист прибудет к вам в течение двух часов после вашего телефонного звонка.
Безопасность
Безопасность всегда на первом месте
Честность
Мы честны и откровенны с вами.
Качество
Всегда получайте лучшие продукты и услуги от нашей команды.
Надежность
Мы здесь 24/7 для всех ваших повседневных и экстренных потребностей.
Электрическая цепная таль Valustar
см
Электрическая цепная таль CM Valustar отличается компактной и легкой конструкцией, созданной специально для общего коммерческого применения. Valustar — это экономичный выбор для ваших потребностей в обработке материалов.
Подробнее
Мостовой кран Spanco с отдельно стоящей рабочей станцией
Мостовой кран с отдельно стоящей рабочей станцией Spanco представляет собой идеальное эргономичное решение для расширения зоны подъема и обеспечения полного доступа к движению. Наши отдельно стоящие мостовые краны с рабочими станциями могут заменить несколько кранов одной гидравлической системой для повышения эффективности и производительности.
Подробнее
Свободностоящая стрела Spanco
Свободностоящие стреловые краны Spanco устанавливаются практически в любом месте, в том числе снаружи. Эти установленные на фундаменте отдельно стоящие стрелы обладают большей грузоподъемностью, большими пролетами и большей скоростью вращения, чем наши настенные стреловые краны:
Подробнее
Conductix Series 20
Кнопочные подвески серии 20 обеспечивают прямой контроль над небольшими однофазными кранами.

