Содержание
⟦Рельсы железнодорожные⟧ ⚙ все виды, типы, длина и размеры
Рельсы — изготовленные из углеродистой стали балки, укладываемые на специализированных шпалах. Применяются для построения железнодорожных путей различного назначения. Изготовление рельс контролируется различными ГОСТ, для каждого типа, вида рельс.
Меню страницы:
Виды рельс
Типы рельс
Длина рельс
Рельсы Р75
Рельсы Р65
Рельсы Р50
Купить рельсы
Материал страницы предоставляется, как есть, без возможности редактирования и добавления информации. Данная страница несет исключительно информационный характер, хоть и имеет спонсоров в лице компаний ООО «ЛитСтройКом» и GREENRAIL GROUP S.R.L. Основная цель которая преследовалась при создании данного материала, это консолидация нужной информации на одной странице.
Мы надеемся такой подход облегчит новому поколению специалистов по Ж/Д, получить актуальную информацию.
⟦Виды Рельс⟧
Рельсы для железных дорог промышленных предприятий РП50, РП65, РП75 — предназначены для укладки на ширококолейный железнодорожный путь и стрелочные переводы для промышленных предприятий.
Железнодорожные рельсы узкой колеи P8, P11, P18, P24 — предназначены для укладки на узкоколейных железных дорогах и подземных шахтах.
Шахтерские рельсы, для шахтных проводников P33, P38, P43 — предназначены для ширококолейного соединения и непрерывных железных дорог, а также для производства стрелочных переводов.
Рельсы крановые КР70, КР80, КР100, КР120, КР140 — используются при прокладывании путей для подъёмных кранов и крановых тележек.
Рельсы рамные РР65 — используются для построения соединений и пересечений железнодорожного пути.
Рамными называют рельсы, к которым прижимается остряки. Поскольку остряки – элементы подвижные, они не могут преодолевать боковое давление. Из за этого к рамным рельсам прикрепляют упорные болты через которые давление от прижатого остряка передается на рамный рельс.
Контррельсовые рельсы РК50, РК65, РК75 — применяются в конструкциях верхнего строения железнодорожного пути. Используют для предотвращения схода колес состава с путевого рельса, а также их удержания в случае схода.
Рельсы контррельсовые РК50 РК65 РК75 — применяемые в конструкциях верхнего строения пути с железнодорожными рельсами широкой колеи. В качестве защитных мер концы контррельс загибают под углом в 45 градусов. Ширина между контррельсом и путевым рельсом не должные превышать 90 мм.
Рельсы остряковые ОР43, ОР50, ОР65, ОР75 — используются для изготовления конструкций верхнего строения железнодорожного пути широкой колеи общего и не общего пользования.
Предназначены для применения в конструкциях ВСП и эксплуатации их в путях железных дорог, метрополитенов и путей общего пользования, а также технологических путей промышленного транспорта широкой колеи.
Рельсы трамвайные желобчатые Т58, Т62, Т60, Т65 — используются для укладки на трамвайных железных дорогах. Трамвайные рельсы отличаются от железнодорожных химическим составом и структурой стали, а также наличием термообоработки, которые предназначены для путей городского электрического транспорта.
Рельсы усовиковые УР65 — используются для изготовления железнодорожных крестовин с непрерывной поверхностью катания. Усовиковые рельсы используются на участках пересечения путей и съездов, на стрелочных переводах. Обеспечивают фиксированное направление движения ребордерных колес между крестовиной и путевым рельсом.
Рельсы железнодорожные Р50, Р65, Р75 — предназначены для звеньевого и бесстыкового пути железных дорог широкой колеи и для производства стрелочных переводов.
Самые распространенные типы рельс, выливаемые из марки стали М76, М74. Ходовым типом является Р65, который имеет приемлемую плотность стали и временное сопротивление не менее 90 кгс/см2. Высокая марка стали позволяет получать продукцию с относительным удлинение, не менее 4 %.
⟦Типы Рельс⟧
Ниже представлена упрощенная таблица по основным типам рельс, которые производятся в данный момент. Все они укладываются на железнодорожные пути широкой колеи (ширококолейные). Конечно же есть еще типы рельс, которые не производятся сейчас, но используются на линиях. Но модернизация железнодорожных дорого, сокращает количество старогодных рельс.
⟦Длина Рельс⟧
Естественно стандарты немного отличаются в разных странах, но длина стандартного железнодорожного рельса, производимого рельсопрокатными заводами в странах СНГ, составляет 12,5; 25; 50 и 100 метров. Чем больше длина рельс, тем меньше стыковых скреплений, что позволяет уменьшить сопротивление при движении поездов.
Длинные рельсы и сварные швы уменьшают износ подвижного состава и расходы на содержание пути.
Нет в наличии
⟦Рельс Р 75⟧
Не самый распространенный тип рельс, поскольку может выпускаться только очень крупными заводами, такими как ЕВРАЗ. Рельсы Р 75, самые жирные: 1 метр содержит 74,41 кг высокоуглеродистой стали. Длина таких рельс, в основном 25 метров, но под большой заказ, естественно можно вылить 50 метровые или 100 метровые.
Нет в наличии
Марка стали М76
⟦Рельс Р 65⟧
Наоборот, самый распространенный тип рельс, применяется и укладываются в зависимости от грузонапряженности. Рельсы Р 65: 1 метр содержит 64,72 кг высокоуглеродистой стали. Длина таких рельс, может быть очень разной. При построение путей малой протяженности, нельзя использовать длину менее 6 метров.
Марка стали М76
⟦Рельс Р 50⟧
На путях промышленных предприятий находят применение рельсы типов Р 50: 1 метр содержит 51,67 кг углеродистой стали.
Длина таких рельс, может быть очень разной. При построение путей малой протяженности, нельзя использовать длину менее 6 метров.
Марка стали М74
⟦Рельс Р 43⟧
Рельс типа Р43 по ГОСТ 7173-54 производятся с 1955 г. и на данный такие рельсы применяются только на промышленных объектах. Рельс Р 43: 1 метр содержит 44,65 кг углеродистой стали. Длинна 12,5 метров является основной для данного типа рельс, но есть заводы которые могут изготовит длину под заказ.
Марка стали М70
⟦Купить рельсы⟧
Рельсы Р65 Дт350 К — Новокузнецкие 2021гг (АО ЕВРАЗ ОЗСМК новые)
₽79,900.00В корзину
Рельс переходной Р65/Р50 — 12,24-12,50 м (новый)
₽85,000.00В корзину
Рельс переходной Р65/Р50 — 6м (новый)
₽65,000.00В корзину
Рельсы Р50 (резерв) 1979-80гг — (новые)
₽61,900.00В корзину
⟦Рельс КР 70, 80, 120⟧
Сфера применения крановых рельсов КР предполагает наличие у них определенных характеристик и технических особенностей, за счет которых увеличиваются показатели механической нагрузки на рельсы.
Именно по этой причине крановые рельсы КР оснащаются более широкой шейкой, подошвой и головкой. Подобные показатели не характерны для обычных рельсов.
Прайс лист
Если вы хотите получить прайс лист по материалам верхнего строения пути. То просто напишите свой Email адрес и мы пришлем вам свежий прайс лист.
Подписка на прайсы
«Материалы ВСП»
⟦Вопросы⟧
Самые распространенные вопросы про рельсы
Почему рельсы не ржавеют?
Ржавеют еще как, просто пути постоянно проходят профилактику, да и верх рельс шлифуется за счет трения. К тому же, не сравнивайте бытовую (вторичную) сталь и высокоуглеродистую сталь, которая используется в рельсах.
Почему рельсы в России шире чем в Европе?
Как любая глобальная технология, железные дороги развивались и стандартизировались в разных странах при разных условиях. Если говорить про Россию, то чаще используется ширина колеи 1524 мм, в Европе применяется 1435 миллиметровая ширина колее.
Сколько весит 1 метр железнодорожных рельс?
Все зависит от класса рельс, который определяется ГОСТ-ом. На данной странице мы разбирали только 4 класса рельс: Р75, Р65, Р50, Р43. Вес одного метра можно посмотреть в этой таблице.
Где делают рельсы?
При производстве рельс, по мимо стали нужной марки, используется сложный химический состав (смесь хрома, алюминия, кислорода, водорода, ванадия и других необходимых элементов). Все это естественно делается на крупных металлургических комбинатах.
Рельс Р 65, что значит?
Это значит, что рельс произведен по ГОСТ 8161-75 и имеет определенные характеристики по высоте, ширине и весу одного метра. Это самый распространенный тип рельс, который применяется при строительстве общественных и коммерческих железнодорожных путей.
Чем отличаются рельсы Р 65 от РП 65?
Отличаются маркой стали например, в рельсах Р 65 используется сталь марки М 76, а в рельсах РП 65 используется сталь марки 76.
В первом случае сплав делается с уклоном на высокую скорость, так как Р 65 используется на железнодорожных путях общего назначения. Во втором случае в рельсах РП 65, делается уклон на предел кратковременной прочности, из за промышленного назначения.
Когда назначается шлифование рельсов?
Шлифование рельс это стандартная процедура технической профилактики железнодорожных путей. Производится она с помощью рельсошлифовальных поездов РШП. Назначается она экспертами после осмотра путей (не плановая) или по внутреннему регламенту технической службы (плановая шлифовка).
Можно ли (варить) сваривать рельсы?
Конечно можно и даже есть несколько способов сварки: электродуговая сварка, термитная, газопрессовая. На данный момент, только сварка рельс, максимально соответствует всем современным требованиям к бесстыковым железнодорожным путям.
Где РЖД закупает рельсы?
Как любое государственное предприятие, РЖД закупает рельсы через открытые торги.
Компания ООО «ЛитСтройКом» часто участвует в подобных тендерах и занимается поставкой материалов для путей.
Где можно купить рельсы?
Рельсы продаются как с заводов производителей, так и со складов оптовых поставщиков. На заводе рельсы немного дешевле и есть возможность заказа собственных размеров, но там нужны очень большие объемы. Поэтому есть такие компании как ООО «ЛитСтройКом», которые имеют собственные склады и могу продавать рельсы не большими объемами. Перейти в каталог для заказа …
⟦Видео⟧
Распоряжение ОАО РЖД от 04.02.2015 N 235р
ОАО «РОССИЙСКИЕ ЖЕЛЕЗНЫЕ ДОРОГИ»
РАСПОРЯЖЕНИЕ
от 4 февраля 2015 г. N 235р
О ВНЕСЕНИИ ИЗМЕНЕНИЙ
В НОРМАТИВНЫЕ ДОКУМЕНТЫ ОАО «РЖД» ПО ОХРАНЕ ТРУДА
В целях снижения уровня производственного травматизма в ОАО «РЖД», связанного с наездом железнодорожного подвижного состава:
1. Утвердить прилагаемые изменения, которые вносятся в:
Правила по безопасному нахождению работников ОАО «РЖД» на железнодорожных путях, утвержденные распоряжением ОАО «РЖД» от 24 декабря 2012 г.
N 2665р;
Положение об организации в ОАО «РЖД» работы по системе информации «Работник на пути», утвержденное распоряжением ОАО «РЖД» от 6 ноября 2013 г. N 2374р;
Правила по охране труда, экологической, промышленной и пожарной безопасности при техническом обслуживании и ремонте объектов инфраструктуры путевого комплекса ОАО «РЖД», утвержденные распоряжением ОАО «РЖД» от 4 февраля 2014 г. N 255р.
2. Начальникам департаментов, управлений, филиалов и других структурных подразделений ОАО «РЖД» довести указанные изменения до сведения причастных работников.
Старший вице-президент ОАО «РЖД»
В.А.ГАПАНОВИЧ
1. Абзац восьмой пункта 2.2.3 после слов «на расстоянии» изложить в следующей редакции:
«не менее 2,5 м от крайнего рельса при установленных скоростях движения поездов до 120 км/ч, не менее 4 м от крайнего рельса при установленных скоростях движения 121 — 140 км/ч и не менее 5 м от крайнего рельса при установленных скоростях движения более 140 км/ч.»;
2.
Абзацы первый и второй пункта 2.4.1 изложить в следующей редакции:
«При обнаружении (визуальном или звуковом) приближающегося подвижного состава работники, оказавшиеся на пути следования поезда в габарите подвижного состава, должны по команде руководителя работ отойти и убрать инструменты, приспособления, материалы и изделия с путей на обочину земляного полотна (в ниши, убежища), а при отсутствии достаточного места — на обочину смежного пути, на расстояние не менее 2,5 м от крайнего рельса при установленных скоростях движения поездов до 120 км/ч, не менее 4 м от крайнего рельса при установленных скоростях движения 121 — 140 км/ч, а на скоростных и высокоскоростных участках железной дороги (при установленных скоростях движения более 140 км/ч) на расстояние не менее 5 м от крайнего рельса за 10 мин до прохода поезда.
При нахождении работников на путях станций допускается отойти на середину междупутья, обеспечивающего указанные выше минимально допустимые безопасные расстояния.
«;
3. В приложении N 2:
3.1. Пункт 1 изложить в следующей редакции:
«1. Несвоевременный уход работающих с путей на обочину земляного полотна (в ниши, убежища), а при отсутствии достаточного места — на обочину смежного пути на расстояние менее 2,5 м от крайнего рельса при установленных скоростях движения поездов до 120 км/ч, менее 4 м от крайнего рельса при установленных скоростях движения 121 — 140 км/ч и менее 5 м от крайнего рельса при установленных скоростях движения более 140 км/ч., в том числе при проходе поезда по смежному пути, если место работ не ограждено сигналами остановки.»;
3.2. Пункт 6 изложить в следующей редакции:
«6. Передвижение и нахождение на междупутье (кроме междупутья на территории станции, обеспечивающего минимально допустимые безопасные расстояния, указанные в п. 1 настоящего приложения N 2) во время прохода поездов по смежным путям.».
4. В приложении N 4:
4.1. Текст пункта 2 в графе «Действия» таблицы изложить в следующей редакции:
«Вывести работников с путей на обочину земляного полотна (в ниши, убежища), а при отсутствии достаточного места — на обочину смежного пути, на расстояние не менее 5 м от крайнего рельса.
«;
4.2. Текст пункта 5 в графе «Действия» таблицы изложить в следующей редакции:
«Работники должны отойти с путей на обочину земляного полотна (в ниши, убежища), а при отсутствии достаточного места — на обочину смежного пути, на расстояние не менее 5 м от крайнего рельса.»;
4.3. Текст пункта 6 в графе «Действия» таблицы изложить в следующей редакции:
«По команде руководителя работ отойти с путей на обочину земляного полотна (в ниши, убежища), а при отсутствии достаточного места — на обочину смежного пути, на расстояние не менее 5 м от крайнего рельса.»;
4.4. Первое и второе предложения текста пункта 7 в графе «Действия» таблицы изложить в следующей редакции:
«Путь, сооружения и устройства должны быть приведены в состояние, обеспечивающее безопасный пропуск поезда. Все работники должны отойти и убрать инструменты, приспособления, материалы и изделия с путей на обочину земляного полотна (в ниши, убежища), а при отсутствии достаточного места — на обочину смежного пути, на расстояние не менее 5 м от крайнего рельса.
«;
4.5. Текст пункта 8 в графе «Действия» таблицы изложить в следующей редакции:
«Все работники должны отойти и убрать инструменты, приспособления, материалы и изделия с путей и с открытого подвижного состава на обочину земляного полотна (в ниши, убежища), а при отсутствии достаточного места — на обочину смежного пути, на расстояние не менее 5 м от крайнего рельса.».
В приложении N 1:
1. Текст пункта 1 таблицы изложить в следующей редакции:
«Несвоевременный уход работающих с путей на обочину земляного полотна (в ниши, убежища), а при отсутствии достаточного места — на обочину смежного пути, при обнаружении (визуальном или звуковом) приближающегося подвижного состава на расстояние менее 2,5 м от крайнего рельса при установленных скоростях движения поездов до 120 км/ч, менее 4 м от крайнего рельса при установленных скоростях движения 121 — 140 км/ч и менее 5 м от крайнего рельса при установленных скоростях движения более 140 км/ч, в том числе при проходе поезда по смежному пути, если место работ не ограждено сигналами остановки (при применении экстренного торможения)».
2. Текст пункта 5 таблицы изложить в следующей редакции:
«Нахождение в междупутье (кроме междупутья на территории станции, обеспечивающего минимально допустимые безопасные расстояния, указанные в п. 1 настоящей таблицы) во время прохода поездов по смежным путям.».
3. Из текста пункта 10 таблицы слова: «и ближе 2 метров от крайнего рельса со стороны обочины» исключить.
1. Абзац третий пункта 2.1.2 изложить в следующей редакции:
«При обнаружении (визуальном или звуковом) приближающегося подвижного состава руководитель работ должен принять меры по выводу работников, оказавшихся на пути следования поезда в габарите подвижного состава, с путей на обочину земляного полотна (в ниши, убежища), а при отсутствии достаточного места — на обочину смежного пути, на расстояние не менее 2,5 м от крайнего рельса при установленных скоростях движения поездов до 120 км/ч, не менее 4 м от крайнего рельса при установленных скоростях движения 121 — 140 км/ч, а на скоростных и высокоскоростных участках железной дороги (при установленных скоростях движения более 140 км/ч) на расстояние не менее 5 м от крайнего рельса за 10 мин до прохода поезда;»;
2.
Абзац первый пункта 2.2.11 после слов «по месту работ» изложить в следующей редакции:
«, а также при пропуске подвижного состава по смежному пути, вывод работников и уборку инструмента, приспособлений, материалов и изделий, оказавшихся на пути следования поезда в габарите подвижного состава, с путей на обочину земляного полотна (в ниши, убежища), а при отсутствии достаточного места — на обочину смежного пути на расстояние не менее 2,5 м от крайнего рельса при установленных скоростях движения поездов до 120 км/ч и не менее 4 м от крайнего рельса при установленных скоростях движения 121 — 140 км/ч.»;
3. Абзац второй пункта 2.3.26 изложить в следующей редакции:
«поезда, дрезины, автомотрисы, отдельного локомотива — не менее чем на 2,5 м от крайнего рельса при установленных скоростях движения поездов до 120 км/ч, не менее чем на 4 м от крайнего рельса при установленных скоростях движения 121 — 140 км/ч и не менее чем на 5 м от крайнего рельса при установленных скоростях движения более 140 км/ч;»;
4.
Абзац второй пункта 2.3.27 изложить в следующей редакции:
«При приближении поезда или сигналов о его приближении, в том числе непонятных, дежурный по переезду должен прекратить работу, убрать инструмент, приспособления, материалы и изделия, сойти с путей и встречать поезд на расстоянии не менее 2,5 м от крайнего рельса при установленных скоростях движения поездов до 120 км/ч, не менее 4 м от крайнего рельса при установленных скоростях движения 121 — 140 км/ч.».
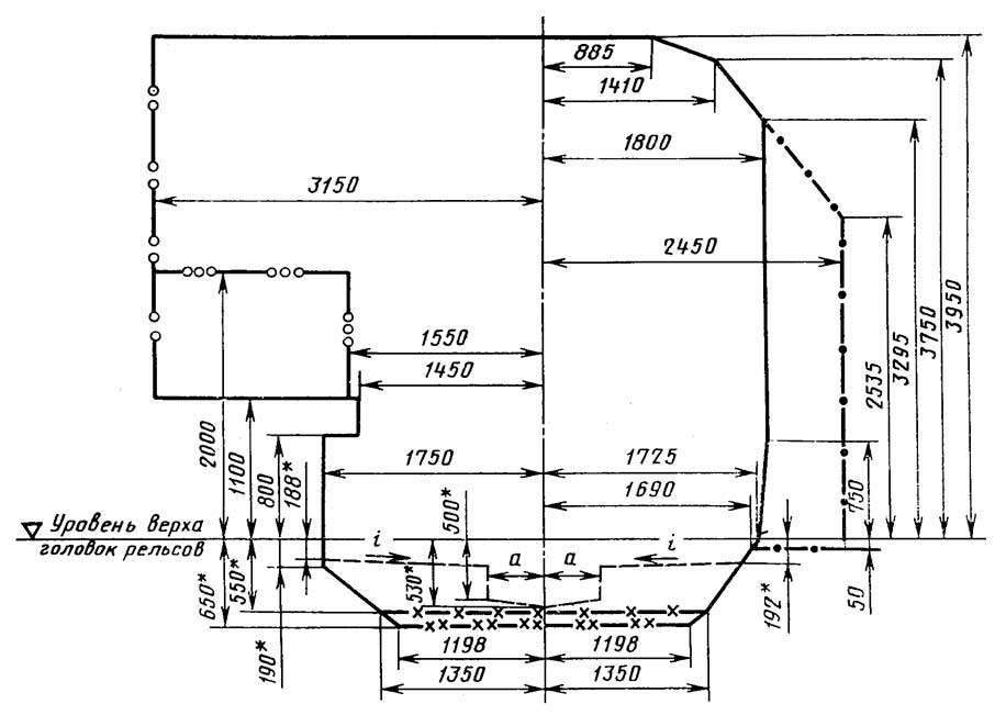
Расстояние от оси трека — Измерения трека :: Trackopedia
На железных дорогах расстоянием между осями путей является расстояние по горизонтали между осями соседних путей (осями путей).
Расстояние между основными линиями:
Минимальное расстояние между двумя путями 3,50 м. Эта цифра исходит из истории железных дорог. Ранее определенная половина колеи автомобиля составляла 1575 мм. Если транспортные средства стоят на двух параллельных путях, проложенных на расстоянии 3,50 м друг от друга, между габаритами погрузки остается расстояние 350 мм для защиты и условий эксплуатации.
Этого промежуточного пространства было достаточно для безопасной эксплуатации на малых скоростях и с жесткой подвеской вагона.
Текущее минимальное расстояние между гусеницами в соответствии с EBO определяется путем сложения половины ширины соответствующих габаритов. Стандартные нормальные расстояния между путями на главной линии с радиусом r = ≥ 250 м перечислены в одной из следующих таблиц.
.0020 | 3.50 m | ||
Extensive track renewal and track laying | 4.00 m | ||
S – Bahn (V e ≤ 120 km/h) | 3.80 m | ||
— подземное укрытие, примыкающее к путям | 3,80 м | ||
— подземное, укрытие между путями | 4.70 m | ||
Upgraded lines (V e ≤ 230 km/h) | 4. | ||
New lines | |||
V e ≤ 300 км/ч | 4,50 м | ||
V E ≤ 200 км/ч | 4,00 М ≤ 200 км/ч | 9002 4,00 M ≤ 200 км/ч | 9002 4,00 М 0003 |
Двухсторонний работа — сигналы между треками | 4,60 м | ||
Между парой трека | 5,80 м 6 |
| Radius | Increase |
|---|---|
| m | mm |
| 250 | 0 |
| 225 | 55 |
| 200 | 120 |
| 180 | 180 |
| 170 | 215 |
| 150 | 305 |
| 120 | |
| 100 | |
| 100 | |
| 100 | |
| 100 | 0015 1100 |
Расстояние между путями на станциях:
Расстояние между путями на станциях должно быть не менее 4,50 м.
Если существуют значительные дополнительные затраты на обеспечение такого расстояния, прямые линии через станцию могут иметь такое же расстояние друг от друга, как и основные линии. Некоторые важные расстояния между дорожками показаны в следующей таблице.
Описание системы направляющих | Distance apart |
Minimum distance | 4.00 m |
Minimum distance apart for new tracks | 4.50 m |
Signals between пути | 4,75 м |
Маневровые пути между путями |
5.80 m |
Следует отметить, что в случае электрической тяги пространство, необходимое для мачт контактной сети, должно оставаться свободным. Как правило, предусмотрены отдельные точки опоры; таким образом, мачты между путями в двухпутных линиях отсутствуют.
Расстояние между путями для путей с виражом:
Расстояние между путями e измеряется как расстояние между центрами путей (осями пути) параллельно соответствующим головкам рельсов. Съемка расстояния между путями относится к горизонтальному расстоянию e h. В прямолинейном пути, где рельсы уложены без виража, шаг пути и размер выноса штифта одинаковы. Если оси дорожек на кривой находятся на одной высоте, то размер распорки e h больше, чем расстояние между дорожками e, если оси находятся на наклонной плоскости, размер распорки e h меньше расстояния между ними. треки эл.
Расстояния до инженерных сооружений:
Расстояние по горизонтали между осью пути и инженерными сооружениями (например, мостовыми конструкциями, опорными и шумозащитными стенами) определяется опасной зоной и пространством безопасности.
Опасная зона для ≤ 160 км/ч составляет 2,50 м, а для 160 ≤ v ≤ 300 км/ч — 3,00 м. Эти расстояния относятся к виражу u = 20 мм. Для больших виражей расстояния должны быть увеличены, и это увеличение можно рассчитать. Безопасное пространство равно 0,80 м и должно оставаться свободным до высоты 2,20 м.
Пространство, которое должно оставаться свободным под потолочными конструкциями, определяется высотой и шириной зазора. Чистая высота относится к расстоянию между верхней частью рельсов и нижним краем потолка здания.
СКОРОСТЬ | Расстояние от | ||
V ≤ 160 km/h | 3.30 m | 0.80 m | 10.60 m |
160 ≤ v ≤ 200 km/h | 3,80 м | 0,80 м | 11,60 м |
200 ≤ V ≤ 300 км/ч | 4,30 м | 0002 0,80 м | 12,50 м |
Вы можете найти подходящую специализированную литературу по теме здесь:
Инфраструктурные проекты 2018
Как быстрее и качественнее демонтировать и восстановить железнодорожную инфраструктуру? — Именно об этом более 30 статей в этой книге.
Рычагами для более быстрой и качественной реализации проектов являются ускорение и упрощение процедур согласования, а также концепции бережливого производства в строительной отрасли, внедрение метода BIM и построение партнерских отношений. На примере городских агломераций Берлина, Франкфурта и Мюнхена в этой книге рассказывается, какие проблемы роста населения и непропорционально растущие экономические показатели означают для транспортной инфраструктуры, и как можно сделать транспортные сети ориентированными на будущее.
Основные принципы содержания механизированного пути
Эта книга предназначена для многих людей, занимающихся повседневным планированием и выполнением работ по техническому обслуживанию путей. Предлагая практический подход к повседневным задачам по обслуживанию механизированных путей, он предназначен не только как теоретический подход к путевой системе.
Железные дороги нацелены на безопасную, быструю, регулярную, комфортную и своевременную перевозку людей и грузов из одного места в другое.
Эта книга предназначена для отделов инфраструктуры путей, способствующих достижению вышеуказанной цели путем обеспечения надежности, доступности, ремонтопригодности и безопасности инфраструктуры путей, что обозначается аббревиатурой RAMS. Регулярное, эффективное и доступное техническое обслуживание путей позволяет достичь RAMS.
Расстояние между железнодорожными путями
Представлено
арпитв007
на
Ср, 29 дек. 2010 — 19:45
Все мы в жизни путешествовали на поездах. Но есть ли у вас
Вы когда-нибудь задумывались, какое расстояние между железнодорожными путями? Расстояние
между железнодорожными путями составляет 143,5 см или 4 фута 8 ½ дюймов. Теперь вопрос, почему
такая нестандартная мера? Не лучше ли оставить 144 или 145 см?
в яблочко?
Ответ прост. Железнодорожные вагоны были изготовлены с использованием
те же инструменты, которые использовались для изготовления конных экипажей. Расстояние
между колесами этих вагонов было 143,5 см, потому что дороги, на которых
они путешествовали было одинаковой длины.
Тогда кто определил длину дороги? У нас есть
Чтобы ответить на этот вопрос, нужно переместиться на столетия назад в Римскую империю. Когда римляне построили
первые в истории дороги, они использовали это измерение. А почему так? Потому что их война
колесницы приводились в движение двумя лошадьми, специально обученными для этой задачи, которые, когда
стояли рядом мерил ровно 143,5 см!
Но что означает это расстояние? Это означает очень
природа людей следовать правилам без вопросов. Инженеры США пока
При проектировании топливных баков для космических кораблей считалось, что баки должны быть шире. Но,
они должны были перевозиться по одним и тем же путям, и, следовательно, их нельзя было заставить
шире 143,5 см. Представьте, что весь план космических челноков должен был быть
изменились только потому, что кто-то определил ширину дорог много веков назад! Просто
как расстояние между железнодорожными путями, кто-то также установил правила для
все, что мы делаем.
Все считают, что цель жизни — следовать плану.
Они никогда не спрашивают, чей это план. Таким образом, они никогда не задают вопросов и просто следуют
правила. И эти правила гласят, что мы должны изучать вещи, которые никогда бы не использовали,
но важно то, что думают другие (тригонометрия, исчисление, вероятность,
так далее). Мы должны выполнять работу, которую ненавидим. Мы должны следовать религии. Мы должны убить в
название страны и религии. Мы должны поддерживать статус в обществе. Мы должны
работа в плотном графике. Мы должны покупать драгоценности или другие дорогие вещи только для того, чтобы покрасоваться. Мы
не должен суетиться. Мы должны быть забавными все время. Мы всегда должны жаловаться, но ничего не делать.
Мы не должны вести себя иначе. Мы должны одеваться по последней моде. Мы
не должны помогать незнакомцам. Мы должны смотреть свысока на тех, у кого не так много
деньги, как мы. Мы не должны следовать за своими мечтами. И мы не должны изменить расстояние
между железнодорожными путями!
Я приведу еще один пример, чтобы показать, как слепо мы следуем,
ни разу не задаваясь вопросом.
Возьмите сегодняшнюю дату. Его 29 -й декабря
а декабрь — последний (двенадцатый) месяц года. Не так ли? Но разве мы
когда-либо задавались вопросом, почему двенадцатый месяц называется декабрь, что буквально означает
десятый? Вместо этого двенадцатый месяц следует называть додекабрём. Любой, кто
изучал химию, понял бы, что я имею в виду. То же самое и с сентябрем,
Октябрь и ноябрь буквально означают седьмой, восьмой и девятый соответственно.
Не все слепо следуют этим правилам. Есть
многие, кто бросил вызов этим правилам и внес изменения. Махатма Ганди,
например, сделал ненасилие оружием для борьбы с самой могущественной империей из всех
раз! Мы называем таких людей героями. Такую группу героев я тоже встречал на 22 й
Август 2010. Это волонтеры Санкальп!
До Санкальпа хранение крови было работой врача. Люди были
не должен спасать жизни. Правительство и больницы были там для того же
цель ведь. Волонтерство было просто прошлым временем. Социальная служба была
другое занятие, которым люди зарабатывали на жизнь.

00 m
75 m