Π‘ΠΎΠ΄Π΅ΡΠΆΠ°Π½ΠΈΠ΅
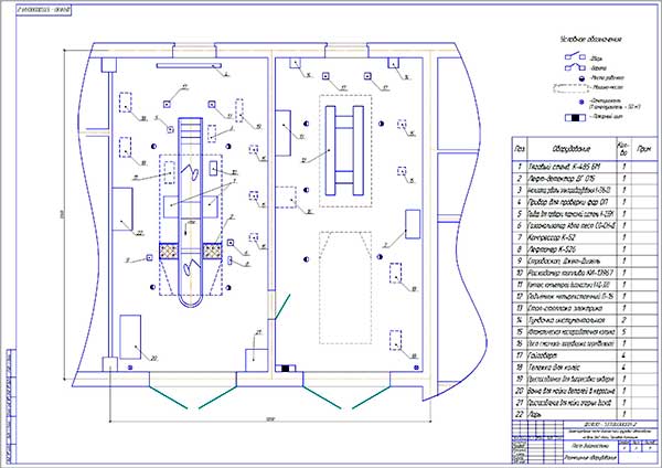
ΠΡΠ³Π°Π½ΠΈΠ·Π°ΡΠΈΡ ΡΠ°Π±ΠΎΡΡ ΠΏΠΎΡΡΠ° ΠΎΠ±ΡΠ΅ΠΉ Π΄ΠΈΠ°Π³Π½ΠΎΡΡΠΈΠΊΠΈ Π½Π° ΠΏΡΠ΅Π΄ΠΏΡΠΈΡΡΠΈΠΈ
Β
Π‘ΠΎΠ΄Π΅ΡΠΆΠ°Π½ΠΈΠ΅:
ΠΠ²Π΅Π΄Π΅Π½ΠΈΠ΅Β Β Β Β Β Β Β Β Β 3
1. Π₯Π°ΡΠ°ΠΊΡΠ΅ΡΠΈΡΡΠΈΠΊΠ°Β ΠΏΠΎΡΡΠ° ΠΎΠ±ΡΠ΅ΠΉ Π΄ΠΈΠ°Π³Π½ΠΎΡΡΠΈΠΊΠΈ Π½Π° ΠΠ’ΠΒ Β Β 7
2. ΠΡΠ³Π°Π½ΠΈΠ·Π°ΡΠΈΡΒ ΡΠ°Π±ΠΎΡΡΒ ΠΏΠΎΡΡΠ°Β
ΠΎΠ±ΡΠ΅ΠΉ Π΄ΠΈΠ°Π³Π½ΠΎΡΡΠΈΠΊΠΈ Π½Π° ΠΏΡΠ΅Π΄ΠΏΡΠΈΡΡΠΈΠΈΒ Β Β Β Β 8
3.Π Π°ΡΡΠ΅ΡΠ½ΠΎΒ ΡΠ΅Ρ
Π½ΠΎΠ»ΠΎΠ³ΠΈΡΠ΅ΡΠΊΠ°ΡΒ
ΠΏΡΠΎΠ΅ΠΊΡΠ°Β Β Β Β Β 19
4.ΠΠΏΡΠ΅Π΄Π΅Π»Π΅Π½ΠΈΠ΅Β Π³ΠΎΠ΄ΠΎΠ²ΠΎΠΉΒ
ΠΏΡΠΎΠ³ΡΠ°ΠΌΠΌΡΒ ΠΏΠΎΒ Π’ΠΒ ΠΈ Π΄ΠΈΠ°Π³Π½ΠΎΡΡΠΈΠΊΠΈ Π°Π²ΡΠΎΠΌΠΎΠ±ΠΈΠ»Π΅ΠΉ Π² Π·Π°Π΄Π°Π½Π½ΠΎΠΌ
ΠΠ’ΠΒ Β Β Β 25
5.Π Π°ΡΡΡΠ΅ΡΒ ΡΠΌΠ΅Π½Π½ΠΎΠΉΒ ΠΏΡΠΎΠ³ΡΠ°ΠΌΠΌΡΒ
ΠΏΠΎΒ Π²ΠΈΠ΄Π°ΠΌΒ Π’ΠΒ ΠΈΒ Π΄ΠΈΠ°Π³Π½ΠΎΡΡΠΈΠΊΠΈΒ
Π·Π°Π΄Π°Π½Π½ΡΠΌΒ ΠΠ’ΠΒ Β Β Β Β Β Β Β Β Β 27
6.ΠΠΏΡΠ΅Π΄Π΅Π»Π΅Π½ΠΈΠ΅Β ΡΡΡΠ΄ΠΎΠ΅ΠΌΠΊΠΎΡΡΠΈΒ
Π²ΠΎΠ·Π΄Π΅ΠΉΡΡΠ²ΠΈΠΉΒ Β Β 28
7. ΠΠΏΡΠ΅Π΄Π΅Π»Π΅Π½ΠΈΠ΅Β ΠΎΠ±ΡΠ΅ΠΉΒ Π³ΠΎΠ΄ΠΎΠ²ΠΎΠΉΒ
ΡΡΡΠ΄ΠΎΠ΅ΠΌΠΊΠΎΡΡΠΈΒ ΡΠ΅Ρ
Π½ΠΈΡΠ΅ΡΠΊΠΈΡ
Β
Π·Π°Π΄Π°Π½Π½ΠΎΠ³ΠΎ ΠΠ’ΠΒ Β Β Β Β Β Β Β 31
8. ΠΠΏΡΠ΅Π΄Π΅Π»Π΅Π½ΠΈΠ΅Β ΠΊΠΎΠ»ΠΈΡΠ΅ΡΡΠ²Π°Β
ΡΠ°Π±ΠΎΡΠΈΡ
Β Π½Π°Β ΠΏΠΎΡΡΡΒ Π΄ΠΈΠ°Π³Π½ΠΎΡΡΠΈΠΊΠΈΒ Β
9. ΠΠΎΠ΄Π±ΠΎΡΒ ΡΠ΅Ρ
Π½ΠΎΠ»ΠΎΠ³ΠΈΡΠ΅ΡΠΊΠΎΠ³ΠΎΒ
ΠΈΒ ΡΠ°ΡΡΡΡΒ ΠΏΠ»ΠΎΡΠ°Π΄ΠΈΒ
ΡΡΠ°ΡΡΠΊΠ°Β Β Β Β Β Β Β 37
10. Π Π°ΡΡΠ΅Ρ ΡΡΠΎΠ²Π½Ρ ΠΌΠΈΡ
Π°Π½ΠΈΠ·Π°ΡΠΈΠΈ ΠΏΡΠΎΠΈΠ·Π²ΠΎΠ΄ΡΡΠ²Π΅Π½Π½ΡΡ
ΠΏΡΠΎΡΠ΅ΡΡΠΎΠ² Π½Π° ΠΏΠΎΡΡΠ° ΠΎΠ±ΡΠ΅ΠΉ Π΄ΠΈΠ°Π³Π½ΠΎΡΡΠΈΠΊΠΈΒ Β Β Β Β Β Β Β 38
11.
ΠΡ
ΡΠ°Π½Π°Β ΡΡΡΠ΄Π°Β Β Β Β Β Β Β Β 39
ΠΠ°ΠΊΠ»ΡΡΠ΅Π½ΠΈΠ΅Β Β Β Β Β Β Β Β Β 45
ΠΠΈΡΠ΅ΡΠ°ΡΡΡΠ°Β Β Β Β Β Β Β Β Β 46
Β
Β
Β
Β
Β
Β
Β
Β
ΠΠ²Π΅Π΄Π΅Π½ΠΈΠ΅.
ΠΠ²ΡΠΎΠΌΠΎΠ±ΠΈΠ»ΡΠ½ΡΠΉ ΡΡΠ°Π½ΡΠΏΠΎΡΡ ΡΠ²Π»ΡΠ΅ΡΡΡ Π½Π°ΠΈΠ±ΠΎΠ»Π΅Π΅
ΠΌΠ°ΡΡΠΎΠ²ΡΠΌ Π²ΠΈΠ΄ΠΎΠΌ ΡΡΠ°Π½ΡΠΏΠΎΡΡΠ°, ΠΎΡΠΎΠ±Π΅Π½Π½ΠΎ ΡΡΡΠ΅ΠΊΡΠΈΠ²Π½ΡΠΌ
ΠΈ ΡΠ΄ΠΎΠ±Π½ΡΠΌ ΠΏΡΠΈ ΠΏΠ΅ΡΠ΅Π²ΠΎΠ·ΠΊΠ΅ Π³ΡΡΠ·ΠΎΠ² ΠΈ ΠΏΠ°ΡΡΠ°ΠΆΠΈΡΠΎΠ². ΠΠ»Π°Π²Π½ΠΎΠΉ Π·Π°Π΄Π°ΡΠ΅ΠΉ Π°Π²ΡΠΎΠ±ΡΡΠ½ΠΎΠ³ΠΎ ΡΡΠ°Π½ΡΠΏΠΎΡΡΠ°
ΡΠ²Π»ΡΠ΅ΡΡΡ ΠΏΠΎΠ»Π½ΠΎΠ΅, ΡΠ²ΠΎΠ΅Π²ΡΠ΅ΠΌΠ΅Π½Π½ΠΎΠ΅ ΠΈ ΠΊΠ°ΡΠ΅ΡΡΠ²Π΅Π½Π½ΠΎΠ΅
ΡΠ΄ΠΎΠ²Π»Π΅ΡΠ²ΠΎΡΠ΅Π½ΠΈΠ΅ ΠΏΠΎΡΡΠ΅Π±Π½ΠΎΡΡΠ΅ΠΉ Π½Π°ΡΠΎΠ΄Π½ΠΎΠ³ΠΎ
Ρ
ΠΎΠ·ΡΠΉΡΡΠ²Π° ΠΈ Π½Π°ΡΠ΅Π»Π΅Π½ΠΈΡ ΠΏΡΠΈ Π²ΠΎΠ·ΠΌΠΎΠΆΠ½ΠΎ ΠΌΠ°Π»ΡΡ
ΠΊΠ°ΠΏΠΈΡΠ°Π»ΠΎΠ²Π»ΠΎΠΆΠ΅Π½ΠΈΡΡ
Π½Π° ΠΌΠ°ΡΠ΅ΡΠΈΠ°Π»ΡΠ½ΡΠ΅ ΡΠ΅ΡΡΡΡΡ
ΠΈ ΠΎΡΠ³Π°Π½ΠΈΠ·Π°ΡΠΈΡ ΠΏΡΠΎΠΈΠ·Π²ΠΎΠ΄ΡΡΠ²Π°.
Π‘ΡΡΠΎΠΈΡΠ΅Π»ΡΡΡΠ²ΠΎ ΠΈ ΡΠ΅ΠΊΠΎΠ½ΡΡΡΡΠΊΡΠΈΡ ΠΠ’Π Π΄ΠΎΠ»ΠΆΠ½Ρ ΠΎΡΡΡΠ΅ΡΡΠ²Π»ΡΡΡΡΡ Ρ ΡΡΠ΅ΡΠΎΠΌ
Π½ΠΎΠ²ΡΡ
ΠΏΡΠΎΠ³ΡΠ΅ΡΡΠΈΠ²Π½ΡΡ
ΡΠΎΡΠΌ ΠΈ ΠΌΠ΅ΡΠΎΠ΄ΠΎΠ² ΡΠ΅Ρ
Π½ΠΈΡΠ΅ΡΠΊΠΎΠ³ΠΎ
ΠΎΠ±ΡΠ»ΡΠΆΠΈΠ²Π°Π½ΠΈΡ ΠΈ ΡΠ΅ΠΌΠΎΠ½ΡΠ° ΠΏΠΎΠ΄Π²ΠΈΠΆΠ½ΠΎΠ³ΠΎ ΡΠΎΡΡΠ°Π²Π°,
ΠΏΠΎΠ²ΡΡΠ΅Π½ΠΈΡ ΡΡΠΎΠ²Π½Ρ ΠΌΠ΅Ρ
Π°Π½ΠΈΠ·Π°ΡΠΈΠΈ ΠΏΡΠΎΠΈΠ·Π²ΠΎΠ΄ΡΡΠ²Π΅Π½Π½ΡΡ
ΠΏΡΠΎΡΠ΅ΡΡΠΎΠ², ΠΈΡΠΏΠΎΠ»ΡΠ·ΠΎΠ²Π°Π½ΠΈΡ ΡΠΎΠ²ΡΠ΅ΠΌΠ΅Π½Π½ΡΡ
ΡΡΠ΅Π΄ΡΡΠ² Π΄ΠΈΠ°Π³Π½ΠΎΡΡΠΈΠΊΠΈ ΡΠ΅Ρ
Π½ΠΈΡΠ΅ΡΠΊΠΎΠ³ΠΎ ΡΠΎΡΡΠΎΡΠ½ΠΈΡ
Π°Π²ΡΠΎΠΌΠΎΠ±ΠΈΠ»Π΅ΠΉ, Π½Π°ΡΡΠ½ΠΎΠΉ ΠΎΡΠ³Π°Π½ΠΈΠ·Π°ΡΠΈΠΈ ΡΡΡΠ΄Π°,
Π½Π°ΠΈΠ±ΠΎΠ»Π΅Π΅ ΡΠ°ΡΠΈΠΎΠ½Π°Π»ΡΠ½ΡΡ
Ρ ΡΠ΅Ρ
Π½ΠΎΠ»ΠΎΠ³ΠΈΡΠ΅ΡΠΊΠΎΠΉ
ΠΈ ΡΠΊΠΎΠ½ΠΎΠΌΠΈΡΠ΅ΡΠΊΠΎΠΉ ΡΠΎΡΠ΅ΠΊ Π·ΡΠ΅Π½ΠΈΡ ΠΏΠ»Π°Π½ΠΈΡΠΎΠ²ΠΎΡΠ½ΡΡ
ΡΠ΅ΡΠ΅Π½ΠΈΠΉ ΠΠ’Π.
ΠΡΠΎΡ ΠΊΡΡΠ³ Π²ΠΎΠΏΡΠΎΡΠΎΠ² ΠΏΡΠΈΡ
ΠΎΠ΄ΠΈΡΡΡ ΡΠ΅ΡΠ°ΡΡ
Π½Π° ΠΏΡΠ°ΠΊΡΠΈΠΊΠ΅ ΠΈΠ½ΠΆΠ΅Π½Π΅ΡΠ½ΠΎ-ΡΠ΅Ρ
Π½ΠΈΡΠ΅ΡΠΊΠΈΠΌ ΡΠ°Π±ΠΎΡΠ½ΠΈΠΊΠ°ΠΌ
Π°Π²ΡΠΎΠΌΠΎΠ±ΠΈΠ»ΡΠ½ΠΎΠ³ΠΎ ΡΡΠ°Π½ΡΠΏΠΎΡΡΠ° ΠΏΡΠΈ ΡΠ°Π·ΡΠ°Π±ΠΎΡΠΊΠ΅ ΠΈ ΡΠ΅ΠΊΠΎΠ½ΡΡΡΡΠΊΡΠΈΠΈ, ΠΊΠ°ΠΊ ΠΎΡΠ΄Π΅Π»ΡΠ½ΡΡ
ΠΏΡΠΎΠΈΠ·Π²ΠΎΠ΄ΡΡΠ²Π΅Π½Π½ΡΡ
ΡΡΠ°ΡΡΠΊΠΎΠ², ΡΠ°ΠΊ ΠΈ Π°Π²ΡΠΎΡΡΠ°Π½ΡΠΏΠΎΡΡΠ½ΡΡ
ΠΏΡΠ΅Π΄ΠΏΡΠΈΡΡΠΈΠΉ
Π² ΡΠ΅Π»ΠΎΠΌ.
Π£ΡΠΏΠ΅ΡΠ½ΠΎΠ΅ ΡΠ΅ΡΠ΅Π½ΠΈΠ΅ ΡΠΊΠ°Π·Π°Π½Π½ΡΡ
Π·Π°Π΄Π°Ρ
ΡΡΠ΅Π±ΡΠ΅Ρ Π·Π½Π°Π½ΠΈΠΉ ΡΠ΅Ρ
Π½ΠΈΡΠ΅ΡΠΊΠΎΠ³ΠΎ ΠΏΡΠΎΠ΅ΠΊΡΠΈΡΠΎΠ²Π°Π½ΠΈΡ
ΠΠ’Π, ΠΎΡΠ½ΠΎΠ²ΠΎΠΉ ΠΊΠΎΡΠΎΡΠΎΠ³ΠΎ ΡΠ²Π»ΡΠ΅ΡΡΡ ΡΠ΅Ρ
Π½ΠΎΠ»ΠΎΠ³ΠΈΡΠ΅ΡΠΊΠΈΠΉ
ΡΠ°ΡΡΠ΅Ρ ΠΈ ΠΏΠ»Π°Π½ΠΈΡΠΎΠ²ΠΎΡΠ½ΡΠ΅ ΡΠ΅ΡΠ΅Π½ΠΈΡ ΠΏΡΠ΅Π΄ΠΏΡΠΈΡΡΠΈΠΉ.
Π ΠΏΡΠΎΡΠ΅ΡΡΠ΅ ΡΠΊΡΠΏΠ»ΡΠ°ΡΠ°ΡΠΈΠΈ Π°Π²ΡΠΎΠΌΠΎΠ±ΠΈΠ»Ρ Π΅Π³ΠΎ
ΡΠ°Π±ΠΎΡΠΈΠ΅ ΡΠ²ΠΎΠΉΡΡΠ²Π° ΠΏΠΎΡΡΠ΅ΠΏΠ΅Π½Π½ΠΎ ΡΡ
ΡΠ΄ΡΠ°ΡΡΡΡ
ΠΈΠ·-Π·Π° ΠΈΠ·Π½Π°ΡΠΈΠ²Π°Π½ΠΈΡ Π΄Π΅ΡΠ°Π»Π΅ΠΉ, Π° ΡΠ°ΠΊΠΆΠ΅ ΠΊΠΎΡΡΠΎΠ·ΠΈΠΈ
ΠΈ ΡΡΡΠ°Π»ΠΎΡΡΠΈ ΠΌΠ°ΡΠ΅ΡΠΈΠ°Π»Π°, ΠΈΠ· ΠΊΠΎΡΠΎΡΠΎΠ³ΠΎ ΠΎΠ½ΠΈ
ΠΈΠ·Π³ΠΎΡΠΎΠ²Π»Π΅Π½Ρ. Π Π°Π²ΡΠΎΠΌΠΎΠ±ΠΈΠ»Π΅ ΠΏΠΎΡΠ²Π»ΡΡΡΡΡ
ΠΎΡΠΊΠ°Π·Ρ ΠΈ Π½Π΅ΠΈΡΠΏΡΠ°Π²Π½ΠΎΡΡΠΈ, ΠΊΠΎΡΠΎΡΡΠ΅ ΡΡΡΡΠ°Π½ΡΡΡ
ΠΏΡΠΈ ΡΠ΅Ρ
Π½ΠΈΡΠ΅ΡΠΊΠΎΠΌ ΠΎΠ±ΡΠ»ΡΠΆΠΈΠ²Π°Π½ΠΈΠΈ (Π’Π) ΠΈ ΡΠ΅ΠΌΠΎΠ½ΡΠ΅.
Β
Β
ΠΡΠ΅ Π²ΠΈΠ΄Ρ Π’Π ΠΈ Π’Π ΠΏΡΠΎΠΈΠ·Π²ΠΎΠ΄ΡΡΡΡ Π΄Π»Ρ ΠΏΠΎΠ΄Π΄Π΅ΡΠΆΠ°Π½ΠΈΡ
ΠΈΡΠΏΡΠ°Π²Π½ΠΎΡΡΠΈ, Π³ΠΎΡΠΎΠ²Π½ΠΎΡΡΠΈ ΠΊ ΡΠ°Π±ΠΎΡΠ΅ ΠΈ Ρ
ΠΎΡΠΎΡΠ΅Π³ΠΎ
Π²Π½Π΅ΡΠ½Π΅Π³ΠΎ Π²ΠΈΠ΄Π° Π°Π²ΡΠΎΠΌΠΎΠ±ΠΈΠ»Π΅ΠΉ, Π΄Π»Ρ ΡΠΌΠ΅Π½ΡΡΠ΅Π½ΠΈΡ
ΠΈΠ½ΡΠ΅Π½ΡΠΈΠ²Π½ΠΎΡΡΠΈ ΠΈΡ
ΠΈΠ·Π½Π°ΡΠΈΠ²Π°Π½ΠΈΡ, ΠΏΡΠ΅Π΄ΡΠΏΡΠ΅ΠΆΠ΄Π΅Π½ΠΈΡ
Π½Π΅ΠΈΡΠΏΡΠ°Π²Π½ΠΎΡΡΠ΅ΠΉ ΠΈ ΠΏΡΠΎΠ΄Π»Π΅Π½ΠΈΠ΅ ΡΡΠΎΠΊΠ° ΡΠ»ΡΠΆΠ±Ρ Π΄ΠΎ ΡΠ΅ΠΌΠΎΠ½ΡΠ°, Π΄Π»Ρ Π²ΡΡΠ²Π»Π΅Π½ΠΈΡ Π²ΠΎΠ·Π½ΠΈΠΊΡΠΈΡ
Π½Π΅ΠΈΡΠΏΡΠ°Π²Π½ΠΎΡΡΠ΅ΠΉ, Ρ ΡΠ΅Π»ΡΡ ΡΠ²ΠΎΠ΅Π²ΡΠ΅ΠΌΠ΅Π½Π½ΠΎΠ³ΠΎ
ΠΈΡ
ΡΡΡΡΠ°Π½Π΅Π½ΠΈΠ΅.
Π Π½Π°ΡΡΠΎΡΡΠ΅Π΅ Π²ΡΠ΅ΠΌΡ Π² ΠΎΡΠ½ΠΎΠ²Ρ Π’Π ΠΏΠΎΠ»ΠΎΠΆΠ΅Π½
ΠΌΠ΅ΡΠΎΠ΄ Π΄ΠΈΠ°Π³Π½ΠΎΡΡΠΈΡΠΎΠ²Π°Π½ΠΈΡ Π°Π²ΡΠΎΠΌΠΎΠ±ΠΈΠ»Π΅ΠΉ (ΠΊΠΎΠ½ΡΡΠΎΠ»Ρ
ΡΠ΅Ρ
Π½ΠΈΡΠ΅ΡΠΊΠΎΠ³ΠΎ ΡΠΎΡΡΠΎΡΠ½ΠΈΡ ΠΏΡΠΎΠΈΡΡ
ΠΎΠ΄ΠΈΡ Ρ
ΠΏΠΎΠΌΠΎΡΡΡ ΠΏΡΠΈΠ±ΠΎΡΠΎΠ² Π±Π΅Π· ΠΏΡΠΈΠΌΠ΅Π½Π΅Π½ΠΈΡ Π΅Π³ΠΎ ΡΠ°Π·Π±ΠΎΡΠΊΠΈ), Ρ ΠΎΡΡΡΠ΅ΡΡΠ²Π»Π΅Π½ΠΈΠ΅ΠΌ ΡΠ΅Π³ΡΠ»ΠΈΡΠΎΠ²ΠΎΡΠ½ΡΡ
ΠΈ ΡΠ΅ΠΌΠΎΠ½ΡΠ½ΡΡ
ΡΠ°Π±ΠΎΡ ΠΏΠΎ ΡΠ°ΠΊΡΠΈΡΠ΅ΡΠΊΠΎΠΉ ΠΏΠΎΡΡΠ΅Π±Π½ΠΎΡΡΠΈ.
Β
Π¦Π΅Π»Ρ ΠΊΡΡΡΠΎΠ²ΠΎΠ³ΠΎ ΠΏΡΠΎΠ΅ΠΊΡΠ°:
1.Β Π£Π³Π»ΡΠ±ΠΈΡΡ ΠΈ Π·Π°ΠΊΡΠ΅ΠΏΠΈΡΡ ΡΠ΅ΠΎΡΠ΅ΡΠΈΡΠ΅ΡΠΊΠΈΠ΅
ΠΈ ΠΏΡΠ°ΠΊΡΠΈΡΠ΅ΡΠΊΠΈΠ΅ Π·Π½Π°Π½ΠΈΡ ΠΏΠΎ ΠΠ.02 ΠΡΠ³Π°Π½ΠΈΠ·Π°ΡΠΈΡ
Π΄Π΅ΡΡΠ΅Π»ΡΠ½ΠΎΡΡΠΈ ΠΊΠΎΠ»Π»Π΅ΠΊΡΠΈΠ²Π° ΠΈΡΠΏΠΎΠ»Π½ΠΈΡΠ΅Π»Π΅ΠΉ
ΠΠΠ 02.01 Π£ΠΏΡΠ°Π²Π»Π΅Π½ΠΈΠ΅ Π΄Π΅ΡΡΠ΅Π»ΡΠ½ΠΎΡΡΡΡ ΠΊΠΎΠ»Π»Π΅ΠΊΡΠΈΠ²Π° ΠΈΡΠΏΠΎΠ»Π½ΠΈΡΠ΅Π»Π΅ΠΉ.
2. Π£Π³Π»ΡΠ±ΠΈΡΡΒ ΠΈΒ ΡΠΈΡΡΠ΅ΠΌΠ°ΡΠΈΠ·ΠΈΡΠΎΠ²Π°ΡΡΒ
Π·Π½Π°Π½ΠΈΡΒ ΠΏΠΎΒ ΡΠ΅ΡΠ΅Π½ΠΈΡΒ Π²ΠΎΠΏΡΠΎΡΠΎΠ²Β ΠΎΡΠ³
ΠΏΡΠΎΠΈΠ·Π²ΠΎΠ΄ΡΡΠ²Π΅Π½Π½ΡΡ
ΠΏΠΎΠ΄ΡΠ°Π·Π΄Π΅Π»Π΅Π½ΠΈΠΉ.
3. Π£Π³Π»ΡΠ±ΠΈΡΡΒ ΠΈΒ Π·Π°ΠΊΡΠ΅ΠΏΠΈΡΡΒ Π½Π°Π²ΡΠΊΠΈΒ
ΠΏΠΎΒ ΡΠ°Π·ΡΠ°Π±ΠΎΡΠΊΠ΅Β ΠΊΠΎΠ½ΡΡΡΡΠΊΡΠΈΠΉΒ
ΡΠΎΡΡΠ°Π²Π»Π΅Π½ΠΈΡΒ ΡΠ΅Ρ
Π½ΠΎΠ»ΠΎΠ³ΠΈΡΠ΅ΡΠΊΠΈΡ
ΠΊΠ°ΡΡ Π½Π° ΡΠ΅Ρ
Π½ΠΈΡΠ΅ΡΠΊΠΎΠ΅ ΠΎΠ±ΡΠ»ΡΠΆΠΈΠ²Π°Π½ΠΈΠ΅
ΡΠ·Π»ΠΎΠ², ΠΌΠ΅Ρ
Π°Π½ΠΈΠ·ΠΌΠΎΠ² ΠΈ Π°Π³ΡΠ΅Π³Π°ΡΠΎΠ² Π°Π²ΡΠΎΠΌΠΎΠ±ΠΈΠ»Ρ.
4.ΠΡΠΈΠ²ΠΈΡΡΒ Π½Π°Π²ΡΠΊΠΈΒ
ΠΏΡΠΈΠ½ΡΡΠΈΡΒ ΡΠ΅ΡΠ΅Π½ΠΈΡΒ ΠΈΒ Π΅Π³ΠΎΒ
ΠΎΠ±ΠΎΡΠ½ΠΎΠ²Π°Π½ΠΈΡΒ Π²Β ΡΠΎΠΎΡΠ²Π΅ΡΡΡΠ²ΠΈΠΈΒ ΡΒ
ΡΠ΅ΠΊΠΎΠΌΠ΅Π½Π΄Π°ΡΠΈΡΠΌΠΈΒ Π½ΠΎΡΠΌΠ°ΡΠΈΠ²Π½ΠΎΠΉΒ ΠΈΒ
ΡΠΏΡΠ°Π²ΠΎΡΠ½ΠΎΠΉΒ Π»ΠΈΡΠ΅ΡΠ°ΡΡΡΡ.
ΠΡΠ½ΠΎΠ²Π½ΡΠ΅ Π·Π°Π΄Π°ΡΠΈ:
— ΡΠΎΡΠΌΠΈΡΠΎΠ²Π°Π½ΠΈΠ΅ Π½Π° Π°Π²ΡΠΎΠΌΠΎΠ±ΠΈΠ»ΡΠ½ΠΎΠΌ ΡΡΠ°Π½ΡΠΏΠΎΡΡΠ΅
ΡΠΈΡΠΎΠΊΠΎΠ³ΠΎ ΡΠ»ΠΎΡ ΡΠ°ΡΡΠ½ΡΡ
ΡΠΎΠ±ΡΡΠ²Π΅Π½Π½ΠΈΠΊΠΎΠ²,
Π·Π°ΠΈΠ½ΡΠ΅ΡΠ΅ΡΠΎΠ²Π°Π½Π½ΡΡ
Π² ΡΡΡΠ΅ΠΊΡΠΈΠ²Π½ΠΎΠΌ ΠΈΡΠΏΠΎΠ»ΡΠ·ΠΎΠ²Π°Π½ΠΈΠΈ
ΠΏΡΠΈΠ½Π°Π΄Π»Π΅ΠΆΠ°ΡΠΈΡ
ΠΈΠΌ ΡΡΠ΅Π΄ΡΡΠ² ΠΏΡΠΎΠΈΠ·Π²ΠΎΠ΄ΡΡΠ²Π°;
— ΡΡΠΈΠΌΡΠ»ΠΈΡΠΎΠ²Π°Π½ΠΈΠ΅ ΠΊΠΎΠ½ΠΊΡΡΠ΅Π½ΡΠΈΠΈ, ΡΠ°Π·ΡΡΡΠ΅Π½ΠΈΠ΅
Π³ΠΎΡΡΠ΄Π°ΡΡΡΠ²Π΅Π½Π½ΠΎΠΉ ΠΌΠΎΠ½ΠΎΠΏΠΎΠ»ΠΈΠΈ Π½Π° Π°Π²ΡΠΎΠΌΠΎΠ±ΠΈΠ»ΡΠ½ΠΎΠΌ
ΡΡΠ°Π½ΡΠΏΠΎΡΡΠ΅, ΠΏΠΎΠ²ΡΡΠ΅Π½ΠΈΠ΅ ΠΊΠΎΠ½ΠΊΡΡΠ΅Π½ΡΠΎΡΠΏΠΎΡΠΎΠ±Π½ΠΎΡΡΠΈ
Π°Π²ΡΠΎΠΌΠΎΠ±ΠΈΠ»ΡΠ½ΠΎΠ³ΠΎ ΡΡΠ°Π½ΡΠΏΠΎΡΡΠ° Π² ΡΠ΅Π»ΠΎΠΌ;
— ΡΠΎΠΊΡΠ°ΡΠ΅Π½ΠΈΠ΅ Π½Π΅ΠΏΡΠΎΠΈΠ·Π²ΠΎΠ΄ΡΡΠ²Π΅Π½Π½ΡΡ
ΠΈΠ·Π΄Π΅ΡΠΆΠ΅ΠΊ
ΠΈ Π½Π΅ΡΠ°ΡΠΈΠΎΠ½Π°Π»ΡΠ½ΡΡ
ΠΏΠ΅ΡΠ΅Π²ΠΎΠ·ΠΎΠΊ Π½Π° Π°Π²ΡΠΎΠΌΠΎΠ±ΠΈΠ»ΡΠ½ΠΎΠΌ
ΡΡΠ°Π½ΡΠΏΠΎΡΡΠ΅, ΠΎΠ±ΡΠ΅Π΅ ΠΏΠΎΠ²ΡΡΠ΅Π½ΠΈΠ΅ ΡΠΊΠΎΠ½ΠΎΠΌΠΈΡΠ΅ΡΠΊΠΎΠΉ
ΡΡΡΠ΅ΠΊΡΠΈΠ²Π½ΠΎΡΡΠΈ Π΅Π³ΠΎ ΡΠ°Π±ΠΎΡΡ;
— ΠΏΠΎΠ²ΡΡΠ΅Π½ΠΈΠ΅ ΠΊΠ°ΡΠ΅ΡΡΠ²Π° ΠΈ ΡΠ°ΡΡΠΈΡΠ΅Π½ΠΈΠ΅ Π½ΠΎΠΌΠ΅Π½ΠΊΠ»Π°ΡΡΡΡ
ΡΡΠ°Π½ΡΠΏΠΎΡΡΠ½ΡΡ
ΠΈ ΡΠΊΡΠΏΠ΅Π΄ΠΈΡΠΎΡΡΠΊΠΈΡ
ΡΡΠ»ΡΠ³,
ΠΏΡΠ΅Π΄ΡΡΠ°Π²Π»ΡΠ΅ΠΌΡΡ
ΠΊΠ»ΠΈΠ΅Π½ΡΡΡΠ΅.
— ΡΡΠ°ΡΡΠΈΠ΅ Π² ΡΠ°Π·ΡΠ°Π±ΠΎΡΠΊΠ΅ ΡΠ΅Ρ
Π½ΠΈΡΠ΅ΡΠΊΠΈΡ
ΡΡΠ΅Π±ΠΎΠ²Π°Π½ΠΈΠΉ
ΠΊ ΡΡΠ°Π½ΡΠΏΠΎΡΡΠ½ΡΠΌ ΡΡΠ΅Π΄ΡΡΠ²Π°ΠΌ ΠΈ, ΠΎΠ±ΠΎΡΡΠ΄ΠΎΠ²Π°Π½ΠΈΡ
ΠΈ ΠΌΠ°ΡΠ΅ΡΠΈΠ°Π»Π°ΠΌ:
— ΡΠ°Π·ΡΠ°Π±ΠΎΡΠΊΠ° ΠΈ ΡΠ΅Π°Π»ΠΈΠ·Π°ΡΠΈΡ ΡΠΎΠ²ΠΌΠ΅ΡΡΠ½ΠΎ Ρ
Π·Π°ΠΈΠ½ΡΠ΅ΡΠ΅ΡΠΎΠ²Π°Π½Π½ΡΠΌΠΈ ΠΎΡΠ³Π°Π½Π°ΠΌΠΈ ΠΈΡΠΏΠΎΠ»Π½ΠΈΡΠ΅Π»ΡΠ½ΠΎΠΉ
Π²Π»Π°ΡΡΠΈ ΠΈ ΡΡΠ±ΡΠ΅ΠΊΡΠΎΠ² Π ΠΎΡΡΠΈΠΉΡΠΊΠΎΠΉ Π€Π΅Π΄Π΅ΡΠ°ΡΠΈΠΈ
ΠΌΠ΅Ρ ΠΏΠΎ ΠΏΠΎΠ²ΡΡΠ΅Π½ΠΈΡ Π±Π΅Π·ΠΎΠΏΠ°ΡΠ½ΠΎΡΡΠΈ Π΄ΠΎΡΠΎΠ΄Π½ΠΎΠ³ΠΎ
Π΄Π²ΠΈΠΆΠ΅Π½ΠΈΡ ΠΈ ΡΠ½ΠΈΠΆΠ΅Π½ΠΈΡ Π²ΡΠ΅Π΄Π½ΠΎΠ³ΠΎ Π²ΠΎΠ·Π΄Π΅ΠΉΡΡΠ²ΠΈΡ
Π°Π²ΡΠΎΠΌΠΎΠ±ΠΈΠ»ΡΠ½ΠΎΠ³ΠΎ ΡΡΠ°Π½ΡΠΏΠΎΡΡΠ° Π½Π° ΠΎΠΊΡΡΠΆΠ°ΡΡΡΡ
ΡΡΠ΅Π΄Ρ;
— ΠΊΡΡΠΈΡΠΎΠ²Π°Π½ΠΈΠ΅ ΠΌΠ΅ΠΆΠ΄ΡΠ½Π°ΡΠΎΠ΄Π½ΡΡ
ΠΎΡΠ½ΠΎΡΠ΅Π½ΠΈΠΉ
Π² ΠΎΠ±Π»Π°ΡΡΠΈ Π°Π²ΡΠΎΠΌΠΎΠ±ΠΈΠ»ΡΠ½ΠΎΠ³ΠΎ ΡΡΠ°Π½ΡΠΏΠΎΡΡΠ°
ΠΈ ΠΌΠ½ΠΎΠ³ΠΎΠ΅ Π΄ΡΡΠ³ΠΎΠ΅.
Β
Β
Β
Β
Β
Β
Β
Β
Β
Β
Β
Β
Β
Β
Β
Β
Β
Β
Β
1. Π₯Π°ΡΠ°ΠΊΡΠ΅ΡΠΈΡΡΠΈΠΊΠ°Β ΠΏΠΎΡΡΠ° ΠΎΠ±ΡΠ΅ΠΉ Π΄ΠΈΠ°Π³Π½ΠΎΡΡΠΈΠΊΠΈ Π½Π°
ΠΠ’Π
ΠΠ’Π Π² Π΄Π°Π½Π½ΠΎΠΌ ΡΠ»ΡΡΠ°Π΅ ΡΠ²Π»ΡΠ΅ΡΡΡ ΠΏΡΠ΅Π΄ΠΏΡΠΈΡΡΠΈΠ΅ΠΌ
ΠΊΠΎΠΌΠΏΠ»Π΅ΠΊΡΠ½ΠΎΠ³ΠΎ ΡΠΈΠΏΠ°, ΡΠ°ΠΊ ΠΊΠ°ΠΊ ΠΎΠΊΠ°Π·ΡΠ²Π°Π΅Ρ
ΡΡΠΎΡΠΎΠ½Π½ΠΈΠΌ ΠΎΡΠ³Π°Π½ΠΈΠ·Π°ΡΠΈΡΠΌ ΡΡΠ°Π½ΡΠΏΠΎΡΡΠ½ΡΠ΅
ΡΡΠ»ΡΠ³ΠΈ, ΡΠ²ΡΠ·Π°Π½Π½ΡΠ΅ Ρ ΠΏΠ΅ΡΠ΅Π²ΠΎΠ·ΠΊΠ°ΠΌΠΈ Π³ΡΡΠ·ΠΎΠ²
ΡΠ°Π·Π»ΠΈΡΠ½ΠΎΠ³ΠΎ Ρ
Π°ΡΠ°ΠΊΡΠ΅ΡΠ° ΠΈ ΠΏΠ°ΡΡΠ°ΠΆΠΈΡΠΎΠ², Π·Π°Π½ΠΈΠΌΠ°Π΅ΡΡΡ ΠΎΠ±ΡΠ»ΡΠΆΠΈΠ²Π°Π½ΠΈΠ΅ΠΌ ΠΈ ΡΠ΅ΠΌΠΎΠ½ΡΠΎΠΌ ΡΡΠ°Π½ΡΠΏΠΎΡΡΠ°,
Π° ΡΠ°ΠΊΠΆΠ΅ Π΅Π³ΠΎ Ρ
ΡΠ°Π½Π΅Π½ΠΈΠ΅ΠΌ.
ΠΠΎΠ΄Π²ΠΈΠΆΠ½ΠΎΠΉ ΡΠΎΡΡΠ°Π² ΠΏΡΠ΅Π΄ΠΏΡΠΈΡΡΠΈΡ ΠΏΡΠ΅Π΄ΡΡΠ°Π²Π»Π΅Π½ Π°Π²ΡΠΎΠ±ΡΡΠ°ΠΌΠΈ.
ΠΠ° Π±Π°Π»Π°Π½ΡΠ΅ Π°Π²ΡΠΎΡ
ΠΎΠ·ΡΠΉΡΡΠ²Π°
Π΄Π°Π½Π½ΠΎΠ³ΠΎ ΠΏΡΠ΅Π΄ΠΏΡΠΈΡΡΠΈΡ ΡΠΈΡΠ»ΠΈΡΡΡ 205 Π΅Π΄ΠΈΠ½ΠΈΡ
ΡΠ΅Ρ
Π½ΠΈΠΊΠΈ, ΠΊΠΎΡΠΎΡΡΠ΅ ΠΈΠΌΠ΅ΡΡ ΠΏΡΠΎΠ±Π΅Π³ Ρ Π½Π°ΡΠ°Π»Π°
ΡΠΊΡΠΏΠ»ΡΠ°ΡΠ°ΡΠΈΠΈ ΡΠ²ΡΡΠ΅ 0,75 Π΄ΠΎ 1.
Π‘ΡΠ΅Π΄Π½Π΅ΡΡΡΠΎΡΠ½ΡΠΉ ΠΏΡΠΎΠ±Π΅Π³ Π°Π²ΡΠΎΠ±ΡΡΠΎΠ² Π°Π²ΡΠΎΠΌΠΎΠ±ΠΈΠ»Π΅ΠΉ
ΠΠ’Π ΡΠΎΡΡΠ°Π²Π»ΡΠ΅Ρ 230 ΠΊΠΌ.
ΠΠΎΠ»ΠΈΡΠ΅ΡΡΠ²ΠΎ ΡΠ°Π±ΠΎΡΠΈΡ
Π΄Π½Π΅ΠΉ Π² Π³ΠΎΠ΄Ρ Π΄Π»Ρ ΠΏΡΠ΅Π΄ΠΏΡΠΈΡΡΠΈΡ
Π°Π²ΡΠΎΠΌΠΎΠ±ΠΈΠ»ΡΠ½ΠΎΠ³ΠΎ ΡΡΠ°Π½ΡΠΏΠΎΡΡΠ° ΡΠΎΡΡΠ°Π²Π»ΡΠ΅Ρ 302 Π΄Π½Π΅ΠΉ.
ΠΠΎΠ΄Π²ΠΈΠΆΠ½ΠΎΠΉ ΡΠΎΡΡΠ°Π² ΠΏΡΠ΅Π΄ΠΏΡΠΈΡΡΠΈΡ ΡΠΊΡΠΏΠ»ΡΠ°ΡΠΈΡΡΠ΅ΡΡΡ Π² ΡΠΌΠ΅ΡΠ΅Π½Π½ΠΎΠΉ ΠΏΡΠΈΡΠΎΠ΄Π½ΠΎ-ΠΊΠ»ΠΈΠΌΠ°ΡΠΈΡΠ΅ΡΠΊΠΎΠΉ
Π·ΠΎΠ½Π΅. ΠΠ°ΡΠ΅Π³ΠΎΡΠΈΡ ΡΡΠ»ΠΎΠ²ΠΈΠΉ ΡΠΊΡΠΏΠ»ΡΠ°ΡΠ°ΡΠΈΠΈ
Π΄Π»Ρ Π°Π²ΡΠΎΠ±ΡΡΠΎΠ² Π² 3 ΠΊΠ°ΡΠ΅Π³ΠΎΡΠΈΠΈ ΡΠΊΡΠΏΠ»ΡΠ°ΡΠΈΡΡΠ΅ΡΡΡ.
ΠΡΠ΅ΠΌΡ ΡΠ°Π±ΠΎΡΡ ΠΏΠΎΠ΄Π²ΠΈΠΆΠ½ΠΎΠ³ΠΎ ΡΠΎΡΡΠ°Π²Π° Π½Π° Π»ΠΈΠ½ΠΈΠΈ ΡΠΎΡΡΠ°Π²Π»ΡΠ΅Ρ 12 ΡΠ°ΡΠΎΠ²
Π² ΡΡΡΠΊΠΈ.
Β
Β
Β
Β
Β
Β
Β
Β
Β
Β
2. ΠΡΠ³Π°Π½ΠΈΠ·Π°ΡΠΈΡΒ ΡΠ°Π±ΠΎΡΡΒ ΠΏΠΎΡΡΠ° ΠΎΠ±ΡΠ΅ΠΉ Π΄ΠΈΠ°Π³Π½ΠΎΡΡΠΈΠΊΠΈ Π½Π°
ΠΏΡΠ΅Π΄ΠΏΡΠΈΡΡΠΈΠΈ.
2.1 ΠΠ΅ΡΠΎΠ΄ ΠΎΡΠ³Π°Π½ΠΈΠ·Π°ΡΠΈΠΈ ΠΏΡΠΎΠΈΠ·Π²ΠΎΠ΄ΡΡΠ²Π°
Π½Π° ΠΠ’Π.
1. Π§Π΅ΡΠΊΠΎΠ΅ ΡΠ°ΡΠΏΡΠ΅Π΄Π΅Π»Π΅Π½ΠΈΠ΅ Π°Π΄ΠΌΠΈΠ½ΠΈΡΡΡΠ°ΡΠΈΠ²Π½ΡΡ
ΠΈ ΠΎΠΏΠ΅ΡΠ°ΡΠΈΠ²Π½ΡΡ
ΡΡΠ½ΠΊΡΠΈΠΉ ΠΌΠ΅ΠΆΠ΄Ρ ΡΡΠΊΠΎΠ²ΠΎΠ΄ΡΡΠΈΠΌ
ΠΏΠ΅ΡΡΠΎΠ½Π°Π»ΠΎΠΌ ΠΈ ΡΠΎΡΡΠ΅Π΄ΠΎΡΠΎΡΠ΅Π½ΠΈΠ΅ ΡΡΠ½ΠΊΡΠΈΠΉ
ΠΎΠΏΠ΅ΡΠ°ΡΠΈΠ²Π½ΠΎΠ³ΠΎ ΡΠΏΡΠ°Π²Π»Π΅Π½ΠΈΡ Π² Π΅Π΄ΠΈΠ½ΠΎΠΌ ΡΠ΅Π½ΡΡΠ΅
ΠΈΠ»ΠΈ ΠΎΡΠ΄Π΅Π»Π΅ ΡΠΏΡΠ°Π²Π»Π΅Π½ΠΈΡ ΠΏΡΠΎΠΈΠ·Π²ΠΎΠ΄ΡΡΠ²ΠΎΠΌ
(Π¦Π£Π ΠΈΠ»ΠΈ ΠΠ£Π). ΠΡΠ½ΠΎΠ²Π½ΡΠΌΠΈ Π·Π°Π΄Π°ΡΠ°ΠΌΠΈ Π¦Π£Π ΡΠ²Π»ΡΡΡΡΡ
ΡΠ±ΠΎΡ ΠΈ Π°Π²ΡΠΎΠΌΠ°ΡΠΈΠ·ΠΈΡΠΎΠ²Π°Π½Π½Π°Ρ ΠΎΠ±ΡΠ°Π±ΠΎΡΠΊΠ°
ΠΈΠ½ΡΠΎΡΠΌΠ°ΡΠΈΠΈ ΠΎ ΡΠΎΡΡΠΎΡΠ½ΠΈΠΈ ΠΏΡΠΎΠΈΠ·Π²ΠΎΠ΄ΡΡΠ²Π΅Π½Π½ΡΡ
ΡΠ΅ΡΡΡΡΠΎΠ² ΠΈ ΠΎΠ±ΡΠ΅ΠΌΠ° ΡΠ°Π±ΠΎΡ, ΠΏΠΎΠ΄Π»Π΅ΠΆΠ°ΡΠΈΡ
Π²ΡΠΏΠΎΠ»Π½Π΅Π½ΠΈΡ,
Π° ΡΠ°ΠΊΠΆΠ΅ ΠΏΠ»Π°Π½ΠΈΡΠΎΠ²Π°Π½ΠΈΠ΅ ΠΈ ΠΊΠΎΠ½ΡΡΠΎΠ»Ρ Π΄Π΅ΡΡΠ΅Π»ΡΠ½ΠΎΡΡΠΈ
ΠΏΡΠΎΠΈΠ·Π²ΠΎΠ΄ΡΡΠ²Π΅Π½Π½ΡΡ
ΠΏΠΎΠ΄ΡΠ°Π·Π΄Π΅Π»Π΅Π½ΠΈΠΉ Π½Π° ΠΎΡΠ½ΠΎΠ²Π΅
Π°Π½Π°Π»ΠΈΠ·Π° ΠΈΠ½ΡΠΎΡΠΌΠ°ΡΠΈΠΈ.
Β
Π¦Π΅Π½ΡΡ ΡΠΏΡΠ°Π²Π»Π΅Π½ΠΈΡ ΠΏΡΠΎΠΈΠ·Π²ΠΎΠ΄ΡΡΠ²ΠΎΠΌ ΡΠΎΡΡΠΎΠΈΡ,
ΠΊΠ°ΠΊ ΠΏΡΠ°Π²ΠΈΠ»ΠΎ, ΠΈΠ· Π΄Π²ΡΡ
ΠΏΠΎΠ΄ΡΠ°Π·Π΄Π΅Π»Π΅Π½ΠΈΠΉ: ΠΎΡΠ΄Π΅Π»Π°
(Π³ΡΡΠΏΠΏΡ) ΠΎΠΏΠ΅ΡΠ°ΡΠΈΠ²Π½ΠΎΠ³ΠΎ ΡΠΏΡΠ°Π²Π»Π΅Π½ΠΈΡ (ΠΠΠ£)
ΠΈ ΠΎΡΠ΄Π΅Π»Π° ΠΎΠ±ΡΠ°Π±ΠΎΡΠΊΠΈ ΠΈ Π°Π½Π°Π»ΠΈΠ·Π° ΠΈΠ½ΡΠΎΡΠΌΠ°ΡΠΈΠΈ
(ΠΠΠΠ).
2. ΠΡΠΏΠΎΠ»Π½Π΅Π½ΠΈΠ΅Β ΠΊΠ°ΠΆΠ΄ΠΎΠ³ΠΎΒ Π²ΠΈΠ΄Π°Β
Π²ΠΎΠ·Π΄Π΅ΠΉΡΡΠ²ΠΈΡΒ
Π±ΡΠΈΠ³Π°Π΄ΠΎΠΉΒ ΠΈΠ»ΠΈΒ ΡΡΠ°ΡΡΠΊΠΎΠΌ (Π±ΡΠΈΠ³Π°Π΄ΡΒ
ΠΠ, Π’Π-1, Π’Π-2, Π’Π Β ΠΈΒ ΠΏΡ.) βΒ ΡΠ΅Ρ
Π½ΠΎΠ»ΠΎΠ³ΠΈΡΠ΅ΡΠΊΠΈΠΉ ΠΏΡΠΈΠ½ΡΠΈΠΏ ΡΠΎΡΠΌΠΈΡΠΎΠ²Π°Π½ΠΈΡ
ΠΏΡΠΎΠΈΠ·Π²ΠΎΠ΄ΡΡΠ²Π΅Π½Π½ΡΡ
ΠΏΠΎΠ΄ΡΠ°Π·Π΄Π΅Π»Π΅Π½ΠΈΠΉ, Π² Π½Π°ΠΈΠ±ΠΎΠ»ΡΡΠ΅ΠΉ
ΡΡΠ΅ΠΏΠ΅Π½ΠΈ ΠΎΡΠ²Π΅ΡΠ°ΡΡΠΈΠΉ ΡΡΠ΅Π±ΠΎΠ²Π°Π½ΠΈΡΠΌ ΡΠ΅Π½ΡΡΠ°Π»ΠΈΠ·ΠΎΠ²Π°Π½Π½ΠΎΠΉ
ΡΠΈΡΡΠ΅ΠΌΠ΅ ΡΠΏΡΠ°Π²Π»Π΅Π½ΠΈΡ.
3. ΠΠ±ΡΠ΅Π΄ΠΈΠ½Π΅Π½ΠΈΠ΅Β ΠΏΡΠΎΠΈΠ·Π²ΠΎΠ΄ΡΡΠ²Π΅Π½Π½ΡΡ
Β
ΠΏΠΎΠ΄ΡΠ°Π·Π΄Π΅Π»Π΅Π½ΠΈΠΉ (Π±ΡΠΈΠ³Π°Π΄, ΡΡΠ°ΡΡΠΊΠΎΠ²), Π²ΡΠΏΠΎΠ»Π½ΡΡΡΠΈΡ
Β
ΡΠ΅Ρ
Π½ΠΎΠ»ΠΎΠ³ΠΈΡΠ΅ΡΠΊΠΈΒ ΠΎΠ΄Π½ΠΎΡΠΎΠ΄Π½ΡΡ
Β ΡΠ°Π±ΠΎ
ΡΠ΅Π»ΡΡ
ΡΠ΄ΠΎΠ±ΡΡΠ²Π° ΡΠΏΡΠ°Π²Π»Π΅Π½ΠΈΡ ΠΈΠΌΠΈ.
4. Π¦Π΅Π½ΡΡΠ°Π»ΠΈΠ·ΠΎΠ²Π°Π½Π½Π°ΡΒ ΠΏΠΎΠ΄Π³ΠΎΡΠΎΠ²ΠΊΠ°Β
ΠΏΡΠΎΠΈΠ·Π²ΠΎΠ΄ΡΡΠ²Π° (ΠΊΠΎΠΌΠΏΠ»Π΅ΠΊΡΠΎΠ²Π°Π½ΠΈΠ΅Β ΠΎΠ±ΠΎΡΠΎΡΠ½ΠΎΠ³ΠΎΒ
ΡΠΎΠ½Π΄Π°Β Π·Π°ΠΏΠ°ΡΠ½ΡΡ
Β ΡΠ°ΡΡΠ΅ΠΉΒ ΠΈΒ
Ρ
ΡΠ°Π½Π΅Π½ΠΈΠ΅Β ΠΈΒ ΡΠ΅Π³ΡΠ»ΠΈΡΠΎΠ²Π°Π½ΠΈΠ΅Β
Π΄ΠΎΡΡΠ°Π²ΠΊΠ°Β Π°Π³ΡΠ΅Π³Π°ΡΠΎΠ², ΡΠ·Π»ΠΎΠ²Β ΠΈΒ Π΄Π΅ΡΠ°Π»Π΅ΠΉΒ
Π½Π°Β ΡΠ°Π±ΠΎΡΠΈΠ΅Β ΠΏΠΎΡΡΡ, ΠΌΠΎΠΉΠΊΠ° ΠΈ ΠΊΠΎΠΌΠΏΠ»Π΅ΠΊΡΠΎΠ²Π°Π½ΠΈΠ΅ ΡΠ΅ΠΌΠΎΠ½ΡΠ½ΠΎΠ³ΠΎ
ΡΠΎΠ½Π΄Π°, ΠΎΠ±Π΅ΡΠΏΠ΅ΡΠ΅Π½ΠΈΠ΅ ΡΠ°Π±ΠΎΡΠΈΡ
ΠΈΠ½ΡΡΡΡΠΌΠ΅Π½ΡΠΎΠΌ,
Π° ΡΠ°ΠΊΠΆΠ΅ ΠΏΠ΅ΡΠ΅Π³ΠΎΠ½ Π°Π²ΡΠΎΠΌΠΎΠ±ΠΈΠ»Π΅ΠΉ Π² Π·ΠΎΠ½Π°Ρ
Π’Π,
ΡΠ΅ΠΌΠΎΠ½ΡΠ° ΠΈ ΠΎΠΆΠΈΠ΄Π°Π½ΠΈΡ) ΡΠΏΠ΅ΡΠΈΠ°Π»ΡΠ½ΡΠΌ ΠΊΠΎΠΌΠΏΠ»Π΅ΠΊΡΠΎΠΌ.
Π¦Π΅Π½ΡΡΠ°Π»ΠΈΠ·Π°ΡΠΈΡ ΠΏΠΎΠ΄Π³ΠΎΡΠΎΠ²ΠΊΠΈ ΠΏΡΠΎΠΈΠ·Π²ΠΎΠ΄ΡΡΠ²Π°
Π·Π½Π°ΡΠΈΡΠ΅Π»ΡΠ½ΠΎ ΡΠΎΠΊΡΠ°ΡΠ°Π΅Ρ Π½Π΅ΠΏΠΎΡΡΠ΅Π΄ΡΡΠ²Π΅Π½Π½ΡΠ΅
Π·Π°ΡΡΠ°ΡΡ Π²ΡΠ΅ΠΌΠ΅Π½ΠΈ ΡΠ΅ΠΌΠΎΠ½ΡΠ½ΡΡ
ΡΠ°Π±ΠΎΡΠΈΡ
, ΡΠΏΡΠ°Π²Π»Π΅Π½ΡΠ΅ΡΠΊΠΎΠ³ΠΎ
ΠΏΠ΅ΡΡΠΎΠ½Π°Π»Π° ΠΈ Π² ΠΊΠΎΠ½Π΅ΡΠ½ΠΎΠΌ ΡΡΠ΅ΡΠ΅ ΠΏΡΠΎΡΡΠΎΠΈ
Π°Π²ΡΠΎΠΌΠΎΠ±ΠΈΠ»Π΅ΠΉ Π² Π’Π ΠΈ ΡΠ΅ΠΌΠΎΠ½ΡΠ΅.
5. ΠΡΠΏΠΎΠ»ΡΠ·ΠΎΠ²Π°Π½ΠΈΠ΅Β ΡΡΠ΅Π΄ΡΡΠ²Β ΡΠ²ΡΠ·ΠΈ,
Π°Π²ΡΠΎΠΌΠ°ΡΠΈΠΊΠΈ, ΡΠ΅Π»Π΅ΠΌΠ΅Ρ
Π°Π½ΠΈΠΊΠΈΒ ΠΈΒ Π²ΡΡΠΈΡΠ»ΠΈΡΠ΅Π»ΡΠ½ΠΎΠΉΒ
ΡΠ΅Ρ
Π½ΠΈΠΊΠΈ (Π°ΠΊΡΠΈΠ²Π½ΠΎΒ ΡΠΈΡΡΠ΅ΠΌΠ°Β ΠΌΠΎΠΆΠ΅ΡΒ
ΡΠ°Π±ΠΎΡΠ°ΡΡΒ Π»ΠΈΡΡΒ ΠΏΡΠΈΒ Π½Π°Π»ΠΈΡΠΈΠΈΒ
ΡΡΠ΅Π΄ΡΡΠ²Β Π΄ΠΈΡΠΏΠ΅ΡΡΠ΅ΡΡΠΊΠΎΠΉΒ ΡΠ²ΡΠ·ΠΈ ΠΈ ΠΎΡΠ³ΡΠ΅Ρ
Π½ΠΈΠΊΠΈ).
Π ΠΏΡΠΈΠ»ΠΎΠΆΠ΅Π½ΠΈΠΈ 5 ΠΏΡΠΈΠ²Π΅Π΄Π΅Π½Π° ΡΡ
Π΅ΠΌΠ° ΡΡΡΡΠΊΡΡΡΡ
ΡΠΏΡΠ°Π²Π»Π΅Π½ΠΈΡ ΡΠ΅Ρ
Π½ΠΈΡΠ΅ΡΠΊΠΎΠΉ ΡΠ»ΡΠΆΠ±ΠΎΠΉ ΠΊΡΡΠΏΠ½ΠΎΠ³ΠΎ
Π°Π²ΡΠΎΡΡΠ°Π½ΡΠΏΠΎΡΡΠ½ΠΎΠ³ΠΎ ΠΏΡΠ΅Π΄ΠΏΡΠΈΡΡΠΈΡ. Π Π·Π°Π²ΠΈΡΠΈΠΌΠΎΡΡΠΈ
ΠΎΡ ΠΌΠΎΡΠ½ΠΎΡΡΠΈ ΠΏΡΠ΅Π΄ΠΏΡΠΈΡΡΠΈΡ ΠΈ ΡΡΠ»ΠΎΠ²ΠΈΠΉ Π²Π½Π΅ΡΠ½Π΅ΠΉ
ΠΊΠΎΠΎΠΏΠ΅ΡΠ°ΡΠΈΠΈ ΡΡΡΡΠΊΡΡΡΠ° ΡΠ΅Ρ
Π½ΠΈΡΠ΅ΡΠΊΠΎΠΉ ΡΠ»ΡΠΆΠ±Ρ
ΠΌΠΎΠΆΠ΅Ρ ΠΈΠ·ΠΌΠ΅Π½ΡΡΡΡΡ ΠΏΡΠΈ ΡΠΎΡ
ΡΠ°Π½Π΅Π½ΠΈΠΈ ΠΏΡΠΈΠ½ΡΠΈΠΏΠΈΠ°Π»ΡΠ½ΡΡ
ΠΏΠΎΠ»ΠΎΠΆΠ΅Π½ΠΈΠΉ.
6. Π¦Π£ΠΒ Π²ΠΎΠ·Π³Π»Π°Π²Π»ΡΠ΅ΡΒ Π½Π°ΡΠ°Π»ΡΠ½ΠΈΠΊ, Π°Β
ΠΎΡΠ½ΠΎΠ²Π½ΡΡΒ ΠΎΠΏΠ΅ΡΠ°ΡΠΈΠ²Π½ΡΡΒ ΡΠ°Π±ΠΎΡΡΒ
ΠΏΠΎΒ ΡΠΏΡΠ°Π²Π»Π΅Π½ΠΈΡΒ Π²ΡΠΏΠΎΠ»Π½ΡΠ΅ΡΒ
ΠΏΡΠΎΠΈΠ·Π²ΠΎΠ΄ΡΡΠ²Π°Β ΠΈΒ Π΅Π³ΠΎΒ ΠΏΠΎΠΌΠΎΡΠ½ΠΈΠΊ —
ΡΠ΅Ρ
Π½ΠΈΠΊ-ΠΎΠΏΠ΅ΡΠ°ΡΠΎΡ. Π§ΠΈΡΠ»Π΅Π½Π½ΠΎΡΡΡΒ ΠΏΠ΅ΡΡΠΎΠ½Π°Π»Π°Β
Π¦Π£ΠΒ ΠΎΠΏΡΠ΅Π΄Π΅Π»ΡΠ΅ΡΡΡΒ ΠΎΠ±ΡΠΈΠΌΒ
Π²ΡΠΏΠΎΠ»Π½ΡΠ΅ΠΌΡΡ
Β ΡΠ°Π±ΠΎΡ (ΠΊΠΎΠ»ΠΈΡΠ΅ΡΡΠ²ΠΎΠΌΒ
Π°Π²ΡΠΎΠΌΠΎΠ±ΠΈΠ»Π΅ΠΉ ΡΡΠ΅Π΄ΡΡΠ² ΡΠΏΡΠ°Π²Π»Π΅Π½ΠΈΡ ΠΈ Π΄Ρ.).
Β
2.2 Π€ΡΠ½ΠΊΡΠΈΠΈΒ ΠΎΡΠ½ΠΎΠ²Π½ΡΡ
Β
1. ΠΠ’ΠΒ ΡΠ»ΡΠΆΠΈΡΒ Π΄Π»ΡΒ Π²ΡΡΠ²Π»Π΅Π½ΠΈΡΒ
Π½Π΅ΠΈΡΠΏΡΠ°Π²Π½ΠΎΡΡΠ΅ΠΉΒ Π°Π²ΡΠΎΠΌΠΎΠ±ΠΈΠ»ΡΒ ΠΈΒ
ΠΎΠΏΡΠ΅Π΄Π΅Π»Π΅Π½Π½ΡΡ
Β ΠΎΡΠΊΠ»ΠΎΠ½Π΅Π½ΠΈΠΉΒ
ΡΠ΅Ρ
Π½ΠΈΡΠ΅ΡΠΊΠΎΠ³ΠΎΒ ΡΠΎΡΡΠΎΡΠ½ΠΈΡΒ Π²Π»ΠΈΡΡΡΠΈ
2. ΠΠΎΠ½Π°Β ΠΠ (Π£ΠΠ ) ΡΠ»ΡΠΆΠΈΡΒ Π΄Π»ΡΒ ΡΠ±ΠΎΡΠΊΠΈ, ΠΌΠΎΠΉΠΊΠΈ ΠΈ ΡΡΡΠΊΠΈ Π°Π²ΡΠΎΠΌΠΎΠ±ΠΈΠ»Ρ.
3. ΠΠΎΠ½Π°Β ΠΎΠΆΠΈΠ΄Π°Π½ΠΈΡΒ ΡΠ»ΡΠΆΠΈΡΒ Π΄Π»ΡΒ
ΠΎΠΆΠΈΠ΄Π°Π½ΠΈΡΒ Π°Π²ΡΠΎΠΌΠΎΠ±ΠΈΠ»Π΅ΠΉΒ ΡΠ²ΠΎΠ΅ΠΉΒ
ΠΏΠΎΡΡΠ°Π½ΠΎΠ²ΠΊΠΈΒ Π½Π°Β Π’ΠΒ ΠΈΒ Π’Π .
4. ΠΠΎΠ½Π°Β Π-1 ΡΠ»ΡΠΆΠΈΡΒ Π΄Π»ΡΒ ΠΏΡΠΎΠ²Π΅Π΄Π΅Π½ΠΈΡΒ
ΠΎΠ±ΡΠ΅ΠΉΒ Π΄ΠΈΠ°Π³Π½ΠΎΡΡΠΈΠΊΠΈ. ΠΡΠΏΠΎΠ»Π½ΡΡΡΡΡΒ
ΡΠ°Π±ΠΎΡΡΒ ΠΏΠΎΒ ΠΊΠΎΠ½ΡΡΠΎΠ»ΡΒ
ΡΠΎΡΡΠΎΡΠ½ΠΈΡΒ ΠΌΠ΅Ρ
Π°Π½ΠΈΠ·ΠΌΠΎΠ²Β Π²Π»ΠΈΡΡΡΠΈΡ
Β
Π½Π°Β Π±Π΅Π·ΠΎΠΏΠ°ΡΠ½ΠΎΡΡΡ Π΄Π²ΠΈΠΆΠ΅Π½ΠΈΡ.
5. ΠΠΎΠ½Π°Β Π-2 ΡΠ»ΡΠΆΠΈΡΒ Π΄Π»ΡΒ ΠΏΡΠΎΠ²Π΅Π΄Π΅Π½ΠΈΡΒ
ΡΠ³Π»ΡΠ±Π»Π΅Π½Π½ΠΎΠΉΒ Π΄ΠΈΠ°Π³Π½ΠΎΡΡΠΈΠΊΠΈ. ΠΡΡΠ²Π»ΡΡΡΒ
Π½Π΅ΠΈΡΠΏΡΠ°Π²Π½ΠΎΡΡΠΈΒ Π²ΡΠ΅Ρ
Β ΠΌΠ΅Ρ
Π°Π½ΠΈΠ·ΠΌΠΎΠ²Β
ΠΈΒ ΡΠΈΡΡΠ΅ΠΌ.
6. ΠΠΎΠ½ΡΒ Π’Π-1 ΠΈΒ Π’Π-2 ΡΠ»ΡΠΆΠ°ΡΒ Π΄Π»ΡΒ
Π²ΡΠΏΠΎΠ»Π½Π΅Π½ΠΈΡΒ ΡΠ΅Π³Π»Π°ΠΌΠ΅Π½ΡΠ½ΡΡ
Β ΡΠ°Π±ΠΎΡΒ
Π²Β ΡΠΎΠΎΡΠ²Π΅ΡΡΡΠ²ΠΈΠΈΒ ΡΒ ΠΏΠ΅ΡΠ΅ΡΠ΅Π½ΡΡΒ
ΡΠ°Π±ΠΎΡ.
7. ΠΠΎΠ½Π°Β Π’Π Β ΡΠ»ΡΠΆΠΈΡΒ Π΄Π»ΡΒ ΡΡΡΡΠ°Π½Π΅Π½ΠΈΡΒ
Π½Π΅ΠΈΡΠΏΡΠ°Π²Π½ΠΎΡΡΠ΅ΠΉ ΠΎΠ±Π½Π°ΡΡΠΆΠ΅Π½Π½ΡΡ
ΠΏΡΠΈ ΡΠΊΡΠΏΠ»ΡΠ°ΡΠ°ΡΠΈΠΈ
ΠΈΠ»ΠΈ ΠΏΡΠΈ ΠΏΡΠΎΠ²Π΅Π΄Π΅Π½ΠΈΠΈ Π’Π.
8. ΠΠΎΠ½Π°Β ΡΡΠΎΡΠ½ΠΊΠΈΒ ΡΠ»ΡΠΆΠΈΡΒ Π΄Π»ΡΒ
Ρ
ΡΠ°Π½Π΅Π½ΠΈΡΒ Π°Π²ΡΠΎΠΌΠΎΠ±ΠΈΠ»Π΅ΠΉΒ Π²Β
ΠΏΠ΅ΡΠΈΠΎΠ΄.
2.3 Π Π΅ΠΆΠΈΠΌΠ°Β ΡΠ°Π±ΠΎΡΡΒ
ΠΏΠΎΠ΄ΡΠ°Π·Π΄Π΅Π»Π΅Π½ΠΈΠΉ.
Π Π°Π±ΠΎΡΠ° ΠΏΡΠΎΠΈΠ·Π²ΠΎΠ΄ΡΡΠ²Π΅Π½Π½ΠΎΠ³ΠΎ ΠΏΠΎΠ΄ΡΠ°Π·Π΄Π΅Π»Π΅Π½ΠΈΡ
Π² ΠΠ’Π ΡΠΎΠ³Π»Π°ΡΠΎΠ²ΡΠ²Π°Π΅ΡΡΡ Ρ ΡΠ΅ΠΆΠΈΠΌΠΎΠΌ ΡΠ°Π±ΠΎΡΡ Π°Π²ΡΠΎΠΌΠΎΠ±ΠΈΠ»Π΅ΠΉ Π½Π° Π»ΠΈΠ½ΠΈΠΈ. ΠΡΠΈ Π½Π°Π·Π½Π°ΡΠ΅Π½ΠΈΠΈ
ΡΠ΅ΠΆΠΈΠΌΠ° ΠΈΡ
ΡΠ°Π±ΠΎΡΡ ΡΠ»Π΅Π΄ΡΠ΅Ρ ΠΈΡΡ
ΠΎΠ΄ΠΈΡΡ ΠΈΠ·
ΡΡΠ΅Π±ΠΎΠ²Π°Π½ΠΈΠΉ Π²ΡΠΏΠΎΠ»Π½ΡΡΡ Π±ΠΎΠ»ΡΡΠΈΠ΅ ΠΎΠ±ΡΠ΅ΠΌΡ
ΡΠ°Π±ΠΎΡ ΠΏΠΎ Π’Π.
ΠΠ»Ρ ΠΏΡΠΎΠ΅ΠΊΡΠΈΡΠΎΠ²Π°Π½ΠΈΡ ΡΡΠ°ΡΡΠΊΠ° ΠΏΠΎ ΠΎΠ±ΡΠ΅ΠΌΡ
Π΄ΠΈΠ°Π³Π½ΠΎΡΡΠΈΡΠΎΠ²Π°Π½ΠΈΡ Π’Π-1 ΠΏΡΠΈΠ½ΠΈΠΌΠ°Π΅ΠΌ ΠΊΠΎΠ»ΠΈΡΠ΅ΡΡΠ²ΠΎ ΡΠ°Π±ΠΎΡΠΈΡ
Π΄Π½Π΅ΠΉ Π² Π³ΠΎΠ΄Ρ = 302 Π΄Π½Π΅ΠΉ.
Π Π°Π±ΠΎΡΠ° Π½Π° ΡΡΠ°ΡΡΠΊΠ΅ Π²ΡΠΏΠΎΠ»Π½ΡΠ΅ΡΡΡ Π² ΠΎΠ΄Π½Ρ
ΡΠΌΠ΅Π½Ρ. ΠΡΠΎΠ΄ΠΎΠ»ΠΆΠΈΡΠ΅Π»ΡΠ½ΠΎΡΡΡ ΡΠΌΠ΅Π½Ρ 8 ΡΠ°ΡΠΎΠ².
ΠΡΠ΅ΠΌΡ ΠΎΠ±Π΅Π΄Π΅Π½Π½ΠΎΠ³ΠΎ ΠΏΠ΅ΡΠ΅ΡΡΠ²Π° 1 ΡΠ°Ρ. ΠΠ°ΡΠ°Π»ΠΎ
ΡΠ°Π±ΠΎΡΡ ΡΠΌΠ΅Π½Ρ 8 Ρ 00 ΠΌΠΈΠ½ — ΠΎΠΊΠΎΠ½ΡΠ°Π½ΠΈΠ΅ 16 Ρ 00
ΠΌΠΈΠ½.
2.4 Π’Π΅Ρ
Π½ΠΎΠ»ΠΎΠ³ΠΈΡΠ΅ΡΠΊΠΈΠΉ ΠΏΡΠΎΡΠ΅ΡΡ
ΠΎΠ±ΡΠ΅ΠΉ Π΄ΠΈΠ°Π³Π½ΠΎΡΡΠΈΠΊΠΈ.
Π‘ΡΡΠ΅ΡΡΠ²ΡΡΡ ΡΠ»Π΅Π΄ΡΡΡΠΈΠ΅ ΠΏΡΠΈΠ½ΡΠΈΠΏΡ ΠΎΡΠ³Π°Π½ΠΈΠ·Π°ΡΠΈΠΈ
ΠΏΡΠΎΠΈΠ·Π²ΠΎΠ΄ΡΡΠ²Π΅Π½Π½ΠΎΠ³ΠΎ ΠΏΡΠΎΡΠ΅ΡΡΠ°:
1) Π΄ΠΈΡΡΠ΅ΡΠ΅Π½ΡΠΈΠ°ΡΠΈΡ — ΡΠ°Π·Π΄Π΅Π»Π΅Π½ΠΈΠ΅ ΠΏΡΠΎΠΈΠ·Π²ΠΎΠ΄ΡΡΠ²Π΅Π½Π½ΠΎΠ³ΠΎ
ΠΏΡΠΎΡΠ΅ΡΡΠ° Π½Π° ΠΎΡΠ΄Π΅Π»ΡΠ½ΡΠ΅ ΡΠ°ΡΡΠΈ (ΠΏΡΠΎΡΠ΅ΡΡΡ,
ΠΎΠΏΠ΅ΡΠ°ΡΠΈΠΈ, ΡΡΠ°Π΄ΠΈΠΈ) ΠΈ ΠΈΡ
Π·Π°ΠΊΡΠ΅ΠΏΠ»Π΅Π½ΠΈΠ΅ Π·Π°
ΡΠΎΠΎΡΠ²Π΅ΡΡΡΠ²ΡΡΡΠΈΠΌΠΈ ΠΏΠΎΠ΄ΡΠ°Π·Π΄Π΅Π»Π΅Π½ΠΈΡΠΌΠΈ ΠΏΡΠ΅Π΄ΠΏΡΠΈΡΡΠΈΡ;
2) ΠΊΠΎΠΌΠ±ΠΈΠ½ΠΈΡΠΎΠ²Π°Π½ΠΈΠ΅ — ΠΎΠ±ΡΠ΅Π΄ΠΈΠ½Π΅Π½ΠΈΠ΅ Π²ΡΠ΅Ρ
ΠΈΠ»ΠΈ
ΡΠ°ΡΡΠΈ ΡΠ°Π·Π½ΠΎΡ
Π°ΡΠ°ΠΊΡΠ΅ΡΠ½ΡΡ
ΠΏΡΠΎΡΠ΅ΡΡΠΎΠ² ΠΏΠΎ
ΠΈΠ·Π³ΠΎΡΠΎΠ²Π»Π΅Π½ΠΈΡ ΠΎΠΏΡΠ΅Π΄Π΅Π»Π΅Π½Π½ΡΡ
Π²ΠΈΠ΄ΠΎΠ² ΠΏΡΠΎΠ΄ΡΠΊΡΠΈΠΈ
Π² ΠΏΡΠ΅Π΄Π΅Π»Π°Ρ
ΠΎΠ΄Π½ΠΎΠ³ΠΎ ΡΡΠ°ΡΡΠΊΠ°, ΡΠ΅Ρ
Π° ΠΈΠ»ΠΈ ΠΏΡΠΎΠΈΠ·Π²ΠΎΠ΄ΡΡΠ²Π°;
3) ΠΊΠΎΠ½ΡΠ΅Π½ΡΡΠ°ΡΠΈΡ — ΡΠΎΡΡΠ΅Π΄ΠΎΡΠΎΡΠ΅Π½ΠΈΠ΅ ΠΎΠΏΡΠ΅Π΄Π΅Π»Π΅Π½Π½ΡΡ
ΠΏΡΠΎΠΈΠ·Π²ΠΎΠ΄ΡΡΠ²Π΅Π½Π½ΡΡ
ΠΎΠΏΠ΅ΡΠ°ΡΠΈΠΉ ΠΏΠΎ ΠΈΠ·Π³ΠΎΡΠΎΠ²Π»Π΅Π½ΠΈΡ
ΡΠ΅Ρ
Π½ΠΎΠ»ΠΎΠ³ΠΈΡΠ΅ΡΠΊΠΈ ΠΎΠ΄Π½ΠΎΡΠΎΠ΄Π½ΠΎΠΉ ΠΏΡΠΎΠ΄ΡΠΊΡΠΈΠΈ
ΠΈΠ»ΠΈ Π²ΡΠΏΠΎΠ»Π½Π΅Π½ΠΈΡ ΡΡΠ½ΠΊΡΠΈΠΎΠ½Π°Π»ΡΠ½ΠΎ-ΠΎΠ΄Π½ΠΎΡΠΎΠ΄Π½ΡΡ
ΡΠ°Π±ΠΎΡ Π½Π° ΠΎΡΠ΄Π΅Π»ΡΠ½ΡΡ
ΡΠ°Π±ΠΎΡΠΈΡ
ΠΌΠ΅ΡΡΠ°Ρ
, ΡΡΠ°ΡΡΠΊΠ°Ρ
,
Π² ΡΠ΅Ρ
Π°Ρ
ΠΈΠ»ΠΈ ΠΏΡΠΎΠΈΠ·Π²ΠΎΠ΄ΡΡΠ²Π°Ρ
ΠΏΡΠ΅Π΄ΠΏΡΠΈΡΡΠΈΡ;
4)ΡΠΏΠ΅ΡΠΈΠ°Π»ΠΈΠ·Π°ΡΠΈΡ — Π·Π°ΠΊΡΠ΅ΠΏΠ»Π΅Π½ΠΈΠ΅ Π·Π° ΠΊΠ°ΠΆΠ΄ΡΠΌ
ΡΠ°Π±ΠΎΡΠΈΠΌ ΠΌΠ΅ΡΡΠΎΠΌ ΠΈ ΠΊΠ°ΠΆΠ΄ΡΠΌ ΠΏΠΎΠ΄ΡΠ°Π·Π΄Π΅Π»Π΅Π½ΠΈΠ΅ΠΌ
ΡΡΡΠΎΠ³ΠΎ ΠΎΠ³ΡΠ°Π½ΠΈΡΠ΅Π½Π½ΠΎΠΉ Π½ΠΎΠΌΠ΅Π½ΠΊΠ»Π°ΡΡΡΡ ΡΠ°Π±ΠΎΡ,
ΠΎΠΏΠ΅ΡΠ°ΡΠΈΠΉ, Π΄Π΅ΡΠ°Π»Π΅ΠΉ ΠΈ ΠΈΠ·Π΄Π΅Π»ΠΈΠΉ;
5)ΡΠ½ΠΈΠ²Π΅ΡΡΠ°Π»ΠΈΠ·Π°ΡΠΈΡ — ΠΈΠ·Π³ΠΎΡΠΎΠ²Π»Π΅Π½ΠΈΠ΅ Π΄Π΅ΡΠ°Π»Π΅ΠΉ
ΠΈ ΠΈΠ·Π΄Π΅Π»ΠΈΠΉ ΡΠΈΡΠΎΠΊΠΎΠ³ΠΎ Π°ΡΡΠΎΡΡΠΈΠΌΠ΅Π½ΡΠ° ΠΈΠ»ΠΈ Π²ΡΠΏΠΎΠ»Π½Π΅Π½ΠΈΠ΅
ΡΠ°Π·Π½ΠΎΡΠΎΠ΄Π½ΡΡ
ΠΏΡΠΎΠΈΠ·Π²ΠΎΠ΄ΡΡΠ²Π΅Π½Π½ΡΡ
ΠΎΠΏΠ΅ΡΠ°ΡΠΈΠΉ
Π½Π° ΠΊΠ°ΠΆΠ΄ΠΎΠΌ ΡΠ°Π±ΠΎΡΠ΅ΠΌ ΠΌΠ΅ΡΡΠ΅ ΠΈΠ»ΠΈ ΠΏΡΠΎΠΈΠ·Π²ΠΎΠ΄ΡΡΠ²Π΅Π½Π½ΠΎΠΌ
ΠΏΠΎΠ΄ΡΠ°Π·Π΄Π΅Π»Π΅Π½ΠΈΠΈ;
6) ΠΏΡΠΎΠΏΠΎΡΡΠΈΠΎΠ½Π°Π»ΡΠ½ΠΎΡΡΡ — ΡΠΎΡΠ΅ΡΠ°Π½ΠΈΠ΅ ΠΎΡΠ΄Π΅Π»ΡΠ½ΡΡ
ΡΠ»Π΅ΠΌΠ΅Π½ΡΠΎΠ² ΠΏΡΠΎΠΈΠ·Π²ΠΎΠ΄ΡΡΠ²Π΅Π½Π½ΠΎΠ³ΠΎ ΠΏΡΠΎΡΠ΅ΡΡΠ°,
ΠΊΠΎΡΠΎΡΠΎΠ΅ Π²ΡΡΠ°ΠΆΠ°Π΅ΡΡΡ Π² ΠΈΡ
ΠΎΠΏΡΠ΅Π΄Π΅Π»Π΅Π½Π½ΠΎΠΌ
ΠΊΠΎΠ»ΠΈΡΠ΅ΡΡΠ²Π΅Π½Π½ΠΎΠΌ ΠΎΡΠ½ΠΎΡΠ΅Π½ΠΈΠΈ Π΄ΡΡΠ³ Ρ Π΄ΡΡΠ³ΠΎΠΌ;
7) ΠΏΠ°ΡΠ°Π»Π»Π΅Π»ΡΠ½ΠΎΡΡΡ — ΠΎΠ΄Π½ΠΎΠ²ΡΠ΅ΠΌΠ΅Π½Π½Π°Ρ ΠΎΠ±ΡΠ°Π±ΠΎΡΠΊΠ°
ΡΠ°Π·Π½ΡΡ
Π΄Π΅ΡΠ°Π»Π΅ΠΉ ΠΎΠ΄Π½ΠΎΠΉ ΠΏΠ°ΡΡΠΈΠΈ ΠΏΠΎ Π΄Π°Π½Π½ΠΎΠΉ
ΠΎΠΏΠ΅ΡΠ°ΡΠΈΠΈ Π½Π° Π½Π΅ΡΠΊΠΎΠ»ΡΠΊΠΈΡ
ΡΠ°Π±ΠΎΡΠΈΡ
ΠΌΠ΅ΡΡΠ°Ρ
ΠΈ Ρ.
Π΄.;
8) ΠΏΡΡΠΌΠΎΡΠΎΡΠ½ΠΎΡΡΡ — ΠΎΡΡΡΠ΅ΡΡΠ²Π»Π΅Π½ΠΈΠ΅ Π²ΡΠ΅Ρ
ΡΡΠ°Π΄ΠΈΠΉ
ΠΈ ΠΎΠΏΠ΅ΡΠ°ΡΠΈΠΉ ΠΏΡΠΎΠΈΠ·Π²ΠΎΠ΄ΡΡΠ²Π΅Π½Π½ΠΎΠ³ΠΎ ΠΏΡΠΎΡΠ΅ΡΡΠ°
Π² ΡΡΠ»ΠΎΠ²ΠΈΡΡ
ΠΊΡΠ°ΡΡΠ°ΠΉΡΠ΅Π³ΠΎ ΠΏΡΡΠΈ ΠΏΡΠΎΡ
ΠΎΠΆΠ΄Π΅Π½ΠΈΡ
ΠΏΡΠ΅Π΄ΠΌΠ΅ΡΠ° ΡΡΡΠ΄Π° ΠΎΡ Π½Π°ΡΠ°Π»Π° Π΄ΠΎ ΠΊΠΎΠ½ΡΠ°;
9) ΡΠΈΡΠΌΠΈΡΠ½ΠΎΡΡΡ — ΠΏΠΎΠ²ΡΠΎΡΠ΅Π½ΠΈΠ΅ ΡΠ΅ΡΠ΅Π· ΡΡΡΠ°Π½ΠΎΠ²Π»Π΅Π½Π½ΡΠ΅
ΠΏΠ΅ΡΠΈΠΎΠ΄Ρ Π²ΡΠ΅ΠΌΠ΅Π½ΠΈ Π²ΡΠ΅Ρ
ΠΎΡΠ΄Π΅Π»ΡΠ½ΡΡ
ΠΏΡΠΎΠΈΠ·Π²ΠΎΠ΄ΡΡΠ²Π΅Π½Π½ΡΡ
ΠΏΡΠΎΡΠ΅ΡΡΠΎΠ² ΠΈ Π΅Π΄ΠΈΠ½ΠΎΠ³ΠΎ ΠΏΡΠΎΡΠ΅ΡΡΠ° ΠΏΡΠΎΠΈΠ·Π²ΠΎΠ΄ΡΡΠ²Π°
ΠΎΠΏΡΠ΅Π΄Π΅Π»Π΅Π½Π½ΠΎΠ³ΠΎ Π²ΠΈΠ΄Π° ΠΏΡΠΎΠ΄ΡΠΊΡΠΈΠΈ.
ΠΡΠΈΠ²Π΅Π΄Π΅Π½Π½ΡΠ΅ ΠΏΡΠΈΠ½ΡΠΈΠΏΡ ΠΎΡΠ³Π°Π½ΠΈΠ·Π°ΡΠΈΠΈ ΠΏΡΠΎΠΈΠ·Π²ΠΎΠ΄ΡΡΠ²Π°
Π½Π° ΠΏΡΠ°ΠΊΡΠΈΠΊΠ΅ Π΄Π΅ΠΉΡΡΠ²ΡΡΡ Π½Π΅ ΠΈΠ·ΠΎΠ»ΠΈΡΠΎΠ²Π°Π½Π½ΠΎ
Π΄ΡΡΠ³ ΠΎΡ Π΄ΡΡΠ³Π°, ΠΎΠ½ΠΈ ΡΠ΅ΡΠ½ΠΎ ΠΏΠ΅ΡΠ΅ΠΏΠ»Π΅ΡΠ°ΡΡΡΡ
Π² ΠΊΠ°ΠΆΠ΄ΠΎΠΌ ΠΏΡΠΎΠΈΠ·Π²ΠΎΠ΄ΡΡΠ²Π΅Π½Π½ΠΎΠΌ ΠΏΡΠΎΡΠ΅ΡΡΠ΅. ΠΡΠΈΠ½ΡΠΈΠΏΡ
ΠΎΡΠ³Π°Π½ΠΈΠ·Π°ΡΠΈΠΈ ΠΏΡΠΎΠΈΠ·Π²ΠΎΠ΄ΡΡΠ²Π° ΡΠ°Π·Π²ΠΈΠ²Π°ΡΡΡΡ
Π½Π΅ΡΠ°Π²Π½ΠΎΠΌΠ΅ΡΠ½ΠΎ — Π² ΡΠΎΡ ΠΈΠ»ΠΈ ΠΈΠ½ΠΎΠΉ ΠΏΠ΅ΡΠΈΠΎΠ΄ ΡΠΎΡ ΠΈΠ»ΠΈ ΠΈΠ½ΠΎΠΉ ΠΏΡΠΈΠ½ΡΠΈΠΏ Π²ΡΠ΄Π²ΠΈΠ³Π°Π΅ΡΡΡ Π½Π° ΠΏΠ΅ΡΠ²ΡΠΉ
ΠΏΠ»Π°Π½ Π»ΠΈΠ±ΠΎ ΠΏΡΠΈΠΎΠ±ΡΠ΅ΡΠ°Π΅Ρ Π²ΡΠΎΡΠΎΡΡΠ΅ΠΏΠ΅Π½Π½ΠΎΠ΅
Π·Π½Π°ΡΠ΅Π½ΠΈΠ΅.
2.5 ΠΡΠ³Π°Π½ΠΈΠ·Π°ΡΠΈΡ ΡΠ°Π±ΠΎΡΡ ΠΏΠΎΡΡΠ°
ΠΎΠ±ΡΠ΅ΠΉ Π΄ΠΈΠ°Π³Π½ΠΎΡΡΠΈΠΊΠΈ Π½Π° ΡΡΠ°ΡΡΠΊΠ΅.
Π’Π΅Ρ
Π½ΠΎΠ»ΠΎΠ³ΠΈΡΠ΅ΡΠΊΠΈΠΉ ΠΏΡΠΎΡΠ΅ΡΡ Π½Π° ΡΡΠ°ΡΡΠΊΠ΅
Π-1 ΠΎΡΠ³Π°Π½ΠΈΠ·ΠΎΠ²ΡΠ²Π°Π΅ΡΡΡ ΠΏΠΎ ΠΌΠ΅ΡΠΎΠ΄Ρ ΡΠ½ΠΈΠ²Π΅ΡΡΠ°Π»ΡΠ½ΡΡ
ΠΏΠΎΡΡΠΎΠ².
ΠΠ΅ΡΠΎΠ΄ ΡΠ½ΠΈΠ²Π΅ΡΡΠ°Π»ΡΠ½ΡΡ ΠΏΠΎΡΡΠΎΠ².
Π£Π½ΠΈΠ²Π΅ΡΡΠ°Π»ΡΠ½ΡΠΉ ΠΏΠΎΡΡ — ΠΏΠΎΡΡ, Π½Π° ΠΊΠΎΡΠΎΡΠΎΠΌ
Π²ΠΎΠ·ΠΌΠΎΠΆΠ½ΠΎ Π²ΡΠΏΠΎΠ»Π½Π΅Π½ΠΈΠ΅ Π½Π΅ΡΠΊΠΎΠ»ΡΠΊΠΈΡ
Π²ΠΈΠ΄ΠΎΠ²
ΡΠΈΠΏΠΎΠ²ΡΡ
ΡΠ°Π±ΠΎΡ Π’Π.
ΠΡΠΈ ΠΎΠ±ΡΠ»ΡΠΆΠΈΠ²Π°Π½ΠΈΠΈ Π½Π° Π½Π΅ΡΠΊΠΎΠ»ΡΠΊΠΈΡ
ΡΠ½ΠΈΠ²Π΅ΡΡΠ°Π»ΡΠ½ΡΡ
ΠΏΠΎΡΡΠ°Ρ
Π²ΠΎΠ·ΠΌΠΎΠΆΠ½ΠΎ Π²ΡΠΏΠΎΠ»Π½Π΅Π½ΠΈΠ΅ Π½Π° Π½ΠΈΡ
Π½Π΅ΠΎΠ΄ΠΈΠ½Π°ΠΊΠΎΠ²ΠΎΠ³ΠΎ
ΠΎΠ±ΡΠ΅ΠΌΠ° ΡΠ°Π±ΠΎΡ (ΠΈΠ»ΠΈ ΠΎΠ±ΡΠ»ΡΠΆΠΈΠ²Π°Π½ΠΈΠ΅ ΡΠ°Π·Π½ΠΎΠΌΠ°ΡΠΎΡΠ½ΡΡ
Π°Π²ΡΠΎΠΌΠΎΠ±ΠΈΠ»Π΅ΠΉ, Π° ΡΠ°ΠΊΠΆΠ΅ Π²ΡΠΏΠΎΠ»Π½Π΅Π½ΠΈΠ΅ ΡΠΎΠΏΡΡΡΡΠ²ΡΡΡΠ΅Π³ΠΎ Π’Π ) ΠΏΡΠΈ
ΡΠ°Π·Π»ΠΈΡΠ½ΠΎΠΉ ΠΏΡΠΎΠ΄ΠΎΠ»ΠΆΠΈΡΠ΅Π»ΡΠ½ΠΎΡΡΠΈ ΠΏΡΠ΅Π±ΡΠ²Π°Π½ΠΈΡ
Π°Π²ΡΠΎΠΌΠΎΠ±ΠΈΠ»Π΅ΠΉ Π½Π° ΠΊΠ°ΠΆΠ΄ΠΎΠΌ ΠΏΠΎΡΡΡ.
ΠΠ΅Π΄ΠΎΡΡΠ°ΡΠΊΠ°ΠΌΠΈ
ΡΡΠΎΠ³ΠΎ ΠΌΠ΅ΡΠΎΠ΄Π° ΠΏΡΠΈ ΡΡΠΏΠΈΠΊΠΎΠ²ΠΎΠΌ ΡΠ°ΡΠΏΠΎΠ»ΠΎΠΆΠ΅Π½ΠΈΠΈ
ΠΏΠΎΡΡΠΎΠ² ΡΠ²Π»ΡΡΡΡΡ: Π·Π½Π°ΡΠΈΡΠ΅Π»ΡΠ½Π°Ρ ΠΏΠΎΡΠ΅ΡΡ
Π²ΡΠ΅ΠΌΠ΅Π½ΠΈ Π½Π° ΡΡΡΠ°Π½ΠΎΠ²ΠΊΡ Π°Π²ΡΠΎΠΌΠΎΠ±ΠΈΠ»Π΅ΠΉ Π½Π° ΠΏΠΎΡΡΡ
ΠΈ ΡΡΠ΅Π·Π΄ Ρ Π½ΠΈΡ
; Π·Π°Π³ΡΡΠ·Π½Π΅Π½ΠΈΠ΅ Π²ΠΎΠ·Π΄ΡΡ
Π° ΠΎΡΡΠ°Π±ΠΎΡΠ°Π²ΡΠΈΠΌΠΈ
Π³Π°Π·Π°ΠΌΠΈ ΠΏΡΠΈ ΠΌΠ°Π½Π΅Π²ΡΠΈΡΠΎΠ²Π°Π½ΠΈΠΈ Π°Π²ΡΠΎΠΌΠΎΠ±ΠΈΠ»Ρ
Π² ΠΏΡΠΎΡΠ΅ΡΡΠ΅ Π·Π°Π΅Π·Π΄Π° Π½Π° ΠΏΠΎΡΡΡ ΠΈ ΡΡΠ΅Π·Π΄ Ρ Π½ΠΈΡ
;
Π½Π΅ΠΎΠ±Ρ
ΠΎΠ΄ΠΈΠΌΠΎΡΡΡ ΠΌΠ½ΠΎΠ³ΠΎΠΊΡΠ°ΡΠ½ΠΎΠ³ΠΎ Π΄ΡΠ±Π»ΠΈΡΠΎΠ²Π°Π½ΠΈΡ
ΠΎΠ΄ΠΈΠ½Π°ΠΊΠΎΠ²ΠΎΠ³ΠΎ ΠΎΠ±ΠΎΡΡΠ΄ΠΎΠ²Π°Π½ΠΈΡ. ΠΠ° ΠΏΡΠΎΠ΅ΠΊΡΠΈΡΡΠ΅ΠΌΠΎΠΌ
ΠΎΠ±ΡΠ΅ΠΊΡΠ΅ ΡΡΡΠ°Π½Π°Π²Π»ΠΈΠ²Π°Π΅ΡΡΡ ΡΡΠΏΠΈΠΊΠΎΠ²ΡΠΉ ΠΌΠ΅ΡΠΎΠ΄
ΡΠ΅Ρ
Π½ΠΈΡΠ΅ΡΠΊΠΎΠ³ΠΎ ΠΎΠ±ΡΠ»ΡΠΆΠΈΠ²Π°Π½ΠΈΡ. ΠΡΠΈ ΡΡΠΏΠΈΠΊΠΎΠ²ΠΎΠΌ
ΠΌΠ΅ΡΠΎΠ΄Π΅ ΡΠ΅Ρ
Π½ΠΈΡΠ΅ΡΠΊΠΎΠ³ΠΎ ΠΎΠ±ΡΠ»ΡΠΆΠΈΠ²Π°Π½ΠΈΡ Π°Π²ΡΠΎΠΌΠΎΠ±ΠΈΠ»Π΅ΠΉ
Π²ΡΠ΅ ΡΠ°Π±ΠΎΡΡ Π²ΡΠΏΠΎΠ»Π½ΡΡΡ Π½Π° ΠΎΠ΄Π½ΠΎΡΠΈΠΏΠ½ΡΡ
ΡΠ½ΠΈΠ²Π΅ΡΡΠ°Π»ΡΠ½ΡΡ
ΠΏΠΎΡΡΠ°Ρ
, Π·Π° ΠΈΡΠΊΠ»ΡΡΠ΅Π½ΠΈΠ΅ΠΌ ΡΠ±ΠΎΡΠΎΡΠ½ΠΎ-ΠΌΠΎΠ΅ΡΠ½ΡΡ
,
ΠΊΠΎΡΠΎΡΡΠ΅ Π²ΡΠΏΠΎΠ»Π½ΡΡΡ Π½Π° ΠΏΠΎΡΡΠ°Ρ
, ΡΠ°ΡΠΏΠΎΠ»ΠΎΠΆΠ΅Π½Π½ΡΡ
ΠΎΡΠ΄Π΅Π»ΡΠ½ΠΎ, Π² ΡΠΏΠ΅ΡΠΈΠ°Π»ΡΠ½ΡΡ
ΠΏΠΎΠΌΠ΅ΡΠ΅Π½ΠΈΡΡ
ΠΈΠ»ΠΈ
Π½Π° ΠΎΡΠΊΡΡΡΡΡ
ΠΏΠ»ΠΎΡΠ°Π΄ΠΊΠ°Ρ
. ΠΡΠΈ ΠΎΠ±ΡΠ»ΡΠΆΠΈΠ²Π°Π½ΠΈΠΈ
Π°Π²ΡΠΎΠΌΠΎΠ±ΠΈΠ»Π΅ΠΉ Π½Π° ΡΠ½ΠΈΠ²Π΅ΡΡΠ°Π»ΡΠ½ΡΡ
ΠΏΠΎΡΡΠ°Ρ
Π²ΡΠ΅ΠΌΡ ΠΏΡΠ΅Π±ΡΠ²Π°Π½ΠΈΡ Π°Π²ΡΠΎΠΌΠΎΠ±ΠΈΠ»Π΅ΠΉ Π½Π° Π½ΠΈΡ
ΠΌΠΎΠΆΠ΅Ρ
Π±ΡΡΡ ΡΠ°Π·Π»ΠΈΡΠ½ΡΠΌ. ΠΡΠΎ ΠΏΠΎΠ·Π²ΠΎΠ»ΡΠ΅Ρ ΠΎΠ±ΡΠ»ΡΠΆΠΈΠ²Π°ΡΡ
Π½Π° ΠΎΠ΄Π½ΠΎΠΌ ΠΈ ΡΠΎΠΌ ΠΆΠ΅ ΠΏΠΎΡΡΡ Π°Π²ΡΠΎΠΌΠΎΠ±ΠΈΠ»ΠΈ ΡΠ°Π·Π½ΡΡ
ΠΌΠ°ΡΠΎΠΊ ΠΈ ΠΎΠ΄Π½ΠΎΠ²ΡΠ΅ΠΌΠ΅Π½Π½ΠΎ Π²ΡΠΏΠΎΠ»Π½ΡΡΡ ΡΠ°Π±ΠΎΡΡ
ΠΏΠΎ ΡΠ΅ΠΊΡΡΠ΅ΠΌΡ ΡΠ΅ΠΌΠΎΠ½ΡΡ, ΠΏΠΎΡΡΠ΅Π±Π½ΠΎΡΡΡ Π² ΠΊΠΎΡΠΎΡΡΡ
Π²ΡΡΠ²Π»Π΅Π½Π° ΠΏΡΠΈ ΡΠ΅Ρ
Π½ΠΈΡΠ΅ΡΠΊΠΎΠΌ ΠΎΠ±ΡΠ»ΡΠΆΠΈΠ²Π°Π½ΠΈΠΈ,
ΡΡΠΎ ΡΠ²Π»ΡΠ΅ΡΡΡ Π²Π°ΠΆΠ½ΡΠΌ ΠΏΠΎΠ»ΠΎΠΆΠΈΡΠ΅Π»ΡΠ½ΡΠΌ ΡΠ²ΠΎΠΉΡΡΠ²ΠΎΠΌ
ΡΡΠΏΠΈΠΊΠΎΠ²ΠΎΠ³ΠΎ ΠΌΠ΅ΡΠΎΠ΄Π° ΡΠ΅Ρ
Π½ΠΈΡΠ΅ΡΠΊΠΎΠ³ΠΎ ΠΎΠ±ΡΠ»ΡΠΆΠΈΠ²Π°Π½ΠΈΡ.
ΠΠΎΡΡ ΠΎΠ±ΡΠ΅ΠΉ Π΄ΠΈΠ°Π³Π½ΠΎΡΡΠΈΠΊΠΈ Π°Π²ΡΠΎΠΌΠΎΠ±ΠΈΠ»Π΅ΠΉ
5. ΠΡΠΏΠΎΠ»ΡΠ·ΠΎΠ²Π°Π½ΠΈΠ΅Β ΡΡΠ΅Π΄ΡΡΠ²Β
ΡΠ²ΡΠ·ΠΈ,Β Π°Π²ΡΠΎΠΌΠ°ΡΠΈΠΊΠΈ, ΡΠ΅Π»Π΅ΠΌΠ΅Ρ
Π°Π½ΠΈΠΊΠΈΒ
ΠΈΒ Π²ΡΡΠΈΡΠ»ΠΈΡΠ΅Π»ΡΠ½ΠΎΠΉΒ ΡΠ΅Ρ
Π½ΠΈΠΊΠΈ.
Π‘Ρ
Π΅ΠΌΠ° ΡΡΡΡΠΊΡΡΡΡΒ ΡΠΏΡΠ°Π²Π»Π΅Π½ΠΈΡ
ΡΠ΅Ρ
Π½ΠΈΡΠ΅ΡΠΊΠΎΠΉΒ ΡΠ»ΡΠΆΠ±ΠΎΠΉΒ ΠΠ’ΠΒ
Π½Π° ΡΠΈΡΡΠ½ΠΊΠ΅ 2.
Π ΠΈΡΡΠ½ΠΎΠΊ 2 βΒ Π‘Ρ
Π΅ΠΌΠ°Β ΡΡΡΡΠΊΡΡΡΡΒ
ΡΠΏΡΠ°Π²Π»Π΅Π½ΠΈΡ ΡΠ΅Ρ
Π½ΠΈΡΠ΅ΡΠΊΠΎΠΉΒ ΡΠ»ΡΠΆΠ±ΠΎΠΉΒ
ΠΠ’Π
Β
3.2. ΠΠ«ΠΠΠ ΠΠΠ’ΠΠΠ ΠΠ ΠΠΠΠΠΠΠ¦ΠΠ
Π’ΠΠ₯ΠΠΠΠΠΠΠ§ΠΠ‘ΠΠΠΠ ΠΠ ΠΠ¦ΠΠ‘Π‘Π
ΠΠ±ΡΠ°Ρ Π΄ΠΈΠ°Π³Π½ΠΎΡΡΠΈΠΊΠ°Β Π-1 ΠΏΡΠΎΠ²ΠΎΠ΄ΠΈΡΡΡ
ΡΒ ΠΏΠ΅ΡΠΈΠΎΠ΄ΠΈΡΠ½ΠΎΡΡΡΡ Π’Π-1. ΠΒ ΡΠ΅Ρ
Β ΡΠ»ΡΡΠ°ΡΡ
,
ΠΊΠΎΠ³Π΄Π°Β ΡΠ°Π±ΠΎΡΠ° ΠΏΠΎΠ΄Π²ΠΈΠΆΠ½ΠΎΠ³ΠΎ ΡΠΎΡΡΠ°Π²Π°Β
ΠΎΡΡΡΠ΅ΡΡΠ²Π»ΡΠ΅ΡΡΡ Π²Β ΡΡΠ»ΠΎΠ²ΠΈΡΡ
ΠΏΠΎΠ²ΡΡΠ΅Π½Π½ΠΎΠΉ
ΠΎΠΏΠ°ΡΠ½ΠΎΡΡΠΈ ( Π²Β Π±ΠΎΠ»ΡΡΠΈΡ
Β Π³ΠΎΡΠΎΠ΄Π°Ρ
, Π³ΠΎΡΠ½ΡΡ
ΡΡΠ»ΠΎΠ²ΠΈΡΡ
, ΠΏΡΠΈΒ ΠΏΠ΅ΡΠ΅Π²ΠΎΠ·ΠΊΠ΅Β ΠΏΠ°ΡΡΠ°ΠΆΠΈΡΠΎΠ²
ΠΈΒ Π΄Ρ.), ΠΎΠ±ΡΠ°ΡΒ Π΄ΠΈΠ°Π³Π½ΠΎΡΡΠΈΠΊΠ°Β ΠΌΠΎΠΆΠ΅ΡΒ
ΠΏΡΠΎΠ²ΠΎΠ΄ΠΈΡΡΡΡΒ Π΅ΠΆΠ΅Π΄Π½Π΅Π²Π½ΠΎ. ΠΡΠΎΒ ΡΠΏΠΎΡΠΎΠ±ΡΡΠ²ΡΠ΅Ρ
ΠΎΠΏΡΠ΅Π΄Π΅Π»Π΅Π½ΠΈΡΒ ΡΠ΅Ρ
Π½ΠΈΡΠ΅ΡΠΊΠΎΠ³ΠΎ ΡΠΎΡΡΠΎΡΠ½ΠΈΡΒ
ΡΠ·Π»ΠΎΠ²Β ΠΈΒ Π°Π³ΡΠ΅Π³Π°ΡΠΎΠ², ΠΎΠ±Π΅ΡΠΏΠ΅ΡΠΈΠ²Π°ΡΡΠΈΡ
Π±Π΅Π·ΠΎΠΏΠ°ΡΠ½ΠΎΡΡΡ Π΄Π²ΠΈΠΆΠ΅Π½ΠΈΡ Π°Π²ΡΠΎΠΌΠΎΠ±ΠΈΠ»Π΅ΠΉ. ΠΒ
ΠΏΡΠΎΡΠ΅ΡΡΠ΅ Π-1 Π²ΡΠΏΠΎΠ»Π½ΡΡΡΡΡΒ Π½Π΅ΠΎΠ±Ρ
ΠΎΠ΄ΠΈΠΌΡΠ΅Β
ΡΠ΅Π³ΡΠ»ΠΈΡΠΎΠ²ΠΎΡΠ½ΡΠ΅ ΡΠ°Π±ΠΎΡΡ ( Π±Π΅Π·Β Π΄Π΅ΠΌΠΎΠ½ΡΠ°ΠΆΠ°)
ΡΠ·Π»ΠΎΠ²Β ΠΈΒ ΠΌΠ΅Ρ
Π°Π½ΠΈΠ·ΠΌΠΎΠ². Π-1 ΠΌΠΎΠΆΠ΅ΡΒ ΠΏΡΠΈΠΌΠ΅Π½ΡΡΡΡΡΒ
ΡΠΎΠ»ΡΠΊΠΎ Π΄Π»ΡΒ Π²ΡΡΠ²Π»Π΅Π½ΠΈΡΒ ΠΏΡΠΈΠ³ΠΎΠ΄Π½ΠΎΡΡΠΈΒ
Π°Π²ΡΠΎΠΌΠΎΠ±ΠΈΠ»Ρ ΠΊΒ Π΄Π°Π»ΡΠ½Π΅ΠΉΡΠ΅ΠΉ ΡΠΊΡΠΏΠ»ΡΠ°ΡΠ°ΡΠΈΠΈ.
ΠΒ ΡΡΠΎΠΌ ΡΠ»ΡΡΠ°Π΅ Π²Β ΡΠ΅Π·ΡΠ»ΡΡΠ°ΡΠ΅ Π-1 Π²ΡΠ΄Π°Π΅ΡΡΡ
Π·Π°ΠΊΠ»ΡΡΠ΅Π½ΠΈΠ΅ Π²Β ΡΠΎΡΠΌΠ΅Β ΠΠΎΠ΄Π΅Π½Β ΠΈΠ»ΠΈΒ
ΠΠ΅ Π³ΠΎΠ΄Π΅Π½Β ΠΎΒ Π²ΠΎΠ·ΠΌΠΎΠΆΠ½ΠΎΡΡΠΈΒ Π΄Π°Π»ΡΠ½Π΅ΠΉΡΠ΅ΠΉ
ΡΠ°Π±ΠΎΡΡ Π°Π²ΡΠΎΠΌΠΎΠ±ΠΈΠ»Ρ Π±Π΅Π·Β ΡΠ΅Π³ΡΠ»ΠΈΡΠΎΠ²ΠΎΡΠ½ΡΡ
ΠΈΒ ΡΠ΅ΠΌΠΎΠ½ΡΠ½ΡΡ
Β Π²ΠΎΠ·Π΄Π΅ΠΉΡΡΠ²ΠΈΠΉΒ ΠΈΠ»ΠΈΒ
Π½Π΅ΠΎΠ±Ρ
ΠΎΠ΄ΠΈΠΌΠΎΡΡΠΈΒ ΡΡΡΡΠ°Π½Π΅Π½ΠΈΡ Π²ΡΡΠ²Π»Π΅Π½Π½ΡΡ
Π½Π΅ΠΈΡΠΏΡΠ°Π²Π½ΠΎΡΡΠ΅ΠΉ.
ΠΠ±ΡΡΡ Π΄ΠΈΠ°Π³Π½ΠΎΡΡΠΈΠΊΡΒ ΠΏΡΠΎΠΈΠ·Π²ΠΎΠ΄ΡΡ
ΠΏΠ΅ΡΠ΅Π΄Β ΠΊΠ°ΠΆΠ΄ΠΎΠΉ ΠΏΠΎΡΡΠ°Π½ΠΎΠ²ΠΊΠΎΠΉΒ Π°Π²ΡΠΎΠΌΠΎΠ±ΠΈΠ»Ρ
Π½Π° ΠΏΠ΅ΡΠ²ΠΎΠ΅ ΡΠ΅Ρ
Π½ΠΈΡΠ΅ΡΠΊΠΎΠ΅Β ΠΎΠ±ΡΠ»ΡΠΆΠΈΠ²Π°Π½ΠΈΠ΅.
ΠΠΎ Π²ΡΠΏΠΎΠ»Π½Π΅Π½ΠΈΠΈ ΡΠ΅Ρ
Π½ΠΈΡΠ΅ΡΠΊΠΎΠ³ΠΎ ΠΎΠ±ΡΠ»ΡΠΆΠΈΠ²Π°Π½ΠΈΡ
ΠΈ ΡΠ΅ΠΌΠΎΠ½ΡΠ° Π°Π²ΡΠΎΠΌΠΎΠ±ΠΈΠ»ΠΈ ΠΏΠ΅ΡΠ΅Π³ΠΎΠ½ΡΡΡ Π½Π° ΡΡΠΎΡΠ½ΠΊΡ.
ΠΠΎΡΠ»Π΅ ΠΎΠ±ΡΠ΅ΠΉ Π΄ΠΈΠ°Π³Π½ΠΎΡΡΠΈΠΊΠΈ Π°Π²ΡΠΎΠΌΠΎΠ±ΠΈΠ»Ρ ΠΏΠΎΡΡΡΠΏΠ°Π΅Ρ
Π² Π·ΠΎΠ½Ρ Π’Π-1, Π° ΠΏΠΎΡΠ»Π΅ ΡΠ³Π»ΡΠ±Π»Π΅Π½Π½ΠΎΠΉ Π΄ΠΈΠ°Π³Π½ΠΎΡΡΠΈΠΊΠΈ
-Π² Π·ΠΎΠ½Ρ Π’Π-2 ΠΈΠ»ΠΈ ΡΠ΅ΠΊΡΡΠ΅Π³ΠΎ ΡΠ΅ΠΌΠΎΠ½ΡΠ°.Β
ΠΡΠΈ ΠΎΠ±ΡΠ΅ΠΉ Π΄ΠΈΠ°Π³Π½ΠΎΡΡΠΈΠΊΠ΅ ΠΎΠΏΡΠ΅Π΄Π΅Π»ΡΡΡ ΡΠ΅Ρ
Π½ΠΈΡΠ΅ΡΠΊΠΎΠ΅
ΡΠΎΡΡΠΎΡΠ½ΠΈΠ΅ Π°Π³ΡΠ΅Π³Π°ΡΠΎΠ² ΠΈ ΡΠ·Π»ΠΎΠ², ΠΎΠ±Π΅ΡΠΏΠ΅ΡΠΈΠ²Π°ΡΡΠ΅Π΅
Π±Π΅Π·ΠΎΠΏΠ°ΡΠ½ΠΎΡΡΡ Π΄Π²ΠΈΠΆΠ΅Π½ΠΈΡ ΠΈ ΠΏΡΠΈΠ³ΠΎΠ΄Π½ΠΎΡΡΡ
Π°Π²ΡΠΎΠΌΠΎΠ±ΠΈΠ»Ρ ΠΊ ΡΠΊΡΠΏΠ»ΡΠ°ΡΠ°ΡΠΈΠΈ.Β
Π ΠΎΠ±ΡΠ΅ΠΉ Π΄ΠΈΠ°Π³Π½ΠΎΡΡΠΈΠΊΠ΅ Π°Π²ΡΠΎΠΌΠΎΠ±ΠΈΠ»Ρ ΠΎΡΠ½ΠΎΡΠΈΡΡΡ
ΠΈ ΠΎΠΏΡΠ΅Π΄Π΅Π»Π΅Π½ΠΈΠ΅ ΡΠ°ΡΡ
ΠΎΠ΄Π° ΡΠΎΠΏΠ»ΠΈΠ²Π° Π½Π° 100 ΠΊΠΌ
ΠΏΡΡΠΈ. Π₯ΠΎΡΡ ΡΡΠΎΡ ΠΏΠ°ΡΠ°ΠΌΠ΅ΡΡ ΠΏΡΠΎΠ²Π΅ΡΡΠ΅ΡΡΡ
ΠΏΡΠΈ Π΄ΠΈΠ°Π³Π½ΠΎΡΡΠΈΡΠΎΠ²Π°Π½ΠΈΠΈ Π΄Π²ΠΈΠ³Π°ΡΠ΅Π»Ρ, ΡΠ΅ΠΌ Π½Π΅
ΠΌΠ΅Π½Π΅Π΅ ΡΠ°ΡΡ
ΠΎΠ΄ ΡΠΎΠΏΠ»ΠΈΠ²Π° ΡΠ²Π»ΡΠ΅ΡΡΡ Π²ΡΡ
ΠΎΠ΄Π½ΠΎΠΉ
ΡΡΠ½ΠΊΡΠΈΠ΅ΠΉ Π²ΡΠ΅Π³ΠΎ ΡΠ΅Ρ
Π½ΠΈΡΠ΅ΡΠΊΠΎΠ³ΠΎ ΡΠΎΡΡΠΎΡΠ½ΠΈΡ.
Π°Π²ΡΠΎΠΌΠΎΠ±ΠΈΠ»ΡΒ
ΠΡΠΈΠΌΠ΅Π½Π΅Π½ΠΈΠ΅ ΡΡΠ΅Π½Π΄ΠΎΠ² Π΄Π»Ρ ΠΎΠ±ΡΠ΅ΠΉ Π΄ΠΈΠ°Π³Π½ΠΎΡΡΠΈΠΊΠΈ
ΡΠΎΡΡΠΎΡΠ½ΠΈΡ Π² ΠΏΡΠΎΡΠ΅ΡΡΠ΅ ΡΠΊΡΠΏΠ»ΡΠ°ΡΠ°ΡΠΈΠΈ ΠΈ ΠΏΡΠΈ
ΠΎΠ±ΠΊΠ°ΡΠΊΠ΅ ΠΏΠΎΡΠ»Π΅ ΡΠ΅ΠΌΠΎΠ½ΡΠ° Π²Π΅ΡΡΠΌΠ° ΡΡΡΠ΅ΠΊΡΠΈΠ²Π½ΠΎ
Π΄Π°ΠΆΠ΅ ΠΏΡΠΈ Π½Π΅Π±ΠΎΠ»ΡΡΠΎΠΌ ΠΊΠΎΠ»ΠΈΡΠ΅ΡΡΠ²Π΅ ΠΌΠ°ΡΠΈΠ½ ΠΈΠ»ΠΈ
ΠΏΡΠΈ ΠΌΠ°Π»ΠΎΠΉ ΠΌΠΎΡΠ½ΠΎΡΡΠΈ ΡΠ΅ΠΌΠΎΠ½ΡΠ½ΠΎΠ³ΠΎ ΠΏΡΠ΅Π΄ΠΏΡΠΈΡΡΠΈΡ.Β
ΠΠΎΡΡΡ ( Π»ΠΈΠ½ΠΈΠΈ) ΠΎΠ±ΡΠ΅ΠΉ Π΄ΠΈΠ°Π³Π½ΠΎΡΡΠΈΠΊΠΈ ΠΈ ΠΏΠΎΡΠ»Π΅ΠΌΠ΅Π½ΡΠ½ΠΎΠΉ
Π΄ΠΈΠ°Π³Π½ΠΎΡΡΠΈΠΊΠΈ Π½Π΅ΠΎΠ±Ρ
ΠΎΠ΄ΠΈΠΌΠΎ ΡΠ°Π·ΠΌΠ΅ΡΠ°ΡΡ Π² ΠΏΡΠΎΠΈΠ·Π²ΠΎΠ΄ΡΡΠ²Π΅Π½Π½ΠΎΠΌ
ΠΊΠΎΡΠΏΡΡΠ΅ ΠΠ’Π ΡΠ°ΠΊΠΈΠΌ ΠΎΠ±ΡΠ°Π·ΠΎΠΌ, ΡΡΠΎΠ±Ρ Π½Π° Π½ΠΈΡ
ΠΈ Ρ Π½ΠΈΡ
Π°Π²ΡΠΎΠΌΠΎΠ±ΠΈΠ»Ρ, — Π² Π·Π°Π²ΠΈΡΠΈΠΌΠΎΡΡΠΈ ΠΎΡ
Π΅Π³ΠΎ ΡΠ΅Ρ
Π½ΠΈΡΠ΅ΡΠΊΠΎΠ³ΠΎ ΡΠΎΡΡΠΎΡΠ½ΠΈΡ, ΠΌΠΎΠ³ ΠΏΠΎΠΏΠ°ΡΡΡ
ΠΈΠ· Π»ΡΠ±ΠΎΠΉ ΠΈ Π² Π»ΡΠ±ΡΡ Π·ΠΎΠ½Ρ ΠΠ’Π ( Ρ
ΡΠ°Π½Π΅Π½ΠΈΡ,
ΠΎΠΆΠΈΠ΄Π°Π½ΠΈΡ, ΡΠ΅Ρ
Π½ΠΈΡΠ΅ΡΠΊΠΎΠ³ΠΎ ΠΎΠ±ΡΠ»ΡΠΆΠΈΠ²Π°Π½ΠΈΡ,
ΡΠ΅ΠΊΡΡΠ΅Π³ΠΎ ΡΠ΅ΠΌΠΎΠ½ΡΠ°) Ρ ΠΌΠΈΠ½ΠΈΠΌΠ°Π»ΡΠ½ΡΠΌ ΡΠΈΡΠ»ΠΎΠΌ
ΠΏΠ΅ΡΠ΅ΠΌΠ΅ΡΠ΅Π½ΠΈΠΉ ΠΈ ΠΌΠ°Π½Π΅Π²ΡΠΎΠ².
Β
Π Π΅ΠΊΠΎΠΌΠ΅Π½Π΄ΡΠ΅ΠΌΠ°Ρ ΠΏΠ»Π°Π½ΠΈΡΠΎΠ²ΠΊΠ° ΡΡΠ°ΡΡΠΊΠ° Π 1
Π΄Π»Ρ Π³ΡΡΠ·ΠΎΠ²ΡΡ
Π°Π²ΡΠΎΠΌΠΎΠ±ΠΈΠ»Π΅ΠΉ ΠΈ Π°Π²ΡΠΎΠ±ΡΡΠΎΠ².
ΠΠΎΡΡΡ ( Π»ΠΈΠ½ΠΈΠΈ) ΠΎΠ±ΡΠ΅ΠΉ Π΄ΠΈΠ°Π³Π½ΠΎΡΡΠΈΠΊΠΈ ( Π-1) Π²
ΠΏΡΠΎΠΈΠ·Π²ΠΎΠ΄ΡΡΠ²Π΅Π½Π½ΠΎΠΌ ΠΊΠΎΡΠΏΡΡΠ΅ ΠΠ’Π Π΄ΠΎΠ»ΠΆΠ½Ρ
ΡΠ°Π·ΠΌΠ΅ΡΠ°ΡΡΡΡ ΡΠ°ΠΊΠΈΠΌ ΠΎΠ±ΡΠ°Π·ΠΎΠΌ, ΡΡΠΎΠ±Ρ Π½Π° Π½ΠΈΡ
ΠΈ Ρ Π½ΠΈΡ
Π°Π²ΡΠΎΠΌΠΎΠ±ΠΈΠ»ΠΈ ΠΌΠΎΠ³Π»ΠΈ ΠΏΠΎΠΏΠ°Π΄Π°ΡΡ Π² Π·ΠΎΠ½Ρ
Ρ
ΡΠ°Π½Π΅Π½ΠΈΡ, ΠΎΠΆΠΈΠ΄Π°Π½ΠΈΡ ΠΈ ΡΠ΅ΠΊΡΡΠ΅Π³ΠΎ ΡΠ΅ΠΌΠΎΠ½ΡΠ°
Ρ ΠΌΠΈΠ½ΠΈΠΌΠ°Π»ΡΠ½ΡΠΌ ΡΠΈΡΠ»ΠΎΠΌ ΠΏΠ΅ΡΠ΅Π΅Π·Π΄ΠΎΠ² ΠΈ ΠΌΠ°Π½Π΅Π²ΡΠΎΠ².Β
ΠΠ° ΠΏΠΎΡΡΠ°Ρ
( Π»ΠΈΠ½ΠΈΡΡ
) ΠΎΠ±ΡΠ΅ΠΉ Π΄ΠΈΠ°Π³Π½ΠΎΡΡΠΈΠΊΠΈ
ΡΡΠΈ ΡΡΠ½ΠΊΡΠΈΠΈ Π²ΠΎΠ·Π»ΠΎΠΆΠ΅Π½Ρ Π½Π° Π²ΠΎΠ΄ΠΈΡΠ΅Π»Π΅ΠΉ-ΠΏΠ΅ΡΠ΅Π³ΠΎΠ½ΡΠΈΠΊΠΎΠ².Β
Π Π²ΡΠΏΠΎΠΌΠΎΠ³Π°ΡΠ΅Π»ΡΠ½ΠΎΠΌ ΠΊΠΎΡΠΏΡΡΠ΅ ΡΠ°ΡΠΏΠΎΠ»ΠΎΠΆΠ΅Π½Ρ:
Π»ΠΈΠ½ΠΈΠΈ ΠΠ, Π»ΠΈΠ½ΠΈΡ ΠΎΠ±ΡΠ΅ΠΉ Π΄ΠΈΠ°Π³Π½ΠΎΡΡΠΈΠΊΠΈ, ΠΌΠ°Π»ΡΡΠ½ΠΎΠ΅
ΠΎΡΠ΄Π΅Π»Π΅Π½ΠΈΠ΅ ΠΈ ΠΎΡΠ΄Π΅Π»Π΅Π½ΠΈΠ΅ ΠΎΠ±ΡΠ»ΡΠΆΠΈΠ²Π°Π½ΠΈΡ ΡΠΈΠ½
ΡΠΎ ΡΠΊΠ»Π°Π΄ΠΎΠΌ ΡΠΈΠ½ ΠΈ Ρ Π΄Π²ΡΡ
ΠΏΠΎΡΡΠΎΠ²ΠΎΠΉ ΠΏΡΠΎΠ΅Π·Π΄Π½ΠΎΠΉ
ΡΡΡΠ°ΠΊΠ°Π΄ΠΎΠΉ Π΄Π»Ρ ΠΏΠ΅ΡΠ΅ΠΌΠΎΠ½ΡΠ°ΠΆΠ° ΠΊΠΎΠ»Π΅Ρ.Β
ΠΠ»Ρ Π΄ΠΈΠ°Π³Π½ΠΎΡΡΠΈΠΊΠΈ Π°Π²ΡΠΎΠΌΠΎΠ±ΠΈΠ»Π΅ΠΉ Π°Π²ΡΠΎΡΡΠ°Π½ΡΠΏΠΎΡΡΠ½ΠΎΠ΅
ΠΏΡΠ΅Π΄ΠΏΡΠΈΡΡΠΈΠ΅ Π΄ΠΎΠ»ΠΆΠ½ΠΎ ΠΈΠΌΠ΅ΡΡ ΠΏΠΎΡΡΡ ( Π»ΠΈΠ½ΠΈΠΈ)
ΠΎΠ±ΡΠ΅ΠΉ Π΄ΠΈΠ°Π³Π½ΠΎΡΡΠΈΠΊΠΈ Π°Π²ΡΠΎΠΌΠΎΠ±ΠΈΠ»Π΅ΠΉ; ΠΏΠΎΡΡΡ
ΠΏΠΎΡΠ»Π΅ΠΌΠ΅Π½ΡΠ½ΠΎΠΉ
Π‘ΡΠ΅Π½Π΄ΡΒ Π΄Π»ΡΒ ΠΏΡΠΎΠ²Π΅ΡΠΊΠΈ ΡΠΎΡΠΌΠΎΠ·ΠΎΠ²,
ΠΏΠ΅ΡΠ΅Π΄Π½Π΅Π³ΠΎΒ ΠΌΠΎΡΡΠ°Β ΠΈΒ ΠΏΡΠΈΠ±ΠΎΡΡ, Π½Π΅ΠΎΠ±Ρ
ΠΎΠ΄ΠΈΠΌΡΠ΅Β
ΠΏΡΠΈΒ ΠΎΠ±ΡΠ΅ΠΉΒ Π΄ΠΈΠ°Π³Π½ΠΎΡΡΠΈΠΊΠ΅, ΠΌΠΎΠ³ΡΡΒ
ΡΠ°Π·ΠΌΠ΅ΡΠ°ΡΡΡΡΒ Π²Β ΠΎΡΠ΄Π΅Π»ΡΠ½ΠΎΠΉΒ Π·ΠΎΠ½Π΅
ΠΏΡΠΎΠΈΠ·Π²ΠΎΠ΄ΡΡΠ²Π΅Π½Π½ΠΎΠ³ΠΎΒ ΠΊΠΎΡΠΏΡΡΠ°Β
ΠΏΡΠ΅Π΄ΠΏΡΠΈΡΡΠΈΡΒ ΠΈΠ»ΠΈΒ
Π½Π° ΠΏΠΎΡΡΠ°Ρ
Π’Π-1.
ΠΡΠ»ΠΈ ΠΏΡΠΈΒ ΠΎΠ±ΡΠ΅ΠΉΒ Π΄ΠΈΠ°Π³Π½ΠΎΡΡΠΈΠΊΠ΅Β
Π²ΡΡΠ²ΠΈΡΡΡ ΠΏΠΎΡΡΠ΅Π±Π½ΠΎΡΡΡΒ Π²Β ΡΠ΅ΠΌΠΎΠ½ΡΠ΅,
ΡΠΎ Π°Π²ΡΠΎΠΌΠΎΠ±ΠΈΠ»Ρ Π½Π°ΠΏΡΠ°Π²Π»ΡΡΡ Π²Β Π·ΠΎΠ½Ρ ΡΠ΅ΠΊΡΡΠ΅Π³ΠΎ
ΡΠ΅ΠΌΠΎΠ½ΡΠ°.Β
ΠΠΎΠ»ΠΈΡΠ΅ΡΡΠ²ΠΎ ΠΏΠΎΠ΄ΠΏΠΎΡΠ½ΡΡ
ΠΏΠΎΡΡΠΎΠ², Π½Π° ΠΊΠΎΡΠΎΡΡΡ
Π°Π²ΡΠΎΠΌΠΎΠ±ΠΈΠ»ΠΈ ΠΎΠΆΠΈΠ΄Π°ΡΡ ΡΠ²ΠΎΠ΅ΠΉ ΠΎΡΠ΅ΡΠ΅Π΄ΠΈ ΠΎΠ±ΡΠ»ΡΠΆΠΈΠ²Π°Π½ΠΈΡ,
ΠΏΡΠΈΠ½ΠΈΠΌΠ°Π΅ΡΡΡ: ΠΏΠ΅ΡΠ΅Π΄ ΠΏΠΎΡΡΠ°ΠΌΠΈ ΠΌΠΎΠΉΠΊΠΈ ΠΈ ΠΎΠ±ΡΠ΅ΠΉ
Π΄ΠΈΠ°Π³Π½ΠΎΡΡΠΈΠΊΠΈ — 50 % ΡΠ°ΡΠΎΠ²ΠΎΠΉ ΠΏΡΠΎΠ³ΡΠ°ΠΌΠΌΡ; ΠΏΠ΅ΡΠ΅Π΄
ΠΏΠΎΡΡΠ°ΠΌΠΈ Π’Π-1, Π’Π-2 ΠΈ ΡΠ³Π»ΡΠ±Π»Π΅Π½Π½ΠΎΠΉ Π΄ΠΈΠ°Π³Π½ΠΎΡΡΠΈΠΊΠΈ
— ΠΏΠΎ 50 % ΡΠΌΠ΅Π½Π½ΠΎΠΉ ΠΏΡΠΎΠ³ΡΠ°ΠΌΠΌΡ; ΠΏΠ΅ΡΠ΅Π΄ ΠΏΠΎΡΡΠ°ΠΌΠΈ
ΡΠ΅ΠΊΡΡΠ΅Π³ΠΎ ΡΠ΅ΠΌΠΎΠ½ΡΠ° — 50 % ΡΠ°Π±ΠΎΡΠΈΡ
ΠΏΠΎΡΡΠΎΠ².Β
Π‘ΡΠ΅Π½Π΄Ρ Π΄Π»Ρ ΠΏΡΠΎΠ²Π΅ΡΠΊΠΈ ΡΠΎΡΠΌΠΎΠ·ΠΎΠ², ΠΏΠ΅ΡΠ΅Π΄Π½Π΅Π³ΠΎ
ΠΌΠΎΡΡΠ° ΠΈ ΠΏΡΠΈΠ±ΠΎΡΡ, Π½Π΅ΠΎΠ±Ρ
ΠΎΠ΄ΠΈΠΌΡΠ΅ ΠΏΡΠΈ ΠΎΠ±ΡΠ΅ΠΉ
Π΄ΠΈΠ°Π³Π½ΠΎΡΡΠΈΠΊΠ΅, ΠΌΠΎΠ³ΡΡ ΡΠ°Π·ΠΌΠ΅ΡΠ°ΡΡΡΡ Π² ΠΎΡΠ΄Π΅Π»ΡΠ½ΠΎΠΉ
Π·ΠΎΠ½Π΅ ΠΏΡΠΎΠΈΠ·Π²ΠΎΠ΄ΡΡΠ²Π΅Π½Π½ΠΎΠ³ΠΎ ΠΊΠΎΡΠΏΡΡΠ° Π°Π²ΡΠΎΡΡΠ°Π½ΡΠΏΠΎΡΡΠ½ΠΎΠ³ΠΎ
ΠΏΡΠ΅Π΄ΠΏΡΠΈΡΡΠΈΡ ΠΈΠ»ΠΈ Π½Π΅ΠΏΠΎΡΡΠ΅Π΄ΡΡΠ²Π΅Π½Π½ΠΎ Π½Π° ΠΏΠΎΡΡΠ°Ρ
Π’Π-1. ΠΡΠ»ΠΈ ΠΏΡΠΈ ΠΎΠ±ΡΠ΅ΠΉ Π΄ΠΈΠ°Π³Π½ΠΎΡΡΠΈΠΊΠ΅ Π²ΡΡΠ²ΠΈΡΡΡ
ΠΏΠΎΡΡΠ΅Π±Π½ΠΎΡΡΡ Π² ΡΠ΅ΠΌΠΎΠ½ΡΠ΅, ΡΠΎ Π°Π²ΡΠΎΠΌΠΎΠ±ΠΈΠ»Ρ
Π½Π°ΠΏΡΠ°Π²Π»ΡΡΡ Π² Π·ΠΎΠ½Ρ ΡΠ΅ΠΊΡΡΠ΅Π³ΠΎ ΡΠ΅ΠΌΠΎΠ½ΡΠ°.Β
ΠΠ±ΡΠ°Ρ Π΄ΠΈΠ°Π³Π½ΠΎΡΡΠΈΠΊΠ° Π-1 ΠΏΡΠΎΠ²ΠΎΠ΄ΠΈΡΡΡ Ρ ΠΏΠ΅ΡΠΈΠΎΠ΄ΠΈΡΠ½ΠΎΡΡΡΡ
Π’Π-1. Π ΡΠ΅Ρ
ΡΠ»ΡΡΠ°ΡΡ
, ΠΊΠΎΠ³Π΄Π° ΡΠ°Π±ΠΎΡΠ° ΠΏΠΎΠ΄Π²ΠΈΠΆΠ½ΠΎΠ³ΠΎ
ΡΠΎΡΡΠ°Π²Π° ΠΎΡΡΡΠ΅ΡΡΠ²Π»ΡΠ΅ΡΡΡ Π² ΡΡΠ»ΠΎΠ²ΠΈΡΡ
ΠΏΠΎΠ²ΡΡΠ΅Π½Π½ΠΎΠΉ
ΠΎΠΏΠ°ΡΠ½ΠΎΡΡΠΈ ( Π² Π±ΠΎΠ»ΡΡΠΈΡ
Π³ΠΎΡΠΎΠ΄Π°Ρ
, Π³ΠΎΡΠ½ΡΡ
ΡΡΠ»ΠΎΠ²ΠΈΡΡ
, ΠΏΡΠΈ ΠΏΠ΅ΡΠ΅Π²ΠΎΠ·ΠΊΠ΅ ΠΏΠ°ΡΡΠ°ΠΆΠΈΡΠΎΠ² ΠΈ
Π΄Ρ.), ΠΎΠ±ΡΠ°Ρ Π΄ΠΈΠ°Π³Π½ΠΎΡΡΠΈΠΊΠ° ΠΌΠΎΠΆΠ΅Ρ ΠΏΡΠΎΠ²ΠΎΠ΄ΠΈΡΡΡΡ
Π΅ΠΆΠ΅Π΄Π½Π΅Π²Π½ΠΎ.
ΠΡΠΎ ΡΠΏΠΎΡΠΎΠ±ΡΡΠ²ΡΠ΅Ρ ΠΎΠΏΡΠ΅Π΄Π΅Π»Π΅Π½ΠΈΡ
ΡΠ΅Ρ
Π½ΠΈΡΠ΅ΡΠΊΠΎΠ³ΠΎ ΡΠΎΡΡΠΎΡΠ½ΠΈΡ ΡΠ·Π»ΠΎΠ² ΠΈ Π°Π³ΡΠ΅Π³Π°ΡΠΎΠ²,
ΠΎΠ±Π΅ΡΠΏΠ΅ΡΠΈΠ²Π°ΡΡΠΈΡ
Π±Π΅Π·ΠΎΠΏΠ°ΡΠ½ΠΎΡΡΡ Π΄Π²ΠΈΠΆΠ΅Π½ΠΈΡ
Π°Π²ΡΠΎΠΌΠΎΠ±ΠΈΠ»Π΅ΠΉ. Π ΠΏΡΠΎΡΠ΅ΡΡΠ΅ Π-1 Π²ΡΠΏΠΎΠ»Π½ΡΡΡΡΡ
Π½Π΅ΠΎΠ±Ρ
ΠΎΠ΄ΠΈΠΌΡΠ΅ ΡΠ΅Π³ΡΠ»ΠΈΡΠΎΠ²ΠΎΡΠ½ΡΠ΅ ΡΠ°Π±ΠΎΡΡ ( Π±Π΅Π·
Π΄Π΅ΠΌΠΎΠ½ΡΠ°ΠΆΠ°) ΡΠ·Π»ΠΎΠ² ΠΈ ΠΌΠ΅Ρ
Π°Π½ΠΈΠ·ΠΌΠΎΠ². Π-1 ΠΌΠΎΠΆΠ΅Ρ
ΠΏΡΠΈΠΌΠ΅Π½ΡΡΡΡΡ ΡΠΎΠ»ΡΠΊΠΎ Π΄Π»Ρ Π²ΡΡΠ²Π»Π΅Π½ΠΈΡ ΠΏΡΠΈΠ³ΠΎΠ΄Π½ΠΎΡΡΠΈ
Π°Π²ΡΠΎΠΌΠΎΠ±ΠΈΠ»Ρ ΠΊ Π΄Π°Π»ΡΠ½Π΅ΠΉΡΠ΅ΠΉ ΡΠΊΡΠΏΠ»ΡΠ°ΡΠ°ΡΠΈΠΈ.
Π ΡΡΠΎΠΌ ΡΠ»ΡΡΠ°Π΅ Π² ΡΠ΅Π·ΡΠ»ΡΡΠ°ΡΠ΅ Π-1 Π²ΡΠ΄Π°Π΅ΡΡΡ
Π·Π°ΠΊΠ»ΡΡΠ΅Π½ΠΈΠ΅ Π² ΡΠΎΡΠΌΠ΅ ΠΠΎΠ΄Π΅Π½ ΠΈΠ»ΠΈ ΠΠ΅ Π³ΠΎΠ΄Π΅Π½
ΠΎ Π²ΠΎΠ·ΠΌΠΎΠΆΠ½ΠΎΡΡΠΈ Π΄Π°Π»ΡΠ½Π΅ΠΉΡΠ΅ΠΉ ΡΠ°Π±ΠΎΡΡ Π°Π²ΡΠΎΠΌΠΎΠ±ΠΈΠ»Ρ
Π±Π΅Π· ΡΠ΅Π³ΡΠ»ΠΈΡΠΎΠ²ΠΎΡΠ½ΡΡ
ΠΈ ΡΠ΅ΠΌΠΎΠ½ΡΠ½ΡΡ
Π²ΠΎΠ·Π΄Π΅ΠΉΡΡΠ²ΠΈΠΉ
ΠΈΠ»ΠΈ Π½Π΅ΠΎΠ±Ρ
ΠΎΠ΄ΠΈΠΌΠΎΡΡΠΈ ΡΡΡΡΠ°Π½Π΅Π½ΠΈΡ Π²ΡΡΠ²Π»Π΅Π½Π½ΡΡ
Π½Π΅ΠΈΡΠΏΡΠ°Π²Π½ΠΎΡΡΠ΅ΠΉ.Β
Π’Π΅Ρ
Π½ΠΈΡΠ΅ΡΠΊΠ°Ρ Π΄ΠΈΠ°Π³Π½ΠΎΡΡΠΈΠΊΠ° ΠΌΠΎΠΆΠ΅Ρ Π±ΡΡΡ ΠΎΠ±ΡΠ΅ΠΉ
ΠΈ ΠΏΠΎΡΠ»Π΅ΠΌΠ΅Π½ΡΠ½ΠΎΠΉ. ΠΡΠΈ ΠΏΠΎΡΠ»Π΅ΠΌΠ΅Π½ΡΠ½ΠΎΠΉ Π΄ΠΈΠ°Π³Π½ΠΎΡΡΠΈΠΊΠ΅
ΡΡΠ°Π²ΠΈΡΡΡ Π·Π°Π΄Π°ΡΠ° Π½Π°ΠΉΡΠΈ Π½Π΅ΠΈΡΠΏΡΠ°Π²Π½ΡΠΉ ΡΠ·Π΅Π»,
Π΅ΡΠ»ΠΈ ΠΌΠ°ΡΠΈΠ½Π° Π½Π°Ρ
ΠΎΠ΄ΠΈΡΡΡ Π² Π½Π΅ΡΠ΄ΠΎΠ²Π»Π΅ΡΠ²ΠΎΡΠΈΡΠ΅Π»ΡΠ½ΠΎΠΌ
ΡΠΎΡΡΠΎΡΠ½ΠΈΠΈ. ΠΠ±ΡΠ°Ρ Π΄ΠΈΠ°Π³Π½ΠΎΡΡΠΈΠΊΠ° Π²ΠΎ Π²ΡΠ΅Ρ
ΡΠ»ΡΡΠ°ΡΡ
ΠΌΠ΅Π½Π΅Π΅ ΡΠ»ΠΎΠΆΠ½Π°, ΡΠ΅ΠΌ ΠΏΠΎΡΠ»Π΅ΠΌΠ΅Π½ΡΠ½Π°Ρ.Β
Π Π°Π²ΡΠΎΡΡΠ°Π½ΡΠΏΠΎΡΡΠ½ΡΡ
ΠΏΡΠ΅Π΄ΠΏΡΠΈΡΡΠΈΡΡ
Π²Π½Π΅Π΄ΡΡΡΡΡΡ
ΡΠΏΠΎΡΠΎΠ±Ρ Π΄ΠΈΠ°Π³Π½ΠΎΡΡΠΈΠΊΠΈ ΡΠ΅Ρ
Π½ΠΈΡΠ΅ΡΠΊΠΎΠ³ΠΎ ΡΠΎΡΡΠΎΡΠ½ΠΈΡ
Π°Π²ΡΠΎΠΌΠΎΠ±ΠΈΠ»Ρ. ΠΠΈΠ°Π³Π½ΠΎΡΡΠΈΠΊΠ° ΠΏΡΠ΅Π΄ΡΡΠ°Π²Π»ΡΠ΅Ρ
ΡΠΎΠ±ΠΎΠΉ ΡΠΈΡΡΠ΅ΠΌΡ ΠΏΡΠΎΠ²Π΅ΡΠΊΠΈ ΡΠ΅Ρ
Π½ΠΈΡΠ΅ΡΠΊΠΎΠ³ΠΎ
ΡΠΎΡΡΠΎΡΠ½ΠΈΡ Π°Π²ΡΠΎΠΌΠΎΠ±ΠΈΠ»Ρ Π±Π΅Π· ΡΠ°Π·Π±ΠΎΡΠΊΠΈ Π΅Π³ΠΎ
ΡΠ·Π»ΠΎΠ² ΠΈ Π°Π³ΡΠ΅Π³Π°ΡΠΎΠ², ΠΏΡΡΠ΅ΠΌ ΠΈΡΠΏΠΎΠ»ΡΠ·ΠΎΠ²Π°Π½ΠΈΡ
ΡΠΏΠ΅ΡΠΈΠ°Π»ΡΠ½ΠΎΠ³ΠΎ ΠΎΠ±ΠΎΡΡΠ΄ΠΎΠ²Π°Π½ΠΈΡ, ΠΏΠΎΠ·Π²ΠΎΠ»ΡΡΡΠ΅Π³ΠΎ
Π΄Π°ΡΡ ΠΎΠ±ΡΠ΅ΠΊΡΠΈΠ²Π½ΡΡ ΠΎΡΠ΅Π½ΠΊΡ ΠΏΡΠΈΠ³ΠΎΠ΄Π½ΠΎΡΡΠΈ
Π°Π²ΡΠΎΠΌΠΎΠ±ΠΈΠ»Ρ Π΄Π»Ρ Π΄Π°Π»ΡΠ½Π΅ΠΉΡΠ΅ΠΉ ΡΠΊΡΠΏΠ»ΡΠ°ΡΠ°ΡΠΈΠΈ.
ΠΡΠΈ ΠΎΠ±ΡΠ΅ΠΉ Π΄ΠΈΠ°Π³Π½ΠΎΡΡΠΈΠΊΠ΅ ΠΎΠΏΡΠ΅Π΄Π΅Π»ΡΡΡ ΡΠ΅Ρ
Π½ΠΈΡΠ΅ΡΠΊΠΎΠ΅
ΡΠΎΡΡΠΎΡΠ½ΠΈΠ΅ Π°Π³ΡΠ΅Π³Π°ΡΠΎΠ² ΠΈ ΡΠ·Π»ΠΎΠ² Π°Π²ΡΠΎΠΌΠΎΠ±ΠΈΠ»Ρ,
ΠΎΠ±Π΅ΡΠΏΠ΅ΡΠΈΠ²Π°ΡΡΠΈΡ
Π±Π΅Π·ΠΎΠΏΠ°ΡΠ½ΠΎΡΡΡ Π΄Π²ΠΈΠΆΠ΅Π½ΠΈΡ.
ΠΠΎΡΠ»Π΅ΠΌΠ΅Π½ΡΠ½Π°Ρ Π΄ΠΈΠ°Π³Π½ΠΎΡΡΠΈΠΊΠ° ΠΏΠΎΠ·Π²ΠΎΠ»ΡΠ΅Ρ ΠΎΠΏΡΠ΅Π΄Π΅Π»ΠΈΡΡ
ΡΠ΅Ρ
Π½ΠΈΡΠ΅ΡΠΊΠΎΠ΅ ΡΠΎΡΡΠΎΡΠ½ΠΈΠ΅ Π°Π³ΡΠ΅Π³Π°ΡΠΎΠ² ΠΈ ΡΠ·Π»ΠΎΠ²
Π°Π²ΡΠΎΠΌΠΎΠ±ΠΈΠ»Ρ, Π²ΡΡΠ²ΠΈΡΡ ΠΏΡΠΈΡΠΈΠ½Ρ Π²ΠΎΠ·Π½ΠΈΠΊΠ½ΠΎΠ²Π΅Π½ΠΈΡ
ΡΠ΅Ρ
ΠΈΠ»ΠΈ ΠΈΠ½ΡΡ
Π½Π΅ΠΈΡΠΏΡΠ°Π²Π½ΠΎΡΡΠ΅ΠΉ ΠΈ ΡΡΠΎΡΠ½ΠΈΡΡ
ΠΎΠ±ΡΠ΅ΠΌ Π½Π΅ΠΎΠ±Ρ
ΠΎΠ΄ΠΈΠΌΡΡ
ΡΠ°Π±ΠΎΡ ΠΏΠΎ ΡΠ΅Ρ
Π½ΠΈΡΠ΅ΡΠΊΠΎΠΌΡ
ΠΎΠ±ΡΠ»ΡΠΆΠΈΠ²Π°Π½ΠΈΡ ΠΈ ΡΠ΅ΠΌΠΎΠ½ΡΡ Π°Π²ΡΠΎΠΌΠΎΠ±ΠΈΠ»Ρ.
Β Β Β Β Β Β Β Β Β Β Β Β Β Β Β
3.2.2Β Β ΠΠ»ΠΎΠΊ-ΡΡ
Π΅ΠΌΠ° Π΄ΠΈΠ°Π³Π½ΠΎΡΡΠΈΡΠΎΠ²Π°Π½ΠΈΡ
Π°Π²ΡΠΎΠΌΠΎΠ±ΠΈΠ»Ρ
ΠΠΈΠ°Π³Π½ΠΎΡΡΠΈΡΠΎΠ²Π°Π½ΠΈΠ΅Β Π°Π²ΡΠΎΠΌΠΎΠ±ΠΈΠ»Ρ
Π²Β ΡΠ΅Π»ΠΎΠΌΒ ΠΈΒ Π΅Π³ΠΎΒ ΡΠ»Π΅ΠΌΠ΅Π½ΡΠΎΠ²Β
Π΄ΠΎΠ»ΠΆΠ½ΠΎ ΠΏΡΠΎΠ²ΠΎΠ΄ΠΈΡΡΡΡΒ Π²Β ΠΎΠΏΡΠ΅Π΄Π΅Π»Π΅Π½Π½ΠΎΠΌ
ΠΏΠΎΡΡΠ΄ΠΊΠ΅, ΠΈΡΠΏΠΎΠ»ΡΠ·ΡΡΡΠ΅ΠΌ ΠΏΠΎΡΠ»Π΅Π΄ΠΎΠ²Π°ΡΠ΅Π»ΡΠ½ΡΠ΅,
ΡΡΠ»ΠΎΠ²Π½ΡΠ΅ ΠΏΡΠΎΠ²Π΅ΡΠΊΠΈ. Π‘Β ΡΡΠΎΠΉ ΡΠ΅Π»ΡΡΒ
Π²Π΅ΡΡ Π°Π²ΡΠΎΠΌΠΎΠ±ΠΈΠ»Ρ ΠΌΠΎΠΆΠ½ΠΎΒ ΡΠ°Π·Π΄Π΅Π»ΠΈΡΡΒ
Π½Π° ΡΡΠΎΠ²Π½ΠΈ (ΡΠΈΡ. 2.3). ΠΠ΅ΡΠ²ΡΠΉ ΡΡΠΎΠ²Π΅Π½ΡΒ Π²ΠΊΠ»ΡΡΠ°Π΅Ρ
Π²Β ΡΠ΅Π±Ρ ΠΎΠ±ΡΠ΅Π΅Β Π΄ΠΈΠ°Π³Π½ΠΎΡΡΠΈΡΠΎΠ²Π°Π½ΠΈΠ΅ Π°Π²ΡΠΎΠΌΠΎΠ±ΠΈΠ»Ρ
ΡΒ ΡΠ΅Π»ΡΡΒ ΠΎΠΏΡΠ΅Π΄Π΅Π»Π΅Π½ΠΈΡΒ Π΅Π³ΠΎΒ
Π²ΡΡ
ΠΎΠ΄Π½ΡΡ
ΠΏΠΎΠΊΠ°Π·Π°ΡΠ΅Π»Π΅ΠΉΒ ΠΏΡΠΎΠΈΠ·Π²ΠΎΠ΄ΠΈΡΠ΅Π»ΡΠ½ΠΎΡΡΠΈ
ΠΈΒ ΡΠΊΠΎΠ½ΠΎΠΌΠΈΡΠ΅ΡΠΊΠΎΠΉΒ ΡΡΡΠ΅ΠΊΡΠΈΠ²Π½ΠΎΡΡΠΈ.
ΠΠ° Π²ΡΠΎΡΠΎΠΌ ΡΡΠΎΠ²Π½Π΅ Π΄ΠΈΠ°Π³Π½ΠΎΡΡΠΈΡΡΡΡΡΡΒ ΡΠ°ΡΡΠΈΒ
Π°Π²ΡΠΎΠΌΠΎΠ±ΠΈΠ»Ρ, ΡΠ°ΠΊΠΈΠ΅, ΠΊΠ°ΠΊΒ Π΄Π²ΠΈΠ³Π°ΡΠ΅Π»Ρ, ΡΠ»Π΅ΠΊΡΡΠΎΠΎΠ±ΠΎΡΡΠ΄ΠΎΠ²Π°Π½ΠΈΠ΅,
ΡΡΠ°Π½ΡΠΌΠΈΡΡΠΈΡ, Ρ
ΠΎΠ΄ΠΎΠ²Π°ΡΒ ΡΠ°ΡΡΡ, ΡΡΠ»Π΅Π²ΠΎΠ΅Β
ΡΠΏΡΠ°Π²Π»Π΅Π½ΠΈΠ΅, ΡΠΎΡΠΌΠΎΠ·Π½ΡΠ΅Β ΡΠΈΡΡΠ΅ΠΌΡΒ ΠΈΒ
Π΄ΠΎΠΏΠΎΠ»Π½ΠΈΡΠ΅Π»ΡΠ½ΠΎΠ΅ ΠΎΠ±ΠΎΡΡΠ΄ΠΎΠ²Π°Π½ΠΈΠ΅ Π²Β ΡΠ΅Π»ΠΎΠΌ.
ΠΒ ΡΡΠ΅ΡΠΈΠΉ ΡΡΠΎΠ²Π΅Π½ΡΒ Π²Ρ
ΠΎΠ΄ΠΈΡ Π΄ΠΈΠ°Π³Π½ΠΎΡΡΠΈΡΠΎΠ²Π°Π½ΠΈΠ΅
Π°Π³ΡΠ΅Π³Π°ΡΠΎΠ²Β ΠΌΠ΅Ρ
Π°Π½ΠΈΠ·ΠΌΠΎΠ², ΡΠΈΡΡΠ΅ΠΌ, ΠΏΡΠΈΠ±ΠΎΡΠΎΠ²,
ΡΡΡΡΠΎΠΉΡΡΠ². Π§Π΅ΡΠ²Π΅ΡΡΡΠΉΒ ΡΡΠΎΠ²Π΅Π½ΡΒ Π²ΠΊΠ»ΡΡΠ°Π΅Ρ
Π²Β ΡΠ΅Π±Ρ Π΄ΠΈΠ°Π³Π½ΠΎΡΡΠΈΡΠΎΠ²Π°Π½ΠΈΠ΅ ΠΏΠΎΠ΄Π²ΠΈΠΆΠ½ΡΡ
Β
ΡΠΎΠΏΡΡΠΆΠ΅Π½ΠΈΠΉ ΡΠΈΠΏΠ°: Π΄Π΅ΡΠ°Π»Ρ ΡΒ Π΄Π΅ΡΠ°Π»ΡΡ,
Π΄Π΅ΡΠ°Π»Ρ ΡΒ Π²Π½Π΅ΡΠ½Π΅ΠΉΒ ΡΡΠ΅Π΄ΠΎΠΉ. ΠΠ° ΠΏΡΡΠΎΠΌΒ
ΡΡΠΎΠ²Π½Π΅ ΡΠ°ΡΡΠΌΠ°ΡΡΠΈΠ²Π°ΡΡΡΡΒ ΠΎΡΠ΄Π΅Π»ΡΠ½ΡΠ΅Β
Π΄Π΅ΡΠ°Π»ΠΈ. ΠΡΠΏΠΎΠ»ΡΠ·ΠΎΠ²Π°Π½ΠΈΠ΅Β ΠΏΡΠ΅Π΄Π»ΠΎΠΆΠ΅Π½Π½ΠΎΠΉ
ΠΊΠ»Π°ΡΡΠΈΡΠΈΠΊΠ°ΡΠΈΠΈΒ ΠΏΠΎΠ·Π²ΠΎΠ»ΡΠ΅ΡΒ Π±ΠΎΠ»Π΅Π΅Β
ΡΡΡΠΎΠ³ΠΎ ΠΏΠΎΠ΄ΠΎΠΉΡΠΈΒ ΠΊΒ ΡΠ°ΡΡΠΌΠΎΡΡΠ΅Π½ΠΈΡ Π²ΡΠ΅Ρ
ΠΏΠΎΡΠ»Π΅Π΄ΡΡΡΠΈΡ
Β ΠΌΠ°ΡΠ΅ΡΠΈΠ°Π»ΠΎΠ², Π½Π°ΡΠ°Π²Β ΡΒ
ΠΎΠ±ΡΠ΅Π³ΠΎ Π΄ΠΈΠ°Π³Π½ΠΎΡΡΠΈΡΠΎΠ²Π°Π½ΠΈΡ Π°Π²ΡΠΎΠΌΠΎΠ±ΠΈΠ»Ρ ΠΈΒ
Π·Π°ΠΊΠΎΠ½ΡΠΈΠ² ΡΡΠΎΡ ΠΏΡΠΎΡΠ΅ΡΡΒ ΡΠΎΠΏΡΡΠΆΠ΅Π½ΠΈΡΠΌΠΈ
ΠΈΒ ΠΏΡΠΈΒ Π½Π΅ΠΎΠ±Ρ
ΠΎΠ΄ΠΈΠΌΠΎΡΡΠΈΒ Π΄Π΅ΡΠ°Π»ΡΠΌΠΈ.
Π‘ΠΎΠ²ΡΠ΅ΠΌΠ΅Π½Π½ΡΠ΅ Π΄ΠΎΡΡΠΈΠΆΠ΅Π½ΠΈΡ Π² ΠΎΠ±Π»Π°ΡΡΠΈ ΡΠ°Π·Π²ΠΈΡΠΈΡ
ΠΌΠ΅ΡΠΎΠ΄ΠΎΠ² ΠΈ ΡΡΠ΅Π΄ΡΡΠ² Π΄ΠΈΠ°Π³Π½ΠΎΡΡΠΈΡΠΎΠ²Π°Π½ΠΈΡ ΠΏΠΎΠ·Π²ΠΎΠ»ΡΡΡ
ΠΏΡΠΎΠ²ΠΎΠ΄ΠΈΡΡ ΠΎΡΠ΅Π½ΠΊΡ ΡΠΎΡΡΠΎΡΠ½ΠΈΡ Π½Π° ΠΏΠ΅ΡΠ²ΡΡ
ΡΡΠ΅Ρ
ΡΡΠΎΠ²Π½ΡΡ
, Π° ΠΎΠ±Π΅ΡΠΏΠ΅ΡΠ΅Π½Π½ΠΎΡΡΡ ΡΡΠ΅Π΄ΡΡΠ²Π°ΠΌΠΈ
Π΄ΠΈΠ°Π³Π½ΠΎΡΡΠΈΡΠΎΠ²Π°Π½ΠΈΡ ΡΠ΅ΡΠ²Π΅ΡΡΠΎΠ³ΠΎ ΡΡΠΎΠ²Π½Ρ ΡΠΎΡΡΠ°Π²Π»ΡΠ΅Ρ
Π½Π΅ Π±ΠΎΠ»Π΅Π΅ 20%.
ΠΠΈΠ°Π³Π½ΠΎΡΡΠΈΡΠΎΠ²Π°ΡΡ ΠΎΡΠ΄Π΅Π»ΡΠ½ΡΠ΅Β
Π΄Π΅ΡΠ°Π»ΠΈ Π²ΡΡΠ΄ Π»ΠΈ ΡΠ΅Π»Π΅ΡΠΎΠΎΠ±ΡΠ°Π·Π½ΠΎ, ΡΠ°ΠΊΒ ΠΊΠ°ΠΊΒ
ΡΡΡΠ΅ΡΡΠ²Π΅Π½Π½ΡΠ΅ ΠΈΠ·ΠΌΠ΅Π½Π΅Π½ΠΈΡΒ ΡΠ»Π΅ΠΌΠ΅Π½ΡΠΎΠ²Β
Π°Π²ΡΠΎΠΌΠΎΠ±ΠΈΠ»Ρ ΠΏΡΠΎΠΈΡΡ
ΠΎΠ΄ΡΡ Π²Β ΠΏΠΎΠ΄Π²ΠΈΠΆΠ½ΡΡ
Β
ΠΈΒ Π΄ΡΡΠ³ΠΈΡ
ΡΠΎΠΏΡΡΠΆΠ΅Π½ΠΈΡΡ
Β Π²ΠΎ Π²ΡΠ΅ΠΌΡΒ
ΡΠ°Π±ΠΎΡΠΈΡ
Β ΠΏΡΠΎΡΠ΅ΡΡΠΎΠ².
ΠΠΎΠ½ΡΡΠΎΠ»ΡΒ ΡΠΎΡΡΠΎΡΠ½ΠΈΡΒ Π΄Π΅ΡΠ°Π»Π΅ΠΉΒ
ΠΏΡΠΎΠΈΠ·Π²ΠΎΠ΄ΠΈΡΡΡ ΠΎΠ±ΡΡΠ½ΠΎ ΠΏΡΠΈΒ ΡΠ°Π·Π±ΠΎΡΠΊΠ΅ Π²ΠΎ
Π²ΡΠ΅ΠΌΡΒ ΡΠ΅ΠΊΡΡΠ΅Π³ΠΎ ΠΈΒ ΠΊΠ°ΠΏΠΈΡΠ°Π»ΡΠ½ΠΎΠ³ΠΎ ΡΠ΅ΠΌΠΎΠ½ΡΠΎΠ².
Π ΠΈΡ. 2.3. Π£ΡΠΎΠ²Π½ΠΈ Π΄ΠΈΠ°Π³Π½ΠΎΡΡΠΈΡΠΎΠ²Π°Π½ΠΈΡ
Π°Π²ΡΠΎΠΌΠΎΠ±ΠΈΠ»Ρ
Β
3.2.3 ΠΠ±ΡΠ΅Π΅ Π΄ΠΈΠ°Π³Π½ΠΎΡΡΠΈΡΠΎΠ²Π°Π½ΠΈΠ΅
Π°Π²ΡΠΎΠΌΠΎΠ±ΠΈΠ»Ρ
ΠΠΎΠ΄ ΠΎΠ±ΡΠΈΠΌΒ Π΄ΠΈΠ°Π³Π½ΠΎΡΡΠΈΡΠΎΠ²Π°Π½ΠΈΠ΅ΠΌΒ
ΠΏΠΎΠ½ΠΈΠΌΠ°Π΅ΡΡΡ Π΄ΠΈΠ°Π³Π½ΠΎΡΡΠΈΡΠΎΠ²Π°Π½ΠΈΠ΅ Π°Π²ΡΠΎΠΌΠΎΠ±ΠΈΠ»Ρ
ΠΏΠΎ ΠΏΠ°ΡΠ°ΠΌΠ΅ΡΡΠ°ΠΌ, Ρ
Π°ΡΠ°ΠΊΡΠ΅ΡΠΈΠ·ΡΡΡΠΈΠΌΒ Π΅Π³ΠΎΒ
ΠΎΠ±ΡΠ΅Π΅Β ΡΠ΅Ρ
Π½ΠΈΡΠ΅ΡΠΊΠΎΠ΅Β ΡΠΎΡΡΠΎΡΠ½ΠΈΠ΅Β
Π±Π΅Π·Β Π²ΡΡΠ²Π»Π΅Π½ΠΈΡΒ ΠΊΠΎΠ½ΠΊΡΠ΅ΡΠ½ΠΎΠΉ Π½Π΅ΠΈΡΠΏΡΠ°Π²Π½ΠΎΡΡΠΈΒ
ΠΈΠ»ΠΈΒ ΠΎΡΠΊΠ°Π·Π° ΠΏΠΎ ΠΏΡΠΈΠ½ΡΠΈΠΏΡ Π³ΠΎΠ΄Π΅Π½ — Π½Π΅Π³ΠΎΠ΄Π΅Π½,
ΠΈΡΠΏΡΠ°Π²Π΅Π½ — Π½Π΅ΠΈΡΠΏΡΠ°Π²Π΅Π½
ΠΡΠΎΠΈΠ·Π²ΠΎΠ΄ΠΈΡΠ΅Π»ΡΠ½ΠΎΡΡΡΒ ΠΈΠ»ΠΈΒ
ΠΊΠΎΠ»ΠΈΡΠ΅ΡΡΠ²ΠΎ Π³ΡΡΠ·ΠΎΠ², ΠΏΠ΅ΡΠ΅Π²Π΅Π·Π΅Π½Π½ΡΡ
Π°Π²ΡΠΎΠΌΠΎΠ±ΠΈΠ»Π΅ΠΌΒ
Π½Π° ΠΎΠΏΡΠ΅Π΄Π΅Π»Π΅Π½Π½ΠΎΠ΅ ΡΠ°ΡΡΡΠΎΡΠ½ΠΈΠ΅ Π·Π° ΠΎΠ΄ΠΈΠ½ ΡΠ°Ρ,
Π·Π° ΡΠΌΠ΅Π½Ρ, Π·Π° Π³ΠΎΠ΄Β Π·Π°Π²ΠΈΡΠΈΡ, ΠΏΠΎΠΌΠΈΠΌΠΎ ΠΏΡΠΎΡΠΈΡ
ΠΏΡΠΈΡΠΈΠ½, ΠΈΒ ΠΎΡ ΡΠ΅Ρ
Π½ΠΈΡΠ΅ΡΠΊΠΎΠ³ΠΎ ΡΠΎΡΡΠΎΡΠ½ΠΈΡΒ
Π°Π²ΡΠΎΠΌΠΎΠ±ΠΈΠ»Ρ. Π’Π°ΠΊΠΈΠ΅Β ΠΏΠ°ΡΠ°ΠΌΠ΅ΡΡΡ, ΠΊΠ°ΠΊΒ
ΠΌΠΎΡΠ½ΠΎΡΡΡ Π΄Π²ΠΈΠ³Π°ΡΠ΅Π»Ρ, ΡΡΠ³ΠΎΠ²ΠΎΠ΅Β ΡΡΠΈΠ»ΠΈΠ΅,
ΠΈΠ½ΡΠ΅Π½ΡΠΈΠ²Π½ΠΎΡΡΡΒ ΡΠ°Π·Π³ΠΎΠ½Π°Β
Π²Π»ΠΈΡΡΡ Π½Π° ΠΏΠΎΠΊΠ°Π·Π°ΡΠ΅Π»ΠΈ ΠΏΡΠΎΠΈΠ·Π²ΠΎΠ΄ΠΈΡΠ΅Π»ΡΠ½ΠΎΡΡΠΈ.
Π’ΠΎΠΏΠ»ΠΈΠ²Π½Π°ΡΒ ΡΠΊΠΎΠ½ΠΎΠΌΠΈΡΠ½ΠΎΡΡΡΒ
Ρ
Π°ΡΠ°ΠΊΡΠ΅ΡΠΈΠ·ΡΠ΅ΡΡΡΒ ΡΠ°ΡΡ
ΠΎΠ΄Π°ΠΌΠΈΒ
Π½Π° ΡΠ°Π·Π»ΠΈΡΠ½ΡΡ
Β ΡΠ΅ΠΆΠΈΠΌΠ°Ρ
Β ΠΈΒ Π·Π°Π²ΠΈΡΠΈΡΒ
ΠΎΡ ΡΠ΅Ρ
Π½ΠΈΡΠ΅ΡΠΊΠΎΠ³ΠΎ ΡΠΎΡΡΠΎΡΠ½ΠΈΡΒ ΡΠ΅Ρ
Β ΡΠ»Π΅ΠΌΠ΅Π½ΡΠΎΠ²Β
Π°Π²ΡΠΎΠΌΠΎΠ±ΠΈΠ»Ρ, ΠΊΠΎΡΠΎΡΡΠ΅Β ΡΡΠ°ΡΡΠ²ΡΡΡΒ Π²Β
ΠΏΠ΅ΡΠ΅ΠΌΠ΅ΡΠ΅Π½ΠΈΠΈΒ Π°Π²ΡΠΎΠΌΠΎΠ±ΠΈΠ»Ρ. Π’Π°ΠΊΠΈΠΌΒ ΠΎΠ±ΡΠ°Π·ΠΎΠΌ,
Π·Π½Π°Ρ ΡΡΠ³ΠΎΠ²ΠΎΠ΅Β ΡΡΠΈΠ»ΠΈΠ΅ Π½Π° ΠΊΠΎΠ»Π΅ΡΠ°Ρ
Β Π°Π²ΡΠΎΠΌΠΎΠ±ΠΈΠ»Ρ,
ΠΈΠ½ΡΠ΅Π½ΡΠΈΠ²Π½ΠΎΡΡΡΒ ΡΠ°Π·Π³ΠΎΠ½Π°Β ΠΈΒ
ΡΠΎΠΏΠ»ΠΈΠ²Π°Β Π½Π° ΡΠ΅ΠΆΠΈΠΌΠ°Ρ
Β Ρ
ΠΎΠ»ΠΎΡΡΠΎΠ³ΠΎ Ρ
ΠΎΠ΄Π°,
Π΄Π²ΠΈΠΆΠ΅Π½ΠΈΡ ΠΈ ΡΠ°Π·Π³ΠΎΠ½Π°, ΠΌΠΎΠΆΠ½ΠΎ ΡΡΠ΄ΠΈΡΡ ΠΎΠ± ΠΎΠ±ΡΠ΅ΠΌ
ΡΠ΅Ρ
Π½ΠΈΡΠ΅ΡΠΊΠΎΠΌ ΡΠΎΡΡΠΎΡΠ½ΠΈΠΈ Π°Π²ΡΠΎΠΌΠΎΠ±ΠΈΠ»Ρ.
ΠΡΠ΅Π΄Π²Π°ΡΠΈΡΠ΅Π»ΡΠ½ΠΎΠ΅ ΡΠ΅Ρ
Π½ΠΈΡΠ΅ΡΠΊΠΎΠ΅Β
ΡΠΎΡΡΠΎΡΠ½ΠΈΠ΅Β ΠΎΠΏΡΠ΅Π΄Π΅Π»ΡΠ΅ΡΡΡ ΠΏΠΎ ΠΏΠ°ΡΠ°ΠΌΠ΅ΡΡΠ°ΠΌ
ΡΡΠ±ΡΠ΅ΠΊΡΠΈΠ²Π½ΠΎΠ³ΠΎΒ Π΄ΠΈΠ°Π³Π½ΠΎΡΡΠΈΡΠΎΠ²Π°Π½ΠΈΡ ΡΒ
ΠΏΠΎΠΌΠΎΡΡΡΒ ΠΎΡΠ³Π°Π½ΠΎΠ²Β ΡΡΠ²ΡΡΠ² ΠΈΒ ΠΏΡΠΈΠΌΠ΅Π½Π΅Π½ΠΈΡ
ΠΏΡΠΎΡΡΠ΅ΠΉΡΠΈΡ
ΡΡΠ΅Π΄ΡΡΠ²Β Π΄Π»ΡΒ ΡΡΠΈΠ»Π΅Π½ΠΈΡ
ΡΠΈΠ³Π½Π°Π»Π°.
ΠΠ½ΡΠ΅Π½ΡΠΈΠ²Π½ΠΎΡΡΡ ΡΠ°Π·Π³ΠΎΠ½Π°Β Π°Π²ΡΠΎΠΌΠΎΠ±ΠΈΠ»Ρ
ΠΌΠΎΠΆΠ΅ΡΒ Π±ΡΡΡ ΠΎΠΏΡΠ΅Π΄Π΅Π»Π΅Π½Π° Π½Π° Π΄ΠΎΡΠΎΠ³Π΅ ΠΏΡΠΈΒ
Π΄Π²ΠΈΠΆΠ΅Π½ΠΈΠΈ Π½Π° ΠΏΡΡΠΌΠΎΠΉ ΠΏΠ΅ΡΠ΅Π΄Π°ΡΠ΅ Π½Π° ΠΌΠΈΠ½ΠΈΠΌΠ°Π»ΡΠ½ΠΎΠΉΒ
ΡΠΊΠΎΡΠΎΡΡΠΈ, ΠΏΡΡΠ΅ΠΌΒ ΡΠ΅Π·ΠΊΠΎΠ³ΠΎΒ Π½Π°ΠΆΠ°ΡΠΈΡΒ
Π½Π° ΠΏΠ΅Π΄Π°Π»Ρ ΡΠΏΡΠ°Π²Π»Π΅Π½ΠΈΡ Π΄ΡΠΎΡΡΠ΅Π»Π΅ΠΌΒ ΠΈΒ
Π²ΠΈΠ·ΡΠ°Π»ΡΠ½ΠΎΠΉ ΠΎΡΠ΅Π½ΠΊΠΈ Π²ΡΠ΅ΠΌΠ΅Π½ΠΈΒ ΡΠ°Π·Π³ΠΎΠ½Π°Β
Π΄ΠΎ ΠΎΠΏΡΠ΅Π΄ΡΠ»Π΅Π½Π½ΠΎΠΉ ΡΠΊΠΎΡΠΎΡΡΠΈ. ΠΡΠΈΒ ΡΡΠΎΠΌ
Π²ΠΈΠ·ΡΠ°Π»ΡΠ½ΠΎΒ ΠΎΡΠ΅Π½ΠΈΠ²Π°Π΅ΡΡΡΒ ΡΠ°Π±ΠΎΡΠ° Π΄Π²ΠΈΠ³Π°ΡΠ΅Π»ΡΒ
Π½Π° ΠΌΠΈΠ½ΠΈΠΌΠ°Π»ΡΠ½ΠΎΠΉΒ ΡΠ°ΡΡΠΎΡΠ΅Β Π²ΡΠ°ΡΠ΅Π½ΠΈΡ
Π²Β ΡΠ΅ΠΆΠΈΠΌΠ΅ Ρ
ΠΎΠ»ΠΎΡΡΠΎΠ³ΠΎΒ Ρ
ΠΎΠ΄Π°, Π³Π΅ΡΠΌΠ΅ΡΠΈΡΠ½ΠΎΡΡΡΒ
ΡΠΈΡΡΠ΅ΠΌ ΡΠΌΠ°Π·ΠΊΠΈ, ΠΎΡ
Π»Π°ΠΆΠ΄Π΅Π½ΠΈΡ ΠΈΒ ΠΏΠΈΡΠ°Π½ΠΈΡ.
ΠΠ½Π°Π»ΠΎΠ³ΠΈΡΠ½ΠΎΒ ΠΌΠΎΠΆΠ΅ΡΒ Π±ΡΡΡ
ΠΎΠΏΡΠ΅Π΄Π΅Π»Π΅Π½Π° Π²Π΅Π»ΠΈΡΠΈΠ½Π° Π²ΡΠ±Π΅Π³Π° ΡΒ ΠΌΠ°ΠΊΡΠΈΠΌΠ°Π»ΡΠ½ΠΎΠΉ
ΡΠΊΠΎΡΠΎΡΡΠΈ Π΄ΠΎ Π½ΡΠ»Π΅Π²ΠΎΠΉ. ΠΠΎ ΡΠ²Π΅ΡΡΒ ΠΎΡΡΠ°Π±ΠΎΡΠ°Π²ΡΠΈΡ
Π³Π°Π·ΠΎΠ²Β ΡΡΠ΄ΡΡΒ ΠΎΒ ΡΠΎΡΡΠ°Π²Π΅Β ΡΠ°Π±ΠΎΡΠ΅ΠΉΒ
ΡΠΌΠ΅ΡΠΈ. Π§Π΅ΡΠ½ΡΠΉ Π²ΡΠΏΡΡΠΊ Π³ΠΎΠ²ΠΎΡΠΈΡΒ ΠΎΠ± ΠΎΠ±ΠΎΠ³Π°ΡΠ΅Π½Π½ΠΎΠΉΒ
ΡΠΌΠ΅ΡΠΈ. ΠΠ° Ρ
ΠΎΠ΄Ρ Π°Π²ΡΠΎΠΌΠΎΠ±ΠΈΠ»Ρ ΠΏΡΠΎΠ²Π΅ΡΡΠ΅ΡΡΡΒ
ΡΠ°Π±ΠΎΡΠ° ΡΡΠ΅ΠΏΠ»Π΅Π½ΠΈΡ, ΠΊΠΎΡΠΎΠ±ΠΊΠΈΒ ΠΏΠ΅ΡΠ΅Π΄Π°Ρ,
ΡΡΠ°Π½ΡΠΌΠΈΡΡΠΈΠΈ. Π¨ΡΠΌΡ ΠΈΒ ΡΡΡΠΊΠΈΒ ΠΌΠΎΠ³ΡΡΒ
ΠΏΡΠΎΡΠ»ΡΡΠΈΠ²Π°ΡΡΡΡ ΡΡΠ΅ΡΠΎΡΠΊΠΎΠΏΠΎΠΌΒ ΡΒ ΠΎΠΏΡΠ΅Π΄Π΅Π»Π΅Π½ΠΈΠ΅ΠΌ
ΠΊΠΎΠ½ΠΊΡΠ΅ΡΠ½ΠΎΠ³ΠΎΒ ΠΌΠ΅ΡΡΠ°Β ΡΡΡΠΊΠ°Β ΠΈΠ»ΠΈΒ
ΡΡΠΌΠ°, ΠΏΡΠΎΠ²Π΅ΡΡΠ΅ΡΡΡΒ ΡΠΎΡΠΌΠΎΠ·Π½ΠΎΠΉΒ ΠΏΡΡΡ,
Π·Π°ΠΌΠ΅Π΄Π»Π΅Π½ΠΈΠ΅ ΠΏΡΠΈΒ ΡΠΎΡΠΌΠΎΠΆΠ΅Π½ΠΈΠΈ ΠΈΒ ΠΎΠ΄Π½ΠΎΠ²ΡΠ΅ΠΌΠ΅Π½Π½ΠΎΡΡΡΒ
ΡΠΎΡΠΌΠΎΠΆΠ΅Π½ΠΈΡ ΠΊΠΎΠ»Π΅Ρ.
ΠΠ»Ρ ΠΎΠ±ΡΠ΅ΠΊΡΠΈΠ²Π½ΠΎΠ³ΠΎ Π΄ΠΈΠ°Π³Π½ΠΎΡΡΠΈΡΠΎΠ²Π°Π½ΠΈΡ
Π°Π²ΡΠΎΠΌΠΎΠ±ΠΈΠ»Ρ Π²Β ΡΠ΅Π»ΠΎΠΌ, ΠΎΡΡΡΠ΅ΡΡΠ²Π»ΡΠ΅ΠΌΠΎΠ³ΠΎΒ
ΡΒ ΠΏΠΎΠΌΠΎΡΡΡΒ ΠΊΠΎΠ½ΡΡΠΎΠ»ΡΠ½ΠΎ-
ΠΎΠ±ΠΎΡΡΠ΄ΠΎΠ²Π°Π½ΠΈΡ ΠΈΒ ΠΏΡΠΈΠ±ΠΎΡΠΎΠ², ΠΏΡΠΈΠΌΠ΅Π½ΡΡΡΡΡΒ
ΡΡΠ΅Π½Π΄Ρ ΡΒ Π±Π΅Π³ΠΎΠ²ΡΠΌΠΈ Π±Π°ΡΠ°Π±Π°Π½Π°ΠΌΠΈ, ΠΎΡΠ½Π°ΡΠ΅Π½Π½ΡΠΌΠΈΒ
ΡΠΎΡΠΌΠΎΠ·Π½ΠΎΠΉΒ ΡΡΡΠ°Π½ΠΎΠ²ΠΊΠΎΠΉ ΠΈΒ ΡΠ°ΡΡ
ΠΎΠ΄ΠΎΠΌΠ΅ΡΠ°ΠΌΠΈ.
ΠΠ°Β ΡΠΈΡ. 2.4 ΠΏΡΠ΅Π΄ΡΡΠ°Π²Π»Π΅Π½Π° ΡΡ
Π΅ΠΌΠ°Β
Π²ΠΊΠ»ΡΡΠ΅Π½ΠΈΡΒ Π΄ΠΈΠ°Π³Π½ΠΎΡΡΠΈΡΠ΅ΡΠΊΠΈΡ
Β
Π²Β ΠΏΡΠΎΠΈΠ·Π²ΠΎΠ΄ΡΡΠ²Π΅Π½Π½ΡΠΉ ΠΏΡΠΎΡΠ΅ΡΡΒ Π‘Π’Π.
Π‘ΡΡΡΠΊΡΡΡΠ°Β Π²Π·Π°ΠΈΠΌΠΎΡΠ²ΡΠ·Π΅ΠΉ ΠΏΡΠΎΠΈΠ·Π²ΠΎΠ΄ΡΡΠ²Π΅Π½Π½ΡΡ
ΡΡΠ°ΡΡΠΊΠΎΠ² Π‘Π’ΠΒ ΠΏΠΎΠΊΠ°Π·ΡΠ²Π°Π΅Ρ, ΡΡΠΎΒ Π΄ΠΈΠ°Π³Π½ΠΎΡΡΠΈΡΠΎΠ²Π°Π½ΠΈΠ΅
Π²ΡΠΏΠΎΠ»Π½ΡΠ΅ΡΒ Π΄Π²Π΅Β ΡΡΠ½ΠΊΡΠΈΠΈ. ΠΠΎ-ΠΏΠ΅ΡΠ²ΡΡ
,
ΡΠ²Π»ΡΠ΅ΡΡΡ ΡΠ°ΠΌΠΎΡΡΠΎΡΡΠ΅Π»ΡΠ½ΡΠΌΒ Π²ΠΈΠ΄ΠΎΠΌΒ
ΡΡΠ»ΡΠ³, ΠΏΡΠΈΒ ΠΊΠΎΡΠΎΡΠΎΠΌΒ Π²ΡΠΏΠΎΠ»Π½ΡΡΡΡΡΒ
ΠΊΠΎΠ½ΡΡΠΎΠ»ΡΠ½ΡΠ΅Β ΡΠ°Π±ΠΎΡΡ ΠΏΠΎ Π·Π°ΡΠ²ΠΊΠ°ΠΌΒ Π²Π»Π°Π΄Π΅Π»ΡΡΠ΅Π²
Π°Π²ΡΠΎΠΌΠΎΠ±ΠΈΠ»Π΅ΠΉ. ΠΠΎ-Π²ΡΠΎΡΡΡ
, Π΄ΠΈΠ°Π³Π½ΠΎΡΡΠΈΡΠΎΠ²Π°Π½ΠΈΠ΅
— ΡΡΠΎΒ Π½Π΅ΠΎΠ±Ρ
ΠΎΠ΄ΠΈΠΌΡΠΉΒ ΡΠ»Π΅ΠΌΠ΅Π½ΡΒ
ΠΏΡΠΎΠΈΠ·Π²ΠΎΠ΄ΡΡΠ²Π΅Π½Π½ΡΡ
ΠΏΡΠΎΡΠ΅ΡΡΠΎΠ² Π‘Π’Π (ΠΏΡΠΈΠ΅ΠΌΠΊΠΈ,
Π’Π, Π’Π ΠΈ Π²ΡΠ΄Π°ΡΠΈ Π°Π²ΡΠΎΠΌΠΎΠ±ΠΈΠ»Π΅ΠΉ). ΠΡΡΡΠ΄Π° Π²ΡΡΠ΅ΠΊΠ°ΡΡ
ΠΈ ΠΎΡΠ½ΠΎΠ²Π½ΡΠ΅ Π·Π°Π΄Π°ΡΠΈ Π΄ΠΈΠ°Π³Π½ΠΎΡΡΠΈΡΠΎΠ²Π°Π½ΠΈΡ Π²
ΠΏΡΠΎΠΈΠ·Π²ΠΎΠ΄ΡΡΠ²Π΅Π½Π½ΠΎΠΉ ΡΠΈΡΡΠ΅ΠΌΠ΅ Π‘Π’Π.
Β
Π ΠΈΡ. 2.4. Π‘Ρ
Π΅ΠΌΠ°Β Π²ΠΊΠ»ΡΡΠ΅Π½ΠΈΡΒ
Π΄ΠΈΠ°Π³Π½ΠΎΡΡΠΈΡΠΎΠ²Π°Π½ΠΈΡ Π²Β ΡΠ΅Ρ
Π½ΠΎΠ»ΠΎΠ³ΠΈΡΠ΅ΡΠΊΠΈΠΉΒ
ΠΏΡΠΎΡΠ΅ΡΡΒ Π‘Π’Π
1. Π£ΡΠΎΡΠ½Π΅Π½ΠΈΠ΅Β ΠΏΡΠΈΡΠΈΠ½Β
Π°Π²ΡΠΎΠΌΠΎΠ±ΠΈΠ»Π΅ΠΉΒ ΡΒ ΡΠ΅Π»ΡΡΒ
Π½Π΅ΠΎΠ±Ρ
ΠΎΠ΄ΠΈΠΌΠΎΠ³ΠΎΒ ΠΎΠ±ΡΠ΅ΠΌΠ°Β ΡΠ°Π±ΠΎΡΒ Π΄ΠΎΒ
ΠΎΡΡΡΠ΅ΡΡΠ²Π»Π΅Π½ΠΈΡΒ ΡΠ΅Ρ
Π½ΠΈΡΠ΅ΡΠΊΠΈΡ
Β
Π½Π°Β Π°Π²ΡΠΎΠΌΠΎΠ±ΠΈΠ»Ρ.
2. ΠΡΠΎΡΠΈΠ»Π°ΠΊΡΠΈΡΠ΅ΡΠΊΠ°ΡΒ ΠΏΡΠΎΠ²Π΅ΡΠΊΠ°Β
ΡΠ΅Ρ
Π½ΠΈΡΠ΅ΡΠΊΠΎΠ³ΠΎΒ ΡΠΎΡΡΠΎΡΠ½ΠΈΡΒ ΠΈΒ
Π°Π²ΡΠΎΠΌΠΎΠ±ΠΈΠ»Ρ — ΠΈ,Β ΠΏΡΠΎΠ³Π½ΠΎΠ·ΠΈΡΠΎΠ²Π°Π½ΠΈΠ΅Β
ΠΈΡ
Β ΠΎΡΡΠ°ΡΠΎΡΠ½ΠΎΠ³ΠΎΒ ΡΠ΅ΡΡΡΡΠ°.
3. ΠΡΠΎΠ²Π΅Π΄Π΅Π½ΠΈΠ΅Β Π²Π°ΠΆΠ½Π΅ΠΉΡΠΈΡ
Β
ΡΠΊΡΠΏΠ»ΡΠ°ΡΠ°ΡΠΈΠΎΠ½Π½ΡΡ
Β ΡΠ΅Π³ΡΠ»ΠΈΡΠΎΠ²ΠΎΠΊ,Β
ΠΏΡΠΈΠΌΠ΅Π½Π΅Π½ΠΈΡΒ ΠΊΠΎΠ½ΡΡΠΎΠ»ΡΠ½ΠΎ-
Π°ΠΏΠΏΠ°ΡΠ°ΡΡΡΡ
4. ΠΠΏΡΠ΅Π΄Π΅Π»Π΅Π½ΠΈΠ΅Β ΡΠΎΠΎΡΠ²Π΅ΡΡΡΠ²ΠΈΡΒ
ΡΠ΅Ρ
Π½ΠΈΡΠ΅ΡΠΊΠΈΠΌΒ ΡΡΠ»ΠΎΠ²ΠΈΡΠΌΒ
ΠΈΠ»ΠΈΒ ΠΈΡ
Β Π°Π³ΡΠ΅Π³Π°ΡΠΎΠ²Β ΠΏΠΎΡΠ»Π΅Β
ΠΈΠ»ΠΈΒ ΠΎΠ±ΡΠ»ΡΠΆΠΈΠ²Π°Π½ΠΈΡ.
Π Π½Π°ΡΡΠΎΡΡΠ΅Π΅Β Π²ΡΠ΅ΠΌΡΒ Π²ΡΠΏΠΎΠ»Π½Π΅Π½ΠΈΠ΅
ΡΠΊΠ°Π·Π°Π½Π½ΡΡ
Β ΡΡΠ½ΠΊΡΠΈΠΉΒ
Π²Β ΠΎΡΠ½ΠΎΠ²Π½ΠΎΠΌ ΡΠΏΠ΅ΡΠΈΠ°Π»ΠΈΠ·ΠΈΡΠΎΠ²Π°Π½Π½ΡΠΌΠΈΒ
ΡΡΠ°ΡΡΠΊΠ°ΠΌΠΈΒ Π΄ΠΈΠ°Π³Π½ΠΎΡΡΠΈΡΠΎΠ²Π°Π½ΠΈΡ. ΠΠ½Π°ΡΠΈΡΠ΅Π»ΡΠ½Π°Ρ
ΡΠ°ΡΡΡΒ ΠΊΠΎΠ½ΡΡΠΎΠ»ΡΠ½ΠΎ-
ΡΒ ΠΏΡΠΈΠΌΠ΅Π½Π΅Π½ΠΈΠ΅ΠΌΒ Π΄ΠΈΠ°Π³Π½ΠΎΡΡΠΈΡΠ΅ΡΠΊΠΈΡ
Β
ΡΡΠ΅Π΄ΡΡΠ², ΠΏΠ΅ΡΠ΅Π½ΠΎΡΠ½ΡΡ
ΠΏΡΠΈΠ±ΠΎΡΠΎΠ² ΠΈΒ Ρ.ΠΏ.
Π΄ΠΎΠ»ΠΆΠ½Π° ΠΎΡΡΡΠ΅ΡΡΠ²Π»ΡΡΡΡΡ Π½Π΅ΠΏΠΎΡΡΠ΅Π΄ΡΡΠ²Π΅Π½Π½ΠΎΒ
Π²Β ΠΏΡΠΎΡΠ΅ΡΡΠ΅ ΡΠ΅Ρ
Π½ΠΈΡΠ΅ΡΠΊΠΎΠ³ΠΎ ΠΎΠ±ΡΠ»ΡΠΆΠΈΠ²Π°Π½ΠΈΡ
ΠΈΒ ΡΠ΅ΠΌΠΎΠ½ΡΠ°Β Π°Π²ΡΠΎΠΌΠΎΠ±ΠΈΠ»Π΅ΠΉ. ΠΒ ΠΎΡΠ½ΠΎΠ²Π½ΠΎΠΌ
ΡΡΠΎΒ ΠΊΠ°ΡΠ°Π΅ΡΡΡ ΡΠ°Π±ΠΎΡ ΠΏΠΎ ΠΎΠ±ΡΠ»ΡΠΆΠΈΠ²Π°Π½ΠΈΡ
ΠΈ ΡΠ΅ΠΌΠΎΠ½ΡΡ Π΄Π²ΠΈΠ³Π°ΡΠ΅Π»Π΅ΠΉ, ΡΠ»Π΅ΠΊΡΡΠΎΠΎΠ±ΠΎΡΡΠ΄ΠΎΠ²Π°Π½ΠΈΡ,
Ρ
ΠΎΠ΄ΠΎΠ²ΠΎΠΉ ΡΠ°ΡΡΠΈ Π°Π²ΡΠΎΠΌΠΎΠ±ΠΈΠ»Π΅ΠΉ.
Π‘ΠΏΠ΅ΡΠΈΠ°Π»ΠΈΠ·ΠΈΡΠΎΠ²Π°Π½Π½ΡΠ΅Β ΡΡΠ°ΡΡΠΊΠΈΒ
Π΄ΠΈΠ°Π³Π½ΠΎΡΡΠΈΡΠΎΠ²Π°Π½ΠΈΡ Π΄ΠΎΠ»ΠΆΠ½Ρ ΡΠ΅ΡΠ°ΡΡ ΡΠ»Π΅Π΄ΡΡΡΠΈΠ΅Β
Π·Π°Π΄Π°ΡΠΈ: ΠΎΠΊΠ°Π·ΡΠ²Π°ΡΡΒ ΠΏΠΎΠΌΠΎΡΡ ΠΠ’ΠΒ Π²Β
ΠΎΠΏΡΠ΅Π΄Π΅Π»Π΅Π½ΠΈΠΈΒ ΡΠ΅Ρ
Π½ΠΈΡΠ΅ΡΠΊΠΎΠ³ΠΎ
ΡΠΎΡΡΠΎΡΠ½ΠΈΡ Π°Π²ΡΠΎΠΌΠΎΠ±ΠΈΠ»Π΅ΠΉ; ΠΏΡΠΎΠ²ΠΎΠ΄ΠΈΡΡΒ
ΡΠ°Π±ΠΎΡΡ ΠΏΠΎ Π·Π°ΡΠ²ΠΊΠ°ΠΌΒ Π²Π»Π°Π΄Π΅Π»ΡΡΠ΅Π².
3.3. ΠΠ«ΠΠΠ Π ΠΠΠΠΠ Π ΠΠΠΠ’Π«
ΠΠ ΠΠΠΠΠΠΠ‘Π’ΠΠΠΠΠ«Π₯ ΠΠΠΠ ΠΠΠΠΠΠΠΠΠ ΠΠ’Π
ΠΠΎΡΡΒ ΠΎΠ±ΡΠΈΠΉΒ Π΄ΠΈΠ°Π³Π½ΠΎΡΡΠΈΠΊΠΈ ΡΠ°Π±ΠΎΡΠ°Π΅Ρ ΡΠΎΠ²ΠΌΠ΅ΡΡΠ½ΠΎ Ρ Π΄ΡΡΠ³ΠΈΠΌΠΈ
Π·ΠΎΠ½Π°ΠΌΠΈ, ΡΠ°ΠΊ ΠΊΠ°ΠΊ, Π½Π°ΠΏΡΠΈΠΌΠ΅Ρ, ΠΏΡΠΈ Π’Π-1 ΠΈΠ»ΠΈ
ΠΏΡΠΈ Π’Π-2 Π²Π½Π°ΡΠ°Π»Π΅ Π½Π°Π΄ΠΎ ΠΏΡΠΎΠΉΡΠΈ Π΅ΠΆΠ΅Π΄Π½Π΅Π²Π½ΠΎΠ΅
ΠΎΠ±ΡΠ»ΡΠΆΠΈΠ²Π°Π½ΠΈΠ΅, ΠΏΠΎΡΡΠΎΠΌΡ ΡΠ°Π±ΠΎΡΡ Π·ΠΎΠ½Π° ΠΠ
Π½Π°ΡΠΈΠ½Π°Π΅Ρ Ρ 15.00 Π΄ΠΎ 24.00 Ρ. Π Π°Π±ΠΎΡΠΈΠΉ Π΄Π΅Π½Ρ ΡΠΊΡΠΏΠ»ΡΠ°ΡΠ°ΡΠΈΠΈ
Π°Π²ΡΠΎΠΌΠΎΠ±ΠΈΠ»ΡΠ½ΠΎΠ³ΠΎ ΠΏΠ°ΡΠΊΠ° Π½Π°ΡΠΈΠ½Π°Π΅ΡΡΡ Ρ 7.00
Π΄ΠΎ 16.00 Ρ. ΠΠΎ Π°Π²ΡΠΎΠΌΠΎΠ±ΠΈΠ»ΠΈ ΠΏΡΠΈΠ΅Π·ΠΆΠ°ΡΡ Π² ΠΏΠ°ΡΠΊ
ΠΏΠΎΡΡΠ΅ΠΏΠ΅Π½Π½ΠΎ, ΠΊΠ°ΠΊ ΠΈ Π²ΡΠ΅Π·ΠΆΠ°ΡΡ Π² Π·Π°Π²ΠΈΡΠΈΠΌΠΎΡΡΠΈ
ΠΎΡ ΠΏΡΠΎΠ³ΡΠ°ΠΌΠΌΡ Π·Π°Π³ΡΡΠ·ΠΊΠΈ, ΠΏΠΎΡΡΠΎΠΌΡ Π·ΠΎΠ½Π° Π
— 1 Π½Π°ΡΠΈΠ½Π°Π΅Ρ ΡΠ°Π±ΠΎΡΡ Ρ 15.00 Ρ.
ΠΠΎΠ»ΠΈΡΠ΅ΡΡΠ²ΠΎΒ ΡΠ°Π±ΠΎΡΠΈΡ
Β Π΄Π½Π΅ΠΉ
Π²Β Π³ΠΎΠ΄Ρ Π΄Π»ΡΒ ΠΏΡΠΎΠΈΠ·Π²ΠΎΠ΄ΡΡΠ²Π΅Π½Π½ΡΡ
ΠΏΠΎΠ΄ΡΠ°Π·Π΄Π΅Π»Π΅Π½ΠΈΠΉ
ΡΠΎΡΡΠ°Π²Π»ΡΠ΅Ρ β 305 Π΄Π½Π΅ΠΉ;
ΠΠ°Β ΠΌΠΎΠ΅ΠΌ ΠΏΡΠ΅Π΄ΠΏΡΠΈΡΡΠΈΠΈΒ ΡΠ°Π±ΠΎΡΠ°Π΅Ρ
βΒ ΠΎΠ΄Π½Π° ΡΠΌΠ΅Π½Π°;
ΠΡΠΎΠ΄ΠΎΠ»ΠΆΠΈΡΠ΅Π»ΡΠ½ΠΎΡΡΡ ΡΠΌΠ΅Π½Ρ β
ΠΎΠ΄Π½Π° ΡΠΌΠ΅Π½Π°;
ΠΡΠ΅ΠΌΡ Π½Π°ΡΠ°Π»Π° ΠΈΒ ΠΎΠΊΠΎΠ½ΡΠ°Π½ΠΈΡΒ
ΡΠ°Π±ΠΎΡΡ:βΡ 15.00 Ρ — Π΄ΠΎ 24.00 Ρ.
ΠΡΠ΅ΠΌΡ ΠΎΠ±Π΅Π΄Π΅Π½Π½ΡΡ
Β ΠΈΒ ΡΠ΅Ρ
Π½ΠΎΠ»ΠΎΠ³ΠΈΡΠ΅ΡΠΊΠΈΡ
Β
ΠΏΠ΅ΡΠ΅ΡΡΠ²ΠΎΠ²: 1Ρ — ΠΎΠ±Π΅Π΄, 10 ΠΌΠΈΠ½. ΡΠ΅ΡΠ΅Π·Β ΠΊΠ°ΠΆΠ΄ΡΠ΅
2 Ρ.
Β
Β
Β
Β
3.4.ΠΠΠΠΠΠ Π’ΠΠ₯ΠΠΠΠΠΠΠ§ΠΠ‘ΠΠΠΠ
ΠΠΠΠ Π£ΠΠΠΠΠΠΠ―
Π’Π΅Ρ
Π½ΠΈΡΠ΅ΡΠΊΠΎΠ΅ ΠΎΠ±ΠΎΡΡΠ΄ΠΎΠ²Π°Π½ΠΈΠ΅ ΠΈΠ»ΠΈΒ
ΡΠ΅Ρ
Π½ΠΈΡΠ΅ΡΠΊΠΈΠ΅Β ΠΎΡΠ½Π°ΡΡΠΊΠΈ
ΠΠΎΡΡΠ° ΠΎΠ±ΡΠ΅ΠΉΒ Π΄ΠΈΠ°Π³Π½ΠΎΡΡΠΈΠΊΠΈ
ΠΠ²ΡΠΎΠΏΠ°ΡΠΊ
Π‘ΠΎΡΡΠΎΠΈΡ ΠΈΠ· 100 Π°Π²ΡΠΎΠΌΠΎΠ±ΠΈΠ»Π΅ΠΉ
Π Π°ΡΠΏΡΠ΅Π΄Π΅Π»Π΅Π½ΠΈΠ΅ ΠΈΡΠΏΠΎΠ»Π½ΠΈΡΠ΅Π»Π΅ΠΉ
Π² Π·ΠΎΠ½Π΅ Π-1 ΡΠΏΠ΅ΡΠΈΠ°Π»ΡΠ½ΠΎΡΡΡΠΌ ΠΈ ΠΊΠ²Π°Π»ΠΈΡΠΈΠΊΠ°ΡΠΈΠΈ
ΠΏΡΠΈΠ²Π΅Π΄Π΅Π½Ρ Π² ΡΠ°Π±Π»ΠΈΡΠ΅ .
Π’Π°Π±Π»ΠΈΡΠ°
ΠΏ/ΠΏ | ΠΡΠΎΡΠ΅ΡΡΠΈΡ | ΠΠΎΠ»., ΡΠ΅Π». | Π Π°Π·ΡΡΠ΄ |
1 | ΠΠ°ΡΡΠ΅Ρ — Π΄ΠΈΠ°Π³Π½ΠΎΡΡ | 2 | VΠ |
2 | Π‘Π»Π΅ΡΠ°ΡΡ ΠΏΠΎ ΠΎΠ±ΡΠ»ΡΠΆΠΈΠ²Π°Π½ΠΈΡ Π°Π²ΡΠΎΠΌΠΎΠ±ΠΈΠ»Π΅ΠΉ | 2 | ΠΠΠ |
Β
ΠΠΎΠ΄Π±ΠΎΡΒ ΡΠ΅Ρ
Π½ΠΎΠ»ΠΎΠ³ΠΈΡΠ΅ΡΠΊΠΎΠ³ΠΎ ΠΎΠ±ΠΎΡΡΠ΄ΠΎΠ²Π°Π½ΠΈΡ,
ΡΠ΅Ρ
Π½ΠΎΠ»ΠΎΠ³ΠΈΡΠ΅ΡΠΊΠΎΠΉ ΠΎΡΠ½Π°ΡΡΠΊΠΈ Π΄Π»Ρ Π·ΠΎΠ½Ρ Π-1
ΠΎΡΡΡΠ΅ΡΡΠ²Π»ΡΠ΅ΡΡΡ Ρ ΡΡΠ΅ΡΠΎΠΌ ΡΠ΅ΠΊΠΎΠΌΠ΅Π½Π΄Π°ΡΠΈΠΉ
ΡΠΈΠΏΠΎΠ²ΡΡ
ΠΏΡΠΎΠ΅ΠΊΡΠΎΠ² ΡΠ°Π±ΠΎΡΠΈΡ
ΠΌΠ΅ΡΡ.
ΠΠ΅ΡΠ΅ΡΠ΅Π½ΡΒ ΡΠ΅Ρ
Π½ΠΎΠ»ΠΎΠ³ΠΈΡΠ΅ΡΠΊΠΎΠ³ΠΎ ΠΎΠ±ΠΎΡΡΠ΄ΠΎΠ²Π°Π½ΠΈΡ
ΠΏΡΠΈΠ²ΠΎΠ΄ΠΈΡΡΡ Π²Β ΡΠ°Π±Π»ΠΈΡΠ΅ 3.3
ΠΏ/ΠΏ | ΠΠ°ΠΈΠΌΠ΅Π½ΠΎΠ²Π°Π½ΠΈΠ΅Β ΠΎΠ±ΠΎΡΡΠ΄ΠΎΠ²Π°Π½ΠΈΡ | Π’ΠΈΠΏ, ΠΌΠΎΠ΄Π΅Π»Ρ | ΠΠΎΠ»., ΡΡ. | Π Π°Π·ΠΌΠ΅ΡΡ Π²Β ΠΏΠ»Π°Π½Π΅, ΠΌΠΌ ΓΒ ΠΌΠΌ | ΠΠ±ΡΠ°Ρ ΠΏΠ»ΠΎΡΠ°Π΄Ρ, ΠΌ2 |
1 | Π‘ΡΠ΅Π½Π΄ Π΄Π»ΡΒ Π΄ΠΈΠ°Π³Π½ΠΎΡΡΠΈΠΊΠΈΒ | Π-491 | 1 | 400 ΓΒ 600 | 0,24 |
2 | Π¨ΠΊΠ°ΡΒ Π΄Π»ΡΒ ΠΏΡΠΈΡΠΏΠΎΡΠΎΠ±Π»Π΅Π½ΠΈΠΉ | ΠΠ Π-4999-03 | 1 | 1270 ΓΒ 880 | 1,1 |
3 | ΠΠ΅ΡΡΡΠ°ΠΊ ΡΠ»Π΅ΡΠ°ΡΠ½ΡΠΉ | ΠΠ-12 Π | 1 | 1600 ΓΒ 1500 | 2,4 |
4 | Π‘ΡΠ΅Π½Π΄ ΡΒ Π±Π΅Π³ΠΎΠ²ΡΠΌΠΈ Π±Π°ΡΠ°Π±Π°Π½Π°ΠΌΠΈ | ΠΠ-4872 | 1 | 5660Γ2820 | 15,7 |
5 | Π‘ΡΠ΅Π»Π»Π°ΠΆ ΡΠ΅ΠΊΡΠΈΠΎΠ½Π½ΡΠΉ | ΠΠ-03 | 1 | 1400Γ1450 | 2,03 |
6 | Π‘ΡΠ΅Π½Π΄ Π΄Π»Ρ ΠΊΠΎΠ½ΡΡΠΎΠ»Ρ ΡΠ³Π»ΠΎΠ² ΡΡΡΠ°Π½ΠΎΠ²ΠΊΠΈ | 1 | 800Γ630 | 0. | |
| Β | ΠΡΠΎΠ³ΠΎ | Β | Β | Β | 22 |
Π Π°ΡΡΠ΅Ρ ΠΎΡ Π²Π°ΡΠ° Π΄ΠΈΠ°Π³Π½ΠΎΡΡΠΈΠΊΠΎΠΉ | ΠΊΠΠ
ΠΠ°ΠΊ ΠΎΠΏΠΈΡΠ°Π½ΠΎ Π² ΡΠ°Π·Π΄Π΅Π»Π΅ Β«ΠΠΏΡΠ΅Π΄Π΅Π»Π΅Π½ΠΈΠ΅ ΠΎΡ Π²Π°ΡΠ° Π΄ΠΈΠ°Π³Π½ΠΎΡΡΠΈΠΊΠΎΠΉΒ», ΡΡΠ°Π½Π΄Π°ΡΡ ISO 26262 ΠΏΡΠ΅Π΄ΠΎΡΡΠ°Π²Π»ΡΠ΅Ρ ΠΎΡΠ΅Π½ΠΊΠΈ ΠΎΡ Π²Π°ΡΠ° Π΄ΠΈΠ°Π³Π½ΠΎΡΡΠΈΠΊΠΎΠΉ (DC), ΠΊΠΎΡΠΎΡΡΠ΅ ΡΠ»Π΅Π΄ΡΠ΅Ρ ΠΈΡΠΏΠΎΠ»ΡΠ·ΠΎΠ²Π°ΡΡ Π΄Π»Ρ ΡΠ°Π·Π»ΠΈΡΠ½ΡΡ ΠΌΠ΅Ρ Π°Π½ΠΈΠ·ΠΌΠΎΠ² Π±Π΅Π·ΠΎΠΏΠ°ΡΠ½ΠΎΡΡΠΈ Π²ΠΎ Π²ΡΠ΅ΠΌΡ ΠΊΠΎΠ»ΠΈΡΠ΅ΡΡΠ²Π΅Π½Π½ΠΎΠ³ΠΎ Π°Π½Π°Π»ΠΈΠ·Π°.
ΠΠΎ ΡΡΠΎ Π½Π°ΠΌ Π΄Π΅Π»Π°ΡΡ, ΠΊΠΎΠ³Π΄Π° ΡΡΡΠ΅ΡΡΠ²ΡΠ΅Ρ Π½Π΅ΡΠΊΠΎΠ»ΡΠΊΠΎ ΠΌΠ΅Ρ Π°Π½ΠΈΠ·ΠΌΠΎΠ² Π±Π΅Π·ΠΎΠΏΠ°ΡΠ½ΠΎΡΡΠΈ, ΠΏΡΠΈΠΌΠ΅Π½ΠΈΠΌΡΡ ΠΎΠ΄Π½ΠΎΠ²ΡΠ΅ΠΌΠ΅Π½Π½ΠΎ Π΄Π»Ρ Π·Π°ΡΠΈΡΡ ΠΎΡ ΠΎΠ΄Π½ΠΎΠ³ΠΎ ΡΠ΅ΠΆΠΈΠΌΠ° ΠΎΡΠΊΠ°Π·Π°? ΠΠ°ΠΊ ΠΎΡΠ΅Π½ΠΈΠ²Π°Π΅ΡΡΡ Π΄ΠΈΠ°Π³Π½ΠΎΡΡΠΈΡΠ΅ΡΠΊΠΎΠ΅ ΠΏΠΎΠΊΡΡΡΠΈΠ΅ Π² ΡΠ°ΠΊΠΎΠΌ ΡΠ΅Π°Π»ΡΠ½ΠΎΠΌ ΡΡΠ΅Π½Π°ΡΠΈΠΈ?
ISO 26262 ΠΎΠ±Π΅ΡΠΏΠ΅ΡΠΈΠ²Π°Π΅Ρ Β«ΠΎΡΠΏΡΠ°Π²Π½ΡΡ ΡΠΎΡΠΊΡΒ» Π΄Π»Ρ ΠΎΡΠ΅Π½ΠΊΠΈ Π·Π½Π°ΡΠ΅Π½ΠΈΠΉ ΠΏΠΎΡΡΠΎΡΠ½Π½ΠΎΠ³ΠΎ ΡΠΎΠΊΠ° ΠΌΠ΅Ρ
Π°Π½ΠΈΠ·ΠΌΠ° Π±Π΅Π·ΠΎΠΏΠ°ΡΠ½ΠΎΡΡΠΈ Π½Π° ΠΎΡΠ½ΠΎΠ²Π΅ ΠΈΡ
ΠΏΡΠΈΠΌΠ΅Π½ΠΈΠΌΠΎΡΡΠΈ ΠΊ ΡΠΈΡΡΠ΅ΠΌΠ΅. Π ΡΠ»ΡΡΠ°ΡΡ
, ΠΊΠΎΠ³Π΄Π° Π½Π΅ΡΠΊΠΎΠ»ΡΠΊΠΎ ΠΌΠ΅Ρ
Π°Π½ΠΈΠ·ΠΌΠΎΠ² Π±Π΅Π·ΠΎΠΏΠ°ΡΠ½ΠΎΡΡΠΈ ΠΎΡ
Π²Π°ΡΡΠ²Π°ΡΡ ΠΎΠ΄ΠΈΠ½ Π²ΠΈΠ΄ Π½Π΅ΠΈΡΠΏΡΠ°Π²Π½ΠΎΡΡΠΈ, Π½Π°ΠΌ Π½Π΅ΠΎΠ±Ρ
ΠΎΠ΄ΠΈΠΌΠΎ ΠΏΡΠ΅Π΄ΠΎΡΡΠ°Π²ΠΈΡΡ Π΄ΠΎΡΡΠ°ΡΠΎΡΠ½ΠΎΠ΅ ΠΎΠ±ΠΎΡΠ½ΠΎΠ²Π°Π½ΠΈΠ΅ ΠΏΡΠΈ ΠΎΡΠ΅Π½ΠΊΠ΅ ΡΡΡΠ΅ΠΊΡΠΈΠ²Π½ΠΎΠ³ΠΎ ΠΎΡ
Π²Π°ΡΠ° Π²ΡΠ΅Ρ
Π΄ΠΈΠ°Π³Π½ΠΎΡΡΠΈΡΠ΅ΡΠΊΠΈΡ
ΡΡΠ΅Π΄ΡΡΠ², Π΄Π΅ΠΉΡΡΠ²ΡΡΡΠΈΡ
Π² ΡΠ°Π½Π΄Π΅ΠΌΠ΅ Π΄Π»Ρ ΠΎΠ±Π½Π°ΡΡΠΆΠ΅Π½ΠΈΡ ΡΡΠΎΠΉ ΠΊΠΎΠ½ΠΊΡΠ΅ΡΠ½ΠΎΠΉ Π½Π΅ΠΈΡΠΏΡΠ°Π²Π½ΠΎΡΡΠΈ.
ΠΠΈΠΆΠ΅ ΠΏΡΠΈΠ²Π΅Π΄Π΅Π½Ρ Π½Π΅ΠΊΠΎΡΠΎΡΡΠ΅ ΠΈΠ· ΠΌΠ΅ΡΠΎΠ΄ΠΎΠ², ΠΊΠΎΡΠΎΡΡΠ΅ ΠΌΠΎΠΆΠ½ΠΎ ΠΈΡΠΏΠΎΠ»ΡΠ·ΠΎΠ²Π°ΡΡ Π΄Π»Ρ ΠΎΡΠ΅Π½ΠΊΠΈ ΡΡΡΠ΅ΠΊΡΠΈΠ²Π½ΠΎΠ³ΠΎ Π΄ΠΈΠ°Π³Π½ΠΎΡΡΠΈΡΠ΅ΡΠΊΠΎΠ³ΠΎ ΠΎΡ
Π²Π°ΡΠ° ΠΏΡΠΈ ΡΡΠ»ΠΎΠ²ΠΈΠΈ, ΡΡΠΎ Ρ Π½Π°Ρ Π΅ΡΡΡ Π΄ΠΎΡΡΠ°ΡΠΎΡΠ½ΡΠ΅ Π΄ΠΎΠΊΠ°Π·Π°ΡΠ΅Π»ΡΡΡΠ²Π° Π² ΠΏΠΎΠ΄Π΄Π΅ΡΠΆΠΊΡ Π½Π°ΡΠ΅Π³ΠΎ Π·Π°ΡΠ²Π»Π΅Π½ΠΈΡ.
ΠΡΠ΅Π΄ΠΏΠΎΠ»ΠΎΠΆΠΈΠΌ, Ρ Π½Π°Ρ Π΅ΡΡΡ 3 ΠΌΠ΅Ρ Π°Π½ΠΈΠ·ΠΌΠ° Π±Π΅Π·ΠΎΠΏΠ°ΡΠ½ΠΎΡΡΠΈ SM1 (Ρ DC1 = 90%), SM2 (DC2 = 60%) ΠΈ SM3 (DC3 = 50%), ΠΏΡΠΈΠΌΠ΅Π½ΠΈΠΌΡΡ ΠΊ ΡΠ΅ΠΆΠΈΠΌΡ ΠΎΡΠΊΠ°Π·Π° (10 FIT). ΠΠ°ΡΠ΅ΠΌ ΠΌΡ ΠΌΠΎΠ³Π»ΠΈ Π±Ρ ΠΈΡΠΏΠΎΠ»ΡΠ·ΠΎΠ²Π°ΡΡ ΠΎΠ΄ΠΈΠ½ ΠΈΠ· Π½Π΅ΡΠΊΠΎΠ»ΡΠΊΠΈΡ ΠΌΠ΅ΡΠΎΠ΄ΠΎΠ²:
ΠΠ΅ΡΠΎΠ΄ Π
ΠΠΎΠ΄Ρ ΠΎΠ΄ Π½ΠΈΠΆΠ½Π΅ΠΉ Π³ΡΠ°Π½ΠΈΡΡ.
DC eff = DC 1 = 90%
- ΠΠΊΠ²ΠΈΠ²Π°Π»Π΅Π½Ρ DC = DC Π½Π°ΠΈΠ±ΠΎΠ»Π΅Π΅ ΡΡΡΠ΅ΠΊΡΠΈΠ²Π½ΠΎΠ³ΠΎ ΠΌΠ΅Ρ Π°Π½ΠΈΠ·ΠΌΠ° Π±Π΅Π·ΠΎΠΏΠ°ΡΠ½ΠΎΡΡΠΈ (SM1)
- ΠΡΠΎ Π½Π°ΠΈΠ±ΠΎΠ»Π΅Π΅ ΠΊΠΎΠ½ΡΠ΅ΡΠ²Π°ΡΠΈΠ²Π½ΡΠΉ ΠΏΠΎΠ΄Ρ ΠΎΠ΄, ΠΏΠΎΡΠΊΠΎΠ»ΡΠΊΡ ΠΌΠ΅Π½Π΅Π΅ ΡΡΡΠ΅ΠΊΡΠΈΠ²Π½ΡΠ΅ ΠΌΠ΅Ρ Π°Π½ΠΈΠ·ΠΌΡ Π±Π΅Π·ΠΎΠΏΠ°ΡΠ½ΠΎΡΡΠΈ Π½Π΅ ΡΠ°ΡΡΠΌΠ°ΡΡΠΈΠ²Π°ΡΡΡΡ
ΠΠ΅ΡΠΎΠ΄ B
ΠΠΎΠ΄Ρ ΠΎΠ΄ Π²Π΅ΡΡ Π½Π΅ΠΉ Π³ΡΠ°Π½ΠΈΡΡ
DC eff (%) = DC 1 + DC 2 * (1 β DC 1 9001 8 ) + ΠΠ¦ 3 * (1 β ΠΠ¦ 1 β DC 2 * (1 β DC 1 )) = 98 %
- ΠΠ°ΠΆΠ΄ΡΠΉ ΠΏΡΠΈΠΌΠ΅Π½ΠΈΠΌΡΠΉ ΠΌΠ΅Ρ
Π°Π½ΠΈΠ·ΠΌ Π±Π΅Π·ΠΎΠΏΠ°ΡΠ½ΠΎΡΡΠΈ ΠΏΠΎΠΊΡΡΠ²Π°Π΅Ρ Π½Π΅Π·Π°Π²ΠΈΡΠΈΠΌΡΠ΅ ΡΠ°ΡΡΠΈ Π½Π΅ΠΈΡΠΏΡΠ°Π²Π½ΠΎΡΡΠΈ.
ΠΠ°ΠΏΡΠΈΠΌΠ΅Ρ, SM1 ΠΎΠ±Π½Π°ΡΡΠΆΠΈΠ²Π°Π΅Ρ 90 % ΠΎΡΠΊΠ°Π·ΠΎΠ², SM2 ΠΎΠ±Π½Π°ΡΡΠΆΠΈΠ²Π°Π΅Ρ 60 % ΠΎΡΡΠ°Π²ΡΠΈΡ
ΡΡ ΠΎΡΠΊΠ°Π·ΠΎΠ² ΠΏΠΎΡΠ»Π΅ SM1, Π° SM3 ΠΎΠ±Π½Π°ΡΡΠΆΠΈΠ²Π°Π΅Ρ 50 % ΠΎΡΠΊΠ°Π·ΠΎΠ², ΠΎΡΡΠ°Π²ΡΠΈΡ
ΡΡ ΠΏΠΎΡΠ»Π΅ SM1 ΠΈ SM2 - ΠΡΠΎ ΡΠ°ΠΌΡΠΉ Π½Π΅ΠΊΠΎΠ½ΡΠ΅ΡΠ²Π°ΡΠΈΠ²Π½ΡΠΉ ΠΏΠΎΠ΄Ρ ΠΎΠ΄
ΠΠ΅ΡΠΎΠ΄ C
ΠΠ΅ΡΠΎΠ΄ ΡΡΡΠ΅Π΄Π½Π΅Π½ΠΈΡ ΠΏΠΎΡΡΠΎΡΠ½Π½ΠΎΠ³ΠΎ ΡΠΎΠΊΠ°
- ΠΠΊΠ²ΠΈΠ²Π°Π»Π΅Π½ΡΠ½ΡΠΉ ΠΏΠΎΡΡΠΎΡΠ½Π½ΡΠΉ ΡΠΎΠΊ = ΠΏΠΎΡΡΠΎΡΠ½Π½ΡΠΉ ΡΠΎΠΊ Π½Π΅Π·Π°Π²ΠΈΡΠΈΠΌΠΎΠ³ΠΎ SM + ΡΡΠ΅Π΄Π½Π΅Π΅ Π·Π½Π°ΡΠ΅Π½ΠΈΠ΅ Π΄ΡΡΠ³ΠΈΡ ΠΌΠ΅Ρ Π°Π½ΠΈΠ·ΠΌΠΎΠ² Π±Π΅Π·ΠΎΠΏΠ°ΡΠ½ΠΎΡΡΠΈ (ΠΏΡΠΈ ΡΡΠ»ΠΎΠ²ΠΈΠΈ, ΡΡΠΎ ΠΎΠ½ Π½Π΅Π·Π°Π²ΠΈΡΠΈΠΌ ΠΎΡ SM1)
- ΠΡΠ° ΠΎΡΠ΅Π½ΠΊΠ° ΡΡΠΈΡΡΠ²Π°Π΅Ρ, ΡΡΠΎ Π½Π΅Π±ΠΎΠ»ΡΡΠ°Ρ ΡΠ°ΡΡΡ ΠΎΠ±Π½Π°ΡΡΠΆΠ΅Π½Π½ΡΡ ΠΎΡΠΊΠ°Π·ΠΎΠ² ΡΠ²Π»ΡΠ΅ΡΡΡ ΠΎΠ±ΡΠ΅ΠΉ Π΄Π»Ρ ΠΌΠ΅Ρ Π°Π½ΠΈΠ·ΠΌΠΎΠ² Π±Π΅Π·ΠΎΠΏΠ°ΡΠ½ΠΎΡΡΠΈ (SM2 ΠΈ SM3)
ΠΠ΅ΡΠΎΠ΄ D
ΠΠΎΠ΄Ρ ΠΎΠ΄ Π½ΠΎΡΠΌΠ°Π»ΠΈΠ·ΠΎΠ²Π°Π½Π½ΠΎΠ³ΠΎ ΠΏΠΎΡΡΠΎΡΠ½Π½ΠΎΠ³ΠΎ ΡΠΎΠΊΠ°
- ΠΠΈΠΆΠ½ΡΡ Π³ΡΠ°Π½ΠΈΡΠ° ΠΎΠΏΡΠ΅Π΄Π΅Π»ΡΠ΅ΡΡΡ Π½Π°ΠΈΠ±ΠΎΠ»Π΅Π΅ ΡΡΡΠ΅ΠΊΡΠΈΠ²Π½ΡΠΌ ΠΌΠ΅Ρ Π°Π½ΠΈΠ·ΠΌΠΎΠΌ Π±Π΅Π·ΠΎΠΏΠ°ΡΠ½ΠΎΡΡΠΈ β Π‘Π1 (90%)
- ΠΡΡΠ΅ΠΊΡΠΈΠ²Π½ΡΠΉ ΠΏΠΎΡΡΠΎΡΠ½Π½ΡΠΉ ΡΠΎΠΊ ΠΎΡΡΠ°Π»ΡΠ½ΡΡ ΠΌΠ΅Ρ Π°Π½ΠΈΠ·ΠΌΠΎΠ² Π±Π΅Π·ΠΎΠΏΠ°ΡΠ½ΠΎΡΡΠΈ ΡΠ°ΡΡΡΠΈΡΡΠ²Π°Π΅ΡΡΡ ΠΈΡΡ ΠΎΠ΄Ρ ΠΈΠ· ΡΡΠ΅Π½Π°ΡΠΈΡ Π½Π°ΠΈΡ ΡΠ΄ΡΠ΅Π³ΠΎ ΡΠ»ΡΡΠ°Ρ (0% ΠΏΠΎΡΡΠΎΡΠ½Π½ΠΎΠ³ΠΎ ΡΠΎΠΊΠ°) Π΄Π»Ρ ΠΌΠ΅Ρ Π°Π½ΠΈΠ·ΠΌΠ° Π±Π΅Π·ΠΎΠΏΠ°ΡΠ½ΠΎΡΡΠΈ Ρ Π½ΠΈΠΆΠ½Π΅ΠΉ Π³ΡΠ°Π½ΠΈΡΠ΅ΠΉ
- ΠΡΠΎΡ ΠΏΠΎΠ΄Ρ ΠΎΠ΄ ΡΠ²Π»ΡΠ΅ΡΡΡ Π½Π°ΠΈΠ±ΠΎΠ»Π΅Π΅ ΠΏΠΎΠ΄Ρ ΠΎΠ΄ΡΡΠΈΠΌ , ΡΠ°ΠΊ ΠΊΠ°ΠΊ ΠΎΠ½ ΡΠΎΡΠ΅ΡΠ°Π΅Ρ Π² ΡΠ΅Π±Π΅ ΠΏΠΎΠ»ΠΎΠΆΠΈΡΠ΅Π»ΡΠ½ΡΠ΅ ΡΡΠΎΡΠΎΠ½Ρ Π²ΡΠ΅Ρ Π²ΡΡΠ΅ΠΏΠ΅ΡΠ΅ΡΠΈΡΠ»Π΅Π½Π½ΡΡ ΠΏΠΎΠ΄Ρ ΠΎΠ΄ΠΎΠ² ΠΈ ΠΎΠ±Π΅ΡΠΏΠ΅ΡΠΈΠ²Π°Π΅Ρ ΡΠ°Π·ΡΠΌΠ½ΡΡ ΠΎΡΠ΅Π½ΠΊΡ, ΠΊΠΎΡΠΎΡΠ°Ρ Π½Π΅ ΡΠ²Π»ΡΠ΅ΡΡΡ Π½ΠΈ ΡΠ»ΠΈΡΠΊΠΎΠΌ ΠΊΠΎΠ½ΡΠ΅ΡΠ²Π°ΡΠΈΠ²Π½ΠΎΠΉ, Π½ΠΈ ΡΡΠ΅Π·ΠΌΠ΅ΡΠ½ΠΎ ΡΠ°Π·ΡΠ΅ΡΠΈΡΠ΅Π»ΡΠ½ΠΎΠΉ
ΠΠ΅ΡΠΎΠ΄ E
Π€Π°ΠΊΡΠΈΡΠ΅ΡΠΊΠΈΠΉ ΠΏΠΎΠ΄Ρ ΠΎΠ΄ ΠΏΠΎΡΡΠΎΡΠ½Π½ΠΎΠ³ΠΎ ΡΠΎΠΊΠ°
- Π ΠΈΠ΄Π΅Π°Π»ΡΠ½ΠΎΠΌ ΡΡΠ΅Π½Π°ΡΠΈΠΈ ΠΊΠ°ΠΆΠ΄ΡΠΉ ΠΌΠ΅Ρ
Π°Π½ΠΈΠ·ΠΌ Π±Π΅Π·ΠΎΠΏΠ°ΡΠ½ΠΎΡΡΠΈ Π΄ΠΎΠ»ΠΆΠ΅Π½ Π±ΡΡΡ ΠΏΠΎΠ΄ΡΠΎΠ±Π½ΠΎ ΠΈΠ·ΡΡΠ΅Π½ Π²ΠΌΠ΅ΡΡΠ΅ Ρ Π΅Π³ΠΎ ΠΏΡΠΈΠΌΠ΅Π½ΠΈΠΌΠΎΡΡΡΡ ΠΊ ΡΠ°Π·Π»ΠΈΡΠ½ΡΠΌ ΡΠ΅ΠΆΠΈΠΌΠ°ΠΌ ΠΎΡΠΊΠ°Π·Π°.
ΠΠ΄ΠΈΠ½ ΠΈ ΡΠΎΡ ΠΆΠ΅ ΠΌΠ΅Ρ
Π°Π½ΠΈΠ·ΠΌ Π±Π΅Π·ΠΎΠΏΠ°ΡΠ½ΠΎΡΡΠΈ, ΠΏΡΠΈΠΌΠ΅Π½ΠΈΠΌΡΠΉ ΠΊ ΡΠ°Π·Π½ΡΠΌ Π²ΠΈΠ΄Π°ΠΌ ΠΎΡΠΊΠ°Π·ΠΎΠ², ΠΌΠΎΠΆΠ΅Ρ ΠΈΠΌΠ΅ΡΡ ΡΠ°Π·Π½ΡΡ ΡΡΡΠ΅ΠΊΡΠΈΠ²Π½ΠΎΡΡΡ - ΠΠ΄Π½ΠΈΠΌ ΠΈΠ· ΡΠΏΠΎΡΠΎΠ±ΠΎΠ² ΠΎΡΠ΅Π½ΠΊΠΈ ΡΡΠΎΠ³ΠΎ ΠΌΠΎΠΆΠ΅Ρ Π±ΡΡΡ Π²ΡΠΏΠΎΠ»Π½Π΅Π½ΠΈΠ΅ ΡΠ΅ΡΡΠΈΡΠΎΠ²Π°Π½ΠΈΡ Ρ Π²Π²ΠΎΠ΄ΠΎΠΌ ΠΎΡΠΊΠ°Π·Π° ΠΈ Π½Π°Π±Π»ΡΠ΄Π΅Π½ΠΈΠ΅ Π·Π° ΡΠ΅Π°ΠΊΡΠΈΠ΅ΠΉ ΠΌΠ΅Ρ Π°Π½ΠΈΠ·ΠΌΠΎΠ² Π±Π΅Π·ΠΎΠΏΠ°ΡΠ½ΠΎΡΡΠΈ, Π° Π·Π°ΡΠ΅ΠΌ ΠΎΠΏΡΠ΅Π΄Π΅Π»Π΅Π½ΠΈΠ΅ ΠΈΡ ΡΡΡΠ΅ΠΊΡΠΈΠ²Π½ΠΎΡΡΠΈ
- ΠΡΠΎ ΠΌΠΎΠΆΠ΅Ρ Π±ΡΡΡ ΠΎΡΠ΅Π½Ρ ΡΡΠΎΠΌΠΈΡΠ΅Π»ΡΠ½ΡΠΌ ΠΏΠΎΠ΄Ρ ΠΎΠ΄ΠΎΠΌ ΠΈ ΠΌΠΎΠΆΠ΅Ρ ΡΡΠΈΡΠ°ΡΡΡΡ Π½Π΅ΡΠ΅Π»Π΅ΡΠΎΠΎΠ±ΡΠ°Π·Π½ΡΠΌ Π΄Π»Ρ Π²ΡΠΏΠΎΠ»Π½Π΅Π½ΠΈΡ Π² ΡΡΠΎΠΊΠΈ ΠΎΠ±ΡΡΠ½ΠΎΠ³ΠΎ ΠΏΡΠΎΠ΅ΠΊΡΠ°
Π’Π΅Π³ΠΈ: Π΄ΠΈΠ°Π³Π½ΠΎΡΡΠΈΡΠ΅ΡΠΊΠΎΠ΅ ΠΏΠΎΠΊΡΡΡΠΈΠ΅, Π Π΅ΠΆΠΈΠΌ ΠΎΡΠΊΠ°Π·Π°, ΠΏΡΠΎΠ²Π΅ΡΠΊΠ° Π²Π²ΠΎΠ΄Π° Π½Π΅ΠΈΡΠΏΡΠ°Π²Π½ΠΎΡΡΠΈ, ΠΌΠ΅Ρ Π°Π½ΠΈΠ·ΠΌ Π±Π΅Π·ΠΎΠΏΠ°ΡΠ½ΠΎΡΡΠΈ
ΠΠ°ΡΠ΅Π³ΠΎΡΠΈΡ: ΠΠ½Π°Π»ΠΈΠ· Π±Π΅Π·ΠΎΠΏΠ°ΡΠ½ΠΎΡΡΠΈ
ΠΡΠ΅Π΄ΡΠ΄ΡΡΠΈΠΉ ΠΏΠΎΡΡ: ΠΠ°ΠΊ ΡΠ°Π·ΡΠ°Π±ΠΎΡΠ°ΡΡ Π±Π΅Π·ΠΎΠΏΠ°ΡΠ½ΡΠΉ ΠΏΠΎΠ»ΡΠΏΡΠΎΠ²ΠΎΠ΄Π½ΠΈΠΊ?
Π‘Π»Π΅Π΄ΡΡΡΠ΅Π΅ ΡΠΎΠΎΠ±ΡΠ΅Π½ΠΈΠ΅: ΠΠ·Π±ΡΠΊΠ° ΠΈΠ½ΠΆΠ΅Π½Π΅ΡΠ° ΠΏΠΎ ΡΡΠ½ΠΊΡΠΈΠΎΠ½Π°Π»ΡΠ½ΠΎΠΉ Π±Π΅Π·ΠΎΠΏΠ°ΡΠ½ΠΎΡΡΠΈ Π°Π²ΡΠΎΠΌΠΎΠ±ΠΈΠ»Π΅ΠΉ
ΠΠ±Ρ ΠΈΡΠ΅ΠΊ Π¨ΠΈΠ²ΠΊΡΠΌΠ°Ρ
ΠΠ½ΠΆΠ΅Π½Π΅Ρ ΠΏΡΠΎΠ΅ΠΊΡΠ° @ kVA ΠΏΠΎ UL
ΠΠ±Ρ
ΠΈΡΠ΅ΠΊ Π¨ΠΈΠ²ΠΊΡΠΌΠ°Ρ ΡΠ²Π»ΡΠ΅ΡΡΡ ΡΠ΅ΡΡΠΈΡΠΈΡΠΈΡΠΎΠ²Π°Π½Π½ΡΠΌ ΠΈΠ½ΠΆΠ΅Π½Π΅ΡΠΎΠΌ UL-CFSP.
ΠΠ½ ΠΏΠΎΠ»ΡΡΠΈΠ» ΡΡΠ΅ΠΏΠ΅Π½Ρ ΠΌΠ°Π³ΠΈΡΡΡΠ° Π°Π²ΡΠΎΠΌΠΎΠ±ΠΈΠ»ΡΠ½ΠΎΠ³ΠΎ ΠΌΠ°ΡΠΈΠ½ΠΎΡΡΡΠΎΠ΅Π½ΠΈΡ Π² Π£Π½ΠΈΠ²Π΅ΡΡΠΈΡΠ΅ΡΠ΅ ΠΠ»Π΅ΠΌΡΠΎΠ½Π° (CU-ICAR), Π³Π΄Π΅ ΡΠΏΠ΅ΡΠΈΠ°Π»ΠΈΠ·ΠΈΡΠΎΠ²Π°Π»ΡΡ Π½Π° ΡΠ»Π΅ΠΌΠ΅Π½ΡΠ°Ρ
ΡΠΏΡΠ°Π²Π»Π΅Π½ΠΈΡ ΡΡΠ°Π½ΡΠΌΠΈΡΡΠΈΠ΅ΠΉ. ΠΠ½ ΠΈΠΌΠ΅Π΅Ρ Π±ΠΎΠ»Π΅Π΅ ΡΠ΅ΠΌ 3-Π»Π΅ΡΠ½ΠΈΠΉ ΠΎΠΏΡΡ ΡΠ°Π±ΠΎΡΡ Ρ Π°Π²ΡΠΎΠΌΠΎΠ±ΠΈΠ»ΡΠ½ΠΎΠΉ ΡΠ»Π΅ΠΊΡΡΠΎΠ½ΠΈΠΊΠΎΠΉ, ΠΏΡΠΎΠ΅ΠΊΡΠΈΡΠΎΠ²Π°Π½ΠΈΠ΅ΠΌ ΡΠΈΡΡΠ΅ΠΌ, ΡΠ΅ΡΡΠΈΡΠΎΠ²Π°Π½ΠΈΠ΅ΠΌ ΠΈ ΠΏΡΠΎΠ²Π΅ΡΠΊΠΎΠΉ ΡΠ»Π΅ΠΊΡΡΠΈΡΠ΅ΡΠΊΠΈΡ
ΠΏΠΎΠ΄ΡΠΈΡΡΠ΅ΠΌ Π½Π° ΡΡΠΎΠ²Π½Π΅ ΡΡΠ°Π½ΡΠΏΠΎΡΡΠ½ΡΡ
ΡΡΠ΅Π΄ΡΡΠ². ΠΠ½ ΡΠ°ΠΊΠΆΠ΅ ΠΈΠΌΠ΅Π΅Ρ ΡΡΠ΅ΠΏΠ΅Π½Ρ Π±Π°ΠΊΠ°Π»Π°Π²ΡΠ° Π² ΠΎΠ±Π»Π°ΡΡΠΈ ΡΠ»Π΅ΠΊΡΡΠΎΡΠ΅Ρ
Π½ΠΈΠΊΠΈ ΠΈ ΡΠ»Π΅ΠΊΡΡΠΎΠ½ΠΈΠΊΠΈ ΠΠ°ΡΠΈΠΎΠ½Π°Π»ΡΠ½ΠΎΠ³ΠΎ ΡΠ΅Ρ
Π½ΠΎΠ»ΠΎΠ³ΠΈΡΠ΅ΡΠΊΠΎΠ³ΠΎ ΠΈΠ½ΡΡΠΈΡΡΡΠ° ΠΠΈΡΠ²Π΅ΡΠ²Π°ΡΠ°Ρ, ΠΠ½Π΄ΠΈΡ.
Energy & Industrial Outlook Newsletter
ΠΠΎΠ΄ΠΏΠΈΡΠ°ΡΡΡΡ
Π§ΡΠΎ ΡΠ°ΠΊΠΎΠ΅ Π΄ΠΈΠ°Π³Π½ΠΎΡΡΠΈΡΠ΅ΡΠΊΠ°Ρ Π°Π½Π°Π»ΠΈΡΠΈΠΊΠ°? 4 ΠΡΠΈΠΌΠ΅ΡΡ
ΠΠ½Π°Π»ΠΈΡΠΈΠΊΠ° Π΄Π°Π½Π½ΡΡ β ΠΊΠΎΡΠΎΡΡΡ ΠΎΡΠ³Π°Π½ΠΈΠ·Π°ΡΠΈΠΈ ΡΠ°ΡΡΠΎ Π½Π°Π·ΡΠ²Π°ΡΡ Π±ΠΈΠ·Π½Π΅Ρ-Π°Π½Π°Π»ΠΈΡΠΈΠΊΠΎΠΉ β ΡΡΠΎ ΠΏΡΠΎΡΠ΅ΡΡ ΠΈΡΠΏΠΎΠ»ΡΠ·ΠΎΠ²Π°Π½ΠΈΡ Π΄Π°Π½Π½ΡΡ Π΄Π»Ρ ΠΎΡΠ²Π΅ΡΠ° Π½Π° Π²ΠΎΠΏΡΠΎΡΡ, Π²ΡΡΠ²Π»Π΅Π½ΠΈΡ ΡΠ΅Π½Π΄Π΅Π½ΡΠΈΠΉ ΠΈ ΠΈΠ·Π²Π»Π΅ΡΠ΅Π½ΠΈΡ ΠΈΠ½ΡΠΎΡΠΌΠ°ΡΠΈΠΈ. ΠΡΠΈ ΠΈΠ΄Π΅ΠΈ ΠΌΠΎΠ³ΡΡ Π±ΡΡΡ ΡΠ΅Π½Π½Ρ Π΄Π»Ρ ΠΎΡΠ³Π°Π½ΠΈΠ·Π°ΡΠΈΠΉ, ΠΏΠΎΡΠΊΠΎΠ»ΡΠΊΡ ΠΎΠ½ΠΈ ΠΏΠΎΠΌΠΎΠ³Π°ΡΡ ΠΏΡΠΈΠ½ΠΈΠΌΠ°ΡΡ ΡΠ΅ΡΠ΅Π½ΠΈΡ ΠΈ ΡΠΎΡΠΌΡΠ»ΠΈΡΠΎΠ²Π°ΡΡ ΡΡΡΠ°ΡΠ΅Π³ΠΈΡ.
Π‘ΡΡΠ΅ΡΡΠ²ΡΠ΅Ρ ΡΠ΅ΡΡΡΠ΅ ΠΎΡΠ½ΠΎΠ²Π½ΡΡ ΡΠΈΠΏΠ° Π°Π½Π°Π»ΠΈΠ·Π° Π΄Π°Π½Π½ΡΡ :
- ΠΠΏΠΈΡΠ°ΡΠ΅Π»ΡΠ½ΡΠΉ , ΠΊΠΎΡΠΎΡΡΠΉ ΠΎΡΠ²Π΅ΡΠ°Π΅Ρ Π½Π° Π²ΠΎΠΏΡΠΎΡ Β«Π§ΡΠΎ ΡΠ»ΡΡΠΈΠ»ΠΎΡΡ?Β»
- ΠΠΈΠ°Π³Π½ΠΎΡΡΠΈΠΊΠ°, , ΠΎΡΠ²Π΅ΡΠ°ΡΡΠ°Ρ Π½Π° Π²ΠΎΠΏΡΠΎΡ Β«ΠΠΎΡΠ΅ΠΌΡ ΡΡΠΎ ΠΏΡΠΎΠΈΠ·ΠΎΡΠ»ΠΎ?Β»
- Predictive , ΠΊΠΎΡΠΎΡΡΠΉ ΠΎΡΠ²Π΅ΡΠ°Π΅Ρ Π½Π° Π²ΠΎΠΏΡΠΎΡ Β«Π§ΡΠΎ ΠΌΠΎΠΆΠ΅Ρ ΠΏΡΠΎΠΈΠ·ΠΎΠΉΡΠΈ Π² Π±ΡΠ΄ΡΡΠ΅ΠΌ?Β»
- ΠΡΠ΅Π΄ΠΏΠΈΡΡΠ²Π°ΡΡΠΈΠΉ , ΠΊΠΎΡΠΎΡΡΠΉ ΠΎΡΠ²Π΅ΡΠ°Π΅Ρ Π½Π° Π²ΠΎΠΏΡΠΎΡ Β«Π§ΡΠΎ Π½Π°ΠΌ Π΄Π΅Π»Π°ΡΡ Π΄Π°Π»ΡΡΠ΅?Β»
ΠΠ°ΠΆΠ΄ΡΠΉ ΡΠΈΠΏ Π°Π½Π°Π»ΠΈΡΠΈΠΊΠΈ ΡΠ»ΡΠΆΠΈΡ ΠΎΠΏΡΠ΅Π΄Π΅Π»Π΅Π½Π½ΠΎΠΉ ΡΠ΅Π»ΠΈ ΠΈ ΠΌΠΎΠΆΠ΅Ρ ΠΈΡΠΏΠΎΠ»ΡΠ·ΠΎΠ²Π°ΡΡΡΡ Π² ΡΠ°Π½Π΄Π΅ΠΌΠ΅ Ρ Π΄ΡΡΠ³ΠΈΠΌΠΈ, ΡΡΠΎΠ±Ρ ΠΏΠΎΠ»ΡΡΠΈΡΡ ΠΏΠΎΠ»Π½ΡΡ ΠΊΠ°ΡΡΠΈΠ½Ρ ΡΠΎΠ³ΠΎ, ΡΡΠΎ ΡΠ°ΡΡΠΊΠ°Π·ΡΠ²Π°ΡΡ Π΄Π°Π½Π½ΡΠ΅.
ΠΠΈΠ°Π³Π½ΠΎΡΡΠΈΡΠ΅ΡΠΊΠ°Ρ Π°Π½Π°Π»ΠΈΡΠΈΠΊΠ° ΠΏΡΠ΅Π΄ΠΎΡΡΠ°Π²Π»ΡΠ΅Ρ Π²Π°ΠΆΠ½ΡΡ ΠΈΠ½ΡΠΎΡΠΌΠ°ΡΠΈΡ ΠΎ ΡΠΎΠΌ, ΠΏΠΎΡΠ΅ΠΌΡ Π²ΠΎΠ·Π½ΠΈΠΊΠ»Π° ΡΠ΅Π½Π΄Π΅Π½ΡΠΈΡ ΠΈΠ»ΠΈ Π²Π·Π°ΠΈΠΌΠΎΡΠ²ΡΠ·Ρ, ΠΈ ΠΏΠΎΠ»Π΅Π·Π½Π° Π΄Π»Ρ ΠΏΡΠΎΡΠ΅ΡΡΠΈΠΎΠ½Π°Π»ΠΎΠ², ΡΡΡΠ΅ΠΌΡΡΠΈΡ ΡΡ ΠΏΠΎΠ΄ΠΊΡΠ΅ΠΏΠΈΡΡ ΡΠ²ΠΎΠΈ ΡΠ΅ΡΠ΅Π½ΠΈΡ Π΄Π°Π½Π½ΡΠΌΠΈ. ΠΠΎΡ Π²Π²Π΅Π΄Π΅Π½ΠΈΠ΅ Π² Π΄ΠΈΠ°Π³Π½ΠΎΡΡΠΈΡΠ΅ΡΠΊΡΡ Π°Π½Π°Π»ΠΈΡΠΈΠΊΡ ΠΈ ΠΎΡΠ½ΠΎΠ²Π½ΡΠ΅ ΡΠΎΠΎΠ±ΡΠ°ΠΆΠ΅Π½ΠΈΡ ΠΏΠΎ Π΅Π΅ ΠΈΡΠΏΠΎΠ»ΡΠ·ΠΎΠ²Π°Π½ΠΈΡ Π² Π²Π°ΡΠ΅ΠΉ ΠΎΡΠ³Π°Π½ΠΈΠ·Π°ΡΠΈΠΈ.
ΠΠ΅ΡΠΏΠ»Π°ΡΠ½Π°Ρ ΡΠ»Π΅ΠΊΡΡΠΎΠ½Π½Π°Ρ ΠΊΠ½ΠΈΠ³Π°: ΡΡΠΊΠΎΠ²ΠΎΠ΄ΡΡΠ²ΠΎ Π΄Π»Ρ Π½Π°ΡΠΈΠ½Π°ΡΡΠΈΡ ΠΏΠΎ Π΄Π°Π½Π½ΡΠΌ ΠΈ Π°Π½Π°Π»ΠΈΡΠΈΠΊΠ΅
ΠΠΎΠ»ΡΡΠΈΡΠ΅ Π΄ΠΎΡΡΡΠΏ ΠΊ Π±Π΅ΡΠΏΠ»Π°ΡΠ½ΠΎΠΉ ΡΠ»Π΅ΠΊΡΡΠΎΠ½Π½ΠΎΠΉ ΠΊΠ½ΠΈΠ³Π΅ ΡΠΆΠ΅ ΡΠ΅Π³ΠΎΠ΄Π½Ρ.
Π‘ΠΠΠ§ΠΠ’Π¬ Π‘ΠΠΠ§ΠΠ‘
Π§ΡΠΎ ΡΠ°ΠΊΠΎΠ΅ Π΄ΠΈΠ°Π³Π½ΠΎΡΡΠΈΡΠ΅ΡΠΊΠ°Ρ Π°Π½Π°Π»ΠΈΡΠΈΠΊΠ°?
ΠΠΈΠ°Π³Π½ΠΎΡΡΠΈΡΠ΅ΡΠΊΠ°Ρ Π°Π½Π°Π»ΠΈΡΠΈΠΊΠ° β ΡΡΠΎ ΠΏΡΠΎΡΠ΅ΡΡ ΠΈΡΠΏΠΎΠ»ΡΠ·ΠΎΠ²Π°Π½ΠΈΡ Π΄Π°Π½Π½ΡΡ Π΄Π»Ρ ΠΎΠΏΡΠ΅Π΄Π΅Π»Π΅Π½ΠΈΡ ΠΏΡΠΈΡΠΈΠ½ ΡΠ΅Π½Π΄Π΅Π½ΡΠΈΠΉ ΠΈ ΠΊΠΎΡΡΠ΅Π»ΡΡΠΈΠΉ ΠΌΠ΅ΠΆΠ΄Ρ ΠΏΠ΅ΡΠ΅ΠΌΠ΅Π½Π½ΡΠΌΠΈ. ΠΠ³ΠΎ ΠΌΠΎΠΆΠ½ΠΎ ΡΠ°ΡΡΠΌΠ°ΡΡΠΈΠ²Π°ΡΡ ΠΊΠ°ΠΊ Π»ΠΎΠ³ΠΈΡΠ½ΡΠΉ ΡΠ»Π΅Π΄ΡΡΡΠΈΠΉ ΡΠ°Π³ ΠΏΠΎΡΠ»Π΅ ΠΈΡΠΏΠΎΠ»ΡΠ·ΠΎΠ²Π°Π½ΠΈΡ ΠΎΠΏΠΈΡΠ°ΡΠ΅Π»ΡΠ½ΠΎΠΉ Π°Π½Π°Π»ΠΈΡΠΈΠΊΠΈ Π΄Π»Ρ Π²ΡΡΠ²Π»Π΅Π½ΠΈΡ ΡΠ΅Π½Π΄Π΅Π½ΡΠΈΠΉ. ΠΠΈΠ°Π³Π½ΠΎΡΡΠΈΡΠ΅ΡΠΊΠΈΠΉ Π°Π½Π°Π»ΠΈΠ· ΠΌΠΎΠΆΠ½ΠΎ ΠΏΡΠΎΠ²ΠΎΠ΄ΠΈΡΡ Π²ΡΡΡΠ½ΡΡ, Ρ ΠΈΡΠΏΠΎΠ»ΡΠ·ΠΎΠ²Π°Π½ΠΈΠ΅ΠΌ Π°Π»Π³ΠΎΡΠΈΡΠΌΠ° ΠΈΠ»ΠΈ Ρ ΠΏΠΎΠΌΠΎΡΡΡ ΡΡΠ°ΡΠΈΡΡΠΈΡΠ΅ΡΠΊΠΎΠ³ΠΎ ΠΏΡΠΎΠ³ΡΠ°ΠΌΠΌΠ½ΠΎΠ³ΠΎ ΠΎΠ±Π΅ΡΠΏΠ΅ΡΠ΅Π½ΠΈΡ (Π½Π°ΠΏΡΠΈΠΌΠ΅Ρ, Microsoft Excel).
ΠΡΠ΅ΠΆΠ΄Π΅ ΡΠ΅ΠΌ ΠΏΠΎΠ³ΡΡΠ·ΠΈΡΡΡΡ Π² Π΄ΠΈΠ°Π³Π½ΠΎΡΡΠΈΡΠ΅ΡΠΊΡΡ Π°Π½Π°Π»ΠΈΡΠΈΠΊΡ, Π½Π΅ΠΎΠ±Ρ
ΠΎΠ΄ΠΈΠΌΠΎ ΠΏΠΎΠ½ΡΡΡ Π½Π΅ΡΠΊΠΎΠ»ΡΠΊΠΎ ΠΊΠΎΠ½ΡΠ΅ΠΏΡΠΈΠΉ: ΠΏΡΠΎΠ²Π΅ΡΠΊΠ° Π³ΠΈΠΏΠΎΡΠ΅Π·, ΡΠ°Π·Π»ΠΈΡΠΈΠ΅ ΠΌΠ΅ΠΆΠ΄Ρ ΠΊΠΎΡΡΠ΅Π»ΡΡΠΈΠ΅ΠΉ ΠΈ ΠΏΡΠΈΡΠΈΠ½Π½ΠΎ-ΡΠ»Π΅Π΄ΡΡΠ²Π΅Π½Π½ΠΎΠΉ ΡΠ²ΡΠ·ΡΡ ΠΈ Π΄ΠΈΠ°Π³Π½ΠΎΡΡΠΈΡΠ΅ΡΠΊΠΈΠΉ ΡΠ΅Π³ΡΠ΅ΡΡΠΈΠΎΠ½Π½ΡΠΉ Π°Π½Π°Π»ΠΈΠ·.
ΠΡΠΎΠ²Π΅ΡΠΊΠ° Π³ΠΈΠΏΠΎΡΠ΅Π·
ΠΡΠΎΠ²Π΅ΡΠΊΠ° Π³ΠΈΠΏΠΎΡΠ΅Π· β ΡΡΠΎ ΡΡΠ°ΡΠΈΡΡΠΈΡΠ΅ΡΠΊΠΈΠΉ ΠΏΡΠΎΡΠ΅ΡΡ ΠΏΠΎΠ΄ΡΠ²Π΅ΡΠΆΠ΄Π΅Π½ΠΈΡ ΠΈΠ»ΠΈ ΠΎΠΏΡΠΎΠ²Π΅ΡΠΆΠ΅Π½ΠΈΡ ΠΏΡΠ΅Π΄ΠΏΠΎΠ»ΠΎΠΆΠ΅Π½ΠΈΡ. ΠΠ°Π»ΠΈΡΠΈΠ΅ Π³ΠΈΠΏΠΎΡΠ΅Π·Ρ Π΄Π»Ρ ΠΏΡΠΎΠ²Π΅ΡΠΊΠΈ ΠΌΠΎΠΆΠ΅Ρ Π½Π°ΠΏΡΠ°Π²Π»ΡΡΡ ΠΈ ΡΡΠΎΠΊΡΡΠΈΡΠΎΠ²Π°ΡΡ Π²Π°Ρ Π΄ΠΈΠ°Π³Π½ΠΎΡΡΠΈΡΠ΅ΡΠΊΠΈΠΉ Π°Π½Π°Π»ΠΈΠ·.
ΠΠΈΠΏΠΎΡΠ΅Π·Ρ ΠΌΠΎΠ³ΡΡ Π±ΡΡΡ ΠΎΡΠΈΠ΅Π½ΡΠΈΡΠΎΠ²Π°Π½Ρ Π½Π° Π±ΡΠ΄ΡΡΠ΅Π΅ (Π½Π°ΠΏΡΠΈΠΌΠ΅Ρ, Β«ΠΡΠ»ΠΈ ΠΌΡ ΠΈΠ·ΠΌΠ΅Π½ΠΈΠΌ Π»ΠΎΠ³ΠΎΡΠΈΠΏ Π½Π°ΡΠ΅ΠΉ ΠΊΠΎΠΌΠΏΠ°Π½ΠΈΠΈ, Π±ΠΎΠ»ΡΡΠ΅ Π»ΡΠ΄Π΅ΠΉ Π² Π‘Π΅Π²Π΅ΡΠ½ΠΎΠΉ ΠΠΌΠ΅ΡΠΈΠΊΠ΅ ΠΊΡΠΏΡΡ Π½Π°Ρ ΠΏΡΠΎΠ΄ΡΠΊΡΒ»), Π½ΠΎ ΠΎΠ½ΠΈ ΠΏΠΎΠΌΠΎΠ³Π°ΡΡ ΠΏΡΠΎΠ³Π½ΠΎΠ·ΠΈΡΡΡΡΠ΅ΠΉ ΠΈΠ»ΠΈ ΠΏΡΠ΅Π΄ΠΏΠΈΡΡΠ²Π°ΡΡΠ΅ΠΉ Π°Π½Π°Π»ΠΈΡΠΈΠΊΠ΅. ΠΡΠΈ ΠΏΡΠΎΠ²Π΅Π΄Π΅Π½ΠΈΠΈ Π΄ΠΈΠ°Π³Π½ΠΎΡΡΠΈΡΠ΅ΡΠΊΠΎΠΉ Π°Π½Π°Π»ΠΈΡΠΈΠΊΠΈ Π³ΠΈΠΏΠΎΡΠ΅Π·Ρ ΠΈΡΡΠΎΡΠΈΡΠ΅ΡΠΊΠΈ ΠΎΡΠΈΠ΅Π½ΡΠΈΡΠΎΠ²Π°Π½Ρ (Π½Π°ΠΏΡΠΈΠΌΠ΅Ρ, Β«Π― ΠΏΡΠ΅Π΄ΡΠΊΠ°Π·ΡΠ²Π°Ρ, ΡΡΠΎ ΡΠ½ΠΈΠΆΠ΅Π½ΠΈΠ΅ ΠΏΡΠΎΠ΄Π°ΠΆ Π² ΡΡΠΎΠΌ ΠΌΠ΅ΡΡΡΠ΅ Π±ΡΠ»ΠΎ Π²ΡΠ·Π²Π°Π½ΠΎ Π½Π΅Π΄Π°Π²Π½ΠΈΠΌ ΠΏΠΎΠ²ΡΡΠ΅Π½ΠΈΠ΅ΠΌ ΡΠ΅Π½ Π½Π° Π½Π°Ρ ΠΏΡΠΎΠ΄ΡΠΊΡΒ»). ΠΠΈΠΏΠΎΡΠ΅Π·Π° Π½Π°ΠΏΡΠ°Π²Π»ΡΠ΅Ρ Π²Π°Ρ Π°Π½Π°Π»ΠΈΠ· ΠΈ ΡΠ»ΡΠΆΠΈΡ Π½Π°ΠΏΠΎΠΌΠΈΠ½Π°Π½ΠΈΠ΅ΠΌ ΠΎ ΡΠΎΠΌ, ΡΡΠΎ Π²Ρ Ρ ΠΎΡΠΈΡΠ΅ Π΄ΠΎΠΊΠ°Π·Π°ΡΡ ΠΈΠ»ΠΈ ΠΎΠΏΡΠΎΠ²Π΅ΡΠ³Π½ΡΡΡ.
ΠΠΎΡΡΠ΅Π»ΡΡΠΈΡ ΠΈ ΠΏΡΠΈΡΠΈΠ½Π½ΠΎ-ΡΠ»Π΅Π΄ΡΡΠ²Π΅Π½Π½Π°Ρ ΡΠ²ΡΠ·Ρ
ΠΡΠΈ ΠΈΠ·ΡΡΠ΅Π½ΠΈΠΈ Π²Π·Π°ΠΈΠΌΠΎΡΠ²ΡΠ·Π΅ΠΉ ΠΌΠ΅ΠΆΠ΄Ρ ΠΏΠ΅ΡΠ΅ΠΌΠ΅Π½Π½ΡΠΌΠΈ Π²Π°ΠΆΠ½ΠΎ ΠΏΠΎΠΌΠ½ΠΈΡΡ ΠΎ ΡΠ°Π·Π»ΠΈΡΠΈΡΡ
ΠΌΠ΅ΠΆΠ΄Ρ ΠΊΠΎΡΡΠ΅Π»ΡΡΠΈΠ΅ΠΉ ΠΈ ΠΏΡΠΈΡΠΈΠ½Π½ΠΎ-ΡΠ»Π΅Π΄ΡΡΠ²Π΅Π½Π½ΠΎΠΉ ΡΠ²ΡΠ·ΡΡ. ΠΡΠ»ΠΈ Π΄Π²Π΅ ΠΈΠ»ΠΈ Π±ΠΎΠ»Π΅Π΅ ΠΏΠ΅ΡΠ΅ΠΌΠ΅Π½Π½ΡΡ
ΠΊΠΎΡΡΠ΅Π»ΠΈΡΠΎΠ²Π°Π½Ρ , ΠΈΡ
Π½Π°ΠΏΡΠ°Π²Π»Π΅Π½Π½ΡΠ΅ Π΄Π²ΠΈΠΆΠ΅Π½ΠΈΡ ΡΠ²ΡΠ·Π°Π½Ρ.
ΠΡΠ»ΠΈ Π΄Π²Π΅ ΠΏΠ΅ΡΠ΅ΠΌΠ΅Π½Π½ΡΠ΅ ΠΏΠΎΠ»ΠΎΠΆΠΈΡΠ΅Π»ΡΠ½ΠΎ ΠΊΠΎΡΡΠ΅Π»ΠΈΡΠΎΠ²Π°Π½Ρ , ΡΡΠΎ ΠΎΠ·Π½Π°ΡΠ°Π΅Ρ, ΡΡΠΎ ΠΊΠΎΠ³Π΄Π° ΠΎΠ΄Π½Π° ΠΈΠ΄Π΅Ρ Π²Π²Π΅ΡΡ
ΠΈΠ»ΠΈ Π²Π½ΠΈΠ·, ΡΠΎ ΠΆΠ΅ ΡΠ°ΠΌΠΎΠ΅ ΠΏΡΠΎΠΈΡΡ
ΠΎΠ΄ΠΈΡ ΠΈ Ρ Π΄ΡΡΠ³ΠΎΠΉ. Π ΠΊΠ°ΡΠ΅ΡΡΠ²Π΅ Π°Π»ΡΡΠ΅ΡΠ½Π°ΡΠΈΠ²Ρ, Π΅ΡΠ»ΠΈ Π΄Π²Π΅ ΠΏΠ΅ΡΠ΅ΠΌΠ΅Π½Π½ΡΠ΅ ΠΈΠΌΠ΅ΡΡ ΠΎΡΡΠΈΡΠ°ΡΠ΅Π»ΡΠ½ΡΡ ΠΊΠΎΡΡΠ΅Π»ΡΡΠΈΡ , ΠΎΠ΄Π½Π° ΠΏΠ΅ΡΠ΅ΠΌΠ΅Π½Π½Π°Ρ ΠΏΠΎΠ²ΡΡΠ°Π΅ΡΡΡ, Π° Π΄ΡΡΠ³Π°Ρ ΠΏΠΎΠ½ΠΈΠΆΠ°Π΅ΡΡΡ.
ΠΠ»ΡΡ Π² Π΄ΠΈΠ°Π³Π½ΠΎΡΡΠΈΡΠ΅ΡΠΊΠΎΠΉ Π°Π½Π°Π»ΠΈΡΠΈΠΊΠ΅ β ΠΏΠΎΠΌΠ½ΠΈΡΡ, ΡΡΠΎ Π΅ΡΠ»ΠΈ Π΄Π²Π΅ ΠΏΠ΅ΡΠ΅ΠΌΠ΅Π½Π½ΡΠ΅ ΠΊΠΎΡΡΠ΅Π»ΠΈΡΡΡΡ, ΡΡΠΎ Π½Π΅ ΠΎΠ±ΡΠ·Π°ΡΠ΅Π»ΡΠ½ΠΎ ΠΎΠ·Π½Π°ΡΠ°Π΅Ρ, ΡΡΠΎ ΠΎΠ΄Π½Π° ΠΈΠ· Π½ΠΈΡ Π²ΡΠ·Π²Π°Π»Π° ΠΏΠΎΡΠ²Π»Π΅Π½ΠΈΠ΅ Π΄ΡΡΠ³ΠΎΠΉ.
ΠΡΠ»ΠΈ Π²Π°ΡΠ° ΠΎΡΠ³Π°Π½ΠΈΠ·Π°ΡΠΈΡ ΠΌΠΎΠΆΠ΅Ρ Π²ΡΠ΄Π΅Π»ΠΈΡΡ ΡΠ΅ΡΡΡΡΡ Π΄Π»Ρ ΠΏΡΠΎΠ²Π΅Π΄Π΅Π½ΠΈΡ ΠΊΠΎΠ½ΡΡΠΎΠ»ΠΈΡΡΠ΅ΠΌΡΡ ΡΠΊΡΠΏΠ΅ΡΠΈΠΌΠ΅Π½ΡΠΎΠ², Π²Ρ ΡΠΌΠΎΠΆΠ΅ΡΠ΅ ΠΎΠΏΡΠ΅Π΄Π΅Π»ΠΈΡΡ ΠΏΡΠΈΡΠΈΠ½Π½ΠΎ-ΡΠ»Π΅Π΄ΡΡΠ²Π΅Π½Π½ΡΡ ΡΠ²ΡΠ·Ρ ΠΌΠ΅ΠΆΠ΄Ρ ΠΏΠ΅ΡΠ΅ΠΌΠ΅Π½Π½ΡΠΌΠΈ. Π₯ΠΎΡΡ ΠΎΠΏΡΠ΅Π΄Π΅Π»Π΅Π½ΠΈΠ΅ ΠΏΡΠΈΡΠΈΠ½Π½ΠΎ-ΡΠ»Π΅Π΄ΡΡΠ²Π΅Π½Π½ΠΎΠΉ ΡΠ²ΡΠ·ΠΈ ΠΈΠ΄Π΅Π°Π»ΡΠ½ΠΎ, ΠΊΠΎΡΡΠ΅Π»ΡΡΠΈΡ Π²ΡΠ΅ ΠΆΠ΅ ΠΌΠΎΠΆΠ΅Ρ Π΄Π°ΡΡ ΠΏΠΎΠ½ΠΈΠΌΠ°Π½ΠΈΠ΅, Π½Π΅ΠΎΠ±Ρ ΠΎΠ΄ΠΈΠΌΠΎΠ΅ Π΄Π»Ρ ΠΏΠΎΠ½ΠΈΠΌΠ°Π½ΠΈΡ Π²Π°ΡΠΈΡ Π΄Π°Π½Π½ΡΡ ΠΈ ΠΈΡΠΏΠΎΠ»ΡΠ·ΠΎΠ²Π°Π½ΠΈΡ ΠΈΡ Π΄Π»Ρ ΠΏΡΠΈΠ½ΡΡΠΈΡ ΡΡΡΠ΅ΠΊΡΠΈΠ²Π½ΡΡ ΡΠ΅ΡΠ΅Π½ΠΈΠΉ.
ΠΠΈΠ°Π³Π½ΠΎΡΡΠΈΡΠ΅ΡΠΊΠΈΠΉ ΡΠ΅Π³ΡΠ΅ΡΡΠΈΠΎΠ½Π½ΡΠΉ Π°Π½Π°Π»ΠΈΠ·
ΠΠ΅ΠΊΠΎΡΠΎΡΡΠ΅ Π²Π·Π°ΠΈΠΌΠΎΡΠ²ΡΠ·ΠΈ ΠΌΠ΅ΠΆΠ΄Ρ ΠΏΠ΅ΡΠ΅ΠΌΠ΅Π½Π½ΡΠΌΠΈ Π»Π΅Π³ΠΊΠΎ ΡΠ°Π·Π»ΠΈΡΠΈΠΌΡ, Π½ΠΎ Π΄ΡΡΠ³ΠΈΠ΅ ΡΡΠ΅Π±ΡΡΡ Π±ΠΎΠ»Π΅Π΅ Π³Π»ΡΠ±ΠΎΠΊΠΎΠ³ΠΎ Π°Π½Π°Π»ΠΈΠ·Π°, Π½Π°ΠΏΡΠΈΠΌΠ΅Ρ, ΡΠ΅Π³ΡΠ΅ΡΡΠΈΠΎΠ½Π½ΠΎΠ³ΠΎ Π°Π½Π°Π»ΠΈΠ·Π° , ΠΊΠΎΡΠΎΡΡΠΉ ΠΌΠΎΠΆΠ½ΠΎ ΠΈΡΠΏΠΎΠ»ΡΠ·ΠΎΠ²Π°ΡΡ Π΄Π»Ρ ΠΎΠΏΡΠ΅Π΄Π΅Π»Π΅Π½ΠΈΡ Π²Π·Π°ΠΈΠΌΠΎΡΠ²ΡΠ·ΠΈ ΠΌΠ΅ΠΆΠ΄Ρ Π΄Π²ΡΠΌΡ ΠΏΠ΅ΡΠ΅ΠΌΠ΅Π½Π½ΡΠΌΠΈ ( ΠΎΠ΄ΠΈΠ½ΠΎΡΠ½Π°Ρ Π»ΠΈΠ½Π΅ΠΉΠ½Π°Ρ ΡΠ΅Π³ΡΠ΅ΡΡΠΈΡ ) ΠΈΠ»ΠΈ ΡΡΠ΅ΠΌΡ ΠΈΠ»ΠΈ Π±ΠΎΠ»Π΅Π΅ ΠΏΠ΅ΡΠ΅ΠΌΠ΅Π½Π½ΡΠΌΠΈ ( ΠΌΠ½ΠΎΠΆΠ΅ΡΡΠ²Π΅Π½Π½Π°Ρ ΡΠ΅Π³ΡΠ΅ΡΡΠΈΡ ).
ΠΡΠ½ΠΎΡΠ΅Π½ΠΈΠ΅ Π²ΡΡΠ°ΠΆΠ°Π΅ΡΡΡ ΠΌΠ°ΡΠ΅ΠΌΠ°ΡΠΈΡΠ΅ΡΠΊΠΈΠΌ ΡΡΠ°Π²Π½Π΅Π½ΠΈΠ΅ΠΌ, ΠΊΠΎΡΠΎΡΠΎΠ΅ ΠΏΡΠ΅ΠΎΠ±ΡΠ°Π·ΡΠ΅ΡΡΡ Π² Π½Π°ΠΊΠ»ΠΎΠ½ Π»ΠΈΠ½ΠΈΠΈ, ΠΊΠΎΡΠΎΡΠ°Ρ Π»ΡΡΡΠ΅ Π²ΡΠ΅Π³ΠΎ ΡΠΎΠΎΡΠ²Π΅ΡΡΡΠ²ΡΠ΅Ρ Π²Π·Π°ΠΈΠΌΠΎΡΠ²ΡΠ·ΠΈ ΠΏΠ΅ΡΠ΅ΠΌΠ΅Π½Π½ΡΡ
.
Β«Π Π΅Π³ΡΠ΅ΡΡΠΈΡ ΠΏΠΎΠ·Π²ΠΎΠ»ΡΠ΅Ρ Π½Π°ΠΌ ΠΏΠΎΠ»ΡΡΠΈΡΡ ΠΏΡΠ΅Π΄ΡΡΠ°Π²Π»Π΅Π½ΠΈΠ΅ ΠΎ ΡΡΡΡΠΊΡΡΡΠ΅ ΡΡΠΈΡ ΠΎΡΠ½ΠΎΡΠ΅Π½ΠΈΠΉ ΠΈ ΠΎΠ±Π΅ΡΠΏΠ΅ΡΠΈΠ²Π°Π΅Ρ ΠΈΠ·ΠΌΠ΅ΡΠ΅Π½ΠΈΠ΅ ΡΠΎΠ³ΠΎ, Π½Π°ΡΠΊΠΎΠ»ΡΠΊΠΎ Π΄Π°Π½Π½ΡΠ΅ ΡΠΎΠΎΡΠ²Π΅ΡΡΡΠ²ΡΡΡ ΡΡΠΈΠΌ ΠΎΡΠ½ΠΎΡΠ΅Π½ΠΈΡΠΌΒ», β Π³ΠΎΠ²ΠΎΡΠΈΡ ΠΏΡΠΎΡΠ΅ΡΡΠΎΡ ΠΠ°ΡΠ²Π°ΡΠ΄ΡΠΊΠΎΠΉ ΡΠΊΠΎΠ»Ρ Π±ΠΈΠ·Π½Π΅ΡΠ° Π―Π½ Π₯Π°ΠΌΠΌΠΎΠ½Π΄, ΠΊΠΎΡΠΎΡΡΠΉ ΠΏΡΠ΅ΠΏΠΎΠ΄Π°Π΅Ρ ΠΎΠ½Π»Π°ΠΉΠ½-ΠΊΡΡΡ Β«ΠΠΈΠ·Π½Π΅Ρ-Π°Π½Π°Π»ΠΈΡΠΈΠΊΠ°Β», ΠΎΠ΄ΠΈΠ½ ΠΈΠ· ΡΡΠ΅Ρ ΠΊΡΡΡΠΎΠ², ΠΊΠΎΡΠΎΡΡΠ΅ ΡΠΎΡΡΠ°Π²Π»ΡΡΡ ΠΏΡΠΎΠ³ΡΠ°ΠΌΠΌΡ Credential of Readiness (CORe). Β«Π’Π°ΠΊΠΈΠ΅ ΠΈΠ΄Π΅ΠΈ ΠΌΠΎΠ³ΡΡ ΠΎΠΊΠ°Π·Π°ΡΡΡΡ ΡΡΠ΅Π·Π²ΡΡΠ°ΠΉΠ½ΠΎ ΠΏΠΎΠ»Π΅Π·Π½ΡΠΌΠΈ Π΄Π»Ρ Π°Π½Π°Π»ΠΈΠ·Π° ΠΈΡΡΠΎΡΠΈΡΠ΅ΡΠΊΠΈΡ ΡΠ΅Π½Π΄Π΅Π½ΡΠΈΠΉ ΠΈ ΡΠ°Π·ΡΠ°Π±ΠΎΡΠΊΠΈ ΠΏΡΠΎΠ³Π½ΠΎΠ·ΠΎΠ²Β».
ΠΠΎΠ³Π΄Π° ΡΠ΅Π³ΡΠ΅ΡΡΠΈΠΎΠ½Π½ΡΠΉ Π°Π½Π°Π»ΠΈΠ· ΠΈΡΠΏΠΎΠ»ΡΠ·ΡΠ΅ΡΡΡ Π΄Π»Ρ ΠΎΠ±ΡΡΡΠ½Π΅Π½ΠΈΡ ΠΎΡΠ½ΠΎΡΠ΅Π½ΠΈΠΉ ΠΌΠ΅ΠΆΠ΄Ρ ΠΏΠ΅ΡΠ΅ΠΌΠ΅Π½Π½ΡΠΌΠΈ Π² ΠΈΡΡΠΎΡΠΈΡΠ΅ΡΠΊΠΎΠΌ ΠΊΠΎΠ½ΡΠ΅ΠΊΡΡΠ΅, ΡΡΠΎ ΠΏΡΠΈΠΌΠ΅Ρ Π΄ΠΈΠ°Π³Π½ΠΎΡΡΠΈΡΠ΅ΡΠΊΠΎΠΉ Π°Π½Π°Π»ΠΈΡΠΈΠΊΠΈ. ΠΠ°ΡΠ΅ΠΌ ΡΠ΅Π³ΡΠ΅ΡΡΠΈΡ ΠΌΠΎΠΆΠ½ΠΎ ΠΈΡΠΏΠΎΠ»ΡΠ·ΠΎΠ²Π°ΡΡ Π΄Π»Ρ ΡΠ°Π·ΡΠ°Π±ΠΎΡΠΊΠΈ ΠΏΡΠΎΠ³Π½ΠΎΠ·ΠΎΠ² Π½Π° Π±ΡΠ΄ΡΡΠ΅Π΅, ΡΡΠΎ ΡΠ²Π»ΡΠ΅ΡΡΡ ΠΏΡΠΈΠΌΠ΅ΡΠΎΠΌ ΠΏΡΠΎΠ³Π½ΠΎΠ·Π½ΠΎΠΉ Π°Π½Π°Π»ΠΈΡΠΈΠΊΠΈ.
ΠΠΈΠ°Π³Π½ΠΎΡΡΠΈΡΠ΅ΡΠΊΡΡ Π°Π½Π°Π»ΠΈΡΠΈΠΊΡ ΠΌΠΎΠΆΠ½ΠΎ ΠΈΡΠΏΠΎΠ»ΡΠ·ΠΎΠ²Π°ΡΡ, ΡΡΠΎΠ±Ρ ΠΏΠΎΠ½ΡΡΡ, ΠΏΠΎΡΠ΅ΠΌΡ ΡΡΠΎ-ΡΠΎ ΠΏΡΠΎΠΈΠ·ΠΎΡΠ»ΠΎ, ΠΈ Π²Π·Π°ΠΈΠΌΠΎΡΠ²ΡΠ·Ρ ΠΌΠ΅ΠΆΠ΄Ρ ΡΠ²ΡΠ·Π°Π½Π½ΡΠΌΠΈ ΡΠ°ΠΊΡΠΎΡΠ°ΠΌΠΈ.
ΠΠΌΠ΅Ρ Π·Π° ΠΏΠ»Π΅ΡΠ°ΠΌΠΈ ΠΎΡΠ½ΠΎΠ²Ρ, ΡΠ°ΡΡΠΌΠΎΡΡΠΈΡΠ΅ ΡΡΠΈ ΡΠ΅ΡΡΡΠ΅ ΠΏΡΠΈΠΌΠ΅ΡΠ° Π΄ΠΈΠ°Π³Π½ΠΎΡΡΠΈΡΠ΅ΡΠΊΠΎΠΉ Π°Π½Π°Π»ΠΈΡΠΈΠΊΠΈ Π² Π΄Π΅ΠΉΡΡΠ²ΠΈΠΈ ΠΈ ΡΠΎ, ΠΊΠ°ΠΊ ΠΎΠ½ΠΈ ΠΌΠΎΠ³ΡΡ ΠΏΡΠΈΠΌΠ΅Π½ΡΡΡΡΡ Π² Π²Π°ΡΠ΅ΠΉ ΠΊΠΎΠΌΠΏΠ°Π½ΠΈΠΈ.
4 ΠΡΠΈΠΌΠ΅ΡΡ Π΄ΠΈΠ°Π³Π½ΠΎΡΡΠΈΡΠ΅ΡΠΊΠΎΠΉ Π°Π½Π°Π»ΠΈΡΠΈΠΊΠΈ Π² Π΄Π΅ΠΉΡΡΠ²ΠΈΠΈ
1. ΠΠ·ΡΡΠ΅Π½ΠΈΠ΅ ΡΡΠ½ΠΎΡΠ½ΠΎΠ³ΠΎ ΡΠΏΡΠΎΡΠ°
ΠΠ΄Π½ΠΈΠΌ ΠΈΠ· Π²Π°ΡΠΈΠ°Π½ΡΠΎΠ² ΠΈΡΠΏΠΎΠ»ΡΠ·ΠΎΠ²Π°Π½ΠΈΡ Π΄ΠΈΠ°Π³Π½ΠΎΡΡΠΈΡΠ΅ΡΠΊΠΎΠΉ Π°Π½Π°Π»ΠΈΡΠΈΠΊΠΈ ΡΠ²Π»ΡΠ΅ΡΡΡ ΠΎΠΏΡΠ΅Π΄Π΅Π»Π΅Π½ΠΈΠ΅ ΠΏΡΠΈΡΠΈΠ½ ΡΠΏΡΠΎΡΠ° Π½Π° ΠΏΡΠΎΠ΄ΡΠΊΡΠΈΡ.
ΠΠΎΠ·ΡΠΌΠ΅ΠΌ, ΠΊ ΠΏΡΠΈΠΌΠ΅ΡΡ, ΠΏΠΎΠ΄ΠΏΠΈΡΠΊΡ Π½Π° Π½Π°Π±ΠΎΡΡ Π΄Π»Ρ Π΅Π΄Ρ HelloFresh. ΠΠΎΠΌΠΏΠ°Π½ΠΈΡ ΡΠΎΠ±ΠΈΡΠ°Π΅Ρ ΠΌΠΈΠ»Π»ΠΈΠΎΠ½Ρ ΡΠΎΡΠ΅ΠΊ Π΄Π°Π½Π½ΡΡ ΠΎΡ ΠΏΠΎΠ»ΡΠ·ΠΎΠ²Π°ΡΠ΅Π»Π΅ΠΉ ΡΠΎ Π²ΡΠ΅Π³ΠΎ ΠΌΠΈΡΠ°, Π²ΠΊΠ»ΡΡΠ°Ρ ΠΈΠ½ΡΠΎΡΠΌΠ°ΡΠΈΡ ΠΎ Π³Π΅ΠΎΠ³ΡΠ°ΡΠΈΡΠ΅ΡΠΊΠΎΠΌ ΠΌΠ΅ΡΡΠΎΠΏΠΎΠ»ΠΎΠΆΠ΅Π½ΠΈΠΈ, ΡΠ°ΡΠΊΡΡΡΡΡ Π΄Π΅ΠΌΠΎΠ³ΡΠ°ΡΠΈΡΠ΅ΡΠΊΠΈΡ Π΄Π°Π½Π½ΡΡ , ΡΠΈΠΏΠ΅ Π΅Π΄Ρ, Π²ΠΊΡΡΠΎΠ²ΡΡ ΠΏΡΠ΅Π΄ΠΏΠΎΡΡΠ΅Π½ΠΈΡΡ , Π° ΡΠ°ΠΊΠΆΠ΅ ΡΠΈΠΏΠΈΡΠ½ΠΎΠΉ ΡΠ°ΡΡΠΎΡΠ΅ ΠΈ Π²ΡΠ΅ΠΌΠ΅Π½ΠΈ Π·Π°ΠΊΠ°Π·Π°.
ΠΠΎΠΌΠ°Π½Π΄Π° HelloFresh ΠΈΡΠΏΠΎΠ»ΡΠ·ΡΠ΅Ρ ΡΡΠΈ Π΄Π°Π½Π½ΡΠ΅ Π΄Π»Ρ Π²ΡΡΠ²Π»Π΅Π½ΠΈΡ Π²Π·Π°ΠΈΠΌΠΎΡΠ²ΡΠ·Π΅ΠΉ ΠΌΠ΅ΠΆΠ΄Ρ ΡΠ΅Π½Π΄Π΅Π½ΡΠΈΡΠΌΠΈ Π² Ρ
Π°ΡΠ°ΠΊΡΠ΅ΡΠΈΡΡΠΈΠΊΠ°Ρ
ΠΈ ΠΏΠΎΠ²Π΅Π΄Π΅Π½ΠΈΠΈ ΠΊΠ»ΠΈΠ΅Π½ΡΠΎΠ². Π ΠΊΠ°ΡΠ΅ΡΡΠ²Π΅ Π³ΠΈΠΏΠΎΡΠ΅ΡΠΈΡΠ΅ΡΠΊΠΎΠ³ΠΎ ΠΏΡΠΈΠΌΠ΅ΡΠ° ΠΏΡΠ΅Π΄ΡΡΠ°Π²ΡΡΠ΅, ΡΡΠΎ ΠΊΠΎΠΌΠ°Π½Π΄Π° HelloFresh ΠΎΠΏΡΠ΅Π΄Π΅Π»ΡΠ΅Ρ Π²ΡΠΏΠ»Π΅ΡΠΊ Π·Π°ΠΊΠ°Π·ΠΎΠ² Π½Π° ΡΡΠ±Π½ΡΠ΅ ΡΠ΅ΡΠ΅ΠΏΡΡ. ΠΡΠΎΠ²Π΅Π΄Ρ Π΄ΠΈΠ°Π³Π½ΠΎΡΡΠΈΡΠ΅ΡΠΊΠΈΠΉ Π°Π½Π°Π»ΠΈΠ·, ΠΎΠ½ΠΈ ΠΎΠ±Π½Π°ΡΡΠΆΠΈΠ»ΠΈ, ΡΡΠΎ Π°ΡΡΠΈΠ±ΡΡΡ, Π½Π°ΠΈΠ±ΠΎΠ»Π΅Π΅ ΡΠΈΠ»ΡΠ½ΠΎ ΠΊΠΎΡΡΠ΅Π»ΠΈΡΡΡΡΠΈΠ΅ Ρ Π·Π°ΠΊΠ°Π·ΠΎΠΌ ΡΠ΅ΡΠ΅ΠΏΡΠΎΠ² ΡΡΠ±Ρ, ΠΈΠ΄Π΅Π½ΡΠΈΡΠΈΡΠΈΡΡΡΡ ΡΠ΅Π±Ρ ΠΊΠ°ΠΊ ΠΆΠ΅Π½ΡΠΈΠ½ ΠΈ ΠΆΠΈΠ²ΡΡ Π½Π° ΡΠ΅Π²Π΅ΡΠΎ-Π²ΠΎΡΡΠΎΠΊΠ΅ Π‘ΠΎΠ΅Π΄ΠΈΠ½Π΅Π½Π½ΡΡ
Π¨ΡΠ°ΡΠΎΠ².
ΠΡΡΡΠ΄Π° ΠΊΠΎΠΌΠ°Π½Π΄Π° ΠΌΠΎΠΆΠ΅Ρ ΠΏΡΠΎΠ²Π΅ΡΡΠΈ ΠΈΡΡΠ»Π΅Π΄ΠΎΠ²Π°Π½ΠΈΠ΅ ΡΡΠ½ΠΊΠ° Ρ ΡΡΠΎΠΉ ΠΊΠΎΠ½ΠΊΡΠ΅ΡΠ½ΠΎΠΉ Π΄Π΅ΠΌΠΎΠ³ΡΠ°ΡΠΈΡΠ΅ΡΠΊΠΎΠΉ Π³ΡΡΠΏΠΏΠΎΠΉ, ΡΡΠΎΠ±Ρ ΡΠ·Π½Π°ΡΡ Π±ΠΎΠ»ΡΡΠ΅ ΠΎ ΡΠΏΡΠΎΡΠ΅ Π½Π° ΡΡΠ±Π½ΡΠ΅ ΡΠ΅ΡΠ΅ΠΏΡΡ. ΠΡΠ»ΠΎ Π»ΠΈ ΡΡΠΎ Π²ΡΠ·Π²Π°Π½ΠΎ Π½Π΅Π΄Π°Π²Π½ΠΈΠΌ Π½Π°ΡΡΠ½ΡΠΌ ΠΈΡΡΠ»Π΅Π΄ΠΎΠ²Π°Π½ΠΈΠ΅ΠΌ, ΡΠ°ΡΡΠΊΠ°Π·ΡΠ²Π°ΡΡΠΈΠΌ ΠΎ ΠΏΠΎΠ»ΡΠ·Π΅ ΡΡΠ±Ρ Π΄Π»Ρ Π·Π΄ΠΎΡΠΎΠ²ΡΡ ΠΆΠ΅Π½ΡΠΈΠ½? ΠΠΎΠ·ΠΌΠΎΠΆΠ½ΠΎ, Π»ΡΠ΄ΠΈ, ΠΊΠΎΡΠΎΡΡΠ΅ ΠΆΠΈΠ²ΡΡ Π½Π° ΡΠ΅Π²Π΅ΡΠΎ-Π²ΠΎΡΡΠΎΠΊΠ΅ Π‘ΠΎΠ΅Π΄ΠΈΠ½Π΅Π½Π½ΡΡ Π¨ΡΠ°ΡΠΎΠ², ΠΈΠΌΠ΅ΡΡ ΠΈΠ·ΡΡΠΊΠ°Π½Π½ΡΠΉ Π²ΠΊΡΡ ΠΊ ΠΌΠΎΡΠ΅ΠΏΡΠΎΠ΄ΡΠΊΡΠ°ΠΌ, ΠΏΠΎΡΠΎΠΌΡ ΡΡΠΎ ΠΎΠ½ΠΈ ΠΆΠΈΠ²ΡΡ ΠΎΡΠ½ΠΎΡΠΈΡΠ΅Π»ΡΠ½ΠΎ Π±Π»ΠΈΠ·ΠΊΠΎ ΠΊ ΠΡΠ»Π°Π½ΡΠΈΡΠ΅ΡΠΊΠΎΠΌΡ ΠΎΠΊΠ΅Π°Π½Ρ. ΠΡ ΡΠ°ΡΡΡΠΆΠ΄Π΅Π½ΠΈΡ ΠΌΠΎΠ³ΡΡ Π΄Π°ΡΡ Π²Π°ΠΆΠ½ΡΡ ΠΈΠ½ΡΠΎΡΠΌΠ°ΡΠΈΡ Π΄Π»Ρ HelloFresh.
ΠΠΎΠ³ΡΡΠΆΠ°ΡΡΡ Π² Π΄ΡΡΠ³ΠΈΠ΅ ΡΠΈΠΏΡ Π°Π½Π°Π»ΠΈΡΠΈΠΊΠΈ, ΠΊΠΎΠΌΠ°Π½Π΄Π° ΠΌΠΎΠΆΠ΅Ρ ΡΠ°ΠΊΠΆΠ΅ ΡΠ°ΡΡΠΌΠΎΡΡΠ΅ΡΡ, ΠΎΠΆΠΈΠ΄Π°Π΅ΡΡΡ Π»ΠΈ ΡΠΎΡ ΡΠ°Π½Π΅Π½ΠΈΠ΅ ΡΠ΅Π½Π΄Π΅Π½ΡΠΈΠΈ (ΠΏΡΠΎΠ³Π½ΠΎΠ·Π½Π°Ρ Π°Π½Π°Π»ΠΈΡΠΈΠΊΠ°) ΠΈ ΡΡΠΎΠΈΡ Π»ΠΈ ΡΡΠΈΠ»ΠΈΠΉ ΠΈ Π΄Π΅Π½Π΅Π³, ΡΡΠΎΠ±Ρ ΡΠΎΠ·Π΄Π°ΡΡ Π±ΠΎΠ»ΡΡΠ΅ ΡΠ΅ΡΠ΅ΠΏΡΠΎΠ² Π½Π° ΠΎΡΠ½ΠΎΠ²Π΅ ΡΡΠ±Ρ, ΡΡΠΎΠ±Ρ ΡΠ΄ΠΎΠ²Π»Π΅ΡΠ²ΠΎΡΠΈΡΡ ΠΏΡΠ΅Π΄ΠΏΠΎΡΡΠ΅Π½ΠΈΡ ΡΡΠΎΠΉ Π°ΡΠ΄ΠΈΡΠΎΡΠΈΠΈ (ΠΏΡΠ΅Π΄ΠΏΠΈΡΡΠ²Π°ΡΡΠ°Ρ Π°Π½Π°Π»ΠΈΡΠΈΠΊΠ°). ).
2. ΠΠ±ΡΡΡΠ½Π΅Π½ΠΈΠ΅ ΠΏΠΎΠ²Π΅Π΄Π΅Π½ΠΈΡ ΠΊΠ»ΠΈΠ΅Π½ΡΠΎΠ²
ΠΠ»Ρ ΠΊΠΎΠΌΠΏΠ°Π½ΠΈΠΉ, ΠΊΠΎΡΠΎΡΡΠ΅ ΡΠΎΠ±ΠΈΡΠ°ΡΡ Π΄Π°Π½Π½ΡΠ΅ ΠΎ ΠΊΠ»ΠΈΠ΅Π½ΡΠ°Ρ
, Π΄ΠΈΠ°Π³Π½ΠΎΡΡΠΈΡΠ΅ΡΠΊΠ°Ρ Π°Π½Π°Π»ΠΈΡΠΈΠΊΠ° ΡΠ²Π»ΡΠ΅ΡΡΡ ΠΊΠ»ΡΡΠΎΠΌ ΠΊ ΠΏΠΎΠ½ΠΈΠΌΠ°Π½ΠΈΡ ΡΠΎΠ³ΠΎ, ΠΏΠΎΡΠ΅ΠΌΡ ΠΊΠ»ΠΈΠ΅Π½ΡΡ Π΄Π΅Π»Π°ΡΡ ΡΠΎ, ΡΡΠΎ ΠΎΠ½ΠΈ Π΄Π΅Π»Π°ΡΡ. ΠΡΠΈ ΠΈΠ΄Π΅ΠΈ ΠΌΠΎΠΆΠ½ΠΎ ΠΈΡΠΏΠΎΠ»ΡΠ·ΠΎΠ²Π°ΡΡ Π΄Π»Ρ ΡΠ»ΡΡΡΠ΅Π½ΠΈΡ ΠΏΡΠΎΠ΄ΡΠΊΡΠΎΠ² ΠΈ Π²Π·Π°ΠΈΠΌΠΎΠ΄Π΅ΠΉΡΡΠ²ΠΈΡ Ρ ΠΏΠΎΠ»ΡΠ·ΠΎΠ²Π°ΡΠ΅Π»Π΅ΠΌ (UX), ΠΈΠ·ΠΌΠ΅Π½Π΅Π½ΠΈΡ ΠΏΠΎΠ·ΠΈΡΠΈΠΉ Π±ΡΠ΅Π½Π΄Π° ΠΈ ΠΎΠ±Π΅ΡΠΏΠ΅ΡΠ΅Π½ΠΈΡ ΡΠΎΠΎΡΠ²Π΅ΡΡΡΠ²ΠΈΡ ΠΏΡΠΎΠ΄ΡΠΊΡΠ° Π°ΡΠ΄ΠΈΡΠΎΡΠΈΠΈ.
ΠΡΠΎΠ΄ΠΎΠ»ΠΆΠ°Ρ ΠΏΡΠΈΠΌΠ΅Ρ Ρ HelloFresh, ΡΠ°ΡΡΠΌΠΎΡΡΠΈΠΌ ΡΠ΅Π½Π½ΠΎΡΡΡ ΡΠ΄Π΅ΡΠΆΠ°Π½ΠΈΡ ΠΊΠ»ΠΈΠ΅Π½ΡΠΎΠ² Π΄Π»Ρ ΠΊΠΎΠΌΠΏΠ°Π½ΠΈΠΈ, ΠΊΠΎΡΠΎΡΠ°Ρ ΡΠ°Π±ΠΎΡΠ°Π΅Ρ ΠΏΠΎ ΠΌΠΎΠ΄Π΅Π»ΠΈ ΠΏΠΎΠ΄ΠΏΠΈΡΠΊΠΈ. Π£Π΄Π΅ΡΠΆΠ°Π½ΠΈΠ΅ ΠΊΠ»ΠΈΠ΅Π½ΡΠΎΠ² Π±ΠΎΠ»Π΅Π΅ ΡΠ΅Π½ΡΠ°Π±Π΅Π»ΡΠ½ΠΎ, ΡΠ΅ΠΌ ΠΏΡΠΈΠ²Π»Π΅ΡΠ΅Π½ΠΈΠ΅ Π½ΠΎΠ²ΡΡ , ΠΏΠΎΡΡΠΎΠΌΡ HelloFresh ΠΈΡΠΏΠΎΠ»ΡΠ·ΡΠ΅Ρ Π΄ΠΈΠ°Π³Π½ΠΎΡΡΠΈΡΠ΅ΡΠΊΡΡ Π°Π½Π°Π»ΠΈΡΠΈΠΊΡ, ΡΡΠΎΠ±Ρ ΠΎΠΏΡΠ΅Π΄Π΅Π»ΠΈΡΡ, ΠΏΠΎΡΠ΅ΠΌΡ ΡΡ ΠΎΠ΄ΡΡΠΈΠ΅ ΠΊΠ»ΠΈΠ΅Π½ΡΡ ΠΏΡΠ΅Π΄ΠΏΠΎΡΠΈΡΠ°ΡΡ ΠΎΡΠΌΠ΅Π½ΡΡΡ ΠΏΠΎΠ΄ΠΏΠΈΡΠΊΠΈ.
Π ΠΏΡΠΎΡΠ΅ΡΡΠ΅ ΠΎΡΠΌΠ΅Π½Ρ ΡΡ ΠΎΠ΄ΡΡΠΈΠ΅ ΠΊΠ»ΠΈΠ΅Π½ΡΡ Π΄ΠΎΠ»ΠΆΠ½Ρ ΡΠΊΠ°Π·Π°ΡΡ ΠΏΡΠΈΡΠΈΠ½Ρ ΠΎΡΠΌΠ΅Π½Ρ. ΠΠ°ΡΠΈΠ°Π½ΡΡ Π²Π°ΡΡΠΈΡΡΡΡΡΡ ΠΎΡ Β«Π½Π΅ ΡΠΎΠΎΡΠ²Π΅ΡΡΡΠ²ΡΠ΅Ρ ΠΌΠΎΠ΅ΠΌΡ Π±ΡΠ΄ΠΆΠ΅ΡΡΒ» Π΄ΠΎ Β«Π½Π΅ ΡΠΎΠΎΡΠ²Π΅ΡΡΡΠ²ΡΠ΅Ρ ΠΌΠΎΠ΅ΠΌΡ ΡΠ°ΡΠΏΠΈΡΠ°Π½ΠΈΡ ΠΈΠ»ΠΈ Π΄ΠΈΠ΅ΡΠΈΡΠ΅ΡΠΊΠΈΠΌ ΠΏΠΎΡΡΠ΅Π±Π½ΠΎΡΡΡΠΌΒ», Π° ΡΠ°ΠΊΠΆΠ΅ Π΅ΡΡΡ Π²ΠΎΠ·ΠΌΠΎΠΆΠ½ΠΎΡΡΡ Π½Π°ΠΏΠΈΡΠ°ΡΡ ΠΎΡΠ²Π΅Ρ. Π‘ΠΎΠ±ΠΈΡΠ°Ρ ΡΡΠΈ Π΄Π°Π½Π½ΡΠ΅, HelloFresh ΠΌΠΎΠΆΠ΅Ρ Π°Π½Π°Π»ΠΈΠ·ΠΈΡΠΎΠ²Π°ΡΡ Π½Π°ΠΈΠ±ΠΎΠ»Π΅Π΅ ΡΠ°ΡΡΠΎ ΡΠΏΠΎΠΌΠΈΠ½Π°Π΅ΠΌΡΠ΅ ΠΏΡΠΈΡΠΈΠ½Ρ ΠΏΠΎΡΠ΅ΡΠΈ ΠΊΠ»ΠΈΠ΅Π½ΡΠΎΠ² Π² ΠΎΠΏΡΠ΅Π΄Π΅Π»Π΅Π½Π½ΡΡ ΡΠ΅Π³ΠΈΠΎΠ½Π°Ρ ΠΈ Π΄Π΅ΠΌΠΎΠ³ΡΠ°ΡΠΈΡΠ΅ΡΠΊΠΈΡ Π³ΡΡΠΏΠΏΠ°Ρ ΠΈ ΠΈΡΠΏΠΎΠ»ΡΠ·ΠΎΠ²Π°ΡΡ Π΄ΠΈΠ°Π³Π½ΠΎΡΡΠΈΡΠ΅ΡΠΊΡΡ Π°Π½Π°Π»ΠΈΡΠΈΠΊΡ, ΡΡΠΎΠ±Ρ ΠΎΡΠ²Π΅ΡΠΈΡΡ Π½Π° Π²ΠΎΠΏΡΠΎΡ: Β«ΠΠΎΡΠ΅ΠΌΡ Π»ΡΠ΄ΠΈ ΠΎΡΠΌΠ΅Π½ΡΡΡ ΡΠ²ΠΎΠΈ ΠΏΠΎΠ΄ΠΏΠΈΡΠΊΠΈ?Β»
ΠΡΠΈ ΠΈΠ΄Π΅ΠΈ ΠΌΠΎΠ³ΡΡ ΠΏΠΎΠΌΠΎΡΡ ΡΠ»ΡΡΡΠΈΡΡ ΠΏΡΠΎΠ΄ΡΠΊΡ HelloFresh ΠΈ ΡΠ΄ΠΎΠ±ΡΡΠ²ΠΎ ΡΠ°Π±ΠΎΡΡ ΠΏΠΎΠ»ΡΠ·ΠΎΠ²Π°ΡΠ΅Π»Π΅ΠΉ, ΡΡΠΎΠ±Ρ ΠΈΠ·Π±Π΅ΠΆΠ°ΡΡ ΠΏΠΎΡΠ΅ΡΠΈ Π±ΠΎΠ»ΡΡΠ΅Π³ΠΎ ΠΊΠΎΠ»ΠΈΡΠ΅ΡΡΠ²Π° ΠΊΠ»ΠΈΠ΅Π½ΡΠΎΠ² ΠΏΠΎ ΡΡΠΈΠΌ ΠΏΡΠΈΡΠΈΠ½Π°ΠΌ.
3. ΠΡΡΠ²Π»Π΅Π½ΠΈΠ΅ ΡΠ΅Ρ Π½ΠΎΠ»ΠΎΠ³ΠΈΡΠ΅ΡΠΊΠΈΡ ΠΏΡΠΎΠ±Π»Π΅ΠΌ
ΠΠ΄Π½ΠΈΠΌ ΠΈΠ· ΠΏΡΠΈΠΌΠ΅ΡΠΎΠ² Π΄ΠΈΠ°Π³Π½ΠΎΡΡΠΈΡΠ΅ΡΠΊΠΎΠΉ Π°Π½Π°Π»ΠΈΡΠΈΠΊΠΈ, ΡΡΠ΅Π±ΡΡΡΠ΅ΠΉ ΠΈΡΠΏΠΎΠ»ΡΠ·ΠΎΠ²Π°Π½ΠΈΡ ΠΏΡΠΎΠ³ΡΠ°ΠΌΠΌΠ½ΠΎΠ³ΠΎ ΠΎΠ±Π΅ΡΠΏΠ΅ΡΠ΅Π½ΠΈΡ ΠΈΠ»ΠΈ ΡΠΎΠ±ΡΡΠ²Π΅Π½Π½ΠΎΠ³ΠΎ Π°Π»Π³ΠΎΡΠΈΡΠΌΠ°, ΡΠ²Π»ΡΠ΅ΡΡΡ Π²ΡΠΏΠΎΠ»Π½Π΅Π½ΠΈΠ΅ ΡΠ΅ΡΡΠΎΠ² Π΄Π»Ρ ΠΎΠΏΡΠ΅Π΄Π΅Π»Π΅Π½ΠΈΡ ΠΏΡΠΈΡΠΈΠ½Ρ ΡΠ΅Ρ
Π½ΠΎΠ»ΠΎΠ³ΠΈΡΠ΅ΡΠΊΠΎΠΉ ΠΏΡΠΎΠ±Π»Π΅ΠΌΡ.
ΠΡΠΎ ΡΠ°ΡΡΠΎ Π½Π°Π·ΡΠ²Π°ΡΡ Β«Π·Π°ΠΏΡΡΠΊΠΎΠΌ Π΄ΠΈΠ°Π³Π½ΠΎΡΡΠΈΠΊΠΈΒ», ΠΈ ΡΡΠΎ ΠΌΠΎΠΆΠ΅Ρ Π±ΡΡΡ ΡΡΠΎ-ΡΠΎ, ΡΡΠΎ Π²Ρ Π΄Π΅Π»Π°Π»ΠΈ ΡΠ°Π½ΡΡΠ΅, ΠΊΠΎΠ³Π΄Π° ΡΡΠ°Π»ΠΊΠΈΠ²Π°Π»ΠΈΡΡ Ρ ΠΏΡΠΎΠ±Π»Π΅ΠΌΠ°ΠΌΠΈ ΠΊΠΎΠΌΠΏΡΡΡΠ΅ΡΠ°.
ΠΠ΅ΠΊΠΎΡΠΎΡΡΠ΅ ΠΈΠ· ΡΡΠΈΡ Π°Π»Π³ΠΎΡΠΈΡΠΌΠΎΠ² ΠΏΠΎΡΡΠΎΡΠ½Π½ΠΎ ΡΠ°Π±ΠΎΡΠ°ΡΡ Π² ΡΠΎΠ½ΠΎΠ²ΠΎΠΌ ΡΠ΅ΠΆΠΈΠΌΠ΅ Π²Π°ΡΠ΅ΠΉ ΠΌΠ°ΡΠΈΠ½Ρ, Π² ΡΠΎ Π²ΡΠ΅ΠΌΡ ΠΊΠ°ΠΊ Π΄ΡΡΠ³ΠΈΠ΅ Π΄ΠΎΠ»ΠΆΠ½Ρ Π±ΡΡΡ ΠΈΠ½ΠΈΡΠΈΠΈΡΠΎΠ²Π°Π½Ρ ΡΠ΅Π»ΠΎΠ²Π΅ΠΊΠΎΠΌ. ΠΠ΄ΠΈΠ½ ΡΠΈΠΏ Π΄ΠΈΠ°Π³Π½ΠΎΡΡΠΈΡΠ΅ΡΠΊΠΎΠ³ΠΎ ΡΠ΅ΡΡΠ°, Ρ ΠΊΠΎΡΠΎΡΡΠΌ Π²Ρ, Π²ΠΎΠ·ΠΌΠΎΠΆΠ½ΠΎ, Π·Π½Π°ΠΊΠΎΠΌΡ, β ΡΡΠΎ Π΄ΠΈΠ°Π³Π½ΠΎΡΡΠΈΠΊΠ° Π½Π° ΠΎΡΠ½ΠΎΠ²Π΅ ΡΠ΅ΡΠ΅Π½ΠΈΡ, ΠΊΠΎΡΠΎΡΠ°Ρ ΠΎΠ±Π½Π°ΡΡΠΆΠΈΠ²Π°Π΅Ρ ΠΈ ΠΏΠΎΠΌΠ΅ΡΠ°Π΅Ρ ΡΠΈΠΌΠΏΡΠΎΠΌΡ ΠΈΠ·Π²Π΅ΡΡΠ½ΡΡ ΠΏΡΠΎΠ±Π»Π΅ΠΌ, Π° ΡΠ°ΠΊΠΆΠ΅ ΠΏΡΠΎΠ²ΠΎΠ΄ΠΈΡ ΡΠΊΠ°Π½ΠΈΡΠΎΠ²Π°Π½ΠΈΠ΅ Π΄Π»Ρ ΠΎΠΏΡΠ΅Π΄Π΅Π»Π΅Π½ΠΈΡ ΠΎΡΠ½ΠΎΠ²Π½ΠΎΠΉ ΠΏΡΠΈΡΠΈΠ½Ρ. ΠΡΠΎ ΠΌΠΎΠΆΠ΅Ρ ΠΏΠΎΠ·Π²ΠΎΠ»ΠΈΡΡ Π²Π°ΠΌ ΡΠ΅ΡΠΈΡΡ ΠΏΡΠΎΠ±Π»Π΅ΠΌΡ ΠΈ ΠΎΠ±ΠΎΡΡΡΠΈΡΡ Π΅Π΅, Π΅ΡΠ»ΠΈ ΠΏΡΠΈΡΠΈΠ½Π° ΡΠ΅ΡΡΠ΅Π·Π½Π°Ρ.
4. Π£Π»ΡΡΡΠ΅Π½ΠΈΠ΅ ΠΊΡΠ»ΡΡΡΡΡ ΠΊΠΎΠΌΠΏΠ°Π½ΠΈΠΈ
ΠΠΈΠ°Π³Π½ΠΎΡΡΠΈΡΠ΅ΡΠΊΠ°Ρ Π°Π½Π°Π»ΠΈΡΠΈΠΊΠ° ΡΠ°ΠΊΠΆΠ΅ ΠΌΠΎΠΆΠ΅Ρ Π±ΡΡΡ ΠΈΡΠΏΠΎΠ»ΡΠ·ΠΎΠ²Π°Π½Π° Π΄Π»Ρ ΡΠ»ΡΡΡΠ΅Π½ΠΈΡ Π²Π½ΡΡΡΠ΅Π½Π½Π΅ΠΉ ΠΊΡΠ»ΡΡΡΡΡ ΠΊΠΎΠΌΠΏΠ°Π½ΠΈΠΈ. ΠΡΠ΄Π΅Π»Ρ ΠΊΠ°Π΄ΡΠΎΠ² ΠΌΠΎΠ³ΡΡ ΡΠΎΠ±ΠΈΡΠ°ΡΡ ΠΈΠ½ΡΠΎΡΠΌΠ°ΡΠΈΡ ΠΎ ΡΡΠ²ΡΡΠ²Π΅ ΡΠΈΠ·ΠΈΡΠ΅ΡΠΊΠΎΠΉ ΠΈ ΠΏΡΠΈΡ
ΠΎΠ»ΠΎΠ³ΠΈΡΠ΅ΡΠΊΠΎΠΉ Π±Π΅Π·ΠΎΠΏΠ°ΡΠ½ΠΎΡΡΠΈ ΡΠΎΡΡΡΠ΄Π½ΠΈΠΊΠΎΠ², ΠΏΡΠΎΠ±Π»Π΅ΠΌΠ°Ρ
, ΠΊΠΎΡΠΎΡΡΠ΅ ΠΈΡ
Π²ΠΎΠ»Π½ΡΡΡ, Π° ΡΠ°ΠΊΠΆΠ΅ ΠΎ ΠΊΠ°ΡΠ΅ΡΡΠ²Π°Ρ
ΠΈ Π½Π°Π²ΡΠΊΠ°Ρ
, ΠΊΠΎΡΠΎΡΡΠ΅ Π΄Π΅Π»Π°ΡΡ ΠΊΠΎΠ³ΠΎ-ΡΠΎ ΡΡΠΏΠ΅ΡΠ½ΡΠΌ ΠΈ ΡΡΠ°ΡΡΠ»ΠΈΠ²ΡΠΌ. ΠΠ½ΠΎΠ³ΠΈΠ΅ ΠΈΠ· ΡΡΠΈΡ
ΠΈΠ΄Π΅ΠΉ ΠΏΠΎΠ»ΡΡΠ΅Π½Ρ Π² ΡΠ΅Π·ΡΠ»ΡΡΠ°ΡΠ΅ ΠΏΡΠΎΠ²Π΅Π΄Π΅Π½ΠΈΡ Π²Π½ΡΡΡΠ΅Π½Π½ΠΈΡ
Π°Π½ΠΎΠ½ΠΈΠΌΠ½ΡΡ
ΠΎΠΏΡΠΎΡΠΎΠ² ΠΈ ΠΏΡΠΎΠ²Π΅Π΄Π΅Π½ΠΈΡ Π²ΡΡ
ΠΎΠ΄Π½ΡΡ
ΠΈΠ½ΡΠ΅ΡΠ²ΡΡ Π΄Π»Ρ Π²ΡΡΠ²Π»Π΅Π½ΠΈΡ ΡΠ°ΠΊΡΠΎΡΠΎΠ², ΠΊΠΎΡΠΎΡΡΠ΅ ΡΠΏΠΎΡΠΎΠ±ΡΡΠ²ΠΎΠ²Π°Π»ΠΈ ΠΆΠ΅Π»Π°Π½ΠΈΡ ΡΠΎΡΡΡΠ΄Π½ΠΈΠΊΠΎΠ² ΠΎΡΡΠ°ΡΡΡΡ ΠΈΠ»ΠΈ ΡΠΉΡΠΈ.
Π‘Π±ΠΎΡ ΠΈΠ½ΡΠΎΡΠΌΠ°ΡΠΈΠΈ ΠΎ ΠΌΡΡΠ»ΡΡ ΠΈ ΡΡΠ²ΡΡΠ²Π°Ρ ΡΠΎΡΡΡΠ΄Π½ΠΈΠΊΠΎΠ² ΠΏΠΎΠ·Π²ΠΎΠ»ΡΠ΅Ρ Π°Π½Π°Π»ΠΈΠ·ΠΈΡΠΎΠ²Π°ΡΡ Π΄Π°Π½Π½ΡΠ΅ ΠΈ ΠΎΠΏΡΠ΅Π΄Π΅Π»ΡΡΡ, ΠΊΠ°ΠΊ ΠΌΠΎΠΆΠ½ΠΎ ΡΠ»ΡΡΡΠΈΡΡ ΡΠ°ΠΊΠΈΠ΅ ΠΎΠ±Π»Π°ΡΡΠΈ, ΠΊΠ°ΠΊ ΠΊΠΎΡΠΏΠΎΡΠ°ΡΠΈΠ²Π½Π°Ρ ΠΊΡΠ»ΡΡΡΡΠ° ΠΈ Π»ΡΠ³ΠΎΡΡ. ΠΡΠΎ ΠΌΠΎΠΆΠ΅Ρ Π±ΡΡΡ ΡΡΠΎ ΡΠ³ΠΎΠ΄Π½ΠΎ: ΠΎΡ ΠΆΠ΅Π»Π°Π½ΠΈΡ, ΡΡΠΎΠ±Ρ ΠΊΠΎΠΌΠΏΠ°Π½ΠΈΡ Π²Π½Π΅ΡΠ»Π° Π±ΠΎΠ»ΡΡΠ΅ Π²ΠΊΠ»Π°Π΄Π° Π² ΠΊΠΎΡΠΏΠΎΡΠ°ΡΠΈΠ²Π½ΡΡ ΡΠΎΡΠΈΠ°Π»ΡΠ½ΡΡ ΠΎΡΠ²Π΅ΡΡΡΠ²Π΅Π½Π½ΠΎΡΡΡ (ΠΠ‘Π), Π΄ΠΎ ΡΡΠ²ΡΡΠ²Π° Π΄ΠΈΡΠΊΡΠΈΠΌΠΈΠ½Π°ΡΠΈΠΈ Π½Π° ΡΠ°Π±ΠΎΡΠ΅. Π ΡΡΠΈΡ ΡΠ»ΡΡΠ°ΡΡ Π΄Π°Π½Π½ΡΠ΅ ΠΏΡΠ΅Π΄ΡΡΠ°Π²Π»ΡΡΡ ΡΠΎΠ±ΠΎΠΉ Π°ΡΠ³ΡΠΌΠ΅Π½Ρ Π² ΠΏΠΎΠ»ΡΠ·Ρ Π²ΡΠ΄Π΅Π»Π΅Π½ΠΈΡ Π±ΠΎΠ»ΡΡΠ΅Π³ΠΎ ΠΊΠΎΠ»ΠΈΡΠ΅ΡΡΠ²Π° ΡΠ΅ΡΡΡΡΠΎΠ² Π½Π° ΠΠ‘Π ΠΈ ΡΡΠΈΠ»ΠΈΡ ΠΏΠΎ ΡΠ°Π·Π½ΠΎΠΎΠ±ΡΠ°Π·ΠΈΡ, ΡΠΏΡΠ°Π²Π΅Π΄Π»ΠΈΠ²ΠΎΡΡΠΈ, Π²ΠΊΠ»ΡΡΠ΅Π½ΠΈΡ ΠΈ ΡΠΎΠΏΡΠΈΡΠ°ΡΡΠ½ΠΎΡΡΠΈ.
Π Π΅Π·ΡΠ»ΡΡΠ°ΡΡ ΠΎΠΏΡΠΎΡΠΎΠ² ΠΈ ΠΈΠ½ΡΠ΅ΡΠ²ΡΡ ΡΠ°ΠΊΠΆΠ΅ ΠΌΠΎΠ³ΡΡ ΠΏΠΎΠΌΠΎΡΡ ΠΌΠ΅Π½Π΅Π΄ΠΆΠ΅ΡΠ°ΠΌ ΠΏΠΎ Π½Π°ΠΉΠΌΡ ΠΎΠΏΡΠ΅Π΄Π΅Π»ΠΈΡΡ, ΠΊΠ°ΠΊΠΈΠ΅ ΠΊΠ°ΡΠ΅ΡΡΠ²Π° ΠΈ Π½Π°Π²ΡΠΊΠΈ Π΄Π΅Π»Π°ΡΡ ΠΊΠΎΠ³ΠΎ-ΡΠΎ ΡΡΠΏΠ΅ΡΠ½ΡΠΌ Π² Π²Π°ΡΠ΅ΠΉ ΠΊΠΎΠΌΠΏΠ°Π½ΠΈΠΈ ΠΈΠ»ΠΈ Π² Π²Π°ΡΠ΅ΠΉ ΠΊΠΎΠ½ΠΊΡΠ΅ΡΠ½ΠΎΠΉ ΠΊΠΎΠΌΠ°Π½Π΄Π΅, ΠΈ, ΡΠ°ΠΊΠΈΠΌ ΠΎΠ±ΡΠ°Π·ΠΎΠΌ, ΠΏΠΎΠΌΠΎΡΡ ΠΏΡΠΈΠ²Π»Π΅ΡΡ ΠΈ Π½Π°Π½ΡΡΡ Π»ΡΡΡΠΈΡ ΠΊΠ°Π½Π΄ΠΈΠ΄Π°ΡΠΎΠ² Π½Π° ΠΎΡΠΊΡΡΡΡΠ΅ Π΄ΠΎΠ»ΠΆΠ½ΠΎΡΡΠΈ.
ΠΠΈΠ°Π³Π½ΠΎΡΡΠΈΡΠ΅ΡΠΊΠ°Ρ Π°Π½Π°Π»ΠΈΡΠΈΠΊΠ° ΠΌΠΎΠΆΠ΅Ρ ΠΏΠΎΠΌΠΎΡΡ ΠΏΠΎΠ²ΡΡΠΈΡΡ ΡΠ΄ΠΎΠ²Π»Π΅ΡΠ²ΠΎΡΠ΅Π½Π½ΠΎΡΡΡ ΡΠΎΡΡΡΠ΄Π½ΠΈΠΊΠΎΠ², ΠΈΡ Π±Π΅Π·ΠΎΠΏΠ°ΡΠ½ΠΎΡΡΡ ΠΈ ΡΠ΄Π΅ΡΠΆΠ°Π½ΠΈΠ΅, Π° ΡΠ°ΠΊΠΆΠ΅ ΠΏΡΠΈΠ²Π΅ΡΡΠΈ ΠΊ Π±ΠΎΠ»Π΅Π΅ ΡΡΡΠ΅ΠΊΡΠΈΠ²Π½ΡΠΌ ΠΏΡΠΎΡΠ΅ΡΡΠ°ΠΌ Π½Π°ΠΉΠΌΠ°.
ΠΡΠ²Π΅ΡΡ Π½Π° Π²Π°ΠΆΠ½ΡΠ΅ Π²ΠΎΠΏΡΠΎΡΡ Ρ ΠΏΠΎΠΌΠΎΡΡΡ Π΄Π°Π½Π½ΡΡ
ΠΠΈΠ°Π³Π½ΠΎΡΡΠΈΡΠ΅ΡΠΊΠ°Ρ Π°Π½Π°Π»ΠΈΡΠΈΠΊΠ° ΠΌΠΎΠΆΠ΅Ρ ΠΏΠΎΠΌΠΎΡΡ Π²Π°ΠΌ ΠΏΠΎΠ½ΡΡΡ Β«ΠΏΠΎΡΠ΅ΠΌΡΒ» ΡΠ΅Π½Π΄Π΅Π½ΡΠΈΠΈ Π΄Π°Π½Π½ΡΡ
.
5