Π‘ΠΎΠ΄Π΅ΡΠΆΠ°Π½ΠΈΠ΅
ΠΡΠΈΠ΅Π½ΡΠΈΡΠΎΠ²ΠΎΡΠ½ΡΠ΅ ΡΠ°ΡΡΠ΅ΡΡ ΠΏΡΠΈΡΠΎΠΊΠ° Π²ΠΎΠ΄Ρ ΠΈ ΡΠΈΡΠ»Π° ΠΈΠ³Π»ΠΎΡΠΈΠ»ΡΡΡΠΎΠ²
ΠΡΠΈΠ΅Π½ΡΠΈΡΠΎΠ²ΠΎΡΠ½ΡΠ΅ ΡΠ°ΡΡΠ΅ΡΡ ΠΏΡΠΈΡΠΎΠΊΠ° Π²ΠΎΠ΄Ρ ΠΈ ΡΠΈΡΠ»Π°Β ΠΈΠ³Π»ΠΎΡΠΈΠ»ΡΡΡΠΎΠ²
ΠΡΡΠ΅ΠΊΡΠΈΠ²Π½ΠΎΡΡΡ ΡΠ°Π±ΠΎΡΡ ΠΈΠ³Π»ΠΎΡΠΈΠ»ΡΡΡΠΎΠ² Π·Π°Π²ΠΈΡΠΈΡ Π½Π΅ ΡΠΎΠ»ΡΠΊΠΎ ΠΎΡ ΠΈΡ ΠΊΠΎΠ½ΡΡΡΡΠΊΡΠΈΠΈ, Π½ΠΎ ΠΈ ΠΎΡ ΠΏΡΠΈΠ½ΡΡΠΎΠ³ΠΎ ΡΠ°ΡΡΡΠΎΡΠ½ΠΈΡ ΠΌΠ΅ΠΆΠ΄Ρ ΠΈΠ³Π»ΠΎΡΠΈΠ»ΡΡΡΠ°ΠΌΠΈ ΠΈ Π²Π΅Π»ΠΈΡΠΈΠ½Ρ ΠΈΡ Π·Π°Π³Π»ΡΠ±Π»Π΅Π½ΠΈΡ.
Π Π·Π°Π²ΠΈΡΠΈΠΌΠΎΡΡΠΈ ΠΎΡ ΡΠ°Π·ΠΌΠ΅ΡΠ° ΠΈ ΠΊΠΎΠ½ΡΠΈΠ³ΡΡΠ°ΡΠΈΠΈ ΡΡΠ°ΡΡΠΊΠ° ΠΈΠ³Π»ΠΎΡΠΈΠ»ΡΡΡΡ ΡΠ°Π·ΠΌΠ΅ΡΠ°ΡΡ Π² ΠΎΠ΄ΠΈΠ½ ΠΈΠ»ΠΈ Π΄Π²Π° ΡΡΠ΄Π°. ΠΠ³Π»ΠΎΡΠΈΠ»ΡΡΡΡ, ΡΡΡΠ°Π½ΠΎΠ²Π»Π΅Π½Π½ΡΠ΅ Π² Π΄Π²Π° ΡΡΠ΄Π°, ΠΌΠΎΠ³ΡΡ Π±ΡΡΡ ΡΠΎΠ΅Π΄ΠΈΠ½Π΅Π½Ρ- ΠΌΠ΅ΠΆΠ΄Ρ ΡΠΎΠ±ΠΎΠΉ ΠΎΠ΄Π½ΠΈΠΌ ΠΈΠ»ΠΈ Π½Π΅ΡΠΊΠΎΠ»ΡΠΊΠΈΠΌΠΈ ΡΡΠ΄Π°ΠΌΠΈ ΠΈΠ³Π»ΠΎΡΠΈΠ»ΡΡΡΠΎΠ², ΠΏΠ΅ΡΠΏΠ΅Π½Π΄ΠΈΠΊΡΠ»ΡΡΠ½ΠΎ ΠΊ Π½ΠΈΠΌ ΡΠ°ΡΠΏΠΎΠ»ΠΎΠΆΠ΅Π½Π½ΡΠΌΠΈ.
ΠΠ° Π·Π΅ΠΌΠ»ΡΠ½ΡΡ ΡΠ°Π±ΠΎΡΠ°Ρ , ΡΠ²ΡΠ·Π°Π½Π½ΡΡ Ρ ΡΠΊΠ»Π°Π΄ΠΊΠΎΠΉ ΡΠ°Π·Π»ΠΈΡΠ½ΠΎΠ³ΠΎ ΡΠΎΠ΄Π° ΡΡΡΠ±ΠΎΠΏΡΠΎΠ²ΠΎΠ΄ΠΎΠ², ΠΏΡΠΈ ΡΠΈΡΠΈΠ½Π΅ ΡΡΠ°Π½ΡΠ΅ΠΉ Π΄ΠΎ 3β4 ΠΌ ΠΈΠ³Π»ΠΎΡΠΈΠ»ΡΡΡΡ ΡΠ°Π·ΠΌΠ΅ΡΠ°ΡΡ Π² ΠΎΠ΄ΠΈΠ½ ΡΡΠ΄. ΠΡΠΈ ΡΡΠΎΠΌ ΠΈΠ³Π»ΠΎΡΠΈΠ»ΡΡΡΡ ΡΡΡΠ°Π½Π°Π²Π»ΠΈΠ²Π°ΡΡ Ρ ΠΎΠ΄Π½ΠΎΠΉ ΡΡΠΎΡΠΎΠ½Ρ ΡΡΠ°Π½ΡΠ΅ΠΈ, Π±Π»ΠΈΠΆΠ΅ ΠΊ Π΅Π΅ Π±ΠΎΡΡΡ.
Π Π΅ΠΊΠ»Π°ΠΌΠ½ΡΠ΅ ΠΏΡΠ΅Π΄Π»ΠΎΠΆΠ΅Π½ΠΈΡ Π½Π° ΠΎΡΠ½ΠΎΠ²Π΅ Π²Π°ΡΠΈΡ ΠΈΠ½ΡΠ΅ΡΠ΅ΡΠΎΠ²:
ΠΠΎΠΏΠΎΠ»Π½ΠΈΡΠ΅Π»ΡΠ½ΡΠ΅ ΠΌΠ°ΡΠ΅ΡΠΈΠ°Π»Ρ ΠΏΠΎ ΡΠ΅ΠΌΠ΅:
ΠΠ²ΡΡ
ΡΡΠ΄Π½ΠΎΠ΅ ΡΠ°ΡΠΏΠΎΠ»ΠΎΠΆΠ΅Π½ΠΈΠ΅ ΠΈΠ³Π»ΠΎΡΠΈΠ»ΡΡΡΠΎΠ² ΠΏΡΠΈΠΌΠ΅Π½ΡΠ΅ΡΡΡ Π΄Π»Ρ ΡΡΠ°Π½ΡΠ΅ΠΉ, ΠΊΠΎΡΠ»ΠΎΠ²Π°Π½ΠΎΠ² ΠΏΠΎΠ΄ ΡΡΠ½Π΄Π°ΠΌΠ΅Π½ΡΡ ΠΏΡΠΈ ΡΠΈΡΠΈΠ½Π΅ ΡΡΠ°ΡΡΠΊΠ° Π½Π΅ ΡΠ²ΡΡΠ΅ 30β 40 ΠΆ ΠΈ Π³ΡΡΠ½ΡΠ°Ρ
Ρ Ρ
ΠΎΡΠΎΡΠ΅ΠΉ Π²ΠΎΠ΄ΠΎΠΎΡΠ΄Π°ΡΠ΅ΠΉ.
ΠΠ° Π±ΠΎΠ»Π΅Π΅ ΡΠΈΡΠΎΠΊΠΈΡ ΡΡΠ°ΡΡΠΊΠ°Ρ ΠΈΡΠΏΠΎΠ»ΡΠ·ΡΠ΅ΡΡΡ ΠΏΡΠ΅ΠΈΠΌΡΡΠ΅ΡΡΠ²Π΅Π½Π½ΠΎ ΡΠ΅ΡΡΡΠ΅Ρ ΡΡΠΎΡΠΎΠ½Π½Π΅Π΅ ΡΠ°Π·ΠΌΠ΅ΡΠ΅Π½ΠΈΠ΅ ΠΈΠ³Π»ΠΎΡΠΈΠ»ΡΡΡΠΎΠ² ΠΏΠΎ Π·Π°ΠΌΠΊΠ½ΡΡΠΎΠΌΡ ΠΊΠΎΠ½ΡΡΡΡ. Π§ΡΠΎΠ±Ρ ΠΎΠ±Π΅ΡΠΏΠ΅ΡΠΈΡΡ Π½Π΅ΠΎΠ±Ρ ΠΎΠ΄ΠΈΠΌΠΎΠ΅ ΠΏΠΎΠ½ΠΈΠΆΠ΅Π½ΠΈΠ΅ ΡΡΠΎΠ²Π½Ρ Π³ΡΡΠ½ΡΠΎΠ²ΡΡ Π²ΠΎΠ΄, Π² ΡΠ΅Π½ΡΡΠ΅ ΠΎΡΡΡΠ°Π΅ΠΌΠΎΠ³ΠΎ ΡΡΠ°ΡΡΠΊΠ° ΠΌΠΎΠ³ΡΡ Π±ΡΡΡ ΡΡΡΠ°Π½ΠΎΠ²Π»Π΅Π½Ρ Π΄ΠΎΠΏΠΎΠ»Π½ΠΈΡΠ΅Π»ΡΠ½ΡΠ΅ ΠΈΠ³Π»ΠΎΡΠΈΠ»ΡΡΡΡ, ΡΠΎΠ΅Π΄ΠΈΠ½ΡΡΡΠΈΠ΅ ΠΏΡΠΎΡΠΈΠ²ΠΎΠΏΠΎΠ»ΠΎΠΆΠ½ΡΠ΅ ΡΡΠΎΡΠΎΠ½Ρ ΠΎΡΠ½ΠΎΠ²Π½ΠΎΠ³ΠΎ ΠΊΠΎΠ½ΡΡΡΠ°.
ΠΠ»ΡΠ±ΠΈΠ½Ρ ΠΏΠΎΠ½ΠΈΠΆΠ΅Π½ΠΈΡ ΠΎΠΏΡΠ΅Π΄Π΅Π»ΡΡΡ Π²ΡΡΠΎΡΠΎΠΉ Π²ΡΠ°ΡΡΠ²Π°Π½ΠΈΡ ΠΏΡΠΈΠΌΠ΅Π½ΡΠ΅ΠΌΡΡ Π½Π°ΡΠΎΡΠ½ΡΡ ΡΡΡΠ°Π½ΠΎΠ²ΠΎΠΊ, Π½Π΅ ΠΏΡΠ΅Π²ΡΡΠ°ΡΡΠ΅ΠΉ 8 ΠΌ. ΠΠΈΠ½ΠΈΠΌΠ°Π»ΡΠ½ΠΎΠ΅ ΡΠ°ΡΡΡΠΎΡΠ½ΠΈΠ΅ ΠΎΡ ΠΎΡΠΈ ΡΠ΅Π½ΡΡΠΎΠ±Π΅ΠΆΠ½ΠΎΠ³ΠΎ Π½Π°ΡΠΎΡΠ° Π΄ΠΎ ΡΡΠ°ΡΠΈΡΠ΅ΡΠΊΠΎΠ³ΠΎ ΡΡΠΎΠ²Π½Ρ Π³ΡΡΠ½ΡΠΎΠ²ΡΡ Π²ΠΎΠ΄ Π² Π½Π°ΠΈΠ±ΠΎΠ»Π΅Π΅ ΡΠ΄Π°Π»Π΅Π½Π½ΠΎΠΉ ΠΎΡ ΠΈΠ³Π»ΠΎΡΠΈΠ»ΡΡΡΠΎΠ² ΡΠΎΡΠΊΠ΅ β ΡΠ΅Π½ΡΡΠ΅ ΠΎΡΡΡΠ°Π΅ΠΌΠΎΠ³ΠΎ ΡΡΠ°ΡΡΠΊΠ° β Π½Π° 0,8β1,5 ΠΌ Π²ΡΡΠ΅, ΡΠ΅ΠΌ Π½Π΅ΠΏΠΎΡΡΠ΅Π΄ΡΡΠ²Π΅Π½Π½ΠΎ Ρ ΠΈΠ³Π»ΠΎΡΠΈΠ»ΡΡΡΠΎΠ². Π£ΡΠΈΡΡΠ²Π°Ρ ΠΎΠ±Π° ΡΡΠΈ ΡΠ°ΠΊΡΠΎΡΠ°, Π° ΡΠ°ΠΊΠΆΠ΅ Π³ΠΈΠ΄ΡΠ°Π²Π»ΠΈΡΠ΅ΡΠΊΠΎΠ΅ ΡΠΎΠΏΡΠΎΡΠΈΠ²Π»Π΅Π½ΠΈΠ΅ Π²ΠΎ Π²ΡΠ΅ΠΉ ΡΠΈΡΡΠ΅ΠΌΠ΅ ΡΡΡΠ°Π½ΠΎΠ²ΠΊΠΈ, ΠΏΡΠΈ ΠΎΡΠ³Π°Π½ΠΈΠ·Π°ΡΠΈΠΈ ΠΎΡΡΡΠΈΡΠ΅Π»ΡΠ½ΡΡ ΡΠ°Π±ΠΎΡ ΡΠ»Π΅Π΄ΡΠ΅Ρ ΠΎΡΠΈΠ΅Π½ΡΠΈΡΠΎΠ²Π°ΡΡΡΡ Π½Π° ΠΏΠΎΠ½ΠΈΠΆΠ΅Π½ΠΈΠ΅ Π½Π΅ Π±ΠΎΠ»Π΅Π΅ 5,0β5,5 ΠΌ Π½Π° ΡΡΡΡ.
Π Π°ΡΡΡΠΎΡΠ½ΠΈΠ΅ ΠΌΠ΅ΠΆΠ΄Ρ ΠΈΠ³Π»ΠΎΡΠΈΠ»ΡΡΡΠ°ΠΌΠΈ Π·Π°Π²ΠΈΡΠΈΡ ΠΎΡ ΠΊΠΎΡΡΡΠΈΡΠΈΠ΅Π½ΡΠ° ΡΠΈΠ»ΡΡΡΠ°ΡΠΈΠΈ ΠΎΡΡΡΠ°Π΅ΠΌΡΡ Π³ΡΡΠ½ΡΠΎΠ² ΠΈ Π·Π°Π΄Π°Π½Π½ΠΎΠ³ΠΎ ΠΏΠΎΠ½ΠΈΠΆΠ΅Π½ΠΈΡ ΡΡΠΎΠ²Π½Ρ Π³ΡΡΠ½ΡΠΎΠ²ΡΡ Π²ΠΎΠ΄.
ΠΠ° ΠΎΠ΄Π½ΠΎΠΌ ΠΈΠ· Π±ΡΡΠΎΡΠ³ΠΎΠ»ΡΠ½ΡΡ
ΡΠ°Π·ΡΠ΅Π·ΠΎΠ² Π² ΡΡΠ»ΠΎΠ²ΠΈΡΡ
ΡΡΠ΅Π΄Π½ΠΈΡ
ΠΈ ΠΊΡΡΠΏΠ½ΠΎΠ·Π΅ΡΠ½ΠΈΡΡΡΡ
ΠΏΠ΅ΡΠΊΠΎΠ² ΡΡΠ΅ΡΡΠΎΠΌ Π‘ΠΎΡΠ·ΡΠ°Ρ
ΡΠΎΠΎΡΡΡΠ΅Π½ΠΈΠ΅ Π±ΡΠ»ΠΈ ΠΏΡΠΎΠ²Π΅Π΄Π΅Π½Ρ ΠΎΠΏΡΡΡ Π΄Π»Ρ ΠΎΠΏΡΠ΅Π΄Π΅Π»Π΅Π½ΠΈΡ Π½Π°ΠΈΠ±ΠΎΠ»Π΅Π΅ ΡΠ°ΡΠΈΠΎΠ½Π°Π»ΡΠ½ΠΎΠ³ΠΎ ΡΠ°Π³Π° Π·Π°Π±ΡΡΠΈΠ²Π°Π½ΠΈΡ ΠΈΠ³Π»ΠΎΡΠΈΠ»ΡΡΡΠΎΠ².
ΠΠ· ΡΡΠ°Π²Π½Π΅Π½ΠΈΡ ΠΏΠΎΠ»ΡΡΠ΅Π½Π½ΡΡ
ΠΏΠΎΠΊΠ°Π·Π°ΡΠ΅Π»Π΅ΠΉ Π²ΡΡΠ΅ΠΊΠ°Π΅Ρ, ΡΡΠΎ ΡΠΌΠ΅Π½ΡΡΠ΅Π½ΠΈΠ΅ ΡΠ°ΡΡΡΠΎΡΠ½ΠΈΡ ΠΌΠ΅ΠΆΠ΄Ρ ΠΈΠ³Π»ΠΎΡΠΈΠ»ΡΡΡΠ°ΠΌΠΈ Π² Π΄Π°Π½Π½ΡΡ
ΡΡΠ»ΠΎΠ²ΠΈΡΡ
Π½Π΅ Π΄Π°Π»ΠΎ Π·Π½Π°ΡΠΈΡΠ΅Π»ΡΠ½ΡΡ
ΡΠ΅Π·ΡΠ»ΡΡΠ°ΡΠΎΠ². Π’Π°ΠΊ, Π½Π°ΠΏΡΠΈΠΌΠ΅Ρ, 100 ΠΈΠ³Π»ΠΎΡΠΈΠ»ΡΡΡΠΎΠ² ΠΏΡΠΈ ΡΠ°Π³Π΅ 0,6 ΠΌ ΠΏΠΎΠ½ΠΈΠΆΠ°Π»ΠΈ ΡΡΠΎΠ²Π΅Π½Ρ Π²ΠΎΠ΄Ρ Π»ΠΈΡΡ Π½Π° 0,3 ΠΌ Π±ΠΎΠ»ΡΡΠ΅, ΡΠ΅ΠΌ ΡΡΠΎ Π΄ΠΎΡΡΠΈΠ³Π°Π»ΠΎΡΡ 50 ΠΈΠ³Π»ΠΎΡΠΈΠ»ΡΡΡΠ°ΠΌΠΈ ΠΏΡΠΈ ΡΠ°Π³Π΅ 1,2 ΠΌ.
ΠΠ°ΠΊ ΡΠΆΠ΅ ΡΠΊΠ°Π·ΡΠ²Π°Π»ΠΎΡΡ, ΡΡΡΠ°Π½ΠΎΠ²ΠΊΠ° ΠΈΠ³Π»ΠΎΡΠΈΠ»ΡΡΡΠ° ΠΎΡΡΡΠ΅ΡΡΠ²Π»ΡΠ΅ΡΡΡ ΠΏΠΎΠ³ΡΡΠΆΠ΅Π½ΠΈΠ΅ΠΌ Π΅Π³ΠΎ Π² ΡΠΊΠ²Π°ΠΆΠΈΠ½Ρ, ΡΠ°Π·ΠΌΡΠ²Π°Π΅ΠΌΡΡ ΡΡΡΡΠ΅ΠΉ Π²ΠΎΠ΄Ρ, Π²ΡΡ ΠΎΠ΄ΡΡΠ΅ΠΉ ΠΈΠ· Π½Π°ΠΊΠΎΠ½Π΅ΡΠ½ΠΈΠΊΠ° ΠΈΠ³Π»ΠΎΡΠΈΠ»ΡΡΡΠ°. ΠΠ³Π»ΠΎΡΠΈΠ»ΡΡΡ ΡΠΎΠ±ΠΈΡΠ°ΡΡ ΠΈ ΠΏΡΠΈΡΠΎΠ΅Π΄ΠΈΠ½ΡΡΡ ΠΏΡΠΈ ΠΏΠΎΠΌΠΎΡΠΈ ΡΡΠΊΠ°Π²Π° ΠΊ Π½Π°ΠΏΠΎΡΠ½ΠΎΠΉ ΡΡΠΎΡΠΎΠ½Π΅ Π½Π°ΡΠΎΡΠ°. ΠΠ°ΡΠ΅ΠΌ ΠΊ Π²Π΅ΡΡ Π½Π΅ΠΌΡ ΠΊΠΎΠ½ΡΡ ΠΈΠ³Π»ΠΎΡΠΈΠ»ΡΡΡΠ° ΠΏΡΠΈΠ²ΡΠ·ΡΠ²Π°ΡΡ Π²Π΅ΡΠ΅Π²ΠΊΡ, ΠΊΠΎΡΠΎΡΠΎΠΉ ΠΏΠΎΠ΄Π½ΠΈΠΌΠ°ΡΡ ΠΈΠ³Π»ΠΎΡΠΈΠ»ΡΡΡ ΠΈ ΡΡΡΠ°Π½Π°Π²Π»ΠΈΠ²Π°ΡΡ Π΅Π³ΠΎ Π² Π²Π΅ΡΡΠΈΠΊΠ°Π»ΡΠ½ΠΎΠ΅ ΠΏΠΎΠ»ΠΎΠΆΠ΅Π½ΠΈΠ΅. Π Π΅ΠΊΠΎΠΌΠ΅Π½Π΄ΡΠ΅ΡΡΡ ΠΏΡΠ΅Π΄Π²Π°ΡΠΈΡΠ΅Π»ΡΠ½ΠΎ ΠΏΠΎΡΡΠ°Π²ΠΈΡΡ ΠΈΠ³Π»ΠΎΡΠΈΠ»ΡΡΡ Π½Π° Π΄ΠΎΡΠΊΡ, ΡΠ»ΠΎΠΆΠ΅Π½Π½ΡΡ ΡΡΠ΄ΠΎΠΌ Ρ Π½Π°ΠΌΠ΅ΡΠ΅Π½Π½ΡΠΌ Π΄Π»Ρ Π·Π°Π±ΡΡΠΈΠ²Π°Π½ΠΈΡ ΠΌΠ΅ΡΡΠΎΠΌ, Π° Π·Π°ΡΠ΅ΠΌ, Π²ΠΊΠ»ΡΡΠΈΠ² ΠΏΠΎΠ΄Π°ΡΡ Π²ΠΎΠ΄Ρ, ΠΏΡΠΎΠ²Π΅ΡΠΈΡΡ ΠΈΡΠΏΡΠ°Π²Π½ΠΎΡΡΡ Π΄Π΅ΠΉΡΡΠ²ΠΈΡ ΠΊΠ»Π°ΠΏΠ°Π½Π°. ΠΠΎΡΠ»Π΅ ΡΡΠΎΠ³ΠΎ ΠΌΠΎΠΆΠ½ΠΎ ΠΏΡΠΈΡΡΡΠΏΠ°ΡΡ ΠΊ Π·Π°Π±ΡΡΠΈΠ²Π°Π½ΠΈΡ ΠΈΠ³Π»ΠΎΡΠΈΠ»ΡΡΡΠ° Π² ΠΏΠΎΡΠ²Ρ.
ΠΠΎ Π²ΡΠ΅ΠΌΡ ΠΏΠΎΠ³ΡΡΠΆΠ΅Π½ΠΈΡ ΠΈΠ³Π»ΠΎΡΠΈΠ»ΡΡΡ ΠΏΠΎΠ²ΠΎΡΠ°ΡΠΈΠ²Π°ΡΡ Π½Π° Π½Π΅Π±ΠΎΠ»ΡΡΠΎΠΉ ΡΠ³ΠΎΠ» ΠΏΡΠΈ ΠΏΠΎΠΌΠΎΡΠΈ Ρ
ΠΎΠΌΡΡΠ° Ρ Π΄Π²ΡΠΌΡ Π΄Π»ΠΈΠ½Π½ΡΠΌΠΈ ΡΡΡΠΊΠ°ΠΌΠΈ.
ΠΠ»Ρ ΠΎΠ±Π»Π΅Π³ΡΠ΅Π½ΠΈΡ Π²ΡΠ½ΠΎΡΠ° ΡΠ°Π·ΠΌΡΡΠΎΠ³ΠΎ Π³ΡΡΠ½ΡΠ° ΠΈΠ· ΡΠΊΠ²Π°ΠΆΠΈΠ½Ρ ΠΏΠΎ ΠΌΠ΅ΡΠ΅ ΠΎΠΏΡΡΠΊΠ°Π½ΠΈΡ ΠΈΠ³Π»ΠΎΡΠΈΠ»ΡΡΡΠ° ΡΠ΅ΡΠ΅Π· ΠΊΠ°ΠΆΠ΄ΡΠ΅ 1,5β2 ΠΌ ΠΏΠΎΠ³ΡΡΠΆΠ΅Π½ΠΈΠ΅ ΠΏΡΠΈΠΎΡΡΠ°Π½Π°Π²Π»ΠΈΠ²Π°ΡΡ Π½Π° 20β30 ΡΠ΅ΠΊ, Π½Π΅ ΠΌΠ΅Π½ΡΡ Π½Π°ΠΏΠΎΡΠ° ΠΏΠΎΠ΄Π°Π²Π°Π΅ΠΌΠΎΠΉ Π²ΠΎΠ΄Ρ.
Π Π·Π°Π²ΠΈΡΠΈΠΌΠΎΡΡΠΈ ΠΎΡ Ρ Π°ΡΠ°ΠΊΡΠ΅ΡΠ° ΠΏΠ΅ΡΠ΅ΡΠ΅ΠΊΠ°Π΅ΠΌΠΎΠ³ΠΎ Π³ΡΡΠ½ΡΠ° ΡΠ°ΡΡ ΠΎΠ΄ Π²ΠΎΠ΄Ρ ΠΏΡΠΈ Π·Π°Π±ΡΡΠΈΠ²Π°Π½ΠΈΠΈ ΠΈΠ³Π»ΠΎΡΠΈΠ»ΡΡΡΠ° ΠΊΠΎΠ»Π΅Π±Π»Π΅ΡΡΡ Π² ΠΏΡΠ΅Π΄Π΅Π»Π°Ρ 6β12 Π»/ΡΠ΅ΠΊ ΠΏΡΠΈ Π½Π°ΠΏΠΎΡΠ΅ ΠΎΡ 4 Π΄ΠΎ 8 Π°Ρ. ΠΠ³Π»ΠΎΡΠΈΠ»ΡΡΡΡ ΡΡΠ°Π²Π½ΠΈΡΠ΅Π»ΡΠ½ΠΎ Π»Π΅Π³ΠΊΠΎ ΠΏΠΎΠ³ΡΡΠΆΠ°ΡΡΡΡ Π² ΠΌΠ΅Π»ΠΊΠΎΠ·Π΅ΡΠ½ΠΈΡΡΡΠ΅ ΠΏΠ΅ΡΠΊΠΈ. Π‘ ΡΠ²Π΅Π»ΠΈΡΠ΅Π½ΠΈΠ΅ΠΌ ΡΠ°Π·ΠΌΠ΅ΡΠ° Π·Π΅ΡΠ΅Π½ ΠΏΠ΅ΡΠΊΠ° ΡΠ°ΡΡ ΠΎΠ΄ ΠΈ Π½Π°ΠΏΠΎΡ Π²ΠΎΠ΄Ρ ΠΏΠΎΠ²ΡΡΠ°ΡΡΡΡ.
Π ΠΎΡΠ΄Π΅Π»ΡΠ½ΡΡ ΡΠ»ΡΡΠ°ΡΡ ΠΏΡΠΈ ΠΏΠ΅ΡΠ΅ΡΠ΅ΡΠ΅Π½ΠΈΠΈ ΡΠ²Π΅ΡΠ΄ΡΡ ΠΏΠΎΡΠΎΠ΄ ΠΈΠ³Π»ΠΎΡΠΈΠ»ΡΡΡΡ ΡΡΡΠ°Π½Π°Π²Π»ΠΈΠ²Π°ΡΡ Π² ΡΠΊΠ²Π°ΠΆΠΈΠ½Ρ, ΠΏΡΠΎΠ±ΡΡΠ΅Π½Π½ΡΠ΅ Π±ΡΡΠΎΠ²ΡΠΌ ΡΡΠ°Π½ΠΊΠΎΠΌ.
ΠΡΠΈ ΠΏΠΎΠ½ΠΈΠΆΠ΅Π½ΠΈΠΈ ΡΡΠΎΠ²Π½Ρ Π³ΡΡΠ½ΡΠΎΠ²ΡΡ
Π²ΠΎΠ΄ Π² ΠΌΠ΅Π»ΠΊΠΎΠ·Π΅ΡΠ½ΠΈΡΡΡΡ
ΠΏΠ΅ΡΠΊΠ°Ρ
, Π² ΠΏΠ΅ΡΠΊΠ°Ρ
Ρ ΠΏΡΠΈΠΌΠ΅ΡΡΡ ΠΏΡΠ»Π΅Π²Π°ΡΡΡ
ΠΈ ΠΈΠ»ΠΈΡΡΡΡ
ΡΠ°ΡΡΠΈΡ, Π° ΡΠ°ΠΊΠΆΠ΅ ΠΏΡΠΈ Π½Π°Π»ΠΈΡΠΈΠΈ Π² Π³ΡΡΠ½ΡΠ΅ Π³Π»ΠΈΠ½ΠΈΡΡΡΡ
ΠΏΡΠΎΡΠ»ΠΎΠΉΠΊΠΎΠ² ΠΏΡΠΎΡΡΡΠ°Π½ΡΡΠ²ΠΎ Π²ΠΎΠΊΡΡΠ³ ΠΈΠ³Π»ΠΎΡΠΈΠ»ΡΡΡΠΎΠ² Π·Π°ΡΡΠΏΠ°ΡΡ ΠΊΡΡΠΏΠ½ΠΎΠ·Π΅ΡΠ½ΠΈΡΡΡΠΌ ΠΏΠ΅ΡΠΊΠΎΠΌ ΠΈΠ»ΠΈ ΡΠΌΠ΅ΡΡΡ ΠΈΠ· ΠΊΡΡΠΏΠ½ΠΎΠ·Π΅ΡΠ½ΠΈΡΡΠΎΠ³ΠΎ ΠΏΠ΅ΡΠΊΠ° ΠΈ Π³ΡΠ°Π²ΠΈΡ (ΡΠ°Π·ΠΌΠ΅Ρ ΡΠ°ΡΡΠΈΡ ΠΎΡ 0,5 Π΄ΠΎ 5 ΠΌΠΌ). Π ΡΡΠΈΡ
ΡΡΠ»ΠΎΠ²ΠΈΡΡ
ΡΡΡΠ΅ΠΊΡΠΈΠ²Π½ΠΎΡΡΡ ΡΠ°Π±ΠΎΡΡ ΠΈΠ³Π»ΠΎΡΠΈΠ»ΡΡΡΠ° Π·Π°Π²ΠΈΡΠΈΡ ΠΎΡ ΠΊΠ°ΡΠ΅ΡΡΠ²Π° ΠΌΠ°ΡΠ΅ΡΠΈΠ°Π»Π°, ΠΏΡΠΈΠΌΠ΅Π½Π΅Π½Π½ΠΎΠ³ΠΎ Π΄Π»Ρ Π·Π°ΡΡΠΏΠΊΠΈ, ΠΈ ΡΡΠ°ΡΠ΅Π»ΡΠ½ΠΎΡΡΠΈ Π²ΡΠΏΠΎΠ»Π½Π΅Π½ΠΈΡ ΡΡΠΎΠΉ ΠΎΠΏΠ΅ΡΠ°ΡΠΈΠΈ.
ΠΠΎΡΠ»Π΅ ΠΏΠΎΠ³ΡΡΠΆΠ΅Π½ΠΈΡ ΠΈΠ³Π»ΠΎΡΠΈΠ»ΡΡΡΠ° Π½Π° ΡΠΎΠΎΡΠ²Π΅ΡΡΡΠ²ΡΡΡΡΡ Π³Π»ΡΠ±ΠΈΠ½Ρ ΠΏΡΠΎΠ΄ΠΎΠ»ΠΆΠ°ΡΡ ΠΏΡΠΎΠΌΡΠ²ΠΊΡ ΡΠΊΠ²Π°ΠΆΠΈΠ½Ρ Π² ΡΠ΅ΡΠ΅Π½ΠΈΠ΅ 1β2 ΠΌΠΈΠ½, ΠΏΡΠΈ ΡΡΠΎΠΌ Π½Π°ΠΏΠΎΡ Π²ΠΎΠ΄Ρ Π½Π΅ ΠΈΠ·ΠΌΠ΅Π½ΡΡΡ. ΠΠ°ΡΠ΅ΠΌ, ΡΠ²Π΅Π΄Ρ Π΄ΠΎ ΠΌΠΈΠ½ΠΈΠΌΡΠΌΠ° ΠΏΠΎΠ΄Π°ΡΡ Π²ΠΎΠ΄Ρ, ΠΈΠ³Π»ΠΎΡΠΈΠ»ΡΡΡ ΡΠ°Π²Π½ΠΎΠΌΠ΅ΡΠ½ΠΎ ΠΈ Π½Π΅ΠΏΡΠ΅ΡΡΠ²Π½ΠΎ ΠΎΠ±ΡΡΠΏΠ°ΡΡ Π·Π°ΡΠ°Π½Π΅Π΅ ΠΏΡΠΈΠ³ΠΎΡΠΎΠ²Π»Π΅Π½Π½ΡΠΌ ΠΌΠ°ΡΠ΅ΡΠΈΠ°Π»ΠΎΠΌ.
Π ΠΏΡΠΎΡΠ΅ΡΡΠ΅ Π·Π°Π±ΡΡΠΈΠ²Π°Π½ΠΈΡ ΠΈΠ³Π»ΠΎΡΠΈΠ»ΡΡΡΠΎΠ² ΠΈΠ½ΠΎΠ³Π΄Π° ΠΏΡΠ΅ΠΊΡΠ°ΡΠ°Π΅ΡΡΡ Π²ΡΠ΄Π°ΡΠ° ΠΈΠ· ΡΠΊΠ²Π°ΠΆΠΈΠ½Ρ Π²ΠΎΠ΄Ρ Ρ ΡΠ°Π·ΠΌΡΠ²Π°Π΅ΠΌΡΠΌ Π³ΡΡΠ½ΡΠΎΠΌ, ΠΏΡΠΈ ΡΡΠΎΠΌ Π½Π°Π³Π½Π΅ΡΠ°Π΅ΠΌΠ°Ρ Π²ΠΎΠ΄Π° ΠΏΡΠΎΡΡΠ²Π°Π΅ΡΡΡ Π² ΡΠΊΠ²Π°ΠΆΠΈΠ½Ρ ΡΠ°Π±ΠΎΡΠ°ΡΡΠΈΡ ΠΈΠ³Π»ΠΎΡΠΈΠ»ΡΡΡΠΎΠ², Π½Π°Ρ ΠΎΠ΄ΡΡΠΈΡ ΡΡ ΠΏΠΎΠ±Π»ΠΈΠ·ΠΎΡΡΠΈ ΠΎΡ Π·Π°Π±ΡΡΠΈΠ²Π°Π΅ΠΌΠΎΠ³ΠΎ ΠΈΠ³Π»ΠΎΡΠΈΠ»ΡΡΡΠ°. Π ΡΡΠΈΡ ΡΠ»ΡΡΠ°ΡΡ Π½Π΅ΠΎΠ±Ρ ΠΎΠ΄ΠΈΠΌΠΎ ΠΏΠ΅ΡΠ΅ΠΊΡΡΡΡ Π½Π° Π²ΡΠ΅ΠΌΡ ΠΏΠΎΠ³ΡΡΠΆΠ΅Π½ΠΈΡ ΡΠΈΠ»ΡΡΡΠ° ΠΏΡΠΎΡ ΠΎΠ΄Π½ΡΠ΅ ΠΊΡΠ°Π½Ρ ΡΠΎΡΠ΅Π΄Π½ΠΈΡ ΠΈΠ³Π»ΠΎΡΠΈΠ»ΡΡΡΠΎΠ², ΠΏΡΠ΅ΠΊΡΠ°ΡΠΈΡΡ ΠΈΡ ΡΠ°Π±ΠΎΡΡ, ΠΏΠΎΡΠ»Π΅ ΡΠ΅Π³ΠΎ ΠΈΠ·Π²Π»Π΅ΡΡ ΡΡΡΠ°Π½Π°Π²Π»ΠΈΠ²Π°Π΅ΠΌΡΠΉ ΠΈΠ³Π»ΠΎΡΠΈΠ»ΡΡΡ ΠΈ ΡΠ½ΠΎΠ²Π° Π·Π°Π±ΡΡΠΈΡΡ Π΅Π³ΠΎ.
Π ΠΈΡ. 129. ΠΡΠ°ΡΠΈΠΊ Π΄Π»Ρ ΠΎΠΏΡΠ΅Π΄Π΅Π»Π΅Π½ΠΈΡ ΠΊΠΎΡΡΡΠΈΡΠΈΠ΅Π½ΡΠ° Π°
Π ΠΈΡ. 130. ΠΡΠ°ΡΠΈΠΊ Π·Π°Π²ΠΈΡΠΈΠΌΠΎΡΡΠΈ ΠΏΡΠΎΠΏΡΡΠΊΠ½ΠΎΠΉ ΡΠΏΠΎΡΠΎΠ±Π½ΠΎΡΡΠΈ ΠΈΠ³Π»ΠΎΡΠΈΠ»ΡΡΡΠ° ΠΎΡ ΠΊΠΎΡΡΡΠΈΡΠΈΠ΅Π½ΡΠ° ΡΠΈΠ»ΡΡΡΠ°ΡΠΈΠΈ
ΠΡΠΈ ΠΌΠΎΠ½ΡΠ°ΠΆΠ΅ ΠΈ ΡΠΊΡΠΏΠ»ΡΠ°ΡΠ°ΡΠΈΠΈ ΠΈΠ³Π»ΠΎΡΠΈΠ»ΡΡΡΠΎΠ²ΡΡ
ΡΡΡΠ°Π½ΠΎΠ²ΠΎΠΊ ΠΎΡΠΎΠ±ΠΎΠ΅ Π²Π½ΠΈΠΌΠ°Π½ΠΈΠ΅ ΡΠ΄Π΅Π»ΡΡΡ Π³Π΅ΡΠΌΠ΅ΡΠΈΡΠ½ΠΎΡΡΠΈ ΡΠΈΡΡΠ΅ΠΌΡ Π²ΡΠ°ΡΡΠ²Π°Π½ΠΈΡ ΡΡΡΠ°Π½ΠΎΠ²ΠΊΠΈ. ΠΡΠ΅ ΡΠ΅Π·ΡΠ±ΠΎΠ²ΡΠ΅ ΡΠΎΠ΅Π΄ΠΈΠ½Π΅Π½ΠΈΡ ΡΠΌΠ°Π·ΡΠ²Π°ΡΡ ΡΡΡΠΈΠΊΠΎΠΌ ΠΈ ΡΠ²ΠΈΠ½ΡΠΈΠ²Π°ΡΡ Ρ ΠΏΠΎΠ΄ΠΌΠΎΡΠΊΠΎΠΉ Π»ΡΠ½ΡΠ½ΡΡ
Π²ΠΎΠ»ΠΎΠΊΠΎΠ½.
ΠΠΎΡΠ»Π΅ ΡΠ±ΠΎΡΠΊΠΈ Π²ΡΠ΅ ΡΠ΅Π·ΡΠ±ΠΎΠ²ΡΠ΅ ΡΡΡΠΊΠΈ ΠΎΠΊΡΠ°ΡΠΈΠ²Π°ΡΡ.
ΠΡΠΈ ΡΠ°Π±ΠΎΡΠ΅ Π² Π·ΠΈΠΌΠ½Π΅Π΅ Π²ΡΠ΅ΠΌΡ Π½Π΅ΠΎΠ±Ρ ΠΎΠ΄ΠΈΠΌΠ° Π±Π΅ΡΠΏΡΠ΅ΡΡΠ²Π½Π°Ρ ΠΎΡΠΊΠ°ΡΠΊΠ°. ΠΡΠΈ ΡΡΠΎΠΌ ΡΡΠ»ΠΎΠ²ΠΈΠΈ, ΠΊΠ°ΠΊ ΠΏΠΎΠΊΠ°Π·Π°Π» ΠΎΠΏΡΡ ΠΎΠ΄Π½ΠΎΠ³ΠΎ ΡΡΡΠΎΠΈΡΠ΅Π»ΡΡΡΠ²Π°, ΡΠ°Π±ΠΎΡΠ° ΡΡΡΠ°Π½ΠΎΠ²ΠΊΠΈ Ρ Π½Π΅ΡΡΠ΅ΠΏΠ»Π΅Π½Π½ΠΎΠΉ ΡΠΈΡΡΠ΅ΠΌΠΎΠΉ, Π΅ΡΠ»ΠΈ ΡΠ΅ΠΌΠΏΠ΅ΡΠ°ΡΡΡΠ° Π²ΠΎΠ·Π΄ΡΡ Π° β20 Β°Π‘, ΠΏΡΠΎΡΠ΅ΠΊΠ°Π΅Ρ Π½ΠΎΡΠΌΠ°Π»ΡΠ½ΠΎ. ΠΠ΅ΡΠ·Π»ΡΠΉ Π³ΡΡΠ½Ρ ΠΏΠ΅ΡΠ΅Π΄ ΠΏΠΎΠ³ΡΡΠΆΠ΅Π½ΠΈΠ΅ΠΌ Π² Π½Π΅Π³ΠΎ ΠΈΠ³Π»ΠΎΡΠΈΠ»ΡΡΡΠΎΠ² ΠΎΡΠΎΠ³ΡΠ΅Π²Π°Π»ΠΈ ΠΏΠ°ΡΠΎΠ²ΡΠΌΠΈ ΠΈΠ³Π»Π°ΠΌΠΈ.
ΠΠΎ ΠΈΠ·Π±Π΅ΠΆΠ°Π½ΠΈΠ΅ ΡΠ°Π·ΠΌΠΎΡΠ°ΠΆΠΈΠ²Π°Π½ΠΈΡ ΡΠΈΡΡΠ΅ΠΌΡ ΠΏΡΠΈ ΠΏΠ΅ΡΠ΅Π±ΠΎΡΡ Π² ΠΏΠΎΠ΄Π°ΡΠ΅ ΡΠ»Π΅ΠΊΡΡΠΎΡΠ½Π΅ΡΠ³ΠΈΠΈ Π΄ΠΎΠ»ΠΆΠ½Ρ ΠΏΡΠ΅Π΄ΡΡΠΌΠ°ΡΡΠΈΠ²Π°ΡΡΡΡ Π°Π²Π°ΡΠΈΠΉΠ½ΡΠ΅ Π·Π°Π΄Π²ΠΈΠΆΠΊΠΈ Π΄Π»Ρ ΡΠ»ΠΈΠ²Π° Π²ΠΎΠ΄Ρ. ΠΠ°Π΄Π²ΠΈΠΆΠΊΠΈ ΡΡΡΠ°Π½Π°Π²Π»ΠΈΠ²Π°ΡΡ Π² ΠΌΠ΅ΡΡΠ°Ρ , ΠΎΠ±Π΅ΡΠΏΠ΅ΡΠΈΠ²Π°ΡΡΠΈΡ ΡΠ»ΠΈΠ² Π²ΡΠ΅ΠΉ Π²ΠΎΠ΄Ρ, Π½Π°Ρ ΠΎΠ΄ΡΡΠ΅ΠΉΡΡ Π² ΡΠΈΡΡΠ΅ΠΌΠ΅.
ΠΠΎΡΠ»Π΅ ΡΠ°Π±ΠΎΡΡ ΠΈΠ³Π»ΠΎΡΠΈΠ»ΡΡΡΡ Π² Π·Π°Π²ΠΈΡΠΈΠΌΠΎΡΡΠΈ ΠΎΡ ΠΈΡ Π΄Π»ΠΈΠ½Ρ ΠΈ Ρ Π°ΡΠ°ΠΊΡΠ΅ΡΠ° Π³ΡΡΠ½ΡΠ° ΠΈΠ·Π²Π»Π΅ΠΊΠ°ΡΡ Π²ΡΡΡΠ½ΡΡ ΠΏΡΠΈ ΠΏΠΎΠΌΠΎΡΠΈ Ρ ΠΎΠΌΡΡΠ° Ρ Π΄Π²ΡΠΌΡ Π΄Π»ΠΈΠ½Π½ΡΠΌΠΈ ΡΡΡΠΊΠ°ΠΌΠΈ, ΡΠ°Π»ΡΡ Ρ ΡΡΠ΅Π½ΠΎΠ³ΠΈ ΠΈΠ»ΠΈ Π°Π²ΡΠΎΠΊΡΠ°Π½ΠΎΠΌ. ΠΡΠ»ΠΈ ΠΈΠ³Π»ΠΎΡΠΈΠ»ΡΡΡ ΡΡΡΠ΄Π½ΠΎ ΠΈΠ·Π²Π»Π΅ΡΡ, ΡΠΎ ΡΠ°Π·ΠΌΡΠ²Π°ΡΡ Π³ΡΡΠ½Ρ ΡΡΡΡΠ΅ΠΉ Π²ΠΎΠ΄Ρ.
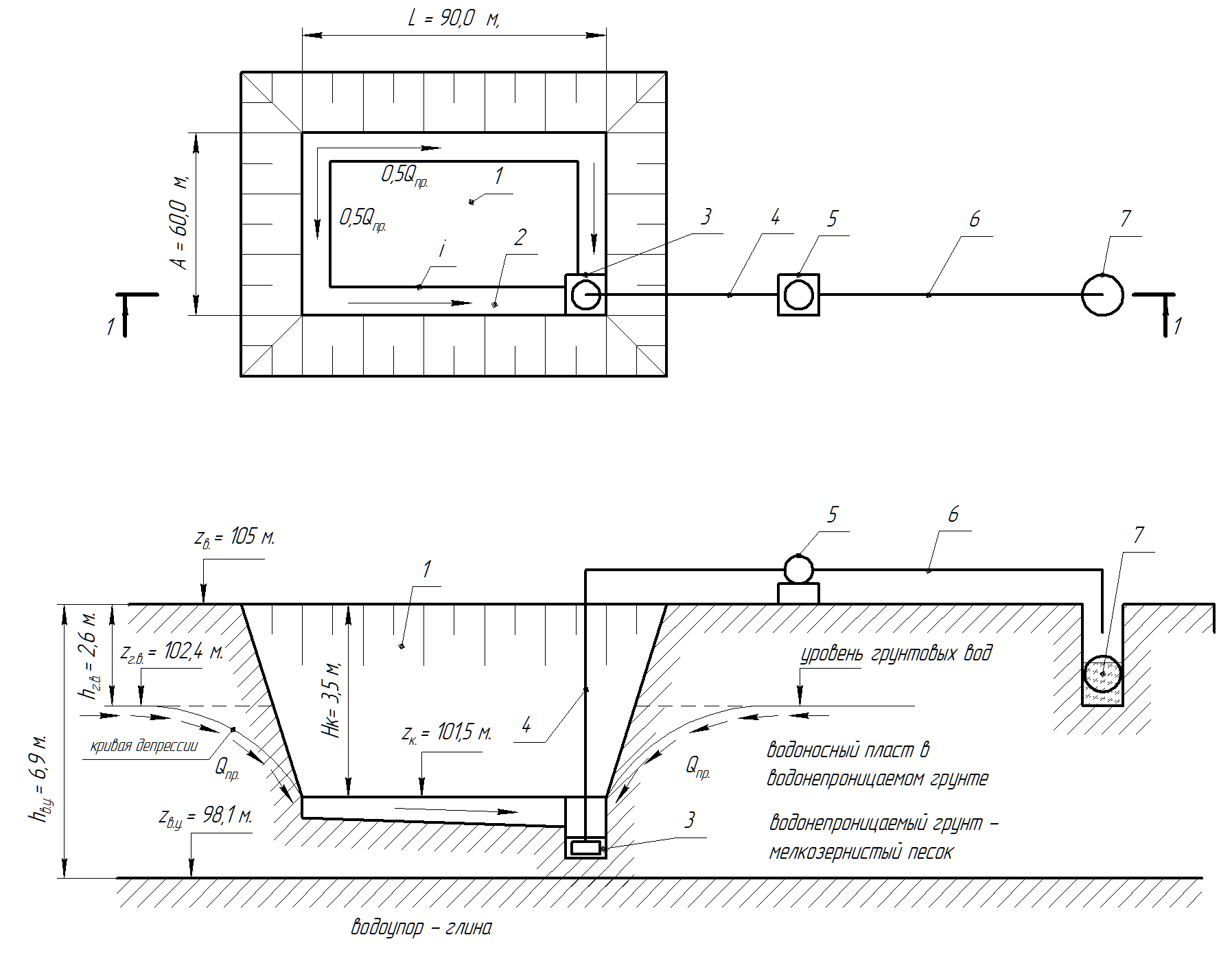
ΠΠ»Ρ ΠΎΠΏΡΠ΅Π΄Π΅Π»Π΅Π½ΠΈΡ ΠΏΡΠΈΡΠΎΠΊΠ° Π²ΠΎΠ΄Ρ ΠΈ ΡΠΈΡΠ»Π° ΠΈΠ³Π»ΠΎΡΠΈΠ»ΡΡΡΠΎΠ², Π½Π΅ΠΎΠ±Ρ ΠΎΠ΄ΠΈΠΌΡΡ Π΄Π»Ρ ΠΎΡΡΡΠ΅Π½ΠΈΡ, ΠΌΠΎΠΆΠ΅Ρ Π±ΡΡΡ ΡΠ΅ΠΊΠΎΠΌΠ΅Π½Π΄ΠΎΠ²Π°Π½Π° ΠΌΠ΅ΡΠΎΠ΄ΠΈΠΊΠ°, ΠΏΡΠ΅Π΄Π»ΠΎΠΆΠ΅Π½Π½Π°Ρ ΠΊΠ°Π½Π΄. ΡΠ΅Ρ Π½. Π½Π°ΡΠΊ Π. Π. ΠΠ°ΡΠΈΡΠΏΠΎΠ»ΡΡΠΊΠΈΠΌ.
ΠΠ°Π²ΠΈΡΠΈΠΌΠΎΡΡΡ ΠΊΠΎΡΡΡΠΈΡΠΈΠ΅Π½ΡΠ° ΠΎΡ ΠΏΠ»ΠΎΡΠ°Π΄ΠΈ ΠΎΡΡΡΠ°Π΅ΠΌΠΎΠ³ΠΎ ΠΊΠΎΠ½ΡΡΡΠ° ΠΏΡΠΈ ΡΠ°Π·Π»ΠΈΡΠ½ΡΡ
ΠΊΠΎΡΡΡΠΈΡΠΈΠ΅Π½ΡΠ°Ρ
ΡΠΈΠ»ΡΡΡΠ°ΡΠΈΠΈ ΠΏΡΠΈΠ²Π΅Π΄Π΅Π½Π° Π½Π° ΡΠΈΡ.
129.
ΠΠ΅ΠΎΠ±Ρ ΠΎΠ΄ΠΈΠΌΠΎΠ΅ ΡΠΈΡΠ»ΠΎ ΠΈΠ³Π»ΠΎΡΠΈΠ»ΡΡΡΠΎΠ² ΠΎΠΏΡΠ΅Π΄Π΅Π»ΡΡΡ, ΠΈΡΡ ΠΎΠ΄Ρ ΠΈΠ· ΠΏΡΠΎΠΏΡΡΠΊΠ½ΠΎΠΉ ΡΠΏΠΎΡΠΎΠ±Π½ΠΎΡΡΠΈ ΠΎΠ΄Π½ΠΎΠ³ΠΎ ΠΈΠ³Π»ΠΎΡΠΈΠ»ΡΡΡΠ° (ΡΠΈΡ. 130). ΠΠ»Ρ ΠΎΡΠΈΠ΅Π½ΡΠΈΡΠΎΠ²ΠΎΡΠ½ΠΎΠ³ΠΎ ΠΎΠΏΡΠ΅Π΄Π΅Π»Π΅Π½ΠΈΡ ΡΠ°Π³Π° ΠΈΠ³Π»ΠΎΡΠΈΠ»ΡΡΡΠΎΠ² Π² ΠΎΠ΄Π½ΠΎΠΌ ΡΡΠ΄Ρ ΡΠ΅ΠΊΠΎΠΌΠ΅Π½Π΄ΡΠ΅ΡΡΡ ΠΏΠΎΠ»ΡΠ·ΠΎΠ²Π°ΡΡΡΡ ΡΠ»Π΅Π΄ΡΡΡΠΈΠΌΠΈ Π΄Π°Π½Π½ΡΠΌΠΈ:
ΠΠΎΠ΄ΠΎΠΏΠΎΠ½ΠΈΠΆΠ΅Π½ΠΈΠ΅ ΠΈΠ³Π»ΠΎΡΠΈΠ»ΡΡΡΠ°ΠΌΠΈ -ΠΠΎΡΠΎΠ²ΡΠ΅ ΡΠ΅ΡΠ΅Π½ΠΈΡ
ΠΠ°ΡΠ° ΠΊΠΎΠΌΠΏΠ°Π½ΠΈΡ ΠΏΡΠ΅Π΄ΡΡΠ°Π²Π»ΡΠ΅Ρ Π²Π°ΡΠ΅ΠΌΡ Π²Π½ΠΈΠΌΠ°Π½ΠΈΡΒ ΡΡΡΠ΅ΠΊΡΠΈΠ²Π½ΡΡ ΡΠΈΡΡΠ΅ΠΌΡ ΠΏΠΎΠ½ΠΈΠΆΠ΅Π½ΠΈΡ Π³ΡΡΠ½ΡΠΎΠ²ΡΡ Π²ΠΎΠ΄.
ΠΡΡΠ΅ΠΊΡΠΈΠ²Π½Π°Ρ ΡΠΈΡΡΠ΅ΠΌΠ° ΠΏΠΎΠ½ΠΈΠΆΠ΅Π½ΠΈΡ Π³ΡΡΠ½ΡΠΎΠ²ΡΡ Π²ΠΎΠ΄Β Varisco (ΠΡΠ°Π»ΠΈΡ). Π‘ΠΈΡΡΠ΅ΠΌΠ° ΡΠΎΡΡΠΎΠΈΡ ΠΈΠ·Β ΡΠΊΠ²Π°ΠΆΠΈΠ½-ΠΈΠ³Π»ΠΎΡΠΈΠ»ΡΡΡΠΎΠ² ΠΈΒ ΠΌΠΎΡΠΎΠΏΠΎΠΌΠΏΡ ΡΒ Π²Π°ΠΊΡΡΠΌΠ½ΡΠΌ Π½Π°ΡΠΎΡΠΎΠΌ (ΡΠ΅ΡΠΈΠΈ: Varisco DUO, SIMPLE ΠΈΒ Ecomatic).
ΠΡΡΠ΅ΠΊΡΠΈΠ²Π½ΠΎΠ΅ Π²ΠΎΠ΄ΠΎΠΏΠΎΠ½ΠΈΠΆΠ΅Π½ΠΈΠ΅
DUO
Π ΠΎΡΠΎΡΠ½ΡΠΉ Π±Π΅Π·ΠΌΠ°ΡΠ»ΡΠ½ΡΠΉ
Π²Π°ΠΊΡΡΠΌΠ½ΡΠΉ Π½Π°ΡΠΎΡ
ECOMATIC
ΠΠ°ΠΊΡΡΠΌΠ½ΡΠΉ ΠΌΠ°ΡΠ»ΡΠ½ΡΠΉ
Π½Π°ΡΠΎΡ ΡΒ ΡΠΈΡΡΠ΅ΠΌΠΎΠΉ
ΡΠ΅ΡΠΈΡΠΊΡΠ»ΡΡΠΈΠΈ ΠΌΠ°ΡΠ»Π°
SIMPLE
ΠΠ°ΡΠ»ΡΠ½ΡΠΉ Π²Π°ΠΊΡΡΠΌΠ½ΡΠΉ
Π½Π°ΡΠΎΡ
ΠΡΠ΅ΠΈΠΌΡΡΠ΅ΡΡΠ²Π° Varisco DUO, SIMPLE, Ecomatic:
- ΠΠ²ΡΠΎΠΌΠ°ΡΠΈΡΠ΅ΡΠΊΠ°Ρ ΡΠ°ΠΌΠΎΠ²ΡΠ°ΡΡΠ²Π°ΡΡΠ°Ρ ΡΠΈΡΡΠ΅ΠΌΠ° β Π½Π΅Β ΡΡΠ΅Π±ΡΠ΅ΡΡΡ ΠΏΡΠ΅Π΄Π²Π°ΡΠΈΡΠ΅Π»ΡΠ½ΠΎΠ΅ Π½Π°ΠΏΠΎΠ»Π½Π΅Π½ΠΈΠ΅ Π²ΠΎΠ΄ΠΎΠΉ;
- ΠΠ°Π»ΠΎΡΡΠΌΠ½ΠΎΡΡΡ β Π½Π΅Π·Π°ΠΌΠ΅Π½ΠΈΠΌΡΠΉ ΠΏΠ°ΡΠ°ΠΌΠ΅ΡΡ Π΄Π»ΡΒ ΡΠ°Π±ΠΎΡΡ Π²Β ΡΠ΅ΡΡΠ΅ Π½Π°ΡΠ΅Π»Π΅Π½Π½ΠΎΠ³ΠΎ ΠΏΡΠ½ΠΊΡΠ°;
- ΠΠΈΠ·ΠΊΠ°Ρ ΡΡΠΎΠΈΠΌΠΎΡΡΡ Π²Π»Π°Π΄Π΅Π½ΠΈΡ;
- ΠΡΠΎΡΡΠΎΠ΅ ΠΎΠ±ΡΠ»ΡΠΆΠΈΠ²Π°Π½ΠΈΠ΅:
- ΠΠ° Π΄ΠΈΠ·Π΅Π»ΡΠ½ΡΡ
ΠΌΠΎΡΠΎΠΏΠΎΠΌΠΏΠ°Ρ
ΡΡΡΠ°Π½ΠΎΠ²Π»Π΅Π½ Π±ΠΎΠ»ΡΡΠΎΠΉ ΡΠΎΠΏΠ»ΠΈΠ²Π½ΡΠΉ Π±Π°ΠΊΒ β 24 ΡΠ°ΡΠ° Π°Π²ΡΠΎΠ½ΠΎΠΌΠ½ΠΎΠΉ ΡΠ°Π±ΠΎΡΡ.

ΠΠ°ΡΠ° ΠΊΠΎΠΌΠΏΠ°Π½ΠΈΡ ΡΠ²Π»ΡΠ΅ΡΡΡ ΠΎΡΠΈΡΠΈΠ°Π»ΡΠ½ΡΠΌ Π΄ΠΈΡΡΡΠΈΠ±ΡΡΡΠ΅ΡΠΎΠΌ Varisco.
Π‘ΠΏΠ΅ΡΠΏΡΠ΅Π΄Π»ΠΎΠΆΠ΅Π½ΠΈΠ΅
Π‘Ρ Π΅ΠΌΠ° ΠΏΠΎΠ½ΠΈΠΆΠ΅Π½ΠΈΡ Π³ΡΡΠ½ΡΠΎΠ²ΡΡ Π²ΠΎΠ΄Β ΡΒ ΠΏΠΎΠΌΠΎΡΡΡ ΡΠΈΡΡΠ΅ΠΌΡ ΡΠΊΠ²Π°ΠΆΠΈΠ½-ΠΈΠ³Π»ΠΎΡΠΈΠ»ΡΡΡΠΎΠ² ΠΈΒ ΠΌΠΎΡΠΎΠΏΠΎΠΌΠΏΡ ΡΒ Π²Π°ΠΊΡΡΠΌΠ½ΡΠΌ Π½Π°ΡΠΎΡΠΎΠΌ
Π£Π²Π΅Π»ΠΈΡΠΈΡΡ
ΡΡ
Π΅ΠΌΡ
ΠΡΠΏΠΎΠ»ΡΠ·ΠΎΠ²Π°Π½ΠΈΠ΅ ΡΠΈΡΡΠ΅ΠΌΡ Π²ΠΎΠ΄ΠΎΠΏΠΎΠ½ΠΈΠΆΠ΅Π½ΠΈΡ
Π£ΡΡΠ°Π½ΠΎΠ²ΠΊΠ° ΡΠΈΡΡΠ΅ΠΌΡ Π²ΠΎΠ΄ΠΎΠΏΠΎΠ½ΠΈΠΆΠ΅Π½ΠΈΡ
Varisco: ΠΌΠ΅ΡΠΎΠ΄Ρ ΠΎΡΡΡΠ΅Π½ΠΈΡ ΠΈΒ ΠΏΠΎΠ½ΠΈΠΆΠ΅Π½ΠΈΠ΅ Π³ΡΡΠ½ΡΠΎΠ²ΡΡ Π²ΠΎΠ΄
ΠΡΠΈ ΡΡΡΠΎΠΈΡΠ΅Π»ΡΡΡΠ²Π΅ Π³ΡΠ°ΠΆΠ΄Π°Π½ΡΠΊΠΈΡ ΡΠΎΠΎΡΡΠΆΠ΅Π½ΠΈΠΉ Π½Π΅ΠΎΠ±Ρ ΠΎΠ΄ΠΈΠΌΠΎ ΡΡΠΈΡΡΠ²Π°ΡΡ ΠΏΡΠΈΡΡΡΡΡΠ²ΠΈΠ΅ Π²Β Π·Π΅ΠΌΠ»Π΅ Π²ΠΎΠ΄ΠΎΠ½ΠΎΡΠ½ΡΡ ΠΏΠ»Π°ΡΡΠΎΠ², ΠΊΠΎΡΠΎΡΡΠ΅ ΠΌΠΎΠ³ΡΡ Π²ΡΠ·Π²Π°ΡΡ ΠΏΡΠΎΠ±Π»Π΅ΠΌΡ ΠΏΡΠΈΒ ΡΠΎΠΎΡΡΠΆΠ΅Π½ΠΈΠΈ ΠΏΡΠΎΠ΅ΠΊΡΠ°. ΠΠΌΠ΅Π½Π½ΠΎ ΠΈΠ·-Π·Π° ΡΡΠΎΠ³ΠΎ, Π·Π°ΡΠ°ΡΡΡΡ ΠΏΡΠΈΡ ΠΎΠ΄ΠΈΡΡΡ Π²ΠΎΒ Π²ΡΠ΅ΠΌΡ Π·Π΅ΠΌΠ»ΡΠ½ΡΡ ΡΠ°Π±ΠΎΡ ΠΎΡΡΡΠ΅ΡΡΠ²Π»ΡΡΡ Π²ΠΎΠ΄ΠΎΠΏΠΎΠ½ΠΈΠΆΠ΅Π½ΠΈΠ΅ Π³ΡΡΠ½ΡΠΎΠ²ΡΡ Π²ΠΎΠ΄.
ΠΠ±Π»Π°ΡΡΡ ΠΏΡΠΈΠΌΠ΅Π½Π΅Π½ΠΈΡ
ΠΠ±ΡΡΠ½ΠΎ ΡΠΈΡΡΠ΅ΠΌΠ° ΠΈΠ³Π»ΠΎΡΠΈΠ»ΡΡΡΠΎΠ² ΡΡΠΏΠ΅ΡΠ½ΠΎ ΠΈΡΠΏΠΎΠ»ΡΠ·ΡΡΡΡΡ ΠΏΡΠΈΒ ΠΏΠΎΠ½ΠΈΠΆΠ΅Π½ΠΈΠΈ ΡΡΠΎΠ²Π½Ρ Π²ΠΎΠ΄Β Π²Β ΡΡΡ
Π»ΡΡ
(ΠΏΠ΅ΡΡΠ°Π½ΡΡ
, Π³ΡΠ°Π²ΠΈΠΉΠ½ΡΡ
) ΠΏΠΎΡΠΎΠ΄Π°Ρ
Π³ΡΡΠ½ΡΠ°. ΠΠ΄Π½Π°ΠΊΠΎ, Π²Β Π³Π»ΠΈΠ½ΠΈΡΡΡΡ
ΠΏΠ°ΡΠΎΠ΄Π°Ρ
, Ρ
ΠΎΡΡ ΠΎΠ½ΠΈΒ ΠΈΒ ΠΎΠ±Π»Π°Π΄Π°ΡΡ Π±ΠΎΠ»ΡΡΠΎΠΉ ΠΏΠΎΡΠΈΡΡΠΎΡΡΡΡ, Π½Π΅ΠΎΠ±Ρ
ΠΎΠ΄ΠΈΠΌΡ ΡΠΏΠ΅ΡΠΈΠ°Π»ΡΠ½ΡΠ΅ ΠΌΠ΅ΡΠΎΠ΄Ρ ΡΡΡΠ°Π½ΠΎΠ²ΠΊΠΈ ΡΠΊΠ²Π°ΠΆΠΈΠ½-ΠΈΠ³Π»ΠΎΡΠΈΠ»ΡΡΡΠΎΠ².
Π‘ΠΎΡΡΠ°Π²
ΠΠ³Π»ΠΎΡΠΈΠ»ΡΡΡΠΎΠ²Π°Ρ ΡΡΡΠ°Π½ΠΎΠ²ΠΊΠ° Π²ΠΊΠ»ΡΡΠ°Π΅Ρ Π²Β ΡΠ΅Π±Ρ Π½Π΅ΡΠΊΠΎΠ»ΡΠΊΠΎ ΠΌΠΈΠΊΡΠΎΡΠΊΠ²Π°ΠΆΠΈΠ½ ΡΒ ΡΠ°Π·Π»ΠΈΡΠ½ΠΎΠΉ Π΄Π»ΠΈΠ½ΠΎΠΉ ΠΈΒ Π΄ΠΈΠ°ΠΌΠ΅ΡΡΠΎΠΌ (Π² Π·Π°Π²ΠΈΡΠΈΠΌΠΎΡΡΠΈ ΠΎΡΒ ΡΠΈΠΏΠΎΠ² Π·Π°Π΄Π°Ρ), ΡΠΎΠ΅Π΄ΠΈΠ½ΡΠ½Π½ΡΡ ΡΒ ΡΠ΅Π½ΡΡΠΎΠ±Π΅ΠΆΠ½ΡΠΌ ΡΠ°ΠΌΠΎΠ²ΡΠ°ΡΡΠ²Π°ΡΡΠΈΠΌ Π½Π°ΡΠΎΡΠΎΠΌ ΡΒ ΠΏΠΎΠΌΠΎΡΡΡ ΠΌΠ°Π³ΠΈΡΡΡΠ°Π»ΡΠ½ΡΡ ΡΡΡΠ±ΠΎΠΏΡΠΎΠ²ΠΎΠ΄ΠΎΠ², ΡΡΡΡΠ΅ΡΠΎΠ² ΠΈΒ ΠΌΡΡΡ.
ΠΡΠΈΠ½ΡΠΈΠΏ ΡΠ°Π±ΠΎΡΡ
ΠΡΠΈΠ½ΡΠΈΠΏ ΡΠ°Π±ΠΎΡΡ ΠΈΠ³Π»ΠΎΡΠΈΠ»ΡΡΡΠΎΠ² Π·Π°ΠΊΠ»ΡΡΠ°Π΅ΡΡΡ Π²Β ΠΏΡΠΎΡΠ΅ΡΡΠ΅, ΠΏΡΠΈΒ ΠΊΠΎΡΠΎΡΠΎΠΌ ΠΏΠΎΡΠΎΠΊ Π³ΡΡΠ½ΡΠΎΠ²ΡΡ Π²ΠΎΠ΄Β ΠΏΡΠΈΒ ΡΡΠΊΠΎΡΠ΅Π½ΠΈΠΈ ΠΎΡΠΊΠ»ΠΎΠ½ΡΠ΅ΡΡΡ ΠΊΒ ΠΎΠΏΡΠ΅Π΄Π΅Π»ΡΠ½Π½ΠΎΠΌΡ ΠΊΠΎΠ»ΠΈΡΠ΅ΡΡΠ²Ρ ΡΠΊΠ²Π°ΠΆΠΈΠ½, ΠΏΠΎΠ΄ΡΠΎΠ΅Π΄ΠΈΠ½ΡΠ½Π½ΡΡ ΠΊΒ Π½Π°ΡΠΎΡΡ. ΠΒ Π³ΡΡΠ½ΡΠ΅ ΡΠΎΠ·Π΄Π°ΡΡΡΡ ΡΠΈΠ»ΡΡΡΡΡΡΠ΅Π΅ Π΄Π²ΠΈΠΆΠ΅Π½ΠΈΠ΅ Π²ΠΎΠ΄Ρ Π²Β ΡΡΠΎΡΠΎΠ½Ρ ΠΈΠ³Π»ΠΎΡΠΈΠ»ΡΡΡΠΎΠ²ΡΡ ΡΡΡΠ°Π½ΠΎΠ²ΠΎΠΊ. ΠΒ ΠΎΠΏΡΠ΅Π΄Π΅Π»ΡΠ½Π½ΠΎΠΉ ΡΠΎΡΠΊΠ΅ ΡΠΊΠΎΡΠΎΡΡΡ ΡΠΈΠ»ΡΡΡΠ°ΡΠΈΠΈ ΠΏΡΠΎΠΏΠΎΡΡΠΈΠΎΠ½Π°Π»ΡΠ½Π° ΠΏΡΠ΅Π·ΠΎΠΌΠ΅ΡΡΠΈΡΠ΅ΡΠΊΠΎΠΌΡ Π³ΡΠ°Π΄ΠΈΠ΅Π½ΡΡ. ΠΠ°Π½Π½ΡΠΉ ΠΊΠΎΡΡΡΠΈΡΠΈΠ΅Π½Ρ Π·Π°Π²ΠΈΡΠΈΡ ΠΎΡΒ Π³Π»Π°Π²Π½ΠΎΠΉ Ρ Π°ΡΠ°ΠΊΡΠ΅ΡΠΈΡΡΠΈΠΊΠΈ Π»ΡΠ±ΠΎΠ³ΠΎ Π³ΡΡΠ½ΡΠ° β Π²Π»Π°Π³ΠΎΠΏΡΠΎΠ²ΠΎΠ΄Π½ΠΎΡΡΠΈ.
ΠΠΏΡΠ΅Π΄Π΅Π»Π΅Π½ΠΈΠ΅ ΡΠ°Π·ΠΌΠ΅ΡΠΎΠ²
ΠΡΠΈ ΠΎΠΏΡΠ΅Π΄Π΅Π»Π΅Π½ΠΈΠΈ ΡΠ°Π·ΠΌΠ΅ΡΠΎΠ² ΠΈΠ³Π»ΠΎΡΠΈΠ»ΡΡΡΠΎΠ²ΠΎΠΉ ΡΠΈΡΡΠ΅ΠΌΡ Π·Π°Π΄Π°ΡΡ ΠΊΠΎΠ»ΠΈΡΠ΅ΡΡΠ²ΠΎ ΠΈΠ³Π»ΠΎΡΠΈΠ»ΡΡΡΠΎΠ² ΠΈΒ Π½Π°ΡΠΎΡΠΎΠ², Π½Π΅ΠΎΠ±Ρ ΠΎΠ΄ΠΈΠΌΡΡ Π΄Π»ΡΒ ΠΏΠΎΠ½ΠΈΠΆΠ΅Π½ΠΈΡ Π³ΡΡΠ½ΡΠΎΠ²ΡΡ Π²ΠΎΠ΄Β Π΄ΠΎΒ ΠΆΠ΅Π»Π°Π΅ΠΌΠΎΠ³ΠΎ ΡΡΠΎΠ²Π½Ρ. Π§Π΅ΠΌΒ ΡΠΎΡΠ½Π΅Π΅ ΡΠ΅Ρ Π½ΠΈΡΠ΅ΡΠΊΠ°Ρ ΠΎΡΠ΅Π½ΠΊΠ°, ΡΠ΅ΠΌΒ Π±Π΅Π·ΠΎΠΏΠ°ΡΠ½Π΅Π΅ ΡΡΠ»ΠΎΠ²ΠΈΡ ΠΏΡΠΈΒ Π²ΡΠ΅ΠΌΠΊΠ΅ Π³ΡΡΠ½ΡΠ°.
ΠΠ±Π΅Π·Π²ΠΎΠΆΠΈΠ²Π°Π½ΠΈΠ΅
ΠΠ·ΡΡΠ΅Π½ΠΈΠ΅ Π²ΠΎΠΏΡΠΎΡΠ° ΠΎΠ±Π΅Π·Π²ΠΎΠΆΠΈΠ²Π°Π½ΠΈΡ, Π΄ΠΎΠ»ΠΆΠ½ΠΎ Π±ΡΡΡ ΠΏΡΠΎΠ²Π΅Π΄Π΅Π½ΠΎ Π²Β ΡΠ»Π΅Π΄ΡΡΡΠ΅ΠΉ ΠΏΠΎΡΠ»Π΅Π΄ΠΎΠ²Π°ΡΠ΅Π»ΡΠ½ΠΎΡΡΠΈ:
- ΠΡΠ΅Π΄Π²Π°ΡΠΈΡΠ΅Π»ΡΠ½ΡΠΉ ΡΡΠ°ΠΏ ΡΠ±ΠΎΡΠ° Π΄ΠΎΠΊΡΠΌΠ΅Π½ΡΠ°ΡΠΈΠΉ ΠΏΠΎΒ Π³Π΅ΠΎΠΌΠ΅ΡΡΠΈΡΠ΅ΡΠΊΠΈΠΌ ΠΏΠ°ΡΠ°ΠΌΠ΅ΡΡΠ°ΠΌ ΠΏΡΠΎΠ΅ΠΊΡΠΈΡΡΠ΅ΠΌΠΎΠ³ΠΎ ΡΠΎΠΎΡΡΠΆΠ΅Π½ΠΈΡ ΠΈΒ ΠΏΠΎΒ Π³ΠΈΠ΄ΡΠΎΠ³Π΅ΠΎΠ»ΠΎΠ³ΠΈΡΠ΅ΡΠΊΠΈΠΌ Ρ
Π°ΡΠ°ΠΊΡΠ΅ΡΠΈΡΡΠΈΠΊΠ°ΠΌ (ΠΎΡΠΎΠ±Π΅Π½Π½ΠΎΡΡΡΠΌ) ΠΌΠ΅ΡΡΠ½ΠΎΡΡΠΈ, Π³Π΄Π΅Β Π±ΡΠ΄Π΅Ρ ΠΏΡΠΎΠΈΡΡ
ΠΎΠ΄ΠΈΡΡ ΡΡΡΠΎΠΈΡΠ΅Π»ΡΡΡΠ²ΠΎ.

- ΠΠ±ΡΠ»Π΅Π΄ΠΎΠ²Π°Π½ΠΈΠ΅ ΡΡΡΠΎΠΉΠΏΠ»ΠΎΡΠ°Π΄ΠΊΠΈ ΡΒ ΡΠ΅Π»ΡΡ ΠΈΠ·ΡΡΠ΅Π½ΠΈΡ Π»ΠΎΠ³ΠΈΡΡΠΈΡΠ΅ΡΠΊΠΈΡ ΡΡΠ»ΠΎΠ²ΠΈΠΉ. ΠΠ»Π°Π³ΠΎΠ΄Π°ΡΡ ΡΡΠΎΠΌΡ ΠΌΠΎΠΆΠ½ΠΎ Π½Π°ΠΌΠ΅ΡΠΈΡΡ ΠΏΠ»Π°Π½ ΡΠ°Π·ΠΌΠ΅ΡΠ΅Π½ΠΈΡ ΠΈΠ³Π»ΠΎΡΠΊΠ²Π°ΠΆΠΈΠ½.
- ΠΡΠ΅Π½ΠΎΡΠ½ΡΠΉ ΡΠ°ΡΡΡΡ ΠΎΠ±ΡΡΠΌΠΎΠ² Π²ΠΎΠ΄Ρ, ΠΊΠΎΡΠΎΡΡΡ ΠΏΡΠ΅Π΄ΡΡΠΎΠΈΡ Π²ΡΠΊΠ°ΡΠ°ΡΡ.
- ΠΠΊΠΎΠ½ΡΠ°ΡΠ΅Π»ΡΠ½ΠΎΠ΅ ΠΎΠΏΡΠ΅Π΄Π΅Π»Π΅Π½ΠΈΠ΅ ΡΠ°Π·ΠΌΠ΅ΡΠΎΠ² ΡΠΈΡΡΠ΅ΠΌΡ ΡΠΊΠ²Π°ΠΆΠΈΠ½: ΠΊΠΎΠ»ΠΈΡΠ΅ΡΡΠ²ΠΎ ΠΈΠ³Π»ΠΎΡΠΈΠ»ΡΡΡΠΎΠ², ΡΠ°ΡΡΡΠΎΡΠ½ΠΈΠ΅ ΠΌΠ΅ΠΆΠ΄Ρ Π½ΠΈΠΌΠΈ, ΡΠ΅Ρ Π½ΠΈΡΠ΅ΡΠΊΠΈΠ΅ Ρ Π°ΡΠ°ΠΊΡΠ΅ΡΠΈΡΡΠΈΠΊΠΈ Π½Π°ΡΠΎΡΠΎΠ².
ΠΠ΅ΡΠΎΠ΄Ρ ΡΡΡΠ°Π½ΠΎΠ²ΠΊΠΈ ΠΈΠ³Π»ΠΎΡΠΈΠ»ΡΡΡΠΎΠ²
ΠΠ΅ΡΠΎΠ΄Ρ ΡΡΡΠ°Π½ΠΎΠ²ΠΊΠΈ ΠΈΠ³Π»ΠΎΡΠΈΠ»ΡΡΡΠΎΠ² Ρ Π°ΡΠ°ΠΊΡΠ΅ΡΠΈΠ·ΡΠ΅ΡΡΡ ΡΠΏΠ΅ΡΠΈΡΠΈΠΊΠΎΠΉ ΡΡΠ»ΠΎΠ²ΠΈΠΉ Π³ΡΡΠ½ΡΠΎΠ². Π’Π°ΠΊΒ ΠΊΠ°ΠΊΒ ΡΡΠ»ΠΎΠ²ΠΈΡ ΠΏΠΎΡΡΠΎΡΠ½Π½ΠΎ ΠΌΠ΅Π½ΡΡΡΡΡ, Π½Π°Ρ ΠΎΠΆΠ΄Π΅Π½ΠΈΠ΅ ΡΡΠ°Π½Π΄Π°ΡΡΠ½ΠΎΠ³ΠΎ ΠΌΠ΅ΡΠΎΠ΄Π° ΠΎΡΠ΅Π½Ρ Π·Π°ΡΡΡΠ΄Π½Π΅Π½ΠΎ.
Π£ΡΡΠ°Π½ΠΎΠ²ΠΊΠ° Π²Β ΠΏΠ΅ΡΡΠ°Π½ΡΡ ΠΏΠΎΡΠ²Π°Ρ
Π‘ΠΊΠ²Π°ΠΆΠΈΠ½Ρ ΠΏΡΠΎΠ±ΠΈΠ²Π°ΡΡΡΡ Π²Β Π³ΡΡΠ½ΡΠ΅ ΡΒ ΠΏΠΎΠΌΠΎΡΡΡ ΡΡΡΡΠΉΠ½ΠΎΠ³ΠΎ Π½Π°ΡΠΎΡΠ° (ΡΡΡΡΠΉΠ½ΡΠΉ ΠΌΠ΅ΡΠΎΠ΄). ΠΠ°Π½Π½ΡΠΉ ΠΌΠ΅ΡΠΎΠ΄ ΠΏΡΠ΅Π΄ΡΡΠ°Π²Π»ΡΠ΅Ρ ΡΠΎΠ±ΠΎΠΉ ΡΡΡΠ½ΡΡ ΠΏΠ΅ΡΡΠΎΡΠ°ΡΠΈΡ ΡΒ ΡΠ°Π·ΡΡΡΠ΅Π½ΠΈΠ΅ ΠΊΡΠ΅Π½Π° ΠΈΒ ΡΠΈΡΠΊΡΠ»ΡΡΠΈΠ΅ΠΉ Π²ΠΎΠ΄Ρ.
Π£ΡΡΠ°Π½ΠΎΠ²ΠΊΠ° Π²Β ΠΌΠ΅Π»ΠΊΠΎΠ·Π΅ΡΠ½ΠΈΡΡΡΡ Π³ΡΡΠ½ΡΠ°Ρ
ΠΡΠΈ ΡΠ°Π±ΠΎΡΠ΅ Π²Β ΠΏΠΎΡΠ²Π°Ρ ΡΒ ΠΌΠ΅Π»ΠΊΠΎΠ·Π΅ΡΠ½ΠΈΡΡΡΠΌ Π³ΡΡΠ½ΡΠΎΠΌ ΠΏΠΎΠ΄Π³ΠΎΡΠ°Π²Π»ΠΈΠ²Π°ΡΡΡΡ Π²Π΅ΡΡΠΈΠΊΠ°Π»ΡΠ½ΡΠ΅ Π΄ΡΠ΅Π½Ρ ΡΒ Π΄ΠΈΠ°ΠΌΠ΅ΡΡΠΎΠΌ 20 ΡΠΌ. ΠΠ»ΡΒ ΠΏΡΠ°Π²ΠΈΠ»ΡΠ½ΠΎΠΉ ΡΡΡΠ°Π½ΠΎΠ²ΠΊΠΈ ΠΏΠ΅ΡΡΠ°Π½ΠΎΠΉ Π΄ΡΠ΅Π½Ρ Π½Π΅ΠΎΠ±Ρ ΠΎΠ΄ΠΈΠΌ ΠΎΠΏΡΡ ΠΈΒ ΡΠΎΡΠ½ΠΎΡΡΡ.
ΠΡΠ±ΠΎΡ ΡΠΈΠ»ΡΡΡΠΎΠ²
ΠΡΠ±ΠΎΡ ΡΠΈΠ»ΡΡΡΠΎΠ², ΠΊΠΎΡΠΎΡΡΠ΅ Π±ΡΠ΄ΡΡ ΠΌΠΎΠ½ΡΠΈΡΠΎΠ²Π°ΡΡΡΡ Π½Π°Β ΠΈΠ³Π»ΠΎΡΠΈΠ»ΡΡΡ, ΠΎΡΡΡΠ΅ΡΡΠ²Π»ΡΠ΅ΡΡΡ ΡΒ ΡΡΡΡΠΎΠΌ Π½Π΅ΠΊΠΎΡΠΎΡΡΡ ΠΊΡΠΈΡΠ΅ΡΠΈΠ΅Π²:
- Π³ΡΠ°Π½ΡΠ»ΠΎΠΌΠ΅ΡΡΠΈΡ Π³ΡΡΠ½ΡΠ°;
- ΠΏΡΠ΅Π΄ΠΏΠΎΠ»Π°Π³Π°Π΅ΠΌΡΠΉ ΠΎΠ±ΡΡΠΌ Π²ΡΠΊΠ°ΡΠΈΠ²Π°Π΅ΠΌΠΎΠΉ Π²ΠΎΠ΄Ρ.

Π ΠΏΠ΅ΡΡΠ°Π½ΡΡ ΠΏΠΎΡΠ²Π°Ρ ΠΈΡΠΏΠΎΠ»ΡΠ·ΡΡΡΡΡ ΡΠΈΠ»ΡΡΡΡ Π²Β ΡΠΈΡΠ°Ρ Β«ΡΠ΅ΠΏΡΠΎΠ²ΠΎΠ³ΠΎΒ» ΡΠΈΠΏΠ° ΡΒ ΡΠ°Π·ΠΌΠ΅ΡΠΎΠΌ ΡΡΠ΅ΠΉΠΊΠΈ 0.8 ΠΌΠΌ, Π΄ΠΈΠ°ΠΌΠ΅ΡΡΠΎΠΌ 1? Π΄ΡΠΉΠΌΠ° ΠΈΒ Π΄Π»ΠΈΠ½ΠΎΠΉ 0.65 ΠΌΠΌ. ΠΒ Π³ΡΠ°Π²ΠΈΠΉΠ½ΡΡ Β ΠΆΠ΅ ΠΏΠΎΡΠ²Π°Ρ ΠΈΡΠΏΠΎΠ»ΡΠ·ΡΡΡΡΡ ΡΠΈΠ»ΡΡΡΡ ΡΒ 32 ΠΊΡΡΠ³Π»ΡΠΌΠΈ ΠΎΡΠ²Π΅ΡΡΡΠΈΡΠΌΠΈ Π΄ΠΈΠ°ΠΌΠ΅ΡΡΠΎΠΌ 8 ΠΌΠΌ. Π€ΠΈΠ»ΡΡΡΡ ΡΒ Π±ΠΎΠ»ΡΡΠΈΠΌ Π΄ΠΈΠ°ΠΌΠ΅ΡΡΠΎΠΌ ΠΏΠΎΠ·Π²ΠΎΠ»ΡΡΡ ΡΠΌΠ΅Π½ΡΡΠΈΡΡ ΡΡΠ΅Π½ΠΈΠ΅ ΡΒ ΡΠ°ΠΌΠΎΠΌ ΡΠΈΠ»ΡΡΡΠ΅, ΡΡΠΎΒ ΠΏΠΎΠ²ΡΡΠ°Π΅Ρ ΠΏΡΠΎΠΈΠ·Π²ΠΎΠ΄ΠΈΡΠ΅Π»ΡΠ½ΠΎΡΡΡ.
Π‘ΠΈΡΡΠ΅ΠΌΠ° ΡΠΊΠ²Π°ΠΆΠΈΠ½-ΠΈΠ³Π»ΠΎΡΠΈΠ»ΡΡΡΠΎΠ² Π½Π΅ΠΎΠ±Ρ ΠΎΠ΄ΠΈΠΌΠ° ΠΏΠΎΡΡΠΈ ΠΏΡΠΈΒ ΠΊΠ°ΠΆΠ΄ΠΎΠΌ ΡΡΡΠΎΠΈΡΠ΅Π»ΡΡΡΠ²Π΅, ΡΠ°ΠΊΒ ΠΊΠ°ΠΊΒ Π²Β ΠΏΠΎΡΠ²Π°Ρ ΠΎΡΠ΅Π½Ρ ΡΠ°ΡΡΠΎ Π²ΡΡΡΠ΅ΡΠ°ΡΡΡΡ ΠΏΠΎΠ΄Π·Π΅ΠΌΠ½ΡΠ΅ Π²ΠΎΠ΄Ρ. ΠΡΠΊΠ°ΡΠΊΠ° Π²ΠΎΠ΄Ρ ΠΏΠΎΠ·Π²ΠΎΠ»ΡΠ΅Ρ ΠΏΠΎΠ²ΡΡΠΈΡΡ ΡΡΠΎΠ²Π΅Π½Ρ ΠΊΠ°ΡΠ΅ΡΡΠ²Π° ΠΈΒ Π±Π΅Π·ΠΎΠΏΠ°ΡΠ½ΠΎΡΡΠΈ ΡΡΡΠΎΡΡΠ΅Π³ΠΎΡΡ ΡΠΎΠΎΡΡΠΆΠ΅Π½ΠΈΡ.
Well Point System | Π’ΠΈΠΏΡ ΡΠΈΡΡΠ΅ΠΌΡ Well Point | ΠΠ±Π΅Π·Π²ΠΎΠΆΠΈΠ²Π°Π½ΠΈΠ΅ ΡΠΎΡΠΊΠΈ ΡΠΊΠ²Π°ΠΆΠΈΠ½Ρ | ΠΠΠ₯ ΠΊΠΎΠ»ΠΎΠ΄Π΅Ρ | Π£ΡΡΠ°Π½ΠΎΠ²ΠΊΠ° Well Point
ΠΠ°ΠΆΠ½ΡΠΉ ΠΌΠΎΠΌΠ΅Π½Ρ
1
Π§ΡΠΎ Π²Ρ ΠΏΠΎΠ΄ΡΠ°Π·ΡΠΌΠ΅Π²Π°Π΅ΡΠ΅ ΠΏΠΎΠ΄ ΡΠ΅ΡΠΌΠΈΠ½ΠΎΠΌ Well Point?
Well Point ΡΠ°ΠΊΠΆΠ΅ ΠΈΠ·Π²Π΅ΡΡΠ΅Π½ ΠΏΠΎΠ΄ ΡΠ΅ΡΠΌΠΈΠ½ΠΎΠΌ Drive Point. Well Point β ΡΠΊΠ²Π°ΠΆΠΈΠ½Π° Π½Π΅Π±ΠΎΠ»ΡΡΠΎΠ³ΠΎ Π΄ΠΈΠ°ΠΌΠ΅ΡΡΠ°, ΠΊΠΎΡΠΎΡΠ°Ρ ΠΈΡΠΏΠΎΠ»ΡΠ·ΡΠ΅ΡΡΡ Π΄Π»Ρ ΠΎΡΡΡΠ΅Π½ΠΈΡ.
Π§Π°ΡΡΠΈ, Π²Ρ
ΠΎΠ΄ΡΡΠΈΠ΅ Π² ΡΠΎΡΡΠ°Π² ΠΠ³Π»ΠΎΠΏΠΎΠΈΠ½ΡΠ°, Π²ΠΊΠ»ΡΡΠ°ΡΡ Π½Π΅Π³Π»ΡΠ±ΠΎΠΊΠΈΠΉ Π²Π°Π», Π²ΠΎΠ΄ΠΎΠΎΡΠ»ΠΈΠ²Π½ΠΎΠΉ Π½Π°ΡΠΎΡ Π΄Π»Ρ Π·Π°Π±ΠΎΡΠ° Π²ΠΎΠ΄Ρ, ΡΡΠΎΡΠΊ, ΡΠΎΠ΅Π΄ΠΈΠ½ΡΡΡΠΈΠΉ ΠΠ³Π»ΠΎΠΏΠΎΠΈΠ½Ρ Ρ ΠΏΠΎΠ²Π΅ΡΡ
Π½ΠΎΡΡΡΡ, ΠΈ Π½Π΅Π±ΠΎΠ»ΡΡΠΎΠΉ Π½Π°ΠΏΠΎΠ»Π½ΡΡΡΠΈΠΉ ΠΊΠΎΠ»ΠΎΠ΄Π΅Ρ.
ΠΠΈΠ°ΠΌΠ΅ΡΡ ΡΡΠΎΡΠΊΠ° ΡΠΎΡΡΠ°Π²Π»ΡΠ΅Ρ ΠΎΡ 38 Π΄ΠΎ 50 ΠΌΠΌ . ΠΠ½ ΠΈΠΌΠ΅Π΅Ρ ΠΏΡΠΎΡΠ΅Π·ΠΈ ΠΈΠ»ΠΈ ΠΎΡΠ²Π΅ΡΡΡΠΈΡ Π½Π° Π΄Π½Π΅, ΠΊΠΎΡΠΎΡΡΠ΅ ΠΏΠΎΠ·Π²ΠΎΠ»ΡΡΡ Π½Π°Π±ΠΈΡΠ°ΡΡ Π²ΠΎΠ΄Ρ Ρ ΠΏΠΎΠΌΠΎΡΡΡ Π½Π°ΡΠΎΡΠ°.
Π Π°Π·ΠΌΠ΅Ρ ΡΠ΅Π»Π΅ΠΉ ΠΈΠ»ΠΈ ΠΎΡΠ²Π΅ΡΡΡΠΈΠΉ Π² ΡΡΠΎΡΠΊΠ΅ ΠΎΠΏΡΠ΅Π΄Π΅Π»ΡΠ΅ΡΡΡ ΠΎΡΠ½ΠΎΡΠΈΡΠ΅Π»ΡΠ½ΡΠΌ ΡΠ°Π·ΠΌΠ΅ΡΠΎΠΌ Π·Π΅ΡΠ½Π° ΠΌΠ°ΡΠ΅ΡΠΈΠ°Π»Π°, ΠΈΡΠΏΠΎΠ»ΡΠ·ΡΠ΅ΠΌΠΎΠ³ΠΎ Π΄Π»Ρ Π²ΠΎΠ΄ΠΎΠ½ΠΎΡΠ½ΠΎΠ³ΠΎ ΠΏΠ»Π°ΡΡΠ°.
ΠΡΠ²Π΅ΡΡΡΠΈΠ΅ Π² ΡΡΠΎΡΠΊΠ΅ Π΄ΠΎΠ»ΠΆΠ½ΠΎ Π±ΡΡΡ Π΄ΠΎΡΡΠ°ΡΠΎΡΠ½ΠΎ Π±ΠΎΠ»ΡΡΠΈΠΌ, ΡΡΠΎΠ±Ρ Π²ΠΎΠ΄Π° ΠΌΠΎΠ³Π»Π° ΠΏΠΎΠΏΠ°ΡΡΡ Π² ΡΡΡΠ±Ρ, Π½ΠΎ ΠΎΠ½ΠΎ Π΄ΠΎΠ»ΠΆΠ½ΠΎ Π±ΡΡΡ Π΄ΠΎΡΡΠ°ΡΠΎΡΠ½ΠΎ ΠΌΠ°Π»Π΅Π½ΡΠΊΠΈΠΌ, ΡΡΠΎΠ±Ρ ΡΠ΄Π΅ΡΠΆΠΈΠ²Π°ΡΡ Π²ΠΎΠ΄ΠΎΠ½ΠΎΡΠ½ΡΠΉ ΠΏΠ»Π°ΡΡ Π½Π° ΠΌΠ΅ΡΡΠ΅. ΠΠΎΠ΄ΡΠ΅ΠΌΠ½Π°Ρ ΡΡΡΠ±Π° ΡΠΊΠ²Π°ΠΆΠΈΠ½Π½ΠΎΠΉ ΡΠΎΡΠΊΠΈ ΡΠ°ΡΡΠΎ ΡΠΎΠ΅Π΄ΠΈΠ½ΡΠ΅ΡΡΡ ΡΠ΅ΡΠ΅Π· Π³ΠΈΠ±ΠΊΡΡ Π΄ΡΠ³Ρ Ρ ΠΎΠ±ΡΠ΅ΠΉ ΠΎΡΠ½ΠΎΠ²Π½ΠΎΠΉ ΡΡΡΠ±ΠΎΠΉ ΠΊΠΎΠ»Π»Π΅ΠΊΡΠΎΡΠ°.
ΠΠΈΠ±ΠΊΠ°Ρ Π΄ΡΠ³Π°, Π²ΡΡΡΠΎΠ΅Π½Π½Π°Ρ Π² ΡΡΠΎΡΠΊ, Π΄Π΅ΠΉΡΡΠ²ΡΠ΅Ρ ΠΊΠ°ΠΊ ΡΠ΅Π³ΡΠ»ΠΈΡΡΠ΅ΠΌΡΠΉ ΠΊΠ»Π°ΠΏΠ°Π½, ΠΊΠΎΡΠΎΡΡΠΉ ΡΠ»ΡΠΆΠΈΡ Π΄Π²ΡΠΌ ΡΠ΅Π»ΡΠΌ: Π²ΠΎ-ΠΏΠ΅ΡΠ²ΡΡ , ΠΎΠ½ ΡΠ΅Π³ΡΠ»ΠΈΡΡΠ΅Ρ ΠΏΠΎΡΠΎΠΊ Π²ΠΎΠ΄Ρ ΠΈ Π²ΠΎΠ·Π΄ΡΡ Π°, ΠΏΠΎΡΡΡΠΏΠ°ΡΡΠΈΡ Π² ΡΠΈΡΡΠ΅ΠΌΡ Well Point, Π° Π²ΠΎ-Π²ΡΠΎΡΡΡ , ΠΏΠΎΠ·Π²ΠΎΠ»ΡΠ΅Ρ Π΄ΡΡΠ³ΠΈΠΌ ΠΈΠΌΠ΅ΡΡ ΡΠ΅ΡΠΊΠΎΠ΅ ΠΏΡΠ΅Π΄ΡΡΠ°Π²Π»Π΅Π½ΠΈΠ΅ ΠΎ ΡΠΎΠΌ, ΡΡΠΎ ΠΏΡΠΎΠΊΠ°ΡΠΈΠ²Π°Π΅ΡΡΡ.
ΠΠ±ΡΠ°Ρ ΠΌΠ°Π³ΠΈΡΡΡΠ°Π»ΡΠ½Π°Ρ ΡΡΡΠ±Π° ΡΡΠΎΡΠΊΠ° Π·Π°ΡΠ΅ΠΌ ΡΠΎΠ΅Π΄ΠΈΠ½ΡΠ΅ΡΡΡ Ρ ΡΠΈΡΡΠ΅ΠΌΠΎΠΉ ΠΎΡΡΡΠ΅Π½ΠΈΡ ΡΠΊΠ²Π°ΠΆΠΈΠ½Ρ. Well Points ΠΎΡΠ΅Π½Ρ ΡΠ½ΠΈΠ²Π΅ΡΡΠ°Π»ΡΠ½Ρ ΠΈ ΠΌΠΎΠ³ΡΡ ΠΈΡΠΏΠΎΠ»ΡΠ·ΠΎΠ²Π°ΡΡΡΡ Π΄Π»Ρ ΡΠΈΡΠΎΠΊΠΎΠ³ΠΎ ΡΠΏΠ΅ΠΊΡΡΠ° ΠΏΡΠΈΠΌΠ΅Π½Π΅Π½ΠΈΠΉ, ΡΠ°ΠΊΠΈΡ
ΠΊΠ°ΠΊ Π½Π΅Π³Π»ΡΠ±ΠΎΠΊΠΈΠΉ ΡΡΠ½Π΄Π°ΠΌΠ΅Π½Ρ ΠΈ ΡΡΠ°Π½ΡΠ΅ΠΉΠ½ΡΠ΅ ΡΠ°Π±ΠΎΡΡ.
Well Point ΠΌΠΎΠΆΠ΅Ρ Π±ΡΡΡ ΡΡΡΠ°Π½ΠΎΠ²Π»Π΅Π½ ΠΏΠ°ΡΠ°Π»Π»Π΅Π»ΡΠ½ΠΎ ΠΎΡΠΎΠ±Π΅Π½Π½ΠΎ Π΄Π»ΠΈΠ½Π½ΡΠΌ ΡΡΠ°Π½ΡΠ΅ΡΠΌ ΡΡΡΠ±ΠΎΠΏΡΠΎΠ²ΠΎΠ΄Π° Ρ ΠΏΠΎΠΌΠΎΡΡΡ ΡΠΏΠ΅ΡΠΈΠ°Π»ΡΠ½ΡΡ ΡΡΠ°Π½ΡΠ΅ΠΉΠ½ΡΡ ΠΌΠ°ΡΠΈΠ½. Well Point ΠΌΠΎΠΆΠ½ΠΎ ΠΈΡΠΏΠΎΠ»ΡΠ·ΠΎΠ²Π°ΡΡ Π΄Π»Ρ ΠΎΡΠΎΡΠ΅Π½ΠΈΡ Π½Π΅Π±ΠΎΠ»ΡΡΠΈΡ ΠΈ ΡΡΠ΅Π΄Π½ΠΈΡ ΠΏΠΎΠ»Π΅ΠΉ, ΡΠ°ΠΊΠΈΡ ΠΊΠ°ΠΊ ΠΆΠΈΠ»ΡΠ΅ ΡΠ°Π΄Ρ.
ΠΡΠ»ΠΈ ΠΈΠ· ΠΎΠ΄Π½ΠΎΠ³ΠΎ ΠΊΠΎΠ»ΠΎΠ΄ΡΠ° Π½Π΅Π΄ΠΎΡΡΠ°ΡΠΎΡΠ½ΠΎ Π²ΠΎΠ΄Ρ Π΄Π»Ρ ΡΠ°Π±ΠΎΡΡ ΠΎΡΠΎΡΠΈΡΠ΅Π»ΡΠ½ΠΎΠΉ ΡΠΈΡΡΠ΅ΠΌΡ, ΠΌΠΎΠΆΠ½ΠΎ ΡΡΡΠ°Π½ΠΎΠ²ΠΈΡΡ Π²ΡΠΎΡΠΎΠΉ ΠΊΠΎΠ»ΠΎΠ΄Π΅Ρ ΠΈ ΡΠΎΠ΅Π΄ΠΈΠ½ΠΈΡΡ Π΅Π³ΠΎ Ρ ΠΏΠ΅ΡΠ²ΡΠΌ, ΡΡΠΎ ΠΏΠΎΠΌΠΎΠΆΠ΅Ρ ΠΈΠΌ ΡΡΠ½ΠΊΡΠΈΠΎΠ½ΠΈΡΠΎΠ²Π°ΡΡ ΠΊΠ°ΠΊ Π΅Π΄ΠΈΠ½Π°Ρ ΡΠΈΡΡΠ΅ΠΌΠ°.
Π ΠΊΠ°ΡΠ΅ΡΡΠ²Π΅ Π°Π»ΡΡΠ΅ΡΠ½Π°ΡΠΈΠ²Ρ ΡΠΊΠ²Π°ΠΆΠΈΠ½Π°ΠΌ ΠΌΠΎΠΆΠ½ΠΎ ΡΠ°ΠΊΠΆΠ΅ ΠΈΡΠΏΠΎΠ»ΡΠ·ΠΎΠ²Π°ΡΡ Well Point ΠΏΠΎ ΠΏΠ΅ΡΠΈΠΌΠ΅ΡΡΡ ΠΊΠΎΡΠ»ΠΎΠ²Π°Π½ΠΎΠ², ΠΊΠΎΡΠΎΡΡΠ΅ Π±ΡΠ΄ΡΡ Π΄Π΅ΠΉΡΡΠ²ΠΎΠ²Π°ΡΡ ΠΊΠ°ΠΊ ΡΡΠ΅Π΄ΡΡΠ²ΠΎ ΠΏΠΎΠ½ΠΈΠΆΠ΅Π½ΠΈΡ ΠΈ ΠΊΠΎΠ½ΡΡΠΎΠ»Ρ ΡΡΠΎΠ²Π½Ρ Π³ΡΡΠ½ΡΠΎΠ²ΡΡ Π²ΠΎΠ΄.
Well Point Π±ΠΎΠ»Π΅Π΅ ΡΠΊΠΎΠ½ΠΎΠΌΠΈΡΠ΅Π½ ΠΈ ΡΠΊΠΎΠ½ΠΎΠΌΠΈΡΠ΅Π½ ΠΏΠΎ Π²ΡΠ΅ΠΌΠ΅Π½ΠΈ, ΡΠ΅ΠΌ ΡΠΊΠ²Π°ΠΆΠΈΠ½Π°, Π² ΡΠ΅Ρ ΡΠ»ΡΡΠ°ΡΡ , ΠΊΠΎΠ³Π΄Π° ΡΡΠ΅Π±ΡΠ΅ΡΡΡ ΠΌΠ΅Π½ΡΡΠ°Ρ Π³Π»ΡΠ±ΠΈΠ½Π°. Well Point ΠΌΠΎΠΆΠ΅Ρ Π±ΡΡΡ ΡΡΡΠ°Π½ΠΎΠ²Π»Π΅Π½ ΠΎΡΠ΅Π½Ρ Π±ΡΡΡΡΠΎ Π² ΡΠΎΠΎΡΠ²Π΅ΡΡΡΠ²ΡΡΡΠ΅ΠΌ ΡΠΎΡΡΠΎΡΠ½ΠΈΠΈ Π³ΡΡΠ½ΡΠ°.
Π ΠΏΡΠΎΡΠ΅ΡΡΠ΅ ΡΡΡΠ°Π½ΠΎΠ²ΠΊΠΈ Well Point ΠΎΠ±ΡΡΠ½ΠΎ ΠΈΡΠΏΠΎΠ»ΡΠ·ΡΡΡΡΡ ΡΡΠ°Π΄ΠΈΡΠΈΠΎΠ½Π½ΡΠ΅ ΠΌΠ΅ΡΠΎΠ΄Ρ Π±ΡΡΠ΅Π½ΠΈΡ, ΡΠ°ΠΊΠΈΠ΅ ΠΊΠ°ΠΊ ΠΏΡΠΎΠΌΡΠ²ΠΊΠ° ΠΈΠ»ΠΈ Π±ΡΡΠ΅Π½ΠΈΠ΅. ΠΠΎΠ»ΡΡΠΎΠ΅ ΠΊΠΎΠ»ΠΈΡΠ΅ΡΡΠ²ΠΎ Π²ΠΎΠ΄Ρ Π½Π΅ ΠΌΠΎΠΆΠ΅Ρ Π±ΡΡΡ ΠΏΠΎΠ»ΡΡΠ΅Π½ΠΎ ΠΈΠ· Well Point, ΠΎΠ±ΡΡΠ½ΠΎ ΠΌΡ ΠΌΠΎΠΆΠ΅ΠΌ ΠΏΠΎΠ»ΡΡΠΈΡΡ ΠΎΠΊΠΎΠ»ΠΎ 5 Π³Π°Π»Π»ΠΎΠ½ΠΎΠ² Π²ΠΎΠ΄Ρ Π² ΠΌΠΈΠ½ΡΡΡ.
Π’Π°ΠΊΠΆΠ΅ Π΅ΡΡΡ ΠΎΠ±ΡΠΈΠΉ ΠΏΡΠ΅Π΄Π΅Π» Π²ΡΡΠΎΡΡ ΠΎΡ 5 Π΄ΠΎ 6 ΠΌ , Ρ ΠΊΠΎΡΠΎΡΠΎΠΉ Π²ΠΎΠ΄Π° ΠΌΠΎΠΆΠ΅Ρ Π±ΡΡΡ Π½Π°Π±ΡΠ°Π½Π° Π² Well Point, ΠΏΠΎΡΠΊΠΎΠ»ΡΠΊΡ Π²Π°ΠΊΡΡΠΌ ΠΎΠ³ΡΠ°Π½ΠΈΡΠ΅Π½ Π½Π° ΠΏΡΠ°ΠΊΡΠΈΠΊΠ΅ Π΄ΠΎ 0 Π±Π°Ρ . ΠΡΠΎΡΠΎΠΉ ΠΊΠΎΠΌΠΏΠ»Π΅ΠΊΡ Well Point ΠΌΠΎΠΆΠ΅Ρ Π±ΡΡΡ ΡΡΡΠ°Π½ΠΎΠ²Π»Π΅Π½ Π½Π° Π±ΠΎΠ»Π΅Π΅ Π½ΠΈΠ·ΠΊΠΎΠΌ ΡΡΠΎΠ²Π½Π΅ Π΄Π»Ρ ΡΡΠ΅Π±ΠΎΠ²Π°Π½ΠΈΠΉ Π±ΠΎΠ»ΡΡΠ΅ΠΉ Π³Π»ΡΠ±ΠΈΠ½Ρ.
Well Points ΡΠΏΠΎΡΠΎΠ±Π½Ρ ΡΠ°Π±ΠΎΡΠ°ΡΡ Ρ Π²ΠΎΠ΄ΠΎΠΉ ΠΈΠ· ΠΎΡΠ΅Π½Ρ ΠΌΠ°Π»ΡΡ ΠΏΠΎΡΠΎΠΊΠΎΠ² Π² ΠΈΠ»ΠΈΡΡΡΡ ΠΏΠ΅ΡΠΊΠ°Ρ , Π° ΡΠ°ΠΊΠΆΠ΅ ΠΈΠ· Π±ΠΎΠ»ΡΡΠΈΡ ΠΏΠΎΡΠΎΠΊΠΎΠ² Π² ΠΊΡΡΠΏΠ½ΠΎΠ·Π΅ΡΠ½ΠΈΡΡΡΡ ΠΏΠ΅ΡΠΊΠ°Ρ ΠΈ Π³ΡΠ°Π²ΠΈΠΈ.
Π’Π°ΠΊΠΆΠ΅ ΠΏΡΠΎΡΡΠΈΡΠ΅: ΠΠΎΠ½ΡΡΡΡΠΊΡΠΈΡ Π½Π°Π³ΠΎΠ»ΠΎΠ²Π½ΠΈΠΊΠ° | Π‘ΡΡΠΎΠΈΡΠ΅Π»ΡΡΡΠ²ΠΎ ΡΠ²Π°ΠΉΠ½ΡΡ ΠΊΡΡΡΠ΅ΠΊ | Π‘ΡΡΡΠΊΡΡΡΠ° ΡΠ²Π°ΠΉ | Π‘Π²Π°ΠΉΠ½ΡΠ΅ ΡΡΠ½Π΄Π°ΠΌΠ΅Π½ΡΡ | ΠΠ²Π°Π΄ΡΠ°ΡΠ½ΡΠ΅ Π·Π°Π³Π»ΡΡΠΊΠΈ | ΠΡΠΌΠΈΡΠΎΠ²Π°Π½ΠΈΠ΅ ΠΊΡΡΡΠΊΠΈ ΡΠ²Π°ΠΈ
Π§ΡΠΎ ΡΠ°ΠΊΠΎΠ΅ ΡΠΈΡΡΠ΅ΠΌΠ° Well Point?
Π‘ΠΈΡΡΠ΅ΠΌΠ° Well Point ΠΌΠΎΠΆΠ΅Ρ ΠΈΡΠΏΠΎΠ»ΡΠ·ΠΎΠ²Π°ΡΡΡΡ Π΄Π»Ρ ΠΏΠΎΠ½ΠΈΠΆΠ΅Π½ΠΈΡ ΡΡΠΎΠ²Π½Ρ Π³ΡΡΠ½ΡΠΎΠ²ΡΡ Π²ΠΎΠ΄ Π½Π° ΡΡΠ°ΡΡΠΊΠ΅ ΡΠ°ΡΠΊΠΎΠΏΠΎΠΊ, ΡΡΠΎΠ±Ρ ΠΎΠ±Π΅ΡΠΏΠ΅ΡΠΈΡΡ ΡΡΠ°Π±ΠΈΠ»ΡΠ½ΡΠ΅ ΡΡΠ»ΠΎΠ²ΠΈΡ ΡΠ°Π±ΠΎΡΡ. Π‘ΠΈΡΡΠ΅ΠΌΠ° Well Point Π² ΠΎΡΠ½ΠΎΠ²Π½ΠΎΠΌ ΠΏΠΎΠ΄Ρ ΠΎΠ΄ΠΈΡ Π΄Π»Ρ Π½Π΅Π³Π»ΡΠ±ΠΎΠΊΠΎΠ³ΠΎ ΡΡΠ½Π΄Π°ΠΌΠ΅Π½ΡΠ°, ΡΡΠ°Π½ΡΠ΅ΠΉΠ½ΡΡ ΡΠ°Π±ΠΎΡ ΠΈ Π²ΠΎΠ΄ΠΎΠΎΡΠ²Π΅Π΄Π΅Π½ΠΈΡ.
Π‘ΠΈΡΡΠ΅ΠΌΠ° Well Point ΡΠΎΡΡΠΎΠΈΡ ΠΈΠ· Π½Π΅ΡΠΊΠΎΠ»ΡΠΊΠΈΡ
Π±Π»ΠΈΠ·ΠΊΠΎ ΡΠ°ΡΠΏΠΎΠ»ΠΎΠΆΠ΅Π½Π½ΡΡ
Π½Π΅Π³Π»ΡΠ±ΠΎΠΊΠΈΡ
ΡΠΊΠ²Π°ΠΆΠΈΠ½ Π½Π΅Π±ΠΎΠ»ΡΡΠΎΠ³ΠΎ Π΄ΠΈΠ°ΠΌΠ΅ΡΡΠ°.
ΠΠΎΠΌΠΏΠΎΠ½Π΅Π½ΡΡ Well Point ΠΏΠΎΠ΄ΠΊΠ»ΡΡΠ΅Π½Ρ ΠΊ ΠΎΠ±ΡΠ΅ΠΉ ΠΌΠ°Π³ΠΈΡΡΡΠ°Π»ΡΠ½ΠΎΠΉ ΡΡΡΠ±Π΅, Π° Π²ΠΎΠ΄Π° ΠΏΠ΅ΡΠ΅ΠΊΠ°ΡΠΈΠ²Π°Π΅ΡΡΡ Π²ΡΡΠΎΠΊΠΎΡΡΡΠ΅ΠΊΡΠΈΠ²Π½ΡΠΌ Π²Π°ΠΊΡΡΠΌΠ½ΡΠΌ Π²ΠΎΠ΄ΠΎΠΎΡΠ»ΠΈΠ²Π½ΡΠΌ Π½Π°ΡΠΎΡΠΎΠΌ.
ΠΠ°Π»ΡΠ½Π΅ΠΉΡΠΈΠ΅ ΡΡΠ°ΠΏΡ ΡΠΈΡΡΠ΅ΠΌΡ Well Point Π½Π΅ΠΎΠ±Ρ ΠΎΠ΄ΠΈΠΌΡ Π΄Π»Ρ ΠΏΠΎΠ½ΠΈΠΆΠ΅Π½ΠΈΡ Π΄Π°Π²Π»Π΅Π½ΠΈΡ, ΠΊΠΎΠ³Π΄Π° ΠΎΠ½ΠΎ ΠΏΡΠ΅Π²ΡΡΠ°Π΅Ρ 15 ΡΡΡΠΎΠ² , ΠΈ ΡΡΡΠ°Π½Π°Π²Π»ΠΈΠ²Π°ΡΡΡΡ Π½Π° ΠΏΠΎΡΠ»Π΅Π΄ΠΎΠ²Π°ΡΠ΅Π»ΡΠ½ΠΎ Π±ΠΎΠ»Π΅Π΅ Π½ΠΈΠ·ΠΊΠΈΡ ΡΡΠΎΠ²Π½ΡΡ ΠΏΠΎ ΠΌΠ΅ΡΠ΅ ΠΏΡΠΎΠ΄Π²ΠΈΠΆΠ΅Π½ΠΈΡ Π·Π΅ΠΌΠ»ΡΠ½ΡΡ ΡΠ°Π±ΠΎΡ.
Π’Π°ΠΊΠΆΠ΅ ΠΏΡΠΎΡΠΈΡΠ°ΠΉΡΠ΅:Β Π§ΡΠΎ ΡΠ°ΠΊΠΎΠ΅ ΡΠ»Π΅Π·Π½ΡΠ΅ ΠΎΡΠ²Π΅ΡΡΡΠΈΡ | ΠΠΎΡΡΠ΅Π±Π½ΠΎΡΡΡ Π² ΠΏΠ»Π°ΡΡΡΠΈΡ Π΄ΡΡΠ°Ρ | ΠΡΠ²Π΅ΡΡΡΠΈΡ ΠΏΠ»Π°ΡΠ° ΡΡΠ½Π΄Π°ΠΌΠ΅Π½ΡΠ° | Π’ΠΈΠΏΡ ΡΠ»Π΅Π·Π½ΡΡ ΠΎΡΠ²Π΅ΡΡΡΠΈΠΉ | ΠΠ»Π°Ρ ΠΎΡΠ²Π΅ΡΡΡΠΈΡ Π² ΠΏΠΎΠ΄ΠΏΠΎΡΠ½ΠΎΠΉ ΡΡΠ΅Π½Π΅ | ΠΠΊΠΎΠ½Π½ΡΠ΅ ΡΠ»ΠΈΠ²Π½ΡΠ΅ ΠΎΡΠ²Π΅ΡΡΡΠΈΡ
Π’ΠΈΠΏΡ ΠΈΠ³Π»ΠΎΡΠΈΠ»ΡΡΡΠΎΠ²
Π‘ΡΡΠ΅ΡΡΠ²ΡΠ΅Ρ Π΄Π²Π° ΠΎΡΠ½ΠΎΠ²Π½ΡΡ ΡΠΈΠΏΠ° ΠΈΠ³Π»ΠΎΡΠΈΠ»ΡΡΡΠΎΠ²:
- ΠΠ΄Π½ΠΎΡΡΡΠΏΠ΅Π½ΡΠ°ΡΠ°Ρ ΠΈΠ³Π»ΠΎΡΠΈΠ»ΡΡΡΠΎΠ²Π°Ρ ΡΠΈΡΡΠ΅ΠΌΠ°.
- ΠΠ½ΠΎΠ³ΠΎΡΡΡΠΏΠ΅Π½ΡΠ°ΡΠ°Ρ ΡΠΈΡΡΠ΅ΠΌΠ° ΠΈΠ³Π»ΠΎΡΠΈΠ»ΡΡΡΠΎΠ².
#1. ΠΠ΄Π½ΠΎΡΡΡΠΏΠ΅Π½ΡΠ°ΡΠ°Ρ ΡΠΈΡΡΠ΅ΠΌΠ° Well Point.
Π ΡΠΈΡΡΠ΅ΠΌΠ΅ Ρ ΠΎΠ΄Π½ΠΈΠΌ ΠΈΠ³Π»ΠΎΠ±Π»ΠΎΠΊΠΎΠΌ ΠΈΠ³Π»ΠΎΠΏΡΠΎΠ±ΠΈΠ²Π½ΠΎΠΉ ΡΠ·Π΅Π» ΡΠΎΡΡΠΎΠΈΡ ΠΈΠ· ΡΡΡΠ±Ρ Π΄Π»ΠΈΠ½ΠΎΠΉ ΠΎΠΊΠΎΠ»ΠΎ 1 ΠΌ ΠΈ Π΄ΠΈΠ°ΠΌΠ΅ΡΡΠΎΠΌ 50 ΠΌΠΌ .
ΠΠΎ ΠΈΠ·Π±Π΅ΠΆΠ°Π½ΠΈΠ΅ Π·Π°ΡΠΎΡΠ΅Π½ΠΈΡ ΡΡΡΠ±Ρ ΠΏΠ΅ΡΡΠΎΡΠ°ΡΠΈΡ Π·Π°ΠΊΡΡΠ²Π°Π΅ΡΡΡ ΡΠ΅ΡΠΊΠΎΠΉ.
ΠΠ° Π½ΠΈΠΆΠ½Π΅ΠΌ ΠΊΠΎΠ½ΡΠ΅ ΠΏΡΠ΅Π΄ΡΡΠΌΠΎΡΡΠ΅Π½ΠΎ ΡΡΡΡΠΉΠ½ΠΎΠ΅ ΡΠΎΠΏΠ»ΠΎ. Π‘ΡΡΡΠΉΠ½ΠΎΠ΅ ΡΠΎΠΏΠ»ΠΎ ΡΠ°ΠΊΠΆΠ΅ Π΄Π΅ΠΉΡΡΠ²ΡΠ΅Ρ ΠΊΠ°ΠΊ ΠΏΡΠΈΠ²ΠΎΠ΄Π½Π°Ρ ΡΠΎΡΠΊΠ°. Π ΠΏΡΠΎΡΠ΅ΡΡΠ΅ ΡΡΡΠ°Π½ΠΎΠ²ΠΊΠΈ ΠΊΠΎΠ»ΠΎΠ΄ΡΠ° ΡΡΠ΄ΠΎΠΌ Ρ Π½ΠΈΠΆΠ½ΠΈΠΌ ΠΊΠΎΠ½ΡΠΎΠΌ ΡΡΡΠ°Π½Π°Π²Π»ΠΈΠ²Π°Π΅ΡΡΡ ΡΠ°ΡΠΎΠ²ΠΎΠΉ ΠΊΡΠ°Π½, ΠΊΠΎΡΠΎΡΡΠΉ ΠΏΠΎΠ·Π²ΠΎΠ»ΡΠ΅Ρ Π²ΠΎΠ΄Π΅ ΡΠ΅ΡΡ ΡΠΎΠ»ΡΠΊΠΎ Π² ΠΎΠ΄Π½ΠΎΠΌ Π½Π°ΠΏΡΠ°Π²Π»Π΅Π½ΠΈΠΈ.
Π Π½ΠΈΠΆΠ½Π΅ΠΌΡ ΠΊΠΎΠ½ΡΡ ΡΠΊΠ²Π°ΠΆΠΈΠ½Π½ΠΎΠΉ ΡΠΎΡΠΊΠΈ ΠΏΠΎΠ΄ΡΠΎΠ΅Π΄ΠΈΠ½ΡΠ΅ΡΡΡ ΡΡΠΎΡΠΊ ΡΠΎΠ³ΠΎ ΠΆΠ΅ Π΄ΠΈΠ°ΠΌΠ΅ΡΡΠ°, ΡΡΠΎ ΠΈ ΡΠΊΠ²Π°ΠΆΠΈΠ½Π½Π°Ρ ΡΠΎΡΠΊΠ°. ΠΠ° ΡΡΠΎΠ²Π½Π΅ Π·Π΅ΠΌΠ»ΠΈ ΡΡΠΎΡΠΊΠΈ ΡΠΎΠ΅Π΄ΠΈΠ½ΡΡΡΡΡ Ρ Π³ΠΎΡΠΈΠ·ΠΎΠ½ΡΠ°Π»ΡΠ½ΠΎΠΉ ΡΡΡΠ±ΠΎΠΉ, ΡΠ°ΠΊΠΆΠ΅ ΠΈΠ·Π²Π΅ΡΡΠ½ΠΎΠΉ ΠΊΠ°ΠΊ ΠΊΠΎΠ»Π»Π΅ΠΊΡΠΎΡΠ½Π°Ρ ΡΡΡΠ±Π°.
ΠΠ°ΡΠ΅ΠΌ Π½Π°ΡΠΎΡΠ½ΡΠΉ Π°Π³ΡΠ΅Π³Π°Ρ ΠΏΠΎΠ΄ΡΠΎΠ΅Π΄ΠΈΠ½ΡΠ΅ΡΡΡ ΠΊ ΠΊΠΎΠ»Π»Π΅ΠΊΡΠΎΡΡ. ΠΡΠΎΠΌΠ΅ΠΆΡΡΠΊΠΈ ΠΌΠ΅ΠΆΠ΄Ρ ΠΊΠΎΠ»ΠΎΠ΄ΡΠ°ΠΌΠΈ ΡΠΎΡΡΠ°Π²Π»ΡΡΡ ΠΎΡ 0,6 Π΄ΠΎ 1,5 ΠΌ . ΠΠΎΠ΄Π° ΠΏΠΎΠ΄Π°Π΅ΡΡΡ ΠΏΠΎ ΡΡΠΎΡΠΊΠ°ΠΌ Π² Π½Π°ΠΏΡΠ°Π²Π»Π΅Π½ΠΈΠΈ Π²Π½ΠΈΠ· ΠΏΡΠΈ ΡΡΡΠ°Π½ΠΎΠ²ΠΊΠ΅ ΠΈΠ³Π»ΠΎΡΠΈΠ»ΡΡΡΠ° Π½Π° Π½Π΅ΠΎΠ±Ρ ΠΎΠ΄ΠΈΠΌΠΎΠΉ Π³Π»ΡΠ±ΠΈΠ½Π΅.
ΠΠΎ Π·Π°Π²Π΅ΡΡΠ΅Π½ΠΈΡ Π·Π΅ΠΌΠ»ΡΠ½ΡΡ ΡΠ°Π±ΠΎΡ ΡΡΡΠ°Π½ΠΎΠ²Π»Π΅Π½Π½ΡΠΉ Π½Π°ΡΠΎΡ Π½Π΅ΠΏΡΠ΅ΡΡΠ²Π½ΠΎ ΡΠ°Π±ΠΎΡΠ°Π΅Ρ Π΄Π»Ρ ΡΠ΅Π³ΡΠ»ΠΈΡΠΎΠ²Π°Π½ΠΈΡ ΡΡΠΎΠ²Π½Ρ Π²ΠΎΠ΄Ρ.
Π’Π°ΠΊΠΆΠ΅ ΠΏΡΠΎΡΡΠΈΡΠ΅: Π Π°Π·Π½ΠΈΡΠ° ΠΌΠ΅ΠΆΠ΄Ρ ΠΎΡΠ½ΠΎΠ²Π°Π½ΠΈΠ΅ΠΌ ΠΈ ΡΡΠ½Π΄Π°ΠΌΠ΅Π½ΡΠΎΠΌ | Π§ΡΠΎ ΡΠ°ΠΊΠΎΠ΅ ΡΡΠ½Π΄Π°ΠΌΠ΅Π½Ρ ΠΈ ΡΡΠ½Π΄Π°ΠΌΠ΅Π½Ρ
#2. ΠΠ½ΠΎΠ³ΠΎΡΡΡΠΏΠ΅Π½ΡΠ°ΡΠ°Ρ ΡΠΈΡΡΠ΅ΠΌΠ° Well Point.

ΠΠ½ΠΎΠ³ΠΎΡΡΡΠΏΠ΅Π½ΡΠ°ΡΡΠ΅ ΠΈΠ³Π»ΠΎΡΠΈΠ»ΡΡΡΡ ΠΈΡΠΏΠΎΠ»ΡΠ·ΡΡΡΡΡ, Π΅ΡΠ»ΠΈ Π²ΡΠ΅ΠΌΠΊΠ° Π³ΡΡΠ½ΡΠ° ΠΏΡΠ΅Π²ΡΡΠ°Π΅Ρ 4,5 ΠΌ ΠΈ ΠΏΡΠΎΠΈΡΡ ΠΎΠ΄ΠΈΡ ΡΠ°Π·ΡΡΡΠ΅Π½ΠΈΠ΅ ΠΈΠ·-Π·Π° ΡΠΊΠ»ΠΎΠ½Π°. Π ΠΌΠ½ΠΎΠ³ΠΎΡΡΡΠΏΠ΅Π½ΡΠ°ΡΡΡ ΠΈΠ³Π»ΠΎΠΏΡΠΎΠ±ΠΈΠ²Π½ΡΡ ΡΠΈΡΡΠ΅ΠΌΠ°Ρ ΠΈΠ³Π»ΠΎΡΠΈΠ»ΡΡΡΡ ΡΡΡΠ°Π½Π°Π²Π»ΠΈΠ²Π°ΡΡΡΡ ΠΏΠΎΡΡΠ°ΠΏΠ½ΠΎ.
ΠΠ° ΠΏΠ΅ΡΠ²ΠΎΠΌ ΡΡΠ°ΠΏΠ΅ ΠΌΠΎΠ½ΡΠ°ΠΆΠ° ΡΠΊΠ²Π°ΠΆΠΈΠ½Π° ΡΡΡΠ°Π½Π°Π²Π»ΠΈΠ²Π°Π΅ΡΡΡ Π½Π° Π³Π»ΡΠ±ΠΈΠ½Π΅ ΠΎΠΊΠΎΠ»ΠΎ 4,5 ΠΌ ΠΈ ΠΏΡΠΈΠ²ΠΎΠ΄ΠΈΡΡΡ Π² Π΄Π΅ΠΉΡΡΠ²ΠΈΠ΅ Π΄ΠΎ ΡΡΠΎΠ²Π½Ρ Π³ΡΡΠ½ΡΠΎΠ²ΡΡ Π²ΠΎΠ΄ ΠΎΠΏΡΡΡΠΈΠ»ΠΈ ΠΏΡΠΈΠΌΠ΅ΡΠ½ΠΎ Π½Π° 4,5 ΠΌ.
ΠΠ°ΡΠ΅ΠΌ ΠΏΡΠΎΠΈΠ·Π²ΠΎΠ΄ΠΈΡΡΡ ΡΠ°ΡΠΊΠΎΠΏΠΊΠ° ΠΏΡΠΈΠ»Π΅Π³Π°ΡΡΠ΅ΠΉ ΡΠ΅ΡΡΠΈΡΠΎΡΠΈΠΈ Π΄ΠΎ Π³Π»ΡΠ±ΠΈΠ½Ρ 4,5 ΠΌ. ΠΠ°ΡΠ΅ΠΌ Π½Π° Π²ΡΠΎΡΠΎΠΌ ΡΡΠ°ΠΏΠ΅ ΡΡΡΠ°Π½ΠΎΠ²ΠΊΠΈ ΡΠΊΠ²Π°ΠΆΠΈΠ½Ρ ΡΡΡΠ°Π½Π°Π²Π»ΠΈΠ²Π°ΡΡΡΡ Π½Π° ΡΠΆΠ΅ Π²ΡΠΊΠΎΠΏΠ°Π½Π½ΠΎΠΌ ΡΡΠ°ΡΡΠΊΠ΅.
ΠΠ° ΡΡΠΎΠΌ ΡΡΠ°ΠΏΠ΅ ΡΡΠΎΠ²Π΅Π½Ρ Π³ΡΡΠ½ΡΠΎΠ²ΡΡ Π²ΠΎΠ΄ ΠΎΠΏΡΡΠΊΠ°Π΅ΡΡΡ Π΅ΡΠ΅ Π½Π° 4,5 ΠΌ.
Π’Π°ΠΊΠΆΠ΅ ΠΏΡΠΎΡΡΠΈΡΠ΅: ΡΡΠΎ ΡΠ°ΠΊΠΎΠ΅ ΡΠΎΠ½Π°Π»ΡΠ½Π°Ρ ΠΎΡΠ½ΠΎΠ²Π° | ΠΡΠΎΠ²Π°Π» Pad Foundation | ΠΠ΅ΡΠ°Π»Ρ ΠΏΠΎΠ΄ΡΡΠΊΠΈ ΡΡΠ½Π΄Π°ΠΌΠ΅Π½ΡΠ° | Π’ΠΈΠΏΡ ΡΡΠ½Π΄Π°ΠΌΠ΅Π½ΡΠ½ΡΡ ΠΏΠΎΠ΄ΡΡΠ΅ΠΊ | Π Π°ΡΡΠ΅Ρ Π±Π»ΠΎΡΠ½ΠΎΠ³ΠΎ ΡΡΠ½Π΄Π°ΠΌΠ΅Π½ΡΠ° Π·Π°Π²ΠΈΡΠΈΡ ΠΎΡ Π½Π΅ΡΠΊΠΎΠ»ΡΠΊΠΈΡ ΡΠ°ΠΊΡΠΎΡΠΎΠ²
Π‘ΠΈΡΡΠ΅ΠΌΠ° ΠΎΡΡΡΠ΅Π½ΠΈΡ ΡΠΊΠ²Π°ΠΆΠΈΠ½
ΠΠ° Π·Π΅ΠΌΠ»ΡΠ½ΡΡ
ΡΠ°Π±ΠΎΡΠ°Ρ
ΠΏΡΠΎΡΡΡΠΌ, Π½ΠΎ ΡΡΡΠ΅ΠΊΡΠΈΠ²Π½ΡΠΌ ΠΌΠ΅ΡΠΎΠ΄ΠΎΠΌ ΡΠ½ΠΈΠΆΠ΅Π½ΠΈΡ ΡΡΠΎΠ²Π½Ρ Π³ΡΡΠ½ΡΠΎΠ²ΡΡ
Π²ΠΎΠ΄ ΡΠ²Π»ΡΠ΅ΡΡΡ ΠΎΡΡΡΠ΅Π½ΠΈΠ΅ ΡΠΊΠ²Π°ΠΆΠΈΠ½.
Π ΡΠΈΡΡΠ΅ΠΌΠ΅ Π²ΠΎΠ΄ΠΎΠΎΡΠ²Π΅Π΄Π΅Π½ΠΈΡ ΡΠΊΠ²Π°ΠΆΠΈΠ½ ΠΈΠΌΠ΅Π΅ΡΡΡ ΠΌΠ½ΠΎΠΆΠ΅ΡΡΠ²ΠΎ ΡΠ΅ΡΠΈΠΉ Π½Π΅Π³Π»ΡΠ±ΠΎΠΊΠΈΡ
ΠΊΠΎΠ»ΠΎΠ΄ΡΠ΅Π², ΡΠ°ΠΊΠΆΠ΅ ΠΈΠ·Π²Π΅ΡΡΠ½ΡΡ
ΠΊΠ°ΠΊ ΡΠΊΠ²Π°ΠΆΠΈΠ½Ρ, ΠΊΠΎΡΠΎΡΡΠ΅ ΡΡΡΠ°Π½Π°Π²Π»ΠΈΠ²Π°ΡΡΡΡ Π½Π° Π·Π°Π΄Π°Π½Π½ΠΎΠΉ Π³Π»ΡΠ±ΠΈΠ½Π΅ ΠΈ Π½Π° ΡΠΎΠΎΡΠ²Π΅ΡΡΡΠ²ΡΡΡΠ΅ΠΌ ΡΠ°ΡΡΡΠΎΡΠ½ΠΈΠΈ ΠΏΠΎ Π²ΡΠ΅ΠΌΡ ΠΌΠ΅ΡΡΡ ΡΠ°ΡΠΊΠΎΠΏΠΎΠΊ.
ΠΡΠ΅ ΡΡΠ΄Ρ ΡΠΊΠ²Π°ΠΆΠΈΠ½Π½ΡΡ ΡΠΎΡΠ΅ΠΊ ΡΠΎΠ΅Π΄ΠΈΠ½Π΅Π½Ρ Ρ ΠΏΠΎΠ²Π΅ΡΡ Π½ΠΎΡΡΡΡ ΡΠ΅ΡΠ΅Π· ΡΡΠΎΡΠΊ, ΠΊΠΎΡΠΎΡΡΠΉ, Π² ΡΠ²ΠΎΡ ΠΎΡΠ΅ΡΠ΅Π΄Ρ, ΡΠΎΠ΅Π΄ΠΈΠ½ΡΠ΅ΡΡΡ Ρ ΠΎΠ±ΡΠ΅ΠΉ ΠΌΠ°Π³ΠΈΡΡΡΠ°Π»ΡΠ½ΠΎΠΉ ΡΡΡΠ±ΠΎΠΉ ΡΠ΅ΡΠ΅Π· Π³ΠΈΠ±ΠΊΡΡ Π΄ΡΠ³Ρ.
ΠΠΈΠ±ΠΊΠ°Ρ Π΄ΡΠ³Π°, Π²ΡΡΡΠΎΠ΅Π½Π½Π°Ρ Π² Π½Π°ΠΏΠΎΡΠ½ΡΡ ΡΡΡΠ±Ρ, Π΄Π΅ΠΉΡΡΠ²ΡΠ΅Ρ ΠΊΠ°ΠΊ ΡΠ΅Π³ΡΠ»ΠΈΡΡΠ΅ΠΌΡΠΉ Π²ΡΡΠ°Π²Π½ΠΎΠΉ ΠΊΠ»Π°ΠΏΠ°Π½, ΠΊΠΎΡΠΎΡΡΠΉ ΠΏΠΎΠ·Π²ΠΎΠ»ΡΠ΅Ρ ΠΊΠΎΠ½ΡΡΠΎΠ»ΠΈΡΠΎΠ²Π°ΡΡ ΠΏΠΎΠ΄Π°ΡΡ Π²ΠΎΠ΄Ρ ΠΈ Π²ΠΎΠ·Π΄ΡΡ Π° Π² ΡΠΈΡΡΠ΅ΠΌΡ ΠΈΠ³Π»ΠΎΡΠΈΠ»ΡΡΡΠ°. ΠΡΠΎ Π½Π°Π·ΡΠ²Π°Π΅ΡΡΡ ΠΎΠ±ΡΠ΅Π·ΠΊΠΎΠΉ ΠΈ Π΄Π°Π΅Ρ ΡΠ΅ΡΠΊΠΎΠ΅ ΠΏΡΠ΅Π΄ΡΡΠ°Π²Π»Π΅Π½ΠΈΠ΅ ΠΎ ΡΠΎΠΌ, ΡΡΠΎ ΠΏΠ΅ΡΠ΅ΠΊΠ°ΡΠΈΠ²Π°Π΅ΡΡΡ.
ΠΠΎΠ»Π»Π΅ΠΊΡΠΎΡ ΡΠΈΡΡΠ΅ΠΌΡ ΠΈΠ³Π»ΠΎΡΠΈΠ»ΡΡΡΠ° ΡΠΎΠ΅Π΄ΠΈΠ½Π΅Π½ Ρ Π²ΠΎΠ΄ΠΎΠΎΡΠ»ΠΈΠ²Π½ΡΠΌ Π½Π°ΡΠΎΡΠΎΠΌ ΠΈΠ³Π»ΠΎΡΠΈΠ»ΡΡΡΠ°, ΠΊΠΎΡΠΎΡΡΠΉ ΠΏΠ΅ΡΠ΅ΠΊΠ°ΡΠΈΠ²Π°Π΅Ρ Π²ΠΎΠ΄Ρ ΠΈ ΡΠ±ΡΠ°ΡΡΠ²Π°Π΅Ρ Π΅Π΅ Π² ΡΠΊΠ°Π·Π°Π½Π½ΡΡ ΡΠΎΡΠΊΡ.
Π’Π°ΠΊΠΆΠ΅ ΠΏΡΠΎΡΡΠΈΡΠ΅: ΠΠ°ΠΊΠΎΠΉ ΡΡΠ½Π΄Π°ΠΌΠ΅Π½Ρ Π»ΡΡΡΠ΅ Π²ΡΠ΅Π³ΠΎ ΠΏΠΎΠ΄Ρ ΠΎΠ΄ΠΈΡ Π΄Π»Ρ Π΄ΠΎΠΌΠ° | Π’ΠΈΠΏΡ ΡΡΠ½Π΄Π°ΠΌΠ΅Π½ΡΠΎΠ² Π΄ΠΎΠΌΠΎΠ² | ΠΠ°ΠΊ ΠΏΠΎΡΡΡΠΎΠΈΡΡ ΡΡΠ½Π΄Π°ΠΌΠ΅Π½Ρ Π΄ΠΎΠΌΠ° Β» Π²ΠΈΠΊΠΈ ΠΏΠΎΠ»Π΅Π·Π½ΠΎ ΠΠ°ΠΊΠΎΠΉ ΡΠ°ΠΌΡΠΉ ΠΏΡΠΎΡΠ½ΡΠΉ ΡΡΠ½Π΄Π°ΠΌΠ΅Π½Ρ Π΄Π»Ρ Π΄ΠΎΠΌΠ°
ΠΠΠ₯ ΠΈΠ³Π»ΠΎΡΠΈΠ»ΡΡΡΡ
ΠΠΠ₯ ΠΈΠ³Π»ΠΎΡΠΈΠ»ΡΡΡΡ ΠΏΡΠ΅Π΄ΡΡΠ°Π²Π»ΡΡΡ ΡΠΎΠ±ΠΎΠΉ ΡΠΊΠΎΠ½ΠΎΠΌΠΈΡΠ½ΡΠ΅ ΠΈΠ³Π»ΠΎΡΠΈΠ»ΡΡΡΡ, ΠΊΠΎΡΠΎΡΡΠ΅ ΠΈΡΠΏΠΎΠ»ΡΠ·ΡΡΡΡΡ, ΠΊΠΎΠ³Π΄Π° ΡΡΡΡΠΉΠ½ΡΠΉ ΡΡΠ΅ΡΠΆΠ΅Π½Ρ ΠΈΠ»ΠΈ ΠΊΠΎΡΠΏΡΡ ΠΏΠ΅ΡΡΠΎΡΠ°ΡΠΎΡΠ° ΠΏΠΎΠ²ΡΠΎΡΠ½ΠΎ ΠΈΡΠΏΠΎΠ»ΡΠ·ΡΡΡΡΡ Π² ΠΈΠ³Π»ΠΎΡΠΈΠ»ΡΡΡΠ΅.
Π£ΡΡΡΠ΅Π²ΠΎΠΉ ΡΡΠΎΡΠΊ ΠΌΠΎΠΆΠ½ΠΎ Π²ΡΡΠ°ΡΠΈΡΡ ΠΈ ΠΈΡΠΏΠΎΠ»ΡΠ·ΠΎΠ²Π°ΡΡ ΠΏΠΎΠ²ΡΠΎΡΠ½ΠΎ, ΠΏΠΎΡΠΊΠΎΠ»ΡΠΊΡ ΠΈΡΠΏΠΎΠ»ΡΠ·ΡΠ΅ΡΡΡ Π²Π½ΡΡΡΠ΅Π½Π½ΡΡ ΡΠΊΠΎΠ»ΡΠ·ΡΡΠ°Ρ ΠΌΡΡΡΠ°.
ΠΠ»Ρ ΡΠΎΠ·Π΄Π°Π½ΠΈΡ ΠΈΠ³Π»ΠΎΡΠΈΠ»ΡΡΡΠ°, ΠΎΠ±Π΅ΡΠΏΠ΅ΡΠΈΠ²Π°ΡΡΠ΅Π³ΠΎ ΠΌΠ°ΠΊΡΠΈΠΌΠ°Π»ΡΠ½ΡΠΉ ΠΏΠΎΡΠΎΠΊ Π²ΠΎΠ΄Ρ ΠΏΡΠΈ ΠΌΠΈΠ½ΠΈΠΌΠ°Π»ΡΠ½ΠΎΠΌ ΠΏΡΠΎΡ ΠΎΠΆΠ΄Π΅Π½ΠΈΠΈ ΠΌΠ΅Π»ΠΊΠΎΠ΄ΠΈΡΠΏΠ΅ΡΡΠ½ΠΎΠ³ΠΎ ΠΌΠ°ΡΠ΅ΡΠΈΠ°Π»Π°, ΠΈΡΠΏΠΎΠ»ΡΠ·ΡΠ΅ΡΡΡ ΠΏΡΠ΅ΡΠΈΠ·ΠΈΠΎΠ½Π½Π°Ρ ΠΏΡΠΎΡΠ΅Π·Ρ ΠΏΠ»Π°ΡΡΠΈΠΊΠΎΠ²ΡΡ ΡΡΡΠ± ΠΈΠ· ΠΠΠ₯. ΠΡΠΎΡ ΠΏΠ»Π°ΡΡΠΈΠΊΠΎΠ²ΡΠΉ ΡΠΊΡΠ°Π½ ΠΈΠ· ΠΠΠ₯ ΡΠ°ΠΌΠΎΠΎΡΠΈΡΠ°Π΅ΡΡΡ ΠΏΡΡΠ΅ΠΌ ΠΎΠ±ΡΠ°ΡΠ½ΠΎΠΉ ΠΏΡΠΎΠΌΡΠ²ΠΊΠΈ Π²ΠΎ Π²ΡΠ΅ΠΌΡ ΠΏΡΠΎΠΌΡΠ²ΠΊΠΈ.
ΠΠ³Π»ΠΎΡΠΈΠ»ΡΡΡ ΠΈΠ· ΠΠΠ₯ ΠΏΠΎΠ»Π½ΠΎΡΡΡΡ ΠΏΡΠ΅Π΄ΠΎΡΠ²ΡΠ°ΡΠ°Π΅Ρ Π·Π°ΡΠΎΡΠ΅Π½ΠΈΠ΅ ΠΈΠ·-Π·Π° ΠΊΠΎΡΡΠΎΠ·ΠΈΠΈ ΠΈΠ»ΠΈ ΠΈΠ·Π½ΠΎΡΠ° Π² ΡΠ΅Π·ΡΠ»ΡΡΠ°ΡΠ΅ ΡΠ»Π΅ΠΊΡΡΠΎΠ»ΠΈΡΠΈΡΠ΅ΡΠΊΠΎΠ³ΠΎ Π²ΠΎΠ·Π΄Π΅ΠΉΡΡΠ²ΠΈΡ. ΠΠ°ΠΊΡΠΈΠΌΠ°Π»ΡΠ½Π°Ρ ΠΏΡΠΎΡΠ°Π΄ΠΊΠ° ΠΌΠΎΠΆΠ΅Ρ Π±ΡΡΡ Π΄ΠΎΡΡΠΈΠ³Π½ΡΡΠ° Ρ ΠΏΠΎΠΌΠΎΡΡΡ Π΄ΠΎΠΏΠΎΠ»Π½ΠΈΡΠ΅Π»ΡΠ½ΠΎΠΉ Π²Π½ΡΡΡΠ΅Π½Π½Π΅ΠΉ ΡΡΡΠ±Ρ.
Π’Π°ΠΊΠΆΠ΅ ΠΏΡΠΎΡΡΠΈΡΠ΅:Β Π§ΡΠΎ ΡΠ°ΠΊΠΎΠ΅ ΠΏΠ»Π°Π²ΡΡΠΈΠΉ ΡΡΠ½Π΄Π°ΠΌΠ΅Π½Ρ | ΠΡΠΈΠ³ΠΎΠ΄Π½ΠΎΡΡΡ ΠΏΠ»Π°Π²Π°ΡΡΠ΅Π³ΠΎ ΡΡΠ½Π΄Π°ΠΌΠ΅Π½ΡΠ° | ΠΡΠ΅ΠΈΠΌΡΡΠ΅ΡΡΠ²Π° ΠΈ Π½Π΅Π΄ΠΎΡΡΠ°ΡΠΊΠΈ ΠΏΠ»Π°Π²ΡΡΠ΅Π³ΠΎ ΡΠΎΠ½Π΄Π° | ΠΠ°ΠΊ ΠΏΠΎΡΡΡΠΎΠΈΡΡ ΡΡΠ½Π΄Π°ΠΌΠ΅Π½Ρ ΠΏΠ»Π°Π²ΡΡΠ΅Π³ΠΎ Π΄ΠΎΠΌΠ°
Π£ΡΡΠ°Π½ΠΎΠ²ΠΊΠ° ΡΠΈΡΡΠ΅ΠΌΡ ΠΈΠ³Π»ΠΎΡΠΈΠ»ΡΡΡΠΎΠ²
Π£ΡΡΠ°Π½ΠΎΠ²ΠΊΠ° ΠΈΠ³Π»ΠΎΡΠΈΠ»ΡΡΡΠΎΠ²
Π‘ΡΡΡΠΉΠ½ΡΠ΅ Π½Π°ΡΠΎΡΡ Π²ΡΡΠΎΠΊΠΎΠ³ΠΎ Π΄Π°Π²Π»Π΅Π½ΠΈΡ ΠΈΡΠΏΠΎΠ»ΡΠ·ΡΡΡΡΡ Π² ΠΏΡΠΎΡΠ΅ΡΡΠ΅ ΡΡΡΠ°Π½ΠΎΠ²ΠΊΠΈ ΡΠ°ΠΌΠΎΠ½Π°Π³Π½Π΅ΡΠ°ΡΠ΅Π»ΡΠ½ΡΡ
ΡΠΊΠ²Π°ΠΆΠΈΠ½ ΠΈ ΡΡΡΠ°Π½ΠΎΠ²ΠΊΠΈ ΡΡΡΠ±, ΠΊΠΎΡΠΎΡΡΠ΅ ΠΈΡΠΏΠΎΠ»ΡΠ·ΡΡΡΡΡ Π² ΠΎΠ΄Π½ΠΎΡΠ°Π·ΠΎΠ²ΡΡ
ΡΠΊΠ²Π°ΠΆΠΈΠ½Π½ΡΡ
ΡΠΎΡΠΊΠ°Ρ
.
Π‘ΡΡΡΠΉΠ½ΡΠΉ Π½Π°ΡΠΎΡ, Π½Π°ΠΈΠ±ΠΎΠ»Π΅Π΅ ΡΠ°ΡΡΠΎ ΠΈΡΠΏΠΎΠ»ΡΠ·ΡΠ΅ΠΌΡΠΉ Π² ΡΠΈΡΡΠ΅ΠΌΠ΅ ΠΈΠ³Π»ΠΎΡΠΈΠ»ΡΡΡΠΎΠ², ΠΏΠΎΠ΄Π°Π΅Ρ Π²ΠΎΠ΄Ρ ΡΠ΅ΡΠ΅Π· Π²ΠΎΠ΄ΠΎΡΡΡΡΠΉΠ½ΡΠ΅ ΡΠ»Π°Π½Π³ΠΈ ΡΠΎ ΡΠΊΠΎΡΠΎΡΡΡΡ ΠΎΠΊΠΎΠ»ΠΎ 20 Π»/Ρ ΠΈ ΠΏΠΎΠ΄ Π΄Π°Π²Π»Π΅Π½ΠΈΠ΅ΠΌ ΠΎΡ 6 Π΄ΠΎ 8 Π±Π°Ρ .
Π‘ΡΠ°Π½Π΄Π°ΡΡΠ½ΡΠΉ ΠΏΠΎΠΆΠ°ΡΠ½ΡΠΉ ΡΠ»Π°Π½Π³ Π΄ΠΈΠ°ΠΌΠ΅ΡΡΠΎΠΌ 63 ΠΌΠΌ ΠΎΠ±ΡΡΠ½ΠΎ ΡΠΎΠ΅Π΄ΠΈΠ½ΡΠ΅ΡΡΡ Ρ Π³ΠΈΠ±ΠΊΠΈΠΌΠΈ ΡΡΡΡΠΉΠ½ΡΠΌΠΈ ΡΠ»Π°Π½Π³Π°ΠΌΠΈ Ρ ΠΏΠΎΠΌΠΎΡΡΡ Π±ΡΡΡΡΠΎΡΠ°Π·ΡΠ΅ΠΌΠ½ΡΡ ΡΡΠ΅ΠΊΠ΅ΡΠ½ΡΡ ΠΈ Π³Π½Π΅Π·Π΄ΠΎΠ²ΡΡ ΡΠΎΠ΅Π΄ΠΈΠ½ΠΈΡΠ΅Π»Π΅ΠΉ. ΠΠ»Ρ ΡΡΠΆΠ΅Π»ΡΡ ΡΡΠ»ΠΎΠ²ΠΈΠΉ ΡΠΊΡΠΏΠ»ΡΠ°ΡΠ°ΡΠΈΠΈ, ΡΠ°ΠΊΠΈΡ ΠΊΠ°ΠΊ ΠΏΠ΅ΡΡΠΎΡΠ°ΡΠΎΡ ΠΈ Π±ΡΡΠ΅Π½ΠΈΠ΅ ΡΠ²Π°ΠΉ, ΡΠ°ΡΡΠΎ ΠΈΡΠΏΠΎΠ»ΡΠ·ΡΡΡΡΡ Π΄ΡΡΠ³ΠΈΠ΅, Π±ΠΎΠ»Π΅Π΅ ΠΌΠΎΡΠ½ΡΠ΅ Π½Π°ΡΠΎΡΡ ΠΈ ΡΠ»Π°Π½Π³ΠΈ.
Π’Π°ΠΊΠΆΠ΅ ΠΏΡΠΎΡΡΠΈΡΠ΅:Β Π§ΡΠΎ ΡΠ°ΠΊΠΎΠ΅ Grade Beam | Π§ΡΠΎ ΡΠ°ΠΊΠΎΠ΅ Π€ΠΎΠ½Π΄ Grade Beam | ΠΡΠΎΡΠ΅ΡΡ ΡΡΡΠΎΠΈΡΠ΅Π»ΡΡΡΠ²Π° Π½Π°ΠΊΠ»ΠΎΠ½Π½ΠΎΠΉ Π±Π°Π»ΠΊΠΈ | ΠΡΠ΅ΠΈΠΌΡΡΠ΅ΡΡΠ²Π° ΠΈ Π½Π΅Π΄ΠΎΡΡΠ°ΡΠΊΠΈ Π½Π°ΠΊΠ»ΠΎΠ½Π½ΠΎΠΉ Π±Π°Π»ΠΊΠΈ
Π£ΡΡΡΠ΅Π²Π°Ρ ΡΠΎΡΠΊΠ° Π΄Π»Ρ Π½Π΅Π³Π»ΡΠ±ΠΎΠΊΠΎΠ³ΠΎ ΠΊΠΎΠ»ΠΎΠ΄ΡΠ°
Π Ρ
ΠΎΡΠΎΡΠ΅ΠΌ ΡΠΎΡΡΠΎΡΠ½ΠΈΠΈ Π²ΠΎΠ΄Π° ΠΌΠΎΠΆΠ΅Ρ Π±ΡΡΡ ΠΈΠ·Π²Π»Π΅ΡΠ΅Π½Π° ΠΈΠ· Π½Π΅Π³Π»ΡΠ±ΠΎΠΊΠΎΠΉ ΡΠΊΠ²Π°ΠΆΠΈΠ½Ρ Ρ ΠΌΠ°ΠΊΡΠΈΠΌΠ°Π»ΡΠ½ΠΎΠΉ Π³Π»ΡΠ±ΠΈΠ½ΠΎΠΉ 25 Π΄ΡΠΉΠΌΠΎΠ² . ΠΠΎΠ»ΠΎΠ΄Π΅Ρ, ΠΊΠΎΡΠΎΡΡΠΉ ΠΈΡΠΏΠΎΠ»ΡΠ·ΡΠ΅ΡΡΡ Π² Π½Π΅Π³Π»ΡΠ±ΠΎΠΊΠΎΠΌ ΠΊΠΎΠ»ΠΎΠ΄ΡΠ΅, ΠΎΠ±ΡΡΠ½ΠΎ Π½Π΅ ΠΈΡΠΏΠΎΠ»ΡΠ·ΡΠ΅ΡΡΡ Π² ΠΊΠ°ΡΠ΅ΡΡΠ²Π΅ Ρ
ΠΎΡΠΎΡΠ΅Π³ΠΎ ΠΈΡΡΠΎΡΠ½ΠΈΠΊΠ° ΠΏΠΈΡΡΠ΅Π²ΠΎΠΉ Π²ΠΎΠ΄Ρ.
ΠΠ΅Π³Π»ΡΠ±ΠΎΠΊΠΈΠΉ ΠΊΠΎΠ»ΠΎΠ΄Π΅Ρ ΡΠ°ΡΡΠΎ ΠΏΠΎΠ΄Π²Π΅ΡΠ³Π°Π΅ΡΡΡ ΡΠ°ΠΊΠΈΠΌ ΠΎΠΏΠ°ΡΠ½ΠΎΡΡΡΠΌ, ΠΊΠ°ΠΊ Π·Π°Π³ΡΡΠ·Π½Π΅Π½ΠΈΠ΅ ΡΠ΄ΠΎΠ±ΡΠ΅Π½ΠΈΡΠΌΠΈ ΠΈ ΠΎΡΡ ΠΎΠ΄Π°ΠΌΠΈ ΠΆΠΈΠ²ΠΎΡΠ½ΠΎΠ²ΠΎΠ΄ΡΡΠ²Π°, ΠΈ ΠΈΠ½ΠΎΠ³Π΄Π° ΡΡΠ°Π½ΠΎΠ²ΠΈΡΡΡ ΡΡΡ ΠΈΠΌ ΠΊΠΎΠ»ΠΎΠ΄ΡΠ΅ΠΌ. ΠΡΠ»ΠΈ ΠΊΠΎΠ»ΠΎΠ΄Π΅Ρ Π΄ΠΎΠ»ΠΆΠ΅Π½ ΠΈΡΠΏΠΎΠ»ΡΠ·ΠΎΠ²Π°ΡΡΡΡ Π² ΠΊΠ°ΡΠ΅ΡΡΠ²Π΅ ΠΈΡΡΠΎΡΠ½ΠΈΠΊΠ° ΠΏΠΈΡΡΠ΅Π²ΠΎΠΉ Π²ΠΎΠ΄Ρ, ΡΠ»Π΅Π΄ΡΠ΅Ρ ΠΎΠ±ΡΠ°ΡΠΈΡΡΡΡ ΠΊ ΠΈΡ ΠΏΡΠΈΠΌΠ΅Π½ΠΈΠΌΡΠΌ ΠΌΠ΅ΡΡΠ½ΡΠΌ Π½ΠΎΡΠΌΠ°ΠΌ Π΄Π»Ρ ΠΊΠΎΠ»ΠΎΠ΄ΡΠ΅Π² ΠΈ ΡΠ°Π½ΡΠ΅Ρ Π½ΠΈΠΊΠΈ.
Π§ΡΠΎΠ±Ρ ΡΠ±Π΅Π΄ΠΈΡΡΡΡ, ΡΡΠΎ Π²ΠΎΠ΄Π° Π±Π΅Π·ΠΎΠΏΠ°ΡΠ½Π° Π΄Π»Ρ ΠΏΠΈΡΡΡ, Π½Π΅ΠΎΠ±Ρ ΠΎΠ΄ΠΈΠΌΡ ΡΠ΅Π³ΡΠ»ΡΡΠ½ΡΠ΅ ΠΏΡΠΎΠ²Π΅ΡΠΊΠΈ.
Π’Π°ΠΊΠΆΠ΅ ΡΠΈΡΠ°ΠΉΡΠ΅: Π‘ΡΡΠΏΠ΅Π½ΡΠ°ΡΡΠΉ ΡΡΠ½Π΄Π°ΠΌΠ΅Π½Ρ | Π€ΡΠ½Π΄Π°ΠΌΠ΅Π½Ρ Π΄ΠΎΠΌΠ° Π½Π° ΡΠΊΠ»ΠΎΠ½Π΅ | ΠΠ°ΠΊ Π²ΠΎΠ·Π²Π΅ΡΡΠΈ ΡΡΠ½Π΄Π°ΠΌΠ΅Π½Ρ Π½Π° ΡΠΊΠ»ΠΎΠ½Π΅
ΠΡΠΈΠΌΠ΅Π½Π΅Π½ΠΈΠ΅ ΡΠΈΡΡΠ΅ΠΌΡ ΡΠΊΠ²Π°ΠΆΠΈΠ½
ΠΠ° ΡΠ»Π΅Π΄ΡΡΡΠΈΡ ΡΡΡΠΎΠΈΡΠ΅Π»ΡΠ½ΡΡ ΠΈΠ»ΠΈ ΠΏΡΠΎΠ΅ΠΊΡΠ½ΡΡ ΠΏΠ»ΠΎΡΠ°Π΄ΠΊΠ°Ρ ΠΌΠΎΠΆΠ½ΠΎ ΠΈΡΠΏΠΎΠ»ΡΠ·ΠΎΠ²Π°ΡΡ ΡΠΈΡΡΠ΅ΠΌΡ ΡΠΊΠ²Π°ΠΆΠΈΠ½,
- ΠΠΈΠ΄ΡΠΎΠΏΡΠΎΠ΅ΠΊΡΡ
- ΠΡΠΎΠ΅ΠΊΡΡ Π²ΠΎΠ΄ΠΎΡΠ½Π°Π±ΠΆΠ΅Π½ΠΈΡ
- ΠΠ΅Π»ΠΈΠΎΡΠ°ΡΠΈΠ²Π½ΡΠ΅ ΠΏΡΠΎΠ΅ΠΊΡΡ
- Π‘ΡΡΠΎΠΈΡΠ΅Π»ΡΡΡΠ²ΠΎ ΠΊΠ°Π½Π°Π»ΠΎΠ²
- ΠΠΎΠ½ΡΡΡΡΠΊΡΠΈΠΈ ΡΠ΅ΠΏΠ»ΠΎΠ²ΡΡ ΡΠ»Π΅ΠΊΡΡΠΎΡΡΠ°Π½ΡΠΈΠΉ Ρ Π½Π΅Π³Π»ΡΠ±ΠΎΠΊΠΈΠΌ ΡΡΠ½Π΄Π°ΠΌΠ΅Π½ΡΠΎΠΌ
- Π‘ΡΡΠΎΠΈΡΠ΅Π»ΡΡΡΠ²ΠΎ ΠΏΠΎΠ΄Π·Π΅ΠΌΠ½ΡΡ ΡΠ΅Π·Π΅ΡΠ²ΡΠ°ΡΠΎΠ²
- Π‘ΡΡΠΎΠΈΡΠ΅Π»ΡΡΡΠ²ΠΎ ΠΌΠΎΡΡΠΎΠ²
- ΠΡΠ΅ΠΌΠΊΠ° ΡΡΠ½Π΄Π°ΠΌΠ΅Π½ΡΠ° ΠΏΠΎΠ΄ ΡΡΡΠΎΠΈΡΠ΅Π»ΡΡΡΠ²ΠΎ
- Π‘ΡΡΠΎΠΈΡΠ΅Π»ΡΡΡΠ²ΠΎ ΠΏΠΎΠ΄Π²Π°Π»Π°
- ΠΡΠΎΠΊΠ»Π°Π΄ΠΊΠ° Π³Π»ΡΠ±ΠΎΠΊΠΈΡ ΠΊΠ°Π½Π°Π»ΠΈΠ·Π°ΡΠΈΠΎΠ½Π½ΡΡ Π»ΠΈΠ½ΠΈΠΉ
- Π’ΠΎΠ½Π½Π΅Π»ΡΠ½ΡΠ΅ ΡΠ°Π±ΠΎΡΡ
- Π‘ΡΡΠΎΠΈΡΠ΅Π»ΡΡΡΠ²ΠΎ ΠΌΠ΅ΡΡΠΎΠΏΠΎΠ»ΠΈΡΠ΅Π½ΠΎΠ²
ΠΡΠ΅ΠΈΠΌΡΡΠ΅ΡΡΠ²Π° ΡΠΈΡΡΠ΅ΠΌΡ ΠΈΠ³Π»ΠΎΡΠΈΠ»ΡΡΡΠΎΠ²
- ΠΠΈΠΆΠ΅ ΠΏΡΠΈΠ²Π΅Π΄Π΅Π½Ρ ΡΠ½ΠΈΠΊΠ°Π»ΡΠ½ΡΠ΅ ΠΏΡΠ΅ΠΈΠΌΡΡΠ΅ΡΡΠ²Π° ΡΠΈΡΡΠ΅ΠΌΡ ΠΈΠ³Π»ΠΎΡΠΈΠ»ΡΡΡΠΎΠ², Π±Π»Π°Π³ΠΎΠ΄Π°ΡΡ ΠΊΠΎΡΠΎΡΡΠΌ ΡΡΠΎΡ ΠΌΠ΅ΡΠΎΠ΄ ΠΎΠ±ΡΡΠ½ΠΎ ΠΏΡΠ΅Π΄ΠΏΠΎΡΡΠΈΡΠ΅Π»ΡΠ½Π΅Π΅ Π΄ΡΡΠ³ΠΈΡ ΠΌΠ΅ΡΠΎΠ΄ΠΎΠ² ΠΎΠ±Π΅Π·Π²ΠΎΠΆΠΈΠ²Π°Π½ΠΈΡ;
- Π£ΠΏΡΠ°Π²Π»Π΅Π½ΠΈΠ΅ ΠΏΠΎΠ΄Π·Π΅ΠΌΠ½ΡΠΌΠΈ Π²ΠΎΠ΄Π°ΠΌΠΈ: Β ΠΡΠ½ΠΎΠ²Π½ΠΎΠΉ ΡΠ΅Π»ΡΡ Π»ΡΠ±ΠΎΠΉ ΠΏΡΠ°ΠΊΡΠΈΠΊΠΈ ΠΎΠ±Π΅Π·Π²ΠΎΠΆΠΈΠ²Π°Π½ΠΈΡ ΡΠ²Π»ΡΠ΅ΡΡΡΒ ΠΎΠΏΡΡΠΊΠ°Π½ΠΈΠ΅ ΡΡΠΎΠ²Π½Ρ Π³ΡΡΠ½ΡΠΎΠ²ΡΡ
Π²ΠΎΠ΄ Β Π½ΠΈΠΆΠ΅ ΡΠ°Π±ΠΎΡΠ΅ΠΉ ΠΏΠ»Π°ΡΡΠΎΡΠΌΡ ΠΈ ΠΏΠΎΠ΄Π΄Π΅ΡΠΆΠ°Π½ΠΈΠ΅ ΠΏΠΎΠ½ΠΈΠΆΠ΅Π½Π½ΠΎΠ³ΠΎ ΡΡΠΎΠ²Π½Ρ Π² ΡΠ΅ΡΠ΅Π½ΠΈΠ΅Β ΠΏΠ΅ΡΠΈΠΎΠ΄Π° ΠΎΠ±Π΅Π·Π²ΠΎΠΆΠΈΠ²Π°Π½ΠΈΡ .

- ΠΠ±Π»Π°ΡΡΡ ΠΏΡΠΈΠΌΠ΅Π½Π΅Π½ΠΈΡ: ΠΠ³Π»ΠΎΠΏΡΠΎΠ±ΠΈΠ²Π½Π°Ρ ΡΠΈΡΡΠ΅ΠΌΠ° ΠΎΠ±ΡΡΠ½ΠΎ Π½Π°ΠΈΠ±ΠΎΠ»Π΅Π΅ ΡΡΡΠ΅ΠΊΡΠΈΠ²Π½Π°, ΡΡΠΎΠ±Ρ ΠΏΠΎΠΊΡΡΡΡ Π±ΠΎΠ»ΡΡΡΡ ΠΏΠ»ΠΎΡΠ°Π΄Ρ Π·Π΅ΠΌΠ»ΠΈ Β , ΡΠ΅ΠΌ Π΄ΡΡΠ³ΠΈΠ΅, ΠΏΠΎΡΠΊΠΎΠ»ΡΠΊΡ ΡΡΠ° ΡΠΈΡΡΠ΅ΠΌΠ° ΠΏΠΎΠΊΡΡΠ²Π°Π΅Ρ Π±ΠΎΠ»ΡΡΡΡ ΠΏΠ»ΠΎΡΠ°Π΄Ρ Ρ ΠΏΠΎΡΡΠΎΡΠ½Π½ΠΎΠΉ ΠΏΡΠΎΠΈΠ·Π²ΠΎΠ΄ΠΈΡΠ΅Π»ΡΠ½ΠΎΡΡΡΡ 100 ΠΌ 3 /Ρ Π²ΠΎΠ΄Ρ, Π²ΠΎΠ·Π΄ΡΡ Π° ΠΈΠ»ΠΈ Π²ΠΎΠ΄Ρ, Π° Π²ΠΎΠ·Π΄ΡΡΠ½Π°Ρ ΡΠΌΠ΅ΡΡ Π½Π°Π³Π½Π΅ΡΠ°Π΅ΡΡΡ Π½Π° Π½Π°ΠΏΠΎΡ 20 ΠΌΠ΅ΡΡΠΎΠ² .
- ΠΡΠΈΡΠ΅ΡΠΈΠΈ ΠΏΡΠΎΠ΅ΠΊΡΠΈΡΠΎΠ²Π°Π½ΠΈΡ:Β Π‘ΠΈΡΡΠ΅ΠΌΠ° ΡΠΊΠ²Π°ΠΆΠΈΠ½Π½ΡΡ ΡΠΎΡΠ΅ΠΊ Π΄Π°Π΅Ρ Π²Π°ΠΌ Π΄ΡΡΠ³ΠΎΠΉ ΠΌΠ΅ΡΠΎΠ΄ Π΄Π»Ρ ΠΏΡΠΈΠ½ΡΡΠΈΡ ΠΈ Π²ΡΠ±ΠΎΡΠ°Β Π½Π°ΠΈΠ±ΠΎΠ»Π΅Π΅ ΡΡΡΠ΅ΠΊΡΠΈΠ²Π½ΠΎΠ³ΠΎ ΠΌΠ΅ΡΠΎΠ΄Π° Β Π΄Π»Ρ Π²Π°ΡΠ΅ΠΉ ΠΊΠΎΠ½ΠΊΡΠ΅ΡΠ½ΠΎΠΉ ΡΠ°Π±ΠΎΡΡ ΠΈΠ»ΠΈ ΡΡΠ°ΡΡΠΊΠ°.
- Π’Π΅Ρ Π½ΠΈΡΠ΅ΡΠΊΠ°Ρ ΠΈΠ½ΡΠΎΡΠΌΠ°ΡΠΈΡ: ΠΠ±Π΅Π·Π²ΠΎΠΆΠΈΠ²Π°Π½ΠΈΠ΅ ΠΎΠ±ΡΡΠ½ΠΎ ΡΡΠ΅Π±ΡΠ΅ΡΡΡ Π½Π° ΠΌΠ΅ΡΡΠ΅, ΠΊΠΎΠ³Π΄Π° Π·Π΅ΠΌΠ»ΡΠ½ΡΠ΅ ΡΠ°Π±ΠΎΡΡ Π²ΡΡ ΠΎΠ΄ΡΡ Π·Π° ΠΏΡΠ΅Π΄Π΅Π»Ρ ΡΡΠΎΠ²Π½Ρ Π³ΡΡΠ½ΡΠΎΠ²ΡΡ Π²ΠΎΠ΄. ΠΠ»Ρ Π½Π΅Π³Π»ΡΠ±ΠΎΠΊΠΈΡ Π²ΡΠ΅ΠΌΠΎΠΊ Β (Π΄ΠΎ 4 ΠΌ) ΠΎΡΡΡΠ΅Π½ΠΈΠ΅ ΠΈΠ³Π»ΠΎΡΠΈΠ»ΡΡΡΠ° ΡΠ°ΡΡΠΎ ΡΠ²Π»ΡΠ΅ΡΡΡ Π½Π°ΠΈΠ±ΠΎΠ»Π΅Π΅ ΡΡΡΠ΅ΠΊΡΠΈΠ²Π½ΡΠΌ ΠΌΠ΅ΡΠΎΠ΄ΠΎΠΌ Π΄ΠΎΡΡΠΈΠΆΠ΅Π½ΠΈΡ Π°Π΄Π΅ΠΊΠ²Π°ΡΠ½ΠΎΠΉ Π΄Π΅ΠΏΡΠ΅ΡΡΠΈΠΈ Π² ΠΏΡΠΎΠ½ΠΈΡΠ°Π΅ΠΌΡΡ Π³ΡΡΠ½ΡΠ°Ρ . (Π½Π°ΠΏΡΠΈΠΌΠ΅Ρ, ΠΏΠ΅ΡΠΎΠΊ, Π³Π»ΠΈΠ½ΠΈΡΡΡΠΉ ΠΏΠ΅ΡΠΎΠΊ ΠΈ Ρ. Π΄.)
- ΠΡΡΡΡΠΎΠ΅ ΡΠ°Π·Π²Π΅ΡΡΡΠ²Π°Π½ΠΈΠ΅: Π‘ΠΈΡΡΠ΅ΠΌΡ ΠΈΠ³Π»ΠΎΡΠΈΠ»ΡΡΡΠΎΠ² ΠΌΠΎΠ³ΡΡ Π±ΡΡΡ ΡΠ°Π·ΠΌΠ΅ΡΠ΅Π½Ρ Π½Π° ΠΏΡΠΎΠ΅ΠΊΡΠ½ΠΎΠΉ ΠΏΠ»ΠΎΡΠ°Π΄ΠΊΠ΅ ΠΎΡΠ΅Π½Ρ ΡΡΡΠ΅ΠΊΡΠΈΠ²Π½ΠΎ Β ΠΈ ΡΡΡΠ΅ΠΊΡΠΈΠ²Π½ΠΎ ΡΠΎΠΊΡΠ°ΡΠΈΡΡ Π²ΡΠ΅ΠΌΡ ΠΏΡΠΎΡΡΠΎΡ ΡΡΡΠΎΠΈΡΠ΅Π»ΡΠ½ΠΎΠ³ΠΎ ΠΏΡΠΎΠ΅ΠΊΡΠ°.

- ΠΠ° Π²ΡΡΠ΅ΡΠΎΠΌ ΡΡΠΎΠΈΠΌΠΎΡΡΠΈ: Π‘ΠΈΡΡΠ΅ΠΌΡ ΠΈΠ³Π»ΠΎΡΠΈΠ»ΡΡΡΠ° ΠΈ ΠΎΠ±ΠΎΡΡΠ΄ΠΎΠ²Π°Π½ΠΈΠ΅ Π΄Π»Ρ ΠΎΠ±Π΅Π·Π²ΠΎΠΆΠΈΠ²Π°Π½ΠΈΡ ΠΌΠΎΠΆΠ½ΠΎ Π²Π·ΡΡΡ Π² Π°ΡΠ΅Π½Π΄Ρ Π½Π° ΠΊΠΎΡΠΎΡΠΊΠΈΠΉ ΠΈ Π΄Π»ΠΈΡΠ΅Π»ΡΠ½ΡΠΉ ΠΏΠ΅ΡΠΈΠΎΠ΄Ρ, Π° ΡΠ°ΠΊΠΆΠ΅ ΠΏΠΎ ΠΎΡΠ΄Π΅Π»ΡΠ½ΠΎΡΡΠΈ Π΄Π»Ρ ΡΠ΄ΠΎΠ²Π»Π΅ΡΠ²ΠΎΡΠ΅Π½ΠΈΡ ΡΡΠ΅Π±ΠΎΠ²Π°Π½ΠΈΠΉ ΡΡΡΠΎΠΈΡΠ΅Π»Ρ ΠΊ ΠΎΠ±Π΅Π·Π²ΠΎΠΆΠΈΠ²Π°Π½ΠΈΡ.
- ΠΠΎΠ»Π΅Π΅ ΡΡΡΠ΅ΠΊΡΠΈΠ²Π½ΡΠΉ:Β ΠΠ° ΡΡΡΠΎΠΈΡΠ΅Π»ΡΠ½ΡΡ ΠΎΠ±ΡΠ΅ΠΊΡΠ°Ρ , Π³Π΄Π΅ Π³Π»ΡΠ±ΠΎΠΊΠΈΠΉ ΠΊΠΎΠ»ΠΎΠ΄Π΅Ρ Β ΠΎΡΡΡΠ΅Π½ΠΈΠ΅ Π½Π΅ ΡΡΠ΅Π±ΡΠ΅ΡΡΡ, ΡΠΈΡΡΠ΅ΠΌΠ° ΠΎΡΡΡΠ΅Π½ΠΈΡ ΠΈΠ³Π»ΠΎΡΠΈΠ»ΡΡΡΠ° ΡΠ²Π»ΡΠ΅ΡΡΡ ΡΡΡΠ΅ΠΊΡΠΈΠ²Π½ΡΠΌ ΠΈ ΡΠΊΠΎΠ½ΠΎΠΌΠΈΡΠ½ΡΠΌ ΡΠΏΠΎΡΠΎΠ±ΠΎΠΌ Β ΡΠ½ΠΈΠΆΠ΅Π½ΠΈΡ ΡΡΠΎΠ²Π½Ρ Π³ΡΡΠ½ΡΠΎΠ²ΡΡ Π²ΠΎΠ΄ Π΄ΠΎ ΡΡΠ΅Π±ΡΠ΅ΠΌΠΎΠ³ΠΎ ΡΡΠΎΠ²Π½Ρ Π·Π΅ΠΌΠ»ΡΠ½ΡΡ ΡΠ°Π±ΠΎΡ.
ΠΠ΅Π΄ΠΎΡΡΠ°ΡΠΊΠΈ ΠΈΠ³Π»ΠΎΡΠΈΠ»ΡΡΡΠ° Β Π‘ΠΈΡΡΠ΅ΠΌΠ°
ΠΠΈΠΆΠ΅ ΠΏΡΠΈΠ²Π΅Π΄Π΅Π½Ρ Π½Π΅ΠΊΠΎΡΠΎΡΡΠ΅ Π½Π΅Π΄ΠΎΡΡΠ°ΡΠΊΠΈ ΠΈΠ³Π»ΠΎΡΠΈΠ»ΡΡΡΠ°:
- ΠΡΠ΅Π½Ρ Π²Π°ΠΆΠ½ΠΎ Β ΠΏΡΠΎΠ΄ΠΎΠ»ΠΆΠ°ΡΡ Π·Π°ΠΊΠ°ΡΠΊΡ ΠΏΠΎΡΠ»Π΅ Π΅Π΅ Π½Π°ΡΠ°Π»Π° Π΄ΠΎ Π½Π°ΡΠ°Π»Π° Π·Π΅ΠΌΠ»ΡΠ½ΡΡ ΡΠ°Π±ΠΎΡ. Π·Π°Π²Π΅ΡΡΠ΅Π½ΠΎ. ΠΡΠ»ΠΈ Π΅Π³ΠΎ ΠΎΡΡΠ°Π½ΠΎΠ²ΠΈΡΡ ΠΌΠ΅ΠΆΠ΄Ρ Π½ΠΈΠΌΠΈ, ΠΌΠΎΠΆΠ΅Ρ ΠΎΠΊΠ°Π·Π°ΡΡΡΡ ΡΡΠ°Π³ΠΈΡΠ΅ΡΠΊΠΈΠΌ .
- Π ΡΠ»ΡΡΠ°Π΅ Π³ΡΡΠ½ΡΠ°, ΡΠΎΡΡΠΎΡΡΠ΅Π³ΠΎ ΠΈΠ· ΠΏΠ»ΠΎΡΠ½ΠΎΠΉ Π³Π»ΠΈΠ½Ρ, Π³ΡΠ°Π²ΠΈΡ ΠΈΠ»ΠΈ Π²Π°Π»ΡΠ½ΠΎΠ², ΠΈΠ³Π»ΠΎΡΠΈΠ»ΡΡΡΡ ΡΡΡΠ°Π½Π°Π²Π»ΠΈΠ²Π°ΡΡΡΡ Π² ΠΏΡΠΎΠ±ΡΡΠ΅Π½Π½ΡΠ΅ ΡΠΊΠ²Π°ΠΆΠΈΠ½Ρ, ΡΡΠΎ ΡΠ²Π΅Π»ΠΈΡΠΈΠ²Π°Π΅Ρ ΡΡΠΎΠΈΠΌΠΎΡΡΡ ΡΡΡΠ°Π½ΠΎΠ²ΠΊΠΈ .

- Π‘ΠΈΡΡΠ΅ΠΌΠ° ΠΎΡΡΡΠ΅Π½ΠΈΡ Wellpoint ΠΏΠΎΠ΄Ρ ΠΎΠ΄ΠΈΡ Π΄Π»Ρ ΡΠ½ΠΈΠΆΠ΅Π½ΠΈΡ ΡΡΠΎΠ²Π½Ρ Π³ΡΡΠ½ΡΠΎΠ²ΡΡ Π²ΠΎΠ΄ Π½Π° Β 5-6 ΠΌΠ΅ΡΡΠΎΠ² ΡΠΎΠ»ΡΠΊΠΎ . ΠΠ»Ρ Π±ΠΎΠ»Π΅Π΅ Π³Π»ΡΠ±ΠΎΠΊΠΈΡ ΡΠ°ΡΠΊΠΎΠΏΠΎΠΊ, Π³Π΄Π΅ ΡΡΠΎΠ²Π΅Π½Ρ Π³ΡΡΠ½ΡΠΎΠ²ΡΡ Π²ΠΎΠ΄ Π΄ΠΎΠ»ΠΆΠ΅Π½ Π±ΡΡΡ ΡΠ½ΠΈΠΆΠ΅Π½ Π½Π° Π±ΠΎΠ»ΡΡΡΡ Π³Π»ΡΠ±ΠΈΠ½Ρ, ΡΡΠ΅Π±ΡΠ΅ΡΡΡ ΠΊΠ΅ΡΡΠΎΠ½Π½ΡΠΉ ΠΌΠ΅ΡΠΎΠ΄ Π΄Π»Ρ Π΄Π°Π½Π½ΠΎΠ³ΠΎ ΠΊΠΎΠ½ΠΊΡΠ΅ΡΠ½ΠΎΠ³ΠΎ ΡΡΠ°ΡΡΠΊΠ°.
ΠΡΠ°ΡΠΊΠΎΠ΅ ΠΏΡΠΈΠΌΠ΅ΡΠ°Π½ΠΈΠ΅
ΠΠ³Π»Ρ
AΒ ΠΠ³Π»ΠΎΠΏΡΠΎΠ±ΠΈΠ²Π½Π°Ρ Π³ΠΎΠ»ΠΎΠ²ΠΊΠ° ΠΏΡΠ΅Π΄ΡΡΠ°Π²Π»ΡΠ΅Ρ ΡΠΎΠ±ΠΎΠΉ ΠΊΡΡΠΎΠΊ ΡΡΡΠ±Ρ Ρ ΠΎΡΠ²Π΅ΡΡΡΠΈΡΠΌΠΈ, Π΄ΠΎΡΡΠ°ΡΠΎΡΠ½ΠΎ Π±ΠΎΠ»ΡΡΠΈΠΌΠΈ Π΄Π»Ρ ΠΏΡΠΎΠ½ΠΈΠΊΠ½ΠΎΠ²Π΅Π½ΠΈΡ Π²ΠΎΠ΄Ρ, Π½ΠΎ ΠΈ Π΄ΠΎΡΡΠ°ΡΠΎΡΠ½ΠΎ ΠΌΠ°Π»Π΅Π½ΡΠΊΠΈΠΌΠΈ, ΡΡΠΎΠ±Ρ ΡΠ΄Π΅ΡΠΆΠΈΠ²Π°ΡΡ Π²ΠΎΠ΄ΠΎΠ½ΠΎΡΠ½ΡΠΉ ΠΏΠ»Π°ΡΡ Π½Π° ΠΌΠ΅ΡΡΠ΅. 9ΠΠ°ΡΠ΅ΠΌ ΡΠΊΠ²Π°ΠΆΠΈΠ½Π° 0362 Π²Π±ΠΈΠ²Π°Π΅ΡΡΡ Π² Π·Π΅ΠΌΠ»Ρ, ΠΌΠΈΠ½ΡΡ ΠΏΠΎΡΠ²Ρ ΠΈ Π³Π»ΠΈΠ½Ρ, ΠΏΠΎΠΊΠ° Π½Π΅ Π΄ΠΎΡΡΠΈΠ³Π½Π΅Ρ Π²ΠΎΠ΄ΠΎΠ½ΠΎΡΠ½ΠΎΠ³ΠΎ Π³ΡΠ°Π²ΠΈΡ ΠΈ ΠΏΠ΅ΡΠΊΠ°.
Π’ΠΈΠΏΡ ΡΡΠ½Π΄Π°ΠΌΠ΅Π½ΡΠ° ΠΊΠΎΠ»ΠΎΠ΄ΡΠ°
- ΠΡΡΠ³Π»ΡΠΉ ΠΊΠΎΠ»ΠΎΠ΄Π΅Ρ: Π§Π°ΡΠ΅ Π²ΡΠ΅Π³ΠΎ ΠΈΡΠΏΠΎΠ»ΡΠ·ΡΠ΅ΡΡΡ ΠΊΡΡΠ³Π»Π°Ρ ΡΠΎΡΠΌΠ°, ΡΠ°ΠΊ ΠΊΠ°ΠΊ ΠΎΠ½ ΠΎΠ±Π»Π°Π΄Π°Π΅Ρ Π²ΡΡΠΎΠΊΠΎΠΉ ΠΊΠΎΠ½ΡΡΡΡΠΊΡΠΈΠΎΠ½Π½ΠΎΠΉ ΠΏΡΠΎΡΠ½ΠΎΡΡΡΡ ΠΈ ΡΠ΄ΠΎΠ±Π΅Π½ ΠΏΡΠΈ ΠΏΡΠΎΡ ΠΎΠ΄ΠΊΠ΅.
- ΠΠ²ΠΎΠΉΠ½ΡΠ΅ D-ΠΎΠ±ΡΠ°Π·Π½ΡΠ΅ ΠΊΠΎΠ»ΠΎΠ΄ΡΡ: Β ΠΠ±ΡΡΠ½ΠΎ ΠΈΡΠΏΠΎΠ»ΡΠ·ΡΡΡΡΡ Π΄Π»Ρ ΠΎΠΏΠΎΡ ΠΈ ΡΡΡΠΎΠ΅Π² ΠΌΠΎΡΡΠΎΠ², ΠΊΠΎΡΠΎΡΡΠ΅ ΡΠ»ΠΈΡΠΊΠΎΠΌ Π΄Π»ΠΈΠ½Π½ΡΠ΅ Π΄Π»Ρ ΡΠ°Π·ΠΌΠ΅ΡΠ΅Π½ΠΈΡ Π½Π° ΠΊΡΡΠ³Π»ΠΎΠΌ ΠΊΠΎΠ»ΠΎΠ΄ΡΠ΅ Π΄ΠΈΠ°ΠΌΠ΅ΡΡΠΎΠΌ 9 ΠΌ.

- ΠΠ²ΠΎΠΉΠ½ΡΠ΅ Π²ΠΎΡΡΠΌΠΈΡΠ³ΠΎΠ»ΡΠ½ΡΠ΅ ΠΊΠΎΠ»ΠΎΠ΄ΡΡ: Β ΠΠΎ ΠΌΠ½ΠΎΠ³ΠΈΡ ΠΎΡΠ½ΠΎΡΠ΅Π½ΠΈΡΡ ΠΎΠ½ΠΈ Π»ΡΡΡΠ΅ Π΄Π²ΠΎΠΉΠ½ΡΡ D-ΠΎΠ±ΡΠ°Π·Π½ΡΡ . ΠΠ²Π°Π΄ΡΠ°ΡΠ½ΡΠ΅ ΡΠ³Π»Ρ ΡΡΡΡΠ°Π½Π΅Π½Ρ, Π° Π½Π°ΠΏΡΡΠΆΠ΅Π½ΠΈΡ ΠΈΠ·Π³ΠΈΠ±Π° Π·Π½Π°ΡΠΈΡΠ΅Π»ΡΠ½ΠΎ ΡΠ½ΠΈΠΆΠ΅Π½Ρ.
- ΠΠ²ΠΎΠΉΠ½ΡΠ΅ ΠΊΡΡΠ³Π»ΡΠ΅ ΠΊΠΎΠ»ΠΎΠ΄ΡΡ: ΠΡΠΎ Π΄Π²Π° Π½Π΅Π·Π°Π²ΠΈΡΠΈΠΌΡΡ ΠΊΠΎΠ»ΠΎΠ΄ΡΠ°, ΡΠ°ΡΠΏΠΎΠ»ΠΎΠΆΠ΅Π½Π½ΡΡ ΠΎΡΠ΅Π½Ρ Π±Π»ΠΈΠ·ΠΊΠΎ Π΄ΡΡΠ³ ΠΊ Π΄ΡΡΠ³Ρ ΠΈ ΠΈΠΌΠ΅ΡΡΠΈΡ ΠΎΠ±ΡΡΡ ΠΊΡΡΡΠΊΡ ΠΊΠΎΠ»ΠΎΠ΄ΡΠ°. ΡΠΊΠ²Π°ΠΆΠΈΠ½Ρ Π±ΡΡΡΡΡΡ ΠΎΠ΄Π½ΠΎΠ²ΡΠ΅ΠΌΠ΅Π½Π½ΠΎ.
- ΠΠΎΠ»ΠΎΠ΄ΡΡ ΠΏΡΡΠΌΠΎΡΠ³ΠΎΠ»ΡΠ½ΡΠ΅: ΠΠ±ΡΡΠ½ΠΎ ΠΈΡΠΏΠΎΠ»ΡΠ·ΡΡΡΡΡ Π΄Π»Ρ ΡΡΠ½Π΄Π°ΠΌΠ΅Π½ΡΠΎΠ² ΠΌΠΎΡΡΠΎΠ² Π³Π»ΡΠ±ΠΈΠ½ΠΎΠΉ Π΄ΠΎ 7-8 ΠΌ. Π΄Π»Ρ Π±ΠΎΠ»ΡΡΠΈΡ ΡΡΠ½Π΄Π°ΠΌΠ΅Π½ΡΠΎΠ² ΠΏΡΠΈΠΌΠ΅Π½ΡΡΡ ΠΊΠΎΠ»ΠΎΠ΄ΡΡ Π΄Π²ΠΎΠΉΠ½ΠΎΠ³ΠΎ ΠΏΡΡΠΌΠΎΡΠ³ΠΎΠ»ΡΠ½ΠΎΠ³ΠΎ ΡΠ΅ΡΠ΅Π½ΠΈΡ.
Π’Π°ΠΊΠΆΠ΅ ΠΏΡΠΎΡΡΠΈΡΠ΅: Π§ΡΠΎ ΡΠ°ΠΊΠΎΠ΅ ΡΠΎΠ½Π΄ | ΠΠ°ΠΊΠΎΠ²Π° ΡΠ΅Π»Ρ ΠΏΡΠ΅Π΄ΠΎΡΡΠ°Π²Π»Π΅Π½ΠΈΡ ΡΠΎΠ½Π΄Π° | Π’ΠΈΠΏΡ ΡΡΠ½Π΄Π°ΠΌΠ΅Π½ΡΠ°
Π£ΡΡΠ°Π½ΠΎΠ²ΠΊΠ° ΠΈΠ³Π»ΠΎΡΠΈΠ»ΡΡΡΠ°
ΠΠ³Π»ΠΎΡΠΈΠ»ΡΡΡΡ ΡΡΡΠ°Π½Π°Π²Π»ΠΈΠ²Π°ΡΡΡΡ Ρ ΠΈΡΠΏΠΎΠ»ΡΠ·ΠΎΠ²Π°Π½ΠΈΠ΅ΠΌ ΡΡΠ°Π΄ΠΈΡΠΈΠΎΠ½Π½ΡΡ
ΠΌΠ΅ΡΠΎΠ΄ΠΎΠ² ΠΏΡΠΎΠΌΡΠ²ΠΊΠΈ, ΠΊΠΎΡΠΎΡΡΠ΅ Π²ΠΊΠ»ΡΡΠ°ΡΡ Π·Π°ΠΊΠ°ΡΠΊΡ Π²ΠΎΠ΄Ρ ΠΏΠΎΠ΄ Π²ΡΡΠΎΠΊΠΈΠΌ Π΄Π°Π²Π»Π΅Π½ΠΈΠ΅ΠΌ (ΠΏΠΎΠ΄Π°Π΅ΡΡΡ ΡΡΡΡΠΉΠ½ΡΠΌ Π½Π°ΡΠΎΡΠΎΠΌ ΠΈ/ΠΈΠ»ΠΈ ΡΠΆΠ°ΡΡΠΌ Π²ΠΎΠ·Π΄ΡΡ
ΠΎΠΌ) ΡΠ΅ΡΠ΅Π· ΡΡΠ°Π»ΡΠ½ΡΡ ΡΡΡΠ°Π½ΠΎΠ²ΠΎΡΠ½ΡΡ ΡΡΡΠ±Ρ, ΠΏΠΎΠ΄Π²Π΅ΡΠ΅Π½Π½ΡΡ Π½Π° 360 Β° ΠΠΊΡΠΊΠ°Π²Π°ΡΠΎΡ .
ΠΡΠΈ ΠΈΡΠΏΠΎΠ»ΡΠ·ΠΎΠ²Π°Π½ΠΈΠΈ ΡΠ°ΠΌΠΎΠΈΠ·Π»ΠΈΠ²Π°ΡΡΠΈΡ
ΡΡ ΠΈΠ³Π»ΠΎΠΏΡΠΎΠ±ΠΈΠ²Π½ΡΡ
ΡΠΊΠ²Π°ΠΆΠΈΠ½ Π²ΠΎΠ΄Π° ΠΏΠΎΠ΄ Π²ΡΡΠΎΠΊΠΈΠΌ Π΄Π°Π²Π»Π΅Π½ΠΈΠ΅ΠΌ ΠΏΠΎΠ΄Π°Π΅ΡΡΡ Π½Π΅ΠΏΠΎΡΡΠ΅Π΄ΡΡΠ²Π΅Π½Π½ΠΎ Π² ΡΡΠΎΡΠΊ.
ΠΠΎΠ»ΠΎΠ΄ΡΡ Π΄Π»Ρ Π½Π΅Π³Π»ΡΠ±ΠΎΠΊΠΎΠΉ ΡΠΊΠ²Π°ΠΆΠΈΠ½Ρ
ΠΡΠΈ Ρ ΠΎΡΠΎΡΠΈΡ ΡΡΠ»ΠΎΠ²ΠΈΡΡ ΠΌΠ°ΠΊΡΠΈΠΌΠ°Π»ΡΠ½Π°Ρ Π³Π»ΡΠ±ΠΈΠ½Π° Π·Π°Π±ΠΎΡΠ° Π²ΠΎΠ΄Ρ Π² Π½Π΅Π³Π»ΡΠ±ΠΎΠΊΠΎΠΉ ΡΠΊΠ²Π°ΠΆΠΈΠ½Π΅ Β ΡΠΎΡΡΠ°Π²Π»ΡΠ΅Ρ 25β² . ΠΡΠΏΠΎΠ»ΡΠ·ΠΎΠ²Π°Π½ΠΈΠ΅ ΠΊΠΎΠ»ΠΎΠ΄ΡΠ΅Π² Π² Π½Π΅Π³Π»ΡΠ±ΠΎΠΊΠΎΠΌ ΠΊΠΎΠ»ΠΎΠ΄ΡΠ΅ ΠΎΠ±ΡΡΠ½ΠΎ Π½Π΅ ΡΠ²Π»ΡΠ΅ΡΡΡ Ρ ΠΎΡΠΎΡΠΈΠΌ ΠΈΡΡΠΎΡΠ½ΠΈΠΊΠΎΠΌ ΠΏΠΈΡΡΠ΅Π²ΠΎΠΉ Π²ΠΎΠ΄Ρ. ΠΠ΅Π³Π»ΡΠ±ΠΎΠΊΠΈΠ΅ ΠΊΠΎΠ»ΠΎΠ΄ΡΡ Β Π±ΠΎΠ»Π΅Π΅ ΠΏΠΎΠ΄Π²Π΅ΡΠΆΠ΅Π½Ρ Π·Π°Π³ΡΡΠ·Π½Π΅Π½ΠΈΡ ΡΠ΄ΠΎΠ±ΡΠ΅Π½ΠΈΡΠΌΠΈ, ΠΎΡΡ ΠΎΠ΄Π°ΠΌΠΈ ΠΆΠΈΠ²ΠΎΡΠ½ΠΎΠ²ΠΎΠ΄ΡΡΠ²Π° ΠΈ ΡΡΡ ΠΈΠΌΠΈΒ ΠΊΠΎΠ»ΠΎΠ΄ΡΠ°ΠΌΠΈ .
ΠΠ³Π»ΠΎΡΠΈΠ»ΡΡΡΠΎΠ²Π°Ρ ΡΠΈΡΡΠ΅ΠΌΠ°
ΠΠ³Π»ΠΎΡΡΡΡΠΉΠ½Π°Ρ ΡΠΈΡΡΠ΅ΠΌΠ° ΡΠΎΡΡΠΎΠΈΡ Π² ΠΎΡΠ½ΠΎΠ²Π½ΠΎΠΌ ΠΈΠ·Β ΡΡΠ΄ Π±Π»ΠΈΠ·ΠΊΠΎ ΡΠ°ΡΠΏΠΎΠ»ΠΎΠΆΠ΅Π½Π½ΡΡ Π²ΠΎΠ΄ΠΎΠ·Π°Π±ΠΎΡΠ½ΡΡ ΡΠΎΡΠ΅ΠΊ Π½Π΅Π±ΠΎΠ»ΡΡΠΎΠ³ΠΎ Π΄ΠΈΠ°ΠΌΠ΅ΡΡΠ°, ΡΠΎΠ΅Π΄ΠΈΠ½Π΅Π½Π½ΡΡ ΡΠ΅ΡΠ΅Π· ΠΊΠΎΠ»Π»Π΅ΠΊΡΠΎΡ Ρ Π²ΡΠ°ΡΡΠ²Π°ΡΡΠ΅ΠΉ ΡΡΠΎΡΠΎΠ½ΠΎΠΉ ΡΠΎΠΎΡΠ²Π΅ΡΡΡΠ²ΡΡΡΠ΅Π³ΠΎ Π½Π°ΡΠΎΡΠ°. Π’Π΅Ρ Π½ΠΈΠΊΠ° ΠΈΠ³Π»ΠΎΡΠΈΠ»ΡΡΡΠ° β ΡΡΠΎ Π½Π°ΡΠΎΡΠ½Π°Ρ ΡΠΈΡΡΠ΅ΠΌΠ°, Π½Π°ΠΈΠ±ΠΎΠ»Π΅Π΅ ΡΠ°ΡΡΠΎ ΠΈΡΠΏΠΎΠ»ΡΠ·ΡΠ΅ΠΌΠ°Ρ ΠΏΡΠΈ ΡΠ°ΡΠΊΠΎΠΏΠΊΠ°Ρ Π½Π΅Π±ΠΎΠ»ΡΡΠΎΠΉ Π³Π»ΡΠ±ΠΈΠ½Ρ, ΠΎΡΠΎΠ±Π΅Π½Π½ΠΎ ΠΏΡΠΈ ΡΡΡΡΠ΅ ΡΡΠ°Π½ΡΠ΅ΠΉ.
ΠΠ°ΠΊ Π½Π°ΡΡΡΠΎΠΈΡΡ ΠΏΠ»Π°Π½ ΠΎΠ±Π΅Π·Π²ΠΎΠΆΠΈΠ²Π°Π½ΠΈΡ Π΄Π»Ρ ΡΠ°ΡΠΊΠΎΠΏΠΎΠΊ?
π ΠΡΠ΅ΠΌΡ ΡΡΠΈΡΡΠ²Π°Π½ΠΈΡ: 1 ΠΌΠΈΠ½ΡΡΠ°
ΠΡΠΎΡΠ΅Π΄ΡΡΡ, ΠΈΡΠΏΠΎΠ»ΡΠ·ΡΠ΅ΠΌΡΠ΅ Π΄Π»Ρ ΠΏΠ»Π°Π½ΠΎΠ² Π²ΠΎΠ΄ΠΎΠΎΡΠ²Π΅Π΄Π΅Π½ΠΈΡ Π΄Π»Ρ Π·Π΅ΠΌΠ»ΡΠ½ΡΡ
ΡΠ°Π±ΠΎΡ, Π²ΠΊΠ»ΡΡΠ°ΡΡ Π²ΡΠ±ΠΎΡ ΠΌΠ΅ΡΠΎΠ΄Π° Π²ΠΎΠ΄ΠΎΠΎΡΠ²Π΅Π΄Π΅Π½ΠΈΡ, ΠΎΠΏΡΠ΅Π΄Π΅Π»Π΅Π½ΠΈΠ΅ Π³ΠΈΠ΄ΡΠ°Π²Π»ΠΈΡΠ΅ΡΠΊΠΈΡ
ΠΏΠ°ΡΠ°ΠΌΠ΅ΡΡΠΎΠ², ΠΎΠΏΡΠ΅Π΄Π΅Π»Π΅Π½ΠΈΠ΅ ΠΏΡΠΎΠΈΠ·Π²ΠΎΠ΄ΠΈΡΠ΅Π»ΡΠ½ΠΎΡΡΠΈ ΡΠΊΠ²Π°ΠΆΠΈΠ½Ρ ΠΈ ΠΎΡΠ΅Π½ΠΊΡ ΠΊΠΎΠ»ΠΈΡΠ΅ΡΡΠ²Π° ΡΠΊΠ²Π°ΠΆΠΈΠ½.
Π ΠΈΡ.1: ΠΠ±Π΅Π·Π²ΠΎΠΆΠΈΠ²Π°Π½ΠΈΠ΅ ΠΊΠΎΡΠ»ΠΎΠ²Π°Π½ΠΎΠ²
Π‘ΠΎΠ΄Π΅ΡΠΆΠ°Π½ΠΈΠ΅:
- ΠΠ°ΡΡΡΠΎΠΉΠΊΠ° ΠΏΠ»Π°Π½Π° ΠΎΠ±Π΅Π·Π²ΠΎΠΆΠΈΠ²Π°Π½ΠΈΡ Π΄Π»Ρ Π·Π΅ΠΌΠ»ΡΠ½ΡΡ ΡΠ°Π±ΠΎΡ
- 1. ΠΡΠ±ΠΎΡ ΠΌΠ΅ΡΠΎΠ΄Π° ΠΎΠ±Π΅Π·Π²ΠΎΠΆΠΈΠ²Π°Π½ΠΈΡ Π΄Π»Ρ Π·Π΅ΠΌΠ»ΡΠ½ΡΡ
ΡΠ°Π±ΠΎΡ
- Π’Π°Π±Π»ΠΈΡΠ°-1: ΠΡΠ±ΠΎΡ ΠΌΠ΅ΡΠΎΠ΄ ΠΎΠ±Π΅Π·Π²ΠΎΠΆΠΈΠ²Π°Π½ΠΈΡ Π² Π·Π°Π²ΠΈΡΠΈΠΌΠΎΡΡΠΈ ΠΎΡ ΡΠΈΠΏΠ° ΠΏΠΎΡΠ²Ρ ΠΈ Π³Π»ΡΠ±ΠΈΠ½Π° Π²ΡΠ΅ΠΌΠΊΠΈ Π³ΡΡΠ½ΡΠ°
- 2. ΠΠΏΡΠ΅Π΄Π΅Π»Π΅Π½ΠΈΠ΅ Π³ΠΈΠ΄ΡΠ°Π²Π»ΠΈΡΠ΅ΡΠΊΠΈΡ ΠΏΠ°ΡΠ°ΠΌΠ΅ΡΡΠΎΠ²
- 3. ΠΠΏΡΠ΅Π΄Π΅Π»Π΅Π½ΠΈΠ΅ ΠΏΡΠΎΠΈΠ·Π²ΠΎΠ΄ΠΈΡΠ΅Π»ΡΠ½ΠΎΡΡΠΈ ΡΠΊΠ²Π°ΠΆΠΈΠ½
- 4. Π Π°ΡΡΠ΅Ρ ΠΊΠΎΠ»ΠΈΡΠ΅ΡΡΠ²Π° ΡΠΊΠ²Π°ΠΆΠΈΠ½
Π‘ΠΎΡΡΠ°Π²Π»Π΅Π½ΠΈΠ΅ ΠΏΠ»Π°Π½Π° Π²ΠΎΠ΄ΠΎΠΏΠΎΠ½ΠΈΠΆΠ΅Π½ΠΈΡ Π²ΡΠ΅ΠΌΠΎΠΊ
1. ΠΡΠ±ΠΎΡ ΠΌΠ΅ΡΠΎΠ΄Π° ΠΎΠ±Π΅Π·Π²ΠΎΠΆΠΈΠ²Π°Π½ΠΈΡ Π΄Π»Ρ Π·Π΅ΠΌΠ»ΡΠ½ΡΡ ΡΠ°Π±ΠΎΡ
ΠΡΠ±ΠΎΡ ΠΌΠ΅ΡΠΎΠ΄Π° ΠΎΠ±Π΅Π·Π²ΠΎΠΆΠΈΠ²Π°Π½ΠΈΡ ΡΠ²Π»ΡΠ΅ΡΡΡ ΠΏΠ΅ΡΠ²ΡΠΌ ΡΠ°Π³ΠΎΠΌ Π² ΡΠ°Π·ΡΠ°Π±ΠΎΡΠΊΠ΅ ΠΏΠ»Π°Π½Π° ΠΎΠ±Π΅Π·Π²ΠΎΠΆΠΈΠ²Π°Π½ΠΈΡ. Π’Π°Π±Π»ΠΈΡΡ 1 ΠΌΠΎΠΆΠ½ΠΎ ΠΈΡΠΏΠΎΠ»ΡΠ·ΠΎΠ²Π°ΡΡ Π΄Π»Ρ Π²ΡΠ±ΠΎΡΠ° ΠΏΠΎΠ΄Ρ
ΠΎΠ΄ΡΡΠ΅Π³ΠΎ ΠΌΠ΅ΡΠΎΠ΄Π° ΠΎΠ±Π΅Π·Π²ΠΎΠΆΠΈΠ²Π°Π½ΠΈΡ Π² Π·Π°Π²ΠΈΡΠΈΠΌΠΎΡΡΠΈ ΠΎΡ ΡΠΈΠΏΠ° ΠΏΠΎΡΠ²Ρ ΠΈ Π³Π»ΡΠ±ΠΈΠ½Ρ Π²ΡΠ΅ΠΌΠΊΠΈ Π³ΡΡΠ½ΡΠ°.
Π Π°Π·Π»ΠΈΡΠ½ΡΠ΅ ΡΠΈΠΏΡ ΡΠΈΡΡΠ΅ΠΌ ΠΎΠ±Π΅Π·Π²ΠΎΠΆΠΈΠ²Π°Π½ΠΈΡ ΠΊΠΎΡΠ»ΠΎΠ²Π°Π½ΠΎΠ² ΠΏΠΎΠΊΠ°Π·Π°Π½Ρ Π½Π° Π ΠΈΡ. 2βΠ ΠΈΡ. 6.
Π’Π°Π±Π»ΠΈΡΠ°-1: ΠΡΠ±ΠΎΡ ΠΌΠ΅ΡΠΎΠ΄Π° ΠΎΠ±Π΅Π·Π²ΠΎΠΆΠΈΠ²Π°Π½ΠΈΡ Π² Π·Π°Π²ΠΈΡΠΈΠΌΠΎΡΡΠΈ ΠΎΡ ΡΠΈΠΏΠ° ΠΏΠΎΡΠ²Ρ ΠΈ Π³Π»ΡΠ±ΠΈΠ½Ρ Π²ΡΠ΅ΠΌΠΊΠΈ Π³ΡΡΠ½ΡΠ°
| ΠΠ΅ΡΠΎΠ΄Ρ ΠΎΠ±Π΅Π·Π²ΠΎΠΆΠΈΠ²Π°Π½ΠΈΡ | ΠΠΎΠ΄Ρ ΠΎΠ΄ΡΡΠΈΠΉ ΡΠΈΠΏ ΠΏΠΎΡΠ²Ρ | ΠΠΎΠ΄Ρ ΠΎΠ΄ΡΡΠ°Ρ Π³Π»ΡΠ±ΠΈΠ½Π° ΠΊΠΎΡΠ»ΠΎΠ²Π°Π½Π°, ΠΌ |
| ΠΡΠΊΡΡΡΡΠΉ ΠΏΠΎΠ΄Π΄ΠΎΠ½ | ΠΡΠ°Π²ΠΈΠΉ (Π²ΠΊΠ»ΡΡΠ°Ρ ΠΌΠ΅Π»ΠΊΠΈΠΉ, ΡΡΠ΅Π΄Π½ΠΈΠΉ ΠΈ ΠΊΡΡΠΏΠ½ΡΠΉ) ΠΈ ΠΊΡΡΠΏΠ½ΡΠΉ ΠΏΠ΅ΡΠΎΠΊ | ΠΠ΅Π½Π΅Π΅ 4 |
| ΠΊΠΎΠ»ΠΎΠ΄Π΅Ρ | ΠΡΡΠ±Π°Ρ; ΡΠ΅ΡΠ΅Π΄ΠΈΠ½Π°; ΠΈ ΠΌΠ΅Π»ΠΊΠΈΠΉ ΠΏΠ΅ΡΠΎΠΊ, ΠΈ ΠΌΠ΅Π»ΠΊΠΈΠΉ Π³ΡΠ°Π²ΠΈΠΉ | 4-8 |
| ΠΠ°ΠΊΡΡΠΌΠ½ΡΠΉ ΠΊΠΎΠ»ΠΎΠ΄Π΅Ρ | ΠΠ΅Π»ΠΊΠΈΠΉ ΠΈ ΡΡΠ΅Π΄Π½ΠΈΠΉ ΠΏΠ΅ΡΠΎΠΊ, ΠΊΡΡΠΏΠ½ΡΠΉ ΠΈ ΡΡΠ΅Π΄Π½ΠΈΠΉ ΠΈΠ» | 4-8 |
| ΠΠ»Π΅ΠΊΡΡΠΎΠΎΡΠΌΠΎΡ | ΠΠ΅Π»ΠΊΠΈΠΉ ΠΏΠ΅ΡΠΎΠΊ, ΠΊΡΡΠΏΠ½ΡΠΉ; ΡΠ΅ΡΠ΅Π΄ΠΈΠ½Π°; ΠΈ ΠΌΠ΅Π»ΠΊΠΈΠΉ ΠΈΠ» | 4-8 |
| ΠΠ»ΡΠ±ΠΎΠΊΠΈΠΉ ΠΊΠΎΠ»ΠΎΠ΄Π΅Ρ | ΠΡΡΠ±Π°Ρ; ΡΠ΅ΡΠ΅Π΄ΠΈΠ½Π°; ΠΈ Π³ΡΠ°Π²ΠΈΠΉ, ΠΊΡΡΠΏΠ½ΡΠΉ ΠΈ ΡΡΠ΅Π΄Π½ΠΈΠΉ ΠΏΠ΅ΡΠΎΠΊ | 20-24 |
| ΠΠ»ΡΠ±ΠΎΠΊΠΎΠ²ΠΎΠ΄Π½ΡΠ΅ + Π²ΡΠΏΠΎΠΌΠΎΠ³Π°ΡΠ΅Π»ΡΠ½ΡΠ΅ Π²Π°ΠΊΡΡΠΌΠ½ΡΠ΅ Π½Π°ΡΠΎΡΡ | ΠΠ΅Π»ΠΊΠ°Ρ ΠΌΠΎΠ³ΠΈΠ»Π°, Π³ΡΡΠ±Π°Ρ; ΡΠ΅ΡΠ΅Π΄ΠΈΠ½Π°; ΠΈ ΠΌΠ΅Π»ΠΊΠΈΠΉ ΠΏΠ΅ΡΠΎΠΊ, ΠΊΡΡΠΏΠ½ΡΠΉ ΠΈ ΡΡΠ΅Π΄Π½ΠΈΠΉ ΠΈΠ» | ΠΠΎΠ»ΡΡΠ΅ 28 |
Π ΠΈΡ.
2: Π‘ΠΈΡΡΠ΅ΠΌΠ° ΠΎΠ±Π΅Π·Π²ΠΎΠΆΠΈΠ²Π°Π½ΠΈΡ ΠΎΡΠΊΡΡΡΠΎΠ³ΠΎ ΠΎΡΡΡΠΎΠΉΠ½ΠΈΠΊΠ°
Π ΠΈΡ. 3: Π‘ΠΈΡΡΠ΅ΠΌΠ° ΠΎΡΡΡΠ΅Π½ΠΈΡ ΡΠΊΠ²Π°ΠΆΠΈΠ½
Π ΠΈΡ. 4: Π‘ΠΈΡΡΠ΅ΠΌΠ° ΡΠ»Π΅ΠΊΡΡΠΎΠΎΡΠΌΠΎΡΠ° ΠΎΡΡΡΠ΅Π½ΠΈΡ
Π ΠΈΡ. 5: Π‘ΠΈΡΡΠ΅ΠΌΠ° Π²ΡΠ΅ΠΌΠΊΠΈ Π³Π»ΡΠ±ΠΎΠΊΠΈΡ ΡΠΊΠ²Π°ΠΆΠΈΠ½ 903 63
Π ΠΈΡ. 6: ΠΠ»ΡΠ±ΠΎΠΊΠΈΠΉ Π‘ΠΈΡΡΠ΅ΠΌΠ° Π·Π΅ΠΌΠ»ΡΠ½ΡΡ ΡΠ°Π±ΠΎΡ
2. ΠΠΏΡΠ΅Π΄Π΅Π»Π΅Π½ΠΈΠ΅ Π³ΠΈΠ΄ΡΠ°Π²Π»ΠΈΡΠ΅ΡΠΊΠΈΡ ΠΏΠ°ΡΠ°ΠΌΠ΅ΡΡΠΎΠ²
Π‘ΡΡΠ΅ΡΡΠ²ΡΠ΅Ρ ΡΡΠ΄ Π³ΠΈΠ΄ΡΠ°Π²Π»ΠΈΡΠ΅ΡΠΊΠΈΡ
ΠΏΠ°ΡΠ°ΠΌΠ΅ΡΡΠΎΠ², ΠΊΠΎΡΠΎΡΡΠ΅ Π½Π΅ΠΎΠ±Ρ
ΠΎΠ΄ΠΈΠΌΠΎ ΠΎΡΠ΅Π½ΠΈΡΡ Π½Π° ΠΎΡΠ½ΠΎΠ²Π΅ ΠΈΡΠΏΠΎΠ»ΡΠ·ΡΠ΅ΠΌΠΎΠΉ ΡΠΎΡΠΌΡΠ»Ρ. ΠΠ°ΠΏΡΠΈΠΌΠ΅Ρ, ΡΡΠ΅Π±ΡΠ΅ΡΡΡ ΠΎΡΠ΅Π½ΠΈΠ²Π°ΡΡ ΠΊΠΎΡΡΡΠΈΡΠΈΠ΅Π½Ρ ΠΏΡΠΎΠ½ΠΈΡΠ°Π΅ΠΌΠΎΡΡΠΈ ΡΠΎΠ»ΡΠΊΠΎ Π² ΡΠΎΠΌ ΡΠ»ΡΡΠ°Π΅, Π΅ΡΠ»ΠΈ ΠΈΡΠΏΠΎΠ»ΡΠ·ΡΠ΅ΡΡΡ ΡΠΎΡΠΌΡΠ»Π° ΡΠ°Π²Π½ΠΎΠ²Π΅ΡΠΈΡ, ΡΠ°ΠΊΠ°Ρ ΠΊΠ°ΠΊ ΡΡΠ°Π²Π½Π΅Π½ΠΈΠ΅ ΡΠ°Π²Π½ΠΎΠ²Π΅ΡΠΈΡ Π’ΠΈΠΌΠ°.
ΠΠΎΡΡΡΠΈΡΠΈΠ΅Π½Ρ ΠΏΡΠΎΠ½ΠΈΡΠ°Π΅ΠΌΠΎΡΡΠΈ ΠΌΠΎΠΆΠ½ΠΎ ΡΠ°ΡΡΡΠΈΡΠ°ΡΡ Ρ ΠΏΠΎΠΌΠΎΡΡΡ ΠΈΡΠΏΡΡΠ°Π½ΠΈΠΉ Π½Π° ΠΎΡΠΊΠ°ΡΠΊΡ, ΠΈΡΠΏΡΡΠ°Π½ΠΈΠΉ Ρ ΠΏΠ°Π΄Π°ΡΡΠΈΠΌ Π½Π°ΠΏΠΎΡΠΎΠΌ, ΠΈΡΠΏΡΡΠ°Π½ΠΈΠΉ Ρ ΠΏΠΎΡΡΠΎΡΠ½Π½ΡΠΌ Π½Π°ΠΏΠΎΡΠΎΠΌ ΠΈΠ»ΠΈ ΡΠΌΠΏΠΈΡΠΈΡΠ΅ΡΠΊΠΎΠΉ ΡΠΎΡΠΌΡΠ»Ρ. ΠΠ°ΠΈΠ±ΠΎΠ»Π΅Π΅ ΠΏΡΠΈΠ΅ΠΌΠ»Π΅ΠΌΡΠΌ ΠΌΠ΅ΡΠΎΠ΄ΠΎΠΌ ΠΎΠΏΡΠ΅Π΄Π΅Π»Π΅Π½ΠΈΡ ΠΊΠΎΡΡΡΠΈΡΠΈΠ΅Π½ΡΠ° ΠΏΡΠΎΠ½ΠΈΡΠ°Π΅ΠΌΠΎΡΡΠΈ ΡΠ²Π»ΡΠ΅ΡΡΡ ΡΠΌΠΏΠΈΡΠΈΡΠ΅ΡΠΊΠ°Ρ ΡΠΎΡΠΌΡΠ»Π° ΠΈ ΠΈΡΠΏΡΡΠ°Π½ΠΈΡ Π½Π° ΠΎΡΠΊΠ°ΡΠΊΠ΅.
Π’Π΅ΡΡΡ Ρ Π·Π°ΠΏΠΎΠ»Π½Π΅Π½ΠΈΠ΅ΠΌ ΠΈ ΠΏΠΎΡΡΠΎΡΠ½Π½ΡΠΌ Π½Π°ΠΏΠΎΡΠΎΠΌ Π½Π΅ΠΆΠ΅Π»Π°ΡΠ΅Π»ΡΠ½Ρ, ΠΏΠΎΡΠΎΠΌΡ ΡΡΠΎ Π½Π°ΡΡΡΠ΅Π½ΠΈΠ΅ ΠΎΠ±ΡΠ°Π·ΡΠΎΠ² Π½Π΅ ΠΏΠΎΠ·Π²ΠΎΠ»ΠΈΡ ΠΏΠΎΠ»Π½ΠΎΡΡΡΡ ΠΏΡΠ΅Π΄ΡΡΠ°Π²ΠΈΡΡ Π³ΡΡΠ½Ρ Π½Π° ΠΌΠ΅ΡΡΠ΅.
ΠΡΠ»ΠΈ ΠΈΡΠΏΠΎΠ»ΡΠ·ΡΠ΅ΡΡΡ ΡΡΠ°Π²Π½Π΅Π½ΠΈΠ΅ Π½Π΅ΡΠ°Π²Π½ΠΎΠ²Π΅ΡΠ½ΠΎΡΡΠΈ, Π½Π°ΠΏΡΠΈΠΌΠ΅Ρ, ΡΡΠ°Π²Π½Π΅Π½ΠΈΠ΅ Π’Π΅ΠΉΡΠ° ΠΈ ΠΠΆΠ΅ΠΉΠΊΠΎΠ±Π°, ΡΠΎ Π½Π΅ΠΎΠ±Ρ
ΠΎΠ΄ΠΈΠΌΠΎ ΡΠ°ΡΡΡΠΈΡΠ°ΡΡ ΠΊΠΎΡΡΡΠΈΡΠΈΠ΅Π½Ρ ΠΏΡΠΎΠΏΡΡΠΊΠ°Π½ΠΈΡ ΠΈ ΠΊΠΎΡΡΡΠΈΡΠΈΠ΅Π½Ρ Π½Π°ΠΊΠΎΠΏΠ»Π΅Π½ΠΈΡ.
ΠΠΎΡΡΡΠΈΡΠΈΠ΅Π½Ρ ΠΏΡΠΎΠΏΡΡΠΊΠ°Π½ΠΈΡ ΡΠ°Π²Π΅Π½ ΠΊΠΎΡΡΡΠΈΡΠΈΠ΅Π½ΡΡ ΠΏΡΠΎΠ½ΠΈΡΠ°Π΅ΠΌΠΎΡΡΠΈ, ΡΠΌΠ½ΠΎΠΆΠ΅Π½Π½ΠΎΠΌΡ Π½Π° ΡΠΎΠ»ΡΠΈΠ½Ρ Π²ΠΎΠ΄ΠΎΠ½ΠΎΡΠ½ΠΎΠ³ΠΎ Π³ΠΎΡΠΈΠ·ΠΎΠ½ΡΠ°. ΠΠΎΡΡΡΠΈΡΠΈΠ΅Π½Ρ Ρ
ΡΠ°Π½Π΅Π½ΠΈΡ ΠΊΠΎΠ»Π΅Π±Π»Π΅ΡΡΡ ΠΎΡ 0,0005 Π΄ΠΎ 0,001.
3. ΠΠΏΡΠ΅Π΄Π΅Π»Π΅Π½ΠΈΠ΅ Π΄Π΅Π±ΠΈΡΠ° ΡΠΊΠ²Π°ΠΆΠΈΠ½
ΠΡΠ΅Π½ΠΊΠ° ΠΏΡΠΎΠΈΠ·Π²ΠΎΠ΄ΠΈΡΠ΅Π»ΡΠ½ΠΎΡΡΠΈ ΡΠΊΠ²Π°ΠΆΠΈΠ½Ρ ΠΈΠΌΠ΅Π΅Ρ Π±ΠΎΠ»ΡΡΠΎΠ΅ Π·Π½Π°ΡΠ΅Π½ΠΈΠ΅, ΠΏΠΎΡΠΊΠΎΠ»ΡΠΊΡ ΠΎΠ½Π° ΡΠ²Π»ΡΠ΅ΡΡΡ ΠΎΡΠ½ΠΎΠ²ΠΎΠΉ Π΄Π»Ρ ΠΏΡΠΎΠ΅ΠΊΡΠΈΡΠΎΠ²Π°Π½ΠΈΡ ΠΈ ΡΡΠΎΠΈΠΌΠΎΡΡΠΈ ΠΏΡΠΎΠ²Π΅Π΄Π΅Π½ΠΈΡ ΠΏΡΠΎΡΠ΅ΡΡΠ° ΠΎΠ±Π΅Π·Π²ΠΎΠΆΠΈΠ²Π°Π½ΠΈΡ.
Π Π°Π·ΡΠ°Π±ΠΎΡΠ°Π½Π° ΡΠΌΠΏΠΈΡΠΈΡΠ΅ΡΠΊΠ°Ρ ΡΠΎΡΠΌΡΠ»Π° Π΄Π»Ρ ΠΎΡΠ΅Π½ΠΊΠΈ ΠΏΡΠΎΠΈΠ·Π²ΠΎΠ΄ΠΈΡΠ΅Π»ΡΠ½ΠΎΡΡΠΈ ΡΠΊΠ²Π°ΠΆΠΈΠ½Ρ. Π£ΡΠ°Π²Π½Π΅Π½ΠΈΠ΅ ΠΌΠΎΠΆΠ΅Ρ Π±ΡΡΡ Π²ΡΡΠ°ΠΆΠ΅Π½ΠΎ ΡΠ»Π΅Π΄ΡΡΡΠΈΠΌ ΠΎΠ±ΡΠ°Π·ΠΎΠΌ:
ΠΠ΄Π΅: Q w : ΠΠ΅Π±ΠΈΡ ΡΠΊΠ²Π°ΠΆΠΈΠ½Ρ, ΠΌ 3 /Ρ
h w : Π£ΡΠΎΠ²Π΅Π½Ρ Π³ΡΡΠ½ΡΠΎΠ²ΡΡ
Π²ΠΎΠ΄, ΠΏΡΠΈ ΠΊΠΎΡΠΎΡΠΎΠΌ Π³ΡΡΠ½ΡΠΎΠ²ΡΠ΅ Π²ΠΎΠ΄Ρ Π·Π°ΡΠ΅ΠΊΠ°ΡΡ Π² ΡΠΊΠ²Π°ΠΆΠΈΠ½Ρ, ΠΊΠ°ΠΊ ΠΏΠΎΠΊΠ°Π·Π°Π½ΠΎ Π½Π° ΡΠΈΡΡΠ½ΠΊΠ΅ 1, ΠΌ
r w : Π Π°Π΄ΠΈΡΡ ΡΠΊΠ²Π°ΠΆΠΈΠ½Ρ, ΠΌ
k : ΠΠΎΡΡΡΠΈΡΠΈΠ΅Π½Ρ ΠΏΡΠΎΠ½ΠΈΡΠ°Π΅ΠΌΠΎΡΡΠΈ
Π‘Π»Π΅Π΄ΡΠ΅Ρ Π·Π½Π°ΡΡ, ΡΡΠΎ ΠΎΡΠ΅Π½ΠΊΠ° h w ΠΎΡΠ΅Π½Ρ ΡΠ»ΠΎΠΆΠ½Π°, ΠΏΠΎΡΡΠΎΠΌΡ Π΄ΠΎΠΏΡΡΡΠΈΠΌΠΎ ΠΏΡΠΈΠ½ΡΡΡ, ΡΡΠΎ h w ΡΠ°Π²Π½ΠΎ ΡΡΠΎΠ²Π½Ρ Π³ΡΡΠ½ΡΠΎΠ²ΡΡ
Π²ΠΎΠ΄ Π² Π³Π»ΡΠ±ΠΎΠΊΠΎΠΌ ΠΊΠΎΠ»ΠΎΠ΄ΡΠ΅ ΠΏΡΠΈ ΠΏΡΠ΅Π΄Π²Π°ΡΠΈΡΠ΅Π»ΡΠ½ΠΎΠΉ ΠΎΡΠ΅Π½ΠΊΠ΅.
