Содержание
Грузовые подъемники для склада, цены на грузовые строительные подъемники
Грузовой подъёмник (грузовой лифт) является наиболее востребованным грузоподъемным механизмом, использующимся для подъема/спуска грузов между этажами, как в помещениях, так и снаружи зданий различного назначения: в торговых центрах и магазинах, ресторанах и кафе, библиотеках и банках, гаражных, складских и производственных комплексах. Предприятия оснащаются подъемниками, для увеличения производительности объекта при многократном перемещении продукции или оборудования.
Грузовые подъемники для склада подразделяются на несколько видов в зависимости от грузоподъемности (от 10 кг до 20 тонн), типа привода и системы управления. Так же подъемники строительные грузовые можно разделить на два типа: обычного исполнения и взрывозащищенного.
На производстве корпорации «КУРС» изготавливается весь перечень всевозможных строительных и складских грузоподъемных механизмов. Проектно-конструкторский отдел нашей компании быстро подберет нужное Вам оборудование с учетом всех пожеланий и технических требований!
Виды грузоподъёмных механизмов:
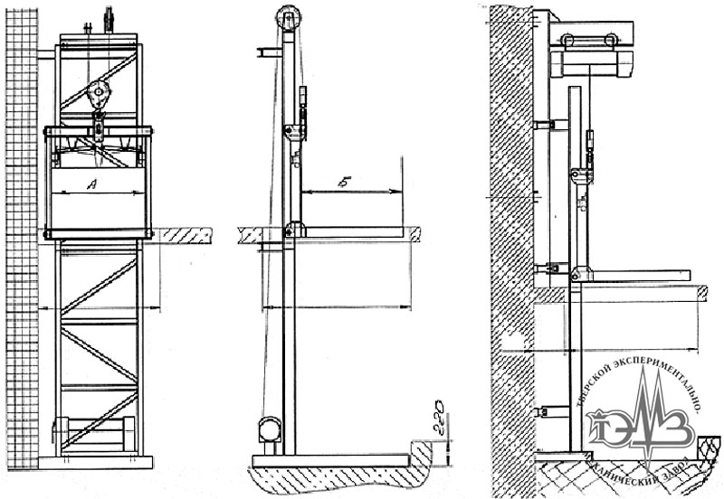
Шахтный подъемник
Шахтный подъёмник «KURS» — это грузовой лифт, состоящий из вертикальной самонесущей металлоконструкции (шахты лифта) и перемещаемой внутри ее грузовой платформы (клети) в системе направляющих.
Консольный (мачтовый) подъемник
Консольный (мачтовый) подъёмник «KURS» — это грузовой лифт, отличающийся от шахтного подъемника своей конструкцией. Роль несущей конструкции исполняет не металлокаркасная шахта, а мачта, по которой в системе направляющих перемещается грузовая платформа.
Гидравлический подъемник
Гидравлический подъемник «KURS» — грузовой лифт, схожий по конструкции с консольным подъемником, но отличающийся от него приводом, который приводит в движение подъемную платформу. Если в мачтовом подъемнике используется электроталь, то в данном виде подъемника — гидропривод.
Двухмачтовый подъемник
Двухмачтовый подъёмник «KURS» — это так же грузовой лифт, несущей конструкцией которого являются мачты, установленные по бокам от подъемной платформы, между которых по направляющим перемещается грузовая платформа.
Платформенный подъемник
Платформенный подъемник «KURS» является измененным видом шахтного подъемника.
Различаются тем, что вместо грузовой клети устанавливается подъемная платформа.
Подъемный стол (ножничный подъемник)
Подъемный стол «KURS» (Ножничный подъемник) – разновидность грузового лифта, но в отличие от других видов подъемников не имеет несущих конструкций.
Доклевеллер
Доклевеллер «KURS» — уравнительная платформа, использующаяся для обеспечения удобства транспортировки груза между кузовом грузовика и полом склада.
Перегрузочный мост
Перегрузочный мост «KURS» — уравнительная платформа, выполненная в виде откидной аппарели с механическим или автоматическим опусканием.
Мобильные рампы (передвижные эстакады)
Мобильные рампы (эстакады) «KURS» — уравнительная платформа, которая служит связующим звеном между кузовом грузовика и напольным покрытием.
Узнать цены на грузовой подъемник Вы можете, заполнив форму быстрого заказа.
Строительные лифты подъемники в категории «Авто — мото»
Подъемники грузовые лифты строительные подъемники
Под заказ
Доставка по Украине
от 120 000 грн
Купить
Медиа Лифтинг Компани
Подъемники строительные -грузовые лифты ТУ.
Аренда.
Под заказ
Доставка по Украине
от 215 000 грн
Купить
Медиа Лифтинг Компани
Подъемники грузовые. Строительные лифты. ТУ
Под заказ
Доставка по Украине
от 250 000 грн
Купить
Медиа Лифтинг Компани
Мачтовые строительные секционные подъемники.Грузовые подъемники. Грузовые лифты до 200 м высотой.ТУ
Под заказ
Доставка по Украине
от 300 000 грн
Купить
Медиа Лифтинг Компани
Мачтовые строительные секционные подъемники.Грузовые подъемники. Грузовые лифты до 200 м высотой
Под заказ
Доставка по Украине
от 270 000 грн
Купить
Медиа Лифтинг Компани
Ролик двери отъездной Газель Соболь верхней опоры (пр-во ГАЗ) М 1080493
Доставка по Украине
512 — 538 грн
от 5 продавцов
538 грн
Купить
Интернет-магазин «Запчастинки»
Ролик двери, боковой правый на FIAT DUCATO,CITROEN JUMPER,PEUGEOT BOXER / 1352331080
На складе
Доставка по Украине
764.
40 грн
Купить
ST Auto
Ролик двери, боковой правый на FIAT DUCATO,CITROEN JUMPER,PEUGEOT BOXER
На складе
Доставка по Украине
614.25 грн
Купить
ST Auto
Ролик двери боковой нижний VW T4 ролики сдвижной нижние Фольксваген Т4
На складе в г. Полтава
Доставка по Украине
228 грн
Купить
WizAuto
Ролики дверей бокових VW T4 транспортер
Доставка по Украине
от 330 грн
Купить
Rolic.prom.ua
Ролик двери (боковой/верхний) Fiat Ducato 94-06 (1334552080)
Доставка по Украине
470 грн
Купить
Auto-house.in.ua
Ролик двери (боковой/средний) Fiat Ducato/Peugeot Boxer 02-06 (с кронштейном)
Доставка по Украине
560 грн
Купить
Auto-house.in.ua
Ролик дверей бокових 2705-Г. Соболь нажн. (ГАЗ)
Доставка по Украине
442 грн
Купить
НоваСила
Ролики двери комплект 7700352381 7700352379 7701048702 Renault Master Opel Movano 98-10
Доставка по Украине
940 грн
Купить
Dom-Avto.
com.ua — Запчасти и аксессуары по выгодной цене
Ролик двери (боковой/средний) MB Sprinter/VW LT 96-00 Solgy 306002
На складе
Доставка по Украине
320 грн
Купить
Bus-Profile — Ваш интернет-магазин автозапчастей
Смотрите также
Ролик двери (боковой/нижний) MB Vito (W639) (с кронштейном) Solgy 306017
На складе
Доставка по Украине
590 грн
Купить
Bus-Profile — Ваш интернет-магазин автозапчастей
Ролик двери 8200661119 Opel Movano Renault Master III Мастер
Доставка по Украине
по 589 грн
от 2 продавцов
589 грн
Купить
LuxAvto
Комплект роликов двери VW T5
Доставка по Украине
по 980 грн
от 2 продавцов
980 грн
Купить
LuxAvto
Ролики двери комплект 7700352381 7700352379 7701048702 Renault Master Opel Movano 98-10
Доставка по Украине
940 грн
Купить
LuxAvto
Ролик двери раздвижной верхний Форд Транзит 86-00 BSG
Доставка по Украине
261 грн
Купить
DETALIBUS
Ролик двери раздвижной нижний Форд Транзит 86-00 BSG
Доставка по Украине
195 грн
Купить
DETALIBUS
Ролик двери раздвижной средн Форд Транзит 86-00 BSG
Доставка по Украине
538 грн
Купить
DETALIBUS
Ролик двери раздвижной средн R Форд Транзит 2014- BSG
Доставка по Украине
617 грн
Купить
DETALIBUS
Ролик двери раздвижной верхн R Форд Транзит 2014- BSG
Доставка по Украине
772 грн
Купить
DETALIBUS
Кронштейн ролика двери раздвижной FORD COURIER 2014- (1852393/ET76A268B40AC/HMPET76A268B40AC) HMPX
Доставка по Украине
294 грн
Купить
DP GROUP UKRAINE
Ролик двери Iveco E6 14> правой верхний
На складе
Доставка по Украине
976 грн
Купить
IVECO PLUS
Ролик двери боковой/сдвижной, правый нижний на Volkswagen Transporter 4 701843406B
Доставка по Украине
380 грн
Купить
Auto-house.
in.ua
Ролик двери (боковой/верхний) VW Caddy 03- (R) (с кронштейном) (2K0843436)
Доставка по Украине
290 грн
Купить
Auto-house.in.ua
Ролик двери (боковой/средний) VW Caddy 03- (R) (2K0843336)
Доставка по Украине
360 грн
Купить
Auto-house.in.ua
Строительные подъемники и лифты | USA Hoist
В USA Hoist мы являемся экспертами по установке строительных подъемников и готовы помочь вам выбрать лучший подъемник для вашего бизнеса. Вот уже почти 50 лет мы являемся надежным поставщиком для разработчиков, подрядчиков, промышленных предприятий и других организаций, использующих строительные подъемники.
Мы консультируем клиентов, когда они сравнивают различные строительные подъемники, при необходимости разрабатывают индивидуальные решения и обслуживают все, что мы устанавливаем. Наша команда сосредоточена на том, чтобы убедиться, что у вашей команды есть лучшие подъемники, путем тестирования всех частей подъемника и проверки того, что подъемник по прибытии почти новый.
Вы можете быть уверены, что ваш строительный подъемник, приобретенный или арендованный у USA Hoist, поможет вам выполнить этапы вашего проекта.
Наши настраиваемые подъемники для строительных площадок могут повысить эффективность и помочь вам придерживаться графика. Это позволяет членам экипажа и активам достигать верхних этажей строящегося здания без необходимости подниматься на несколько пролетов или полагаться на потенциально опасные системы шкивов.
Строительные лифты могут доставлять необходимый персонал и материалы на желаемый уровень быстрее, чем оборудование конкурентов. Их расширенные функции безопасности также обеспечивают сокращение времени, потерянного из-за несчастных случаев или неисправностей. Опыт, которым мы обладаем как ведущий производитель строительных лифтов, означает, что мы можем спроектировать и разработать полную систему для вашего проекта, отвечающую вашим потребностям.
Возможности и особенности строительных подъемников
- • Грузоподъемность от 2000 до 10000 фунтов
- • Скорость подъема от 0 до 330 футов в минуту ‘ H
- • Стальная рама для тяжелых условий эксплуатации
- • Новейшая технология с приводом переменного тока с переменной скоростью для плавного хода и точных остановок
- • Сделано в США
- • Нажмите на наши конкретные системы ниже, чтобы узнать больше о наших функциях
В настоящее время мы предлагаем следующие системы: все потребности личного транспорта.
Этот подъемник подходит для проектов в зданиях высотой до 800 футов.
USA-7/8000
Наш USA-7000 поднимает 7000 фунтов, а USA-8000 может поднимать до 8000 фунтов материалов. Очень большой автомобиль имеет ширину 5 футов, длину 13 футов и 6 дюймов. Его легкая алюминиевая кабина, усиленная тяжелой стальной рамой, может работать в автоматическом режиме. Эти подъемники известны в отрасли как самые большие, быстрые и надежные строительные лифты с реечной передачей, доступные в настоящее время.
Мегаподъемники США
Эти строительные подъемники обеспечивают подъем тяжелых грузов. Устройства не только отличаются тем же высоким качеством и эффективностью, что и другие наши линейки продуктов, но и обеспечивают дополнительную мощность для перевозки самых больших грузов и команд. Наши мегастроительные подъемники выделяются как самые большие, быстрые и универсальные высотные подъемники в мире. С мощными строительными подъемниками мы пересматриваем возможности этой технологии и обеспечиваем наилучшие результаты для наших клиентов.
Индивидуальные приложения и проектирование
Если готовые решения не принесут результатов, необходимых вашей компании, вы можете воспользоваться нашими знаниями и многолетним опытом. Наша команда следит за последними передовыми практиками в отрасли, и мы применяем свои знания для создания доступных, индивидуализированных приложений для использования в проектах строительства средних, высотных и сверхвысоких зданий для компаний по всему миру.
Закажите новый или арендованный строительный лифт сегодня
Мы продаем новые подъемники и отремонтированные подъемники, чтобы предоставить нашим клиентам больше вариантов бюджета. В тех случаях, когда вам нужен строительный лифт только на временной основе, мы разработаем договор аренды, который поможет вам уложиться в срок вашего проекта. Наша команда готова помочь вам, когда придет время проверить, обслужить или отремонтировать ваш подъемник.
Если вам нужна дополнительная информация о наших предложениях по строительным подъемникам или вам просто нужна помощь в выборе лучшей системы для покупки или аренды, наши специалисты будут рады помочь.
Позвоните сегодня или нажмите здесь, чтобы начать бесплатную консультацию.
Свяжитесь с нами
Superior Scaffold Services — Строительный лифт / подъемник
Superior Scaffold несет две линии строительных подъемников. Их часто называют самоходными подъемниками, подъемниками для людей, подъемниками для материалов, реечными подъемниками — независимо от названия они безопасно и эффективно перевозят людей (бригаду) и материалы на рабочую площадку.
Со строительным подъемником Superior Scaffold CE-7000 вы получаете лучший продукт, поддержку и возможности обслуживания. Доверьте свой следующий высотный дом, новое строительство, расширение, капитальный ремонт завода, проект реконструкции с помощью лифтов Superior. Наш строительный подъемник может работать в конфигурации с одной или двумя кабинами.
Мы предлагаем индивидуальные решения для любой отрасли. А наши лифты оснащены всеми последними инновациями и компонентами, чтобы каждый раз обеспечивать вам безопасную поездку.
Наш парк лифтов и транспортных платформ имеет грузоподъемность до 7000 фунтов для работы в любой сфере торговли или промышленности.
Характеристики:
| Стандартная длина автомобиля | 13 футов или 15 футов (в зависимости от конфигурации) |
| Максимальная полезная нагрузка | 6614 фунтов |
| Количество человек | 30 |
| Скорость движения | 197 фут/мин (с VFC) |
| Максимальная высота | 820 футов |
| Стандартное расстояние между анкерами | 30 |
| Подъемная система | Рейка и шестерня |
| Тип двигателя (блок питания) | Электродвигатели (3 фазы 480 В / 60 Гц) |
| Внутренние размеры автомобиля (Д x Ш x В) / Вес | 14 футов 9 дюймов x 4 фута 11 дюймов x 7 футов 6 дюймов / 6300 фунтов |
| Размеры секции мачты (Д x Ш x В) / Вес | 22 дюйма x 22 дюйма x 60 дюймов / 267 фунтов |
| Тип операции | джойстик |
| Соответствие стандартам | АНСИ А10. 4-2007, ЕН 12159 |
Компания Superior Scaffold также предлагает линейку строительных лифтов Fraco. С Superior Scaffold и Fraco у вас есть не один, а два гиганта отрасли с более чем 100-летним опытом.
Характеристики:
| Стандартная длина автомобиля | 12 футов 6 дюймов |
| Доступные полезные нагрузки | 4 500 | 6 000 | 7 000 | 8 000 фунтов |
| Количество человек | 30 |
| Скорость движения (нормальная – средняя – высокая) | 130 футов – 200 футов – 300 футов/мин |
| Максимальная высота | 1 310 футов |
| Стандартное расстояние между анкерами | 30 |
| Подъемная система | Рейка и шестерня (модуль 8) |
| Тип двигателя (блок питания) | Электродвигатели (3 фазы 480 В / 60 Гц) |
| Внутренние размеры автомобиля (Д x Ш x В) / Вес | 12 футов 6 дюймов x 4 фута 9 дюймов x 7 футов 2 дюйма / 7 500 фунтов |
| Размеры секции мачты (Д x Ш x В) / Вес | 26 дюймов x 26 дюймов x 60 дюймов / 341 фунт |
| Тип операции | Панель управления с кнопками |
| Соответствие стандартам | АНСИ А10.![]() ![]() |
4-2007, ЕН 12159
