Содержание
Готовые чертежи лифтов, раздвижных дверей и кабин различных типов, а так-же сопутствующих механизмов лифтового оборудования
+7 (343) 777-00-42 Пн-Вс c 7:00 -16:00 по Москве. Помощь
Авторизация
- Чертежи
- Транспорт и подъемные машины
Добавить работу
Конструкция масляного буфера пассажирского лифта
Код: 03.01.02.15.11
Как здесь скачать?
Подробнее
Конструкция пассажирского лифта
Код: 03.01.02.15.12
Как здесь скачать?
Подробнее
Лифт пассажирский грузоподъёмностью 400 кг
Код: 03.01.02.15.09
Как здесь скачать?
Подробнее
Монтажный чертеж направляющих лифта
Код: 03.01.02.15.19
Как здесь скачать?
Подробнее
Ограничитель скорости пассажирского лифта
Код: 03.01.02.15.16
Как здесь скачать?
Подробнее
Подвеска кабины пассажирского лифта
Код: 03.
01.02.15.18
Как здесь скачать?
Подробнее
Привод лифта — лифтовой лебедки
Код: 03.01.02.15.10
Как здесь скачать?
Подробнее
Проект конструкции пассажирского лифта ПП-400
Код: 03.01.02.15.06
Как здесь скачать?
Подробнее
Проект устройства ограничителя скорости лифта пассажирского назначения
Код: 03.01.02.15.02
Как здесь скачать?
Подробнее
Проектирование пассажирского лифта ПП 1000 грузоподъемностью 1000 кг с прямой подвеской
Код: 03.01.02.15.01
Как здесь скачать?
Подробнее
Разработка трехкулачкового патрона для изготовления шкива ограничителя скорости лифта
Код: 03.01.02.15.04
Как здесь скачать?
Подробнее
Разработка устройства лифтового оборудования грузопассажирского типа с индексом ГП
Код: 03.01.02.15.03
Как здесь скачать?
Подробнее
Рессорные ловители лифта с механизмом включения
Код: 03.
01.02.15.08
Как здесь скачать?
Подробнее
Чертеж верхней балки пассажирского лифта
Код: 03.01.02.15.15
Как здесь скачать?
Подробнее
Чертеж дверей шахты лифта
Код: 03.01.02.15.14
Как здесь скачать?
Подробнее
Чертеж ограничителя скорости лифта
Код: 03.01.02.15.17
Как здесь скачать?
Подробнее
Чертежи раздвижных дверей кабины пассажирского лифта
Код: 03.01.02.15.05
Как здесь скачать?
Подробнее
Шкив ограничителя скорости лифта
Код: 03.01.02.15.07
Как здесь скачать?
Подробнее
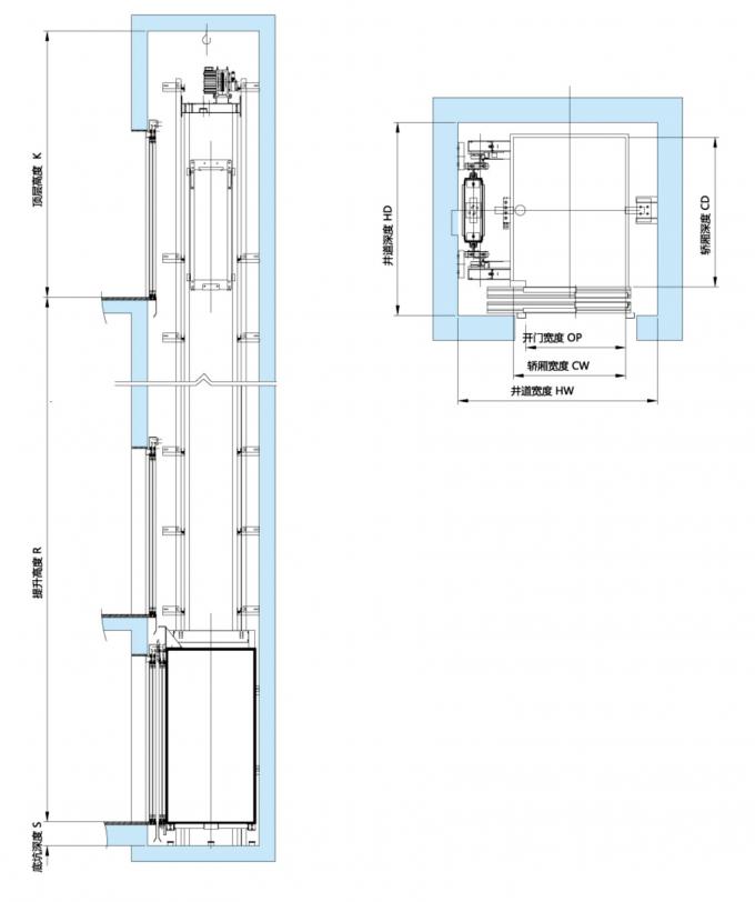
Раздел содержит готовые рабочие чертежи и грузопассажирских лифтов, лифтового оборудования и вспомогательных узлов, и блоков. Графическая информация, представленная в разделе, включает в себя структурированную информацию о лифтовом оборудовании, его типах и предназначении каждого рассматриваемого экземпляра. База включает в себя следующие виды чертежей:
- пассажирские кабины грузоподъемностью до 1000 кг с прямой подвеской;
- устройства и механизмы ограничения скорости пассажирских кабин;
- раздвижные двери кабин пассажирских лифтов;
- шкивы ограничительные и трехкулачковые патроны.

В совокупности с чертежами самих устройств и сопутствующего оборудования, на страницах раздела можно найти кинематические схемы и графические изображения отдельных узлов, блоков и механизмов, применяемых при построении лифтов. Представлены схемы подъемных механизмов, систем экстренной остановки, ограничения вертикальной скорости, узлов распределения нагрузки.
Все чертежи собраны в отдельные категории и выполнены в актуальных версиях популярных программ Компас 3D или AutoCAD. Информация о масштабе и возможности широкоформатной печати представлена в спецификации к чертежам.
Для кого этот раздел
Информация раздела заинтересует сотрудников строительных организаций, управляющих компаний, действующего персонала обслуживающих лифты предприятий и, учащихся по специальностям — «электромеханик лифтов» и аналогичных.
Нормативные требования и спецификация
Представленные в разделе проекты лифтов, механизмов и оборудования к ним соответствуют основным специальным требованиям системы конструкторской документации ГОСТ 3077-80.
Отдельные виды чертежей предусматривают возможность доработки и модернизации оборудования.
Дополнительный материал
Все представленные чертежи сопровождаются текстуальными файлами, подробно описывающими технические характеристики, назначение и основные требования к каждому конкретному образцу. В текстуальных файлах отражаются:
№ п/п | Наименование оборудования | Основные технические данные |
1 | Пассажирские лифты типа ПП-1000 грузоподъемностью до 1 тонны с прямым типом подвески | Индекс лифта, скорость движения кабины, максимальная высота подъема, минимальная высота верхнего этажа, количество остановок, тип применяемого привода |
2 | Автоматические ограничители скорости пассажирских лифтов | Максимальная грузоподъемность, внутренние размеры кабины, тип привода, частота вращения редуктора, тип применяемого тормоза, тормозной момент в Н*м, диаметр и длина каната |
3 | Раздвижные двери кабин пассажирских лифтов | Ширина и высота дверного проема, тип приводов дверей кабины и шахты с указаниями по установке и испытаниях, скорость вращения водила и шатуна к плоскости движения кареток |
4 | Шкивы, ограничивающие скорость и патроны трехкулачковые | Диаметр и ход поршня, сила зажима, усилие на штоке, величина рабочего давления, межосевое расстояние, передаточное число промежуточных шестерен, тип применяемого электромагнита |
Все информационные материалы и готовые наборы и комплекты чертежей, представленные на сайте доступны к скачиванию по ссылкам, размещенным на страницах сайта.
Личное меню
Техническая документация и чертежи лифтового оборудования Kleemann
Инструкция по системам контроля доступа
Описание гидравлического подъемника freeSTAIR (Vertiplat)
FreeSTAIR (Vertiplat) инструкция по эксплуатации и обслуживанию
Автомобильные лифтовые системы KTS
Автомобильный подъемник KPS
Автомобильный подъемник KTS
Руководство технического обслуживания лифтового гидрораспределителя
Инструкция по монтажу гидравлического подъемника Vertiplat
Инструкция по монтажу гидравлического подъемника Kleemann
Инструкция по обслуживанию лифтовых гидроагрегатов KLT и KLH
Гидравлический ножничный подъемник для машин
Чертеж сейсмоустойчивого лифта Kleemann
Инструкция по обслуживанию гидравлических лифтов Kleemann
Экологический лист для лифта Atlas Gigas R
Экологический лист для лифта Atlas Gigas RPH
Руководство по вводу в эксплуатацию инвертора ADL-300
Функциональное описание и параметры инвертора ADL-300
Руководство по монтажу лифта Atlas 2:1 — L
Описание и характеристики электрического лифта Atlas MR
Руководство по монтажу лифта Atlas MRL
Руководство по обслуживанию Atlas Gigas, 2:1, 1:1, Mini
Руководство по монтажу лифта Atlas Gigas MRL
Руководство по установке лифта HRS MRL
Руководство пользователя лифтовый гидрораспределитель
Инструкция по сборке лифтовой кабины Kleemann
Руководство п обслуживанию экалатора Kleemann KEC
Руководство пользователя к микропроцессорной системе KLLC 100
Руководство эксплуатации для траволатора KTC
Инструкция к электронной плате LISA Atlas
Руководство по эксплуатации Станции управления Lisa 20
Описание регулирующего гидроаппарата для лифтов Comfort Line
Руководство по эксплуатации аварийного телефона MICOME
Руководство по установке лифтовых дверей Kleemann
Описание малого гидравлического лифта с малым приямком FlexyLift
Руководство по быстрому запуску инвертора L1000A
Инструкция по сборке и установке лифтового гидроагрегата
Руководство эксплуатации лифта без машинного помещения Line 2000
Инструкция установки и настройки грузовзвешивающего устройства кабины лифта
Руководство аварийной эвакуации для лифта LINE 2000
Руководство по монтажу лифта LINE 2000
Схема монтажа станции управления LISA
Электрическая схема контроллера станции LISA
Руководство по эксплуатации лифта Traction MR
MAISON LIFT план шахты лифта
1.
100+ Чертеж лифта Иллюстрация, безвозмездная векторная графика и клип-арт
Иллюстрация
- Цвет
- Фото
- Иллюстрация
- Vektörler
- Видео
чертеж лифта videounu görüntüleyin
1.159
чертеж лифта безвозмездное сток иллюстраций и векторных рисунков inceleyin ve я daha fazla сток görsel ве вектор grafiği keşfetmek için йени бир арама başlatın.
Sırala:
En popüler
üç asansör, açık, kapalı ve yarı kapalı.
— рисунок иллюстраций лифта
Üç asansör, açık, kapalı ve yarı kapalı.
asansör düğmelere basmak kroki — рисунок лифта стоковые иллюстрации iç kroki illüstrasyon vektör
otel resepsiyon lobisi iç grafik siyah beyaz kroki illüstrasyon vektörü — рисунок лифта стоковые иллюстрации
Otel resepsiyon lobisi iç grafik siyah beyaz kroki illüstrasyon…
Door Doodles — рисунок лифта стоковые иллюстрации
Door Doodles
лифты — рисунок лифта стоковые иллюстрации syon vektör — чертеж лифта стоковые иллюстрации
Resepsiyon lobi iç grafik siyah beyaz eskiz illüstrasyon vektör
план чертежа лифта, братья Отис, Нью-Йорк — рисунок лифта стоковые иллюстрации
План-чертеж лифта, братья Отис, Нью-Йорк
dağ tatil hattı simgesi — köy binaları ile dağ manzarası beyaz arka plan üzerinde basit doğrusal illüstrasyon. vektör illüstrasyon — рисунок лифта стоковые иллюстрации
Dağ tatil hattı simgesi — köy binaları ile dağ manzarası beyaz…
лифт — рисунок лифта иллюстрации
лифт
asansör vektör illüstrasyonçalışan.
отель asansöründeki адам. bitkiler ile ofis koridoru iç. i̇şadamı toplantıya gidiyor. адай мюлаката гидиёр. beyaz arka planda çizgi film karakteri — рисунок лифта стоковые иллюстрации
Asansör вектор illustrasyonçalışan. Otel asansöründeki adam….
direk asansörleri ile yapım aşamasındaki bina — чертеж лифта фондовые иллюстрации asansör sahası, üç meslektaşıproje tartışıyor — чертеж лифта иллюстрации
Asansör sahası, üç meslektaşıproje tartışıyor
архитектурный план план вход — чертеж лифта иллюстрации
архитектурный план, чертеж входа
şirket ofisi Panorama daire vektör illustration — чертеж лифта векторные иллюстрации çizimi — рисунок лифта стоковые иллюстрации
Hastane Mimari Plan Çizimi
торговый центр — чертеж лифта стоковые иллюстрации
Торговый центр
motor çerçeveci motor vinç — чертеж лифта стоковые иллюстрации
Motor çerçeveci motor vinç
beyaz grafik illüstrasyon iç kroki siyah vektör — чертеж лифта фондовые иллюстрации 003 каракули лифта — рисунок лифта стоковые иллюстрации
Каракули лифта
boyama kitabı için çocuklar doğrusal çizim.
i̇nşaat ekipmanları yükleyici, линейный бульдозер. Endüstriyel Makine ve ekipmanlar. beyaz üzerinde yalıtılmış vektör — рисунок лифта стоковые иллюстрации
Boyama kitabı için çocuklar doğrusal çizim. İnşaat ekipmanları yük
странные ступеньки лестницы вверх и вниз. фронтальная перспектива. линейный рисунок. векторная иллюстрация. — рисунок лифта стоковые иллюстрации
Странные ступеньки лестницы вверх и вниз. Фронтальная перспектива. Линия…
прием в вестибюле отеля черно-белый графический интерьер эскиз иллюстрация вектор — рисунок лифта стоковые иллюстрации0016 Dağlar grafik siyah beyaz manzara Kayak insanlar illüstrasyon…
beyaz grafik illüstrasyon iç kroki siyah vektör — рисунок лифта стоковые иллюстрации Эйфелева башня — рисунок лифта стоковые иллюстрации
Перевалка в Эйфелевой башне
i̇ş sembolleri ınsan figürleri son çizim — рисунок лифта стоковые иллюстрации лер, 1893’te yayınlandı — рисунок лифта стоковые иллюстрации
Tarihi asansörler, ahşap gravürler, 1893’te yayınlandı
beyaz grafik illüstrasyon iç kroki siyah vektör — рисунок лифта стоковые иллюстрации
Beyaz grafik illüstrasyon i ç kroki siyah vektör
asansör sahası, iki genç erkek ve kadın — рисунок лифта фондовые иллюстрации пали.
elle çizilmiş — рисунок лифта стоковые иллюстрации
Üç asansör, açık, kapalı ve yarı kapalı. Elle çizilmiş
Vinç kancası tutan gülümseyen adam veya i̇şadamının vektör karikatürü, bir şeyi asma ve i̇şaretleme — рисунок лифта стоковые иллюстрации
Vinç Kancası Tutan Gülümseyen Adam veya İşadam ının Vektör Karikatü
yürüyen merdiven çizimleri — чертеж лифта стоковые иллюстрации
Юруйен merdiven çizimleri
inşaat simgeleri — чертеж лифта стоковые иллюстрации
inşaat simgeleri
forklift. значок вилочного погрузчика. погрузчик для склада и поддона. машина для распределения и доставки. желтый погрузчик, изолированные на белом фоне. оборудование для загрузки ящика. плоский погрузчик. вектор — рисунок лифта стоковые иллюстрации
Вилочный погрузчик. Значок вилочного погрузчика. Погрузчик для склада и поддона….
Лифт Ласерда в Сальвадоре, Бразилия — рисунок иллюстраций лифта
Лифт Ласерда в Сальвадоре, Бразилия 003 здание — чертеж лифта фондовые иллюстрации
здание
Бир эль dezenfektanı taşıyın, mesafe tutun ve poster tasarımları ile temas tan kaçının.
COVID-19йени коронавирус yayılan önleme posterleri. — рисунок иллюстраций лифта
Бир эль dezenfektanı taşıyın, mesafe tutun ve poster tasarımları…
otel odası piksel mükemmel doğrusal simgeler seti kiralama. тек кишилик ятаклар. Дайре Анахтари. киралама хизмети. özelleştirilebilir ince çizgi kontur sembolleri. yalıtılmış вектор анахат чизимлери. kullanılabilir kontur — чертеж иллюстраций лифта
Otel dası piksel mükemmel doğrusal simgeler seti kiralama. Тек…
sıcak hava balonları seti. web tasarımı, kırtasiye, el ilanları, çocuk ürünleri için düz vektör illüstrasyon — чертеж иллюстраций лифта
Sıcak hava balonları seti. Web tasarımı, kırtasiye, el ilanları, ç
Вилочный погрузчик разгружает грузовик. векторная иллюстрация. — чертеж лифта стоковые иллюстрации
Вилочный погрузчик разгружает грузовик. Векторная иллюстрация.
boyama kitabı için çocuklar doğrusal çizim. doğrusal inşaat ekipmanları traktör. Endüstriyel Makine ve ekipmanlar. beyaz üzerinde yalıtılmış vektör — рисунок лифта стоковые иллюстрации
Boyama kitabı için çocuklar doğrusal çizim.
Doğrusal inşaat…
hasta asansör lineer simgesi. fiziksel engelli ler kaldırıcı cihaz. transferim hareketsiz hastane hasta i̇nce çizgi illüstrasyon. контур символа. вектор yalıtılmış анахат çizimi. kullanılabilir kontur — чертеж иллюстраций лифта
Hasta asansör lineer simgesi. Fiziksel engelli ler kaldırıcı…
Сцена внутри торгового центра — рисунок лифта, иллюстрации
Сцена внутри торгового центра
ağır makine düz vektör çizimler set — рисунок лифта, иллюстрации
Ağır makine düz vektör çizimler набор
маленьких людей с романтическими воздушными шарами. — рисунок лифта стоковые иллюстрации
маленькие люди с романтическими воздушными шарами.
Измир. turkiye seyahat edin. ünlü Türk simgelerinin modern düz vektör illüstrasyonu. — рисунок лифта стоковые иллюстрации
Измир. Türkiye’ye seyahat edin. Ünlü Türk simgelerinin modern düz
ahşap merdiven suluboya. sembol süreç, büyüme, gücü, başlamak yukarıya. — рисунок иллюстраций лифта
Ahşap merdiven suluboya.
Sembol süreç, büyüme, gücü, başlamak…
паллет kamyon — doğrusal teknik çizim. Вилочный погрузчик depo için manuel — illüstrasyon, boyama kitabı. kargo taşımacılığı. палетлери, кутуляри ве маллари харекет эттирин. lojistik — чертеж иллюстраций лифта
паллет kamyon — doğrusal teknik çizim. вилочный погрузчик depo için manuel —
bi̇r traktör hi̇droli̇k asansör şemasi. açıklayıcı diyagram temel hidrolik asansör çalışma grafiği beyaz bir arka plan üzerinde sisteminin her bölümü adını icherir. — рисунок иллюстраций лифта
BİR TRAKTÖR HİDROLİK ASANSÖR ŞEMASI. Açıklayıcı diyagram temel…
пассажирский лифт в гавани Нью-Йорка, гравюра на дереве, опубликовано 1897 — чертеж лифта стоковые иллюстрации
Пассажирский лифт в гавани Нью-Йорка, гравюра на дереве, опубликовано…
вилочный погрузчик kamyon yükleme. vektör düz stil illustrasyon. — рисунок лифта стоковые иллюстрации
Вилочный погрузчик kamyon yükleme. Векторные иллюстрации.
редактируемый штрих ile el çizilmiş tekerlekli sandalye simgesi — рисунок лифта стоковые иллюстрации
Editable Stroke ile El Çizilmiş Tekerlekli Sandalye Simgesi
tahıl asansörü — рисунок лифта иллюстрации s
Otel Resepsiyon lobi iç grafik siyah beyaz eskiz illüstrasyon.
..
boş inşaat asansörü. вектор — рисунок лифта стоковые иллюстрации
Boş inşaat asansörü. Вектор
/20
1.900+ Чертеж лифта Иллюстрированные, безвозмездные векторные изображения и клип-арт
llüstrasyon
- Görsel
- Fotograf
- illüstrasyon
- Vektörler
- видео
лифт рисунок видеосуну görüntüleyin
1.947
лифт рисунок безвозмездное сток иллюстраций ве вектор графики inceleyin veya daha fazla stok görsel ve vektör grafiği keşfetmek için yeni bir ar ама башлатин.
Сирала:
En popüler
üç asansör, açık, kapalı ve yarı kapalı. — иллюстраций для рисования лифта
Üç asansör, açık, kapalı ve yarı kapalı.
emlak düzenlenebilir kontur çizgisi simgeleri — чертежи лифтов, иллюстрации
Emlak Düzenlenebilir Kontur Çizgisi Simgeleri
asansör düğmelere basmak kroki — лифты, чертежи, иллюстрации
Asansör düğmelere basmak kroki 90 003 line Real Estate Icons — Лифт рисунок стоковые иллюстрации
Line Real Estate Icons
emlak simge seti — Лифт рисунок стоковые иллюстрации
Emlak Simge Seti
emlak icon set — Лифт рисунок стоковые иллюстрации
Набор иконок Emlak
Direk asansörleri ile yapım aşamasındaki bina — иллюстраций для рисования лифта kullanılabilir контур. пиксель мюкеммель. set simgeler emlakçı, ev sigortası, satış, kira, yer, kamyon icherir. — иллюстраций для рисования лифта
Emlak — исходный векторный набор символов. Кулланилабилир контур.
koridor grafik siyah beyaz iç kroki illüstrasyon vektör — рисунок лифта стоковые иллюстрации
Koridor grafik siyah beyaz iç kroki illüstrasyon vektör
План чертежа лифта, Братья Отис, Нью-Йорк — чертеж лифта фондовые иллюстрации
План чертежа лифта, Братья Отис, Нью-Йорк
Уведомление о пожаре знак инструкции векторный набор.
пять различных версий. — векторный рисунок лифта
Набор векторных инструкций для знаков пожарной безопасности. Пять различных…
дверные каракули — рисунок лифта стоковые иллюстрации
Дверные каракули
mekanik çizimler. mühendislik иллюстрация арка план — чертеж лифта стоковые иллюстрации
Mekanik çizimler. Mühendislik Illustration arka plan
архитектурный план офисного здания — чертеж лифта фондовые иллюстрации
архитектурный план офисного здания
direk anahat kaldırır. вектор — рисунок лифта стоковые иллюстрации
Direk anahat kaldırır. Vektör
векторная изометрическая низкополигональная иконка лифта в разрезе — рисунок лифта стоковые иллюстрации0016 Иконки людей — Обычный
векторный изометрик офиса и плана — иллюстрированный рисунок лифта sepsiyon lobisi iç grafik siyah beyaz kroki illüstrasyon…
açık ve kapalı asansör kapıları anahat. önden görünüm kapı vektör çizim. — иллюстраций для рисования лифта
Açık ve kapalı Asansör kapıları anahat.
