Π‘ΠΎΠ΄Π΅ΡΠΆΠ°Π½ΠΈΠ΅
ΠΡΡΠ·ΠΎΠ²ΡΠ΅ ΡΠ΅Π»Π΅ΠΆΠΊΠΈ ΠΊΠΎΠ·Π»ΠΎΠ²ΡΡ ΠΊΡΠ°Π½ΠΎΠ² ΠΈ ΠΌΠ΅Ρ Π°Π½ΠΈΠ·ΠΌΡ ΠΈΡ ΠΏΠ΅ΡΠ΅Π΄Π²ΠΈΠΆΠ΅Π½ΠΈΡ
ΠΡΡΠ·ΠΎΠ²ΡΠ΅ ΡΠ΅Π»Π΅ΠΆΠΊΠΈ ΠΊΠΎΠ·Π»ΠΎΠ²ΡΡ ΠΊΡΠ°Π½ΠΎΠ² ΠΈ ΠΌΠ΅Ρ Π°Π½ΠΈΠ·ΠΌΡ ΠΈΡ Β ΠΏΠ΅ΡΠ΅Π΄Π²ΠΈΠΆΠ΅Π½ΠΈΡ
ΠΠ΅Ρ Π°Π½ΠΈΠ·ΠΌΠ°ΠΌΠΈ ΠΊΠΎΠ·Π»ΠΎΠ²ΡΡ ΠΊΡΠ°Π½ΠΎΠ² ΠΎΠ±ΡΠ΅Π³ΠΎ Π½Π°Π·Π½Π°ΡΠ΅Π½ΠΈΡ ΡΠ²Π»ΡΡΡΡΡ ΡΠ°Π±ΠΎΡΠΈΠ΅ ΠΌΠ΅Ρ Π°Π½ΠΈΠ·ΠΌΡ ΠΏΠΎΠ΄ΡΠ΅ΠΌΠ° Π³ΡΡΠ·Π°, ΠΏΠ΅ΡΠ΅Π΄Π²ΠΈΠΆΠ΅Π½ΠΈΡ ΡΠ΅Π»Π΅ΠΆΠΊΠΈ ΠΈ ΠΏΠ΅ΡΠ΅Π΄Π²ΠΈΠΆΠ΅Π½ΠΈΡ ΠΊΡΠ°Π½Π°. ΠΡΠΈ ΡΠΏΡΠ°Π²Π»ΡΠ΅ΠΌΠΎΠΌ Π·Π°Ρ Π²Π°ΡΠ΅ Π³ΡΡΠ·Π° Π²ΠΎΠ·ΠΌΠΎΠΆΠ½Π° ΡΡΡΠ°Π½ΠΎΠ²ΠΊΠ° Π΄Π²ΡΡ Π±Π°ΡΠ°Π±Π°Π½Π½ΠΎΠΉ Π»Π΅Π±Π΅Π΄ΠΊΠΈ β Π½Π°ΠΏΡΠΈΠΌΠ΅Ρ, ΠΏΠΎΠ΄ΡΠ΅ΠΌΠ° ΠΈ Π·Π°ΠΌΡΠΊΠ°Π½ΠΈΡ Π³ΡΠ΅ΠΉΡΠ΅ΡΠ°. ΠΠ½ΠΎΠ³Π΄Π° Π³ΡΡΠ·ΠΎΠ²ΡΠ΅ ΡΠ΅Π»Π΅ΠΆΠΊΠΈ ΠΎΠ±ΠΎΡΡΠ΄ΡΡΡ ΠΌΠ΅Ρ Π°Π½ΠΈΠ·ΠΌΠΎΠΌ ΠΏΠΎΠ²ΠΎΡΠΎΡΠ° Π»Π΅Π±Π΅Π΄ΠΊΠΈ, ΠΎΠ±Π΅ΡΠΏΠ΅ΡΠΈΠ²Π°ΡΡΠΈΠΌ ΠΎΡΠΈΠ΅Π½ΡΠ°ΡΠΈΡ Π³ΡΡΠ·Π° Π² ΠΏΠ»Π°Π½Π΅, Π° ΡΠ°ΠΊΠΆΠ΅ ΡΠΈΡΡΠ΅ΠΌΠ°ΠΌΠΈ ΠΆΠ΅ΡΡΠΊΠΎΠ³ΠΎ ΠΏΠΎΠ΄Π²Π΅ΡΠ° Π³ΡΡΠ·Π°, ΠΏΡΠ΅ΠΏΡΡΡΡΠ²ΡΡΡΠΈΠΌΠΈ ΡΠ°ΡΠΊΠ°ΡΠΈΠ²Π°Π½ΠΈΡ ΠΏΠΎΡΠ»Π΅Π΄Π½Π΅Π³ΠΎ.
ΠΠ±ΡΠΈΠΌΠΈ Π΄Π»Ρ Π²ΡΠ΅Ρ ΠΌΠ΅Ρ Π°Π½ΠΈΠ·ΠΌΠΎΠ² ΡΡΠ΅Π±ΠΎΠ²Π°Π½ΠΈΡΠΌΠΈ ΡΠ²Π»ΡΡΡΡΡ Π²ΠΎΠ·ΠΌΠΎΠΆΠ½ΠΎΡΡΡ ΠΈΡ Π΄Π΅ΠΌΠΎΠ½ΡΠ°ΠΆΠ° ΠΈ ΠΌΠΎΠ½ΡΠ°ΠΆΠ° Π±Π΅Π· ΡΠ°Π·Π±ΠΎΡΠΊΠΈ Π²ΡΠ΅Π³ΠΎ ΠΊΡΠ°Π½Π° ΠΈΠ»ΠΈ ΠΎΡΠ½ΠΎΠ²Π½ΡΡ ΡΠ»Π΅ΠΌΠ΅Π½ΡΠΎΠ² Π΅Π³ΠΎ ΠΌΠ΅ΡΠ°Π»Π»ΠΎΠΊΠΎΠ½ΡΡΡΡΠΊΡΠΈΠΈ. ΠΡΠΎ ΠΆΠ΅ ΡΠ°ΠΌΠΎΠ΅ Π½Π΅ΠΎΠ±Ρ ΠΎΠ΄ΠΈΠΌΠΎ ΠΎΠ±Π΅ΡΠΏΠ΅ΡΠΈΠ²Π°ΡΡ ΠΈ Π΄Π»Ρ ΡΠ·Π»ΠΎΠ² ΠΌΠ΅Ρ Π°Π½ΠΈΠ·ΠΌΠΎΠ²: Π·Π°ΠΌΠ΅Π½Π° Ρ ΠΎΠ΄ΠΎΠ²ΡΡ ΠΊΠΎΠ»Π΅ΠΎ Π½Π΅ Π΄ΠΎΠ»ΠΆΠ½Π° Π²ΡΠ·ΡΠ²Π°ΡΡ Π΄Π΅ΠΌΠΎΠ½ΡΠ°ΠΆ Ρ ΠΎΠ΄ΠΎΠ²ΡΡ ΡΠ΅Π»Π΅ΠΆΠ΅ΠΊ; Π·Π°ΠΌΠ΅Π½Π° ΠΊΠ°Π½Π°ΡΠ½ΡΡ Π±Π°ΡΠ°Π±Π°Π½ΠΎΠ² β Π΄Π΅ΠΌΠΎΠ½ΡΠ°ΠΆ Π³ΡΡΠ·ΠΎΠ²ΡΡ ΡΠ΅Π»Π΅ΠΆΠ΅ΠΊ ΠΈ Ρ. ΠΏ.
Π Π·Π°Π²ΠΈΡΠΈΠΌΠΎΡΡΠΈ ΠΎΡ ΠΊΠΎΠ½ΡΡΡΡΠΊΡΠΈΠΈ ΠΌΠΎΡΡΠ° Π³ΡΡΠ·ΠΎΠ²ΡΠ΅ ΡΠ΅Π»Π΅ΠΊΠΊΠΈ ΠΏΠΎ Π²ΠΈΠ΄Ρ Ρ
ΠΎΠ΄ΠΎΠ²ΠΎΠΉ ΡΠ°ΡΡΠΈ ΡΠ°Π·Π΄Π΅Π»ΡΡΡ Π½Π° ΠΏΠΎΠ΄Π²Π΅ΡΠ½ΡΠ΅ ΠΌΠΎΠ½ΠΎΡΠ΅Π»ΡΡΠΎΠ²ΡΠ΅ ΠΈ Π΄Π²ΡΡ
ΡΠ΅Π»ΡΡΠΎΠ²ΡΠ΅, ΠΎΠΏΠΎΡΠ½ΡΠ΅ Π΄Π»Ρ Π΄Π²ΡΡ
- ΠΈ ΠΎΠ΄Π½ΠΎΠ±Π°Π»ΠΎΡΠ½ΡΡ
ΠΊΡΠ°Π½ΠΎΠ², ΠΎΠ΄Π½ΠΎΡΠ΅Π»ΡΡΠΎΠ²ΡΠ΅ ΠΎΠΏΠΎΡΠ½ΡΠ΅, ΠΊΠΎΠ½ΡΠΎΠ»ΡΠ½ΠΎ-ΠΏΠΎΠ΄Π²Π΅ΡΠ½ΡΠ΅ Π΄Π»Ρ ΠΎΠ΄Π½ΠΎΠ±Π°Π»ΠΎΡΠ½ΡΡ
ΠΊΡΠ°Π½ΠΎΠ² ΠΈ ΠΊΠΎΠ½ΡΠΎΠ»ΡΠ½ΡΠ΅.
Π Π΅ΠΊΠ»Π°ΠΌΠ½ΡΠ΅ ΠΏΡΠ΅Π΄Π»ΠΎΠΆΠ΅Π½ΠΈΡ Π½Π° ΠΎΡΠ½ΠΎΠ²Π΅ Π²Π°ΡΠΈΡ ΠΈΠ½ΡΠ΅ΡΠ΅ΡΠΎΠ²:
ΠΠΎΠΏΠΎΠ»Π½ΠΈΡΠ΅Π»ΡΠ½ΡΠ΅ ΠΌΠ°ΡΠ΅ΡΠΈΠ°Π»Ρ ΠΏΠΎ ΡΠ΅ΠΌΠ΅:
Π Π·Π°Π²ΠΈΡΠΈΠΌΠΎΡΡΠΈ ΠΎΡ ΡΠ°Π·ΠΌΠ΅ΡΠ΅Π½ΠΈΡ ΠΏΡΠΈΠ²ΠΎΠ΄Π° ΠΌΠ΅Ρ Π°Π½ΠΈΠ·ΠΌΠ° ΠΏΠ΅ΡΠ΅Π΄Π²ΠΈΠΆΠ΅Π½ΠΈΡ ΠΈ ΠΏΠΎΠ΄ΡΠ΅ΠΌΠ° Π³ΡΡΠ·Π° ΡΠ°Π·Π»ΠΈΡΠ°ΡΡ ΡΠ΅Π»Π΅ΠΆΠΊΠΈ ΡΠ°ΠΌΠΎΡ ΠΎΠ΄Π½ΡΠ΅ ΠΈ Ρ ΠΊΠ°Π½Π°ΡΠ½ΠΎΠΉ ΡΡΠ³ΠΎΠΉ. ΠΠΎΡΠ»Π΅Π΄Π½ΠΈΠ΅ Π²ΡΠΏΠΎΠ»Π½ΡΡΡ ΡΠΎ ΡΡΠ°ΡΠΈΠΎΠ½Π°ΡΠ½ΡΠΌ ΡΠ°ΡΠΏΠΎΠ»ΠΎΠΆΠ΅Π½ΠΈΠ΅ΠΌ ΠΌΠ΅Ρ Π°Π½ΠΈΠ·ΠΌΠ° ΠΏΠΎΠ΄ΡΠ΅ΠΌΠ° Π³ΡΡΠ·Π° β Π½Π° ΠΌΠΎΡΡΡ, ΠΈΠ»ΠΈ Ρ ΡΡΡΠ°Π½ΠΎΠ²ΠΊΠΎΠΉ Π΅Π³ΠΎ Π½Π΅ΠΏΠΎΡΡΠ΅Π΄ΡΡΠ²Π΅Π½Π½ΠΎ Π½Π° Π³ΡΡΠ·ΠΎΠ²ΡΡ ΡΠ΅Π»Π΅ΠΆΠΊΡ. Π ΠΊΠΎΠ·Π»ΠΎΠ²ΡΡ ΠΊΡΠ°Π½Π°Ρ Π±ΠΎΠ»ΡΡΠΎΠΉ Π³ΡΡΠ·ΠΎΠΏΠΎΠ΄ΡΠ΅ΠΌΠ½ΠΎΡΡΠΈ (ΡΡΠ΄ΠΎΡΡΡΠΎΠΈΡΠ΅Π»ΡΠ½ΡΡ , ΠΌΠΎΠ½ΡΠ°ΠΆΠ½ΡΡ ΠΈ Π΄Ρ.) ΠΈΠ½ΠΎΠ³Π΄Π° ΠΏΡΠΈΠΌΠ΅Π½ΡΡΡ ΡΠ°ΠΌΠΎΡ ΠΎΠ΄Π½ΡΠ΅ Π³ΡΡΠ·ΠΎΠ²ΡΠ΅ ΡΠ΅Π»Π΅ΠΆΠΊΠΈ ΡΠΎ ΡΡΠ°ΡΠΈΠΎΠ½Π°ΡΠ½ΡΠΌ ΡΠ°ΡΠΏΠΎΠ»ΠΎΠΆΠ΅Π½ΠΈΠ΅ΠΌ ΠΌΠ΅Ρ Π°Π½ΠΈΠ·ΠΌΠ° ΠΏΠΎΠ΄ΡΠ΅ΠΌΠ° Π³ΡΡΠ·Π°. Π ΡΡΠΎΠΌ ΡΠ»ΡΡΠ°Π΅ ΠΌΠ΅Ρ Π°Π½ΠΈΠ·ΠΌ ΠΏΠ΅ΡΠ΅Π΄Π²ΠΈΠΆΠ΅Π½ΠΈΡ ΡΠ°ΡΡΠΎ ΠΈΠΌΠ΅Π΅Ρ Π·ΡΠ±ΡΠ°ΡΠΎ-ΡΠ΅Π΅ΡΠ½ΡΠΉ ΠΏΡΠΈΠ²ΠΎΠ΄.
ΠΡΡΠ·ΠΎΠ²ΡΠ΅ ΡΠ΅Π»Π΅ΠΆΠΊΠΈ Ρ ΠΊΠ°Π½Π°ΡΠ½ΡΠΌ ΠΏΡΠΈΠ²ΠΎΠ΄ΠΎΠΌ ΠΏΡΠΈΠΌΠ΅Π½ΡΡΡ ΠΏΡΠ΅ΠΈΠΌΡΡΠ΅ΡΡΠ²Π΅Π½Π½ΠΎ Π΄Π»Ρ ΠΊΡΠ°Π½ΠΎΠ² Π»Π΅Π³ΠΊΠΎΠ³ΠΎ ΠΈ ΡΡΠ΅Π΄Π½Π΅Π³ΠΎ ΡΠ΅ΠΆΠΈΠΌΠΎΠ² ΡΠ°Π±ΠΎΡΡ. ΠΠΎΡΡΠΎΠΈΠ½ΡΡΠ²ΠΎΠΌ ΠΈΡ
ΡΠ²Π»ΡΠ΅ΡΡΡ ΠΌΠ°Π»Π°Ρ ΠΏΠΎΠ΄Π²ΠΈΠΆΠ½Π°Ρ Π½Π°Π³ΡΡΠ·ΠΊΠ° (1,07 β¦ 1,10 Π½ΠΎΠΌΠΈΠ½Π°Π»ΡΠ½ΠΎΠ³ΠΎ Π³ΡΡΠ·Π°) Π½Π° ΠΌΠ΅ΡΠ°Π»Π»ΠΎΠΊΠΎΠ½ΡΡΡΡΠΊΡΠΈΡ. Π ΠΎΠ±ΡΠ»ΡΠΆΠΈΠ²Π°Π½ΠΈΠΈ ΠΈ ΡΠ΅ΠΌΠΎΠ½ΡΠ΅ ΠΊΡΠ°Π½Ρ Ρ ΠΊΠ°Π½Π°ΡΠ½ΡΠΌ ΠΏΡΠΈΠ²ΠΎΠ΄ΠΎΠΌ ΠΌΠ΅Π½Π΅Π΅ ΡΠ΄ΠΎΠ±Π½Ρ Π²ΡΠ»Π΅Π΄ΡΡΠ²ΠΈΠ΅ Π±ΡΡΡΡΠΎΠ³ΠΎ ΠΈΠ·Π½Π°ΡΠΈΠ²Π°Π½ΠΈΡ ΠΊΠ°Π½Π°ΡΠΎΠ². ΠΡΠΎΠΌΠ΅ ΡΠΎΠ³ΠΎ, ΠΏΡΠΎΠ²ΠΈΡΠ°Π½ΠΈΠ΅ ΠΏΠΎΡΠ»Π΅Π΄Π½ΠΈΡ
ΡΠΎΠ·Π΄Π°Π΅Ρ ΡΡΠ΄ Π½Π΅ΡΠ΄ΠΎΠ±ΡΡΠ² Π² ΡΠ°Π±ΠΎΡΠ΅: ΠΏΠΎΡΠ΅ΡΡ ΠΏΡΠΎΠΈΠ·Π²ΠΎΠ΄ΠΈΡΠ΅Π»ΡΠ½ΠΎΡΡΠΈ ΠΏΡΠΈ Π½Π΅ΠΎΠ±Ρ
ΠΎΠ΄ΠΈΠΌΠΎΡΡΠΈ ΡΠΎΡΠ½ΠΎΠΉ ΠΏΠΎΡΠ°Π΄ΠΊΠΈ Π³ΡΡΠ·Π°; ΠΎΡΠ½ΠΎΡΠΈΡΠ΅Π»ΡΠ½ΠΎ Π΄ΠΎΠ»Π³ΠΎ Π½Π΅Π·Π°ΡΡΡ
Π°ΡΡΠΈΠ΅ ΠΏΡΠΎΠ΄ΠΎΠ»ΡΠ½ΡΠ΅ ΠΊΠΎΠ»Π΅Π±Π°Π½ΠΈΡ ΡΠ΅Π»Π΅ΠΆΠΊΠΈ.
ΠΠ΅ΠΎΠ±Ρ
ΠΎΠ΄ΠΈΠΌΠΎ ΠΏΡΠΈΠΌΠ΅Π½ΡΡΡ ΡΡΠΎΡΠΎΠΏΠΎΠ΄Π΄Π΅ΡΠΆΠΊΠΈ ΠΈ Π»Π΅Π±Π΅Π΄ΠΊΠΈ Π΄Π»Ρ ΠΏΠΎΠ΄ΡΡΠ³ΠΈΠ²Π°Π½ΠΈΡ ΠΊΠ°Π½Π°ΡΠ° ΠΏΠ΅ΡΠ΅Π΄Π²ΠΈΠΆΠ΅Π½ΠΈΡ ΡΠ΅Π»Π΅ΠΆΠΊΠΈ, ΡΡΡΠΆΠ΅Π»ΡΡΡ Π±Π»ΠΎΡΠ½ΡΡ ΠΎΠ±ΠΎΠΉΠΌΡ. ΠΠΎΠ΄ΡΡΠ΅ΡΡ ΠΏΠΎΠΊΠ°Π·ΡΠ²Π°ΡΡ, ΡΡΠΎ Ρ ΡΡΠ΅ΡΠΎΠΌ Π·Π°ΡΡΠ°Ρ Π½Π° ΡΠ΅ΠΌΠΎΠ½Ρ ΠΈ ΡΠΎΠ΄Π΅ΡΠΆΠ°Π½ΠΈΠ΅ ΡΠ°ΠΊΠΎΠΉ ΡΠΈΠΏ ΡΠ΅Π»Π΅ΠΆΠ΅ΠΊ ΡΠ°ΡΡΠΎ ΡΡΡΡΠΏΠ°Π΅Ρ ΡΠ°ΠΌΠΎΡ
ΠΎΠ΄Π½ΡΠΌ ΠΏΡΠΈΠ²ΠΎΠ΄Π½ΡΠΌ.
ΠΠ΄Π½Π°ΠΊΠΎ Π²Π²ΠΈΠ΄Ρ ΡΡΡΠ΄Π½ΠΎΡΡΠ΅ΠΉ ΠΊΠΎΠΌΠΏΠ»Π΅ΠΊΡΠ°ΡΠΈΠΈ ΠΌΠ΅Ρ Π°Π½ΠΈΠ·ΠΌΠΎΠ² ΠΏΠ΅ΡΠ΅Π΄Π²ΠΈΠΆΠ΅Π½ΠΈΡ ΠΌΠ°Π»ΠΎΠ³Π°Π±Π°ΡΠΈΡΠ½ΡΠΌΠΈ ΡΠ΅Π΄ΡΠΊΡΠΎΡΠ°ΠΌΠΈ ΡΠ΅Π»Π΅ΠΆΠΊΠΈ Ρ ΠΊΠ°Π½Π°ΡΠ½ΠΎΠΉ ΡΡΠ³ΠΎΠΉ Π½Π΅ΡΠ΅Π΄ΠΊΠΎ ΠΏΡΠΈΠΌΠ΅Π½ΡΡΡ ΠΈ Π² Π½ΠΎΠ²ΡΡ ΠΊΠΎΠ½ΡΡΡΡΠΊΡΠΈΡΡ ΠΊΡΠ°Π½ΠΎΠ² Ρ ΠΏΠΎΠ΄Π²Π΅ΡΠ½ΡΠΌΠΈ ΡΠ΅Π»Π΅ΠΆΠΊΠ°ΠΌΠΈ.
Π Π°ΡΡΠΌΠΎΡΡΠΈΠΌ ΠΎΡΠ΄Π΅Π»ΡΠ½ΡΠ΅ ΡΠΈΠΏΡ Π³ΡΡΠ·ΠΎΠ²ΡΡ ΡΠ΅Π»Π΅ΠΆΠ΅ΠΊ.
ΠΠΎΠ½ΠΎΡΠ΅Π»ΡΡΠΎΠ²ΡΠ΅ ΠΏΠΎΠ΄Π²Π΅ΡΠ½ΡΠ΅ ΡΠ΅Π»Π΅ΠΆΠΊΠΈ. ΠΠ°ΠΈΠ±ΠΎΠ»ΡΡΠ΅Π΅ ΡΠ°ΡΠΏΡΠΎΡΡΡΠ°Π½Π΅Π½ΠΈΠ΅ ΠΏΠΎΠ»ΡΡΠΈΠ»ΠΈ ΠΏΠ΅ΡΠ΅Π΄Π²ΠΈΠΆΠ½ΡΠ΅ ΡΠ»Π΅ΠΊΡΡΠΈΡΠ΅ΡΠΊΠΈΠ΅ ΡΠ°Π»ΠΈ (ΡΠ΅Π»ΡΡΠ΅ΡΡ). Π Π½Π°ΡΡΠΎΡΡΠ΅Π΅ Π²ΡΠ΅ΠΌΡ ΠΎΡΠ΅ΡΠ΅ΡΡΠ²Π΅Π½Π½ΠΎΠΉ ΠΏΡΠΎΠΌΡΡΠ»Π΅Π½Π½ΠΎΡΡΡΡ ΠΎΡΠ²ΠΎΠ΅Π½ Π²ΡΠΏΡΡΠΊ ΡΠ°Π»Π΅ΠΉ ΡΠΈΠΏΠ° Π’Π ΠΏΠΎ ΠΠΠ‘Π’ 22584β77 Π³ΡΡΠ·ΠΎΠΏΠΎΠ΄ΡΠ΅ΠΌΠ½ΠΎΡΡΡΡ 0,25 β¦ 5,0 Ρ.
Π’Π°ΠΊΠΈΠ΅ ΡΠ°Π»ΠΈ ΠΏΡΠ΅Π΄Π½Π°Π·Π½Π°ΡΠ΅Π½Ρ ΠΏΡΠ΅ΠΈΠΌΡΡΠ΅ΡΡΠ²Π΅Π½Π½ΠΎ Π΄Π»Ρ Π²Π½ΡΡΡΠΈΡΠ΅Ρ
ΠΎΠ²ΠΎΠ³ΠΎ ΡΡΠ°Π½ΡΠΏΠΎΡΡΠ°; ΠΎΠ½ΠΈ ΠΈΠΌΠ΅ΡΡ Π½Π΅Π±ΠΎΠ»ΡΡΡΡ ΠΌΠ°ΡΡΡ ΠΈ Π³Π°Π±Π°ΡΠΈΡΠ½ΡΠ΅ ΡΠ°Π·ΠΌΠ΅ΡΡ. ΠΡ
ΠΈΠ·Π³ΠΎΡΠΎΠ²Π»ΡΡΡ ΠΊΡΡΠΏΠ½ΡΠΌΠΈ ΡΠ΅ΡΠΈΡΠΌΠΈ. ΠΡΠΈ ΠΎΠ±ΡΡΠΎΡΡΠ΅Π»ΡΡΡΠ²Π° ΠΎΠ±ΡΡΠ»ΠΎΠ²ΠΈΠ»ΠΈ ΡΠΈΡΠΎΠΊΠΎΠ΅ ΠΏΡΠΈΠΌΠ΅Π½Π΅Π½ΠΈΠ΅ ΡΠ°Π»Π΅ΠΉ Π² ΠΊΠΎΠ·Π»ΠΎΠ²ΡΡ
ΠΊΡΠ°Π½Π°Ρ
Π»Π΅Π³ΠΊΠΎΠ³ΠΎ ΠΈ ΡΡΠ΅Π΄Π½Π΅Π³ΠΎ ΡΠ΅ΠΆΠΈΠΌΠΎΠ² ΡΠ°Π±ΠΎΡΡ ΠΈ ΡΠΎΠΎΡΠ²Π΅ΡΡΡΠ²ΡΡΡΠ΅ΠΉ Π³ΡΡΠ·ΠΎΠΏΠΎΠ΄ΡΠ΅ΠΌΠ½ΠΎΡΡΠΈ.![]()
ΠΠ΄Π½Π°ΠΊΠΎ ΡΠ»Π΅Π΄ΡΠ΅Ρ ΠΈΠΌΠ΅ΡΡ Π² Π²ΠΈΠ΄Ρ, ΡΡΠΎ ΡΠ΅Ρ Π½ΠΈΡΠ΅ΡΠΊΠΈΠ΅ Ρ Π°ΡΠ°ΠΊΡΠ΅ΡΠΈΡΡΠΈΠΊΠΈ ΠΈ ΡΠΊΡΠΏΠ»ΡΠ°ΡΠ°ΡΠΈΠΎΠ½Π½ΡΠ΅ ΠΊΠ°ΡΠ΅ΡΡΠ²Π° ΡΠ»Π΅ΠΊΡΡΠΎΡΠ°Π»Π΅ΠΉ Π½Π΅ ΠΏΠΎΠ»Π½ΠΎΡΡΡΡ ΡΠ΄ΠΎΠ²Π»Π΅ΡΠ²ΠΎΡΡΡΡ ΡΡΠ»ΠΎΠ²ΠΈΡΠΌ ΡΠ°Π±ΠΎΡΡ Π½Π° ΠΊΠΎΠ·Π»ΠΎΠ²ΡΡ ΠΊΡΠ°Π½Π°Ρ . Π’Π°Π»ΠΈ Π½Π΅Π΄ΠΎΡΡΠ°ΡΠΎΡΠ½ΠΎ.Π·Π°ΡΠΈΡΠ΅Π½Ρ ΠΎΡ Π°ΡΠΌΠΎΡΡΠ΅ΡΠ½ΡΡ ΠΎΡΠ°Π΄ΠΊΠΎΠ². ΠΠΎΡΡΠΎΠΌΡ Π½Π° ΠΌΠΎΡΡΡ ΠΊΡΠ°Π½Π° ΡΠ»Π΅Π΄ΡΠ΅Ρ ΠΏΡΠ΅Π΄ΡΡΠΌΠ°ΡΡΠΈΠ²Π°ΡΡ ΡΠΏΠ΅ΡΠΈΠ°Π»ΡΠ½ΡΠΉ ΡΡΠΎΡΠ½ΠΎΡΠ½ΡΠΉ ΡΡΠ°ΡΡΠΎΠΊ, ΠΎΠ±ΠΎΡΡΠ΄ΠΎΠ²Π°Π½Π½ΡΠΉ ΡΠΈΡΠΎΠΌ, ΠΏΡΠ΅Π΄ΠΎΡΠ²ΡΠ°ΡΠ°ΡΡΠΈΠΌ ΠΏΠΎΠΏΠ°Π΄Π°Π½ΠΈΠ΅ ΠΎΡΠ°Π΄ΠΊΠΎΠ² Π½Π° ΠΊΠΎΡΠΏΡΡ ΡΠ»Π΅ΠΊΡΡΠΎΡΠ°Π»ΠΈ.
Π‘Π΅ΡΠΈΠΉΠ½ΠΎ Π²ΡΠΏΡΡΠΊΠ°Π΅ΠΌΡΠ΅ ΡΠ°Π»ΠΈ ΠΈΠΌΠ΅ΡΡ ΠΎΠ΄Π½Ρ ΡΠΊΠΎΡΠΎΡΡΡ ΠΏΠΎΠ΄ΡΠ΅ΠΌΠ° Π³ΡΡΠ·Π° (0,13 ΠΌ/Ρ) ΠΈ ΠΏΠ΅ΡΠ΅Π΄Π²ΠΈΠΆΠ΅Π½ΠΈΡ (0,33 ΠΌ/Ρ), ΡΡΠΎ Π½Π΅ Π²ΡΠ΅Π³Π΄Π° ΡΠ΄ΠΎΠ²Π»Π΅ΡΠ²ΠΎΡΡΠ΅Ρ ΡΡΠ»ΠΎΠ²ΠΈΡΠΌ ΡΠ°Π±ΠΎΡΡ. ΠΡΡΡΡΡΡΠ²ΡΠ΅Ρ ΡΠΎΡΠΌΠΎΠ· ΠΌΠ΅Ρ Π°Π½ΠΈΠ·ΠΌΠ° ΠΏΠ΅ΡΠ΅Π΄Π²ΠΈΠΆΠ΅Π½ΠΈΡ; ΡΡΠΎ ΡΠ΅Π·ΠΊΠΎ ΡΠ½ΠΈΠΆΠ°Π΅Ρ ΡΠΎΡΠ½ΠΎΡΡΡ ΠΎΡΡΠ°Π½ΠΎΠ²ΠΊΠΈ ΡΠ°Π»ΠΈ ΠΈ Π½Π΅ Π³Π°ΡΠ°Π½ΡΠΈΡΡΠ΅Ρ Π΅Π΅ ΠΎΡ ΡΠ°ΠΌΠΎΠΏΡΠΎΠΈΠ·Π²ΠΎΠ»ΡΠ½ΠΎΠ³ΠΎ ΠΏΠ΅ΡΠ΅ΠΌΠ΅ΡΠ΅Π½ΠΈΡ Π²Π΄ΠΎΠ»Ρ ΠΌΠΎΡΡΠ° ΠΏΡΠΈ Π΄Π΅ΠΉΡΡΠ²ΠΈΠΈ ΡΠ»ΡΡΠ°ΠΉΠ½ΡΡ Π½Π°Π³ΡΡΠ·ΠΎΠΊ. ΠΡΡΠΊΠΎΠ²Π°Ρ ΠΎΠ±ΠΎΠΉΠΌΠ°, ΠΏΠΎΠ΄Π²Π΅ΡΠ΅Π½Π½Π°Ρ Π½Π° Π΄Π²ΡΡ Π²Π΅ΡΠ²ΡΡ , ΡΠ»Π°Π±ΠΎ ΡΠΎΠΏΡΠΎΡΠΈΠ²Π»ΡΠ΅ΡΡΡ Π·Π°ΠΊΡΡΡΠΈΠ²Π°Π½ΠΈΡ, Π½Π΅ΠΈΠ·Π±Π΅ΠΆΠ½ΠΎΠΌΡ ΠΏΡΠΈ Π½Π°Π²Π΅ΡΠΊΠ΅ Π½Π° ΠΊΡΡΠΊ ΠΏΠΎΠ²ΠΎΡΠΎΡΠ½ΠΎΠ³ΠΎ Π·Π°Ρ Π²Π°ΡΠ½ΠΎΠ³ΠΎ ΠΎΡΠ³Π°Π½Π°.
Π ΡΡΠ΄Π΅ ΡΠ»ΡΡΠ°Π΅Π² Π½Π° ΠΊΠΎΠ·Π»ΠΎΠ²ΡΠ΅ ΠΊΡΠ°Π½Ρ ΡΡΡΠ°Π½Π°Π²Π»ΠΈΠ²Π°ΡΡ ΡΠ°Π»ΠΈ Π³ΡΡΠ·ΠΎΠΏΠΎΠ΄ΡΠ΅ΠΌΠ½ΠΎΡΡΡΡ 10 Ρ ΡΠΈΠΏΠ° Π’Π, Π²ΡΠΏΡΡΠΊΠ°Π΅ΠΌΡΠ΅ Π₯Π°ΡΡΠΊΠΎΠ²ΡΠΊΠΈΠΌ Π·Π°Π²ΠΎΠ΄ΠΎΠΌ ΠΠ’Π ΠΈΠΌ. Π. Π. ΠΠ΅Π½ΠΈΠ½Π°; Π½Π°Ρ
ΠΎΠ΄ΡΡ ΠΏΡΠΈΠΌΠ΅Π½Π΅Π½ΠΈΠ΅ ΡΠ°ΠΊΠΆΠ΅ ΠΈ ΠΏΠΎΡΡΠ°Π²Π»ΡΠ΅ΠΌΡΠ΅ ΠΈΠ· ΠΠ Π ΡΠ°Π»ΠΈ Π³ΡΡΠ·ΠΎΠΏΠΎΠ΄ΡΠ΅ΠΌΠ½ΠΎΡΡΡΡ Π΄ΠΎ 5 Ρ, ΠΏΠΎ ΡΠ²ΠΎΠΈΠΌ ΠΏΠΎΠΊΠ°Π·Π°ΡΠ΅Π»ΡΠΌ Π±Π»ΠΈΠ·ΠΊΠΈΠ΅ ΠΊ ΡΠ°Π»ΡΠΌ Π’Π.
ΠΠ΄Π½Π°ΠΊΠΎ ΡΠ°Π»ΠΈ ΠΠ Π ΠΈΠΌΠ΅ΡΡ ΡΠΎΡΠΌΠΎΠ·Π° Π½Π° ΠΌΠ΅Ρ
Π°Π½ΠΈΠ·ΠΌΠ°Ρ
ΠΏΠ΅ΡΠ΅Π΄Π²ΠΈΠΆΠ΅Π½ΠΈΡ.
Π ΠΊΡΠ°Π½Π°Ρ ΠΏΡΠΎΠΈΠ·Π²ΠΎΠ΄ΡΡΠ²Π° Π½Π΅ΠΊΠΎΡΠΎΡΡΡ Π·Π°ΡΡΠ±Π΅ΠΆΠ½ΡΡ ΡΠΈΡΠΌ ΠΈΡΠΏΠΎΠ»ΡΠ·ΡΡΡ ΡΠ»Π΅ΠΊΡΡΠΎΡΠ°Π»ΠΈ Ρ ΡΠ²Π΅Π»ΠΈΡΠ΅Π½Π½ΡΠΌ ΠΏΠΎ ΡΠΈΡΠΈΠ½Π΅ ΡΠ°ΡΡΡΠΎΡΠ½ΠΈΠ΅ΠΌ ΠΌΠ΅ΠΆΠ΄Ρ Ρ ΠΎΠ΄ΠΎΠ²ΡΠΌΠΈ ΠΊΠΎΠ»Π΅ΡΠ°ΠΌΠΈ. Π’Π°ΠΊΠΈΠ΅ ΡΠ°Π»ΠΈ, ΠΏΠ΅ΡΠ΅ΠΌΠ΅ΡΠ°ΡΡΠΈΠ΅ΡΡ ΠΏΠΎ ΠΊΡΠ°ΡΠΌ Π½ΠΈΠΆΠ½ΠΈΡ ΠΏΠΎΠ»ΠΎΠΊ ΠΊΠΎΡΠΎΠ±ΡΠ°ΡΡΡ Π±Π°Π»ΠΎΠΊ, ΠΎΠ±Π»Π°Π΄Π°ΡΡ Ρ ΠΎΡΠΎΡΠ΅ΠΉ ΠΏΠΎΠΏΠ΅ΡΠ΅ΡΠ½ΠΎΠΉ ΡΡΡΠΎΠΉΡΠΈΠ²ΠΎΡΡΡΡ.
ΠΡΠΈ ΠΈΡΠΏΠΎΠ»ΡΠ·ΠΎΠ²Π°Π½ΠΈΠΈ ΡΠ°Π»Π΅ΠΉ Π½ΡΠΆΠ½ΠΎ ΠΈΠΌΠ΅ΡΡ Π² Π²ΠΈΠ΄Ρ, ΡΡΠΎ Π² ΡΡΠ΄Π΅ ΠΈΡ ΠΊΠΎΠ½ΡΡΡΡΠΊΡΠΈΠΉ ΠΏΠΎ ΠΌΠ΅ΡΠ΅ ΠΏΠΎΠ΄ΡΠ΅ΠΌΠ° Π³ΡΡΠ·Π° Π³ΡΡΠ·ΠΎΠ²Π°Ρ ΠΏΠΎΠ΄Π²Π΅ΡΠΊΠ° ΡΠΌΠ΅ΡΠ°Π΅ΡΡΡ Π²Π΄ΠΎΠ»Ρ Π±Π°ΡΠ°Π±Π°Π½Π°, ΡΡΠΎ ΠΎΠ±ΡΡΠ»ΠΎΠ²Π»ΠΈΠ²Π°Π΅Ρ Π½Π΅ΡΠ°Π²Π½ΠΎΠΌΠ΅ΡΠ½ΠΎΠ΅ ΡΠ°ΡΠΏΡΠ΅Π΄Π΅Π»Π΅Π½ΠΈΠ΅ Π½Π°Π³ΡΡΠ·ΠΎΠΊ Π½Π° Ρ ΠΎΠ΄ΠΎΠ²ΡΠ΅ ΠΊΠΎΠ»Π΅ΡΠ°.
Π Π·ΠΈΠΌΠ½Π΅Π΅ Π²ΡΠ΅ΠΌΡ Π΅Π·Π΄ΠΎΠ²ΡΠ΅ ΠΏΠΎΠ»ΠΊΠΈ ΠΌΠΎΠ½ΠΎΡΠ΅Π»ΡΡΠΎΠ² ΠΌΠΎΠ³ΡΡ ΠΏΠΎΠΊΡΡΠ²Π°ΡΡΡΡ ΡΠ½Π΅Π³ΠΎΠΌ ΠΈ Π»ΡΠ΄ΠΎΠΌ, ΡΡΠΎ Π²ΡΠ·ΡΠ²Π°Π΅Ρ ΠΏΡΠΎΠ±ΡΠΊΡΠΎΠ²ΡΠ²Π°Π½ΠΈΠ΅ Ρ ΠΎΠ΄ΠΎΠ²ΡΡ ΠΊΠΎΠ»Π΅Ρ. ΠΠΎΡΡΠΎΠΌΡ Π΄Π»Ρ ΡΠ»ΡΡΡΠ΅Π½ΠΈΡ ΡΠ°Π±ΠΎΡΡ ΠΌΠ΅Ρ Π°Π½ΠΈΠ·ΠΌΠ° ΠΏΠ΅ΡΠ΅Π΄Π²ΠΈΠΆΠ΅Π½ΠΈΡ Π½Π° ΠΌΠ΅ΡΡΠ°Ρ ΡΠΊΡΠΏΠ»ΡΠ°ΡΠ°ΡΠΈΠΈ Π½Π° Ρ ΠΎΠ΄ΠΎΠ²ΡΡ ΡΠ΅Π»Π΅ΠΆΠΊΠ°Ρ ΡΠ»Π΅ΠΊΡΡΠΎΡΠ°Π»ΠΈ ΠΈΠ½ΠΎΠ³Π΄Π° ΠΌΠΎΠ½ΡΠΈΡΡΡΡ ΡΡΠ°Π»ΡΠ½ΡΠ΅ ΡΠ΅ΡΠΊΠΈ, ΠΎΡΠΈΡΠ°ΡΡΠΈΠ΅ ΠΏΠΎΠ»ΠΊΠΈ.
Π ΡΡΠ΄Π΅ ΡΠ»ΡΡΠ°Π΅Π² ΠΊΠΎΠ·Π»ΠΎΠ²ΡΠ΅ ΠΊΡΠ°Π½Ρ ΠΎΠ±ΠΎΡΡΠ΄ΡΡΡ ΠΌΠΎΠ½ΠΎΡΠ΅Π»ΡΡΠΎΠ²ΡΠΌΠΈ Π³ΡΠ΅ΠΉΡΠ΅ΡΠ½ΡΠΌΠΈ ΠΈΠ»ΠΈ ΠΌΠ°Π³Π½ΠΈΡΠ½ΡΠΌΠΈ ΡΠ΅Π»Π΅ΠΆΠΊΠ°ΠΌΠΈ, Π²ΡΠΏΠΎΠ»Π½Π΅Π½Π½ΡΠΌΠΈ Ρ ΠΏΡΠΈΠΌΠ΅Π½Π΅Π½ΠΈΠ΅ΠΌ ΠΌΠ΅Ρ Π°Π½ΠΈΠ·ΠΌΠΎΠ² ΠΏΠΎΠ΄ΡΠ΅ΠΌΠ° ΠΈ ΠΏΠ΅ΡΠ΅Π΄Π²ΠΈΠΆΠ΅Π½ΠΈΡ ΡΠ»Π΅ΠΊΡΡΠΎΡΠ°Π»Π΅ΠΉ.
Π ΠΊΠ°ΡΠ΅ΡΡΠ²Π΅ ΠΏΡΠΈΠΌΠ΅ΡΠ° ΠΊΠΎΠ½ΡΡΡΡΠΊΡΠΈΠΈ ΠΌΠΎΠ½ΠΎΡΠ΅Π»ΡΡΠΎΠ²ΠΎΠΉ ΠΊΠ°Π½Π°ΡΠ½ΠΎΠΉ Π³ΡΡΠ·ΠΎΠ²ΠΎΠΉ ΡΠ΅Π»Π΅ΠΆΠΊΠΈ ΠΌΠΎΠΆΠ΅Ρ Π±ΡΡΡ ΡΠ°ΡΡΠΌΠΎΡΡΠ΅Π½Π° ΡΠ΅Π»Π΅ΠΆΠΊΠ° ΠΊΡΠ°Π½Π° Π³ΡΡΠ·ΠΎΠΏΠΎΠ΄ΡΠ΅ΠΌΠ½ΠΎΡΡΡΡ 10 Ρ, ΠΎΠΏΠΈΡΠ°ΡΡΠ°ΡΡΡ Π½Π° 12 Ρ
ΠΎΠ΄ΠΎΠ²ΡΡ
ΠΊΠΎΠ»Π΅Ρ Π΄ΠΈΠ°ΠΌΠ΅ΡΡΠΎΠΌ 170 ΠΌΠΌ (ΡΠΈΡ.
60). ΠΠΎΠ»Π΅ΡΠ° ΠΎΠ±ΡΠ΅Π΄ΠΈΠ½Π΅Π½Ρ ΡΡΠ΅ΠΌΡ Π±Π°Π»Π°Π½ΡΠΈΡΠ°ΠΌΠΈ, ΠΎΠ±ΡΠ°Π·ΡΡΡΠΈΠΌΠΈ ΡΠ΅ΡΡΡΠ΅Ρ
- ΠΈ Π²ΠΎΡΡΠΌΠΈΠΊΠΎΠ»Π΅ΡΠ½ΡΠ΅ ΡΠ΅Π»Π΅ΠΆΠΊΠΈ. ΠΠ°ΠΆΠ΄ΡΠΉ Π±Π°Π»Π°Π½ΡΠΈΡ ΠΈΠΌΠ΅Π΅Ρ Π΄Π²Π΅ Π»ΠΈΡΡΠΎΠ²ΡΠ΅ ΡΠ΅ΠΊΠΈ Ρ Π²Π²Π°ΡΠ΅Π½Π½ΡΠΌΠΈ ΠΌΠ΅ΠΆΠ΄Ρ Π½ΠΈΠΌΠΈ Π²ΡΡΠ»ΠΊΠ°ΠΌΠΈ Π΄Π»Ρ ΠΎΡΠ΅ΠΉ ΠΊΠΎΠ»Π΅Ρ.
Π ΠΈΡ. 60. ΠΠΎΠ½ΠΎΡΠ΅Π»ΡΡΠΎΠ²Π°Ρ ΠΊΡΡΠΊΠΎΠ²Π°Ρ Π³ΡΡΠ·ΠΎΠ²Π°Ρ ΠΊΠ°Π½Π°ΡΠ½Π°Ρ ΡΠ΅Π»Π΅ΠΆΠΊΠ° Π³ΡΡΠ·ΠΎΠΏΠΎΠ΄ΡΠ΅ΠΌΠ½ΠΎΡΡΡΡ 10 Ρ
Π§Π΅ΡΡΡΠ΅Ρ ΠΊΠΎΠ»Π΅ΡΠ½Π°Ρ ΡΠ΅Π»Π΅ΠΆΠΊΠ° ΡΠΎΡΡΠΎΠΈΡ ΠΈΠ· Π΄Π²ΡΡ Π±ΠΎΠΊΠΎΠ²ΠΈΠ½, ΡΡΠΈΠ»Π΅Π½Π½ΡΡ Π²Π΅ΡΡΠΈΠΊΠ°Π»ΡΠ½ΡΠΌ Π½Π°ΡΡΠΆΠ½ΡΠΌ ΠΈ Π³ΠΎΡΠΈΠ·ΠΎΠ½ΡΠ°Π»ΡΠ½ΡΠΌ Π²Π½ΡΡΡΠ΅Π½Π½ΠΈΠΌ ΡΠ²Π΅Π»Π»Π΅ΡΠΎΠΌ. ΠΠ°Π»Π°Π½ΡΠΈΡΡ ΡΠ²ΠΎΠΈΠΌΠΈ ΡΠ΅ΠΊΠ°ΠΌΠΈ ΠΎΡ Π²Π°ΡΡΠ²Π°ΡΡ Π²Π΅ΡΡ Π½ΡΡ ΡΠ°ΡΡΡ Π±ΠΎΠΊΠΎΠ²ΠΈΠ½ ΠΈ ΡΠΎΠ΅Π΄ΠΈΠ½ΡΡΡΡΡ Ρ Π½ΠΈΠΌΠΈ ΠΏΠ°Π»ΡΡΠ°ΠΌΠΈ. ΠΠ΅ΠΆΠ΄Ρ ΡΠΎΠ±ΠΎΠΉ Π±ΠΎΠΊΠΎΠ²ΠΈΠ½Ρ ΡΠΎΠ΅Π΄ΠΈΠ½Π΅Π½Ρ ΡΠΏΠΈΠ»ΡΠΊΠ°ΠΌΠΈ Ρ ΡΠ°ΡΠΏΠΎΡΠ½ΡΠΌΠΈ Π²ΡΡΠ»ΠΊΠ°ΠΌΠΈ.
ΠΠ½Π°Π»ΠΎΠ³ΠΈΡΠ½ΠΎ ΡΠΎΠ±ΡΠ°Π½Π° Π²ΠΎΡΡΠΌΠΈΠΊΠΎΠ»Π΅ΡΠ½Π°Ρ ΡΠ΅Π»Π΅ΠΆΠΊΠ°, ΡΠ°ΠΊΠΆΠ΅ ΠΈΠΌΠ΅ΡΡΠ°Ρ Π² ΡΠ΅ΡΠ΅Π΄ΠΈΠ½Π΅ ΠΎΡΡ Π΄Π»Ρ ΠΏΠΎΠ΄Π²Π΅ΡΠΊΠΈ ΡΠ°ΠΌΡ Π±Π»ΠΎΠΊΠΎΠ². ΠΠ° ΡΡΠ΅Π΄Π½Π΅ΠΉ ΡΠ°ΡΡΠΈ ΡΡΠΈΡ ΠΎΡΠ΅ΠΉ ΡΡΡΠ°Π½ΠΎΠ²Π»Π΅Π½Ρ ΡΠ°ΡΠΎΠ²ΡΠ΅ ΡΠ°ΡΠ½ΠΈΡΡ. Π¨Π°ΡΠ½ΠΈΡΡ ΡΠΌΠ°Π·ΡΠ²Π°ΡΡΡΡ ΡΠ΅ΡΠ΅Π· ΡΠ²Π΅ΡΠ»Π΅Π½ΠΈΡ Π² ΠΎΡΡΡ . Π Π°ΠΌΠ° Ρ Π±Π»ΠΎΠΊΠ°ΠΌΠΈ Π΄Π»Ρ ΠΏΠΎΠ»ΠΈΡΠΏΠ°ΡΡΠ° ΠΏΠΎΠ΄ΡΠ΅ΠΌΠ° Π³ΡΡΠ·Π° ΠΏΠΎΠ΄Π²Π΅ΡΠΈΠ²Π°Π΅ΡΡΡ Π² Π΄Π²ΡΡ ΡΠΎΡΠΊΠ°Ρ . Π’ΠΎΡΠΊΠΈ ΠΏΠΎΠ΄Π²Π΅ΡΠΊΠΈ ΡΠ°Π·ΠΌΠ΅ΡΠ΅Π½Ρ ΡΠ°ΠΊ, ΡΡΠΎ Π΄Π°Π²Π»Π΅Π½ΠΈΡ Π½Π° ΠΊΠΎΠ»Π΅ΡΠ° ΡΠ°ΡΠΏΡΠ΅Π΄Π΅Π»ΡΡΡΡΡ ΠΏΠΎΡΠΎΠ²Π½Ρ.
ΠΠΎΠ΄Π²Π΅ΡΠΊΠ° ΡΠ°ΠΌΡ Ρ ΠΏΠΎΠΌΠΎΡΡΡ ΡΠ°ΡΠΎΠ²ΡΡ
ΡΠ°ΡΠ½ΠΈΡΠΎΠ² ΠΏΠΎΠ·Π²ΠΎΠ»ΡΠ΅Ρ Π΅ΠΉ ΠΏΠΎΠ²ΠΎΡΠ°ΡΠΈΠ²Π°ΡΡΡΡ ΠΏΡΠΈ ΠΎΡΠΊΠ»ΠΎΠ½Π΅Π½ΠΈΠΈ ΠΊΠ°Π½Π°ΡΠΎΠ² Π² Π±ΠΎΠΊΠΎΠ²ΠΎΠΌ Π½Π°ΠΏΡΠ°Π²Π»Π΅Π½ΠΈΠΉ.
ΠΠ»Π°Π³ΠΎΠ΄Π°ΡΡ ΡΡΠΎΠΌΡ ΠΏΡΠ΅Π΄ΠΎΡΠ²ΡΠ°ΡΠ°Π΅ΡΡΡ ΠΈΠ·Π³ΠΈΠ± ΡΠ°ΠΌΡ ΠΈ ΠΏΠΎΠ²ΡΡΠ°Π΅ΡΡΡ ΡΠ°Π²Π½ΠΎΠΌΠ΅ΡΠ½ΠΎΡΡΡ ΡΠ°ΡΠΏΡΠ΅Π΄Π΅Π»Π΅Π½ΠΈΡ Π΄Π°Π²Π»Π΅Π½ΠΈΠΉ Π½Π° Ρ
ΠΎΠ΄ΠΎΠ²ΡΠ΅ ΠΊΠΎΠ»Π΅ΡΠ°. ΠΠ΅ΠΆΠ΄Ρ ΡΠ²Π΅Π»Π»Π΅ΡΠ°ΠΌΠΈ ΡΠ°ΠΌΡ Π½Π° ΠΎΡΡΡ
ΡΡΡΠ°Π½ΠΎΠ²Π»Π΅Π½Ρ Π±Π»ΠΎΠΊΠΈ ΡΠ΅ΡΡΡΠ΅Ρ
ΠΊΡΠ°ΡΠ½ΠΎΠ³ΠΎ ΠΏΠΎΠ»ΠΈΡΠΏΠ°ΡΡΠ° ΠΏΠΎΠ΄ΡΠ΅ΠΌΠ° Π³ΡΡΠ·Π°.
Π‘ Π½Π°ΡΡΠΆΠ½ΠΎΠΉ ΡΡΠΎΡΠΎΠ½Ρ Π²ΠΎΡΡΠΌΠΈΠΊΠΎΠ»Π΅ΡΠ½ΠΎΠΉ ΡΠ΅Π»Π΅ΠΆΠΊΠΈ ΡΡΡΠ°Π½ΠΎΠ²Π»Π΅Π½ ΠΏΡΡΠΆΠΈΠ½Π½ΡΠΉ Π°ΠΌΠΎΡΡΠΈΠ·Π°ΡΠΎΡ, ΠΊ ΠΊΠΎΡΠΎΡΠΎΠΌΡ ΠΊΡΠ΅ΠΏΡΡ ΡΡΠ³ΠΎΠ²ΡΠΉ ΠΊΠ°Π½Π°Ρ. ΠΠ°Π»Π΅Π΅ ΠΊΠ°Π½Π°Ρ Π·Π°ΠΏΠ°ΡΠΎΠ²Π°Π½ Π½Π° Π»Π΅Π±Π΅Π΄ΠΊΡ, ΡΡΡΠ°Π½ΠΎΠ²Π»Π΅Π½Π½ΡΡ Π½Π° ΠΌΠΎΡΡΡ; Π΄ΡΡΠ³ΡΡ Π΅Π³ΠΎ Π²Π΅ΡΠ²Ρ ΠΊΡΠ΅ΠΏΡΡ Π½Π° ΡΠ΅Π»Π΅ΠΆΠΊΠ΅ ΠΊΠ°Π±ΠΈΠ½Ρ, ΡΡΠ΅ΠΏΠ»Π΅Π½Π½ΠΎΠΉ Ρ Π³ΡΡΠ·ΠΎΠ²ΠΎΠΉ ΡΠ΅Π»Π΅ΠΆΠΊΠΎΠΉ. ΠΠ»Ρ Π½Π°ΡΡΠΆΠ΅Π½ΠΈΡ ΠΊΠ°Π½Π°ΡΠ° ΠΏΡΠ΅Π΄ΡΡΠΌΠΎΡΡΠ΅Π½Π° ΡΠΏΡΠΎΡΠ΅Π½Π½Π°Ρ ΡΡΡΠ½Π°Ρ Π»Π΅Π±Π΅Π΄ΠΊΠ°.
Π‘Ρ Π΅ΠΌΡ Π·Π°ΠΏΠ°ΡΠΎΠ²ΠΊΠΈ ΠΊΠ°Π½Π°ΡΠΎΠ² ΠΌΠ΅Ρ Π°Π½ΠΈΠ·ΠΌΠΎΠ² ΠΏΠΎΠ΄ΡΠ΅ΠΌΠ° Π³ΡΡΠ·Π° ΠΈ ΠΏΠ΅ΡΠ΅Π΄Π²ΠΈΠΆΠ΅Π½ΠΈΡ Π΄Π°Π½Ρ Π½Π° ΡΠΈΡ. 61.
ΠΡΡΠ·ΠΎΠ²Π°Ρ Π»Π΅Π±Π΅Π΄ΠΊΠ° (ΡΠΈΡ. 61, Π°) ΠΈΠΌΠ΅Π΅Ρ ΠΊΠ°Π½Π°ΡΠ½ΡΠΉ Π±Π°ΡΠ°Π±Π°Π½ Ρ ΡΡΠ΅Ρ ΡΠ»ΠΎΠΉΠ½ΠΎΠΉ Π½Π°Π²ΠΈΠ²ΠΊΠΎΠΉ ΠΊΠ°Π½Π°ΡΠ°. Π‘Π±Π΅Π³Π°ΡΡΠΈΠΉ Ρ Π±Π°ΡΠ°Π±Π°Π½Π° ΠΊΠ°Π½Π°Ρ ΠΏΡΠΎΠ²Π΅Π΄Π΅Π½ ΠΏΠΎ ΠΊΠΎΠ½ΡΠ΅Π²ΡΠΌ Π±Π»ΠΎΠΊΠ°ΠΌ ΠΌΠΎΡΡΠ° ΠΈ ΠΈΠ΄Π΅Ρ Π½Π° Π±Π»ΠΎΠΊΠΈ Π³ΡΡΠ·ΠΎΠ²ΠΎΠ³ΠΎ ΠΏΠΎΠ»ΠΈΡΠΏΠ°ΡΡΠ°. ΠΡΠΎΡΠΎΠΉ ΠΊΠΎΠ½Π΅Ρ ΠΊΠ°Π½Π°ΡΠ° ΠΊΡΠ΅ΠΏΠΈΡΡΡ Π½Π΅ΠΏΠΎΠ΄Π²ΠΈΠΆΠ½ΠΎ. ΠΠ»Ρ ΠΏΡΠ΅Π΄ΠΎΡΠ²ΡΠ°ΡΠ΅Π½ΠΈΡ ΠΏΡΠΎΠ²Π΅ΡΠ° Π³ΡΡΠ·ΠΎΠ²ΠΎΠ³ΠΎ ΠΊΠ°Π½Π°ΡΠ° ΠΌΠ°ΡΡΠ° ΠΊΡΡΠΊΠΎΠ²ΠΎΠΉ ΠΏΠΎΠ΄Π²Π΅ΡΠΊΠΈ ΡΠ²Π΅Π»ΠΈΡΠ΅Π½Π° Π΄ΠΎ 300 ΠΊΠ³.
Π ΠΈΡ. 61. Π‘Ρ
Π΅ΠΌΠ° Π·Π°ΠΏΠ°ΡΠΎΠ²ΠΊΠΈ ΠΊΠ°Π½Π°ΡΠΎΠ² ΠΊΠΎΠ·Π»ΠΎΠ²ΠΎΠ³ΠΎ ΠΊΡΠ°Π½Π° Π³ΡΡΠ·ΠΎΠΏΠΎΠ΄ΡΠ΅ΠΌΠ½ΠΎΡΡΡΡ 10 Ρ:
Π° β ΠΊΠ°Π½Π°ΡΠ° ΠΏΠΎΠ΄ΡΠ΅ΠΌΠ° Π³ΡΡΠ·Π°; Π± β ΠΊΠ°Π½Π°ΡΠ° ΠΏΠ΅ΡΠ΅Π΄Π²ΠΈΠΆΠ΅Π½ΠΈΡ Π³ΡΡΠ·ΠΎΠ²ΠΎΠΉ ΡΠ΅Π»Π΅ΠΆΠΊΠΈ
ΠΠ΅Π±Π΅Π΄ΠΊΠ° ΠΏΠ΅ΡΠ΅Π΄Π²ΠΈΠΆΠ΅Π½ΠΈΡ ΡΠ΅Π»Π΅ΠΆΠΊΠΈ (ΡΠΈΡ.
61, Π±) ΠΈΠΌΠ΅Π΅Ρ ΠΊΠ°Π½Π°ΡΠΎΠ²Π΅-Π΄ΡΡΠΈΠΉ ΡΠΊΠΈΠ² 6, ΠΎΡ
Π²Π°ΡΡΠ²Π°Π΅ΠΌΡΠΉ ΡΡΠ΅ΠΌΡ Π²ΠΈΡΠΊΠ°ΠΌΠΈ ΡΡΠ³ΠΎΠ²ΠΎΠ³ΠΎ ΠΊΠ°Π½Π°ΡΠ°.
ΠΡΠΏΠΎΠ»ΡΠ·ΠΎΠ²Π°Π½ΠΈΠ΅ Π²ΠΌΠ΅ΡΡΠΎ ΠΎΠ±ΡΡΠ½ΠΎ ΠΏΡΠΈΠΌΠ΅Π½ΡΠ΅ΠΌΡΡ ΠΊΠ°Π½Π°ΡΠ½ΡΡ Π±Π°ΡΠ°Π±Π°Π½ΠΎΠ² ΠΊΠ°Π½Π°ΡΠΎΠ²Π΅Π΄ΡΡΠ΅Π³ΠΎ ΡΠΊΠΈΠ²Π° (ΡΠΈΡ. 62) ΡΠΏΡΠΎΡΠ°Π΅Ρ ΠΊΠΎΠ½ΡΡΡΡΠΊΡΠΈΡ Π»Π΅Π±Π΅Π΄ΠΊΠΈ ΠΈ ΡΡΡΠ΅ΡΡΠ²Π΅Π½Π½ΠΎ ΡΠΌΠ΅Π½ΡΡΠ°Π΅Ρ Π΅Π΅ Π³Π°Π±Π°ΡΠΈΡΠ½ΡΠ΅ ΡΠ°Π·ΠΌΠ΅ΡΡ. ΠΡΠΎΠΌΠ΅ ΡΡΠΎΠ³ΠΎ, ΡΠΏΡΠΎΡΠ°Π΅ΡΡΡ ΠΊΠΎΠΌΠΏΠΎΠ½ΠΎΠ²ΠΊΠ° ΠΊΡΠ°Π½Π°, ΡΠ°ΠΊ ΠΊΠ°ΠΊ ΠΊΠ°Π½Π°Ρ Π½Π° ΡΠΊΠΈΠ²Π΅ ΠΏΡΠ°ΠΊΡΠΈΡΠ΅ΡΠΊΠΈ Π½Π΅ ΡΠΌΠ΅ΡΠ°Π΅ΡΡΡ Π² ΡΡΠΎΡΠΎΠ½Ρ; ΡΡΠΎ ΠΏΠΎΠ·Π²ΠΎΠ»ΡΠ΅Ρ ΡΠ°ΡΠΏΠΎΠ»Π°Π³Π°ΡΡ Π»Π΅Π±Π΅Π΄ΠΊΡ Π² Π½Π΅ΠΏΠΎΡΡΠ΅Π΄ΡΡΠ²Π΅Π½Π½ΠΎΠΉ Π±Π»ΠΈΠ·ΠΎΡΡΠΈ ΠΎΡ ΠΎΡΠΊΠ»ΠΎΠ½ΡΡΡΠΈΡ Π±Π»ΠΎΠΊΠΎΠ² (ΡΠΌ. ΡΠΈΡ. 61, Π±).
ΠΠ΄Π½Π°ΠΊΠΎ ΡΠ°ΠΊΠΈΠ΅ Π»Π΅Π±Π΅Π΄ΠΊΠΈ ΡΠ°Π±ΠΎΡΠ°ΡΡ Π»ΠΈΡΡ ΠΏΡΠΈ ΠΏΠΎΡΡΠΎΡΠ½Π½ΠΎΠΌ Π·Π½Π°ΡΠΈΡΠ΅Π»ΡΠ½ΠΎΠΌ ΠΏΡΠ΅Π΄Π²Π°ΡΠΈΡΠ΅Π»ΡΠ½ΠΎΠΌ Π½Π°ΡΡΠΆΠ΅Π½ΠΈΠΈ ΠΊΠ°Π½Π°ΡΠ°, Π΄Π»Ρ ΡΠ΅Π³ΠΎ Π½Π° ΡΠ΅Π»Π΅ΠΆΠΊΠ΅, ΡΠ²ΡΠ·Π°Π½Π½ΠΎΠΉ Ρ ΠΊΠ°Π±ΠΈΠ½ΠΎΠΉ ΡΠΏΡΠ°Π²Π»Π΅Π½ΠΈΡ ΠΏΠΎΠΌΠΈΠΌΠΎ Π²ΠΈΠ½ΡΠΎΠ²ΠΎΠΉ Π½Π°ΡΡΠΆΠΊΠΈ ΠΏΡΠ΅Π΄ΡΡΠΌΠΎΡΡΠ΅Π½Π° ΠΏΡΡΠΆΠΈΠ½Π°. ΠΠ°ΠΊ ΠΏΠΎΠΊΠ°Π·Π°Π»Π° ΠΏΡΠ°ΠΊΡΠΈΠΊΠ°, ΠΏΡΠΈ ΠΏΡΡΠΊΠ°Ρ ΠΊΠ°Π½Π°Ρ ΠΈΠ½ΡΠ΅Π½ΡΠΈΠ²Π½ΠΎ ΠΏΡΠΎΡΠΊΠ°Π»ΡΠ·ΡΠ²Π°Π΅Ρ ΠΏΠΎ ΡΠΊΠΈΠ²Ρ, ΡΡΠΎ Π²ΡΠ·ΡΠ²Π°Π΅Ρ Π΅Π³ΠΎ ΡΡΠΈΠ»Π΅Π½Π½ΠΎΠ΅ ΠΈΠ·Π½Π°ΡΠΈΠ²Π°Π½ΠΈΠ΅ ΠΈ ΡΡΠ΅Π±ΡΠ΅ΡΡΡ ΡΠ°ΡΡΠΎΠ΅ Π½Π°ΡΡΠ³ΠΈΠ²Π°Π½ΠΈΠ΅ ΠΊΠ°Π½Π°ΡΠ° Π΄Π»Ρ ΠΊΠΎΠΌΠΏΠ΅Π½ΡΠ°ΡΠΈΠΈ Π΅Π³ΠΎ Π²ΡΡΡΠ³ΠΈΠ²Π°Π½ΠΈΡ.
ΠΠΎΡΡΠΎΠΌΡ ΠΎΠ½ΠΈ ΠΌΠΎΠ³ΡΡ Π±ΡΡΡ ΡΠ΅ΠΊΠΎΠΌΠ΅Π½Π΄ΠΎΠ²Π°Π½Ρ ΡΠΎΠ»ΡΠΊΠΎ Π΄Π»Ρ ΡΠ΅Π΄ΠΊΠΎ ΡΠ°Π±ΠΎΡΠ°ΡΡΠΈΡ
ΠΊΡΠ°Π½ΠΎΠ² ΠΈ ΠΏΡΠΈ ΡΠΊΠΎΡΠΎΡΡΠΈ ΠΏΠ΅ΡΠ΅Π΄Π²ΠΈΠΆΠ΅Π½ΠΈΡ ΡΠ΅Π»Π΅ΠΆΠΊΠΈ 0,3 β¦ 0,6 ΠΌ/Π΅; ΡΠΊΠΈΠ²Ρ Π΄ΠΎΠ»ΠΆΠ½Ρ ΠΈΠΌΠ΅ΡΡ Π·Π°ΠΊΠ°Π»Π΅Π½Π½ΡΡ ΡΠ°Π±ΠΎΡΡΡ ΠΏΠΎΠ²Π΅ΡΡ
Π½ΠΎΡΡΡ (ΠΠ 280β320).
ΠΠΎΠ»Π΅Π΅ ΡΠΎΠ²Π΅ΡΡΠ΅Π½Π΅Π½ ΠΊΠ°Π½Π°ΡΠ½ΡΠΉ ΠΌΠ΅Ρ Π°Π½ΠΈΠ·ΠΌ ΠΏΠ΅ΡΠ΅Π΄Π²ΠΈΠΆΠ΅Π½ΠΈΡ, ΠΏΡΠΈΠΌΠ΅Π½Π΅Π½Π½ΡΠΉ Π² ΠΊΡΠ°Π½Π΅ ΠΠ‘-12,5 Π³ΡΡΠ·ΠΎΠΏΠΎΠ΄ΡΠ΅ΠΌΠ½ΠΎΡΡΡΡ 12,5 Ρ. ΠΠΎΠΌΠΏΠ΅Π½ΡΠ°ΡΠΈΡ Π²ΡΡΡΠ³ΠΈΠ²Π°Π½ΠΈΡ ΠΊΠ°Π½Π°ΡΠ° ΠΎΠ±Π΅ΡΠΏΠ΅ΡΠΈΠ²Π°Π΅ΡΡΡ Ρ ΠΏΠΎΠΌΠΎΡΡΡ Π²ΠΈΠ½ΡΠΎΠ²ΠΎΠΉ Π½Π°ΡΡΠΆΠΊΠΈ (ΡΠΈΡ. 63, Π°) ΠΌΠ½ΠΎΠ³ΠΎΠΆΠ΅Π»ΠΎΠ±ΡΠ°ΡΡΠΌΠΈ ΡΠΊΠΈΠ²Π°ΠΌΠΈ, Π° Π΄Π»Ρ Π½ΠΎΡΠΌΠ°Π»ΡΠ½ΠΎΠΉ ΡΠ°Π±ΠΎΡΡ ΠΊΠ°Π½Π°ΡΠΎΠ²Π΅Π΄ΡΡΠ΅Π³ΠΎ ΡΠΊΠΈΠ²Π° ΠΏΠΎ ΠΎΠ±Π΅ ΡΡΠΎΡΠΎΠ½Ρ ΠΎΡ Π½Π΅Π³ΠΎ ΡΡΡΠ°Π½ΠΎΠ²Π»Π΅Π½Ρ Π³ΡΡΠ·ΠΎΠ²ΡΠ΅ ΡΡΡΠ°ΠΆΠ½ΡΠ΅ Π½Π°ΡΡΠΆΠΊΠΈ. ΠΠ°ΡΡΠΆΠΊΠ° (ΡΠΈΡ. 63, Π±) Π²ΡΠΏΠΎΠ»Π½Π΅Π½Π° Π² Π²ΠΈΠ΄Π΅ ΠΊΠ°ΡΠ°ΡΡΠ΅Π³ΠΎ ΡΡΡΠ°Π³Π°, Π½Π΅ΡΡΡΠ΅Π³ΠΎ Π½Π° ΡΠ²ΠΎΠ±ΠΎΠ΄Π½ΠΎΠΌ ΠΊΠΎΠ½ΡΠ΅ ΡΠ°ΡΡΠΈΡΠ½ΠΎ ΠΏΠΎΠ΄Π²Π΅ΡΠ΅Π½Π½ΡΠΉ Π³ΡΡΠ· Π½Π° ΠΎΡΡΡ ΡΡΠΎΠ³ΠΎ Π³ΡΡΠ·Π° ΠΈ ΠΎΠΏΠΎΡΠ½ΠΎΠ³ΠΎ ΠΊΡΠΎΠ½ΡΡΠ΅ΠΉΠ½Π° ΡΠΌΠΎΠ½ΡΠΈΡΠΎΠ²Π°Π½Ρ ΠΎΡΠΊΠ»ΠΎΠ½ΡΡΡΠΈΠ΅ Π±Π»ΠΎΠΊΠΈ.
Π ΠΈΡ. 62. Π’ΡΠ³ΠΎΠ²Π°Ρ Π»Π΅Π±Π΅Π΄ΠΊΠ° Ρ ΠΊΠ°Π½Π°ΡΠΎΠ²Π΅Π΄ΡΡΠΈΠΌ ΡΠΊΠΈΠ²ΠΎΠΌ
Π ΠΈΡ. 63. ΠΠ°ΡΠ°ΡΡΠ°ΡΡΡ Π³ΡΡΠ·ΠΎΠ²Π°Ρ Π½Π°ΡΡΠΆΠΊΠ°:
Π° β ΡΡΡΠ°Π½ΠΎΠ²ΠΊΠΈ Π½Π°ΡΡΠΆΠΊΠΈ Π½Π° ΠΌΠΎΡΡ; Π± β ΡΡΡΠ°Π³ Π½Π°ΡΡΠΆΠΊΠΈ
ΠΠ°Π±Π΅Π³Π°ΡΡΠ°Ρ Π½Π° ΡΠΊΠΈΠ² Π²Π΅ΡΠ²Ρ ΠΊΠ°Π½Π°ΡΠ°, Π½Π°ΡΡΠ³ΠΈΠ²Π°ΡΡΡ, ΠΎΡΠΊΠ»ΠΎΠ½ΡΠ΅Ρ ΡΡΡΠ°Π½ΠΎΠ²Π»Π΅Π½Π½ΡΠΉ Π½Π° Π½Π΅ΠΉ ΡΡΡΠ°Π³ Π²Π²Π΅ΡΡ
; ΠΏΡΠΎΡΠΈΠ²ΠΎΠΏΠΎΠ»ΠΎΠΆΠ½ΡΠΉ ΡΡΡΠ°Π³, ΠΎΠΏΡΡΠΊΠ°ΡΡΡ, ΠΊΠΎΠΌΠΏΠ΅Π½ΡΠΈΡΡΠ΅Ρ ΠΎΡΠ»Π°Π±Π»Π΅Π½ΠΈΠ΅ ΡΠ±Π΅Π³Π°ΡΡΠ΅ΠΉ Π²Π΅ΡΠ²ΠΈ. ΠΠ°Π»ΠΈΡΠΈΠ΅ Π΄Π²ΡΡ
Π½Π°ΡΡΠΆΠ΅ΠΊ ΠΎΠ±Π΅ΡΠΏΠ΅ΡΠΈΠ²Π°Π΅Ρ Π½Π°Π΄Π΅ΠΆΠ½ΡΡ ΡΠ°Π±ΠΎΡΡ ΠΌΠ΅Ρ
Π°Π½ΠΈΠ·ΠΌΠ° ΠΏΡΠΈ Π΄Π²ΠΈΠΆΠ΅Π½ΠΈΠΈ Π² ΠΎΠ±ΠΎΠΈΡ
Π½Π°ΠΏΡΠ°Π²Π»Π΅Π½ΠΈΡΡ
. ΠΠ΅Π΄ΠΎΡΡΠ°ΡΠΊΠΎΠΌ ΡΠ°ΠΊΠΎΠ³ΠΎ ΠΌΠ΅Ρ
Π°Π½ΠΈΠ·ΠΌΠ° ΡΠ²Π»ΡΠ΅ΡΡΡ Π΅Π³ΠΎ ΡΠ»ΠΎΠΆΠ½ΠΎΡΡΡ, ΠΎΠ±ΡΡΠ»ΠΎΠ²Π»Π΅Π½Π½Π°Ρ Π½Π°Π»ΠΈΡΠΈΠ΅ΠΌ Π΅ΡΠ΅ ΠΈ Π³ΡΡΠ·ΠΎΠ²ΡΡ
Π½Π°ΡΡΠΆΠ΅ΠΊ; Π² ΡΠΎ ΠΆΠ΅ Π²ΡΠ΅ΠΌΡ ΡΠ²Π΅Π»ΠΈΡΠΈΠ²Π°Π΅ΡΡΡ ΡΠΈΡΠ»ΠΎ ΠΏΠ΅ΡΠ΅Π³ΠΈΠ±ΠΎΠ² ΠΊΠ°Π½Π°ΡΠΎΠ².
Π ΠΈΡ. 64. Π‘Ρ Π΅ΠΌΠ° Π·Π°ΠΏΠ°ΡΠΎΠ²ΠΊΠΈ ΠΊΠ°Π½Π°ΡΠΎΠ² Π³ΡΡΠ·ΠΎΠ²ΠΎΠΉ ΡΠ΅Π»Π΅ΠΆΠΊΠΈ Π΄Π»Ρ ΡΠ°Π±ΠΎΡΡ Ρ Π΄Π»ΠΈΠ½Π½ΠΎΠΌΠ΅ΡΠ½ΡΠΌΠΈ Π³ΡΡΠ·Π°ΠΌΠΈ
ΠΠ½ΠΎΠ³Π΄Π° Π½Π°ΡΡΠΆΠ΅Π½ΠΈΠ΅ ΠΊΠ°Π½Π°ΡΠ° ΡΠΎΠ·Π΄Π°Π΅ΡΡΡ ΠΏΠΎΠ΄ Π΄Π΅ΠΉΡΡΠ²ΠΈΠ΅ΠΌ ΡΠΈΠ»Ρ ΡΡΠΆΠ΅ΡΡΠΈ ΡΠΌΠΎΠ½ΡΠΈΡΠΎΠ²Π°Π½Π½ΠΎΠ³ΠΎ Π½Π° ΠΊΠ°ΡΠ°ΡΡΠ΅ΠΉΡΡ ΡΠ°ΠΌΠ΅ ΠΏΡΠΈΠ²ΠΎΠ΄Π°, ΡΠ½Π°Π±ΠΆΠ΅Π½Π½ΠΎΠ³ΠΎ ΠΊΠ°Π½Π°ΡΠΎΠ²Π΅Π΄ΡΡΠΈΠΌ ΡΠΊΠΈΠ²ΠΎΠΌ.
ΠΠ°Π½Π°ΡΠ½ΡΠ΅ ΠΌΠΎΠ½ΠΎΡΠ΅Π»ΡΡΠΎΠ²ΡΠ΅ ΡΠ΅Π»Π΅ΠΆΠΊΠΈ (ΡΠΈΡ. 64) ΠΏΡΠΈΠΌΠ΅Π½ΡΠ»ΠΈΡΡ ΡΠ°ΠΊΠΆΠ΅ Π½Π° ΠΊΡΠ°Π½Π°Ρ ΠΠΠ£-7,5 ΠΌ Π³ΡΡΠ·ΠΎΠΏΠΎΠ΄ΡΠ΅ΠΌΠ½ΠΎΡΡΡΡ 7,5 Ρ ΠΏΡΠΎΠ»Π΅ΡΠΎΠΌ 32 ΠΌ. ΠΡΠΎΠ±Π΅Π½Π½ΠΎΡΡΡΡ ΡΡΠΈΡ ΠΊΡΠ°Π½ΠΎΠ² ΡΠ²Π»ΡΠ»ΠΎΡΡ ΠΎΡΠ½Π°ΡΠ΅Π½ΠΈΠ΅ ΠΈΡ ΡΡΠ°Π²Π΅ΡΡΠ°ΠΌΠΈ Π΄Π»Ρ ΡΠ°Π±ΠΎΡΡ Ρ Π΄Π»ΠΈΠ½Π½ΠΎΠΌΠ΅ΡΠ½ΡΠΌΠΈ Π³ΡΡΠ·Π°ΠΌΠΈ, ΡΡΠΎ ΠΎΠΏΡΠ΅Π΄Π΅Π»ΠΈΠ»ΠΎ ΠΊΠ°ΠΊ ΠΊΠΎΠ½ΡΡΡΡΠΊΡΠΈΡ ΡΠ°ΠΌΡ ΡΠ΅Π»Π΅ΠΆΠΊΠΈ, ΡΠ°ΠΊ ΠΈ ΡΠ°ΡΠΏΠΎΠ»ΠΎΠΆΠ΅Π½ΠΈΠ΅ Π½Π° Π½Π΅ΠΉ Π±Π»ΠΎΠΊΠΎΠ².
Π‘ Π±Π°ΡΠ°Π±Π°Π½Π° (ΡΠΈΡ. 64) Π»Π΅Π±Π΅Π΄ΠΊΠΈ Π΄Π²Π΅ Π²Π΅ΡΠ²ΠΈ ΠΊΠ°Π½Π°ΡΠ° ΡΠ΅ΡΠ΅Π· ΠΎΡΠΊΠ»ΠΎΠ½ΡΡΡΠΈΠ΅ Π±Π»ΠΎΠΊΠΈ Π½Π°ΠΏΡΠ°Π²Π»ΡΡΡΡΡ Π½Π° ΠΏΠ°ΡΡ Π²Ρ ΠΎΠ΄Π½ΡΡ Π±Π»ΠΎΠΊΠΎΠ², ΡΠ°ΡΠΏΠΎΠ»ΠΎΠΆΠ΅Π½Π½ΡΡ Π³ΠΎΡΠΈΠ·ΠΎΠ½ΡΠ°Π»ΡΠ½ΠΎ. ΠΠΎΡΠ»Π΅ Π½ΠΈΡ ΠΊΠ°Π½Π°ΡΡ ΡΠ°Π·Π²ΠΎΠ΄ΡΡΡΡ Π½Π° Π²Π΅ΡΡΠΈΠΊΠ°Π»ΡΠ½ΡΠ΅ Π±Π»ΠΎΠΊΠΈ, ΡΠ°ΡΠΏΠΎΠ»ΠΎΠΆΠ΅Π½Π½ΡΠ΅ Π½Π° ΠΊΠΎΡΠΎΠΌΡΡΠ»Π°Ρ , ΠΏΡΠΎΡ ΠΎΠ΄ΡΡ ΠΏΠΎ Π±Π»ΠΎΠΊΠ°ΠΌ ΡΡΠ°Π²Π΅ΡΡΡ, Π²ΠΎΠ·Π²ΡΠ°ΡΠ°ΡΡΡΡ ΠΎΠ±ΡΠ°ΡΠ½ΠΎ ΠΈ ΡΠ΅ΡΠ΅Π· ΠΏΠ°ΡΡ Π²ΡΡ ΠΎΠ΄Π½ΡΡ Π±Π»ΠΎΠΊΠΎΠ² ΠΏΡΠΎΡ ΠΎΠ΄ΡΡ ΠΊ ΠΊΡΠ΅ΠΏΠ»Π΅Π½ΠΈΡΠΌ Π½Π° ΠΊΠΎΠ½ΡΠ΅ ΠΏΡΠΎΡΠΈΠ²ΠΎΠΏΠΎΠ»ΠΎΠΆΠ½ΠΎΠΉ ΠΊΠΎΠ½ΡΠΎΠ»ΠΈ ΠΌΠΎΡΡΠ°.
Π Π°ΠΌΠ° ΡΠ΅Π»Π΅ΠΆΠΊΠΈ ΡΠΎΡΡΠΎΠΈΡ ΠΈΠ· ΠΏΡΠΎΠ΄ΠΎΠ»ΡΠ½ΠΎΠΉ Π±Π°Π»ΠΊΠΈ Ρ Ρ
ΠΎΠ΄ΠΎΠ²ΡΠΌΠΈ ΠΊΠΎΠ»Π΅ΡΠ°ΠΌΠΈ. ΠΠ½Π° Π½Π΅ΡΠ΅Ρ ΡΠ΅ΡΡΡΠ΅ Π³ΠΎΡΠΈΠ·ΠΎΠ½ΡΠ°Π»ΡΠ½ΡΡ
Π±Π»ΠΎΠΊΠ° ΠΈ ΠΏΠΎΠΏΠ΅ΡΠ΅ΡΠ½ΡΡ Π±Π°Π»ΠΊΡ Ρ Π΄Π²ΡΠΌΡ ΠΏΠ°ΡΠ°ΠΌΠΈ Π²Π΅ΡΡΠΈΠΊΠ°Π»ΡΠ½ΡΡ
Π±Π»ΠΎΠΊΠΎΠ².
ΠΠ° ΠΊΠΎΠ½ΡΠ°Ρ
ΠΏΠΎΠΏΠ΅ΡΠ΅ΡΠ½ΠΎΠΉ Π±Π°Π»ΠΊΠΈ ΡΡΡΠ°Π½ΠΎΠ²Π»Π΅Π½Ρ ΠΊΡΠΎΠ½ΡΡΠ΅ΠΉΠ½Ρ Ρ ΡΠΏΠΎΡΠ½ΡΠΌΠΈ ΡΠΎΠ»ΠΈΠΊΠ°ΠΌΠΈ, ΠΏΡΠ΅Π΄ΠΎΡ
ΡΠ°Π½ΡΡΡΠΈΠ΅ ΡΠ΅Π»Π΅ΠΆΠΊΡ ΠΎΡ ΠΏΠΎΠΏΠ΅ΡΠ΅ΡΠ½ΠΎΠ³ΠΎ ΡΠ°ΡΠΊΠ°ΡΠΈΠ²Π°Π½ΠΈΡ.
ΠΠ΅ΡΠΌΠΎΡΡΡ Π½Π° Π·Π½Π°ΡΠΈΡΠ΅Π»ΡΠ½ΡΡ ΠΌΠ°ΡΡΡ ΡΡΠ°Π²Π΅ΡΡΡ (600 ΠΊΠ³), ΠΏΡΠΎΠ²ΠΈΡΠ°Π½ΠΈΠ΅ ΠΊΠ°Π½Π°ΡΠΎΠ² Π² ΠΏΡΠΎΠ»Π΅ΡΠ΅ (Π΄Π»ΠΈΠ½Π° ΠΌΠΎΡΡΠ° 56 ΠΌ) ΡΠΎΡΡΠ°Π²Π»ΡΠ΅Ρ Π½Π΅ΡΠΊΠΎΠ»ΡΠΊΠΎ ΠΌΠ΅ΡΡΠΎΠ². ΠΠΎΡΡΠΎΠΌΡ Π½Π° ΠΊΡΠ°Π½Π΅ ΠΏΠΎ Π΄Π»ΠΈΠ½Π΅ ΠΌΠΎΡΡΠ° ΡΡΡΠ°Π½Π°Π²Π»ΠΈΠ²Π°Π»ΠΈΡΡ ΡΠ΅ΡΡΡ ΡΡΠΎΡΠΎΠΏΠΎΠ΄Π΄Π΅ΡΠΆΠ΅ΠΊ (ΡΠΈΡ. 65), ΠΊΠ°ΠΆΠ΄Π°Ρ Π² Π΄Π²ΡΠΌΡ Π½Π΅ΠΏΠΎΠ΄Π²ΠΈΠΆΠ½ΡΠΌΠΈ ΠΊΡΠΎΠ½ΡΡΠ΅ΠΉΠ½Π°ΠΌΠΈ ΠΎ ΡΠΎΠ»ΠΈΠΊΠ°ΠΌΠΈ ΠΏΠΎ ΠΎΠ±Π΅ΠΈΠΌ ΡΡΠΎΡΠΎΠ½Π°ΠΌ Π΅Π·Π΄ΠΎΠ²ΠΎΠ³ΠΎ ΠΌΠΎΠ½ΠΎΡΠ΅Π»ΡΡΠ°. ΠΠ»Ρ ΠΏΡΠ΅Π΄ΠΎΡ ΡΠ°Π½Π΅Π½ΠΈΡ ΠΊΠ°Π½Π°ΡΠ° ΠΎΡ ΡΡ ΠΎΠ΄Π° Ρ ΡΠΎΠ»ΠΈΠΊΠ° ΠΏΠΎ Π±ΠΎΠΊΠ°ΠΌ ΡΠ°ΡΠΏΠΎΠ»ΠΎΠΆΠ΅Π½Ρ ΠΎΡΠΊΠ»ΠΎΠ½ΡΡΡΠΈΠ΅ΡΡ ΡΠ΅ΠΊΡΠΎΡΡ, ΡΠ΄Π΅ΡΠΆΠΈΠ²Π°Π΅ΠΌΡΠ΅ Π² Π²Π΅ΡΡΠΈΠΊΠ°Π»ΡΠ½ΠΎΠΌ ΠΏΠΎΠ»ΠΎΠΆΠ΅Π½ΠΈΠΈ ΠΏΡΡΠΆΠΈΠ½Π°ΠΌΠΈ. ΠΡΠΈ ΠΏΡΠΎΡ ΠΎΠ΄Π΅ ΠΌΠΈΠΌΠΎ ΡΡΠΎΡΠΎΠΏΠΎΠ΄Π΄Π΅ΡΠΆΠΊΠΈ ΡΠ΅Π»Π΅ΠΆΠΊΠΈ ΡΠΏΠΎΡΡ, ΡΡΡΠ°Π½ΠΎΠ²Π»Π΅Π½Π½ΡΠ΅ Π½Π° ΠΏΠΎΡΠ»Π΅Π΄Π½Π΅ΠΉ, ΡΠ°Π·Π²ΠΎΡΠ°ΡΠΈΠ²Π°ΡΡ ΡΠ΅ΠΊΡΠΎΡΡ, ΡΡΠΎ Π΄Π°Π΅Ρ Π²ΠΎΠ·ΠΌΠΎΠΆΠ½ΠΎΡΡΡ Π³ΡΡΠ·ΠΎΠ²ΠΎΠΌΡ ΠΊΠ°Π½Π°ΡΡ ΡΠΎΠΉΡΠΈ ΠΈΠ»ΠΈ ΡΠΏΡΡΡΠΈΡΡΡΡ Π½Π° ΡΠΎΠ»ΠΈΠΊΠΈ ΠΊΡΠΎΠ½ΡΡΠ΅ΠΉΠ½ΠΎΠ².
Π ΠΈΡ. 65. Π’ΡΠΎΡΠΎΠΏΠΎΠ΄Π΄Π΅ΡΠΆΠΊΠ° ΠΏΠΎΠ²ΠΎΡΠΎΡΠ½ΠΎΠ³ΠΎ ΡΠΈΠΏΠ°
Π ΠΈΡ. 66. ΠΡΡΠ·ΠΎΠ²Π°Ρ ΡΠ΅Π»Π΅ΠΆΠΊΠ° ΠΊΡΠ°Π½Π° ΠΠΠ‘-10
Π’Π΅Π»Π΅ΠΆΠΊΠ° ΠΊΠΎΠ·Π»ΠΎΠ²ΠΎΠ³ΠΎ ΠΊΡΠ°Π½Π° ΠΠΠ‘-10 (ΡΠΈΡ. 66), ΠΏΡΠ΅Π΄Π½Π°Π·Π½Π°ΡΠ΅Π½Π½ΠΎΠ³ΠΎ Π΄Π»Ρ ΡΠ°Π±ΠΎΡΡ ΠΏΡΠ΅ΠΈΠΌΡΡΠ΅ΡΡΠ²Π΅Π½Π½ΠΎ Ρ Π΄Π»ΠΈΠ½Π½ΠΎΠΌΠ΅ΡΠ½ΡΠΌΠΈ Π³ΡΡΠ·Π°ΠΌΠΈ, Π½Π΅ΡΠ΅Ρ Π½Π° ΡΠ΅Π±Π΅ Π³ΡΡΠ·ΠΎΠ²ΡΡ Π»Π΅Π±Π΅Π΄ΠΊΡ.
Π Π°ΠΌΠ° ΡΠ΅Π»Π΅ΠΆΠΊΠΈ ΡΠ°ΡΠ½ΠΈΡΠ½ΠΎ ΠΏΠΎΠ΄Π²Π΅ΡΠ΅Π½Π° Ρ ΠΏΠΎΠΌΠΎΡΡΡ ΡΠ΅ΡΠ΅Π³ ΠΊ Π΄Π²ΡΠΌ ΡΠ΅ΡΡΡΠ΅Ρ
ΠΊΠΎΠ»Π΅ΡΠ½ΡΠΌ Ρ
ΠΎΠ΄ΠΎΠ²ΡΠΌ ΡΠ΅Π»Π΅ΠΆΠΊΠ°ΠΌ.
ΠΠ»Ρ ΠΏΡΠ΅Π΄ΠΎΡΠ²ΡΠ°ΡΠ΅Π½ΠΈΡ ΡΠ°ΡΠΊΠ°ΡΠΈΠ²Π°Π½ΠΈΡ ΡΠ΅Π»Π΅ΠΆΠΊΠΈ ΠΏΡΠΈ Π΄Π²ΠΈΠΆΠ΅Π½ΠΈΠΈ Π½Π° Π½Π΅ΠΉ ΡΡΡΠ°Π½ΠΎΠ²Π»Π΅Π½Ρ ΡΠ΅ΡΡΡΠ΅ ΡΠ³Π»ΠΎΠ²ΡΠ΅ ΡΡΠΎΠΉΠΊΠΈ, Π½Π΅ΡΡΡΠΈΠ΅ ΡΠΏΠΎΡΠ½ΡΠ΅ ΡΠΎΠ»ΠΈΠΊΠΈ, ΠΊΡΠ΅ΠΏΠ»Π΅Π½ΠΈΠ΅ ΠΊΠΎΡΠΎΡΡΡ ΠΏΠΎΠ·Π²ΠΎΠ»ΡΠ΅Ρ ΡΠ΅Π³ΡΠ»ΠΈΡΠΎΠ²Π°ΡΡ ΠΈΡ ΠΏΠΎΠ»ΠΎΠΆΠ΅Π½ΠΈΠ΅ ΠΏΠΎ Π²ΡΡΠΎΡΠ΅. Π ΠΎΠ»ΠΈΠΊΠΈ ΠΏΠ΅ΡΠ΅ΠΊΠ°ΡΡΠ²Π°ΡΡΡΡ ΠΏΠΎ Π΄Π²ΡΠΌ ΠΊΠ²Π°Π΄ΡΠ°ΡΠ°ΠΌ, ΠΏΡΠΈΠ²Π°ΡΠ΅Π½Π½ΡΠΌ ΠΏΠΎ Π²ΡΠ΅ΠΉ Π΄Π»ΠΈΠ½Π΅ Π½ΠΈΠΆΠ½ΠΈΡ ΠΏΠΎΡΡΠΎΠ² ΠΌΠΎΡΡΠ°. ΠΠΎΡΡΠΎΡΠ½Π½ΡΠΉ Π·Π°Π·ΠΎΡ ΠΌΠ΅ΠΆΠ΄Ρ ΡΠΎΠ»ΠΈΠΊΠ°ΠΌΠΈ ΠΈ ΠΊΠ²Π°Π΄ΡΠ°ΡΠ°ΠΌΠΈ ΠΎΠ±Π΅ΡΠΏΠ΅ΡΠΈΠ²Π°Π΅ΡΡΡ ΠΏΡΠΎΠΊΠ»Π°Π΄ΠΊΠ°ΠΌΠΈ Π½Π΅ΠΎΠ±Ρ ΠΎΠ΄ΠΈΠΌΠΎΠΉ ΡΠΎΠ»ΡΠΈΠ½Ρ Π² ΠΌΠ΅ΡΡΠ°Ρ ΠΊΡΠ΅ΠΏΠ»Π΅Π½ΠΈΡ Π΅Π·Π΄ΠΎΠ²ΠΎΠ³ΠΎ ΠΌΠΎΠ½ΠΎΡΠ΅Π»ΡΡΠ° ΠΊ ΠΌΠΎΡΡΡ.
Π ΡΠ°ΠΌΠ΅ Π³ΡΡΠ·ΠΎΠ²ΠΎΠΉ ΡΠ΅Π»Π΅ΠΆΠΊΠΈ ΡΠ°ΡΠ½ΠΈΡΠ½ΠΎ ΠΏΡΠΈΠΊΡΠ΅ΠΏΠ»Π΅Π½Π° ΡΠ°ΠΌΠ° Π΄Π²ΡΡ -, ΠΊΠΎΠ»Π΅ΡΠ½ΠΎΠΉ ΡΠ΅Π»Π΅ΠΆΠΊΠΈ ΠΊΠ°Π±ΠΈΠ½Ρ, ΠΏΠΎΠ΄Π²Π΅ΡΠ΅Π½Π½ΠΎΠΉ Π² ΡΠΎΡΠΊΠ΅, Π±Π»ΠΈΠ·ΠΊΠΎΠΉ ΠΊ ΡΠ²ΠΎΠ΅ΠΌΡ ΡΠ΅Π½ΡΡΡ ΠΌΠ°ΡΡ. ΠΡΠ»Π΅Π΄ΡΡΠ²ΠΈΠ΅ ΡΡΠΎΠ³ΠΎ Π³ΡΡΠ·ΠΎΠ²Π°Ρ ΡΠ΅Π»Π΅ΠΆΠΊΠ° Π½Π΅ ΠΈΡΠΏΡΡΡΠ²Π°Π΅Ρ Π΄ΠΎΠΏΠΎΠ»Π½ΠΈΡΠ΅Π»ΡΠ½ΡΡ Π½Π°Π³ΡΡΠ·ΠΎΠΊ ΠΎΡ ΠΌΠ°ΡΡΡ ΠΊΠ°Π±ΠΈΠ½Ρ. Π Π°ΠΌΠ° Π³ΡΡΠ·ΠΎΠ²ΠΎΠΉ ΡΠ΅Π»Π΅ΠΆΠΊΠΈ Π·Π°ΠΊΡΡΡΠ° Π½Π°ΡΡΠΈΠ»ΠΎΠΌ Π΄Π»Ρ ΠΎΠ±ΡΠ»ΡΠΆΠΈΠ²Π°Π½ΠΈΡ ΠΌΠ΅Ρ Π°Π½ΠΈΠ·ΠΌΠΎΠ², Π½Π° ΠΊΠΎΡΠΎΡΠΎΠΌ ΡΠ°Π·ΠΌΠ΅ΡΠ΅Π½ ΠΌΠ΅Ρ Π°Π½ΠΈΠ·ΠΌ ΠΏΠΎΠ΄ΡΠ΅ΠΌΠ° ΠΈ Π±Π»ΠΎΠΊΠΈ ΠΏΠΎΠ»ΠΈΡΠΏΠ°ΡΡΠ°.
Π ΠΈΡ. 67. ΠΡΡΠ·ΠΎΠ²Π°Ρ ΡΡΠ°Π²Π΅ΡΡΠ° ΠΊΡΠ°Π½Π° ΠΠΠ‘-10
ΠΠ°ΠΆΠ΄ΡΠΉ ΠΊΠΎΠ½Π΅Ρ Π΄Π²ΡΡ
Π½Π΅Π·Π°Π²ΠΈΡΠΈΠΌΡΡ
Π²Π΅ΡΠ²Π΅ΠΉ Π³ΡΡΠ·ΠΎΠ²ΠΎΠ³ΠΎ ΠΊΠ°Π½Π°ΡΠ° Π·Π°ΠΊΡΠ΅ΠΏΠ»Π΅Π½ Π½Π° Π±Π°ΡΠ°Π±Π°Π½Π΅ ΠΈ Π² ΡΡΠ΅Π΄Π½Π΅ΠΉ ΡΠ°ΡΡΠΈ, Π½Π°ΠΌΠΎΡΠΊΠ° ΠΏΡΠΎΠΈΠ·Π²ΠΎΠ΄ΠΈΡΡΡ ΠΊ ΠΊΡΠ°ΡΠΌ ΡΠ½Π°Π±ΠΆΠ΅Π½Π½ΠΎΠ³ΠΎ ΡΠ΅Π±ΠΎΡΠ΄Π°ΠΌΠΈ Π±Π°ΡΠ°Π±Π°Π½Π°.
ΠΠ»ΠΎΠΊΠΈ Π³ΡΡΠ·ΠΎΠ²ΠΎΠΉ ΡΡΠ°Π²Π΅ΡΡΡ (ΡΠΈΡ. 67) ΠΈ Π²Π΅ΡΡ Π½ΠΈΠ΅ Π±Π»ΠΎΠΊΠΈ ΡΠ΅Π»Π΅ΠΆΠΊΠΈ, Π»Π΅ΠΆΠ°ΡΠΈΠ΅ Π² ΠΎΠ΄Π½ΠΎΠΉ Π²Π΅ΡΡΠΈΠΊΠ°Π»ΡΠ½ΠΎΠΉ ΠΏΠ»ΠΎΡΠΊΠΎΡΡΠΈ, ΡΠ°ΡΠΏΠΎΠ»ΠΎΠΆΠ΅Π½Ρ ΡΠ°ΠΊ, ΡΡΠΎ ΠΏΡΠΈ Π²Π΅ΡΡ Π½Π΅ΠΌ ΠΊΡΠ°ΠΉΠ½Π΅ΠΌ ΠΏΠΎΠ»ΠΎΠΆΠ΅Π½ΠΈΠΈ ΡΡΠ°Π²Π΅ΡΡΡ ΠΊΠ°Π½Π°ΡΡ ΠΏΠΎΠ»ΠΈΡΠΏΠ°ΡΡΠ° ΠΈΠΌΠ΅ΡΡ ΡΡΡΠΎΠ³ΠΎ Π²Π΅ΡΡΠΈΠΊΠ°Π»ΡΠ½ΠΎΠ΅ ΠΏΠΎΠ»ΠΎΠΆΠ΅Π½ΠΈΠ΅. Π’Π°ΠΊΠ°Ρ ΡΡ Π΅ΠΌΠ° Π·Π°ΠΏΠ°ΡΠΎΠ²ΠΊΠΈ ΠΎΠ±Π΅ΡΠΏΠ΅ΡΠΈΠ²Π°Π΅Ρ Π΄Π²Π΅ ΡΠΎΡΠΊΠΈ ΠΏΠΎΠ΄Π²Π΅ΡΠ° ΡΡΠ°Π²Π΅ΡΡΡ ΠΈ ΡΡΡΠΎΠΉΡΠΈΠ²ΠΎΠ΅ ΠΏΠΎΠ»ΠΎΠΆΠ΅Π½ΠΈΠ΅ Π΅Π΅ ΠΏΡΠΈ ΠΏΠΎΠ΄ΡΠ΅ΠΌΠ΅ Π³ΡΡΠ·Π° ΡΠΎ ΡΠΌΠ΅ΡΠ΅Π½ΠΈΠ΅ΠΌ Π΅Π³ΠΎ ΡΠ΅Π½ΡΡΠ° ΠΌΠ°ΡΡ. ΠΠΎ ΡΠ΅Π½ΡΡΡ ΡΡΠ°Π²Π΅ΡΡΡ ΡΠ°ΡΠ½ΠΈΡΠ½ΠΎ ΡΡΡΠ°Π½ΠΎΠ²Π»Π΅Π½ Π΄Π΅ΡΡΡΠΈΡΠΎΠ½Π½ΡΠΉ ΠΊΡΡΠΊ Π΄Π»Ρ ΠΏΠΎΠ΄ΡΠ΅ΠΌΠ° ΡΡΡΡΠ½ΡΡ Π³ΡΡΠ·ΠΎΠ². ΠΠΎ ΠΊΠΎΠ½ΡΠ°ΠΌ ΡΡΠ°Π²Π΅ΡΡΡ ΡΠ°ΡΠΏΠΎΠ»ΠΎΠΆΠ΅Π½Ρ ΡΠΊΠΎΠ±Ρ ΡΡΡΠΎΠΏΠΎΠ² Π΄Π»Ρ ΠΏΠ΅ΡΠ΅Π³ΡΡΠ·ΠΊΠΈ Π΄Π»ΠΈΠ½Π½ΠΎΠΌΠ΅ΡΠ½ΡΡ Π³ΡΡΠ·ΠΎΠ².
Π£ ΠΊΡΠ°Π½Π° Π ΠΠ‘-10 Π»Π΅Π±Π΅Π΄ΠΊΠ° ΠΏΠ΅ΡΠ΅Π΄Π²ΠΈΠΆΠ΅Π½ΠΈΡ ΡΠ΅Π»Π΅ΠΆΠΊΠΈ ΡΡΡΠ°Π½ΠΎΠ²Π»Π΅Π½Π° Π½Π° ΠΌΠΎΡΡΡ ΠΎΠΊΠΎΠ»ΠΎ Π³ΠΈΠ±ΠΊΠΎΠΉ ΠΎΠΏΠΎΡΡ. ΠΠ΅Π±Π΅Π΄ΠΊΠ° ΠΈΠΌΠ΅Π΅Ρ Π±Π°ΡΠ°Π±Π°Π½ Π΄ΠΈΠ°ΠΌΠ΅ΡΡΠΎΠΌ 310 ΠΌΠΌ. ΠΠ°Π½Π°Ρ Π΄ΠΈΠ°ΠΌΠ΅ΡΡΠΎΠΌ 8,5 ΠΌΠΌ Π·Π°ΠΊΡΠ΅ΠΏΠ»Π΅Π½ Ρ ΠΊΠΎΠ½ΡΠΎΠ² Π±Π°ΡΠ°Π±Π°Π½Π°, Π΅Π³ΠΎ Π·Π°ΠΏΠ°ΡΠΎΠ²ΠΊΠ° ΠΎΡΡΡΠ΅ΡΡΠ²Π»ΡΠ΅ΡΡΡ ΠΏΡΠΈ ΠΊΡΠ°ΠΉΠ½Π΅ΠΌ ΠΏΠΎΠ»ΠΎΠΆΠ΅Π½ΠΈΠΈ ΡΠ΅Π»Π΅ΠΆΠΊΠΈ; Π² ΡΡΠΎΠΌ ΡΠ»ΡΡΠ°Π΅ ΠΎΠ΄Π½Π° Π²Π΅ΡΠ²Ρ ΠΊΠ°Π½Π°ΡΠ° ΠΏΠΎΠ»Π½ΠΎΡΡΡΡ Π½Π°ΠΌΠΎΡΠ°Π½Π°, Π΄ΡΡΠ³Π°Ρ ΠΏΠΎΠ»Π½ΠΎΡΡΡΡ ΡΠΌΠΎΡΠ°Π½Π°. Π’Π°ΠΊ ΠΊΠ°ΠΊ ΠΏΡΠΎΡ
ΠΎΠ΄ ΠΏΠΎ ΠΌΠΎΡΡΡ ΡΠ°ΡΠΏΠΎΠ»ΠΎΠΆΠ΅Π½ ΠΏΠΎ ΡΠ΅ΡΠ΅Π΄ΠΈΠ½Π΅ Π΅Π³ΠΎ, Π»Π΅Π±Π΅Π΄ΠΊΠ° ΠΏΠΎΠ΄Π½ΡΡΠ° ΠΈ ΠΏΠΎ Π΄Π»ΠΈΠ½Π΅ ΠΌΠΎΡΡΠ° ΡΠ°ΡΠΏΠΎΠ»ΠΎΠΆΠ΅Π½Ρ ΡΡΠΈ ΡΠ΄Π²ΠΎΠ΅Π½Π½ΡΡ
ΠΏΠΎΠ΄Π΄Π΅ΡΠΆΠΈΠ²Π°ΡΡΠΈΡ
ΡΠΎΠ»ΠΈΠΊΠ°, ΠΊΠΎΡΠΎΡΡΠ΅ ΠΌΠΎΠ³ΡΡ ΠΏΠ΅ΡΠ΅ΠΌΠ΅ΡΠ°ΡΡΡΡ ΠΏΠΎΠΏΠ΅ΡΠ΅ΠΊ ΠΌΠΎΡΡΠ°.
Π§Π΅ΡΠ΅Π· Π±Π»ΠΎΠΊΠΈ, ΡΡΡΠ°Π½ΠΎΠ²Π»Π΅Π½Π½ΡΠ΅ Π½Π° ΠΊΠΎΠ½ΡΠ°Ρ
ΠΊΠΎΠ½ΡΠΎΠ»Π΅ΠΉ, Π²Π΅ΡΠ²ΠΈ ΠΊΠ°Π½Π°ΡΠΎΠ² Π½Π°ΠΏΡΠ°Π²Π»ΡΡΡΡΡ ΠΏΠΎΠ΄ ΠΌΠΎΠ½ΠΎΡΠ΅Π»ΡΡ ΠΊ Π³ΡΡΠ·ΠΎΠ²ΠΎΠΉ ΡΠ΅Π»Π΅ΠΆΠΊΠ΅. ΠΠ΄ΠΈΠ½ ΠΈΠ· ΠΊΠΎΠ½ΡΠΎΠ² ΠΊΠ°Π½Π°ΡΠ° ΡΠΎΠ΅Π΄ΠΈΠ½Π΅Π½ Ρ ΡΠ΅Π»Π΅ΠΆΠΊΠΎΠΉ ΡΠ΅ΡΠ΅Π· Π²ΠΈΠ½ΡΠΎΠ²ΠΎΠ΅ Π½Π°ΡΡΠΆΠ½ΠΎΠ΅ ΠΏΡΠΈΡΠΏΠΎΡΠΎΠ±Π»Π΅Π½ΠΈΠ΅.
ΠΠ° Π»ΠΈΠ½ΠΈΠΈ ΠΏΡΠΈΡΠΎΠ΅Π΄ΠΈΠ½Π΅Π½ΠΈΡ ΠΊΠ°Π½Π°ΡΠΎΠ² ΡΠ΅ΠΊΠΈ Ρ ΠΎΠ΄ΠΎΠ²ΡΡ ΡΠ΅Π»Π΅ΠΆΠ΅ΠΊ ΡΠΎΠ΅Π΄ΠΈΠ½ΡΡΡΡΡ ΠΏΠΎ ΠΌΠ΅ΡΡΡ ΠΆΠ΅ΡΡΠΊΠΎΠΉ ΡΡΡΠΆΠΊΠΎΠΉ, ΠΎΠ±Π»Π΅Π³ΡΠ°ΡΡΠ΅ΠΉ ΡΠ°Π±ΠΎΡΡ ΡΠ·Π»ΠΎΠ² ΠΏΠΎΠ΄Π²Π΅ΡΠΊΠΈ Π³ΡΡΠ·ΠΎΠ²ΠΎΠΉ ΡΠ΅Π»Π΅ΠΆΠΊΠΈ.
Π ΠΈΡ. 68. Π‘Π°ΠΌΠΎΡ ΠΎΠ΄Π½ΡΠ΅ Π΄Π²ΡΡ ΡΠ΅Π»ΡΡΠΎΠ²ΡΠ΅ ΠΏΠΎΠ΄Π²Π΅ΡΠ½ΡΠ΅ Π³ΡΡΠ·ΠΎΠ²ΡΠ΅ ΡΠ΅Π»Π΅ΠΆΠΊΠΈ:
ΠΠ°Π±Π΅Π»ΡΠ½ΡΠ΅ ΠΊΠ°ΡΠ΅ΡΠΊΠΈ ΠΊΡΠ°Π½Π° ΠΠΠ‘-10, ΠΏΠ΅ΡΠ΅Π΄Π²ΠΈΠ³Π°ΡΡΠΈΠ΅ΡΡ ΠΏΠΎ ΠΌΠΎΠ½ΠΎΡΠ΅Π»ΡΡΡ, ΠΈΡΠΏΠΎΠ»ΡΠ·ΡΡΡ ΡΠ°ΠΊ ΠΆΠ΅, ΠΊΠ°ΠΊ ΠΏΠ΅ΡΠ΅Π΄Π²ΠΈΠΆΠ½ΡΠ΅ ΡΡΠΎΡΠΎΠΏΠΎΠ΄ΡΠ΅ΡΠΆΠΊΠΈ, Π΄Π»Ρ ΡΠ΅Π³ΠΎ ΠΎΠ½ΠΈ ΡΠ½Π°Π±ΠΆΠ΅Π½Ρ Π΄ΠΎΠΏΠΎΠ»Π½ΠΈΡΠ΅Π»ΡΠ½ΡΠΌ ΡΠΎΠ»ΠΈΠΊΠΎΠΌ Π΄Π»Ρ Π½ΠΈΠΆΠ½Π΅ΠΉ Π²Π΅ΡΠ²ΠΈ ΡΡΠ³ΠΎΠ²ΠΎΠ³ΠΎ ΠΊΠ°Π½Π°ΡΠ°.
ΠΠ²ΡΡ ΡΠ΅Π»ΡΡΠΎΠ²ΡΠ΅ ΠΏΠΎΠ΄Π²Π΅ΡΠ½ΡΠ΅ Π³ΡΡΠ·ΠΎΠ²ΡΠ΅ ΡΠ΅Π»Π΅ΠΆΠΊΠΈ. ΠΡΠ°Π½Ρ Ρ ΠΌΠΎΠ½ΠΎΡΠ΅Π»ΡΡΠΎΠ²ΡΠΌΠΈ ΡΠ΅Π»Π΅ΠΆΠΊΠ°ΠΌΠΈ ΠΈΠΌΠ΅ΡΡ ΡΡΠ΄ Π½Π΅Π΄ΠΎΡΡΠ°ΡΠΊΠΎΠ², ΠΊ ΠΎΡΠ½ΠΎΠ²Π½ΡΠΌ ΠΈΠ· ΠΊΠΎΡΠΎΡΡΡ ΠΎΡΠ½ΠΎΡΡΡΡΡ Π½ΠΈΠ·ΠΊΠ°Ρ ΠΈΠ·Π½ΠΎΡΠΎΡΡΠΎΠΉΠΊΠΎΡΡΡ ΠΌΠΎΠ½ΠΎΡΠ΅Π»ΡΡΠΎΠ² ΠΈ ΠΏΠΎΠΏΠ΅ΡΠ΅ΡΠ½ΠΎΠ΅ ΡΠ°ΡΠΊΠ°ΡΠΈΠ²Π°Π½ΠΈΠ΅ ΡΠ΅Π»Π΅ΠΆΠΊΠΈ. ΠΡΠΎΠ³ΠΎ Π½Π΅Π΄ΠΎΡΡΠ°ΡΠΊΠ° Π»ΠΈΡΠ΅Π½Ρ ΠΊΡΠ°Π½Ρ Ρ Π΄Π²ΡΡ ΡΠ΅Π»ΡΡΠΎΠ²ΡΠΌΠΈ ΠΏΠΎΠ΄Π²Π΅ΡΠ½ΡΠΌΠΈ ΡΠ΅Π»Π΅ΠΆΠΊΠ°ΠΌΠΈ, ΠΊΠΎΡΠΎΡΡΠ΅ Π²ΡΠΏΠΎΠ»Π½ΡΡΡ ΠΊΠ°ΠΊ ΡΠ°ΠΌΠΎΡ ΠΎΠ΄Π½ΡΠΌΠΈ, ΡΠ°ΠΊ ΠΈ ΠΊΠ°Π½Π°ΡΠ½ΡΠΌΠΈ.
ΠΠ΅ΠΊΠΎΡΠΎΡΡΠ΅ ΠΊΡΠ°Π½Ρ ΠΎΠ±ΠΎΡΡΠ΄ΠΎΠ²Π°Π½Ρ ΠΌΠΎΠ½ΠΎΡΠ΅Π»ΡΡΠΎΠ²ΡΠΌΠΈ ΡΠ΅Π»Π΅ΠΆΠΊΠ°ΠΌΠΈ, ΠΏΠ΅ΡΠ΅ΠΌΠ΅ΡΠ°ΡΡΠΈΠΌΠΈΡΡ ΠΏΠΎ Π΄Π²ΡΠΌ ΡΠΊΡΠ΅ΠΏΠ»Π΅Π½Π½ΡΠΌ Π½Π° ΠΌΠΎΡΡΡ ΠΏΠΎΠ΄ΡΠ΅Π»Π΅ΠΆΠ΅Ρ-Π½ΡΠΌ ΡΠ΅Π»ΡΡΠ°ΠΌ.
Π Ρ
ΠΎΠ΄ΠΎΠ²ΠΎΠΉ ΡΠ°ΡΡΠΈ Π³ΡΡΠ·ΠΎΠ²ΡΡ
ΡΠ΅Π»Π΅ΠΆΠ΅ΠΊ ΠΏΡΠΈΠΌΠ΅Π½ΡΡΡ ΡΠΈΠΏΠΎΠ²ΡΠ΅ ΡΠ΅Π»Π΅ΠΆΠΊΠΈ ΠΏΠ΅ΡΠ΅Π΄Π²ΠΈΠΆΠ½ΡΡ
ΡΠ°Π»Π΅ΠΉ. ΠΠ° ΡΠΈΡ. 68 ΠΏΡΠΈΠ²Π΅Π΄Π΅Π½Π° ΡΡ
Π΅ΠΌΠ° ΡΠ΅Π»Π΅ΠΆΠΊΠΈ ΡΠΈΡΠΌΡ ΠΡΠΌΡΠ½Π΄ (Π€Π Π), Π³Π΄Π΅ Π² ΠΌΠ΅Ρ
Π°Π½ΠΈΠ·ΠΌΠ΅ ΠΏΠΎΠ΄ΡΠ΅ΠΌΠ° ΡΠ°ΠΊΠΆΠ΅ ΠΈΡΠΏΠΎΠ»ΡΠ·ΠΎΠ²Π°Π½Ρ ΡΠΈΠΏΠΎΠ²ΡΠ΅ ΡΠ»Π΅ΠΊΡΡΠΎΡΠ°Π»ΠΈ. ΠΠ΄Π½Π° ΠΈΠ· Π½ΠΈΡ
ΡΠΊΡΠ΅ΠΏΠ»Π΅Π½Π° Π½Π° ΠΏΠΎΠ΄ΠΏΡΡΠΆΠΈΠ½Π΅Π½Π½ΠΎΠΌ ΠΊΡΠΎΠ½ΡΡΠ΅ΠΉΠ½Π΅, ΡΠ²ΡΠ·Π°Π½Π½ΠΎΠΌ Ρ ΠΊΠΎΠ½ΡΠ΅Π²ΡΠΌ Π²ΡΠΊΠ»ΡΡΠ°ΡΠ΅Π»Π΅ΠΌ ΠΎΠ³ΡΠ°Π½ΠΈΡΠΈΡΠ΅Π»Ρ Π³ΡΡΠ·ΠΎΠΏΠΎΠ΄ΡΠ΅ΠΌΠ½ΠΎΡΡΠΈ.
ΠΠΎΠ»Π΅Π΅ ΡΠ°ΡΠΏΡΠΎΡΡΡΠ°Π½Π΅Π½Ρ ΠΊΡΠ°Π½Ρ Ρ ΡΠ΅Π»Π΅ΠΆΠΊΠ°ΠΌΠΈ, ΠΏΠ΅ΡΠ΅ΠΌΠ΅ΡΠ°ΡΡΠΈΠΌΠΈΡΡ Π½Π΅ΠΏΠΎΡΡΠ΅Π΄ΡΡΠ²Π΅Π½Π½ΠΎ ΠΏΠΎ ΡΠ»Π΅ΠΌΠ΅Π½ΡΠ°ΠΌ Π½ΠΈΠΆΠ½Π΅Π³ΠΎ ΠΏΠΎΡΡΠ° (ΡΠΈΡ. 68, Π±). ΠΠ΅Π·ΡΠ΅-Π±ΠΎΡΠ΄Π½ΡΠ΅ Ρ ΠΎΠ΄ΠΎΠ²ΡΠ΅ ΠΊΠΎΠ»Π΅ΡΠ° ΡΠ΅Π»Π΅ΠΆΠ΅ΠΊ ΠΈΠ½ΠΎΠ³Π΄Π° ΠΎΠ±ΠΎΡΡΠ΄ΡΡΡ Π±Π°Π½Π΄Π°ΠΆΠ°ΠΌΠΈ ΠΈΠ· ΠΏΠ»Π°ΡΡΠΌΠ°ΡΡΡ, ΡΡΠΎ ΠΏΠΎΠ·Π²ΠΎΠ»ΡΠ΅Ρ ΠΈΠΌ ΠΏΠ΅ΡΠ΅ΠΌΠ΅ΡΠ°ΡΡΡΡ Π½Π΅ΠΏΠΎΡΡΠ΅Π΄ΡΡΠ²Π΅Π½Π½ΠΎ ΠΏΠΎ ΠΏΠΎΠ²Π΅ΡΡ Π½ΠΎΡΡΡΠΌ ΠΏΡΠΎΡΠΈΠ»Π΅ΠΉ Π½ΠΈΠΆΠ½Π΅Π³ΠΎ ΠΏΠΎΡΡΠ°. ΠΠ»Ρ Π²ΠΎΡΠΏΡΠΈΡΡΠΈΡ Π³ΠΎΡΠΈΠ·ΠΎΠ½ΡΠ°Π»ΡΠ½ΡΡ Π½Π°Π³ΡΡΠ·ΠΎΠΊ Π·Π΄Π΅ΡΡ ΠΏΡΠ΅Π΄ΡΡΠΌΠ°ΡΡΠΈΠ²Π°ΡΡ Π³ΠΎΡΠΈΠ·ΠΎΠ½ΡΠ°Π»ΡΠ½ΡΠ΅ Π½Π°ΠΏΡΠ°Π²Π»ΡΡΡΠΈΠ΅ ΡΠΎΠ»ΠΈΠΊΠΈ.
Π ΠΈΡ. 69. Π‘Π°ΠΌΠΎΡ ΠΎΠ΄Π½Π°Ρ ΠΏΠΎΠ΄Π²Π΅ΡΠ½Π°Ρ Π³ΡΡΠ·ΠΎΠ²Π°Ρ ΡΠ΅Π»Π΅ΠΆΠΊΠ° Ρ ΠΏΠ΅ΡΠ΅ΠΌΠ΅ΡΠ΅Π½ΠΈΠ΅ΠΌ ΠΏΠΎ ΠΊΠΎΡΠΎΠ±ΡΠ°ΡΡΠΌ ΡΠ»Π΅ΠΌΠ΅Π½ΡΠ°ΠΌ Π½ΠΈΠΆΠ½ΠΈΡ ΠΏΠΎΡΡΠΎΠ²
Π ΡΠ°ΠΌΠΎΡ
ΠΎΠ΄Π½ΠΎΠΉ Π΄Π²ΡΡ
ΡΠ΅Π»ΡΡΠΎΠ²ΠΎΠΉ ΠΏΠΎΠ΄Π²Π΅ΡΠ½ΠΎΠΉ Π³ΡΡΠ·ΠΎΠ²ΠΎΠΉ ΡΠ΅Π»Π΅ΠΆΠΊΠ΅ (ΡΠΈΡ. 69) Ρ
ΠΎΠ΄ΠΎΠ²ΡΠ΅ ΠΊΠΎΠ»Π΅ΡΠ° Π±Π°Π»Π°Π½ΡΠΈΡΠ½ΡΡ
ΡΠ΅Π»Π΅ΠΆΠ΅ΠΊ ΠΏΠ΅ΡΠ΅ΠΌΠ΅ΡΠ°ΡΡΡΡ ΠΏΠΎ Π½Π°ΠΏΡΠ°Π²Π»ΡΡΡΠΈΠΌ, ΡΠ»ΠΎΠΆΠ΅Π½Π½ΡΠΌ Π½Π° ΠΊΠΎΡΠΎΠ±ΠΊΠΈ Π½ΠΈΠΆΠ½ΠΈΡ
ΠΏΠΎΡΡΠΎΠ². ΠΠ΅Π΄ΡΡΠΈΠ΅ ΠΊΠΎΠ»Π΅ΡΠ° Ρ
ΠΎΠ΄ΠΎΠ²ΡΡ
ΡΠ΅Π»Π΅ΠΆΠ΅ΠΊ ΠΏΡΠΈΠ²ΠΎΠ΄ΡΡΡΡ ΠΊΠΎΠΌΠΏΠ°ΠΊΡΠ½ΡΠΌΠΈ ΡΠ΅ΡΠ²ΡΡΠ½ΡΠΌΠΈ ΠΌΠΎΡΠΎΡ-ΡΠ΅Π΄ΡΠΊΡΠΎΡΠ°ΠΌΠΈ.
ΠΡΠ½ΠΎΡΠΈΡΠ΅Π»ΡΠ½ΠΎ ΠΌΠ°Π»ΡΠ΅ ΡΠ°Π·ΠΌΠ΅ΡΡ ΡΡΠΈΡ
ΡΠ΅Π΄ΡΠΊΡΠΎΡΠΎΠ² ΡΠΎΠ·Π΄Π°ΡΡ Π±Π»Π°Π³ΠΎΠΏΡΠΈΡΡΠ½ΡΠ΅ ΡΡΠ»ΠΎΠ²ΠΈΡ Π΄Π»Ρ ΠΊΡΠ΅ΠΏΠ»Π΅Π½ΠΈΡ ΡΡΠΎΠ΅ΠΊ ΠΎΠΏΠΎΡ ΠΊ ΠΏΡΠΎΠ»Π΅ΡΠ½ΠΎΠΌΡ ΡΡΡΠΎΠ΅Π½ΠΈΡ. Π Π°Π²Π½ΠΎΠΌΠ΅ΡΠ½ΠΎΠ΅ ΡΠ°ΡΠΏΡΠ΅Π΄Π΅Π»Π΅Π½ΠΈΠ΅ Π΄Π°Π²Π»Π΅Π½ΠΈΠΉ Π½Π° ΠΊΠΎΠ»Π΅ΡΠ°, Π²Π½Π΅ Π·Π°Π²ΠΈΡΠΈΠΌΠΎΡΡΠΈ ΠΎΡ Π΄Π΅ΡΠΎΡΠΌΠ°ΡΠΈΠΉ ΠΈ ΠΏΠΎΠ³ΡΠ΅ΡΠ½ΠΎΡΡΠ΅ΠΉ ΠΈΠ·Π³ΠΎΡΠΎΠ²Π»Π΅Π½ΠΈΡ ΠΌΠΎΡΡΠ° ΠΈ ΡΠ°ΠΌΡ ΡΠ΅Π»Π΅ΠΆΠΊΠΈ, ΠΎΠ±Π΅ΡΠΏΠ΅ΡΠΈΠ²Π°Π΅ΡΡΡ ΡΡΠ΅Ρ
ΡΠΎΡΠ΅ΡΠ½ΡΠΌ ΠΊΡΠ΅ΠΏΠ»Π΅Π½ΠΈΠ΅ΠΌ ΠΏΠΎΡΠ»Π΅Π΄Π½Π΅ΠΉ. Π Π°ΠΌΠ°, Π½Π΅ΡΡΡΠ°Ρ ΠΌΠ΅Ρ
Π°Π½ΠΈΠ·ΠΌΡ Π³Π»Π°Π²Π½ΠΎΠ³ΠΎ ΠΈ Π²ΡΠΏΠΎΠΌΠΎΠ³Π°ΡΠ΅Π»ΡΠ½ΠΎΠ³ΠΎ ΠΏΠΎΠ΄ΡΠ΅ΠΌΠ°, ΠΎΠΏΠΈΡΠ°Π΅ΡΡΡ ΠΎΠ΄Π½ΠΈΠΌ ΠΊΠΎΠ½ΡΠΎΠΌ Π½Π° Π²Π΅Π΄ΡΡΠΈΠ΅ Ρ
ΠΎΠ΄ΠΎΠ²ΡΠ΅ ΡΠ΅Π»Π΅ΠΆΠΊΠΈ. ΠΠ° Π²ΡΠΎΡΠΎΠΌ ΠΊΠΎΠ½ΡΠ΅ ΡΠ°ΠΌΠ° ΡΠ½Π°Π±ΠΆΠ΅Π½Π° ΠΊΡΠΎΠ½ΡΡΠ΅ΠΉΠ½ΠΎΠΌ, ΡΠ°ΡΠ½ΠΈΡΠ½ΠΎ ΡΠ²ΡΠ·Π°Π½Π½ΡΠΌ Ρ ΠΏΠΎΠΏΠ΅ΡΠ΅ΡΠ½ΠΎΠΉ Π±Π°Π»ΠΊΠΎΠΉ.
Π ΠΈΡ. 70. ΠΡΡΠ·ΠΎΠ²Π°Ρ ΠΏΠΎΠ΄Π²Π΅ΡΠ½Π°Ρ ΡΠ΅Π»Π΅ΠΆΠΊΠ° ΠΊΡΠ°Π½Π° ΠΠ-12,5-32
Π ΠΊΠ°ΡΠ΅ΡΡΠ²Π΅ Π²ΡΠΏΠΎΠΌΠΎΠ³Π°ΡΠ΅Π»ΡΠ½ΠΎΠ³ΠΎ ΠΌΠ΅Ρ
Π°Π½ΠΈΠ·ΠΌΠ° ΠΏΠΎΠ΄ΡΠ΅ΠΌΠ° ΠΈΡΠΏΠΎΠ»ΡΠ·ΠΎΠ²Π°Π½Π° ΡΠ»Π΅ΠΊΡΡΠΎΡΠ°Π»Ρ. ΠΠ°Π±ΠΈΠ½Π° ΡΠΏΡΠ°Π²Π»Π΅Π½ΠΈΡ ΠΏΡΠΈΠΊΡΠ΅ΠΏΠ»Π΅Π½Π° Π½Π° ΠΊΠΎΠ½ΡΠΎΠ»ΡΠ½ΠΎΠΌ ΠΊΡΠΎΠ½ΡΡΠ΅ΠΉΠ½Π΅ ΡΠ°ΠΌΡ, ΡΡΠΎ Π½ΡΠΆΠ½ΠΎ ΡΡΠΈΡΡΠ²Π°ΡΡ, ΠΎΠΏΡΠ΅Π΄Π΅Π»ΡΡ Π½Π°Π³ΡΡΠ·ΠΊΠΈ Π½Π° Ρ
ΠΎΠ΄ΠΎΠ²ΡΠ΅ ΠΊΠΎΠ»Π΅ΡΠ°. Π Π΄Π°Π½Π½ΠΎΠΌ ΡΠ»ΡΡΠ°Π΅ ΡΠ°ΡΠ½ΠΈΡΠ½ΠΎΠ΅ ΠΎΠΏΠΈΡΠ°Π½ΠΈΠ΅ ΡΠ°ΠΌΡ, Π²ΡΠ·ΡΠ²Π°ΡΡΠ΅Π΅ ΠΎΠΏΡΠ΅Π΄Π΅Π»Π΅Π½Π½ΠΎΠ΅ ΡΡΠ»ΠΎΠΆΠ½Π΅Π½ΠΈΠ΅ ΠΊΠΎΠ½ΡΡΡΡΠΊΡΠΈΠΈ ΡΠ΅Π»Π΅ΠΆΠΊΠΈ, ΠΎΠΏΡΠ°Π²Π΄Π°Π½ΠΎ β Π²ΡΠ²Π΅ΡΠΊΠ° Π½Π°ΠΏΡΠ°Π²Π»ΡΡΡΠΈΡ
, ΡΠΊΠ»Π°Π΄ΡΠ²Π°Π΅ΠΌΡΡ
Π½Π° ΠΏΠΎΡΡΠ°Ρ
, Π·Π°ΡΡΡΠ΄Π½ΠΈΡΠ΅Π»ΡΠ½Π°, Π° Π² Π΄Π°Π½Π½ΠΎΠΉ ΠΊΠΎΠ½ΡΡΡΡΠΊΡΠΈΠΈ Π²ΡΠ΅Π³Π΄Π° ΠΎΠ±Π΅ΡΠΏΠ΅ΡΠΈΠ²Π°Π΅ΡΡΡ Π½Π°Π΄Π΅ΠΆΠ½ΡΠΉ ΠΊΠΎΠ½ΡΠ°ΠΊΡ Π²ΡΠ΅Ρ
Π²Π΅Π΄ΡΡΠΈΡ
ΠΊΠΎΠ»Π΅Ρ Ρ ΡΠ΅Π»ΡΡΠ°ΠΌΠΈ.
Π‘Π»Π΅Π΄ΡΠ΅Ρ ΠΎΡΠΌΠ΅ΡΠΈΡΡ, ΡΡΠΎ ΡΠ°ΡΠΈΠΎΠ½Π°Π»ΡΠ½ΡΡ ΠΊΠΎΠΌΠΏΠΎΠ½ΠΎΠ²ΠΊΡ ΡΠ·Π»ΠΎΠ² ΠΏΡΠΈΠΌΡΠΊΠ°Π½ΠΈΡ ΠΎΠΏΠΎΡ ΠΊ ΠΌΠΎΡΡΡ ΠΏΡΠΈ ΡΠ°ΠΊΠΈΡ ΡΠ΅Π»Π΅ΠΆΠΊΠ°Ρ ΠΌΠΎΠΆΠ½ΠΎ ΠΎΠ±Π΅ΡΠΏΠ΅ΡΠΈΡΡ ΡΠΎΠ»ΡΠΊΠΎ ΠΏΡΠΈ Π½Π°Π»ΠΈΡΠΈΠΈ ΠΌΠ°Π»ΠΎΠ³Π°Π±Π°ΡΠΈΡΠ½ΡΡ ΡΠ΅Π΄ΡΠΊΡΠΎΡΠΎΠ² ΠΌΠ΅Ρ Π°Π½ΠΈΠ·ΠΌΠ° ΠΏΠ΅ΡΠ΅Π΄Π²ΠΈΠΆΠ΅Π½ΠΈΡ.
ΠΠ° ΡΠΈΡ. 70 ΠΏΠΎΠΊΠ°Π·Π°Π½Π° Π³ΡΡΠ·ΠΎΠ²Π°Ρ ΡΠ΅Π»Π΅ΠΆΠΊΠ° ΠΊΡΠ°Π½Π° ΠΠ-12,5-32 ΠΊΠΎΠ½ΡΡΡΡΠΊΡΠΈΠΈ Π₯Π°ΡΡΠΊΠΎΠ²ΡΠΊΠΎΠ³ΠΎ Π·Π°Π²ΠΎΠ΄Π° ΠΠ’Π ΠΈΠΌ. Π. Π. ΠΠ΅Π½ΠΈΠ½Π°. Π Π°ΠΌΠ° Π΅Π΅ Π½Π΅ΡΠ΅Ρ Π³ΡΡΠ·ΠΎΠ²ΡΡ ΠΈ ΡΡΠ³ΠΎΠ²ΡΡ Π»Π΅Π±Π΅Π΄ΠΊΠΈ; ΠΏΠΎΡΠ»Π΅Π΄Π½ΡΡ ΠΈΠΌΠ΅Π΅Ρ Π½Π°ΡΠ΅Π·Π½ΠΎΠΉ Π±Π°ΡΠ°Π±Π°Π½, Ρ ΠΊΠΎΡΠΎΡΠΎΠ³ΠΎ ΡΠ±Π΅Π³Π°ΡΡ ΡΠ΅ΡΡΡΠ΅ Π²Π΅ΡΠ²ΠΈ ΠΊΠ°Π½Π°ΡΠ°, ΠΏΠΎΠΏΠ°ΡΠ½ΠΎ ΠΏΡΠΎΠ²Π΅Π΄Π΅Π½Π½ΡΠ΅ ΠΊ ΠΊΠΎΠ½ΡΠ°ΠΌ ΠΊΠΎΠ½ΡΠΎΠ»Π΅ΠΉ ΠΌΠΎΡΡΠ°. ΠΠ° ΠΊΠΎΠ½ΡΠΎΠ»ΡΡ
ΠΏΡΠ΅Π΄ΡΡΠΌΠΎΡΡΠ΅Π½Ρ ΠΎΡΠΊΠ»ΠΎΠ½ΡΡΡΠΈΠ΅ Π±Π»ΠΎΠΊΠΈ Π΄Π»Ρ ΡΡΠ°Π²Π½ΠΈΡΠ΅Π»ΡΠ½ΡΡ
ΠΏΠ΅ΡΠ΅Π»Ρ ΠΊΠ°Π½Π°ΡΠΎΠ². Π Π°Π·ΠΌΠ΅ΡΠ΅Π½ΠΈΠ΅ ΡΡΠ³ΠΎΠ²ΠΎΠΉ Π»Π΅Π±Π΅Π΄ΠΊΠΈ Π½Π΅ΠΏΠΎΡΡΠ΅Π΄ΡΡΠ²Π΅Π½Π½ΠΎ Π½Π° ΡΠ΅Π»Π΅ΠΆΠΊΠ΅ Π±ΠΎΠ»Π΅Π΅ ΡΠ΅ΠΌ Π²Π΄Π²ΠΎΠ΅ ΡΠΎΠΊΡΠ°ΡΠ°Π΅Ρ Π΄Π»ΠΈΠ½Ρ ΡΡΠ³ΠΎΠ²ΠΎΠ³ΠΎ ΠΊΠ°Π½Π°ΡΠ°, ΡΡΠΎ ΡΡΡΠ΅ΡΡΠ²Π΅Π½Π½ΠΎ ΡΠ»ΡΡΡΠ°Π΅Ρ ΡΠ°Π±ΠΎΡΡ ΠΌΠ΅Ρ
Π°Π½ΠΈΠ·ΠΌΠ°, ΡΠΌΠ΅Π½ΡΡΠ°Ρ ΠΊΠΎΠ»Π΅Π±Π°Π½ΠΈΡ ΡΠ΅Π»Π΅ΠΆΠΊΠΈ Π²ΡΠ»Π΅Π΄ΡΡΠ²ΠΈΠ΅ ΡΠΏΡΡΠ³ΠΈΡ
Π΄Π΅ΡΠΎΡΠΌΠ°ΡΠΈΠΉ ΠΊΠ°Π½Π°ΡΠ° ΠΈ ΡΠΏΡΠΎΡΠ°Ρ Π½Π°ΡΡΠΆΠ½ΠΎΠ΅ ΡΡΡΡΠΎΠΉΡΡΠ²ΠΎ. ΠΡΠΎΠΌΠ΅ ΡΡΠΎΠ³ΠΎ, ΡΡΡΡΠ°Π½ΡΡΡΡΡ ΠΎΡΠΊΠ»ΠΎΠ½ΡΡΡΠΈΠ΅ Π±Π»ΠΎΠΊΠΈ. ΠΠ°Π»ΠΈΡΠΈΠ΅ Π΄Π²ΡΡ
ΠΏΠ°Ρ Π²Π΅ΡΠ²Π΅ΠΉ ΠΊΠ°Π½Π°ΡΠ° ΠΈΡΠΊΠ»ΡΡΠ°Π΅Ρ Π½Π΅ΡΠ΅Π½ΡΡΠ°Π»ΡΠ½ΠΎΠ΅ ΠΏΡΠΈΠ»ΠΎΠΆΠ΅Π½ΠΈΠ΅ ΡΡΠ³ΠΎΠ²ΡΡ
ΡΡΠΈΠ»ΠΈΠΉ. Π₯ΠΎΠ΄ΠΎΠ²ΡΠ΅ ΠΊΠΎΠ»Π΅ΡΠ° ΡΠΌΠΎΠ½ΡΠΈΡΠΎΠ²Π°Π½Ρ Π½Π° ΡΡΠΎΠΉΠΊΠ°Ρ
, ΠΎΠ΄Π½Π° ΠΈΠ· ΠΏΠ°Ρ ΠΊΠΎΡΠΎΡΡΡ
ΠΏΡΠΈΠΊΡΠ΅ΠΏΠ»Π΅Π½Π° ΠΊ ΠΏΠΎΠΏΠ΅ΡΠ΅ΡΠ½ΠΎΠΉ Π±Π°Π»ΠΊΠ΅, ΡΠΎΠ΅Π΄ΠΈΠ½ΡΡΡΠ΅ΠΉΡΡ Ρ ΡΠ°ΠΌΠΎΠΉ ΡΠ΅Π»Π΅ΠΆΠΊΠΈ ΡΠ°ΡΠ½ΠΈΡΠ½ΠΎΠΉ ΠΎΡΡΡ ΠΈ Π½Π΅ΡΡΡΠ΅ΠΉ Π»Π΅Π±Π΅Π΄ΠΊΡ.
Π ΡΠ΅Π·ΡΠ»ΡΡΠ°ΡΠ΅ ΠΏΠΎΠ»ΡΡΠ°Π΅ΡΡΡ ΡΡΠ΅Ρ
ΡΠΎΡΠ΅ΡΠ½ΠΎΠ΅ ΠΎΠΏΠΈΡΠ°Π½ΠΈΠ΅ Π³ΡΡΠ·ΠΎΠ²ΠΎΠΉ ΡΠ΅Π»Π΅ΠΆΠΊΠΈ. Π‘ΡΠΎΠΉΠΊΠΈ ΡΠ²ΡΠ·Π°Π½Ρ ΡΡΡΠΆΠΊΠ°ΠΌΠΈ. ΠΠ°Π±ΠΈΠ½Π° ΡΠΏΡΠ°Π²Π»Π΅Π½ΠΈΡ ΡΠ½Π°Π±ΠΆΠ΅Π½Π° ΡΠΎΠ±ΡΡΠ²Π΅Π½Π½ΡΠΌΠΈ Ρ
ΠΎΠ΄ΠΎΠ²ΡΠΌΠΈ ΠΊΠΎΠ»Π΅ΡΠ°ΠΌΠΈ ΠΈ ΡΠ²ΡΠ·Π°Π½Π° Ρ ΡΠ°ΡΠ½ΠΈΡΠ½ΠΎΠΉ ΠΏΡΠΎΡΡΠΈΠ½ΠΎΠΉ ΡΠ°ΠΌΡ ΡΠ΅Π»Π΅ΠΆΠΊΠΈ.
Π ΠΈΡ. 71. ΠΡΡΠ·ΠΎΠ²Π°Ρ ΠΏΠΎΠ΄Π²Π΅ΡΠ½Π°Ρ ΡΠ°ΠΌΠΎΡ ΠΎΠ΄Π½Π°Ρ ΡΠ΅Π»Π΅ΠΆΠΊΠ° ΠΊΡΠ°Π½Π° ΠΠΠ-12,5
Π Π΄Π²ΡΡ
ΡΠ΅Π»ΡΡΠΎΠ²ΠΎΠΉ ΠΏΠΎΠ΄Π²Π΅ΡΠ½ΠΎΠΉ ΡΠ°ΠΌΠΎΡ
ΠΎΠ΄Π½ΠΎΠΉ ΡΠ΅Π»Π΅ΠΆΠΊΠ΅ (ΡΠΈΡ. 71) ΠΊΡΠ°Π½ΠΎΠ² ΠΠΠ-8 ΠΈ ΠΠΠ-12,5 (ΠΠ»Π΅ΠΊΡΠ°Π½Π΄ΡΠΈΠΉΡΠΊΠΈΠΉ Π·Π°Π²ΠΎΠ΄ ΠΠ’Π ΠΈΠΌ. 60-Π»Π΅ΡΠΈΡ ΠΠ΅Π»ΠΈΠΊΠΎΠΉ ΠΠΊΡΡΠ±ΡΡΡΠΊΠΎΠΉ ΡΠΎΡΠΈΠ°Π»ΠΈΡΡΠΈΡΠ΅ΡΠΊΠΎΠΉ ΡΠ΅Π²ΠΎΠ»ΡΡΠΈΠΈ) ΠΏΡΠΈΠΌΠ΅Π½Π΅Π½Π° ΡΡΠ΅Ρ
ΠΎΠΏΠΎΡΠ½Π°Ρ ΡΡ
Π΅ΠΌΠ° ΠΎΠΏΠΈΡΠ°Π½ΠΈΡ Π³ΡΡΠ·ΠΎΠ²ΠΎΠΉ ΡΠ΅Π»Π΅ΠΆΠΊΠΈ. ΠΠΎΡΠΎΠ±ΡΠ°ΡΡΠ΅ ΡΡΠΎΠΉΠΊΠΈ, Π½Π΅ΡΡΡΠΈΠ΅ Ρ
ΠΎΠ΄ΠΎΠ²ΡΠ΅ ΠΊΠΎΠ»Π΅ΡΠ°, ΡΠΎΠ΅Π΄ΠΈΠ½Π΅Π½Ρ Ρ ΡΠ°ΠΌΠΎΠΉ ΡΠ΅Π»Π΅ΠΆΠΊΠΈ ΠΈ Π±Π°Π»ΠΊΠΎΠΉ Π±Π°Π»Π°Π½ΡΠΈΡΠ° Ρ ΠΏΠΎΠΌΠΎΡΡΡ ΡΠ»Π°Π½ΡΠ΅Π² ΠΈ ΡΠ°ΡΠ½ΠΈΡΠΎΠ². ΠΠ°Π»ΠΈΡΠΈΠ΅ ΠΏΠΎΡΠ»Π΅Π΄Π½ΠΈΡ
ΠΏΠΎΠ·Π²ΠΎΠ»ΡΠ΅Ρ ΠΏΡΠΈ Π½Π΅Π·Π°ΠΊΡΠ΅ΠΏΠ»Π΅Π½Π½ΡΡ
ΡΠ»Π°Π½ΡΠ°Ρ
ΠΎΡΠ²ΠΎΠ΄ΠΈΡΡ ΡΡΠΎΠΉΠΊΠΈ Π² ΡΡΠΎΡΠΎΠ½Ρ, Π²ΡΠ²ΠΎΠ΄Ρ Ρ
ΠΎΠ΄ΠΎΠ²ΡΠ΅ ΠΊΠΎΠ»Π΅ΡΠ° Π·Π° Π³Π°Π±Π°ΡΠΈΡ ΡΠ΅Π»ΡΡΠΎΠ². ΠΡΠΈΠ²ΠΎΠ΄ ΠΌΠ΅Ρ
Π°Π½ΠΈΠ·ΠΌΠ° ΠΏΠ΅ΡΠ΅Π΄Π²ΠΈΠΆΠ΅Π½ΠΈΡ ΠΎΠ±ΡΠ°Π·ΠΎΠ²Π°Π½ ΡΠ»Π΅ΠΊΡΡΠΎΠ΄Π²ΠΈΠ³Π°ΡΠ΅Π»ΡΠΌΠΈ, Π΄Π²ΡΡ
ΠΏΠ°ΡΠ½ΡΠΌ ΡΠΈΠ»ΠΈΠ½Π΄ΡΠΈΡΠ΅ΡΠΊΠΈΠΌ ΡΠ΅Π΄ΡΠΊΡΠΎΡΠΎΠΌ, Ρ ΠΎΠ±ΠΎΠΈΠΌΠΈ ΠΊΠΎΠ½ΡΠ°ΠΌΠΈ Π²ΡΡ
ΠΎΠ΄Π½ΠΎΠ³ΠΎ Π²Π°Π»Π° ΠΊΠΎΡΠΎΡΠΎΠ³ΠΎ Π·ΡΠ±ΡΠ°ΡΡΠΌΠΈ ΠΌΡΡΡΠ°ΠΌΠΈ ΡΠΎΠ΅Π΄ΠΈΠ½Π΅Π½Ρ Π²ΡΡΡΠΎΠ΅Π½Π½ΡΠ΅ Π² ΠΆΠ΅ΡΡΠΊΠΎ Π·Π°ΠΊΡΠ΅ΠΏΠ»Π΅Π½Π½ΡΠ΅ ΡΡΠΎΠΉΠΊΠΈ ΡΠ΅Π»Π΅ΠΆΠΊΠΈ Π·ΡΠ±ΡΠ°ΡΡΠ΅ ΠΏΠ΅ΡΠ΅Π΄Π°ΡΠΈ. Π‘ ΠΏΠΎΠΌΠΎΡΡΡ ΠΏΠΎΡΠ»Π΅Π΄Π½ΠΈΡ
Π²ΡΠ°ΡΠ΅Π½ΠΈΠ΅ ΠΏΠ΅ΡΠ΅Π΄Π°Π΅ΡΡΡ Π½Π° Π²Π΅Π΄ΡΡΠΈΠ΅ Ρ
ΠΎΠ΄ΠΎΠ²ΡΠ΅ ΠΊΠΎΠ»Π΅ΡΠ°.
Π ΠΈΡ. 72. ΠΠ΅Ρ Π°Π½ΠΈΠ·ΠΌ ΠΏΠΎΠ²ΠΎΡΠΎΡΠ° ΡΡΠ°Π²Π΅ΡΡΡ ΠΊΡΠ°Π½Π° ΠΠΠ‘-10
ΠΡΠ°Π½Ρ ΠΠΠ-12,5 ΠΏΡΠ΅Π΄Π½Π°Π·Π½Π°ΡΠ΅Π½Ρ ΠΏΡΠ΅ΠΈΠΌΡΡΠ΅ΡΡΠ²Π΅Π½Π½ΠΎ Π΄Π»Ρ ΡΠ°Π±ΠΎΡΡ Ρ Π΄Π»ΠΈΠ½Π½ΠΎΠΌΠ΅ΡΠ½ΡΠΌΠΈ Π³ΡΡΠ·Π°ΠΌΠΈ, Π΄Π»Ρ ΠΎΠ±Π΅ΡΠΏΠ΅ΡΠ΅Π½ΠΈΡ ΡΠ΄ΠΎΠ±ΡΡΠ²Π° ΠΏΠ΅ΡΠ΅Π³ΡΡΠ·ΠΊΠΈ ΠΊΠΎΡΠΎΡΡΡ ΠΌΠ΅Ρ Π°Π½ΠΈΠ·ΠΌ ΠΏΠΎΠ΄ΡΠ΅ΠΌΠ° ΡΠΌΠΎΠ½ΡΠΈΡΠΎΠ²Π°Π½ Π½Π° ΠΏΠΎΠ²ΠΎΡΠΎΡΠ½ΠΎΠΉ ΠΏΠ»Π°ΡΡΠΎΡΠΌΠ΅. ΠΠΎ ΡΡΠ»ΠΎΠ²ΠΈΡΠΌ ΠΊΠΎΠΌΠΏΠΎΠ½ΠΎΠ²ΠΊΠΈ ΠΏΠΎΡΠ»Π΅Π΄Π½Π΅ΠΉ Π·Π΄Π΅ΡΡ ΠΏΡΠΈΠΌΠ΅Π½Π΅Π½ ΠΌΠ΅Ρ Π°Π½ΠΈΠ·ΠΌ ΠΏΠΎΠ΄ΡΠ΅ΠΌΠ°, ΡΠΎΡΡΠΎΡΡΠΈΠΉ ΠΈΠ· Π΄Π²ΡΡ Π»Π΅Π±Π΅Π΄ΠΎΠΊ. ΠΠ»Π°ΡΡΠΎΡΠΌΠ° ΡΠΌΠΎΠ½ΡΠΈΡΠΎΠ²Π°Π½Π° Π½βΠ° Π²Π΅ΡΡΠΈΠΊΠ°Π»ΡΠ½ΠΎΠΉ ΡΠ°ΠΏΡΠ΅, Π²ΡΠ°ΡΠ°ΡΡΠ΅ΠΉΡΡ Π² ΠΏΠΎΠ΄ΡΠΈΠΏΠ½ΠΈΠΊΠ°Ρ ΡΠ°ΠΌΡ Π³ΡΡΠ·ΠΎΠ²ΠΎΠΉ ΡΠ΅Π»Π΅ΠΆΠΊΠΈ. ΠΠ΅ΡΡ Π½ΠΈΠΉ ΠΊΠΎΠ½Π΅Ρ ΡΠ°ΠΏΡΡ Π½Π΅ΡΠ΅Ρ Π·ΡΠ±ΡΠ°ΡΠΎΠ΅ ΠΊΠΎΠ»Π΅ΡΠΎ ΠΏΠΎΠ²ΠΎΡΠΎΡΠ½ΠΎΠ³ΠΎ ΠΌΠ΅Ρ Π°Π½ΠΈΠ·ΠΌΠ°. ΠΡΡΠ·ΠΎΠ²ΡΠ΅ ΠΊΠ°Π½Π°ΡΡ Π»Π΅Π±Π΅Π΄ΠΎΠΊ Π·Π°ΠΏΠ°ΡΠΎΠ²Π°Π½Ρ Π½Π° Π±Π»ΠΎΠΊΠΈ Π³ΡΡΠ·ΠΎΠ·Π°Ρ Π²Π°ΡΠ½ΠΎΠΉ ΡΡΠ°Π²Π΅ΡΡΡ. ΠΠ°Π±ΠΈΠ½Π° ΡΠΏΡΠ°Π²Π»Π΅Π½ΠΈΡ ΠΊΡΠ°Π½Π° ΠΠΠ-12,5 ΠΏΠΎΠ΄Π²Π΅ΡΠ΅Π½Π° Π½Π΅ΠΏΠΎΡΡΠ΅Π΄ΡΡΠ²Π΅Π½Π½ΠΎ ΠΊ ΠΊΠΎΠ½ΡΠΎΠ»ΡΠ½ΡΠΌ Π±Π°Π»ΠΊΠ°ΠΌ ΡΠ°ΠΌΡ Π³ΡΡΠ·ΠΎΠ²ΠΎΠΉ ΡΠ΅Π»Π΅ΠΆΠΊΠΈ.
Π ΡΠ΅Π·ΡΠ»ΡΡΠ°ΡΠ΅ ΠΈΡΠΊΠ»ΡΡΠ΅Π½ΠΈΡ Ρ
ΠΎΠ΄ΠΎΠ²ΡΡ
ΠΊΠΎΠ»Π΅Ρ ΠΊΠ°Π±ΠΈΠ½Ρ Π½Π΅ΡΠΊΠΎΠ»ΡΠΊΠΎ ΡΠΌΠ΅Π½ΡΡΠ°Π΅ΡΡΡ Π΄Π»ΠΈΠ½Π° ΠΏΠΎΠ΄ΡΠ΅Π»Π΅ΠΆΠ΅ΡΠ½ΡΡ
Π½Π°ΠΏΡΠ°Π²Π»ΡΡΡΠΈΡ
ΠΌΠΎΡΡΠ°. ΠΠ΄Π½Π°ΠΊΠΎ ΠΏΡΠΈ ΡΡΠΎΠΌ ΡΠ°ΡΡΠΎ Π²ΠΎΠ·Π½ΠΈΠΊΠ°ΡΡ ΡΡΡΠ΄Π½ΠΎΡΡΠΈ Ρ ΠΎΠ±Π΅ΡΠΏΠ΅ΡΠ΅Π½ΠΈΠ΅ΠΌ ΡΠ°Π²Π½ΠΎΠΌΠ΅ΡΠ½ΠΎΠ³ΠΎ ΡΠ°ΡΠΏΡΠ΅Π΄Π΅Π»Π΅Π½ΠΈΡ Π½Π°Π³ΡΡΠ·ΠΎΠΊ Π½Π° Ρ
ΠΎΠ΄ΠΎΠ²ΡΠ΅ ΠΊΠΎΠ»Π΅ΡΠ° Π³ΡΡΠ·ΠΎΠ²ΠΎΠΉ ΡΠ΅Π»Π΅ΠΆΠΊΠΈ. ΠΠΎΠ·ΠΌΠΎΠΆΠ½ΠΎΡΡΡ ΡΠ°Π·Π²ΠΎΡΠΎΡΠ° ΡΡΠ°Π²Π΅ΡΡΡ Π²Π΅ΡΡΠΌΠ° Π±Π»Π°Π³ΠΎΠΏΡΠΈΡΡΠ½Π° Π΄Π»Ρ ΡΠ°Π±ΠΎΡΡ Ρ ΠΏΠ»ΠΎΡ
ΠΎ ΡΠ΅Π½ΡΡΠΈΡΠΎΠ²Π°Π½Π½ΡΠΌΠΈ Π² ΠΏΡΠΎΠ΄ΠΎΠ»ΡΠ½ΠΎΠΌ Π½Π°ΠΏΡΠ°Π²Π»Π΅Π½ΠΈΠΈ Π΄Π»ΠΈΠ½Π½ΠΎΠΌΠ΅ΡΠ½ΡΠΌΠΈ Π³ΡΡΠ·Π°ΠΌΠΈ, Π½Π°ΠΏΡΠΈΠΌΠ΅Ρ ΠΏΠ°ΡΠΊΠ°ΠΌΠΈ ΠΊΡΡΠ³Π»ΠΎΠ³ΠΎ Π»Π΅ΡΠ°.
Π ΡΠΎ ΠΆΠ΅ Π²ΡΠ΅ΠΌΡ ΡΠ°ΠΊΠΎΠ΅ Π²ΡΠΏΠΎΠ»Π½Π΅Π½ΠΈΠ΅ ΠΌΠ΅Ρ
Π°Π½ΠΈΠ·ΠΌΠ° ΡΡΡΠ΅ΡΡΠ²Π΅Π½Π½ΠΎ ΡΡΠ»ΠΎΠΆΠ½ΠΈΠ»ΠΎ Π³ΡΡΠ·ΠΎΠ²ΡΡ ΡΠ΅Π»Π΅ΠΆΠΊΡ ΠΈ ΡΠ²Π΅Π»ΠΈΡΠΈΠ»ΠΎ Π΅Π΅ ΠΌΠ°ΡΡΡ. ΠΠΎΡΡΠΎΠΌΡ ΡΠ°ΡΡΠΎ Π΄Π»Ρ ΡΠ°Π·Π²ΠΎΡΠΎΡΠ° Π³ΡΡΠ·ΠΎΠ² ΠΈΡΠΏΠΎΠ»ΡΠ·ΡΡΡ ΠΌΠΎΠ½ΡΠΈΡΡΠ΅ΠΌΡΠ΅ Π½Π΅ΠΏΠΎΡΡΠ΅Π΄ΡΡΠ²Π΅Π½Π½ΠΎ Π½Π° ΡΡΠ°Π²Π΅ΡΡΠ°Ρ
ΠΏΠΎΠ²ΠΎΡΠΎΡΠ½ΡΠ΅ ΠΌΠ΅Ρ
Π°Π½ΠΈΠ·ΠΌΡ.
ΠΠ° ΡΠΈΡ. 72 ΠΏΠΎΠΊΠ°Π·Π°Π½ΠΎ ΡΠ°Π·ΠΌΠ΅ΡΠ΅Π½ΠΈΠ΅ ΠΌΠ΅Ρ Π°Π½ΠΈΠ·ΠΌΠ° ΠΏΠΎΠ²ΠΎΡΠΎΡΠ° Π½Π° ΡΡΠ°Π²Π΅ΡΡΠ°Ρ ΠΊΡΠ°Π½ΠΎΠ² ΠΠΠ‘-10 ΠΏΡΠΈ ΠΎΡΠ½Π°ΡΠ΅Π½ΠΈΠΈ ΠΈΡ ΠΌΠΎΡΠΎΡΠ½ΡΠΌΠΈ Π·Π°Ρ Π²Π°ΡΠ°ΠΌΠΈ Π΄Π»Ρ Π»Π΅ΡΠ°. ΠΠ΅Ρ Π°Π½ΠΈΠ·ΠΌ ΡΠΎΠ΄Π΅ΡΠΆΠΈΡ Π΄Π²ΠΈΠ³Π°ΡΠ΅Π»Ρ ΠΌΠΎΡΠ½ΠΎΡΡΡΡ 2,5 ΠΊΠΡ, ΡΠ΅ΡΠ΅Π· Π΄Π²ΡΡ ΠΏΠ°ΡΠ½ΡΠΉ ΡΠ΅ΡΠ²ΡΡΠ½ΡΠΉ ΡΠ΅Π΄ΡΠΊΡΠΎΡ, Π²ΡΠ°ΡΠ°ΡΡΠΈΠΉ Π²Π΅ΡΡΠΈΠΊΠ°Π»ΡΠ½ΡΡ ΡΠ°ΠΏΡΡ, ΠΊ ΠΊΠΎΡΠΎΡΠΎΠΉ ΠΏΠΎΠ΄Π²Π΅ΡΠΈΠ²Π°ΡΡ Π·Π°Ρ Π²Π°Ρ.
ΠΠ²Π°Π΄ΡΠ°ΡΠΈΡΠΎΠ½Π½Π°Ρ ΠΊΠ°Π½Π°ΡΠ½Π°Ρ ΡΠ΅Π»Π΅ΠΆΠΊΠ° ΠΊΡΠ°Π½Π° ΠΠΠ’Π‘-20 (ΡΠΈΡ. 73) ΠΏΠ΅ΡΠ΅ΠΌΠ΅ΡΠ°Π΅ΡΡΡ ΠΏΠΎ Π΄Π²ΡΠΌ ΠΏΠΎΠ΄ΡΠ΅Π»Π΅ΠΆΠ΅ΡΠ½ΡΠΌ ΠΊΠ²Π°Π΄ΡΠ°ΡΠ°ΠΌ Π½Π° ΡΠ΅ΡΡΡΠ΅Ρ Π΄Π²ΡΡ ΠΊΠΎΠ»Π΅ΡΠ½ΡΡ Π±Π°Π»Π°Π½ΡΠΈΡΠ½ΡΡ Ρ ΠΎΠ΄ΠΎΠ²ΡΡ ΡΠ΅Π»Π΅ΠΆΠΊΠ°Ρ . Π ΠΊΠ°ΠΆΠ΄ΠΎΠΉ ΠΈΠ· Π½ΠΈΡ Π·Π°ΠΊΡΠ΅ΠΏΠ»Π΅Π½Ρ ΠΏΠΎ Π΄Π²Π΅ ΠΎΡΠΈ Ρ ΡΠ»Π°Π½ΡΠ°ΠΌΠΈ; Π½Π° ΠΊΠΎΠ½ΡΠΎΠ»ΡΡ ΠΎΡΠ΅ΠΉ Π½Π° Π΄Π²ΡΡ ΡΠ°ΡΠΈΠΊΠΎΠΏΠΎΠ΄ΡΠΈΠΏΠ½ΠΈΠΊΠ°Ρ Π²ΡΠ°ΡΠ°ΡΡΡΡ ΠΊΠΎΠ»Π΅ΡΠ° Π΄ΠΈΠ°ΠΌΠ΅ΡΡΠΎΠΌ 250 ΠΌΠΌ. Π Π°ΠΌΡ Π±Π°Π»Π°Π½ΡΠΈΡΠΎΠ² Ρ Π²Π½ΡΡΡΠ΅Π½Π½Π΅ΠΉ ΡΡΠΎΡΠΎΠ½Ρ ΠΈΠΌΠ΅ΡΡ ΠΏΡΠ΅Π΄ΠΎΡ ΡΠ°Π½ΠΈΡΠ΅Π»ΡΠ½ΡΠ΅ ΠΎΠΏΠΎΡΠ½ΡΠ΅ ΠΊΡΠΎΠ½ΡΡΠ΅ΠΉΠ½Ρ Π½Π° ΡΠ»ΡΡΠ°ΠΉ ΠΏΠΎΠ»ΠΎΠΌΠΎΠΊ ΠΎΡΠ΅ΠΉ.
Π ΠΈΡ. 73. ΠΠ°Π½Π°ΡΠ½Π°Ρ ΠΏΠΎΠ΄Π²Π΅ΡΠ½Π°Ρ ΡΠ΅Π»Π΅ΠΆΠΊΠ° ΠΊΡΠ°Π½Π° ΠΠΠ’Π‘-20
ΠΠ²Π΅ ΠΏΡΠΎΠ΄ΠΎΠ»ΡΠ½ΡΡ
Π±Π°Π»ΠΊΠΈ Π΄Π»Ρ Π±Π»ΠΎΠΊΠΎΠ² ΠΏΠΎΠ»ΠΈΡΠΏΠ°ΡΡΠ° ΡΠΎΠ΅Π΄ΠΈΠ½Π΅Π½Ρ ΠΆΠ΅ΡΡΠΊΠΎ Ρ ΠΏΠ΅ΡΠ΅Π΄Π½Π΅ΠΉ ΠΏΠΎΠΏΠ΅ΡΠ΅ΡΠ½ΠΎΠΉ ΠΊΠΎΡΠΎΠ±ΡΠ°ΡΠΎΠΉ Π±Π°Π»ΠΊΠΎΠΉ ΠΈ ΡΠ°ΡΠ½ΠΈΡΠ½ΠΎ Ρ Π·Π°Π΄Π½Π΅ΠΉ Π±Π°Π»ΠΊΠΎΠΉ.
Π ΠΏΡΠΎΠ΄ΠΎΠ»ΡΠ½ΡΡ
Π±Π°Π»ΠΊΠ°Ρ
Π·Π°ΠΊΡΠ΅ΠΏΠ»Π΅Π½Ρ ΠΎΡΠΈ ΠΏΡΡΠΈ Π±Π»ΠΎΠΊΠΎΠ² ΠΏΠΎΠ΄ΡΠ΅ΠΌΠ½ΠΎΠ³ΠΎ ΠΏΠΎΠ»ΠΈΡΠΏΠ°ΡΡΠ°.
ΠΠ°Π±ΠΈΠ½Π° ΡΠΏΡΠ°Π²Π»Π΅Π½ΠΈΡ ΠΊΡΠ°Π½Π° ΠΠΠ’Π‘-20 ΠΏΠΎΠ΄Π²Π΅ΡΠ΅Π½Π° Π½Π° Π΄ΠΎΠΏΠΎΠ»Π½ΠΈΡΠ΅Π»ΡΠ½ΠΎΠΉ ΡΠ΅Π»Π΅ΠΆΠΊΠ΅, ΡΠ²ΡΠ·Π°Π½Π½ΠΎΠΉ Ρ Π³ΡΡΠ·ΠΎΠ²ΠΎΠΉ Ρ ΠΏΠΎΠΌΠΎΡΡΡ Π΄Π²ΡΡ ΡΠ°ΡΠ½ΠΈΡΠ½ΡΡ ΡΡΠ³. Π ΠΏΠ΅ΡΠ΅Π΄Π½Π΅ΠΉ ΠΏΠΎΠΏΠ΅ΡΠ΅ΡΠ½ΠΎΠΉ Π±Π°Π»ΠΊΠ΅ Π½Π° ΠΏΠ°Π»ΡΡΠ°Ρ ΠΏΡΠΈΠΊΡΠ΅ΠΏΠ»ΡΡΡ ΡΡΡΠ½ΡΡ Π»Π΅Π±Π΅Π΄ΠΊΡ Π΄Π»Ρ Π²ΡΠ±ΠΎΡΠ° ΡΠ»Π°Π±ΠΈΠ½Ρ ΠΊΠ°Π½Π°ΡΠ° ΠΏΠ΅ΡΠ΅Π΄Π²ΠΈΠΆΠ΅Π½ΠΈΡ ΡΠ΅Π»Π΅ΠΆΠΊΠΈ. ΠΠ° Π·Π°Π΄Π½Π΅ΠΉ Π±Π°Π»ΠΊΠ΅ ΠΊΠ°Π½Π°Ρ ΡΠΊΡΠ΅ΠΏΠ»ΡΠ΅ΡΡΡ Π·Π° ΠΎΡΠΈ Ρ ΠΏΠΎΠΌΠΎΡΡΡ ΡΠΆΠΈΠΌΠΎΠ².
ΠΠ° Π±ΠΎΠΊΠΎΠ²ΠΎΠΉ ΠΏΠ»ΠΎΡΠ°Π΄ΠΊΠ΅ ΠΊΠ°Π±ΠΈΠ½Ρ ΠΏΡΠ΅Π΄ΡΡΠΌΠΎΡΡΠ΅Π½Π° ΡΠ΅Π»Π΅ΡΠΊΠΎΠΏΠΈΡΠ΅ΡΠΊΠ°Ρ Π»Π΅ΡΡΠ½ΠΈΡΠ° Π΄Π»Ρ Π²ΡΡ ΠΎΠ΄Π° Π½Π° ΠΌΠΎΡΡ Π² Π»ΡΠ±ΠΎΠΌ ΠΌΠ΅ΡΡΠ΅ ΠΎΡΡΠ°Π½ΠΎΠ²ΠΊΠΈ ΡΠ΅Π»Π΅ΠΆΠΊΠΈ. ΠΠ»Ρ ΠΏΡΠ΅Π΄ΠΎΡ ΡΠ°Π½Π΅Π½ΠΈΡ ΠΎΡ ΡΡ ΠΎΠ΄Π° ΠΊΠ°Π½Π°ΡΠ° Π²Π½ΡΡΡΠ΅Π½Π½ΠΈΠ΅ Π±Π»ΠΎΠΊΠΈ ΠΈΠΌΠ΅ΡΡ ΠΏΡΠΈΠ²Π°ΡΠ΅Π½Π½ΡΠ΅ ΠΊ Π±Π°Π»ΠΊΠ°ΠΌ ΠΎΠ³ΡΠ°Π½ΠΈΡΠΈΡΠ΅Π»ΠΈ; Π½Π°ΡΡΠΆΠ½ΡΠ΅ Π±Π»ΠΎΠΊΠΈ ΡΠ½Π°Π±ΠΆΠ΅Π½Ρ ΠΎΡΠΎΠ΄Π²ΠΈΠ³Π°ΡΡΠΈΠΌΠΈΡΡ ΠΎΠ³ΡΠ°Π½ΠΈΡΠΈΡΠ΅Π»ΡΠΌΠΈ, ΡΡΠΎ ΠΎΠ±Π»Π΅Π³ΡΠ°Π΅Ρ Π·Π°ΠΏΠ°ΡΠΎΠ²ΠΊΡ ΠΊΠ°Π½Π°ΡΠ°.
ΠΠΏΠΎΡΠ½ΡΠ΅ Π³ΡΡΠ·ΠΎΠ²ΡΠ΅ ΡΠ΅Π»Π΅ΠΆΠΊΠΈ. ΠΠ° ΠΊΠΎΠ·Π»ΠΎΠ²ΡΡ
ΠΊΡΠ°Π½Π°Ρ
βΡ Π΄Π²ΡΡ
Π±Π°Π»ΠΎΡ-Π½ΡΠΌΠΈ ΠΌΠΎΡΡΠ°ΠΌΠΈ ΠΏΡΠΈΠΌΠ΅Π½ΡΡΡ, ΠΊΠ°ΠΊ ΠΏΡΠ°Π²ΠΈΠ»ΠΎ, Π³ΡΡΠ·ΠΎΠ²ΡΠ΅ ΡΠ΅Π»Π΅ΠΆΠΊΠΈ ΠΌΠΎΡΡΠΎΠ²ΡΡ
ΡΠ»Π΅ΠΊΡΡΠΈΡΠ΅ΡΠΊΠΈΡ
ΠΊΡΠ°Π½ΠΎΠ² ΡΠΎΠΎΡΠ²Π΅ΡΡΡΠ²ΡΡΡΠΈΡ
Π³ΡΡΠ·ΠΎΠΏΠΎΠ΄ΡΠ΅ΠΌΠ½ΠΎΡΡΠ΅ΠΉ ΠΈ ΡΠ΅ΠΆΠΈΠΌΠ° ΡΠ°Π±ΠΎΡΡ. ΠΠΎΠ½ΡΡΡΡΠΊΡΠΈΡ ΠΈΡ
Π΄ΠΎΡΡΠ°ΡΠΎΡΠ½ΠΎ ΠΏΠΎΠ΄ΡΠΎΠ±Π½ΠΎ ΡΠ°ΡΡΠΌΠΎΡΡΠ΅Π½Π° Π² ΡΠ΅Ρ
Π½ΠΈΡΠ΅ΡΠΊΠΎΠΉ Π»ΠΈΡΠ΅ΡΠ°ΡΡΡΠ΅. Π‘Π»Π΅Π΄ΡΠ΅Ρ ΡΠΎΠ»ΡΠΊΠΎ ΠΎΡΠΌΠ΅ΡΠΈΡΡ, ΡΡΠΎ ΡΠ΅Π»Π΅ΠΆΠΊΠΈ Π΄ΠΎΠ»ΠΆΠ½Ρ Π±ΡΡΡ ΠΎΠ±ΠΎΡΡΠ΄ΠΎΠ²Π°Π½Ρ Π»Π΅Π³ΠΊΠΎΡΡΠ΅ΠΌΠ½ΡΠΌΠΈ ΠΊΠΎΠΆΡΡ
Π°ΠΌΠΈ, Π·Π°ΡΠΈΡΠ°ΡΡΠΈΠΌΠΈ ΠΈΡ
ΠΌΠ΅Ρ
Π°Π½ΠΈΠ·ΠΌΡ ΠΎΡ Π°ΡΠΌΠΎΡΡΠ΅ΡΠ½ΡΡ
Π²ΠΎΠ·Π΄Π΅ΠΉΡΡΠ²ΠΈΠΉ.
Π Π½Π΅ΠΊΠΎΡΠΎΡΡΡ
ΠΊΡΠ°Π½Π°Ρ
Π½Π° ΡΠ°ΠΌΠ΅ Π³ΡΡΠ·ΠΎΠ²ΠΎΠΉ ΡΠ΅Π»Π΅ΠΆΠΊΠΈ ΠΏΡΠ΅Π΄ΡΡΠΌΠΎΡΡΠ΅Π½Ρ ΠΏΡΠΎΡΡΠΈΠ½Ρ Π΄Π»Ρ ΠΊΡΠ΅ΠΏΠ»Π΅Π½ΠΈΡ Π΄ΠΎΠΏΠΎΠ»Π½ΠΈΡΠ΅Π»ΡΠ½ΠΎΠΉ ΠΊΠ°Π±ΠΈΠ½Π½ΠΎΠΉ ΡΠ΅Π»Π΅ΠΆΠΊΠΈ.
ΠΠΏΠΎΡΠ½ΡΠ΅ ΡΠ΅Π»Π΅ΠΆΠΊΠΈ Π±Π΅ΡΠΊΠΎΠ½ΡΠΎΠ»ΡΠ½ΡΡ ΠΊΠΎΠ·Π»ΠΎΠ²ΡΡ ΠΊΡΠ°Π½ΠΎΠ² ΠΎΠ±ΡΡΠ½ΠΎ Π²ΡΠΏΠΎΠ»Π½ΡΡΡ Π² Π²ΠΈΠ΄Π΅ ΠΏΠ»ΠΎΡΠΊΠΎΠΉ ΡΠ°ΠΌΡ, Π½Π° ΠΊΠΎΠ½ΡΠΎΠ»ΡΡ ΠΊΠΎΡΠΎΡΠΎΠΉ ΠΌΠΎΠ½ΡΠΈΡΡΡΡ Π±Π»ΠΎΠΊΠΈ Π³ΡΡΠ·ΠΎΠ²ΡΡ ΠΊΠ°Π½Π°ΡΠΎΠ², ΠΏΡΠΎΠ²Π΅Π΄Π΅Π½Π½ΡΡ ΠΏΠΎ ΠΎΠ±Π΅ΠΈΠΌ ΡΡΠΎΡΠΎΠ½Π°ΠΌ ΠΌΠΎΡΡΠ°.
ΠΠ»ΠΎΡΠΊΠ°Ρ ΡΠ°ΠΌΠ° Π³ΡΡΠ·ΠΎΠ²ΠΎΠΉ ΡΠ΅Π»Π΅ΠΆΠΊΠΈ (ΡΠΈΡ. 74) ΠΊΠΎΠ·Π»ΠΎΠ²ΠΎΠ³ΠΎ ΠΊΡΠ°Π½Π° Π³ΡΡΠ·ΠΎΠΏΠΎΠ΄ΡΠ΅ΠΌΠ½ΠΎΡΡΡΡ 30 Ρ ΠΎΠΏΠΈΡΠ°Π΅ΡΡΡ Π½Π° ΡΠ΅ΡΡΡΠ΅ Ρ
ΠΎΠ΄ΠΎΠ²ΡΡ
ΠΊΠΎΠ»Π΅ΡΠ° Π΄ΠΈΠ°ΠΌΠ΅ΡΡΠΎΠΌ 500 ΠΌΠΌ, ΠΏΠ΅ΡΠ΅ΠΌΠ΅ΡΠ°ΡΡΠΈΡ
ΡΡ ΠΏΠΎ Π½Π°ΠΏΡΠ°Π²Π»ΡΡΡΠΈΠΌ ΠΌΠΎΡΡΠ°. ΠΡΠ° ΡΠ°ΠΌΠ° ΠΎΠ±ΡΠ°Π·ΠΎΠ²Π°Π½Π° Π΄Π²ΡΠΌΡ ΠΏΠΎΠΏΠ΅ΡΠ΅ΡΠΈΠ½Π°ΠΌΠΈ ΠΈ ΡΠ΅ΡΡΡΡ ΠΏΡΠΎΠ΄ΠΎΠ»ΡΠ½ΡΠΌΠΈ Π±Π°Π»ΠΊΠ°ΠΌΠΈ. ΠΠ° ΠΊΠΎΠ½ΡΠΎΠ»ΡΠ½ΡΡ
ΡΠ°ΡΡΡΡ
ΡΠ°ΠΌΡ ΡΠΌΠΎΠ½ΡΠΈΡΠΎΠ²Π°Π½Ρ ΠΊΠ°Π½Π°ΡΠ½ΡΠ΅ Π±Π»ΠΎΠΊΠΈ Π΄Π²ΡΡ
ΡΠ°Π·Π΄Π΅Π»ΡΠ½ΡΡ
Π³ΡΡΠ·ΠΎΠ²ΡΡ
ΠΏΠΎΠ»ΠΈΡΠΏΠ°ΡΡΠΎΠ², ΠΏΠΎΠ΄Π΄Π΅ΡΠΆΠΈΠ²Π°ΡΡΠΈΡ
ΠΏΠΎΠΏΠ΅ΡΠ΅ΡΠ½ΡΡ Π·Π°Ρ
Π²Π°ΡΠ½ΡΡ ΡΡΠ°Π²Π΅ΡΡΡ. ΠΠΎΠ½ΡΡ ΡΡΠ³ΠΎΠ²ΠΎΠ³ΠΎ ΠΊΠ°Π½Π°ΡΠ°, ΠΏΠΎΠ΄Ρ
ΠΎΠ΄ΡΡΠ΅Π³ΠΎ ΠΊ ΡΠ΅Π»Π΅ΠΆΠΊΠ΅ Ρ ΠΎΠ±Π΅ΠΈΡ
ΡΡΠΎΡΠΎΠ½, ΠΎΡ
Π²Π°ΡΡΠ²Π°ΡΡ ΡΠ΅Π½ΡΡΠ°Π»ΡΠ½ΡΠ΅ Π±Π»ΠΎΠΊΠΈ ΠΈ Π·Π°ΠΊΡΠ΅ΠΏΠ»ΡΡΡΡΡ Π² ΠΏΠΎΠ»Π·ΡΠ½Π΅, ΠΏΠ΅ΡΠ΅ΠΌΠ΅ΡΠ°ΡΡΠ΅ΠΌΡΡ Ρ ΠΏΠΎΠΌΠΎΡΡΡ Π²ΠΈΠ½ΡΠ°. ΠΡΠΈ ΡΠ°Π±ΠΎΡΠ΅ ΠΊΠ°Π½Π°ΡΡ ΡΠΈΠΊΡΠΈΡΡΡΡΡΡ ΡΠ°ΠΊΠΆΠ΅ Π²ΠΈΠ½ΡΠΎΠ²ΡΠΌΠΈ ΡΠΊΠΎΠ±Π°ΠΌΠΈ. ΠΠΎΠ·Π²ΡΠ°ΡΠ½ΡΠ΅ Π²Π΅ΡΠ²ΠΈ ΡΡΠ³ΠΎΠ²ΡΡ
ΠΊΠ°Π½Π°ΡΠΎΠ² ΠΏΠΎΠ΄Π΄Π΅ΡΠΆΠΈΠ²Π°ΡΡΡΡ- ΡΠΎΠ»ΠΈΠΊΠ°ΠΌΠΈ. Π‘ ΡΠΎΡΡΠΎΠ² Π½Π° ΡΠ°ΠΌΠ΅ ΡΠ΅Π»Π΅ΠΆΠΊΠΈ Π·Π°ΠΊΡΠ΅ΠΏΠ»Π΅Π½Ρ Π΄Π΅ΡΠ΅Π²ΡΠ½Π½ΡΠ΅ Π±ΡΡΠ΅ΡΠ½ΡΠ΅ ΠΏΠΎΠ΄ΡΡΠΊΠΈ; ΡΠ΅Π»Π΅ΠΆΠΊΠ° ΡΠ½Π°Π±ΠΆΠ΅Π½Π° ΡΠ°ΠΊΠΆΠ΅ Π½Π°ΡΡΠΈΠ»ΠΎΠΌ ΠΈ ΠΎΠ³ΡΠ°ΠΆΠ΄Π΅Π½ΠΈΠ΅ΠΌ, ΡΡΠΎ ΠΎΠ±Π»Π΅Π³ΡΠ°Π΅Ρ Π΅Π΅ ΠΎΠ±ΡΠ»ΡΠΆΠΈΠ²Π°Π½ΠΈΠ΅.
Π ΠΈΡ. 74. ΠΠΏΠΎΡΠ½Π°Ρ Π³ΡΡΠ·ΠΎΠ²Π°Ρ ΡΠ΅Π»Π΅ΠΆΠΊΠ° Π±Π΅ΡΠΊΠΎΠ½ΡΠΎΠ»ΡΠ½ΠΎΠ³ΠΎ ΠΊΡΠ°Π½Π°
ΠΠΎΠ½ΡΠΎΠ»ΡΠ½ΠΎ-ΠΏΠΎΠ΄Π²Π΅ΡΠ½Π°Ρ Π³ΡΡΠ·ΠΎΠ²Π°Ρ ΡΠ΅Π»Π΅ΠΆΠΊΠ°. ΠΠ»Ρ ΠΊΡΠ°Π½ΠΎΠ² Ρ ΠΏΡΠΎΠ»Π΅ΡΠ½ΡΠΌ ΡΡΡΠΎΠ΅Π½ΠΈΠ΅ΠΌ, ΠΏΡΠΈΠΊΡΠ΅ΠΏΠ»ΡΠ΅ΠΌΡΠΌ ΠΊ ΠΎΠΏΠΎΡΠ°ΠΌ Ρ ΠΎΠ΄Π½ΠΎΠΉ ΡΡΠΎΡΠΎΠ½Ρ, ΠΏΡΠΎΠΈΠ·Π²ΠΎΠ΄ΡΡΠ²Π΅Π½Π½ΡΠΌ ΠΎΠ±ΡΠ΅Π΄ΠΈΠ½Π΅Π½ΠΈΠ΅ΠΌ Β«ΠΡΠ°Π½Β» ΡΠ°Π·ΡΠ°Π±ΠΎΡΠ°Π½Π° Π³ΡΡΠ·ΠΎΠ²Π°Ρ ΡΠ΅Π»Π΅ΠΆΠΊΠ° (ΡΠΈΡ. 75). Π’Π΅Π»Π΅ΠΆΠΊΠ° ΠΏΠ΅ΡΠ΅ΠΌΠ΅ΡΠ°Π΅ΡΡΡ ΠΏΠΎ ΠΎΠ΄Π½ΠΎΠΌΡ ΡΠ΅Π»ΡΡΡ, ΡΠ»ΠΎΠΆΠ΅Π½Π½ΠΎΠΌΡ Π½Π° Π²Π΅ΡΡ Π½Π΅ΠΌ ΠΏΠΎΡΡΠ΅ ΠΌΠΎΡΡΠ°. ΠΠ΅Π»ΠΎΠ± Π½ΠΈΠΆΠ½Π΅Π³ΠΎ ΠΏΠΎΡΡΠ° ΠΈΠ³ΡΠ°Π΅Ρ ΡΠΎΠ»Ρ Π½Π°ΠΏΡΠ°Π²Π»ΡΡΡΠ΅ΠΉ Π΄Π»Ρ ΠΊΠΎΠ»Π΅Ρ, ΠΏΡΠ΅ΠΏΡΡΡΡΠ²ΡΡΡΠΈΡ ΡΠ°ΡΠΊΠ°ΡΠΈΠ²Π°Π½ΠΈΡ ΡΠ΅Π»Π΅ΠΆΠΊΠΈ ΠΈ Π²ΠΎΡΠΏΡΠΈΠ½ΠΈΠΌΠ°ΡΡΠΈΡ Π±ΠΎΠΊΠΎΠ²ΡΠ΅ Π½Π°Π³ΡΡΠ·ΠΊΠΈ.
ΠΡΠ½ΠΎΠ²Π½ΡΠΌΠΈ ΡΠ»Π΅ΠΌΠ΅Π½ΡΠ°ΠΌΠΈ ΡΠ΅Π»Π΅ΠΆΠΊΠΈ ΡΠ²Π»ΡΡΡΡΡ Ρ ΠΎΠ΄ΠΎΠ²Π°Ρ ΡΠ°ΡΡΡ ΡΠΊΠΎΠ±Π° ΠΈ ΠΏΠΎΠ΄Π²Π΅ΡΠ½Π°Ρ ΡΠ°ΠΌΠ° Ρ ΠΌΠ΅Ρ Π°Π½ΠΈΠ·ΠΌΠΎΠΌ ΠΏΠΎΠ΄ΡΠ΅ΠΌΠ° Π³ΡΡΠ·Π°, Π°ΠΏΠΏΠ°ΡΠ°ΡΠ½ΡΠΌ ΡΠΊΠ°ΡΠΎΠΌ ΠΈ ΠΊΠ°Π±ΠΈΠ½ΠΎΠΉ ΡΠΏΡΠ°Π²Π»Π΅Π½ΠΈΡ. Π₯ΠΎΠ΄ΠΎΠ²Π°Ρ ΡΠ°ΡΡΡ ΠΎΠ±ΡΠ°Π·ΠΎΠ²Π°Π½Π° Π΄Π²ΡΠΌΡ Π΄Π²ΡΡ ΠΊΠΎΠ»Π΅ΡΠ½ΡΠΌΠΈ Π±Π°Π»Π°Π½ΡΠΈΡΠ½ΡΠΌΠΈ ΠΊΠ°ΡΠ΅ΡΠΊΠ°ΠΌΠΈ, Π½Π° ΠΊΠΎΡΠΎΡΡΠ΅ ΠΎΠΏΠΈΡΠ°Π΅ΡΡΡ ΠΏΡΠΎΠ΄ΠΎΠ»ΡΠ½Π°Ρ ΠΊΠΎΡΠΎΠ±ΡΠ°ΡΠ°Ρ Π±Π°Π»ΠΊΠ° ΠΈΠ»ΠΈ Π²Π΅ΡΡ Π½ΠΈΠ΅ ΡΠ°ΡΡΠΈ ΡΠΊΠΎΠ±Ρ. Π Ρ ΠΎΠ΄ΠΎΠ²ΠΎΠΉ ΡΠ°ΡΡΠΈ ΠΈΡΠΏΠΎΠ»ΡΠ·ΠΎΠ²Π°Π½Ρ ΡΠ»Π΅ΠΌΠ΅Π½ΡΡ ΡΠΈΠΏΠΎΠ²ΡΡ ΠΌΠΎΡΡΠΎΠ²ΡΡ ΠΊΡΠ°Π½ΠΎΠ², ΡΡΠΎ Π·Π½Π°ΡΠΈΡΠ΅Π»ΡΠ½ΠΎ ΡΠΏΡΠΎΡΠ°Π΅Ρ ΠΈΠ·Π³ΠΎΡΠΎΠ²Π»Π΅Π½ΠΈΠ΅ ΡΠ΅Π»Π΅ΠΆΠΊΠΈ.
Π Π°ΠΌΡ Π±Π°Π»Π°Π½ΡΠΈΡΠ½ΡΡ
ΠΊΠ°ΡΠ΅ΡΠΎΠΊ ΡΠ½Π°Π±ΠΆΠ΅Π½Ρ ΠΏΡΠ΅Π΄ΠΎΡ
ΡΠ°Π½ΠΈΡΠ΅Π»ΡΠ½ΡΠΌΠΈ ΠΊΡΠΎΠ½ΡΡΠ΅ΠΉΠ½Π°ΠΌΠΈ, ΠΎΡ
Π²Π°ΡΡΠ²Π°ΡΡΠΈΠΌΠΈ Ρ ΠΎΠ±Π΅ΠΈΡ
ΡΡΠΎΡΠΎΠ½ Π³ΠΎΠ»ΠΎΠ²ΠΊΡ ΠΏΠΎΠ΄ΡΠ΅Π»Π΅ΠΆΠ΅ΡΠ½ΠΎΠ³ΠΎ ΡΠ΅Π»ΡΡΠ°.
ΠΠΏΠΈΡΠ°ΡΡΡ Π½Π° ΠΏΡΠΎΠ΄ΠΎΠ»ΡΠ½ΡΡ Π±Π°Π»ΠΊΡ, ΡΠΊΠΎΠ±Π° ΠΊΡΠ΅ΠΏΠΈΡΡΡ ΠΊ Π½Π΅ΠΉ Ρ ΠΏΠΎΠΌΠΎΡΡΡ Π΄Π²ΡΡ Π²Π΅ΡΡΠΈΠΊΠ°Π»ΡΠ½ΡΡ ΠΏΠ°Π»ΡΡΠ΅Π²; ΠΎΠ½Π° Π²ΡΠΏΠΎΠ»Π½Π΅Π½Π° Π² Π²ΠΈΠ΄Π΅ Π»ΠΈΡΡΠΎΠ²ΠΎΠΉ ΠΊΠΎΡΠΎΠ±ΠΊΠΈ ΠΊΡΠΈΠ²ΠΎΠ»ΠΈΠ½Π΅ΠΉΠ½ΠΎΠ³ΠΎ ΠΎΡΠ΅ΡΡΠ°Π½ΠΈΡ ΠΈ Π·Π°ΠΌΠΊΠ½ΡΡΠΎΠ³ΠΎ ΡΠ΅ΡΠ΅Π½ΠΈΡ.
Π ΠΈΡ. 75. ΠΠΎΠ½ΡΠΎΠ»ΡΠ½ΠΎ-ΠΏΠΎΠ΄Π²Π΅ΡΠ½Π°Ρ Π³ΡΡΠ·ΠΎΠ²Π°Ρ ΡΠ΅Π»Π΅ΠΆΠΊΠ° Π³ΡΡΠ·ΠΎΠΏΠΎΠ΄ΡΠ΅ΠΌΠ½ΠΎΡΡΡΡ 12,5 Ρ
ΠΠ° ΡΠ΅ΠΊΠ°Ρ ΠΈΠΌΠ΅ΡΡΡΡ ΠΊΠΎΠ½ΡΠΎΠ»ΡΠ½ΡΠ΅ ΡΠ»Π°Π½ΡΡ Π΄Π»Ρ Π΄ΠΎΠΏΠΎΠ»Π½ΠΈΡΠ΅Π»ΡΠ½ΠΎΠ³ΠΎ ΠΊΡΠ΅ΠΏΠ»Π΅Π½ΠΈΡ ΡΠΎ ΡΠΊΠΎΠ±ΠΎΠΉ. ΠΡΠΎ ΠΎΠ±Π΅ΡΠΏΠ΅ΡΠΈΠ²Π°Π΅Ρ ΠΆΠ΅ΡΡΠΊΠΎΠ΅ ΡΠΎΠ΅Π΄ΠΈΠ½Π΅Π½ΠΈΠ΅ ΡΠ°ΠΌΡ ΡΠΎ ΡΠΊΠΎΠ±ΠΎΠΉ ΠΈ ΠΏΠΎΠ·Π²ΠΎΠ»ΡΠ΅Ρ Ρ ΠΏΠΎΠΌΠΎΡΡΡ ΠΏΡΠΎΠΊΠ»Π°Π΄ΠΎΠΊ Π²ΡΡΠ°Π²Π½ΠΈΠ²Π°ΡΡ ΠΏΠΎΠ»ΠΎΠΆΠ΅Π½ΠΈΠ΅ ΡΠ°ΠΌΡ ΠΏΠΎ Π³ΠΎΡΠΈΠ·ΠΎΠ½ΡΠ°Π»ΠΈ. ΠΠ»Ρ ΡΠ΅Π³ΡΠ»ΠΈΡΠΎΠ²Π°Π½ΠΈΡ ΠΏΠΎ Π²ΡΡΠΎΡΠ΅ ΡΠ»ΡΠΆΠ°Ρ ΠΏΠΎΠ΄ΠΊΠ»Π°Π΄Π½ΡΠ΅ ΡΠ°ΠΉΠ±Ρ Π² ΠΎΠΏΠΎΡΠ½ΡΡ ΠΌΠ΅ΡΡΠ°Ρ ΠΌΠ΅ΠΆΠ΄Ρ ΡΠΊΠΎΠ±ΠΎΠΉ ΠΈ ΠΏΡΠΎΠ΄ΠΎΠ»ΡΠ½ΠΎΠΉ ΡΠ°ΠΌΠΎΠΉ.
ΠΠΎ ΠΎΠ±Π΅ΠΈΠΌ ΡΡΠΎΡΠΎΠ½Π°ΠΌ Π³ΡΡΠ·ΠΎΠ²ΠΎΠΉ Π»Π΅Π±Π΅Π΄ΠΊΠΈ ΠΊ ΠΏΠΎΠΏΠ΅ΡΠ΅ΡΠ½ΡΠΌ Π±Π°Π»ΠΊΠ°ΠΌ ΡΠ°ΠΌΡ ΠΏΡΠΈΠΊΡΠ΅ΠΏΠ»Π΅Π½Ρ ΡΡΠΎΠΉΠΊΠΈ Π»ΠΈΡΡΠΎΠ²ΠΎΠΉ ΠΊΠΎΠ½ΡΡΡΡΠΊΡΠΈΠΈ. Π Π²Π΅ΡΡ Π½Π΅ΠΉ ΡΠ°ΡΡΠΈ ΠΎΠ½ΠΈ ΠΈΠΌΠ΅ΡΡ Π³Π½Π΅Π·Π΄Π° Π΄Π»Ρ ΡΠΎΠ΅Π΄ΠΈΠ½Π΅Π½ΠΈΡ Ρ ΠΎΡΡΠΌΠΈ ΡΠΊΠΎΠ±Ρ ΠΈ ΡΠ»Π°Π½ΡΡ Π΄Π»Ρ ΡΡΡΠ°Π½ΠΎΠ²ΠΊΠΈ Π³ΠΎΡΠΈΠ·ΠΎΠ½ΡΠ°Π»ΡΠ½ΡΡ ΡΠΎΠ»ΠΈΠΊΠΎΠ², ΠΏΠ΅ΡΠ΅ΠΌΠ΅ΡΠ°ΡΡΠΈΡ ΡΡ Π² Π½ΠΈΠΆΠ½Π΅ΠΉ Π½Π°ΠΏΡΠ°Π²Π»ΡΡΡΠ΅ΠΉ ΠΌΠΎΡΡΠ°.
ΠΡΠΎΠ΄ΠΎΠ»ΡΠ½ΡΠ΅ Π±Π°Π»ΠΊΠΈ ΡΠ°ΠΌΡ Π²ΡΠΏΡΡΠ΅Π½Ρ ΠΊΠΎΠ½ΡΠΎΠ»ΡΠ½ΠΎ Π² ΠΎΠ±Π΅ ΡΡΠΎΡΠΎΠ½Ρ. Π‘ ΠΎΠ΄Π½ΠΎΠΉ ΡΡΠΎΡΠΎΠ½Ρ ΠΌΠ΅ΠΆΠ΄Ρ Π½ΠΈΠΌΠΈ Π·Π°ΠΊΡΠ΅ΠΏΠ»Π΅Π½Π° ΠΊΠ°Π±ΠΈΠ½Π° ΡΠΏΡΠ°Π²Π»Π΅Π½ΠΈΡ, Ρ Π΄ΡΡΠ³ΠΎΠΉ β ΡΡΠ°Π²Π½ΠΎΠ²Π΅ΡΠΈΠ²Π°ΡΡΠΈΠΉ Π΅Π΅ Π°ΠΏΠΏΠ°ΡΠ°ΡΠ½ΡΠΉ ΡΠΊΠ°Ρ.
ΠΠ°Π±ΠΈΠ½Ρ ΠΈ ΡΠΊΠ°Ρ ΠΈΠΌΠ΅ΡΡ ΠΊΠΎΠ½ΡΠΎΠ»ΡΠ½ΡΠ΅ ΠΏΠ»ΠΎΡΠ°Π΄ΠΊΠΈ Π² ΡΡΠΎΠ²Π΅Π½Ρ Π½Π°ΡΡΠΈΠ»Π° ΡΠ°ΠΌΡ. ΠΠ° ΠΎΠ΄Π½ΠΎΠΉ ΠΏΠ΅ΡΠ΅Π΄Π½Π΅ΠΉ ΡΠ°ΡΡΠΈ ΡΠ°ΠΌΡ Π½Π° ΠΊΡΠΎΠ½ΡΡΠ΅ΠΉΠ½Π°Ρ
ΠΏΡΠΈΠΊΡΠ΅ΠΏΠ»Π΅Π½Π° ΠΏΠ»ΠΎΡΠ°Π΄ΠΊΠ° Ρ ΠΎΠ³ΡΠ°ΠΆΠ΄Π΅Π½ΠΈΠ΅ΠΌ Π΄Π»Ρ ΠΎΠ±ΡΠ»ΡΠΆΠΈΠ²Π°Π½ΠΈΡ ΠΌΠ΅Ρ
Π°Π½ΠΈΠ·ΠΌΠΎΠ² ΠΈ ΠΏΡΠΎΡ
ΠΎΠ΄Π° ΠΈΠ· ΠΎΠ΄Π½ΠΎΠΉ ΠΊΠ°Π±ΠΈΠ½Ρ Π² Π΄ΡΡΠ³ΡΡ. ΠΡΠΎΠΌΠ΅ ΡΠΎΠ³ΠΎ, ΠΏΠΎ ΠΎΠ±Π΅ΠΈΠΌ ΡΡΠΎΡΠΎΠ½Π°ΠΌ ΡΡΠΎΠ΅ΠΊ ΡΠ°ΠΊΠΆΠ΅ ΠΏΡΠ΅Π΄ΡΡΠΌΠΎΡΡΠ΅Π½Ρ Π½Π°ΡΡΠΈΠ»Ρ Ρ ΠΎΠ³ΡΠ°ΠΆΠ΄Π΅Π½ΠΈΠ΅ΠΌ. ΠΠ° Π΄ΡΡΠ³ΠΎΠΉ ΠΏΡΠΎΠ΄ΠΎΠ»ΡΠ½ΠΎΠΉ ΡΡΠΎΡΠΎΠ½Π΅ ΠΏΡΠΈΠΊΡΠ΅ΠΏΠ»Π΅Π½Π° ΠΏΠ»ΠΎΡΠ°Π΄ΠΊΠ° ΠΈ ΠΎΠ³ΡΠ°ΠΆΠ΄Π΅Π½ΠΈΡ Ρ Π»Π΅ΡΡΠ½ΠΈΡΠ΅ΠΉ Π΄Π»Ρ Π°Π²Π°ΡΠΈΠΉΠ½ΠΎΠ³ΠΎ Π²ΡΡ
ΠΎΠ΄Π° Π½Π° ΠΌΠΎΡΡ.
ΠΠ° ΡΠΊΠΎΠ±Π΅ ΡΡΡΠ°Π½ΠΎΠ²Π»Π΅Π½Π° Π»Π΅ΡΡΠ½ΠΈΡΠ° Π΄Π»Ρ ΠΏΡΠΎΡ ΠΎΠ΄Π° ΠΊ ΠΌΠ΅Ρ Π°Π½ΠΈΠ·ΠΌΠ°ΠΌ ΠΏΠ΅ΡΠ΅Π΄Π²ΠΈΠΆΠ΅Π½ΠΈΡ.
ΠΠΎΠ½ΡΠΎΠ»ΡΠ½ΡΠ΅ Π³ΡΡΠ·ΠΎΠ²ΡΠ΅ ΡΠ΅Π»Π΅ΠΆΠΊΠΈ. Π ΠΊΠΎΠ½ΡΠΎΠ»ΡΠ½ΡΡ ΡΠ΅Π»Π΅ΠΆΠΊΠ°Ρ ΠΌΠ΅Ρ Π°Π½ΠΈΠ·ΠΌ ΠΏΠΎΠ΄ΡΠ΅ΠΌΠ° Π³ΡΡΠ·Π° ΠΎΠ±ΡΡΠ½ΠΎ ΡΠ°ΡΠΏΠΎΠ»ΠΎΠΆΠ΅Π½ Π½Π° ΠΊΠΎΠ½ΡΠΎΠ»ΡΠ½ΠΎΠΉ ΡΠ°ΡΡΠΈ ΡΠ°ΠΌΡ.
Π ΠΈΡ. 76. ΠΠΎΠ½ΡΠΎΠ»ΡΠ½ΡΠ΅ Π³ΡΡΠ·ΠΎΠ²ΡΠ΅ ΡΠ΅Π»Π΅ΠΆΠΊΠΈ:
Π° β Π³ΡΡΠ·ΠΎΠΏΠΎΠ΄ΡΠ΅ΠΌΠ½ΠΎΡΡΡΡ 1 β¦ 5 Ρ; Π± β Π³ΡΡΠ·ΠΎΠΏΠΎΠ΄ΡΠ΅ΠΌΠ½ΠΎΡΡΡΡ 6 β¦ 15 Ρ
Π ΠΏΠΎΠ»ΡΡΠΈΠ²ΡΠΈΡ
Π½Π°ΠΈΠ±ΠΎΠ»ΡΡΠ΅Π΅ ΡΠ°ΡΠΏΡΠΎΡΡΡΠ°Π½Π΅Π½ΠΈΠ΅ Π² ΠΊΠΎΠ·Π»ΠΎΠ²ΡΡ
ΠΊΡΠ°Π½Π°Ρ
ΠΌΠΎΡΡΠ°Ρ
Ρ ΠΎΠΏΠΎΡΠ½ΡΠΌ ΡΠ΅Π»ΡΡΠΎΠΌ, ΡΠ°ΡΠΏΠΎΠ»ΠΎΠΆΠ΅Π½Π½ΡΠΌ Π½Π°Π΄ ΠΏΠ΅ΡΠ΅Π΄Π½Π΅ΠΉ ΡΡΠ΅Π½ΠΊΠΎΠΉ Π±Π°Π»ΠΊΠΈ, Π²Π΅Π΄ΡΡΠΈΠ΅ ΠΊΠΎΠ»Π΅ΡΠ° ΡΠ΅Π»Π΅ΠΆΠ΅ΠΊ ΠΏΠ΅ΡΠ΅ΠΌΠ΅ΡΠ°ΡΡΡΡ ΠΏΠΎ ΡΡΠΎΠΌΡ ΡΠ΅Π»ΡΡΡ. ΠΠ»Ρ ΡΠΌΠ΅Π½ΡΡΠ΅Π½ΠΈΡ Π½Π°Π³ΡΡΠ·ΠΎΠΊ Π½Π° ΡΠ΄Π΅ΡΠΆΠΈΠ²Π°ΡΡΠΈΠ΅ ΠΊΠΎΠ»Π΅ΡΠ° Π²ΡΠ»Π΅Ρ ΠΊΡΡΠΊΠ° (ΠΎΡ ΠΎΠΏΠΎΡΠ½ΠΎΠ³ΠΎ ΡΠ΅Π»ΡΡΠ°) ΠΎΠ±ΡΡΠ½ΠΎ ΠΎΠ³ΡΠ°Π½ΠΈΡΠΈΠ²Π°ΡΡ 0,8 β¦ 2,0 ΠΌ.
ΠΠΎΠ½ΡΠΎΠ»ΡΠ½ΡΠ΅ ΡΠ΅Π»Π΅ΠΆΠΊΠΈ ΠΈΠΌΠ΅ΡΡ ΠΏΠ»ΠΎΡΠΊΠΈΠ΅ ΡΠ°ΠΌΡ; Ρ ΡΠ΅Π»Π΅ΠΆΠ΅ΠΊ Ρ Π½ΠΈΠΆΠ½ΠΈΠΌΠΈ ΡΠΏΠΎΡΠ½ΡΠΌΠΈ ΠΊΠΎΠ»Π΅ΡΠ°ΠΌΠΈ ΠΊ ΡΠ°ΠΌΠ°ΠΌ ΠΏΡΠΈΠΊΡΠ΅ΠΏΠ»Π΅Π½Ρ ΠΎΡΡΠ΅ΠΌΠ½ΡΠ΅ ΠΏΡΠΈ ΡΡΠ°Π½ΡΠΏΠΎΡΡΠΈΡΠΎΠ²Π°Π½ΠΈΠΈ ΠΊΡΠΎΠ½ΡΡΠ΅ΠΉΠ½Ρ Π΄Π»Ρ ΡΡΡΠ°Π½ΠΎΠ²ΠΊΠΈ ΡΡΠΈΡ ΠΊΠΎΠ»Π΅Ρ.
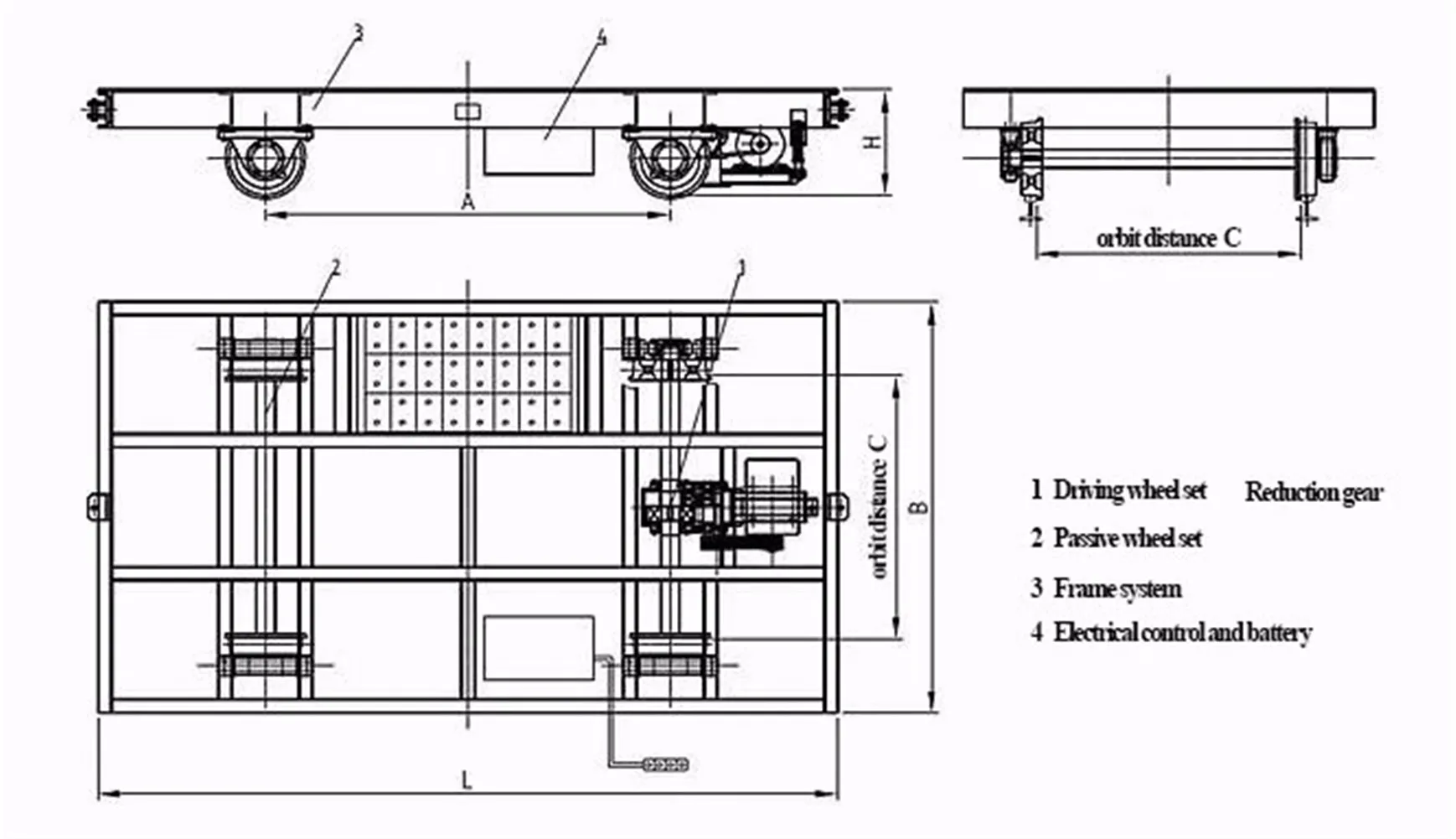
Π€ΠΈΡΠΌΠ° ΠΠ°ΡΡΡΠ·Π΅ΡΡ (ΠΠ΅Π»ΠΈΠΊΠΎΠ±ΡΠΈΡΠ°Π½ΠΈΡ) ΠΏΡΠΈΠΌΠ΅Π½ΡΠ΅Ρ ΡΠ΅Π»Π΅ΠΆΠΊΠΈ (ΡΠΈΡ. 76, ΠΎ) Π½Π° ΠΊΡΠ°Π½Π°Ρ Π³ΡΡΠ·ΠΎΠΏΠΎΠ΄ΡΠ΅ΠΌΠ½ΠΎΡΡΡΡ 1 β¦ 5 Ρ. Π Π°ΠΌΠ° ΠΈΠΌΠ΅Π΅Ρ Π΄Π²Π΅ ΠΊΠΎΠ½ΡΠΎΠ»ΡΠ½ΡΠ΅ Π±Π°Π»ΠΊΠΈ, Π½Π΅ΡΡΡΠΈΠ΅ ΡΠ»Π΅ΠΊΡΡΠΎΡΠ°Π»Ρ. ΠΠΎΡΡΠ΅Π΄ΠΈΠ½Π΅ ΡΠ°ΠΌΡ ΠΏΡΠ΅Π΄ΡΡΠΌΠΎΡΡΠ΅Π½Π° ΠΏΠΎΠΏΠ΅ΡΠ΅ΡΠΈΠ½Π° 3, ΠΊ ΠΊΠΎΡΠΎΡΠΎΠΉ ΠΏΡΠΈΠΊΡΠ΅ΠΏΠ»Π΅Π½ ΡΠ²ΠΎΠ±ΠΎΠ΄Π½ΡΠΉ ΠΊΠΎΠ½Π΅Ρ Π³ΡΡΠ·ΠΎΠ²ΠΎΠ³ΠΎ ΠΊΠ°Π½Π°ΡΠ°. ΠΠΎΡΠΎΡ-ΡΠ΅Π΄ΡΠΊΡΠΎΡ 4 ΠΌΠ΅Ρ Π°Π½ΠΈΠ·ΠΌΠ° ΠΏΠ΅ΡΠ΅Π΄Π²ΠΈΠΆΠ΅Π½ΠΈΡ ΡΠ΅Π»Π΅ΠΆΠΊΠΈ ΠΏΡΠΈΠ²ΠΎΠ΄ΠΈΡ Π² Π΄Π²ΠΈΠΆΠ΅Π½ΠΈΠ΅ ΠΎΠΏΠΎΡΠ½ΡΠ΅ Ρ ΠΎΠ΄ΠΎΠ²ΡΠ΅ ΠΊΠΎΠ»Π΅ΡΠ° 5, ΠΏΠ΅ΡΠ΅ΠΊΠ°ΡΡΠ²Π°ΡΡΠΈΠ΅ΡΡ ΠΏΠΎ ΠΏΠΎΠ΄ΡΠ΅Π»Π΅ΠΆΠ΅ΡΠ½ΠΎΠΌΡ ΡΠ΅Π»ΡΡΡ. ΠΡΠΎΠ½ΡΡΠ΅ΠΉΠ½ ΡΠ΅Π»Π΅ΠΆΠΊΠΈ ΠΎΠ±ΡΠ°Π·ΠΎΠ²Π°Π½ Π΄Π²ΡΠΌΡ ΠΏΠ°ΡΠ°ΠΌΠΈ ΡΡΠΎΠ΅ΠΊ ΠΈ ΠΏΠΎΠ΄ΠΊΠΎΡΠΎΠ², ΠΊΠΎΠ½ΡΡ ΠΊΠΎΡΠΎΡΡΡ ΠΏΡΠΈΠΊΡΠ΅ΠΏΠ»Π΅Π½Ρ ΠΊ Π½ΠΈΠΆΠ½Π΅ΠΉ Π±Π°Π»ΠΊΠ΅, ΡΠ½Π°Π±ΠΆΠ΅Π½Π½ΠΎΠΉ ΠΏΠ΅ΡΠ΅Π΄Π½ΠΈΠΌΠΈ ΡΠΏΠΎΡΠ½ΡΠΌΠΈ ΡΠΎΠ»ΠΈΠΊΠ°ΠΌΠΈ, Π²Π·Π°ΠΈΠΌΠΎΠ΄Π΅ΠΉΡΡΠ²ΡΡΡΠΈΠΌΠΈ Ρ Π½ΠΈΠΆΠ½Π΅ΠΉ Π³ΠΎΡΠΈΠ·ΠΎΠ½ΡΠ°Π»ΡΠ½ΠΎΠΉ Π½Π°ΠΏΡΠ°Π²Π»ΡΡΡΠ΅ΠΉ. Π’ΡΠ»ΡΠ½ΡΠ΅ ΡΠΏΠΎΡΠ½ΡΠ΅ ΡΠΎΠ»ΠΈΠΊΠΈ ΡΠΊΡΠ΅ΠΏΠ»Π΅Π½Ρ Π½Π° ΠΊΡΠΎΠ½ΡΡΠ΅ΠΉΠ½Π΅ Ρ ΠΏΡΠΎΡΠΈΠ²ΠΎΠΏΠΎΠ»ΠΎΠΆΠ½ΠΎΠΉ ΡΡΠΎΡΠΎΠ½Ρ ΡΠ°ΠΌΡ ΡΠ΅Π»Π΅ΠΆΠΊΠΈ. ΠΡΠ΅ΠΏΠ»Π΅Π½ΠΈΠ΅ ΡΡΠΎΠ΅ΠΊ ΠΈ ΠΏΠΎΠ΄ΠΊΠΎΡΠΎΠ² Π½Π° Π·Π°ΠΊΠ»Π°Π΄Π½ΡΡ ΠΏΠ°Π»ΡΡΠ°Ρ ΡΠΏΡΠΎΡΠ°Π΅Ρ ΡΠ±ΠΎΡΠΊΡ ΡΠ΅Π»Π΅ΠΆΠΊΠΈ ΠΏΡΠΈ ΠΌΠΎΠ½ΡΠ°ΠΆΠ΅ ΠΊΡΠ°Π½Π°.
Π’Π΅Π»Π΅ΠΆΠΊΠΈ Π³ΡΡΠ·ΠΎΠΏΠΎΠ΄ΡΠ΅ΠΌΠ½ΠΎΡΡΡΡ 6 β¦ 15 Ρ (ΡΠΈΡ. 76, Π±) ΡΠΎΠΉ ΠΆΠ΅ ΡΠΈΡΠΌΡ Π²ΡΠΏΠΎΠ»Π½ΡΡΡ ΠΊΠΎΠΌΠΏΠ°ΠΊΡΠ½ΠΎΠΉ ΡΠ΅ΡΠ²ΡΡΠ½ΠΎΠΉ Π»Π΅Π±Π΅Π΄ΠΊΠΎΠΉ.
ΠΠ΅Ρ
Π°Π½ΠΈΠ·ΠΌ ΠΏΠΎΠ΄ΡΠ΅ΠΌΠ° Π³ΡΡΠ·Π° ΡΠ°ΠΊΠΎΠΉ Π»Π΅Π±Π΅Π΄ΠΊΠΈ ΡΠΎΠ΄Π΅ΡΠΆΠΈΡ ΠΎΡΠ½ΠΎΠ²Π½ΠΎΠΉ ΠΏΡΠΈΠ²ΠΎΠ΄Π½ΠΎΠΉ Π΄Π²ΠΈΠ³Π°ΡΠ΅Π»Ρ, Π½Π° ΡΠ²ΠΎΠ±ΠΎΠ΄Π½ΠΎΠΌ ΠΊΠΎΠ½ΡΠ΅ Π²Π°Π»Π° ΠΊΠΎΡΠΎΡΠΎΠ³ΠΎ ΠΏΠΎΡΠ°ΠΆΠ΅Π½Ρ ΡΠΊΠΈΠ²Ρ ΠΊΠΎΠ»ΠΎΠ΄ΠΎΡΠ½ΡΡ
ΡΠ»Π΅ΠΊΡΡΠΎΠΌΠ°Π³Π½ΠΈΡΠ½ΡΡ
ΡΠΎΡΠΌΠΎΠ·ΠΎΠ². ΠΡΠ½ΠΎΠ²Π½ΠΎΠΉ ΠΏΡΠΈΠ²ΠΎΠ΄Π½ΠΎΠΉ Π΄Π²ΠΈΠ³Π°ΡΠ΅Π»Ρ ΠΏΡΠΈΡΠ»Π°Π½ΡΠΎΠ²Π°Π½ ΠΊ ΠΊΠΎΡΠΏΡΡΡ ΡΠ΅ΡΠ²ΡΡΠ½ΠΎΠ³ΠΎ ΡΠ΅Π΄ΡΠΊΡΠΎΡΠ°. Π‘ ΠΏΡΠΎΡΠΈΠ²ΠΎΠΏΠΎΠ»ΠΎΠΆΠ½ΠΎΠΉ ΡΡΠΎΡΠΎΠ½Ρ ΠΊΠΎΡΠΏΡΡΠ° Π½Π°Ρ
ΠΎΠ΄ΠΈΡΡΡ ΠΌΠΎΡΠΎΡ-ΡΠ΅Π΄ΡΠΊΡΠΎΡ ΠΌΠ°Π»ΠΎΠΉ ΡΠΊΠΎΡΠΎΡΡΠΈ. ΠΠ΅ΡΡ
Π½ΠΈΠΉ Π±Π»ΠΎΠΊ ΠΊΠ°Π½Π°ΡΠ½ΠΎΠ³ΠΎ ΠΏΠΎΠ»ΠΈΡΠΏΠ°ΡΡΠ° ΡΠΌΠΎΠ½ΡΠΈΡΠΎΠ²Π°Π½ Π½Π° ΠΏΠΎΠ²ΠΎΡΠΎΡΠ½ΠΎΠΉ ΡΡΠ°Π²Π΅ΡΡΠ΅. ΠΠΎΡΠΎΡ-ΡΠ΅Π΄ΡΠΊΡΠΎΡ ΠΌΠ΅Ρ
Π°Π½ΠΈΠ·ΠΌΠ° ΠΏΠ΅ΡΠ΅Π΄Π²ΠΈΠΆΠ΅Π½ΠΈΡ ΡΠ΅Π»Π΅ΠΆΠΊΠΈ ΡΠ΅ΡΠ΅Π· ΠΎΡΠΊΡΡΡΡΡ Π·ΡΠ±ΡΠ°ΡΡΡ ΠΏΠ΅ΡΠ΅Π΄Π°ΡΡ ΠΏΡΠΈΠ²ΠΎΠ΄ΠΈΡ Π² Π΄Π²ΠΈΠΆΠ΅Π½ΠΈΠ΅ ΠΎΠΏΠΎΡΠ½ΡΠ΅ Ρ
ΠΎΠ΄ΠΎΠ²ΡΠ΅ ΠΊΠΎΠ»Π΅ΡΠ°. Π£ΠΏΠΎΡΠ½ΡΠ΅ ΡΠΎΠ»ΠΈΠΊΠΈ ΡΠΌΠΎΠ½ΡΠΈΡΠΎΠ²Π°Π½Ρ Π½Π° Π±Π°Π»ΠΊΠ΅ ΡΠΎΠ±ΡΠ°Π½Π½ΠΎΠ³ΠΎ Π½Π° ΠΏΠ°Π»ΡΡΠ°Ρ
ΠΊΡΠΎΠ½ΡΡΠ΅ΠΉΠ½Π° ΡΠ°ΠΌΡ ΡΠ΅Π»Π΅ΠΆΠΊΠΈ, Π° ΡΠ°ΠΊΠΆΠ΅ Ρ ΡΡΠ»ΡΠ½ΠΎΠΉ ΡΡΠΎΡΠΎΠ½Ρ ΡΡΠΎΠΉ ΡΠ°ΠΌΡ. ΠΠΎΡΠΎΡ-ΡΠ΅Π΄ΡΠΊΡΠΎΡ ΡΠ½Π°Π±ΠΆΠ΅Π½ Π΄ΠΈΡΠΊΠΎΠ²ΡΠΌ ΡΠ»Π΅ΠΊΡΡΠΎΠΌΠ°Π³Π½ΠΈΡΠ½ΡΠΌ ΡΠΎΡΠΌΠΎΠ·ΠΎΠΌ, Π½Π°Ρ
ΠΎΠ΄ΡΡΠΈΠΌΡΡ Π½Π° Ρ
Π²ΠΎΡΡΠΎΠ²ΠΎΠΌ ΠΊΠΎΠ½ΡΠ΅ Π²Π°Π»Π° Π΄Π²ΠΈΠ³Π°ΡΠ΅Π»Ρ. Π₯ΠΎΠ΄ΠΎΠ²ΡΠ΅ ΠΊΠΎΠ»Π΅ΡΠ° Π²ΡΠ°ΡΠ°ΡΡΡΡ Π½Π° Π½Π΅ΠΏΠΎΠ΄Π²ΠΈΠΆΠ½ΡΡ
ΠΎΡΡΡ
; Π²Π΅Π΄ΡΡΠΈΠ΅ ΠΊΠΎΠ»Π΅ΡΠ° ΠΈΠΌΠ΅ΡΡ Π·ΡΠ±ΡΠ°ΡΡΠ΅ Π²Π΅Π½ΡΡ.
Π ΡΠ΅Π»Π΅ΠΆΠΊΠ°Ρ Β«ΠΠ°ΡΡΡΠ·Π΅ΡΡΒ» Ρ ΠΎΠ΄ΠΎΠ²ΡΠ΅ ΠΊΠΎΠ»Π΅ΡΠ° ΡΠ°ΡΡΠΎ Π΄Π»Ρ ΡΠΌΠ΅Π½ΡΡΠ΅Π½ΠΈΡ ΡΡΠΌΠ° ΠΈ ΠΌΠ΅ΡΡΠ½ΡΡ Π΄Π°Π²Π»Π΅Π½ΠΈΠΉ Π½Π° Π±Π°Π»ΠΊΡ ΠΈΠ·Π³ΠΎΡΠΎΠ²Π»ΡΡΡ Ρ ΠΏΠ»Π°ΡΡΠΌΠ°ΡΡΠΎΠ²ΡΠΌΠΈ ΠΎΠ±ΠΎΠ΄Π°ΠΌΠΈ.
ΠΠ½Π°Π»ΠΎΠ³ΠΈΡΠ½Π°Ρ ΠΏΠΎ ΡΡ
Π΅ΠΌΠ΅ Π³ΡΡΠ·ΠΎΠ²Π°Ρ ΡΠ΅Π»Π΅ΠΆΠΊΠ° ΠΏΡΠΈΠΌΠ΅Π½Π΅Π½Π° Π² ΠΊΡΠ°Π½Π΅ ΠΠΠ-32.
Π£ ΠΊΡΠ°Π½ΠΎΠ² Π-50 Π² ΡΡΠ»ΡΠ½ΠΎΠΉ ΡΠ°ΡΡΠΈ ΡΠ°ΠΌΡ Π³ΡΡΠ·ΠΎΠ²ΠΎΠΉ ΡΠ΅Π»Π΅ΠΆΠΊΠΈ ΡΠΌΠΎΠ½ΡΠΈΡΠΎΠ²Π°Π½Ρ Π±Π°Π»Π°Π½ΡΠΈΡΠ½ΡΠ΅ ΡΠ΅Π»Π΅ΠΆΠΊΠΈ Ρ ΡΠ΄Π΅ΡΠΆΠΈΠ²Π°ΡΡΠΈΠΌΠΈ ΠΊΠΎΠ»Π΅ΡΠ°ΠΌΠΈ, ΠΏΠ΅ΡΠ΅ΠΊΠ°ΡΡΠ²Π°ΡΡΠΈΠΌΠΈΡΡ ΠΏΠΎ Π²Π΅ΡΡ
Π½ΠΈΠΌ ΠΏΠΎΠ»ΠΊΠ°ΠΌ ΡΠΊΡΠ΅ΠΏΠ»Π΅Π½Π½ΠΎΠ³ΠΎ Π½Π°Π΄ ΡΡΠ΅Π½ΠΊΠΎΠΉ Π±Π°Π»ΠΊΠΈ ΠΌΠΎΠ½ΠΎΡΠ΅Π»ΡΡΠ°. Π’Π°ΠΊΠΈΠ΅ ΡΠ΅Π»Π΅ΠΆΠΊΠΈ Π±ΠΎΠ»Π΅Π΅ ΠΏΡΠΎΡΡΡ ΠΏΠΎ ΠΊΠΎΠ½ΡΡΡΡΠΊΡΠΈΠΈ ΠΈ Π½Π΅ ΡΡΠ΅Π±ΡΡΡ ΡΡΡΠ°Π½ΠΎΠ²ΠΊΠΈ Π΄ΠΎΠΏΠΎΠ»Π½ΠΈΡΠ΅Π»ΡΠ½ΠΎΠ³ΠΎ ΡΡΠ»ΡΠ½ΠΎΠ³ΠΎ ΡΠ΅Π»ΡΡΠ°. ΠΠ΄Π½Π°ΠΊΠΎ Π·Π΄Π΅ΡΡ ΡΠ΅Π·ΠΊΠΎ ΡΠ²Π΅Π»ΠΈΡΠΈΠ²Π°Π΅ΡΡΡ Π½Π°Π³ΡΡΠ·ΠΊΠ° Π½Π° ΠΏΠ΅ΡΠ΅Π΄Π½ΠΈΠΉ ΡΠ΅Π»ΡΡ, ΠΊΠΎΡΠΎΡΡΠΉ Π²ΠΎΡΠΏΡΠΈΠ½ΠΈΠΌΠ°Π΅Ρ Π½Π΅ ΡΠΎΠ»ΡΠΊΠΎ Π²ΡΡ ΡΡΠΌΠΌΠ°ΡΠ½ΡΡ Π²Π΅ΡΠΎΠ²ΡΡ Π½Π°Π³ΡΡΠ·ΠΊΡ, Π½ΠΎ ΠΈ ΡΠ΅Π°ΠΊΡΠΈΡ ΠΎΡ ΠΎΠΏΡΠΎΠΊΠΈΠ΄ΡΠ²Π°ΡΡΠ΅Π³ΠΎ ΠΌΠΎΠΌΠ΅Π½ΡΠ°. ΠΡΠΎ ΠΎΠ±ΡΡΠΎΡΡΠ΅Π»ΡΡΡΠ²ΠΎ, Π° ΡΠ°ΠΊΠΆΠ΅ Π½ΠΈΠ·ΠΊΠ°Ρ ΠΈΠ·Π½ΠΎΡΠΎΡΡΡΠΎΠΉΡΠΈΠ²ΠΎΡΡΡ ΠΏΠΎΠ»ΠΎΠΊ Π΄Π²ΡΡΠ°Π²ΡΠΎΠ²ΠΎΠΉ Π±Π°Π»ΠΊΠΈ ΠΎΠ³ΡΠ°Π½ΠΈΡΠΈΠ²Π°ΡΡ ΠΎΠ±Π»Π°ΡΡΡ ΠΏΡΠΈΠΌΠ΅Π½Π΅Π½ΠΈΡ ΡΠ°ΠΊΠΈΡ
ΡΠ΅Π»Π΅ΠΆΠ΅ΠΊ ΠΎΡΠ½ΠΎΡΠΈΡΠ΅Π»ΡΠ½ΠΎ ΡΠ΅Π΄ΠΊΠΎ ΠΈΡΠΏΠΎΠ»ΡΠ·ΡΠ΅ΠΌΡΠΌΠΈ ΠΊΡΠ°Π½Π°ΠΌΠΈ.
Π’Π΅Π»Π΅ΠΆΠΊΠΈ ΠΌΠΎΡΡΠΎΠ²ΡΡ ΠΊΡΠ°Π½ΠΎΠ²
Π’Π΅Π»Π΅ΠΆΠΊΠΈ ΠΌΠΎΡΡΠΎΠ²ΡΡ Β ΠΊΡΠ°Π½ΠΎΠ²
ΠΡΠ°Π½ΠΎΠ²ΡΠ΅ ΡΠ΅Π»Π΅ΠΆΠΊΠΈ, ΠΏΡΠ΅Π΄Π½Π°Π·Π½Π°ΡΠ΅Π½Π½ΡΠ΅ Π΄Π»Ρ ΠΏΠΎΠ΄ΡΠ΅ΠΌΠ° ΠΈ ΠΏΠ΅ΡΠ΅ΠΌΠ΅ΡΠ΅Π½ΠΈΡ Π³ΡΡΠ·Π° Π²Π΄ΠΎΠ»Ρ ΠΏΡΠΎΠ»Π΅ΡΠ°, Π΄Π»Ρ ΠΊΡΠ°Π½ΠΎΠ² ΠΎΠ±ΡΠ΅Π³ΠΎ Π½Π°Π·Π½Π°ΡΠ΅Π½ΠΈΡ Π²ΡΠΏΠΎΠ»Π½ΡΡΡ ΡΠ΅ΡΡΡΠ΅Ρ
ΠΎΠΏΠΎΡΠ½ΡΠΌΠΈ (ΡΠΈΡ. 12, 13). ΠΠ° ΡΠ°ΠΌΠ΅ ΡΠ΅Π»Π΅ΠΆΠΊΠΈ, ΠΏΡΠ΅Π΄ΡΡΠ°Π²Π»ΡΡΡΠ΅ΠΉ ΡΠΎΠ±ΠΎΠΉ ΠΆΠ΅ΡΡΠΊΡΡ ΠΊΠΎΠ½ΡΡΡΡΠΊΡΠΈΡ, ΡΠ°Π·ΠΌΠ΅ΡΠ΅Π½Ρ ΠΎΠ΄ΠΈΠ½ (ΡΠΈΡ. 12) ΠΈΠ»ΠΈ Π΄Π²Π° (ΡΠΈΡ. 13β15) ΠΌΠ΅Ρ
Π°Π½ΠΈΠ·ΠΌΠ° ΠΏΠΎΠ΄ΡΠ΅ΠΌΠ°, ΠΌΠ΅Ρ
Π°Π½ΠΈΠ·ΠΌ ΠΏΠ΅ΡΠ΅Π΄Π²ΠΈΠΆΠ΅Π½ΠΈΡ ΡΠ΅Π»Π΅ΠΆΠΊΠΈ, ΡΠΎΠΊΠΎΡΡΠ΅ΠΌΠ½ΠΈΠΊ (Π² ΡΠ»ΡΡΠ°Π΅ ΡΡΠΎΠ»Π»Π΅ΠΉΠ½ΠΎΠ³ΠΎ ΡΠΎΠΊΠΎΠΏΠΎΠ΄Π²ΠΎΠ΄Π°) ΠΈΠ»ΠΈ ΠΏΠΎΠ²ΠΎΠ΄ΠΎΠΊ Π΄Π»Ρ ΠΊΠ°ΡΠ΅ΡΠΎΠΊ (Π² ΡΠ»ΡΡΠ°Π΅ ΠΊΠ°Π±Π΅Π»ΡΠ½ΠΎΠ³ΠΎ ΡΠΎΠΊΠΎΠΏΠΎΠ΄Π²ΠΎΠ΄Π°), Π° ΡΠ°ΠΊΠΆΠ΅ ΡΡΡΡΠΎΠΉΡΡΠ²Π° Π±Π΅Π·ΠΎΠΏΠ°ΡΠ½ΠΎΡΡΠΈ, ΠΎΠ±Π΅ΡΠΏΠ΅ΡΠΈΠ²Π°ΡΡΠΈΠ΅ Π½ΠΎΡΠΌΠ°Π»ΡΠ½ΡΡ ΡΠΊΡΠΏΠ»ΡΠ°ΡΠ°ΡΠΈΡ ΠΌΠ΅Ρ
Π°Π½ΠΈΠ·ΠΌΠ° ΠΏΠΎΠ΄ΡΠ΅ΠΌΠ° ΠΈ ΠΏΠ΅ΡΠ΅Π΄Π²ΠΈΠΆΠ΅Π½ΠΈΡ.
Π ΡΡΠΈΠΌ ΡΡΡΡΠΎΠΉΡΡΠ²Π°ΠΌ ΠΎΡΠ½ΠΎΡΡΡΡΡ ΠΎΠ³ΡΠ°Π½ΠΈΡΠΈΡΠ΅Π»ΠΈ Π²ΡΡΠΎΡΡ ΠΏΠΎΠ΄ΡΠ΅ΠΌΠ° ΠΈ Π³ΡΡΠ·ΠΎΠΏΠΎΠ΄ΡΠ΅ΠΌΠ½ΠΎΡΡΠΈ ΠΌΠ΅Ρ
Π°Π½ΠΈΠ·ΠΌΠ° ΠΏΠΎΠ΄ΡΠ΅ΠΌΠ°, Π°Π²ΡΠΎΠΌΠ°ΡΠΈΡΠ΅ΡΠΊΠΈ ΠΎΡΠΊΠ»ΡΡΠ°ΡΡΠΈΠ΅ ΠΌΠ΅Ρ
Π°Π½ΠΈΠ·ΠΌ ΠΏΡΠΈ ΠΏΠΎΠ΄ΡΠ΅ΠΌΠ΅ ΠΊΡΡΠΊΠ° Π² ΠΊΡΠ°ΠΉΠ½Π΅Π΅ ΠΏΠΎΠ»ΠΎΠΆΠ΅Π½ΠΈΠ΅ ΠΈ ΠΏΠΎΠ΄ΡΠ΅ΠΌΠ΅ Π³ΡΡΠ·Π° ΠΌΠ°ΡΡΠΎΠΉ, ΠΏΡΠ΅Π²ΡΡΠ°ΡΡΠ΅ΠΉ Π½ΠΎΠΌΠΈΠ½Π°Π»ΡΠ½ΡΡ Π½Π° 10%. ΠΠ½ΠΎΠ³Π΄Π° Π½Π° ΡΠ΅Π»Π΅ΠΆΠΊΠ΅ ΡΠ°ΠΊΠΆΠ΅ ΡΡΡΠ°Π½Π°Π²Π»ΠΈΠ²Π°ΡΡ ΠΌΠ°ΡΡΠΎΠΈΠ·ΠΌΠ΅ΡΠΈΡΠ΅Π»ΡΠ½ΡΠ΅ ΡΡΡΡΠΎΠΉΡΡΠ²Π°. ΠΠ»Ρ ΠΎΠ³ΡΠ°Π½ΠΈΡΠ΅Π½ΠΈΡ ΠΏΠ΅ΡΠ΅Π΄Π²ΠΈΠΆΠ΅Π½ΠΈΡ ΡΠ΅Π»Π΅ΠΆΠΊΠΈ Π² ΠΊΡΠ°ΠΉΠ½ΠΈΠ΅ ΠΏΠΎΠ»ΠΎΠΆΠ΅Π½ΠΈΡ Π½Π° ΠΌΠΎΡΡΡ ΠΊΡΠ°Π½Π° ΡΡΡΠ°Π½Π°Π²Π»ΠΈΠ²Π°ΡΡ ΠΊΠΎΠ½Π΅ΡΠ½ΡΠ΅ Π²ΡΠΊΠ»ΡΡΠ°ΡΠ΅Π»ΠΈ, Π° Π½Π° ΡΠ΅Π»Π΅ΠΆΠΊΠ΅ β Π»ΠΈΠ½Π΅ΠΉΠΊΡ. ΠΡΠΈ ΠΏΠΎΠ΄Ρ
ΠΎΠ΄Π΅ ΡΠ΅Π»Π΅ΠΆΠΊΠΈ Π² ΠΊΡΠ°ΠΉΠ½Π΅Π΅ ΠΏΠΎΠ»ΠΎΠΆΠ΅Π½ΠΈΠ΅ Π»ΠΈΠ½Π΅ΠΉΠΊΠ° Π²Π·Π°ΠΈΠΌΠΎΠ΄Π΅ΠΉΡΡΠ²ΡΠ΅Ρ Ρ ΠΊΠΎΠ½Π΅ΡΠ½ΡΠΌΠΈ Π²ΡΠΊΠ»ΡΡΠ°ΡΠ΅Π»ΡΠΌΠΈ, Ρ ΠΏΠΎΠΌΠΎΡΡΡ ΠΊΠΎΡΠΎΡΡΡ
Π°Π²ΡΠΎΠΌΠ°ΡΠΈΡΠ΅ΡΠΊΠΈ ΠΎΡΠΊΠ»ΡΡΠ°Π΅ΡΡΡ ΠΌΠ΅Ρ
Π°Π½ΠΈΠ·ΠΌ ΠΏΠ΅ΡΠ΅Π΄Π²ΠΈΠΆΠ΅Π½ΠΈΡ. Π’Π΅Π»Π΅ΠΆΠΊΠ° ΡΠ°ΠΊΠΆΠ΅ ΠΎΠ±ΠΎΡΡΠ΄ΡΠ΅ΡΡΡ Π±ΡΡΠ΅ΡΠ°ΠΌΠΈ, ΠΎΠ³ΡΠ°Π½ΠΈΡΠΈΠ²Π°ΡΡΠΈΠΌΠΈ Π΅Π΅ ΠΏΠ΅ΡΠ΅ΠΌΠ΅ΡΠ΅Π½ΠΈΠ΅ ΠΏΠΎ ΠΌΠΎΡΡΡ ΠΏΡΠΈ Π½Π΅ΡΡΠ°Π±Π°ΡΡΠ²Π°Π½ΠΈΠΈ ΠΊΠΎΠ½Π΅ΡΠ½ΡΡ
Π²ΡΠΊΠ»ΡΡΠ°ΡΠ΅Π»Π΅ΠΉ. ΠΠ»Ρ ΠΎΠ±Π΅ΡΠΏΠ΅ΡΠ΅Π½ΠΈΡ Π±Π΅Π·ΠΎΠΏΠ°ΡΠ½ΠΎΠΉ ΡΠ°Π±ΠΎΡΡ ΠΏΡΠΈ ΡΠ΅ΠΌΠΎΠ½ΡΠ΅ ΠΈΠ»ΠΈ ΠΎΡΠΌΠΎΡΡΠ΅ ΠΌΠ΅Ρ
Π°Π½ΠΈΠ·ΠΌΠΎΠ² Π½Π° ΡΠ΅Π»Π΅ΠΆΠΊΠ΅ ΡΡΡΠ°Π½Π°Π²Π»ΠΈΠ²Π°ΡΡ ΠΏΠ΅ΡΠΈΠ»Π°.
Π ΠΈΡ. 12. ΠΠ±ΡΠΈΠΉ Π²ΠΈΠ΄ ΡΠ΅Π»Π΅ΠΆΠΊΠΈ ΠΊΡΠ°Π½Π° ΠΎΠ±ΡΠ΅Π³ΠΎ Π½Π°Π·Π½Π°ΡΠ΅Π½ΠΈΡ Ρ ΠΎΠ΄Π½ΠΈΠΌ ΠΌΠ΅Ρ
Π°Π½ΠΈΠ·ΠΌΠΎΠΌ ΠΏΠΎΠ΄ΡΠ΅ΠΌΠ°:
1 β ΠΏΠΎΠ²ΠΎΠ΄ΠΎΠΊ; 2 β ΡΠ΅Π΄ΡΠΊΡΠΎΡ ΠΌΠ΅Ρ
Π°Π½ΠΈΠ·ΠΌΠ° ΠΏΠΎΠ΄ΡΠ΅ΠΌΠ°; 3 β ΡΠΎΡΠΌΠΎΠ· ΠΌΠ΅Ρ
Π°Π½ΠΈΠ·ΠΌΠ° ΠΏΠΎΠ΄ΡΠ΅ΠΌΠ°; 4 β ΡΡΠ°Π²Π½ΠΈΡΠ΅Π»ΡΠ½ΡΠΉ Π±Π»ΠΎΠΊ; Π β ΠΏΡΠΎΠΌΠ΅ΠΆΡΡΠΎΡΠ½ΡΠΉ Π±ΡΡΡΡΠΎΡ
ΠΎΠ΄Π½ΡΠΉ Π²Π°Π»; 6 β Π·ΡΠ±ΡΠ°ΡΠ°Ρ ΠΌΡΡΡΠ°; 7 β ΠΏΠ΅ΡΠΈΠ»Π°; 8 β ΡΠ»Π΅ΠΊΡΡΠΎΠ΄Π²ΠΈΠ³Π°ΡΠ΅Π»Ρ ΠΌΠ΅Ρ
Π°Π½ΠΈΠ·ΠΌΠ° ΠΏΠΎΠ΄ΡΠ΅ΠΌΠ°; 9 β Π½Π΅ΠΏΡΠΈΠ²ΠΎΠ΄Π½ΠΎΠ΅ Ρ
ΠΎΠ΄ΠΎΠ²ΠΎΠ΅ ΠΊΠΎΠ»Π΅ΡΠΎ ΠΎ Π±ΡΠΊΡΠΎΠΉ; 10 β ΠΎΠ³ΡΠ°Π½ΠΈΡΠΈΡΠ΅Π»Ρ Π²ΡΡΠΎΡΡ ΠΏΠΎΠ΄ΡΠ΅ΠΌΠ°; 11 β Π»ΠΈΠ½Π΅ΠΉΠΊΠ°; 12 β ΡΠ°ΠΌΠ°; 13 β ΡΠ΅Π΄ΡΠΊΡΠΎΡ ΠΌΠ΅Ρ
Π°Π½ΠΈΠ·ΠΌΠ° ΠΏΠ΅ΡΠ΅Π΄Π²ΠΈΠΆΠ΅Π½ΠΈΡ; 14 β ΡΠΊΠΎΡΠΎΡΠ΅Π½Π½Π°Ρ ΠΊΡΡΠΊΠΎΠ²Π°Ρ ΠΏΠΎΠ΄Π²Π΅ΡΠΊΠ°; 15 β ΡΠΎΡΠΌΠΎΠ· ΠΌΠ΅Ρ
Π°Π½ΠΈΠ·ΠΌΠ° ΠΏΠ΅ΡΠ΅Π΄Π²ΠΈΠΆΠ΅Π½ΠΈΡ; 16 β ΡΠ»Π΅ΠΊΡΡΠΎΠ΄Π²ΠΈΠ³Π°ΡΠ΅Π»Ρ ΠΌΠ΅Ρ
Π°Π½ΠΈΠ·ΠΌΠ° ΠΏΠ΅ΡΠ΅Π΄Π²ΠΈΠΆΠ΅Π½ΠΈΡ; 11β Π±Π°ΡΠ°Π±Π°Π½ ΠΌΠ΅Ρ
Π°Π½ΠΈΠ·ΠΌΠ° ΠΏΠΎΠ΄ΡΠ΅ΠΌΠ°
Π Π΅ΠΊΠ»Π°ΠΌΠ½ΡΠ΅ ΠΏΡΠ΅Π΄Π»ΠΎΠΆΠ΅Π½ΠΈΡ Π½Π° ΠΎΡΠ½ΠΎΠ²Π΅ Π²Π°ΡΠΈΡ ΠΈΠ½ΡΠ΅ΡΠ΅ΡΠΎΠ²:
ΠΠΎΠΏΠΎΠ»Π½ΠΈΡΠ΅Π»ΡΠ½ΡΠ΅ ΠΌΠ°ΡΠ΅ΡΠΈΠ°Π»Ρ ΠΏΠΎ ΡΠ΅ΠΌΠ΅:
Π ΠΈΡ.
13. Π’Π΅Π»Π΅ΠΆΠΊΠ° ΠΊΡΠ°Π½Π° ΠΎΠ±ΡΠ΅Π³ΠΎ Π½Π°Π·Π½Π°ΡΠ΅Π½ΠΈΠΈ Π³ΡΡΠ·ΠΎΠΏΠΎΠ΄ΡΠ΅ΠΌΠ½ΠΎΡΡΡΡ 20/5 Ρ
Π ΠΈΡ. 14. Π’Π΅Π»Π΅ΠΆΠΊΠ° ΠΊΡΠ°Π½Π° ΠΎΠ±ΡΠ΅Π³ΠΎ Π½Π°Π·Π½Π°ΡΠ΅Π½ΠΈΠΈ Π³ΡΡΠ·ΠΎΠΏΠΎΠ΄ΡΠ΅ΠΌΠ½ΠΎΡΡΡΡ 80/20 Ρ
Π ΠΈΡ. 15. Π’Π΅Π»Π΅ΠΆΠΊΠ° ΠΊΡΠ°Π½Π° ΠΎΠ±ΡΠ΅Π³ΠΎ Π½Π°Π·Π½Π°ΡΠ΅Π½ΠΈΡ Π³ΡΡΠ·ΠΎΠΏΠΎΠ΄ΡΠ΅ΠΌΠ½ΠΎΡΡΡΡ 250/32 Ρ
Π Π°Π·ΠΌΠ΅ΡΠ΅Π½ΠΈΠ΅ ΠΌΠ΅Ρ
Π°Π½ΠΈΠ·ΠΌΠΎΠ² Π½Π° ΡΠ°ΠΌΠ΅ ΡΠ΅Π»Π΅ΠΆΠΊΠΈ ΠΏΡΠΎΠΈΠ·Π²ΠΎΠ΄ΠΈΡΡΡ ΡΠ°ΠΊΠΈΠΌ ΠΎΠ±ΡΠ°Π·ΠΎΠΌ, ΡΡΠΎΠ±Ρ ΠΎΠ±Π΅ΡΠΏΠ΅ΡΠΈΠ²Π°Π»Π°ΡΡ ΡΠ°Π²Π½ΠΎΠΌΠ΅ΡΠ½Π°Ρ Π½Π°Π³ΡΡΠ·ΠΊΠ° Π½Π° Π²ΡΠ΅ Ρ
ΠΎΠ΄ΠΎΠ²ΡΠ΅ ΠΊΠΎΠ»Π΅ΡΠ°. ΠΠΎΡΡΠΎΠΌΡ Π² ΠΌΠ΅Ρ
Π°Π½ΠΈΠ·ΠΌΠ°Ρ
ΠΏΠΎΠ΄ΡΠ΅ΠΌΠ° ΠΈΡΠΏΠΎΠ»ΡΠ·ΡΡΡ Π±Π°ΡΠ°Π±Π°Π½Ρ Ρ Π΄Π²ΡΠΌΡ Π½Π°ΡΠ΅Π·ΠΊΠ°ΠΌΠΈ ΡΠ°Π·Π½ΡΡ
Π½Π°ΠΏΡΠ°Π²Π»Π΅Π½ΠΈΠΉ ΠΈ ΡΠ΄Π²ΠΎΠ΅Π½Π½ΡΠ΅ ΠΏΠΎΠ»ΠΈΡΠΏΠ°ΡΡΡ, Π±Π»Π°Π³ΠΎΠ΄Π°ΡΡ ΡΠ΅ΠΌΡ Π²ΠΎΠ·ΠΌΠΎΠΆΠ½ΠΎ ΠΏΡΠΎΠΈΠ·Π²Π΅ΡΡΠΈ Π²Π΅ΡΡΠΈΠΊΠ°Π»ΡΠ½ΡΠΉ ΠΏΠΎΠ΄ΡΠ΅ΠΌ Π³ΡΡΠ·Π° ΠΈ ΠΏΡΠΈ ΡΡΡΠ°Π½ΠΎΠ²ΠΊΠ΅ ΡΠ΅ΡΠ΅Π΄ΠΈΠ½Ρ Π±Π°ΡΠ°Π±Π°Π½Π° ΠΏΠΎ ΠΏΡΠΎΠ΄ΠΎΠ»ΡΠ½ΠΎΠΉ ΠΎΡΠΈ ΠΌΠΎΡΡΠ° ΠΏΠ΅ΡΠ΅Π΄Π°ΡΡ ΡΠ°Π²Π½ΠΎΠΌΠ΅ΡΠ½ΡΡ Π½Π°Π³ΡΡΠ·ΠΊΡ ΠΎΡ Π΄Π΅ΠΉΡΡΠ²ΠΈΡ ΡΠΈΠ»Ρ ΡΡΠΆΠ΅ΡΡΠΈ ΠΏΠΎΠ΄Π½ΠΈΠΌΠ°Π΅ΠΌΠΎΠ³ΠΎ Π³ΡΡΠ·Π° Π½Π° Ρ
ΠΎΠ΄ΠΎΠ²ΡΠ΅ ΠΊΠΎΠ»Π΅ΡΠ°. ΠΡΠΈ ΠΈΡΠΏΠΎΠ»ΡΠ·ΠΎΠ²Π°Π½ΠΈΠΈ Π΄Π²ΡΡ
ΠΌΠ΅Ρ
Π°Π½ΠΈΠ·ΠΌΠΎΠ² ΠΏΠΎΠ΄ΡΠ΅ΠΌΠ° Π³Π»Π°Π²Π½ΠΎΠ³ΠΎ ΠΈ Π²ΡΠΏΠΎΠΌΠΎΠ³Π°ΡΠ΅Π»ΡΠ½ΠΎΠ³ΠΎ, ΠΌΠ΅Ρ
Π°Π½ΠΈΠ·ΠΌ Π³Π»Π°Π²Π½ΠΎΠ³ΠΎ ΠΏΠΎΠ΄ΡΠ΅ΠΌΠ° ΡΠ°Π·ΠΌΠ΅ΡΠ°ΡΡ ΡΠ°ΠΊΠΈΠΌ ΠΎΠ±ΡΠ°Π·ΠΎΠΌ, ΡΡΠΎ ΠΏΡΠΈΠ²ΠΎΠ΄Π½ΡΠ΅ ΠΊΠΎΠ»Π΅ΡΠ° ΠΈΡΠΏΡΡΡΠ²Π°ΡΡ Π½Π°Π³ΡΡΠ·ΠΊΡ Π±ΠΎΠ»ΡΡΠ΅ Π½Π΅ΠΏΡΠΈΠ²ΠΎΠ΄Π½ΡΡ
. Π₯ΠΎΠ΄ΠΎΠ²Π°Ρ ΡΠ°ΡΡΡ ΡΠ΅Π»Π΅ΠΆΠ΅ΠΊ ΠΊΡΠ°Π½ΠΎΠ² Π±ΠΎΠ»ΡΡΠΎΠΉ Π³ΡΡΠ·ΠΎΠΏΠΎΠ΄ΡΠ΅ΠΌΠ½ΠΎΡΡΠΈ (Π±ΠΎΠ»Π΅Π΅ 50 Ρ) Π²ΡΠΏΠΎΠ»Π½Π΅Π½Π° Π½Π° Π±Π°Π»Π°Π½ΡΠΈΡΠ½ΡΡ
ΡΠ΅Π»Π΅ΠΆΠΊΠ°Ρ
, ΠΏΠΎΠ·Π²ΠΎΠ»ΡΡΡΠΈΡ
Π±ΠΎΠ»Π΅Π΅ ΡΠ°Π²Π½ΠΎΠΌΠ΅ΡΠ½ΠΎ ΡΠ°ΡΠΏΡΠ΅Π΄Π΅Π»ΡΡΡ Π½Π°Π³ΡΡΠ·ΠΊΡ Π½Π° Π³Π»Π°Π²Π½ΡΠ΅ Π±Π°Π»ΠΊΠΈ ΠΌΠΎΡΡΠ° ΠΊΡΠ°Π½Π° ΠΎΡ Π΄Π΅ΠΉΡΡΠ²ΠΈΡ ΠΈΡ
ΡΠΈΠ»Ρ ΡΡΠΆΠ΅ΡΡΠΈ, Π° ΡΠ°ΠΊΠΆΠ΅ ΡΠΈΠ»Ρ ΡΡΠΆΠ΅ΡΡΠΈ ΠΏΠΎΠ΄Π½ΠΈΠΌΠ°Π΅ΠΌΠΎΠ³ΠΎ Π³ΡΡΠ·Π°.
ΠΠΎΠ½ΡΡΡΡΠΊΡΠΈΡ ΡΠ΅Π»Π΅ΠΆΠΊΠΈ Π²ΠΎ ΠΌΠ½ΠΎΠ³ΠΎΠΌ ΠΎΠΏΡΠ΅Π΄Π΅Π»ΡΠ΅ΡΡΡ ΠΈΡΠΏΠΎΠ»Π½Π΅Π½ΠΈΠ΅ΠΌ ΠΏΡΠΎΠ»Π΅ΡΠ½ΠΎΠ³ΠΎ ΡΡΡΠΎΠ΅Π½ΠΈΡ ΠΌΠΎΡΡΠ° ΠΊΡΠ°Π½Π°, ΠΊΠΎΡΠΎΡΠΎΠ΅ ΠΌΠΎΠΆΠ΅Ρ Π±ΡΡΡ Π΄Π²ΡΡ Π±Π°Π»ΠΎΡΠ½ΡΠΌ ΠΈΠ»ΠΈ ΠΎΠ΄Π½ΠΎΠ±Π°Π»ΠΎΡΠ½ΡΠΌ. ΠΡΠ°Π½ΠΎΠ²ΡΠ΅ ΡΠ΅Π»Π΅ΠΆΠΊΠΈ Π΄Π²ΡΡ Π±Π°Π»ΠΎΡΠ½ΡΡ ΠΊΡΠ°Π½ΠΎΠ² ΠΌΠΎΠ³ΡΡ ΠΏΠ΅ΡΠ΅ΠΌΠ΅ΡΠ°ΡΡΡΡ ΠΏΠΎ Π²Π΅ΡΡ Π½ΠΈΠΌ ΠΈ Π½ΠΈΠΆΠ½ΠΈΠΌ ΠΏΠΎΡΡΠ°ΠΌ Π³Π»Π°Π²Π½ΡΡ Π±Π°Π»ΠΎΠΊ. Π’Π΅Π»Π΅ΠΆΠΊΠΈ ΠΏΠ΅ΡΠ΅ΠΌΠ΅ΡΠ°ΡΡΡΡ ΠΏΠΎ ΡΠ΅Π»ΡΡΠ°ΠΌ, ΡΠ»ΠΎΠΆΠ΅Π½Π½ΡΠΌ Π½Π° Π²Π΅ΡΡ Π½ΠΈΡ ΠΏΠΎΡΡΠ°Ρ Π³Π»Π°Π²Π½ΡΡ Π±Π°Π»ΠΎΠΊ. ΠΠ΅Ρ Π°Π½ΠΈΠ·ΠΌ ΠΏΠ΅ΡΠ΅Π΄Π²ΠΈΠΆΠ΅Π½ΠΈΡ ΡΠ΅Π»Π΅ΠΆΠ΅ΠΊ, ΠΊΠ°ΠΊ ΠΏΡΠ°Π²ΠΈΠ»ΠΎ, Π²ΡΠΏΠΎΠ»Π½ΡΡΡ Ρ ΡΠΈΡ ΠΎΡ ΠΎΠ΄Π½ΡΠΌ Π²Π°Π»ΠΎΠΌ.
ΠΠΎΠ»Π΅Ρ ΡΠ΅Π»Π΅ΠΆΠ΅ΠΊ Π² ΠΎΡΠ½ΠΎΠ²Π½ΠΎΠΌ Π·Π°Π²ΠΈΡΠΈΡ ΠΎΡ Π΄Π»ΠΈΠ½Ρ Π±Π°ΡΠ°Π±Π°Π½Π° ΠΌΠ΅Ρ Π°Π½ΠΈΠ·ΠΌΠ° ΠΏΠΎΠ΄ΡΠ΅ΠΌΠ° Π³ΡΡΠ·Π° ΠΈ Π΄Π»Ρ ΠΊΡΠ°Π½ΠΎΠ² ΠΌΠ°Π»ΠΎΠΉ Π³ΡΡΠ·ΠΎΠΏΠΎΠ΄ΡΠ΅ΠΌΠ½ΠΎΡΡΠΈ ΡΠΎΡΡΠ°Π²Π»ΡΠ΅Ρ 1,4, 2,0 ΠΈ 2,5 ΠΌ.
Π ΠΊΡΠ°Π½Π°Ρ
Ρ ΠΎΠ΄Π½ΠΎΠ±Π°Π»ΠΎΡΠ½ΡΠΌΠΈ ΠΌΠΎΡΡΠ°ΠΌΠΈ, ΠΏΠΎΠ»ΡΡΠ°ΡΡΠΈΡ
Π²ΡΠ΅ Π±ΠΎΠ»ΡΡΠ΅Π΅ ΡΠ°ΡΠΏΡΠΎΡΡΡΠ°Π½Π΅Π½ΠΈΠ΅, Π½Π°ΠΈΠ±ΠΎΠ»Π΅Π΅ ΡΠ°ΡΠΈΠΎΠ½Π°Π»ΡΠ½ΡΠΌ ΡΠ²Π»ΡΠ΅ΡΡΡ ΠΈΡΠΏΠΎΠ»ΡΠ·ΠΎΠ²Π°Π½ΠΈΠ΅ ΡΠ΅Π»Π΅ΠΆΠ΅ΠΊ ΠΊΠΎΠ½ΡΠΎΠ»ΡΠ½ΠΎΠ³ΠΎ ΡΠΈΠΏΠ°. ΠΠΎΠ½ΡΠΎΠ»ΡΠ½ΡΠ΅ ΡΠ΅Π»Π΅ΠΆΠΊΠΈ Π²ΡΠΏΠΎΠ»Π½Π΅Π½Ρ Π»ΠΈΠ±ΠΎ Ρ Π±ΠΎΠΊΠΎΠ²ΡΠΌΠΈ Π½Π°ΠΏΡΠ°Π²Π»ΡΡΡΠΈΠΌΠΈ ΡΠΎΠ»ΠΈΠΊΠ°ΠΌΠΈ (ΡΠΈΡ, 16, Π°), Π»ΠΈΠ±ΠΎ Ρ ΠΎΠ±ΡΠ°ΡΠ½ΡΠΌΠΈ ΡΠΎΠ»ΠΈΠΊΠ°ΠΌΠΈ (ΡΠΈΡ. 16,6), ΡΠ΄Π΅ΡΠΆΠΈΠ²Π°ΡΡΠΈΠΌΠΈ ΡΠ΅Π»Π΅ΠΆΠΊΡ Π½Π° Π³Π»Π°Π²Π½ΠΎΠΉ Π±Π°Π»ΠΊΠ΅ ΠΎΡ ΠΎΠΏΡΠΎΠΊΠΈΠ΄ΡΠ²Π°Π½ΠΈΡ. Π₯ΠΎΠ΄ΠΎΠ²ΡΠ΅ ΠΊΠΎΠ»Π΅ΡΠ° (ΠΏΡΠΈΠ²ΠΎΠ΄Π½ΡΠ΅ ΠΈ Π½Π΅ΠΏΡΠΈΠ²ΠΎΠ΄Π½ΡΠ΅) ΡΠ΅Π»Π΅ΠΆΠΊΠΈ ΠΎΠΏΠΈΡΠ°ΡΡΡΡ Π½Π° ΠΏΠΎΠ΄ΡΠ΅Π»Π΅ΠΆΠ΅ΡΠ½ΡΠΉ ΡΠ΅Π»ΡΠ±, ΠΊΠΎΡΠΎΡΡΠΉ ΠΎΠ±ΡΡΠ½ΠΎ ΡΠ°ΡΠΏΠΎΠ»Π°Π³Π°Π΅ΡΡΡ Π½Π°Π΄ ΡΡΠ΅Π½ΠΊΠΎΠΉ Π³Π»Π°Π²Π½ΠΎΠΉ Π±Π°Π»ΠΊΠΈ.
Π’Π΅Π»Π΅ΠΆΠΊΠ° ΠΌΠ°Π³Π½ΠΈΡΠ½ΠΎΠ³ΠΎ ΠΊΡΠ°Π½Π° (ΡΠΈΡ. 17, Π°) Ρ ΠΏΠΎΠ΄Π²Π΅ΡΠΊΠΎΠΉ Π³ΡΡΠ·ΠΎΠ²ΠΎΠ³ΠΎ ΠΌΠ°Π³Π½ΠΈΡΠ° Π½Π° ΠΊΡΡΠΊΠΎΠ²ΠΎΠΉ ΠΏΠΎΠ΄Π²Π΅ΡΠΊΠ΅ ΠΎΡΠ»ΠΈΡΠ°Π΅ΡΡΡ ΠΎΡ ΡΠ΅Π»Π΅ΠΆΠΊΠΈ ΠΊΡΠ°Π½Π° ΠΎΠ±ΡΠ΅Π³ΠΎ Π½Π°Π·Π½Π°ΡΠ΅Π½ΠΈΡ ΡΡΠΆΠ΅Π»ΠΎΠ³ΠΎ ΡΠ΅ΠΆΠΈΠΌΠ° ΡΠ°Π±ΠΎΡΡ Π»ΠΈΡΡ Π½Π°Π»ΠΈΡΠΈΠ΅ΠΌ ΠΊΠ°Π±Π΅Π»ΡΠ½ΠΎΠ³ΠΎ Π±Π°ΡΠ°Π±Π°Π½Π°, ΡΠ²ΡΠ·Π°Π½Π½ΠΎΠ³ΠΎ Π½Π΅ΠΏΠΎΡΡΠ΅Π΄ΡΡΠ²Π΅Π½Π½ΠΎ ΠΈΠ»ΠΈ ΠΌΠ΅Ρ Π°Π½ΠΈΡΠ΅ΡΠΊΠΎΠΉ (Π·ΡΠ±ΡΠ°ΡΠΎΠΉ, ΡΠ΅ΠΏΠ½ΠΎΠΉ) ΠΏΠ΅ΡΠ΅Π΄Π°ΡΠ΅ΠΉ Ρ Π±Π°ΡΠ°Π±Π°Π½ΠΎΠΌ ΠΌΠ΅Ρ Π°Π½ΠΈΠ·ΠΌΠ° ΠΏΠΎΠ΄ΡΠ΅ΠΌΠ°, ΡΡΠΎ ΠΏΠΎΠ·Π²ΠΎΠ»ΡΠ΅Ρ ΡΠΈΠ½Ρ ΡΠΎΠ½Π½ΠΎ Ρ ΠΏΠΎΠ΄ΡΠ΅ΠΌΠΎΠΌ ΡΠ»Π΅ΠΊΡΡΠΎΠΌΠ°Π³Π½ΠΈΡΠ° Π²ΡΠ±ΠΈΡΠ°ΡΡ Π΅Π³ΠΎ ΠΏΠΈΡΠ°ΡΡΠΈΠΉ ΠΊΠ°Π±Π΅Π»Ρ.
Π ΠΈΡ. 16. ΠΠΎΠ½ΡΠΎΠ»ΡΠ½ΡΠ΅ ΡΠ΅Π»Π΅ΠΆΠΊΠΈ ΠΌΠΎΡΡΠΎΠ²ΡΡ
ΠΎΠ΄Π½ΠΎΠ±Π°Π»ΠΎΡΠ½ΡΡ
ΠΊΡΠ°Π½ΠΎΠ²:
Π° β Ρ Π±ΠΎΠΊΠΎΠ²ΡΠΌΠΈ Π½Π°ΠΏΡΠ°Π²Π»ΡΡΡΠΈΠΌΠΈ ΡΠΎΠ»ΠΈΠΊΠ°ΠΌΠΈ; Π± β Ρ ΠΎΠ±ΡΠ°ΡΠ½ΡΠΌΠΈ ΡΠΎΠ»ΠΈΠΊΠ°ΠΌΠΈ
Π’Π΅Π»Π΅ΠΆΠΊΠ° Π³ΡΠ΅ΠΉΡΠ΅ΡΠ½ΠΎΠ³ΠΎ ΠΊΡΠ°Π½Π° (ΡΠΌ. ΡΠΈΡ. 17,6) ΠΈΠΌΠ΅Π΅Ρ Π΄Π²Π΅ ΠΎΠ΄ΠΈΠ½Π°ΠΊΠΎΠ²ΡΠ΅ Π³ΡΡΠ·ΠΎΠ²ΡΠ΅ Π»Π΅Π±Π΅Π΄ΠΊΠΈ: ΠΏΠΎΠ΄ΡΠ΅ΠΌΠ½ΡΡ ΠΈ Π·Π°ΠΌΡΠΊΠ°ΡΡΡΡ, Π° ΠΌΠ°Π³Π½ΠΈΡΠ½ΠΎ- Π³ΡΠ΅ΠΉΡΠ΅ΡΠ½ΠΎΠ³ΠΎ ΠΊΡΠ°Π½Π° (ΡΠΌ. ΡΠΈΡ. 17, Π²) β ΠΌΠ΅Ρ Π°Π½ΠΈΠ·ΠΌ Π³Π»Π°Π²Π½ΠΎΠ³ΠΎ ΠΏΠΎΠ΄ΡΠ΅ΠΌΠ° Π΄Π»Ρ ΠΏΠΎΠ΄ΡΠ΅ΠΌΠ° ΡΠΌΠ΅Π½Π½ΡΡ ΡΠ»Π΅ΠΊΡΡΠΎΠΌΠ°Π³Π½ΠΈΡΠ° ΠΈΠ»ΠΈ ΠΌΠΎΡΠΎΡΠ½ΠΎΠ³ΠΎ Π³ΡΠ΅ΠΉΡΠ΅ΡΠ° ΠΈ ΠΌΠ΅Ρ Π°Π½ΠΈΠ·ΠΌ Π²ΡΠΏΠΎΠΌΠΎΠ³Π°ΡΠ΅Π»ΡΠ½ΠΎΠ³ΠΎ ΠΏΠΎΠ΄ΡΠ΅ΠΌΠ° ΠΏΡΠΈ ΠΈΡΠΏΠΎΠ»ΡΠ·ΠΎΠ²Π°Π½ΠΈΠΈ ΠΊΡΠ°Π½Π° Π² ΠΊΠ°ΡΠ΅ΡΡΠ²Π΅ ΠΊΡΡΠΊΠΎΠ²ΠΎΠ³ΠΎ.
Π’Π΅Π»Π΅ΠΆΠΊΠΈ ΠΌΠ°Π³Π½ΠΈΡΠ½ΡΡ
.ΠΊΡΠ°Π½ΠΎΠ² Ρ Π³ΠΈΠ±ΠΊΠΈΠΌ ΠΏΠΎΠ΄Π²Π΅ΡΠΎΠΌ ΡΡΠ°Π²Π΅ΡΡΡ (ΡΠΈΡ. 17, Π³, Π΄) ΠΈΠΌΠ΅ΡΡ Π΄Π²Π° ΠΆΠ΅ΡΡΠΊΠΎ ΡΠ²ΡΠ·Π°Π½Π½ΡΡ
ΠΏΡΠΎΠΌΠ΅ΠΆΡΡΠΎΡΠ½ΡΠΌ Π²Π°Π»ΠΎΠΌ Π³ΡΡΠ·ΠΎΠ²ΡΡ
Π±Π°ΡΠ°Π±Π°Π½Π°, ΡΡΡΠ°Π½ΠΎΠ²Π»Π΅Π½Π½ΡΡ
Π½Π° ΡΠ°ΠΌΠ΅ ΡΠ΅Π»Π΅ΠΆΠΊΠΈ Π² Π·Π°Π²ΠΈΡΠΈΠΌΠΎΡΡΠΈ ΠΎΡ ΡΠ°ΡΠΏΠΎΠ»ΠΎΠΆΠ΅Π½ΠΈΡ ΡΡΠ°Π²Π΅ΡΡΡ (ΠΏΡΠΎΠ΄ΠΎΠ»ΡΠ½ΠΎΠ΅ ΠΈΠ»ΠΈ ΠΏΠΎΠΏΠ΅ΡΠ΅ΡΠ½ΠΎΠ΅ ΡΠ°ΡΠΏΠΎΠ»ΠΎΠΆΠ΅Π½ΠΈΠ΅ ΠΎΡΠ½ΠΎΡΠΈΡΠ΅Π»ΡΠ½ΠΎ ΠΌΠΎΡΡΠ° ΠΊΡΠ°Π½Π°).
ΠΡΠ°ΡΠ°ΡΡΠ°ΡΡΡ ΡΠ΅Π»Π΅ΠΆΠΊΠ° ΠΌΠ°Π³Π½ΠΈΡΠ½ΠΎΠ³ΠΎ ΠΊΡΠ°Π½Π° Ρ Π³ΠΈΠ±ΠΊΠΈΠΌ ΠΏΠΎΠ΄Π²Π΅ΡΠΎΠΌ ΡΡΠ°Π²Π΅ΡΡΡ (ΡΠΈΡ. 18) ΡΠΎΡΡΠΎΠΈΡ Ρ Π½ΠΈΠΆΠ½Π΅ΠΉ ΡΠ°ΡΡΠΈ Ρ ΠΌΠ΅Ρ
Π°Π½ΠΈΠ·ΠΌΠΎΠΌ ΠΏΠ΅ΡΠ΅Π΄Π²ΠΈΠΆΠ΅Π½ΠΈΡ ΠΈ Π²Π΅ΡΡ
Π½Π΅ΠΉ Π²ΡΠ°ΡΠ°ΡΡΠ΅ΠΉΡΡ ΡΠ°ΡΡΡ Ρ ΡΡΡΠ°Π½ΠΎΠ²Π»Π΅Π½Π½ΡΠΌΠΈ ΠΌΠ΅Ρ
Π°Π½ΠΈΠ·ΠΌΠ°ΠΌΠΈ ΠΏΠΎΠ΄ΡΠ΅ΠΌΠ° ΠΈ ΠΏΠΎΠ²ΠΎΡΠΎΡΠ°.
Π ΠΈΡ. 17. Π‘Ρ
Π΅ΠΌΡ ΡΠ°ΡΠΏΠΎΠ»ΠΎΠΆΠ΅Π½ΠΈΡ ΠΌΠ΅Ρ
Π°Π½ΠΈΠ·ΠΌΠΎΠ² Π½Π° ΡΠ΅Π»Π΅ΠΆΠΊΠ°Ρ
ΠΌΠΎΡΡΠΎΠ²ΡΡ
ΠΊΡΠ°Π½ΠΎΠ² ΡΠΏΠ΅ΡΠΈΠ°Π»ΡΠ½ΠΎΠ³ΠΎ Π½Π°Π·Π½Π°ΡΠ΅Π½ΠΈΡ:
Π° βΡΠ΅Π»Π΅ΠΆΠΊΠ° ΠΌΠ°Π³Π½ΠΈΡΠ½ΠΎΠ³ΠΎ ΠΊΡΠ°Π½Π°; Π± β ΡΠ΅Π»Π΅ΠΆΠΊΠ° Π³ΡΠ΅ΠΉΡΠ΅ΡΠ½ΠΎΠ³ΠΎ ΠΊΡΠ°Π½Π°; Π² β ΡΠ΅Π»Π΅ΠΆΠΊΠ° ΠΌΠ°Π³Π½ΠΈΡΠ½ΠΎ-Π³ΡΠ΅ΠΉΡΠ΅ΡΠ½ΠΎΠ³ΠΎ ΠΊΡΠ°Π½Π°; Π³, Π΄ β ΡΠ΅Π»Π΅ΠΆΠΊΠ° ΠΌΠ°Π³Π½ΠΈΡΠ½ΠΎΠ³ΠΎ ΠΊΡΠ°Π½Π° Ρ Π³ΠΈΠ±ΠΊΠΈΠΌ ΠΏΠΎΠ΄Π²Π΅ΡΠΎΠΌ ΡΡΠ°Π²Π΅ΡΡΡ, ΡΠ°ΡΠΏΠΎΠ»ΠΎΠΆΠ΅Π½Π½ΠΎΠΉ ΡΠΎΠΎΡΠ²Π΅ΡΡΡΠ²Π΅Π½Π½ΠΎ Π² ΠΏΡΠΎΠ΄ΠΎΠ»ΡΠ½ΠΎΠΌ ΠΈ ΠΏΠΎΠΏΠ΅ΡΠ΅ΡΠ½ΠΎΠΌ Π½Π°ΠΏΡΠ°Π²Π»Π΅Π½ΠΈΠΈ ΠΎΡΠ½ΠΎΡΠΈΡΠ΅Π»ΡΠ½ΠΎ ΠΌΠΎΡΡΠ°; 1 β ΡΠ°ΠΌΠ° ΡΠ΅Π»Π΅ΠΆΠΊΠΈ;- 2 β Ρ
ΠΎΠ΄ΠΎ- Π²ΠΎΠ΅ ΠΊΠΎΠ»Π΅ΡΠΎ; 3 β ΠΊΠ°Π±Π΅Π»ΡΠ½ΡΠΉ Π±Π°ΡΠ°Π±Π°Π½; 4 β Π±Π°ΡΠ°Π±Π°Π½; 5, 9 β ΡΠ΅Π΄ΡΠΊΡΠΎΡ ΡΠΎΠΎΡΠ²Π΅ΡΡΡΠ²Π΅Π½Π½ΠΎ ΠΌΠ΅Ρ
Π°Π½ΠΈΠ·ΠΌΠ° ΠΏΠΎΠ΄ΡΠ΅ΠΌΠ° ΠΈ ΠΏΠ΅ΡΠ΅Π΄Π²ΠΈΠΆΠ΅Π½ΠΈΡ; 8, 13 β ΡΠΎΡΠΌΠΎΠ· ΡΠΎΠΎΡΠ²Π΅ΡΡΡΒ« Π²Π΅Π½Π½ΠΎ. ΠΌΠ΅Ρ
Π°Π½ΠΈΠ·ΠΌΠ° ΠΏΠΎΠ΄ΡΠ΅ΠΌΠ° ΠΈ ΠΏΠ΅ΡΠ΅Π΄Π²ΠΈΠΆΠ΅Π½ΠΈΡ; 7 β Π±ΡΡΡΡΠΎΡ
ΠΎΠ΄Π½ΡΠΉ Π²Π°Π» ΠΌΠ΅Ρ
Π°- Π½ΠΈΠ·ΠΌΠ° ΠΏΠΎΠ΄ΡΠ΅ΠΌΠ°; 8, 10 β ΡΠ»Π΅ΠΊΡΡΠΎΠ΄Π²ΠΈΠ³Π°ΡΠ΅Π»Ρ ΡΠΎΠΎΡΠ²Π΅ΡΡΡΠ²Π΅Π½Π½ΠΎ ΠΌΠ΅Ρ
Π°Π½ΠΈΠ·ΠΌΠ° ΠΏΠΎΠ΄ΡΠ΅ΠΌΠ° ΠΈ ΠΏΠ΅ΡΠ΅Π΄Π²ΠΈΠΆΠ΅Π½ΠΈΡ; 11 β Π·Π°ΠΌΡΠΊΠ°ΡΡΠ°Ρ Π»Π΅Π±Π΅Π΄ΠΊΠ°; 12 β ΠΌΠ΅Ρ
Π°Π½ΠΈΠ·ΠΌ Π²ΡΠΏΠΎΠΌΠΎΠ³Π°ΡΠ΅Π»ΡΠ½ΠΎΠ³ΠΎ ΠΏΠΎΠ΄ΡΠ΅ΠΌΠ°; 14 β Π³ΡΡΠ·ΠΎΠΏΠΎΠ΄ΡΠ΅ΠΌΠ½ΡΠΉ ΡΠ»Π΅ΠΊΡΡΠΎΠΌΠ°Π³Π½ΠΈΡ
Π ΠΈΡ.
18. ΠΡΠ°ΡΠ°ΡΡΠ°ΡΡΡ ΡΠ΅Π»Π΅ΠΆΠΊΠ° ΠΌΠΎΡΡΠΎΠ²ΠΎΠ³ΠΎ ΠΌΠ°Π³Π½ΠΈΡΠ½ΠΎΠ³ΠΎ ΠΊΡΠ°Π½Π° Ρ Π³ΠΈΠ±ΠΊΠΈΠΌ ΠΏΠΎΠ΄Π²Π΅ΡΠΎΠΌ ΡΡΠ°Π²Π΅ΡΡΡ:
1 β ΡΠ»Π΅ΠΊΡΡΠΎΠ΄Π²ΠΈΠ³Π°ΡΠ΅Π»Ρ; 2 β ΡΠ΅Π΄ΡΠΊΡΠΎΡ; 3 β ΡΠΈΡ
ΠΎΡ
ΠΎΠ΄Π½ΡΠΉ ΡΡΠ°Π½ΡΠΌΠΈΡΡΠΈΠΎΠ½Π½ΡΠΉ Π²Π°Π»; 4 β Ρ
ΠΎΠ΄ΠΎΠ²ΠΎΠ΅ ΠΊΠΎΠ»Π΅ΡΠΎ Π½ΠΈΠΆΠ½Π΅ΠΉ ΡΠ°ΡΡΠΈ; 5 β ΡΡΠ°Π²Π΅ΡΡΠ°; 6 β ΠΌΠ΅Ρ
Π°Π½ΠΈΠ·ΠΌ ΠΏΠΎΠ΄ΡΠ΅ΠΌΠ°; 7 β ΠΊΠΎΠ»ΡΡΠ΅Π²ΠΎΠΉ ΡΠΎΠΊΠΎΡΡΠ΅ΠΌΠ½ΠΈΠΊ; 8 β ΠΌΠ΅Ρ
Π°Π½ΠΈΠ·ΠΌ ΠΏΠΎΠ²ΠΎΡΠΎΡΠ° Π²Π΅ΡΡ
Π½Π΅ΠΉ ΡΠ°ΡΡΠΈ; 9 β ΠΊΡΡΠ³ΠΎΠ²ΠΎΠΉ ΡΠ΅Π»ΡΡ; 10 β Π½ΠΈΠΆΠ½ΡΡ ΡΠ°ΡΡΡ; 11 β ΡΠ°ΠΌΠ° Π²Π΅ΡΡ
Π½Π΅ΠΉ ΠΏΠΎΠ²ΠΎΡΠΎΡΠ½ΠΎΠΉ
ΡΠ°ΡΡΠΈ
Π Π°ΠΌΡ ΡΠ΅Π»Π΅ΠΆΠ΅ΠΊ Π²ΡΠΏΠΎΠ»Π½Π΅Π½Ρ ΡΠ²Π°ΡΠ½ΡΠΌΠΈ ΠΈΠ· Π»ΠΈΡΡΠΎΠ² ΠΈΠ»ΠΈ ΠΏΡΠΎΠΊΠ°ΡΠ°, Π² ΡΠ΅Π΄ΠΊΠΈΡ
ΡΠ»ΡΡΠ°ΡΡ
Π»ΠΈΡΡΠΌΠΈ. ΠΠ»Ρ ΡΡΡΠ°Π½ΠΎΠ²ΠΊΠΈ ΠΌΠ΅Ρ
Π°Π½ΠΈΠ·ΠΌΠΎΠ² Π½Π° ΡΠ°ΠΌΠ΅ ΡΠ΅Π»Π΅ΠΆΠΊΠΈ ΠΈΠΌΠ΅ΡΡΡΡ ΠΏΠ»Π°ΡΠΈΠΊΠΈ, ΠΏΠΎΠ²Π΅ΡΡ
Π½ΠΎΡΡΡ ΠΊΠΎΠ½ΡΠ°ΠΊΡΠ° ΠΊΠΎΡΠΎΡΡΡ
ΠΎΠ±ΡΠ°Π±Π°ΡΡΠ²Π°Π΅ΡΡΡ ΠΏΠΎΡΠ»Π΅ ΠΈΡ
ΠΏΡΠΈΠ²Π°ΡΠΊΠΈ. ΠΡΠΊΠ°ΡΠ½ΡΠ΅ Π±ΡΠΊΡΡ ΠΌΠ΅Ρ
Π°Π½ΠΈΠ·ΠΌΠ° ΠΏΠ΅ΡΠ΅Π΄Π²ΠΈΠΆΠ΅Π½ΠΈΡ ΡΠ΅Π»Π΅ΠΆΠΊΠΈ ΠΊΡΠ΅ΠΏΡΡ Π½Π° ΠΏΠ»Π°ΡΠΈΠΊΠ°Ρ
, ΠΊ ΠΎΠ±ΡΠ°Π±ΠΎΡΠΊΠ΅ ΠΊΠΎΡΠΎΡΡΡ
ΠΏΡΠ΅Π΄ΡΡΠ²Π»ΡΡΡΡΡ Π²Π΅ΡΡΠΌΠ° Π²ΡΡΠΎΠΊΠΈΠ΅ ΡΡΠ΅Π±ΠΎΠ²Π°Π½ΠΈΡ, ΠΏΠΎΡΠΊΠΎΠ»ΡΠΊΡ Π½Π΅ΡΠΎΡΠ½Π°Ρ ΡΡΡΠ°Π½ΠΎΠ²ΠΊΠ° Ρ
ΠΎΠ΄ΠΎΠ²ΡΡ
ΠΊΠΎΠ»Π΅Ρ Π½Π° ΡΠ°ΠΌΠ΅ ΡΠ΅Π»Π΅ΠΆΠΊΠΈ ΠΏΡΠΈΠ²ΠΎΠ΄ΠΈΡ ΠΊ Π±ΡΡΡΡΠΎΠΌΡ ΠΈΡ
ΠΈΠ·Π½Π°ΡΠΈΠ²Π°Π½ΠΈΡ. ΠΠ»Ρ ΠΏΡΠΎΡ
ΠΎΠ΄Π° Π²Π΅ΡΠ²Π΅ΠΉ ΠΊΠ°Π½Π°ΡΠ° ΠΏΠΎΠ»ΠΈΡΠΏΠ°ΡΡΠ½ΠΎΠ³ΠΎ ΠΏΠΎΠ΄Π²Π΅ΡΠ° Π² Π½Π°ΡΡΠΈΠ»Π΅ ΡΠ΅Π»Π΅ΠΆΠΊΠΈ Π²ΡΠΏΠΎΠ»Π½Π΅Π½Ρ ΠΎΠΊΠ½Π°. ΠΠ° ΡΠΈΡ. 19, Π° ΠΏΠΎΠΊΠ°Π·Π°Π½Π° ΠΌΠ΅ΡΠ°Π»Π»ΠΎΠΊΠΎΠ½ΡΡΡΡΠΊΡΠΈΡ ΡΠ΅Π»Π΅ΠΆΠΊΠΈ ΠΊΡΠ°Π½Π° ΡΡΠ΅Π΄Π½Π΅ΠΉ Π³ΡΡΠ·ΠΎΠΏΠΎΠ΄ΡΠ΅ΠΌΠ½ΠΎΡΡΠΈ Ρ ΠΎΠ΄Π½ΠΈΠΌ ΠΌΠ΅Ρ
Π°Π½ΠΈΠ·ΠΌΠΎΠΌ ΠΏΠΎΠ΄ΡΠ΅ΠΌΠ°, Π² ΠΊΠΎΡΠΎΡΠΎΠΉ Π½Π΅ΡΡΡΠΈΠ΅ Π±Π°Π»ΠΊΠΈ ΡΠ΅Π»Π΅ΠΆΠΊΠΈ Π-ΠΎΠ±ΡΠ°Π·Π½ΠΎΠ³ΠΎ ΡΠ΅ΡΠ΅Π½ΠΈΡ Π²ΡΠΏΠΎΠ»Π½Π΅Π½Ρ Π³Π½ΡΡΡΠΌΠΈ ΠΈΠ· Π»ΠΈΡΡΠ°.
Π Π°ΠΌΡ ΡΠ΅Π»Π΅ΠΆΠ΅ΠΊ (ΡΠΈΡ. 19,6) ΠΊΡΠ°Π½ΠΎΠ² Π±ΠΎΠ»ΡΡΠΎΠΉ Π³ΡΡΠ·ΠΎΠΏΠΎΠ΄ΡΠ΅ΠΌΠ½ΠΎΡΡΠΈ ΡΠΎΠ±ΠΈΡΠ°ΡΡ ΠΈΠ· ΠΎΡΠ΄Π΅Π»ΡΠ½ΡΡ
ΡΠ»Π΅ΠΌΠ΅Π½ΡΠΎΠ², ΡΠΎΠ΅Π΄ΠΈΠ½ΡΠ΅ΠΌΡΡ
ΠΌΠ΅ΠΆΠ΄Ρ ΡΠΎΠ±ΠΎΠΉ ΠΌΠΎΠ½ΡΠ°ΠΆΠ½ΡΠΌΠΈ ΡΡΡΠΊΠ°ΠΌΠΈ; Π΄Π»Ρ ΡΠ΄ΠΎΠ±ΡΡΠ²Π° ΠΎΠ±ΡΠ»ΡΠΆΠΈΠ²Π°Π½ΠΈΡ ΡΠ°ΠΊΠΈΠ΅ ΡΠ΅Π»Π΅ΠΆΠΊΠΈ ΡΠ½Π°Π±ΠΆΠ°ΡΡ Π»Π΅ΡΡΠ½ΠΈΡΠ°ΠΌΠΈ.
Π ΠΈΡ. 19. Π Π°ΠΌΡ ΡΠ΅Π»Π΅ΠΆΠ΅ΠΊ ΠΊΡΠ°Π½ΠΎΠ²
ΠΡΠ°Π½ Π₯ΡΠ·ΡΠ΅Ρ | ΠΡΠ°Π½Ρ ΠΈ ΠΏΠΎΠ΄ΡΠ΅ΠΌΠ½ΠΈΠΊΠΈ ΠΠΏΡΠ΅Π΄Π΅Π»Π΅Π½ΠΈΡ ΠΈ ΡΠ΅ΡΠΌΠΈΠ½Ρ
ΠΡΠΆΠ½Π° ΠΏΠΎΠΌΠΎΡΡ? Π‘Π²ΡΠ·Π°ΡΡΡΡ Ρ Π½Π°ΠΌΠΈ
ΠΠ°ΠΏΡΠΎΡΠΈΡΡ ΡΠ΅Π½Ρ
ABCDEFGHIJLMNOPQRSTUVW
A
ΠΠ΅Π½ΠΎΡΠΌΠ°Π»ΡΠ½ΡΠ΅ ΡΡΠ»ΠΎΠ²ΠΈΡ ΡΠΊΡΠΏΠ»ΡΠ°ΡΠ°ΡΠΈΠΈ —
Π£ΡΠ»ΠΎΠ²ΠΈΡ ΠΎΠΊΡΡΠΆΠ°ΡΡΠ΅ΠΉ ΡΡΠ΅Π΄Ρ, ΠΊΠΎΡΠΎΡΡΠ΅ ΡΠ²Π»ΡΡΡΡΡ Π½Π΅Π±Π»Π°Π³ΠΎΠΏΡΠΈΡΡΠ½ΡΠΌΠΈ, Π²ΡΠ΅Π΄Π½ΡΠΌΠΈ ΠΈΠ»ΠΈ Π²ΡΠ΅Π΄Π½ΡΠΌΠΈ Π΄Π»Ρ ΡΠ°Π±ΠΎΡΡ ΠΏΠΎΠ΄ΡΠ΅ΠΌΠ½ΠΈΠΊΠ°, ΡΠ°ΠΊΠΈΠ΅ ΠΊΠ°ΠΊ
ΠΊΠ°ΠΊ ΡΡΠ΅Π·ΠΌΠ΅ΡΠ½ΠΎ Π²ΡΡΠΎΠΊΠΈΠ΅ ΠΈΠ»ΠΈ Π½ΠΈΠ·ΠΊΠΈΠ΅ ΡΠ΅ΠΌΠΏΠ΅ΡΠ°ΡΡΡΡ ΠΎΠΊΡΡΠΆΠ°ΡΡΠ΅ΠΉ ΡΡΠ΅Π΄Ρ, Π²ΠΎΠ·Π΄Π΅ΠΉΡΡΠ²ΠΈΠ΅ ΠΏΠΎΠ³ΠΎΠ΄Π½ΡΡ
ΡΡΠ»ΠΎΠ²ΠΈΠΉ, ΠΊΠΎΡΡΠΎΠ·ΠΈΠΎΠ½Π½ΡΡ
ΠΏΠ°ΡΠΎΠ², Π·Π°ΠΏΡΠ»Π΅Π½Π½ΠΎΡΡΠΈ ΠΈΠ»ΠΈ Π²Π»Π°Π³ΠΈ
Π½Π°Π³ΡΡΠΆΠ΅Π½Π½ΡΠ΅ Π°ΡΠΌΠΎΡΡΠ΅ΡΡ ΠΈ ΠΎΠΏΠ°ΡΠ½ΡΠ΅ ΠΌΠ΅ΡΡΠ°.
ΠΠ½ΠΊΠ΅ΡΠ½ΡΠΉ Π±ΠΎΠ»Ρ β ΠΠΎΠ»Ρ, Π³ΠΎΠ»ΠΎΠ²ΠΊΠ° ΠΊΠΎΡΠΎΡΠΎΠ³ΠΎ Π·Π°Π΄Π΅Π»Π°Π½Π° Π² ΠΊΠΈΡΠΏΠΈΡΠ½ΡΡ ΠΊΠ»Π°Π΄ΠΊΡ ΠΈΠ»ΠΈ Π±Π΅ΡΠΎΠ½, Π° Π΅Π³ΠΎ ΡΠ΅Π·ΡΠ±ΠΎΠ²Π°Ρ ΡΠ°ΡΡΡ
Π²ΡΡΡΡΠΏΠ°ΡΡΠΈΠ΅, ΡΡΠΎΠ±Ρ ΡΠ΄Π΅ΡΠΆΠΈΠ²Π°ΡΡ ΡΡΡΠ΅Π»ΠΎΠ²ΠΎΠΉ ΠΊΡΠ°Π½ Π½Π° ΠΌΠ΅ΡΡΠ΅.
ΠΠ°Π³ΡΡΠ·ΠΊΠ° Π½Π° Π°Π½ΠΊΠ΅ΡΠ½ΡΠΉ Π±ΠΎΠ»Ρ β Π‘ΡΠΌΠΌΠ°ΡΠ½Π°Ρ ΡΠΈΠ»Π°, ΠΏΡΠΈΠ»ΠΎΠΆΠ΅Π½Π½Π°Ρ ΠΊ ΠΊΠ°ΠΆΠ΄ΠΎΠΌΡ ΠΎΠΏΠΎΡΠ½ΠΎΠΌΡ Π°Π½ΠΊΠ΅ΡΠ½ΠΎΠΌΡ Π±ΠΎΠ»ΡΡ Π² ΡΡΡΠ΅Π»Π΅.
ΠΊΡΠ°Π½; ΠΎΠ±ΡΡΠ½ΠΎ ΠΈΠ·ΠΌΠ΅ΡΡΠ΅ΡΡΡ Π² ΡΡΡΡΡΠ°Ρ
ΡΡΠ½ΡΠΎΠ².
ANSI β ΠΠΌΠ΅ΡΠΈΠΊΠ°Π½ΡΠΊΠΈΠΉ Π½Π°ΡΠΈΠΎΠ½Π°Π»ΡΠ½ΡΠΉ ΠΈΠ½ΡΡΠΈΡΡΡ ΡΡΠ°Π½Π΄Π°ΡΡΠΎΠ²
ΠΠ°Π·Π½Π°ΡΠ΅Π½ β ΠΠΏΡΠ΅Π΄Π΅Π»Π΅Π½Π½ΡΠ΅ ΠΎΠ±ΡΠ·Π°Π½Π½ΠΎΡΡΠΈ Π²ΠΎΠ·Π»ΠΎΠΆΠ΅Π½Ρ ΡΠ°Π±ΠΎΡΠΎΠ΄Π°ΡΠ΅Π»Π΅ΠΌ ΠΈΠ»ΠΈ
ΠΏΡΠ΅Π΄ΡΡΠ°Π²ΠΈΡΠ΅Π»Ρ.
Π Π΅Π»ΡΡ ASCE — Π Π΅Π»ΡΡΡ Π½Π° Π²Π΅ΡΡ Π½ΠΈΡ Ρ ΠΎΠ΄ΠΎΠ²ΡΡ ΠΊΡΠ°Π½Π°Ρ , ΠΏΠΎ ΠΊΠΎΡΠΎΡΡΠΌ Π΄Π²ΠΈΠΆΠ΅ΡΡΡ ΠΌΠΎΡΡ.
ΠΠ²ΡΠΎΠΌΠ°ΡΠΈΡΠ΅ΡΠΊΠΈΠΉ ΠΊΡΠ°Π½ — ΠΡΠ°Π½, ΠΊΠΎΡΠΎΡΡΠΉ ΠΏΡΠΈ Π°ΠΊΡΠΈΠ²Π°ΡΠΈΠΈ ΡΠ°Π±ΠΎΡΠ°Π΅Ρ Π² ΡΠΎΠΎΡΠ²Π΅ΡΡΡΠ²ΠΈΠΈ Ρ Π·Π°Π΄Π°Π½Π½ΡΠΌ ΡΠΈΠΊΠ»ΠΎΠΌ ΠΈΠ»ΠΈ ΡΠΈΠΊΠ»Π°ΠΌΠΈ.
ΠΡΠΏΠΎΠΌΠΎΠ³Π°ΡΠ΅Π»ΡΠ½ΡΠΉ ΠΏΠΎΠ΄ΡΠ΅ΠΌΠ½ΠΈΠΊ β Π΄ΠΎΠΏΠΎΠ»Π½ΠΈΡΠ΅Π»ΡΠ½ΡΠΉ ΠΏΠΎΠ΄ΡΠ΅ΠΌΠ½ΡΠΉ ΠΌΠ΅Ρ
Π°Π½ΠΈΠ·ΠΌ ΠΌΠ΅Π½ΡΡΠ΅ΠΉ Π³ΡΡΠ·ΠΎΠΏΠΎΠ΄ΡΠ΅ΠΌΠ½ΠΎΡΡΠΈ ΠΈ ΠΎΠ±ΡΡΠ½ΠΎ Π±ΠΎΠ»Π΅Π΅ Π²ΡΡΠΎΠΊΠΎΠΉ ΡΠΊΠΎΡΠΎΡΡΠΈ
ΡΠ΅ΠΌ ΠΏΡΠ΅Π΄ΡΡΠΌΠΎΡΡΠ΅Π½ΠΎ Π΄Π»Ρ ΠΎΡΠ½ΠΎΠ²Π½ΠΎΠ³ΠΎ ΠΏΠΎΠ΄ΡΠ΅ΠΌΠ½ΠΈΠΊΠ°.
ΠΡΠ΅Π²Π°Ρ Π½Π°Π³ΡΡΠ·ΠΊΠ° — Π‘ΡΠΌΠΌΠ°ΡΠ½Π°Ρ Π²Π΅ΡΡΠΈΠΊΠ°Π»ΡΠ½Π°Ρ ΡΠΈΠ»Π°, ΠΏΡΠΈΠ»ΠΎΠΆΠ΅Π½Π½Π°Ρ ΠΊ Π½Π΅ΡΡΡΠ΅ΠΉ ΠΊΠΎΠ½ΡΡΡΡΠΊΡΠΈΠΈ ΡΡΡΠ΅Π»ΠΎΠ²ΠΎΠ³ΠΎ ΠΊΡΠ°Π½Π°. Π€ΠΎΡΠΌΡΠ»Π°:
ΠΡΠ΅Π²Π°Ρ Π½Π°Π³ΡΡΠ·ΠΊΠ° = (ΠΎΠ±ΡΠΈΠΉ Π²Π΅Ρ ΠΊΡΠ°Π½Π°) + (ΠΊΠΎΠ½ΡΡΡΡΠΊΡΠΈΠ²Π½ΡΠΉ ΠΊΠΎΡΡΡΠΈΡΠΈΠ΅Π½Ρ x Π²Π΅Ρ Π³ΡΡΠ·Π°)
B
ΠΡΠΎΠ»Π΅Ρ — ΠΡΠΎΡΡΡΠ°Π½ΡΡΠ²ΠΎ ΠΌΠ΅ΠΆΠ΄Ρ ΠΊΠ°ΡΠΊΠ°ΡΠ°ΠΌΠΈ Π·Π΄Π°Π½ΠΈΡ, ΠΈΠ·ΠΌΠ΅ΡΠ΅Π½Π½ΠΎΠ΅ ΠΏΠ°ΡΠ°Π»Π»Π΅Π»ΡΠ½ΠΎ Π³ΡΠ΅Π±Π½Ρ Π·Π΄Π°Π½ΠΈΡ.
ΠΠΎΠ΄ΡΠ΅ΠΌΠ½ΡΠ΅ ΡΡΡΡΠΎΠΉΡΡΠ²Π° ΠΏΠΎΠ΄ ΠΊΡΡΠΊΠΎΠΌ — Π£ΡΡΡΠΎΠΉΡΡΠ²Π°, ΠΊΠΎΡΠΎΡΡΠ΅ ΠΎΠ±ΡΡΠ½ΠΎ Π½Π΅ Π·Π°ΠΏΠ°ΡΠ°ΡΡΡΡ Π½Π° ΠΏΠΎΠ΄ΡΠ΅ΠΌΠ½ΠΎΠΌ ΠΊΠ°Π½Π°ΡΠ΅ ΠΈΠ»ΠΈ ΡΠ΅ΠΏΠΈ,
ΡΠ°ΠΊΠΈΠ΅ ΠΊΠ°ΠΊ ΠΏΡΠΈΡΠ΅ΠΏΠ½ΡΠ΅ ΠΊΠΎΠ²ΡΠΈ, ΠΌΠ°Π³Π½ΠΈΡΡ, Π³ΡΠ΅ΠΉΡΠ΅ΡΡ ΠΈ Π΄ΡΡΠ³ΠΈΠ΅ Π΄ΠΎΠΏΠΎΠ»Π½ΠΈΡΠ΅Π»ΡΠ½ΡΠ΅ ΡΡΡΡΠΎΠΉΡΡΠ²Π°, ΠΈΡΠΏΠΎΠ»ΡΠ·ΡΠ΅ΠΌΡΠ΅ Π΄Π»Ρ ΠΎΠ±Π»Π΅Π³ΡΠ΅Π½ΠΈΡ ΡΠ°Π±ΠΎΡΡ Ρ ΠΎΠΏΡΠ΅Π΄Π΅Π»Π΅Π½Π½ΡΠΌΠΈ ΡΠΈΠΏΠ°ΠΌΠΈ
Π½Π°Π³ΡΡΠ·ΠΊΠΈ. ΠΠ΅Ρ ΡΡΠΈΡ
ΡΡΡΡΠΎΠΉΡΡΠ² ΡΠ»Π΅Π΄ΡΠ΅Ρ ΡΠ°ΡΡΠΌΠ°ΡΡΠΈΠ²Π°ΡΡ ΠΊΠ°ΠΊ ΡΠ°ΡΡΡ ΠΏΠΎΠ΄Π½ΠΈΠΌΠ°Π΅ΠΌΠΎΠ³ΠΎ Π³ΡΡΠ·Π°.
Π‘ΡΡΠ΅Π»Π° — ΠΠΎΡΠΈΠ·ΠΎΠ½ΡΠ°Π»ΡΠ½Π°Ρ Π±Π°Π»ΠΊΠ° (ΡΠ΅Π»ΡΡ), ΠΏΠΎ ΠΊΠΎΡΠΎΡΠΎΠΉ Π΄Π²ΠΈΠΆΠ΅ΡΡΡ ΠΏΠΎΠ΄ΡΠ΅ΠΌΠ½Π°Ρ ΡΠ΅Π»Π΅ΠΆΠΊΠ°. Β«ΠΠΆΠΈΠ±Β»
ΡΡΡΠ΅Π»ΠΎΠ²ΠΎΠΉ ΠΊΡΠ°Π½.
Π¦Π΅Π½ΡΡ ΠΊΡΠΎΠ½ΡΡΠ΅ΠΉΠ½Π° — Π Π°ΡΡΡΠΎΡΠ½ΠΈΠ΅ ΠΎΡ ΡΠ΅Π½ΡΡΠ°Π»ΡΠ½ΠΎΠΉ Π»ΠΈΠ½ΠΈΠΈ Π΄ΠΎ ΡΠ΅Π½ΡΡΠ°Π»ΡΠ½ΠΎΠΉ Π»ΠΈΠ½ΠΈΠΈ ΠΌΠ΅ΠΆΠ΄Ρ Π΄Π²ΡΠΌΡ ΠΎΠΏΠΎΡΠ½ΡΠΌΠΈ ΠΊΡΠΎΠ½ΡΡΠ΅ΠΉΠ½Π°ΠΌΠΈ ΡΡΠ΅Π½Ρ
ΡΡΡΠ°Π½ΠΎΠ²Π»Π΅Π½Π½ΠΎΠ³ΠΎ ΡΡΡΠ΅Π»ΠΎΠ²ΠΎΠ³ΠΎ ΠΊΡΠ°Π½Π° (Ρ.Π΅. ΡΠ°ΡΡΡΠΎΡΠ½ΠΈΠ΅ ΠΌΠ΅ΠΆΠ΄Ρ Π΄Π²ΡΠΌΡ ΡΠΎΡΠΊΠ°ΠΌΠΈ ΠΊΡΠ΅ΠΏΠ»Π΅Π½ΠΈΡ ΠΊ ΡΡΠ΅Π½Π΅).
Π’ΠΎΡΠΌΠΎΠ· — Π£ΡΡΡΠΎΠΉΡΡΠ²ΠΎ Π΄Π»Ρ Π·Π°ΠΌΠ΅Π΄Π»Π΅Π½ΠΈΡ ΠΈΠ»ΠΈ ΠΎΡΡΠ°Π½ΠΎΠ²ΠΊΠΈ Π΄Π²ΠΈΠΆΠ΅Π½ΠΈΡ ΡΡΠ΅Π½ΠΈΠ΅ΠΌ ΠΈΠ»ΠΈ ΡΠ»Π΅ΠΊΡΡΠΈΡΠ΅ΡΠΊΠΈΠΌΠΈ ΡΡΠ΅Π΄ΡΡΠ²Π°ΠΌΠΈ.
Π’ΠΎΡΠΌΠΎΠ· ΠΌΠ΅Ρ
Π°Π½ΠΈΡΠ΅ΡΠΊΠΎΠΉ Π½Π°Π³ΡΡΠ·ΠΊΠΈ — ΠΠ²ΡΠΎΠΌΠ°ΡΠΈΡΠ΅ΡΠΊΠΈΠΉ ΡΡΠΈΠΊΡΠΈΠΎΠ½Π½ΡΠΉ ΡΠΎΡΠΌΠΎΠ· Π² ΠΏΠΎΠ΄ΡΠ΅ΠΌΠ½ΠΈΠΊΠ΅, ΠΊΠΎΡΠΎΡΡΠΉ ΠΈΡΠΏΠΎΠ»ΡΠ·ΡΠ΅ΡΡΡ Π΄Π»Ρ
ΠΊΠΎΠ½ΡΡΠΎΠ»Ρ Π½Π°Π³ΡΡΠ·ΠΊΠΈ Π² Π½Π°ΠΏΡΠ°Π²Π»Π΅Π½ΠΈΠΈ ΠΎΠΏΡΡΠΊΠ°Π½ΠΈΡ.
ΠΡΠΎ ΠΎΠ΄Π½ΠΎΠ½Π°ΠΏΡΠ°Π²Π»Π΅Π½Π½ΠΎΠ΅ ΡΡΡΡΠΎΠΉΡΡΠ²ΠΎ ΡΡΠ΅Π±ΡΠ΅Ρ ΠΊΡΡΡΡΡΠ΅Π³ΠΎ ΠΌΠΎΠΌΠ΅Π½ΡΠ° ΠΎΡ Π΄Π²ΠΈΠ³Π°ΡΠ΅Π»Ρ ΠΈΠ»ΠΈ ΡΡΡΠ½ΠΎΠΉ ΡΠ΅ΠΏΠΈ.
ΠΊΠΎΠ»Π΅ΡΠΎ Π΄Π»Ρ ΠΎΠΏΡΡΠΊΠ°Π½ΠΈΡ Π³ΡΡΠ·Π°, Π½ΠΎ Π½Π΅ ΡΠΎΠ·Π΄Π°Π΅Ρ Π΄ΠΎΠΏΠΎΠ»Π½ΠΈΡΠ΅Π»ΡΠ½ΠΎΠΉ Π½Π°Π³ΡΡΠ·ΠΊΠΈ Π½Π° ΠΌΠΎΡΠΎΡ ΠΈΠ»ΠΈ ΡΡΡΠ½ΠΎΠ΅ ΠΊΠΎΠ»Π΅ΡΠΎ, ΠΊΠΎΠ³Π΄Π° ΠΏΠΎΠ΄ΡΠ΅ΠΌΠ½ΠΈΠΊ
ΠΏΠΎΠ΄ΡΠ΅ΠΌ Π³ΡΡΠ·Π°. ΠΠ΅Ρ
Π°Π½ΠΈΡΠ΅ΡΠΊΠΈΠΉ Π½Π°Π³ΡΡΠ·ΠΎΡΠ½ΡΠΉ ΡΠΎΡΠΌΠΎΠ· ΠΏΡΠ΅Π΄ΡΡΠ°Π²Π»ΡΠ΅Ρ ΡΠΎΠ±ΠΎΠΉ ΡΡΠ΅Π΄ΡΡΠ²ΠΎ ΡΠΎΡΠΌΠΎΠΆΠ΅Π½ΠΈΡ Ρ ΠΌΠ΅Ρ
Π°Π½ΠΈΡΠ΅ΡΠΊΠΈΠΌ ΡΠΏΡΠ°Π²Π»Π΅Π½ΠΈΠ΅ΠΌ.
Π’ΠΎΡΠΌΠΎΠ·Π½ΡΠ΅ ΡΡΠ΅Π΄ΡΡΠ²Π° β ΠΠ΅ΡΠΎΠ΄ ΠΈΠ»ΠΈ ΡΡΡΡΠΎΠΉΡΡΠ²ΠΎ, ΠΈΡΠΏΠΎΠ»ΡΠ·ΡΠ΅ΠΌΡΠ΅ Π΄Π»Ρ ΠΎΡΡΠ°Π½ΠΎΠ²ΠΊΠΈ ΠΈΠ»ΠΈ ΡΠ΄Π΅ΡΠΆΠ°Π½ΠΈΡ Π΄Π²ΠΈΠΆΠ΅Π½ΠΈΡ ΠΏΠΎΠ΄ΡΠ΅ΠΌΠ½ΠΈΠΊΠ° Π·Π° ΡΡΠ΅Ρ ΡΡΠ΅Π½ΠΈΡ ΠΈΠ»ΠΈ
Π²Π»Π°ΡΡΡ.
Π‘ΡΠ΅Π΄ΡΡΠ²Π° ΡΠΎΡΠΌΠΎΠΆΠ΅Π½ΠΈΡ, ΡΠΏΡΠ°Π²Π»Π΅Π½ΠΈΡ — Π‘ΠΏΠΎΡΠΎΠ± ΡΠΏΡΠ°Π²Π»Π΅Π½ΠΈΡ ΡΠΊΠΎΡΠΎΡΡΡΡ ΠΏΠΎΠ΄ΡΠ΅ΠΌΠ° ΠΏΡΡΠ΅ΠΌ ΠΎΡΠ²ΠΎΠ΄Π° ΡΠ½Π΅ΡΠ³ΠΈΠΈ ΠΎΡ Π΄Π²ΠΈΠΆΡΡΠ΅Π³ΠΎΡΡ ΡΠ΅Π»Π°
ΠΈΠ»ΠΈ ΠΏΡΡΠ΅ΠΌ ΠΏΠ΅ΡΠ΅Π΄Π°ΡΠΈ ΡΠ½Π΅ΡΠ³ΠΈΠΈ Π² ΠΏΡΠΎΡΠΈΠ²ΠΎΠΏΠΎΠ»ΠΎΠΆΠ½ΠΎΠΌ Π½Π°ΠΏΡΠ°Π²Π»Π΅Π½ΠΈΠΈ.
Π‘ΡΠ΅Π΄ΡΡΠ²Π° ΡΠΎΡΠΌΠΎΠΆΠ΅Π½ΠΈΡ, ΠΏΡΠΎΡΠΈΠ²ΠΎΠ΄Π΅ΠΉΡΡΠ²ΡΡΡΠΈΠ΅ ΠΊΡΡΡΡΡΠ΅ΠΌΡ ΠΌΠΎΠΌΠ΅Π½ΡΡ (Π·Π°Π³Π»ΡΡΠΊΠΈ)
ΡΠ΅Π²Π΅ΡΡΠΈΠ²Π½ΡΠΉ, ΡΡΠΎΠ±Ρ ΡΠ°Π·Π²ΠΈΠ²Π°ΡΡ ΠΊΡΡΡΡΡΠΈΠΉ ΠΌΠΎΠΌΠ΅Π½Ρ Π² Π½Π°ΠΏΡΠ°Π²Π»Π΅Π½ΠΈΠΈ, ΠΏΡΠΎΡΠΈΠ²ΠΎΠΏΠΎΠ»ΠΎΠΆΠ½ΠΎΠΌ Π²ΡΠ°ΡΠ΅Π½ΠΈΡ Π΄Π²ΠΈΠ³Π°ΡΠ΅Π»Ρ.
Π’ΠΎΡΠΌΠΎΠ·Π½ΡΠ΅ ΡΡΠ΅Π΄ΡΡΠ²Π°, Π΄ΠΈΠ½Π°ΠΌΠΈΡΠ΅ΡΠΊΠΈΠ΅ — ΠΠ΅ΡΠΎΠ΄ ΡΠΏΡΠ°Π²Π»Π΅Π½ΠΈΡ ΡΠΊΠΎΡΠΎΡΡΡΡ ΠΏΠΎΠ΄ΡΠ΅ΠΌΠ° Ρ ΠΈΡΠΏΠΎΠ»ΡΠ·ΠΎΠ²Π°Π½ΠΈΠ΅ΠΌ Π΄Π²ΠΈΠ³Π°ΡΠ΅Π»Ρ Π² ΠΊΠ°ΡΠ΅ΡΡΠ²Π΅ Π³Π΅Π½Π΅ΡΠ°ΡΠΎΡΠ° Ρ
ΡΠ½Π΅ΡΠ³ΠΈΡ ΡΠ°ΡΡΠ΅ΠΈΠ²Π°Π΅ΡΡΡ Π½Π° ΡΠΎΠΏΡΠΎΡΠΈΠ²Π»Π΅Π½ΠΈΠΈ.
Π’ΠΎΡΠΌΠΎΠ·Π½ΡΠ΅ ΡΡΠ΅Π΄ΡΡΠ²Π°, Π²ΠΈΡ
ΡΠ΅Π²ΡΠ΅ ΡΠΎΠΊΠΈ — Π‘ΠΏΠΎΡΠΎΠ± ΡΠΏΡΠ°Π²Π»Π΅Π½ΠΈΡ ΠΈΠ»ΠΈ ΡΠ½ΠΈΠΆΠ΅Π½ΠΈΡ ΡΠΊΠΎΡΠΎΡΡΠΈ ΠΏΠΎΠ΄ΡΠ΅ΠΌΠ° Ρ ΠΏΠΎΠΌΠΎΡΡΡ ΡΠ½Π΅ΡΠ³ΠΈΠΈ
ΠΈΠ½Π΄ΡΠΊΡΠΈΠΎΠ½Π½ΡΠΉ Π½Π°Π³ΡΡΠ·ΠΎΡΠ½ΡΠΉ ΡΠΎΡΠΌΠΎΠ·.
Π’ΠΎΡΠΌΠΎΠ·Π½ΡΠ΅ ΡΡΠ΅Π΄ΡΡΠ²Π° ΠΌΠ΅Ρ Π°Π½ΠΈΡΠ΅ΡΠΊΠΈΠ΅ — Π‘ΠΏΠΎΡΠΎΠ± ΡΠΏΡΠ°Π²Π»Π΅Π½ΠΈΡ ΠΈΠ»ΠΈ ΡΠ½ΠΈΠΆΠ΅Π½ΠΈΡ ΡΠΊΠΎΡΠΎΡΡΠΈ ΠΏΠΎΠ΄ΡΠ΅ΠΌΠ° Π·Π° ΡΡΠ΅Ρ ΡΡΠ΅Π½ΠΈΡ.
Π’ΠΎΡΠΌΠΎΠ·Π½ΡΠ΅ ΡΡΠ΅Π΄ΡΡΠ²Π° ΠΏΠ½Π΅Π²ΠΌΠ°ΡΠΈΡΠ΅ΡΠΊΠΈΠ΅ — Π‘ΠΏΠΎΡΠΎΠ± ΡΠΏΡΠ°Π²Π»Π΅Π½ΠΈΡ ΠΈΠ»ΠΈ ΡΠ½ΠΈΠΆΠ΅Π½ΠΈΡ ΡΠΊΠΎΡΠΎΡΡΠΈ ΠΏΠΎΠ΄ΡΠ΅ΠΌΠ° Ρ ΠΏΠΎΠΌΠΎΡΡΡ ΡΠΆΠ°ΡΠΎΠ³ΠΎ
Π³Π°Π·.
Π’ΠΎΡΠΌΠΎΠ·Π½ΡΠ΅ ΡΡΠ΅Π΄ΡΡΠ²Π°, ΡΠ΅Π³Π΅Π½Π΅ΡΠ°ΡΠΈΠ²Π½ΡΠ΅ — Π‘ΠΏΠΎΡΠΎΠ± ΡΠΏΡΠ°Π²Π»Π΅Π½ΠΈΡ ΡΠΊΠΎΡΠΎΡΡΡΡ ΠΏΠΎΠ΄ΡΠ΅ΠΌΠ°, ΠΏΡΠΈ ΠΊΠΎΡΠΎΡΠΎΠΌ ΡΠ»Π΅ΠΊΡΡΠΈΡΠ΅ΡΠΊΠ°Ρ ΡΠ½Π΅ΡΠ³ΠΈΡ
Π³Π΅Π½Π΅ΡΠΈΡΡΠ΅ΠΌΠ°Ρ Π΄Π²ΠΈΠ³Π°ΡΠ΅Π»Π΅ΠΌ, ΠΏΠΎΠ΄Π°Π΅ΡΡΡ ΠΎΠ±ΡΠ°ΡΠ½ΠΎ Π² ΡΠ½Π΅ΡΠ³ΠΎΡΠΈΡΡΠ΅ΠΌΡ.
ΠΠ»ΠΎΡΠ½ΡΠ΅ Π½Π°Π³ΡΡΠ·ΠΊΠΈ — ΠΠ΅ΠΉΡΡΠ²ΠΈΠ΅, ΠΎΠ±Π»Π΅Π³ΡΠ°ΡΡΠ΅Π΅ ΡΠ΄Π°Π»Π΅Π½ΠΈΠ΅ ΡΡΡΠΎΠΏ ΠΈΠ»ΠΈ Π΄ΡΡΠ³ΠΈΡ
ΠΏΠΎΠ΄ΡΠ΅ΠΌΠ½ΡΡ
ΡΡΡΡΠΎΠΉΡΡΠ² ΠΈΠ·-ΠΏΠΎΠ΄
Π½Π°Π³ΡΡΠ·ΠΊΠ°, ΡΠΎΠ·Π΄Π°Π²Π°Π΅ΠΌΠ°Ρ ΡΠ°Π·ΠΌΠ΅ΡΠ΅Π½ΠΈΠ΅ΠΌ Π³ΡΡΠ·Π° Π½Π° Π΄Π΅ΡΠ΅Π²ΡΠ½Π½ΡΡ
, ΠΌΠ΅ΡΠ°Π»Π»ΠΈΡΠ΅ΡΠΊΠΈΡ
ΠΈΠ»ΠΈ Π΄ΡΡΠ³ΠΈΡ
ΠΏΡΠΎΠΊΠ»Π°Π΄ΠΊΠ°Ρ
ΠΌΠ΅ΠΆΠ΄Ρ ΠΏΠΎΠ»ΠΎΠΌ ΠΈ Π³ΡΡΠ·ΠΎΠΌ.
ΠΠΎΡΡ — ΠΡΠ½ΠΎΠ²Π½Π°Ρ Ρ
ΠΎΠ΄ΠΎΠ²Π°Ρ ΠΊΠΎΠ½ΡΡΡΡΠΊΡΠΈΡ ΠΊΡΠ°Π½Π°, ΠΏΠ΅ΡΠ΅ΠΊΡΡΠ²Π°ΡΡΠ°Ρ ΡΠΈΡΠΈΠ½Ρ ΠΏΡΠΎΠ»Π΅ΡΠ°. ΠΠΎΡΡ
ΡΠΎΡΡΠΎΠΈΡ ΠΈΠ· Π΄Π²ΡΡ
ΠΊΠΎΠ½ΡΠ΅Π²ΡΡ
ΡΠ΅Π»Π΅ΠΆΠ΅ΠΊ ΠΈ ΠΎΠ΄Π½ΠΎΠΉ ΠΈΠ»ΠΈ Π΄Π²ΡΡ
ΠΌΠΎΡΡΠΎΠ²ΡΡ
Π±Π°Π»ΠΎΠΊ.
ΠΠ°Π»ΠΊΠ°(ΠΈ) ΠΌΠΎΡΡΠ° — ΠΡΠ½ΠΎΠ²Π½Π°Ρ Π³ΠΎΡΠΈΠ·ΠΎΠ½ΡΠ°Π»ΡΠ½Π°Ρ Π±Π°Π»ΠΊΠ° ΠΊΡΠ°Π½ΠΎΠ²ΠΎΠ³ΠΎ ΠΌΠΎΡΡΠ°, ΠΏΠΎΠ΄Π΄Π΅ΡΠΆΠΈΠ²Π°ΡΡΠ°Ρ ΡΠ΅Π»Π΅ΠΆΠΊΡ ΠΈ
ΠΏΠΎΠ΄Π΄Π΅ΡΠΆΠΈΠ²Π°Π΅ΡΡΡ ΠΊΠΎΠ½ΡΠ΅Π²ΡΠΌΠΈ ΡΠ΅Π»Π΅ΠΆΠΊΠ°ΠΌΠΈ.
ΠΠ΅ΡΠ΅ΠΌΠ΅ΡΠ΅Π½ΠΈΠ΅ ΠΌΠΎΡΡΠ° — ΠΠ²ΠΈΠΆΠ΅Π½ΠΈΠ΅ ΠΊΡΠ°Π½Π° Π² Π½Π°ΠΏΡΠ°Π²Π»Π΅Π½ΠΈΠΈ, ΠΏΠ°ΡΠ°Π»Π»Π΅Π»ΡΠ½ΠΎΠΌ ΠΏΠΎΠ΄ΠΊΡΠ°Π½ΠΎΠ²ΠΎΠΌΡ ΠΏΡΡΠΈ.
Π‘ΠΊΠΎΡΠΎΡΡΠΈ ΠΌΠΎΡΡΠ°, ΡΠ΅Π»Π΅ΠΆΠΊΠΈ ΠΈ Π»ΠΈΡΡΠ° — Π‘ΠΊΠΎΡΠΎΡΡΡ, Ρ ΠΊΠΎΡΠΎΡΠΎΠΉ Π΄Π²ΠΈΠΆΠ΅ΡΡΡ ΠΌΠΎΡΡ ΠΈΠ»ΠΈ ΡΠ΅Π»Π΅ΠΆΠΊΠ° ΠΈΠ»ΠΈ ΡΠΊΠΎΡΠΎΡΡΡ
ΠΏΠΎΠ΄ΡΠ΅ΠΌΠ½ΠΈΠΊΠΈ, ΠΎΠ±ΡΡΠ½ΠΎ Π² ΡΡΡΠ°Ρ
Π² ΠΌΠΈΠ½ΡΡΡ ΠΈΠ»ΠΈ FPM.
ΠΡΠΎΡ ΠΎΠ΄ Π·Π΄Π°Π½ΠΈΡ — ΠΡΠΎΡΡΡΠ°Π½ΡΡΠ²ΠΎ, ΠΎΠΏΡΠ΅Π΄Π΅Π»ΡΠ΅ΠΌΠΎΠ΅ Π΄Π»ΠΈΠ½ΠΎΠΉ Π·Π΄Π°Π½ΠΈΡ ΠΈ ΡΠ°ΡΡΡΠΎΡΠ½ΠΈΠ΅ΠΌ ΠΌΠ΅ΠΆΠ΄Ρ ΠΊΠΎΠ»ΠΎΠ½Π½Π°ΠΌΠΈ Π·Π΄Π°Π½ΠΈΡ.
ΠΠ°ΠΌΠΏΠ΅Ρ [Π±ΡΡΠ΅Ρ] — ΠΠ½Π΅ΡΠ³ΠΎΠΏΠΎΠ³Π»ΠΎΡΠ°ΡΡΠ΅Π΅ ΡΡΡΡΠΎΠΉΡΡΠ²ΠΎ Π΄Π»Ρ ΡΠΌΠ΅Π½ΡΡΠ΅Π½ΠΈΡ ΡΠ΄Π°ΡΠ° ΠΏΡΠΈ Π΄Π²ΠΈΠΆΠ΅Π½ΠΈΠΈ ΠΊΡΠ°Π½Π° ΠΈΠ»ΠΈ
ΡΠ΅Π»Π΅ΠΆΠΊΠ° Π΄ΠΎΡΡΠΈΠ³Π°Π΅Ρ ΠΊΠΎΠ½ΡΠ° ΡΠ°Π·ΡΠ΅ΡΠ΅Π½Π½ΠΎΠ³ΠΎ ΠΏΡΡΠΈ; ΠΈΠ»ΠΈ ΠΊΠΎΠ³Π΄Π° Π΄Π²Π° Π΄Π²ΠΈΠΆΡΡΠΈΡ
ΡΡ ΠΊΡΠ°Π½Π° ΠΈΠ»ΠΈ ΡΠ΅Π»Π΅ΠΆΠΊΠΈ ΡΠΎΠΏΡΠΈΠΊΠ°ΡΠ°ΡΡΡΡ.
C
ΠΠ°Π±ΠΈΠ½Π° — ΠΠ°Π±ΠΈΠ½Π° ΠΎΠΏΠ΅ΡΠ°ΡΠΎΡΠ° Π½Π° ΠΊΡΠ°Π½Π΅
ΠΡΠ°Π½ Ρ ΠΊΠ°Π±ΠΈΠ½ΠΎΠΉ — ΠΡΠ°Π½, ΡΠΏΡΠ°Π²Π»ΡΠ΅ΠΌΡΠΉ ΠΎΠΏΠ΅ΡΠ°ΡΠΎΡΠΎΠΌ Π² ΠΊΠ°Π±ΠΈΠ½Π΅, ΡΠ°ΡΠΏΠΎΠ»ΠΎΠΆΠ΅Π½Π½ΠΎΠΉ Π½Π° ΠΌΠΎΡΡΡ ΠΈΠ»ΠΈ
ΡΠ΅Π»Π΅ΠΆΠΊΠ°.
ΠΡΠ°Π½ ΠΊΠΎΠ·Π»ΠΎΠ²ΠΎΠΉ ΠΊΠΎΠ½ΡΠΎΠ»ΡΠ½ΡΠΉ — ΠΠΎΠ·Π»ΠΎΠ²ΠΎΠΉ ΠΈΠ»ΠΈ ΠΏΠΎΠ»ΡΠΊΠΎΠ·Π»ΠΎΠ²ΠΎΠΉ ΠΊΡΠ°Π½, Π² ΠΊΠΎΡΠΎΡΠΎΠΌ ΠΌΠΎΡΡΠΎΠ²ΡΠ΅ Π±Π°Π»ΠΊΠΈ ΠΈΠ»ΠΈ ΡΠ΅ΡΠΌΡ
Π²ΡΡ
ΠΎΠ΄ΠΈΡΡ Π·Π° ΠΏΡΠ΅Π΄Π΅Π»Ρ ΠΏΠΎΠ΄ΠΊΡΠ°Π½ΠΎΠ²ΠΎΠ³ΠΎ ΠΏΡΡΠΈ Π² ΠΏΠΎΠΏΠ΅ΡΠ΅ΡΠ½ΠΎΠΌ Π½Π°ΠΏΡΠ°Π²Π»Π΅Π½ΠΈΠΈ Ρ ΠΎΠ΄Π½ΠΎΠΉ ΠΈΠ»ΠΈ ΠΎΠ±Π΅ΠΈΡ
ΡΡΠΎΡΠΎΠ½.
ΠΡΡΠ·ΠΎΠΏΠΎΠ΄ΡΠ΅ΠΌΠ½ΠΎΡΡΡ — ΠΠ°ΠΊΡΠΈΠΌΠ°Π»ΡΠ½ΡΠΉ Π²Π΅Ρ Π² ΡΠΎΠ½Π½Π°Ρ , ΠΊΠΎΡΠΎΡΡΠΉ Π΄ΠΎΠ»ΠΆΠ΅Π½ ΠΏΠΎΠ΄Π½ΡΡΡ ΠΊΡΠ°Π½.
ΠΠ°ΠΏΡΠ°Π²Π»ΡΡΡΠ°Ρ ΡΠ΅ΠΏΠΈ β ΡΡΠ΅Π΄ΡΡΠ²ΠΎ Π΄Π»Ρ Π½Π°ΠΏΡΠ°Π²Π»Π΅Π½ΠΈΡ Π³ΡΡΠ·ΠΎΠΏΠΎΠ΄ΡΠ΅ΠΌΠ½ΠΎΠΉ ΡΠ΅ΠΏΠΈ ΠΊ Π³ΡΡΠ·ΠΎΠ²ΠΎΠΉ Π·Π²Π΅Π·Π΄ΠΎΡΠΊΠ΅.
Π¦Π΅ΠΏΠ½Π°Ρ ΡΠ°Π»Ρ β ΡΠ°Π»ΠΈ, ΠΈΡΠΏΠΎΠ»ΡΠ·ΡΠ΅ΠΌΡΠ΅ Π΄Π»Ρ ΠΌΠ°Π»ΠΎΠΉ Π³ΡΡΠ·ΠΎΠΏΠΎΠ΄ΡΠ΅ΠΌΠ½ΠΎΡΡΠΈ, Π±ΠΎΠ»Π΅Π΅ Π»Π΅Π³ΠΊΠΈΡ
ΡΡΠ»ΠΎΠ²ΠΈΠΉ ΡΠΊΡΠΏΠ»ΡΠ°ΡΠ°ΡΠΈΠΈ ΠΈ Π΄Π»Ρ ΠΏΡΠΎΠ΅ΠΊΡΠΎΠ² Π²
ΠΊΠ°ΠΊΠ°Ρ ΡΡΠΎΠΈΠΌΠΎΡΡΡ ΡΠ²Π»ΡΠ΅ΡΡΡ ΠΎΡΠ½ΠΎΠ²Π½ΡΠΌ ΡΠ΅ΡΠ°ΡΡΠΈΠΌ ΡΠ°ΠΊΡΠΎΡΠΎΠΌ.
ΠΠ°Π·ΠΎΡ — Π Π°ΡΡΡΠΎΡΠ½ΠΈΠ΅ ΠΎΡ Π»ΡΠ±ΠΎΠΉ ΡΠ°ΡΡΠΈ ΠΊΡΠ°Π½Π° Π΄ΠΎ ΡΠΎΡΠΊΠΈ Π±Π»ΠΈΠΆΠ°ΠΉΡΠ΅Π³ΠΎ ΠΏΡΠ΅ΠΏΡΡΡΡΠ²ΠΈΡ.
ΠΠΎΠ»Π»Π΅ΠΊΡΠΎΡΡ — ΠΠΎΠ½ΡΠ°ΠΊΡΠ½ΡΠ΅ ΡΡΡΡΠΎΠΉΡΡΠ²Π° Π΄Π»Ρ ΡΠ±ΠΎΡΠ° ΡΠΎΠΊΠ° Ρ ΠΏΡΠΎΠ²ΠΎΠ΄Π½ΠΈΠΊΠΎΠ² ΠΠΠ. ΠΡΠ½ΠΎΠ²Π½Π°Ρ Π»ΠΈΠ½ΠΈΡ
ΠΊΠΎΠ»Π»Π΅ΠΊΡΠΎΡΡ ΡΡΡΠ°Π½ΠΎΠ²Π»Π΅Π½Ρ Π½Π° ΠΌΠΎΡΡΡ Π΄Π»Ρ ΠΏΠ΅ΡΠ΅Π΄Π°ΡΠΈ ΡΠ»Π΅ΠΊΡΡΠΈΡΠ΅ΡΠΊΠΎΠ³ΠΎ ΡΠΎΠΊΠ° ΠΎΡ ΠΏΡΠΎΠ²ΠΎΠ΄Π½ΠΈΠΊΠΎΠ² Π²Π·Π»Π΅ΡΠ½ΠΎ-ΠΏΠΎΡΠ°Π΄ΠΎΡΠ½ΠΎΠΉ ΠΏΠΎΠ»ΠΎΡΡ.
ΠΡΠΎΠ²ΠΎΠ΄Π½ΠΈΠΊΠΈ ΠΌΠΎΡΡΠΎΠ²ΡΠ΅ — ΠΠ»Π΅ΠΊΡΡΠΈΡΠ΅ΡΠΊΠΈΠ΅ ΠΏΡΠΎΠ²ΠΎΠ΄Π½ΠΈΠΊΠΈ, ΡΠ°ΡΠΏΠΎΠ»ΠΎΠΆΠ΅Π½Π½ΡΠ΅ Π²Π΄ΠΎΠ»Ρ ΠΊΠΎΠ½ΡΡΡΡΠΊΡΠΈΠΈ ΠΌΠΎΡΡΠ° ΠΊΡΠ°Π½Π°
Π΄Π»Ρ ΠΏΠΎΠ΄Π°ΡΠΈ ΠΏΠΈΡΠ°Π½ΠΈΡ Π½Π° ΡΠ΅Π»Π΅ΠΆΠΊΡ.
ΠΡΠΎΠ²ΠΎΠ΄Π½ΠΈΠΊΠΈ ΠΏΠΎΠ΄ΠΊΡΠ°Π½ΠΎΠ²ΠΎΠ³ΠΎ ΠΏΡΡΠΈ [ΠΎΡΠ½ΠΎΠ²Π½ΡΠ΅] — ΡΠ»Π΅ΠΊΡΡΠΈΡΠ΅ΡΠΊΠΈΠ΅ ΠΏΡΠΎΠ²ΠΎΠ΄Π½ΠΈΠΊΠΈ, ΡΠ°ΡΠΏΠΎΠ»ΠΎΠΆΠ΅Π½Π½ΡΠ΅ Π²Π΄ΠΎΠ»Ρ ΠΏΠΎΠ΄ΠΊΡΠ°Π½ΠΎΠ²ΠΎΠ³ΠΎ ΠΏΡΡΠΈ ΠΊ
ΠΎΠ±Π΅ΡΠΏΠ΅ΡΠΈΡΡ ΠΏΠΈΡΠ°Π½ΠΈΠ΅ ΠΊΡΠ°Π½Π°.
ΠΠΎΠ΄Π²Π΅ΡΠΊΠ° ΡΠΏΡΠ°Π²Π»Π΅Π½ΠΈΡ — Π£ΡΡΡΠΎΠΉΡΡΠ²ΠΎ, ΠΊΠΎΡΠΎΡΠΎΠ΅ Π΄Π°Π΅Ρ ΠΎΠΏΠ΅ΡΠ°ΡΠΎΡΡ ΡΠΎΡΠ½ΡΠΉ ΠΊΠΎΠ½ΡΡΠΎΠ»Ρ Π½Π°Π΄ Π΄Π²ΠΈΠΆΠ΅Π½ΠΈΡΠΌΠΈ
ΠΊΡΠ°Π½.
ΠΠΎΠ½ΡΡΠΎΠ»Π»Π΅Ρ Ρ ΠΏΡΡΠΆΠΈΠ½Π½ΡΠΌ Π²ΠΎΠ·Π²ΡΠ°ΡΠΎΠΌ — ΠΊΠΎΠ½ΡΡΠΎΠ»Π»Π΅Ρ, ΠΊΠΎΡΠΎΡΡΠΉ ΠΏΡΠΈ ΠΎΡΠΏΡΡΠΊΠ°Π½ΠΈΠΈ Π°Π²ΡΠΎΠΌΠ°ΡΠΈΡΠ΅ΡΠΊΠΈ Π²ΠΎΠ·Π²ΡΠ°ΡΠ°Π΅ΡΡΡ Π² ΠΈΡΡ
ΠΎΠ΄Π½ΠΎΠ΅ ΠΏΠΎΠ»ΠΎΠΆΠ΅Π½ΠΈΠ΅.
Π½Π΅ΠΉΡΡΠ°Π»ΡΠ½ΠΎΠ΅ ΠΏΠΎΠ»ΠΎΠΆΠ΅Π½ΠΈΠ΅.
ΠΏΡΠΎΡΠΈΠ²ΠΎΠ΄Π΅ΠΉΡΡΠ²ΠΈΠ΅ ΠΊΡΡΡΡΡΠ΅ΠΌΡ ΠΌΠΎΠΌΠ΅Π½ΡΡ
ΠΊΡΡΡΡΡΠΈΠΉ ΠΌΠΎΠΌΠ΅Π½Ρ Π² ΠΏΡΠΎΡΠΈΠ²ΠΎΠΏΠΎΠ»ΠΎΠΆΠ½ΠΎΠΌ Π½Π°ΠΏΡΠ°Π²Π»Π΅Π½ΠΈΠΈ.
ΠΡΠ°Π½ — ΠΠ°ΡΠΈΠ½Π° Π΄Π»Ρ ΠΏΠΎΠ΄ΡΠ΅ΠΌΠ° ΠΈ ΠΎΠΏΡΡΠΊΠ°Π½ΠΈΡ Π³ΡΡΠ·Π° ΠΈ ΠΏΠ΅ΡΠ΅ΠΌΠ΅ΡΠ΅Π½ΠΈΡ Π΅Π³ΠΎ ΠΏΠΎ Π³ΠΎΡΠΈΠ·ΠΎΠ½ΡΠ°Π»ΠΈ Ρ ΠΏΠΎΠΌΠΎΡΡΡ ΠΏΠΎΠ΄ΡΠ΅ΠΌΠ½ΠΎΠ³ΠΎ ΠΌΠ΅Ρ
Π°Π½ΠΈΠ·ΠΌΠ°
Π½Π΅ΠΎΡΡΠ΅ΠΌΠ»Π΅ΠΌΠ°Ρ ΡΠ°ΡΡΡ ΠΌΠ°ΡΠΈΠ½Ρ. ΠΡΠ°Π½Ρ, ΡΡΠ°ΡΠΈΠΎΠ½Π°ΡΠ½ΡΠ΅ ΠΈΠ»ΠΈ ΠΌΠΎΠ±ΠΈΠ»ΡΠ½ΡΠ΅, ΠΏΡΠΈΠ²ΠΎΠ΄ΡΡΡΡ Π² Π΄Π²ΠΈΠΆΠ΅Π½ΠΈΠ΅ Π²ΡΡΡΠ½ΡΡ ΠΈΠ»ΠΈ Ρ ΠΏΠΎΠΌΠΎΡΡΡ ΡΠ½Π΅ΡΠ³ΠΈΠΈ.
ΠΡΠ°Π½ΠΎΠ²ΡΠΉ ΠΏΡΠΎΡ
ΠΎΠ΄ — Π§Π°ΡΡΡ ΠΏΡΠΎΡ
ΠΎΠ΄Π° Π·Π΄Π°Π½ΠΈΡ, Π² ΠΊΠΎΡΠΎΡΠΎΠΉ ΡΠ°Π±ΠΎΡΠ°Π΅Ρ ΠΊΡΠ°Π½, ΠΎΠΏΡΠ΅Π΄Π΅Π»ΡΠ΅ΠΌΠ°Ρ ΠΊΡΠ°Π½ΠΎΠΌ
ΠΏΡΠΎΠ»Π΅Ρ ΠΈ Π½Π΅ΠΏΡΠ΅ΡΡΠ²Π½Π°Ρ Π΄Π»ΠΈΠ½Π° ΠΏΠΎΠ΄ΠΊΡΠ°Π½ΠΎΠ²ΠΎΠ³ΠΎ ΠΏΡΡΠΈ.
ΠΡΠ°Π½ΠΎΠ²Π°Ρ(ΡΠ΅) Π±Π°Π»ΠΊΠ°(ΠΈ) — Π‘ΠΌ. ΠΠΎΡΡΠΎΠ²Π°Ρ(ΡΠ΅) Π±Π°Π»ΠΊΠ°(ΠΈ).
ΠΡΠΎΠ»Π΅Ρ ΠΊΡΠ°Π½Π° — Π Π°ΡΡΡΠΎΡΠ½ΠΈΠ΅ ΠΏΠΎ Π³ΠΎΡΠΈΠ·ΠΎΠ½ΡΠ°Π»ΠΈ ΠΎΡ ΡΠ΅Π½ΡΡΠ° Π΄ΠΎ ΡΠ΅Π½ΡΡΠ° ΠΎΠ±Π΅ΠΈΡ Π±Π°Π»ΠΎΠΊ ΠΏΠΎΠ΄ΠΊΡΠ°Π½ΠΎΠ²ΠΎΠ³ΠΎ ΠΏΡΡΠΈ.
D
ΠΡΠΎΠ³ΠΈΠ± — Π Π°Π·Π½ΠΈΡΠ° Π²ΡΡΠΎΡ Π½Π° ΠΊΠΎΠ½ΡΠ΅ ΡΡΡΠ΅Π»Ρ ΠΌΠ΅ΠΆΠ΄Ρ Π½Π΅Π½Π°Π³ΡΡΠΆΠ΅Π½Π½ΡΠΌ ΡΡΡΠ΅Π»ΠΎΠ²ΡΠΌ ΠΊΡΠ°Π½ΠΎΠΌ ΠΈ
ΠΏΠΎΠ»Π½ΠΎΡΡΡΡ Π·Π°Π³ΡΡΠΆΠ΅Π½Π½ΡΠΉ ΡΡΡΠ΅Π»ΠΎΠ²ΠΎΠΉ ΠΊΡΠ°Π½; ΠΎΠ±ΡΡΠ½ΠΎ ΠΈΠ·ΠΌΠ΅ΡΡΠ΅ΡΡΡ Π² Π΄ΡΠΉΠΌΠ°Ρ
.
ΠΠ°ΡΠΈ ΠΊΠΎΠ½ΡΡΡΡΠΊΡΠΈΠΈ ΡΡΡΠ΅Π»ΠΎΠ²ΡΡ
ΠΊΡΠ°Π½ΠΎΠ², ΠΊΠ°ΠΊ ΠΏΡΠ°Π²ΠΈΠ»ΠΎ, ΠΈΠΌΠ΅ΡΡ Π±ΠΎΠ»Π΅Π΅ ΡΡΡΠΎΠ³ΠΈΠ΅ ΠΊΡΠΈΡΠ΅ΡΠΈΠΈ ΠΏΡΠΎΠ³ΠΈΠ±Π°.
ΡΠ΅ΠΌ Π΄ΡΡΠ³ΠΈΠ΅ Π² ΠΎΡΡΠ°ΡΠ»ΠΈ.
ΠΠ°Π·Π½Π°ΡΠ΅Π½Π½ΠΎΠ΅ Π»ΠΈΡΠΎ — ΠΠΈΡΠΎ, Π²ΡΠ±ΡΠ°Π½Π½ΠΎΠ΅ ΠΈΠ»ΠΈ Π½Π°Π·Π½Π°ΡΠ΅Π½Π½ΠΎΠ΅ ΡΠ°Π±ΠΎΡΠΎΠ΄Π°ΡΠ΅Π»Π΅ΠΌ ΠΈΠ»ΠΈ
ΠΏΡΠ΅Π΄ΡΡΠ°Π²ΠΈΡΠ΅Π»Ρ ΠΊΠ°ΠΊ ΠΊΠΎΠΌΠΏΠ΅ΡΠ΅Π½ΡΠ½ΠΎΠ³ΠΎ Π΄Π»Ρ Π²ΡΠΏΠΎΠ»Π½Π΅Π½ΠΈΡ ΠΊΠΎΠ½ΠΊΡΠ΅ΡΠ½ΡΡ
ΠΎΠ±ΡΠ·Π°Π½Π½ΠΎΡΡΠ΅ΠΉ.
ΠΠ²ΡΡ
Π±Π°Π»ΠΎΡΠ½ΡΠΉ — ΠΠΎΡΡΠΎΠ²ΠΎΠΉ ΠΊΡΠ°Π½, ΡΠΎΡΡΠΎΡΡΠΈΠΉ ΠΈΠ· Π΄Π²ΡΡ
ΠΊΠΎΠ½ΡΠ΅Π²ΡΡ
ΡΠ΅Π»Π΅ΠΆΠ΅ΠΊ, Π΄Π²ΡΡ
ΠΌΠΎΡΡΠΎΠ²ΡΡ
Π±Π°Π»ΠΎΠΊ ΠΈ ΡΠ΅Π»Π΅ΠΆΠΊΠΈ
ΠΏΠΎΠ΄ΡΠ΅ΠΌΠ½ΡΠΉ Π°Π³ΡΠ΅Π³Π°Ρ. Π’Π΅Π»Π΅ΠΆΠΊΠ° Π΄Π²ΠΈΠΆΠ΅ΡΡΡ ΠΏΠΎ ΡΠ΅Π»ΡΡΠ°ΠΌ ΠΏΠΎ Π±Π°Π»ΠΊΠ°ΠΌ ΠΌΠΎΡΡΠ°.
Π€ΡΠΈΠΊΡΠΈΠΎΠ½Π½ΡΠΉ ΡΠΎΡΠΌΠΎΠ· — Π’ΠΎΡΠΌΠΎΠ·, ΠΎΠ±Π΅ΡΠΏΠ΅ΡΠΈΠ²Π°ΡΡΠΈΠΉ ΡΠΎΡΠΌΠΎΠ·ΡΡΠ΅Π΅ ΡΡΠΈΠ»ΠΈΠ΅ Π±Π΅Π· Π²Π½Π΅ΡΠ½Π΅Π³ΠΎ ΡΠΏΡΠ°Π²Π»Π΅Π½ΠΈΡ.
Π’ΠΎΡΠΊΠ° Π΄ΡΠ΅ΠΉΡΠ° — Π’ΠΎΡΠΊΠ° Π½Π° ΠΊΠΎΠ½ΡΡΠΎΠ»Π»Π΅ΡΠ΅ Π΄Π²ΠΈΠΆΠ΅Π½ΠΈΡ, ΠΊΠΎΡΠΎΡΠ°Ρ ΠΎΡΠΏΡΡΠΊΠ°Π΅Ρ ΡΠΎΡΠΌΠΎΠ·, ΠΊΠΎΠ³Π΄Π° Π΄Π²ΠΈΠ³Π°ΡΠ΅Π»Ρ
Π½Π΅ Π½Π°Ρ
ΠΎΠ΄ΠΈΡΡΡ ΠΏΠΎΠ΄ Π½Π°ΠΏΡΡΠΆΠ΅Π½ΠΈΠ΅ΠΌ. ΠΡΠΎ ΠΏΠΎΠ·Π²ΠΎΠ»ΡΠ΅Ρ Π΄Π²ΠΈΠ³Π°ΡΡΡΡ ΠΏΠΎ ΠΈΠ½Π΅ΡΡΠΈΠΈ Π΄ΠΎ Π²ΠΊΠ»ΡΡΠ΅Π½ΠΈΡ ΡΠΎΡΠΌΠΎΠ·Π°.
ΠΠ°ΡΠ°Π±Π°Π½ — Π¦ΠΈΠ»ΠΈΠ½Π΄ΡΠΈΡΠ΅ΡΠΊΠΈΠΉ ΡΠ»Π΅ΠΌΠ΅Π½Ρ, Π²ΠΎΠΊΡΡΠ³ ΠΊΠΎΡΠΎΡΠΎΠ³ΠΎ Π½Π°ΠΌΠ°ΡΡΠ²Π°ΡΡΡΡ ΠΊΠ°Π½Π°ΡΡ Π΄Π»Ρ ΠΏΠΎΠ΄ΡΠ΅ΠΌΠ° ΠΈΠ»ΠΈ ΠΎΠΏΡΡΠΊΠ°Π½ΠΈΡ
Π½Π°Π³ΡΡΠ·ΠΊΠ°.
ΠΠΈΠ½Π°ΠΌΠΈΡΠ΅ΡΠΊΠΈΠΉ — ΡΠΏΠΎΡΠΎΠ± ΡΠΏΡΠ°Π²Π»Π΅Π½ΠΈΡ ΡΠΊΠΎΡΠΎΡΡΡΡ Π΄Π²ΠΈΠ³Π°ΡΠ΅Π»Ρ ΠΊΡΠ°Π½Π° Π² ΡΠΎΡΡΠΎΡΠ½ΠΈΠΈ ΠΊΠ°ΠΏΠΈΡΠ°Π»ΡΠ½ΠΎΠ³ΠΎ ΡΠ΅ΠΌΠΎΠ½ΡΠ° Π΄Π»Ρ
ΠΎΠ±Π΅ΡΠΏΠ΅ΡΠΈΠ²Π°ΡΡ ΡΠΎΡΠΌΠΎΠ·ΡΡΡΡ ΡΠΈΠ»Ρ.
E
Π‘ΠΈΡΡΠ΅ΠΌΠ° ΡΠ»Π΅ΠΊΡΡΠΈΡΠΈΠΊΠ°ΡΠΈΠΈ — Π Π°Π·Π»ΠΈΡΠ½ΡΠ΅ ΡΠ°ΡΡΠΈ ΠΊΠΎΠ½ΡΡΡΡΠΊΡΠΈΠΈ ΠΊΡΠ°Π½Π°, ΠΊΠΎΡΠΎΡΡΠ΅ ΠΏΠΎΠ΄Π°ΡΡ ΠΈ ΠΏΠΎΠ΄Π°ΡΡ ΡΠ»Π΅ΠΊΡΡΠΈΡΠ΅ΡΡΠ²ΠΎ
ΠΊ ΠΏΠΎΠ΄ΡΠ΅ΠΌΠ½ΠΈΠΊΡ ΡΠ΅Π»Π΅ΠΆΠΊΠΈ.
ΠΡΠΊΠ»ΡΡΠ°ΡΠ΅Π»Ρ Π°Π²Π°ΡΠΈΠΉΠ½ΠΎΠ³ΠΎ ΠΎΡΡΠ°Π½ΠΎΠ²Π° β ΠΠ»Π΅ΠΊΡΡΠΈΡΠ΅ΡΠΊΠΈΠΉ Π²ΡΠΊΠ»ΡΡΠ°ΡΠ΅Π»Ρ Ρ ΡΡΡΠ½ΡΠΌ ΠΈΠ»ΠΈ Π°Π²ΡΠΎΠΌΠ°ΡΠΈΡΠ΅ΡΠΊΠΈΠΌ ΡΠΏΡΠ°Π²Π»Π΅Π½ΠΈΠ΅ΠΌ Π΄Π»Ρ ΠΎΡΠΊΠ»ΡΡΠ΅Π½ΠΈΡ
ΡΠ»Π΅ΠΊΡΡΠΎΡΠ½Π΅ΡΠ³ΠΈΡ Π½Π΅Π·Π°Π²ΠΈΡΠΈΠΌΠΎ ΠΎΡ ΡΡΠ°ΡΠ½ΠΎΠ³ΠΎ ΠΎΠΏΠ΅ΡΠ°ΡΠΈΠ²Π½ΠΎΠ³ΠΎ ΡΠΏΡΠ°Π²Π»Π΅Π½ΠΈΡ.
ΠΠΎΡΠΏΡΡΠ° β Π ΠΊΠΎΡΠΏΡΡΠ°Ρ ΡΠ°Π·ΠΌΠ΅ΡΠ°ΡΡΡΡ Π²ΡΠ΅ ΡΠ»Π΅ΠΊΡΡΠΈΡΠ΅ΡΠΊΠΈΠ΅ ΠΊΠΎΠΌΠΏΠΎΠ½Π΅Π½ΡΡ ΠΊΡΠ°Π½Π°.
ΠΠΎΠ½ΡΠ΅Π²ΠΎΠΉ ΡΠΏΠΎΡ — Π£ΡΡΡΠΎΠΉΡΡΠ²ΠΎ Π΄Π»Ρ ΠΎΠ³ΡΠ°Π½ΠΈΡΠ΅Π½ΠΈΡ Ρ
ΠΎΠ΄Π° ΡΠ΅Π»Π΅ΠΆΠΊΠΈ ΠΈΠ»ΠΈ ΠΊΡΠ°Π½ΠΎΠ²ΠΎΠ³ΠΎ ΠΌΠΎΡΡΠ°. ΠΠ±ΡΡΠ½ΠΎ ΡΡΠΎ ΡΡΡΡΠΎΠΉΡΡΠ²ΠΎ
ΠΏΡΠΈΠΊΡΠ΅ΠΏΠ»ΡΠ΅ΡΡΡ ΠΊ Π½Π΅ΠΏΠΎΠ΄Π²ΠΈΠΆΠ½ΠΎΠΉ ΠΊΠΎΠ½ΡΡΡΡΠΊΡΠΈΠΈ ΠΈ ΠΎΠ±ΡΡΠ½ΠΎ Π½Π΅ ΠΎΠ±Π»Π°Π΄Π°Π΅Ρ ΡΠΏΠΎΡΠΎΠ±Π½ΠΎΡΡΡΡ ΠΏΠΎΠ³Π»ΠΎΡΠ°ΡΡ ΡΠ½Π΅ΡΠ³ΠΈΡ.
ΠΠΎΠ½ΡΠ΅Π²ΡΠ΅ ΡΠ΅Π»Π΅ΠΆΠΊΠΈ β Π Π°ΡΠΏΠΎΠ»ΠΎΠΆΠ΅Π½Π½ΡΠ΅ ΠΏΠΎ ΠΎΠ±Π΅ΠΈΠΌ ΡΡΠΎΡΠΎΠ½Π°ΠΌ ΠΏΡΠΎΠ»Π΅ΡΠ° ΠΊΠΎΠ½ΡΠ΅Π²ΡΠ΅ ΡΠ΅Π»Π΅ΠΆΠΊΠΈ Π²ΠΌΠ΅ΡΠ°ΡΡ ΠΊΠΎΠ»Π΅ΡΠ°, Π½Π° ΠΊΠΎΡΠΎΡΡΡ
ΠΊΡΠ°Π½ Π΅Π΄Π΅Ρ. ΠΡΠΈ ΠΊΠΎΠ»Π΅ΡΠ° Π΄Π²ΠΈΠΆΡΡΡΡ ΠΏΠΎ Π±Π°Π»ΠΊΠ΅ Π²Π·Π»Π΅ΡΠ½ΠΎ-ΠΏΠΎΡΠ°Π΄ΠΎΡΠ½ΠΎΠΉ ΠΏΠΎΠ»ΠΎΡΡ, ΠΎΠ±Π΅ΡΠΏΠ΅ΡΠΈΠ²Π°Ρ Π΄ΠΎΡΡΡΠΏ ΠΏΠΎ Π²ΡΠ΅ΠΉ Π΄Π»ΠΈΠ½Π΅ Π·Π°Π»ΠΈΠ²Π°.
ΠΠΊΠ²Π°Π»Π°ΠΉΠ·Π΅Ρ — Π£ΡΡΡΠΎΠΉΡΡΠ²ΠΎ, ΠΊΠΎΡΠΎΡΠΎΠ΅ ΠΊΠΎΠΌΠΏΠ΅Π½ΡΠΈΡΡΠ΅Ρ Π½Π΅ΡΠ°Π²Π½ΡΡ Π΄Π»ΠΈΠ½Ρ ΠΈΠ»ΠΈ ΡΠ°ΡΡΡΠΆΠ΅Π½ΠΈΠ΅ Π²Π΅ΡΠ΅Π²ΠΊΠΈ.![]()
ΠΠ΅Π·Π°ΡΠΈΡΠ΅Π½Π½ΡΠΉ — ΠΠΎΠ·ΠΌΠΎΠΆΠ½ΠΎΡΡΡ ΠΈΠ»ΠΈ Π½Π΅ΠΏΡΠ΅Π΄Π½Π°ΠΌΠ΅ΡΠ΅Π½Π½ΡΠΉ ΠΊΠΎΠ½ΡΠ°ΠΊΡ. ΠΡΠΈΠΌΠ΅Π½ΡΠ΅ΡΡΡ ΠΊ ΠΎΠΏΠ°ΡΠ½ΡΠΌ ΠΎΠ±ΡΠ΅ΠΊΡΠ°ΠΌ, Π½Π΅
Π΄ΠΎΠ»ΠΆΠ½ΡΠΌ ΠΎΠ±ΡΠ°Π·ΠΎΠΌ ΠΎΡ
ΡΠ°Π½ΡΡΡΡΡ ΠΈΠ»ΠΈ ΠΈΠ·ΠΎΠ»ΠΈΡΠΎΠ²Π°Π½Ρ.
Π€
ΠΡΠΊΠ°Π·ΠΎΡΡΡΠΎΠΉΡΠΈΠ²ΠΎΡΡΡ — Π£ΡΡΡΠΎΠΉΡΡΠ²ΠΎ, ΠΏΡΠ΅Π΄Π½Π°Π·Π½Π°ΡΠ΅Π½Π½ΠΎΠ΅ Π΄Π»Ρ Π°Π²ΡΠΎΠΌΠ°ΡΠΈΡΠ΅ΡΠΊΠΎΠΉ ΠΎΡΡΠ°Π½ΠΎΠ²ΠΊΠΈ ΠΈΠ»ΠΈ Π±Π΅Π·ΠΎΠΏΠ°ΡΠ½ΠΎΠ³ΠΎ ΡΠΏΡΠ°Π²Π»Π΅Π½ΠΈΡ Π»ΡΠ±ΡΠΌ Π΄Π²ΠΈΠΆΠ΅Π½ΠΈΠ΅ΠΌ, ΠΏΡΠΈ ΠΊΠΎΡΠΎΡΠΎΠΌ Π²ΠΎΠ·Π½ΠΈΠΊΠ°Π΅Ρ Π½Π΅ΠΈΡΠΏΡΠ°Π²Π½ΠΎΡΡΡ.
ΠΡΠ°Π½ Ρ Π½Π°ΠΏΠΎΠ»ΡΠ½ΡΠΌ ΠΏΡΠΈΠ²ΠΎΠ΄ΠΎΠΌ — ΠΠΎΠ΄Π²Π΅ΡΠ½ΠΎΠΉ ΠΈΠ»ΠΈ Π½Π΅ΠΏΡΠΎΠ²ΠΎΠ΄ΡΡΠΈΠΉ ΠΊΠ°Π½Π°ΡΠ½ΡΠΉ ΠΊΡΠ°Π½, ΡΠΏΡΠ°Π²Π»ΡΠ΅ΠΌΡΠΉ ΠΎΠΏΠ΅ΡΠ°ΡΠΎΡΠΎΠΌ Π½Π° ΠΏΠΎΠ»Ρ ΠΈΠ»ΠΈ Π½Π΅Π·Π°Π²ΠΈΡΠΈΠΌΠΎΠΉ ΠΏΠ»Π°ΡΡΠΎΡΠΌΠ΅.
ΠΠ΅ΡΠ΅Ρ ΠΎΠ΄Π½Π°Ρ Π΄ΠΎΡΠΎΠΆΠΊΠ° — ΠΠ΅ΡΠ΅Ρ ΠΎΠ΄Π½Π°Ρ Π΄ΠΎΡΠΎΠΆΠΊΠ° Ρ ΠΏΠ΅ΡΠΈΠ»Π°ΠΌΠΈ, ΠΏΡΠΈΠΊΡΠ΅ΠΏΠ»Π΅Π½Π½Π°Ρ ΠΊ ΠΌΠΎΡΡΡ ΠΈΠ»ΠΈ ΡΠ΅Π»Π΅ΠΆΠΊΠ΅ Π΄Π»Ρ ΠΎΠ±Π΅ΡΠΏΠ΅ΡΠ΅Π½ΠΈΡ Π΄ΠΎΡΡΡΠΏΠ½ΠΎΡΡΠΈ.
Π€ΡΠ½Π΄Π°ΠΌΠ΅Π½Ρ — ΠΠ»Ρ ΠΎΡΠ΄Π΅Π»ΡΠ½ΠΎ ΡΡΠΎΡΡΠΈΡ ΡΡΡΠ΅Π»ΠΎΠ²ΡΡ ΠΊΡΠ°Π½ΠΎΠ² ΡΡΠ΅Π±ΡΠ΅ΡΡΡ ΡΠΏΠ΅ΡΠΈΠ°Π»ΡΠ½ΡΠΉ ΡΡΠ½Π΄Π°ΠΌΠ΅Π½Ρ, ΠΎΠ±ΡΡΠ½ΠΎ ΠΈΠ· Π±Π΅ΡΠΎΠ½Π° ΠΈ ΡΡΠ°Π»ΠΈ, Π΄Π»Ρ ΠΏΠΎΠ΄Π΄Π΅ΡΠΆΠΊΠΈ ΠΊΡΠ°Π½Π° ΠΈ ΠΏΡΠ΅Π΄ΠΎΡΠ²ΡΠ°ΡΠ΅Π½ΠΈΡ ΠΎΠΏΡΠΎΠΊΠΈΠ΄ΡΠ²Π°Π½ΠΈΡ ΠΊΡΠ°Π½Π°. Π Π΅ΠΊΠΎΠΌΠ΅Π½Π΄Π°ΡΠΈΠΈ ΠΏΠΎ ΡΡΠ½Π΄Π°ΠΌΠ΅Π½ΡΡ ΠΌΠΎΠΆΠ½ΠΎ Π½Π°ΠΉΡΠΈ Π½Π° ΡΡΡΠ°Π½ΠΈΡΠ°Ρ Ρ ΡΠ΅Π½Π°ΠΌΠΈ ΠΈ Π² ΡΡΠΊΠΎΠ²ΠΎΠ΄ΡΡΠ²Π΅ ΠΏΠΎ ΡΡΡΠ°Π½ΠΎΠ²ΠΊΠ΅.
G
ΠΠΎΠ·Π»ΠΎΠ²ΡΠ΅ ΠΊΡΠ°Π½Ρ — ΠΠΎΡΡΠΎΠ²ΠΎΠΉ ΠΊΡΠ°Π½, Π² ΠΊΠΎΡΠΎΡΠΎΠΌ Π±Π°Π»ΠΊΠ° (Π±Π°Π»ΠΊΠΈ) ΠΌΠΎΡΡΠ° ΡΠΎΠ΅Π΄ΠΈΠ½Π΅Π½Π° Ρ ΠΎΠΏΠΎΡΠ°ΠΌΠΈ ΠΏΠΎ ΠΎΠ±Π΅ΠΈΠΌ ΡΡΠΎΡΠΎΠ½Π°ΠΌ ΠΏΡΠΎΠ»Π΅ΡΠ°.
ΠΡΠΈ Β«Π½ΠΎΠΆΠΊΠΈΒ» ΠΈΡΠΊΠ»ΡΡΠ°ΡΡ ΠΎΠΏΠΎΡΠ½ΡΡ Π²Π·Π»Π΅ΡΠ½ΠΎ-ΠΏΠΎΡΠ°Π΄ΠΎΡΠ½ΡΡ ΠΏΠΎΠ»ΠΎΡΡ ΠΈ ΡΠΈΡΡΠ΅ΠΌΡ ΠΊΠΎΠ»ΠΎΠ½Π½ ΠΈ ΡΠΎΠ΅Π΄ΠΈΠ½ΡΡΡΡΡ Ρ ΠΊΠΎΠ½ΡΠ΅Π²ΡΠΌΠΈ ΡΠ΅Π»Π΅ΠΆΠΊΠ°ΠΌΠΈ, ΠΊΠΎΡΠΎΡΡΠ΅ Π΄Π²ΠΈΠΆΡΡΡΡ ΠΏΠΎ ΡΠ΅Π»ΡΡΠ°ΠΌ, Π²ΡΡΡΠΎΠ΅Π½Π½ΡΠΌ Π² ΠΏΠΎΠ» ΠΈΠ»ΠΈ ΡΠ»ΠΎΠΆΠ΅Π½Π½ΡΠΌ ΠΏΠΎΠ²Π΅ΡΡ
Π½Π΅Π³ΠΎ.
H
Π ΡΡΠ½Π°Ρ ΡΠ΅ΠΏΡ — Π¦Π΅ΠΏΡ, Π·Π°Ρ Π²Π°ΡΠ΅Π½Π½Π°Ρ ΡΠ΅Π»ΠΎΠ²Π΅ΠΊΠΎΠΌ Π΄Π»Ρ ΠΏΡΠΈΠ»ΠΎΠΆΠ΅Π½ΠΈΡ ΡΡΠΈΠ»ΠΈΡ, Π½Π΅ΠΎΠ±Ρ ΠΎΠ΄ΠΈΠΌΠΎΠ³ΠΎ Π΄Π»Ρ ΠΏΠΎΠ΄ΡΠ΅ΠΌΠ° ΠΈΠ»ΠΈ ΠΎΠΏΡΡΠΊΠ°Π½ΠΈΡ ΠΏΠΎΠ΄ΡΠ΅ΠΌΠ½ΠΈΠΊΠ°.
ΠΠΎΠ»Π΅ΡΠΎ ΡΡΡΠ½ΠΎΠΉ ΡΠ΅ΠΏΠΈ — ΠΠΎΠ»Π΅ΡΠΎ Ρ Π²ΡΠ΅ΠΌΠΊΠ°ΠΌΠΈ Π½Π° ΠΏΠ΅ΡΠΈΡΠ΅ΡΠΈΠΈ, ΠΏΠΎΠ·Π²ΠΎΠ»ΡΡΡΠΈΠΌΠΈ ΠΏΠ΅ΡΠ΅Π΄Π°Π²Π°ΡΡ ΠΊΡΡΡΡΡΠΈΠΉ ΠΌΠΎΠΌΠ΅Π½Ρ ΠΏΡΠΈ Π²ΠΎΠ·Π΄Π΅ΠΉΡΡΠ²ΠΈΠΈ ΡΠΈΠ»Ρ Π½Π° ΡΡΡΠ½ΡΡ ΡΠ΅ΠΏΡ ΠΏΠΎΠ΄ΡΠ΅ΠΌΠ½ΠΈΠΊΠ°.
Π ΡΡΠ½ΠΎΠΉ ΡΠ΅Π΄ΡΠΊΡΠΎΡ — Π Π°Π±ΠΎΡΠ° ΠΌΠΎΡΡΠ°, Π»Π΅Π±Π΅Π΄ΠΊΠΈ ΠΈΠ»ΠΈ ΡΠ΅Π»Π΅ΠΆΠΊΠΈ ΠΊΡΠ°Π½Π° Ρ ΠΏΠΎΠΌΠΎΡΡΡ ΡΡΡΠ½ΠΎΠ³ΠΎ ΠΈΡΠΏΠΎΠ»ΡΠ·ΠΎΠ²Π°Π½ΠΈΡ ΡΠ΅ΠΏΠΈ ΠΈ ΠΌΠ΅Ρ Π°Π½ΠΈΠ·ΠΌΠ° Π±Π΅Π· ΡΠ»Π΅ΠΊΡΡΠΈΡΠ΅ΡΡΠ²Π°.
ΠΡΡΠΎΡΠ° ΠΏΠΎΠ΄ ΡΡΡΠ΅Π»ΠΎΠΉ (HUB) — Π Π°ΡΡΡΠΎΡΠ½ΠΈΠ΅ ΠΎΡ ΠΏΠΎΠ»Π° Π΄ΠΎ Π½ΠΈΠΆΠ½Π΅ΠΉ ΡΠ°ΡΡΠΈ ΡΡΡΠ΅Π»Ρ ΡΡΡΠ΅Π»ΠΎΠ²ΠΎΠ³ΠΎ ΠΊΡΠ°Π½Π°. ΠΠΈΠ½ΠΈΠΌΠ°Π»ΡΠ½Π°Ρ Π²ΡΡΠΎΡΠ° ΠΏΠΎΠ΄ ΡΡΡΠ΅Π»ΠΎΠΉ ΡΠ°Π²Π½Π° Π²ΡΡΠΎΡΠ΅ Π³ΡΡΠ·Π° ΠΏΠ»ΡΡ ΠΌΠ°ΠΊΡΠΈΠΌΠ°Π»ΡΠ½ΠΎΠ΅ ΡΠ°ΡΡΡΠΎΡΠ½ΠΈΠ΅, Π½Π° ΠΊΠΎΡΠΎΡΠΎΠ΅ Π΄ΠΎΠ»ΠΆΠ΅Π½ Π±ΡΡΡ ΠΏΠΎΠ΄Π½ΡΡ Π³ΡΡΠ·, ΠΏΠ»ΡΡ ΠΏΡΠΎΡΡΡΠ°Π½ΡΡΠ²ΠΎ Π½Π°Π΄ Π³ΠΎΠ»ΠΎΠ²ΠΎΠΉ, Π½Π΅ΠΎΠ±Ρ
ΠΎΠ΄ΠΈΠΌΠΎΠ΅ Π΄Π»Ρ ΠΏΠΎΠ΄ΡΠ΅ΠΌΠ½ΠΈΠΊΠ°, ΡΠ΅Π»Π΅ΠΆΠΊΠΈ ΠΈ Π½Π°Π²Π΅ΡΠ½ΠΎΠ³ΠΎ ΠΎΠ±ΠΎΡΡΠ΄ΠΎΠ²Π°Π½ΠΈΡ.
ΠΠΎΠ΄ΡΠ΅ΠΌΠ½ΠΈΠΊ β ΠΌΠ΅Ρ Π°Π½ΠΈΡΠ΅ΡΠΊΠΎΠ΅ ΡΡΡΡΠΎΠΉΡΡΠ²ΠΎ, ΠΈΡΠΏΠΎΠ»ΡΠ·ΡΠ΅ΠΌΠΎΠ΅ Π΄Π»Ρ ΠΏΠΎΠ΄ΡΠ΅ΠΌΠ° ΠΈ ΠΎΠΏΡΡΠΊΠ°Π½ΠΈΡ Π³ΡΡΠ·Π° Ρ ΠΏΠΎΠΌΠΎΡΡΡ ΠΊΡΡΠΊΠ° ΠΈΠ»ΠΈ ΠΏΠΎΠ΄ΡΠ΅ΠΌΠ½ΠΎΠ³ΠΎ ΠΏΡΠΈΡΠΏΠΎΡΠΎΠ±Π»Π΅Π½ΠΈΡ.
ΠΠΎΠ΄ΡΠ΅ΠΌΠ½Π°Ρ ΡΠ΅ΠΏΡ — ΠΠ΅ΡΡΡΠ°Ρ ΡΠ΅ΠΏΡ Π² ΠΏΠΎΠ΄ΡΠ΅ΠΌΠ½ΠΈΠΊΠ΅.
ΠΠ ΠΠΠΠ§ΠΠΠΠ. Π‘Π²ΠΎΠΉΡΡΠ²Π° ΡΠ΅ΠΏΠΈ Π½Π΅ ΡΠΎΠΎΡΠ²Π΅ΡΡΡΠ²ΡΡΡ Ρ Π°ΡΠ°ΠΊΡΠ΅ΡΠΈΡΡΠΈΠΊΠ°ΠΌ, ΡΠΊΠ°Π·Π°Π½Π½ΡΠΌ Π² ANSI B30.9-1971, ΠΡΠ°Π²ΠΈΠ»Π°Ρ Π±Π΅Π·ΠΎΠΏΠ°ΡΠ½ΠΎΡΡΠΈ Π΄Π»Ρ ΡΡΡΠΎΠΏΠΎΠ²
ΠΠ²ΠΈΠΆΠ΅Π½ΠΈΠ΅ ΠΏΠΎΠ΄ΡΠ΅ΠΌΠ° β ΠΠ²ΠΈΠΆΠ΅Π½ΠΈΠ΅ ΠΊΡΠ°Π½Π°, ΠΊΠΎΡΠΎΡΡΠΉ ΠΏΠΎΠ΄Π½ΠΈΠΌΠ°Π΅Ρ ΠΈ ΠΎΠΏΡΡΠΊΠ°Π΅Ρ Π³ΡΡΠ·.
Π£Π΄Π΅ΡΠΆΠΈΠ²Π°ΡΡΠΈΠΉ ΡΠΎΡΠΌΠΎΠ· — Π’ΠΎΡΠΌΠΎΠ·, ΠΊΠΎΡΠΎΡΡΠΉ Π°Π²ΡΠΎΠΌΠ°ΡΠΈΡΠ΅ΡΠΊΠΈ ΠΏΡΠ΅Π΄ΠΎΡΠ²ΡΠ°ΡΠ°Π΅Ρ Π΄Π²ΠΈΠΆΠ΅Π½ΠΈΠ΅ ΠΏΡΠΈ ΠΎΡΡΡΡΡΡΠ²ΠΈΠΈ ΠΏΠΈΡΠ°Π½ΠΈΡ.
ΠΡΡΠΎΡΠ° ΠΊΡΡΠΊΠ° β Π‘ΠΌ. ΠΡΡΠΎΡΠ° ΠΏΠΎΠ΄ΡΠ΅ΠΌΠ°.
ΠΡΠ°Π½ Π΄Π»Ρ ΠΎΠ±ΡΠ°Π±ΠΎΡΠΊΠΈ Π³ΠΎΡΡΡΠ΅Π³ΠΎ ΠΌΠ΅ΡΠ°Π»Π»Π° — ΠΠΎΡΡΠΎΠ²ΠΎΠΉ ΠΊΡΠ°Π½, ΠΈΡΠΏΠΎΠ»ΡΠ·ΡΠ΅ΠΌΡΠΉ Π΄Π»Ρ ΡΡΠ°Π½ΡΠΏΠΎΡΡΠΈΡΠΎΠ²ΠΊΠΈ ΠΈΠ»ΠΈ Π·Π°Π»ΠΈΠ²ΠΊΠΈ ΡΠ°ΡΠΏΠ»Π°Π²Π»Π΅Π½Π½ΠΎΠ³ΠΎ ΠΌΠ°ΡΠ΅ΡΠΈΠ°Π»Π°.
I
ΠΡΠΎΠΌΠ΅ΠΆΡΡΠΎΡΠ½Π°Ρ Π·Π²Π΅Π·Π΄ΠΎΡΠΊΠ° — Π‘Π²ΠΎΠ±ΠΎΠ΄Π½ΠΎ Π²ΡΠ°ΡΠ°ΡΡΠ΅Π΅ΡΡ ΡΡΡΡΠΎΠΉΡΡΠ²ΠΎ, ΠΈΠ·ΠΌΠ΅Π½ΡΡΡΠ΅Π΅ Π½Π°ΠΏΡΠ°Π²Π»Π΅Π½ΠΈΠ΅ Π³ΡΡΠ·ΠΎΠΏΠΎΠ΄ΡΠ΅ΠΌΠ½ΠΎΠΉ ΡΠ΅ΠΏΠΈ.
J
ΠΠΎΠ½ΡΠΎΠ»ΡΠ½ΡΠΉ ΠΊΡΠ°Π½ — ΠΡΠ°Π½, ΡΠΎΡΡΠΎΡΡΠΈΠΉ ΠΈΠ· ΡΡΡΠ΅Π»Ρ, ΠΊΠΎΡΠΎΡΠ°Ρ ΠΎΠΏΠΈΡΠ°Π΅ΡΡΡ ΠΊΠ°ΠΊ ΠΊΠΎΠ½ΡΠΎΠ»Ρ Π½Π° ΠΊΠΎΠ»ΠΎΠ½Π½Ρ.
Π
ΠΡΡΠΎΡΠ° ΠΏΠΎΠ΄ΡΠ΅ΠΌΠ° β ΠΠ°ΠΊΡΠΈΠΌΠ°Π»ΡΠ½ΠΎΠ΅ Π±Π΅Π·ΠΎΠΏΠ°ΡΠ½ΠΎΠ΅ ΡΠ°ΡΡΡΠΎΡΠ½ΠΈΠ΅ ΠΏΠΎ Π²Π΅ΡΡΠΈΠΊΠ°Π»ΠΈ, Π½Π° ΠΊΠΎΡΠΎΡΠΎΠ΅ ΠΌΠΎΠΆΠ΅Ρ ΠΏΠ΅ΡΠ΅ΠΌΠ΅ΡΠ°ΡΡΡΡ ΠΊΡΡΠΊ ΠΎΡ ΠΏΠΎΠ»Π°
ΠΠΎΠ΄ΡΠ΅ΠΌΠ½ΡΠ΅ ΡΡΡΡΠΎΠΉΡΡΠ²Π° β Π‘ΠΌ. ΠΠΎΠ΄ΡΠ΅ΠΌΠ½ΡΠ΅ ΡΡΡΡΠΎΠΉΡΡΠ²Π° ΠΏΠΎΠ΄ ΠΊΡΡΠΊΠΎΠΌ ΠΈΠ»ΠΈ Π΄Π²ΠΈΠΆΠ΅Π½ΠΈΠ΅ Π»Π΅Π±Π΅Π΄ΠΊΠΈ Ρ ΠΌΠ΅Ρ Π°Π½ΠΈΡΠ΅ΡΠΊΠΈΠΌ ΠΏΡΠΈΠ²ΠΎΠ΄ΠΎΠΌ Π΄Π»Ρ ΠΎΠ³ΡΠ°Π½ΠΈΡΠ΅Π½ΠΈΡ Π΄Π²ΠΈΠΆΠ΅Π½ΠΈΡ.
ΠΠΎΠ½ΡΠ΅Π²ΠΎΠΉ Π²ΡΠΊΠ»ΡΡΠ°ΡΠ΅Π»Ρ — Π£ΡΡΡΠΎΠΉΡΡΠ²ΠΎ, ΠΏΡΠ΅Π΄Π½Π°Π·Π½Π°ΡΠ΅Π½Π½ΠΎΠ΅ Π΄Π»Ρ Π°Π²ΡΠΎΠΌΠ°ΡΠΈΡΠ΅ΡΠΊΠΎΠ³ΠΎ ΠΎΡΠΊΠ»ΡΡΠ΅Π½ΠΈΡ ΠΏΠΈΡΠ°Π½ΠΈΡ Π½Π° ΠΏΡΠ΅Π΄Π΅Π»Π΅ ΠΈΠ»ΠΈ Π²Π±Π»ΠΈΠ·ΠΈ ΠΏΡΠ΅Π΄Π΅Π»Π° ΠΏΠ΅ΡΠ΅ΠΌΠ΅ΡΠ΅Π½ΠΈΡ ΠΊΡΠ°Π½Π°.
ΠΠ°Π³ΡΡΠ·ΠΊΠ° — Π‘ΡΠΌΠΌΠ°ΡΠ½ΡΠΉ Π΄ΠΎΠΏΠΎΠ»Π½ΠΈΡΠ΅Π»ΡΠ½ΡΠΉ Π²Π΅Ρ Π½Π° Π³ΡΡΠ·ΠΎΠΏΠΎΠ΄ΡΠ΅ΠΌΠ½ΠΎΠΌ Π±Π»ΠΎΠΊΠ΅ ΠΈΠ»ΠΈ ΠΊΡΡΠΊΠ΅.
ΠΡΡΠ·ΠΎΠ²ΠΎΠΉ Π±Π»ΠΎΠΊ — Π‘Π±ΠΎΡΠΊΠ° ΠΊΡΡΠΊΠ° ΠΈΠ»ΠΈ ΡΠΊΠΎΠ±Ρ, Π²Π΅ΡΡΠ»ΡΠ³Π°, ΠΏΠΎΠ΄ΡΠΈΠΏΠ½ΠΈΠΊΠ°, ΡΠΊΠΈΠ²ΠΎΠ², Π·Π²Π΅Π·Π΄ΠΎΡΠ΅ΠΊ, ΡΡΠΈΡΡΠΎΠ² ΠΈ ΡΠ°ΠΌΡ, ΠΏΠΎΠ΄Π²Π΅ΡΠ΅Π½Π½ΡΡ Π½Π° ΠΏΠΎΠ΄ΡΠ΅ΠΌΠ½ΠΎΠΌ ΠΊΠ°Π½Π°ΡΠ΅ ΠΈΠ»ΠΈ Π³ΡΡΠ·ΠΎΠ²ΠΎΠΉ ΡΠ΅ΠΏΠΈ. ΠΡΠΎ Π΄ΠΎΠ»ΠΆΠ½ΠΎ Π²ΠΊΠ»ΡΡΠ°ΡΡ Π»ΡΠ±ΡΠ΅ ΠΏΡΠΈΡΠΏΠΎΡΠΎΠ±Π»Π΅Π½ΠΈΡ, Π·Π°ΠΏΠ°ΡΠ΅Π½Π½ΡΠ΅ Π² ΠΏΠΎΠ΄ΡΠ΅ΠΌΠ½ΠΎΠΌ ΠΊΠ°Π½Π°ΡΠ΅ ΠΈΠ»ΠΈ Π³ΡΡΠ·ΠΎΠ²ΠΎΠΉ ΡΠ΅ΠΏΠΈ.
ΠΡΡΠ·ΠΎΠ²Π°Ρ ΡΠ΅ΠΏΡ — ΠΠ΅ΡΡΡΠ°Ρ ΡΠ΅ΠΏΡ Π² ΠΏΠΎΠ΄ΡΠ΅ΠΌΠ½ΠΈΠΊΠ΅.
ΠΡΡΠ·ΠΎΠ²Π°Ρ Π·Π²Π΅Π·Π΄ΠΎΡΠΊΠ° β ΠΠΎΠΌΠΏΠΎΠ½Π΅Π½Ρ ΠΏΠΎΠ΄ΡΠ΅ΠΌΠ½ΠΎΠ³ΠΎ ΠΌΠ΅Ρ
Π°Π½ΠΈΠ·ΠΌΠ°, ΠΏΠ΅ΡΠ΅Π΄Π°ΡΡΠΈΠΉ Π΄Π²ΠΈΠΆΠ΅Π½ΠΈΠ΅ Π³ΡΡΠ·ΠΎΠ²ΠΎΠΉ ΡΠ΅ΠΏΠΈ.
ΠΡΠΎΡ ΠΊΠΎΠΌΠΏΠΎΠ½Π΅Π½Ρ ΠΏΠΎΠ΄ΡΠ΅ΠΌΠ½ΠΈΠΊΠ° ΠΈΠ½ΠΎΠ³Π΄Π° Π½Π°Π·ΡΠ²Π°ΡΡ Π³ΡΡΠ·ΠΎΠ²ΡΠΌ ΠΊΠΎΠ»Π΅ΡΠΎΠΌ, Π³ΡΡΠ·ΠΎΠ²ΡΠΌ ΡΠΊΠΈΠ²ΠΎΠΌ, ΠΊΠ°ΡΠΌΠ°Π½Π½ΡΠΌ ΠΊΠΎΠ»Π΅ΡΠΎΠΌ ΠΈΠ»ΠΈ ΡΠ΅ΠΏΠ½ΡΠΌ ΠΊΠΎΠ»Π΅ΡΠΎΠΌ.
ΠΠ΅ΡΠ°Π»ΠΈ Π΄Π»Ρ ΠΏΠΎΠ΄Π²Π΅ΡΠΊΠΈ Π³ΡΡΠ·Π° — Π§Π°ΡΡΠΈ ΠΏΠΎΠ΄ΡΠ΅ΠΌΠ½ΠΈΠΊΠ° Π΄Π»Ρ ΠΏΠΎΠ΄Π²Π΅ΡΠΊΠΈ Π³ΡΡΠ·Π° ΠΏΡΠ΅Π΄ΡΡΠ°Π²Π»ΡΡΡ ΡΠΎΠ±ΠΎΠΉ ΡΡΠ΅Π΄ΡΡΠ²Π° ΠΏΠΎΠ΄Π²Π΅ΡΠΊΠΈ (ΠΊΡΡΠΊ ΠΈΠ»ΠΈ ΠΏΡΠΎΡΡΠΈΠ½Ρ), ΠΊΠΎΠ½ΡΡΡΡΠΊΡΠΈΡ ΠΈΠ»ΠΈ ΠΊΠΎΡΠΏΡΡ, ΠΊΠΎΡΠΎΡΡΠΉ ΠΏΠΎΠ΄Π΄Π΅ΡΠΆΠΈΠ²Π°Π΅Ρ Π±Π°ΡΠ°Π±Π°Π½ ΠΈΠ»ΠΈ Π³ΡΡΠ·ΠΎΠ²ΡΡ Π·Π²Π΅Π·Π΄ΠΎΡΠΊΡ, Π±Π°ΡΠ°Π±Π°Π½ ΠΈΠ»ΠΈ Π³ΡΡΠ·ΠΎΠ²ΡΡ Π·Π²Π΅Π·Π΄ΠΎΡΠΊΡ, ΠΊΠ°Π½Π°Ρ ΠΈΠ»ΠΈ Π³ΡΡΠ·ΠΎΠ²ΡΡ ΡΠ΅ΠΏΡ, ΡΠΊΠΈΠ²Ρ ΠΈΠ»ΠΈ Π·Π²Π΅Π·Π΄ΠΎΡΠΊΠΈ, Π° ΡΠ°ΠΊΠΆΠ΅ Π³ΡΡΠ·ΠΎΠ²ΠΎΠΉ Π±Π»ΠΎΠΊ ΠΈΠ»ΠΈ ΠΊΡΡΠΊ.
M
ΠΠ°Π³Π½ΠΈΡ — ΠΠ»Π΅ΠΊΡΡΠΎΠΌΠ°Π³Π½ΠΈΡΠ½ΠΎΠ΅ ΡΡΡΡΠΎΠΉΡΡΠ²ΠΎ, Π·Π°ΠΊΡΠ΅ΠΏΠ»Π΅Π½Π½ΠΎΠ΅ Π½Π° ΠΊΡΡΠΊΠ΅ ΠΊΡΠ°Π½Π°, Π΄Π»Ρ Π·Π°Ρ Π²Π°ΡΠ° Π³ΡΡΠ·Π° Ρ ΠΏΠΎΠΌΠΎΡΡΡ ΠΌΠ°Π³Π½ΠΈΡΠ°.
ΠΠ»Π°Π²Π½ΡΠΉ ΠΏΠΎΠ΄ΡΠ΅ΠΌΠ½ΠΈΠΊ — ΠΠΎΠ΄ΡΠ΅ΠΌΠ½ΡΠΉ ΠΌΠ΅Ρ Π°Π½ΠΈΠ·ΠΌ, ΠΏΡΠ΅Π΄Π½Π°Π·Π½Π°ΡΠ΅Π½Π½ΡΠΉ Π΄Π»Ρ ΠΏΠΎΠ΄ΡΠ΅ΠΌΠ° ΠΌΠ°ΠΊΡΠΈΠΌΠ°Π»ΡΠ½ΠΎΠ³ΠΎ Π½ΠΎΠΌΠΈΠ½Π°Π»ΡΠ½ΠΎΠ³ΠΎ Π³ΡΡΠ·Π°.
ΠΠ»Π°Π²Π½ΡΠΉ Π²ΡΠΊΠ»ΡΡΠ°ΡΠ΅Π»Ρ β ΠΡΠΊΠ»ΡΡΠ°ΡΠ΅Π»Ρ, ΡΠΏΡΠ°Π²Π»ΡΡΡΠΈΠΉ Π²ΡΠ΅ΠΉ ΡΠΈΡΡΠ΅ΠΌΠΎΠΉ ΡΠ»Π΅ΠΊΡΡΠΎΠΏΠΈΡΠ°Π½ΠΈΡ ΠΊΡΠ°Π½Π°.
Π’Π΅Π»Π΅ΠΆΠΊΠ° Π΄Π»Ρ ΠΏΠ΅ΡΡΠΎΠ½Π°Π»Π° — Π’Π΅Π»Π΅ΠΆΠΊΠ° Ρ ΠΏΡΠΈΠΊΡΠ΅ΠΏΠ»Π΅Π½Π½ΠΎΠΉ ΠΊ Π½Π΅ΠΉ ΠΊΠ°Π±ΠΈΠ½ΠΎΠΉ ΠΎΠΏΠ΅ΡΠ°ΡΠΎΡΠ°.
ΠΠ°ΡΡΠ° — ΠΠ΅ΡΡΠΈΠΊΠ°Π»ΡΠ½ΡΠΉ ΡΡΠ°Π»ΡΠ½ΠΎΠΉ ΠΊΠΎΠΌΠΏΠΎΠ½Π΅Π½Ρ ΡΡΡΠ΅Π»ΠΎΠ²ΠΎΠ³ΠΎ ΠΊΡΠ°Π½Π°, ΠΏΠΎΠ΄Π΄Π΅ΡΠΆΠΈΠ²Π°ΡΡΠΈΠΉ ΠΊΡΠ°Π½.
Π‘Π²ΠΎΠ±ΠΎΠ΄Π½ΠΎ ΡΡΠΎΡΡΠΈΠ΅ ΡΡΡΠ΅Π»ΠΎΠ²ΡΠ΅ ΠΊΡΠ°Π½Ρ (Π²ΠΊΠ»ΡΡΠ°Ρ ΡΡΡΠ΅Π»Ρ ΡΠ°Π±ΠΎΡΠ΅ΠΉ ΡΡΠ°Π½ΡΠΈΠΈ) ΠΈΠΌΠ΅ΡΡ ΠΊΡΡΠ³Π»ΡΡ ΡΡΡΠ±Ρ Π΄Π»Ρ ΠΌΠ°ΡΡΡ, Π½Π°ΡΡΠ΅Π½Π½ΡΠ΅ ΠΊΠΎΠ½ΡΠΎΠ»ΡΠ½ΡΠ΅ ΠΊΡΠ°Π½Ρ ΠΈΠΌΠ΅ΡΡ ΡΡΠ°Π½Π΄Π°ΡΡΠ½ΡΠ΅ Π΄Π²ΡΡΠ°Π²ΡΠΎΠ²ΡΠ΅ Π±Π°Π»ΠΊΠΈ, Π° ΠΊΡΠ°Π½Ρ ΠΌΠ°ΡΡΠΎΠ²ΠΎΠ³ΠΎ ΡΠΈΠΏΠ° ΠΈΠΌΠ΅ΡΡ ΡΠΈΡΠΎΠΊΠΎΠΏΠΎΠ»ΠΎΡΠ½ΡΠ΅ Π±Π°Π»ΠΊΠΈ. ΠΠ°ΡΡΠ΅Π½Π½ΡΠ΅ ΠΊΡΠ°Π½Ρ Π½Π΅ ΠΈΠΌΠ΅ΡΡ ΠΌΠ°ΡΡΡ.
ΠΠ»Π°Π²Π½ΡΠΉ Π²ΡΠΊΠ»ΡΡΠ°ΡΠ΅Π»Ρ — ΠΡΠΊΠ»ΡΡΠ°ΡΠ΅Π»Ρ, ΡΠΏΡΠ°Π²Π»ΡΡΡΠΈΠΉ ΡΠ°Π±ΠΎΡΠΎΠΉ ΠΊΠΎΠ½ΡΠ°ΠΊΡΠΎΡΠΎΠ², ΡΠ΅Π»Π΅ ΠΈΠ»ΠΈ Π΄ΡΡΠ³ΠΈΡ Π΄ΠΈΡΡΠ°Π½ΡΠΈΠΎΠ½Π½ΠΎ ΡΠΏΡΠ°Π²Π»ΡΠ΅ΠΌΡΡ ΡΡΡΡΠΎΠΉΡΡΠ².
ΠΠ΅Ρ Π°Π½ΠΈΡΠ΅ΡΠΊΠΈΠΉ — ΠΠ΅ΡΠΎΠ΄ ΡΠΏΡΠ°Π²Π»Π΅Π½ΠΈΡ ΡΡΠ΅Π½ΠΈΠ΅ΠΌ
N
ΠΠ΅Ρ ΠΎΠ΄ΠΎΠ²ΠΎΠΉ ΡΠΊΠΈΠ² — ΠΠΎΠ΄ΡΠ΅ΠΌΠ½ΡΠΉ ΡΠΊΠΈΠ², ΠΈΡΠΏΠΎΠ»ΡΠ·ΡΠ΅ΠΌΡΠΉ Π΄Π»Ρ Π²ΡΡΠ°Π²Π½ΠΈΠ²Π°Π½ΠΈΡ Π½Π°ΡΡΠΆΠ΅Π½ΠΈΡ ΠΏΡΠΎΡΠΈΠ²ΠΎΠΏΠΎΠ»ΠΎΠΆΠ½ΡΡ ΡΠ°ΡΡΠ΅ΠΉ ΠΊΠ°Π½Π°ΡΠ° ΠΈΠ»ΠΈ ΡΠ΅ΠΏΠΈ. ΠΠ·-Π·Π° Π½Π΅Π±ΠΎΠ»ΡΡΠΎΠ³ΠΎ Π΄Π²ΠΈΠΆΠ΅Π½ΠΈΡ Π΅Π³ΠΎ Π½Π΅ Π½Π°Π·ΡΠ²Π°ΡΡ Π±Π΅Π³ΡΡΠΈΠΌ ΡΠΊΠΈΠ²ΠΎΠΌ.
ΠΠΎΡΠΌΠ°Π»ΡΠ½ΡΠ΅ ΡΡΠ»ΠΎΠ²ΠΈΡ ΡΠΊΡΠΏΠ»ΡΠ°ΡΠ°ΡΠΈΠΈ — Π£ΡΠ»ΠΎΠ²ΠΈΡ, ΠΏΡΠΈ ΠΊΠΎΡΠΎΡΡΡ ΠΏΠΎΠ΄ΡΠ΅ΠΌΠ½ΠΈΠΊ Π²ΡΠΏΠΎΠ»Π½ΡΠ΅Ρ ΡΡΠ½ΠΊΡΠΈΠΈ, ΠΏΡΠ΅Π΄ΡΡΠΌΠΎΡΡΠ΅Π½Π½ΡΠ΅ ΠΏΠ΅ΡΠ²ΠΎΠ½Π°ΡΠ°Π»ΡΠ½ΡΠΌ ΠΏΡΠΎΠ΅ΠΊΡΠΎΠΌ.
O
ΠΠΎΡΡΠΎΠ²ΠΎΠΉ ΠΊΡΠ°Π½ — ΠΡΠ°Π½ Ρ ΡΠ°Π·Π²ΠΎΠ΄Π½ΡΠΌ ΠΌΠΎΡΡΠΎΠΌ, Π½Π΅ΡΡΡΠΈΠΉ ΠΏΠΎΠ΄Π²ΠΈΠΆΠ½ΡΠΉ ΠΈΠ»ΠΈ ΡΡΠ°ΡΠΈΠΎΠ½Π°ΡΠ½ΡΠΉ ΠΏΠΎΠ΄ΡΠ΅ΠΌΠ½ΡΠΉ ΠΌΠ΅Ρ
Π°Π½ΠΈΠ·ΠΌ ΠΈ ΠΏΠ΅ΡΠ΅Π΄Π²ΠΈΠ³Π°ΡΡΠΈΠΉΡΡ ΠΏΠΎ ΡΠΈΠΊΡΠΈΡΠΎΠ²Π°Π½Π½ΠΎΠΉ ΠΊΠΎΠ½ΡΡΡΡΠΊΡΠΈΠΈ ΠΏΠΎΠ΄Π²Π΅ΡΠ½ΠΎΠ³ΠΎ ΠΏΡΡΠΈ.
ΠΠ΅ΡΠ΅Π³ΡΡΠ·ΠΊΠ° — ΠΡΠ±Π°Ρ Π³ΡΡΠ·ΠΎΠΏΠΎΠ΄ΡΠ΅ΠΌΠ½ΠΎΡΡΡ, ΠΏΡΠ΅Π²ΡΡΠ°ΡΡΠ°Ρ Π½ΠΎΠΌΠΈΠ½Π°Π»ΡΠ½ΡΡ Π½Π°Π³ΡΡΠ·ΠΊΡ.
ΠΠ³ΡΠ°Π½ΠΈΡΠΈΡΠ΅Π»Ρ ΠΏΠ΅ΡΠ΅Π±Π΅Π³Π° — Π£ΡΡΡΠΎΠΉΡΡΠ²ΠΎ, ΠΈΡΠΏΠΎΠ»ΡΠ·ΡΠ΅ΠΌΠΎΠ΅ Π΄Π»Ρ ΠΏΡΠ΅Π΄ΠΎΡΠ²ΡΠ°ΡΠ΅Π½ΠΈΡ Π½Π΅ΠΏΡΠ΅Π΄Π½Π°ΠΌΠ΅ΡΠ΅Π½Π½ΠΎΠ³ΠΎ ΠΎΠΏΡΡΠΊΠ°Π½ΠΈΡ ΠΏΡΠΎΠ²ΠΈΡΡΠ΅ΠΉ Π³ΡΡΠ·ΠΎΠ²ΠΎΠΉ ΡΠ΅ΠΏΠΈ ΠΏΠΎΠ΄ΡΠ΅ΠΌΠ½ΠΈΠΊΠ° Ρ Π³ΡΡΠ·ΠΎΠ²ΠΎΠΉ Π·Π²Π΅Π·Π΄ΠΎΡΠΊΠΈ.
P
ΠΠ΅ΡΠ°Π»ΠΈ (Π»ΠΈΠ½ΠΈΠΈ) — ΠΠΎΠ»ΠΈΡΠ΅ΡΡΠ²ΠΎ ΡΡΡΠΎΠΏ Π²Π΅ΡΠ΅Π²ΠΊΠΈ ΠΈΠ»ΠΈ ΡΠ΅ΠΏΠΈ, ΠΏΠΎΠ΄Π΄Π΅ΡΠΆΠΈΠ²Π°ΡΡΠΈΡ Π³ΡΡΠ·ΠΎΠ²ΠΎΠΉ Π±Π»ΠΎΠΊ ΠΈΠ»ΠΈ ΠΊΡΡΠΊ.
ΠΠΎΠ΄Π²Π΅ΡΠΊΠ° β ΠΠΎΠ΄Π²Π΅ΡΠΊΠ° Π΄Π°Π΅Ρ ΠΎΠΏΠ΅ΡΠ°ΡΠΎΡΡ ΡΠΎΡΠ½ΡΠΉ ΠΊΠΎΠ½ΡΡΠΎΠ»Ρ Π½Π°Π΄ Π΄Π²ΠΈΠΆΠ΅Π½ΠΈΡΠΌΠΈ ΠΊΡΠ°Π½Π°.
ΠΠΎΠ΄Π²Π΅ΡΠ½Π°Ρ ΡΡΠ°Π½ΡΠΈΡ — ΠΠ»Π΅ΠΌΠ΅Π½ΡΡ ΡΠΏΡΠ°Π²Π»Π΅Π½ΠΈΡ, ΠΏΠΎΠ΄Π²Π΅ΡΠ΅Π½Π½ΡΠ΅ ΠΊ ΠΏΠΎΠ΄ΡΠ΅ΠΌΠ½ΠΈΠΊΡ, Π΄Π»Ρ ΡΠΏΡΠ°Π²Π»Π΅Π½ΠΈΡ Π°Π³ΡΠ΅Π³Π°ΡΠΎΠΌ Ρ ΠΏΠΎΠ»Π°.
ΠΡΠ°Π½ Ρ ΠΌΠ΅Ρ
Π°Π½ΠΈΡΠ΅ΡΠΊΠΈΠΌ ΠΏΡΠΈΠ²ΠΎΠ΄ΠΎΠΌ — ΠΡΠ°Π½, ΠΌΠ΅Ρ
Π°Π½ΠΈΠ·ΠΌ ΠΊΠΎΡΠΎΡΠΎΠ³ΠΎ ΠΏΡΠΈΠ²ΠΎΠ΄ΠΈΡΡΡ Π² Π΄Π΅ΠΉΡΡΠ²ΠΈΠ΅ ΡΠ»Π΅ΠΊΡΡΠΈΡΠ΅ΡΠΊΠΈΠΌ, ΠΏΠ½Π΅Π²ΠΌΠ°ΡΠΈΡΠ΅ΡΠΊΠΈΠΌ, Π³ΠΈΠ΄ΡΠ°Π²Π»ΠΈΡΠ΅ΡΠΊΠΈΠΌ ΠΈΠ»ΠΈ
ΡΡΠ΅Π΄ΡΡΠ²Π° Π²Π½ΡΡΡΠ΅Π½Π½Π΅Π³ΠΎ ΡΠ³ΠΎΡΠ°Π½ΠΈΡ.
ΠΡΡΠΎΡΠ½ΠΈΠΊ ΠΏΠΈΡΠ°Π½ΠΈΡ — ΠΠ»Π΅ΠΊΡΡΠΈΡΠ΅ΡΡΠ²ΠΎ Π² Π·Π΄Π°Π½ΠΈΠΈ, Π΄Π»Ρ ΠΊΠΎΡΠΎΡΠΎΠ³ΠΎ ΠΏΡΠΎΠ΅ΠΊΡΠΈΡΡΠ΅ΡΡΡ ΠΊΡΠ°Π½.
ΠΠ΅ΡΠ°Π»ΠΈ ΡΠΈΠ»ΠΎΠ²ΠΎΠΉ ΠΏΠ΅ΡΠ΅Π΄Π°ΡΠΈ — ΠΠΎΠΌΠΏΠΎΠ½Π΅Π½ΡΡ ΠΏΠΎΠ΄ΡΠ΅ΠΌΠ½ΠΎΠ³ΠΎ ΠΎΠ±ΠΎΡΡΠ΄ΠΎΠ²Π°Π½ΠΈΡ, Π²ΠΊΠ»ΡΡΠ°Ρ ΡΠ΅ΡΡΠ΅ΡΠ½ΠΈ, Π²Π°Π»Ρ, ΠΌΡΡΡΡ, ΠΌΡΡΡΡ, ΠΏΠΎΠ΄ΡΠΈΠΏΠ½ΠΈΠΊΠΈ, Π΄Π²ΠΈΠ³Π°ΡΠ΅Π»ΠΈ ΠΈ ΡΠΎΡΠΌΠΎΠ·Π°.
ΠΠ΅ΡΠ²ΠΈΡΠ½ΠΎΠ΅ ΡΡΡΡΠΎΠΉΡΡΠ²ΠΎ ΠΎΠ³ΡΠ°Π½ΠΈΡΠ΅Π½ΠΈΡ Π²Π΅ΡΡ Π½Π΅Π³ΠΎ ΠΏΡΠ΅Π΄Π΅Π»Π° β ΠΡΠ½ΠΎΠ²Π½ΠΎΠ΅ ΡΡΡΡΠΎΠΉΡΡΠ²ΠΎ ΠΎΠ³ΡΠ°Π½ΠΈΡΠ΅Π½ΠΈΡ Π²Π΅ΡΡ Π½Π΅Π³ΠΎ ΠΏΡΠ΅Π΄Π΅Π»Π° ΡΠ²Π»ΡΠ΅ΡΡΡ ΠΏΠ΅ΡΠ²ΡΠΌ ΡΡΡΡΠΎΠΉΡΡΠ²ΠΎΠΌ ΠΎΠ³ΡΠ°Π½ΠΈΡΠ΅Π½ΠΈΡ, ΠΊΠΎΡΠΎΡΠΎΠ΅ Π±ΡΠ΄Π΅Ρ Π°ΠΊΡΠΈΠ²ΠΈΡΠΎΠ²Π°Π½ΠΎ Π΄Π»Ρ ΡΠΏΡΠ°Π²Π»Π΅Π½ΠΈΡ Π²Π΅ΡΡ Π½ΠΈΠΌ ΠΏΡΠ΅Π΄Π΅Π»ΠΎΠΌ ΠΏΠ΅ΡΠ΅ΠΌΠ΅ΡΠ΅Π½ΠΈΡ Π³ΡΡΠ·ΠΎΠ²ΠΎΠ³ΠΎ Π±Π»ΠΎΠΊΠ°, ΠΊΠΎΠ³Π΄Π° ΠΏΠΎΠ΄ΡΠ΅ΠΌΠ½ΠΈΠΊ ΠΎΠ±ΠΎΡΡΠ΄ΠΎΠ²Π°Π½ Π±ΠΎΠ»Π΅Π΅ ΡΠ΅ΠΌ ΠΎΠ΄Π½ΠΈΠΌ ΡΡΡΡΠΎΠΉΡΡΠ²ΠΎΠΌ Π²Π΅ΡΡ Π½Π΅Π³ΠΎ ΠΎΠ³ΡΠ°Π½ΠΈΡΠ΅Π½ΠΈΡ
ΠΡΠ°Π½ Ρ ΡΠΏΡΠ°Π²Π»Π΅Π½ΠΈΠ΅ΠΌ Π½Π° ΡΠ°ΠΌΠΏΠ΅ — ΠΡΠ°Π½, ΡΠΏΡΠ°Π²Π»ΡΠ΅ΠΌΡΠΉ ΡΠΎ ΡΡΠ°ΡΠΈΠΎΠ½Π°ΡΠ½ΠΎΠ³ΠΎ ΠΏΠΎΡΡΠ° ΠΎΠΏΠ΅ΡΠ°ΡΠΎΡΠ°, Π½Π΅ ΠΏΡΠΈΠΊΡΠ΅ΠΏΠ»Π΅Π½Π½ΠΎΠ³ΠΎ ΠΊ ΠΊΡΠ°Π½Ρ.
Q
ΠΠ²Π°Π»ΠΈΡΠΈΡΠΈΡΠΎΠ²Π°Π½Π½ΠΎΠ΅ Π»ΠΈΡΠΎ — ΠΠΈΡΠΎ, ΠΊΠΎΡΠΎΡΠΎΠ΅, ΠΎΠ±Π»Π°Π΄Π°Ρ ΠΏΡΠΈΠ·Π½Π°Π½Π½ΠΎΠΉ ΡΡΠ΅ΠΏΠ΅Π½ΡΡ Π² ΡΠΎΠΎΡΠ²Π΅ΡΡΡΠ²ΡΡΡΠ΅ΠΉ ΠΎΠ±Π»Π°ΡΡΠΈ ΠΈΠ»ΠΈ ΡΠ΅ΡΡΠΈΡΠΈΠΊΠ°ΡΠΎΠΌ ΠΎ ΠΏΡΠΎΡΠ΅ΡΡΠΈΠΎΠ½Π°Π»ΡΠ½ΠΎΠΌ ΡΡΠ°ΡΡΡΠ΅, ΠΈΠ»ΠΈ ΠΊΠΎΡΠΎΡΠΎΠ΅ Π±Π»Π°Π³ΠΎΠ΄Π°ΡΡ ΠΎΠ±ΡΠΈΡΠ½ΡΠΌ Π·Π½Π°Π½ΠΈΡΠΌ, ΠΎΠ±ΡΡΠ΅Π½ΠΈΡ ΠΈ ΠΎΠΏΡΡΡ ΡΡΠΏΠ΅ΡΠ½ΠΎ ΠΏΡΠΎΠ΄Π΅ΠΌΠΎΠ½ΡΡΡΠΈΡΠΎΠ²Π°Π»ΠΎ ΡΠΏΠΎΡΠΎΠ±Π½ΠΎΡΡΡ ΡΠ΅ΡΠ°ΡΡ ΠΈΠ»ΠΈ ΡΠ°Π·ΡΠ΅ΡΠ°ΡΡ ΠΏΡΠΎΠ±Π»Π΅ΠΌΡ, ΡΠ²ΡΠ·Π°Π½Π½ΡΠ΅ Ρ ΠΏΡΠ΅Π΄ΠΌΠ΅ΡΠΎΠΌ ΠΈ ΡΠ°Π±ΠΎΡΠΎΠΉ.
R
ΠΡΠ»ΡΡ ΡΠ°Π΄ΠΈΠΎΡΠΏΡΠ°Π²Π»Π΅Π½ΠΈΡ β ΠΡΠ»ΡΡ ΡΠ°Π΄ΠΈΠΎΡΠΏΡΠ°Π²Π»Π΅Π½ΠΈΡ ΡΠ°Π±ΠΎΡΠ°Π΅Ρ ΡΠΎΡΠ½ΠΎ ΡΠ°ΠΊ ΠΆΠ΅, ΠΊΠ°ΠΊ ΠΏΠΎΠ΄Π²Π΅ΡΠ½ΠΎΠΉ ΠΏΡΠ»ΡΡ, Π½ΠΎ ΠΈΡΠΏΠΎΠ»ΡΠ·ΡΠ΅Ρ ΡΠ°Π΄ΠΈΠΎΡΠ°ΡΡΠΎΡΡ.
ΠΠΎΠΌΠΈΠ½Π°Π»ΡΠ½Π°Ρ Π½Π°Π³ΡΡΠ·ΠΊΠ° — ΠΠ°ΠΊΡΠΈΠΌΠ°Π»ΡΠ½Π°Ρ Π½Π°Π³ΡΡΠ·ΠΊΠ°, Π½Π° ΠΊΠΎΡΠΎΡΡΡ ΡΠ°ΡΡΡΠΈΡΠ°Π½ ΠΊΡΠ°Π½.
ΠΠ°ΠΏΠ°ΡΠΎΠ²ΠΊΠ° — Π‘ΠΈΡΡΠ΅ΠΌΠ°, Π² ΠΊΠΎΡΠΎΡΠΎΠΉ ΠΊΠ°Π½Π°Ρ ΠΈΠ»ΠΈ ΡΠ΅ΠΏΡ ΠΏΠ΅ΡΠ΅ΠΌΠ΅ΡΠ°ΡΡΡΡ Π²ΠΎΠΊΡΡΠ³ Π±Π°ΡΠ°Π±Π°Π½ΠΎΠ², ΡΠΊΠΈΠ²ΠΎΠ² ΠΈΠ»ΠΈ Π·Π²Π΅Π·Π΄ΠΎΡΠ΅ΠΊ.
ΠΡΠ°Π½ Ρ Π΄ΠΈΡΡΠ°Π½ΡΠΈΠΎΠ½Π½ΡΠΌ ΡΠΏΡΠ°Π²Π»Π΅Π½ΠΈΠ΅ΠΌ β ΠΡΠ°Π½ Ρ Π΄ΠΈΡΡΠ°Π½ΡΠΈΠΎΠ½Π½ΡΠΌ ΡΠΏΡΠ°Π²Π»Π΅Π½ΠΈΠ΅ΠΌ.
Π ΠΎΠ»ΠΈΠΊΠΎΠ²Π°Ρ ΡΠ΅ΠΏΡ β ΡΠ΅ΡΠΈΡ ΠΏΠΎΠΎΡΠ΅ΡΠ΅Π΄Π½ΠΎ ΡΠΎΠ±ΡΠ°Π½Π½ΡΡ ΡΠΎΠ»ΠΈΠΊΠΎΠ²ΡΡ ΠΈ ΡΡΠΈΡΡΠΎΠ²ΡΡ Π·Π²Π΅Π½ΡΠ΅Π², Π² ΠΊΠΎΡΠΎΡΡΡ ΡΡΠΈΡΡΡ Π²ΡΠ°ΡΠ°ΡΡΡΡ Π²Π½ΡΡΡΠΈ Π²ΡΡΠ»ΠΎΠΊ, Π° ΡΠΎΠ»ΠΈΠΊΠΈ ΠΌΠΎΠ³ΡΡ ΡΠ²ΠΎΠ±ΠΎΠ΄Π½ΠΎ Π²ΡΠ°ΡΠ°ΡΡΡΡ Π½Π° Π²ΡΡΠ»ΠΊΠ°Ρ . Π¨ΡΠΈΡΡΡ ΠΈ Π²ΡΡΠ»ΠΊΠΈ Π·Π°ΠΏΡΠ΅ΡΡΠΎΠ²Π°Π½Ρ Π² ΡΠΎΠΎΡΠ²Π΅ΡΡΡΠ²ΡΡΡΠΈΠ΅ ΡΠΎΠ΅Π΄ΠΈΠ½ΠΈΡΠ΅Π»ΡΠ½ΡΠ΅ ΠΏΠ»Π°ΡΡΠΈΠ½Ρ.
ΠΠ°Π½Π°Ρ — ΠΡΠΎΠ²ΠΎΠ»ΠΎΡΠ½ΡΠΉ ΠΊΠ°Π½Π°Ρ, Π΅ΡΠ»ΠΈ Π½Π΅ ΡΠΊΠ°Π·Π°Π½ΠΎ ΠΈΠ½ΠΎΠ΅.
ΠΡΠ°ΡΠ°ΡΡΠ°ΡΡΡ ΠΎΡΡ — ΠΡΡ, ΠΊΠΎΡΠΎΡΠ°Ρ Π²ΡΠ°ΡΠ°Π΅ΡΡΡ Π²ΠΌΠ΅ΡΡΠ΅ Ρ ΠΊΠΎΠ»Π΅ΡΠΎΠΌ.
Π₯ΠΎΠ΄ΠΎΠ²ΠΎΠΉ ΡΠΊΠΈΠ² — ΠΠΎΠ΄ΡΠ΅ΠΌΠ½ΡΠΉ ΡΠΊΠΈΠ², Π²ΡΠ°ΡΠ°ΡΡΠΈΠΉΡΡ ΠΏΡΠΈ ΠΏΠΎΠ΄ΡΠ΅ΠΌΠ΅ ΠΈΠ»ΠΈ ΠΎΠΏΡΡΠΊΠ°Π½ΠΈΠΈ Π³ΡΡΠ·ΠΎΠ²ΠΎΠ³ΠΎ Π±Π»ΠΎΠΊΠ°.
ΠΠΎΠ΄ΠΈΡΠΌ — Π Π΅Π»ΡΡΠΎΠ²ΡΠ΅ Π±Π°Π»ΠΊΠΈ, ΠΊΡΠΎΠ½ΡΡΠ΅ΠΉΠ½Ρ ΠΈ ΠΊΠΎΠ»ΠΎΠ½Π½Ρ, Π½Π° ΠΊΠΎΡΠΎΡΡΡ ΡΠ°Π±ΠΎΡΠ°Π΅Ρ ΠΊΡΠ°Π½.
ΠΠΎΠ΄ΡΠ΅Π·Π΄Π½ΡΠ΅ ΠΏΡΡΠΈ — ΠΡΠ½ΠΎΠ²Π½ΡΠ΅ ΠΏΡΠΎΠ²ΠΎΠ΄Π½ΠΈΠΊΠΈ, ΡΡΡΠ°Π½ΠΎΠ²Π»Π΅Π½Π½ΡΠ΅ Π½Π° ΠΏΠΎΠ΄ΡΠ΅Π·Π΄Π½ΡΡ
ΠΏΡΡΡΡ
ΠΈΠ»ΠΈ ΠΏΠ°ΡΠ°Π»Π»Π΅Π»ΡΠ½ΠΎ ΠΈΠΌ ΠΈ ΠΎΠ±Π΅ΡΠΏΠ΅ΡΠΈΠ²Π°ΡΡΠΈΠ΅ ΠΏΠΎΠ΄Π°ΡΡ ΡΠ»Π΅ΠΊΡΡΠΈΡΠ΅ΡΠΊΠΎΠ³ΠΎ ΡΠΎΠΊΠ° Π½Π° ΠΊΡΠ°Π½.
Π Π΅Π»ΡΡ Π²Π·Π»Π΅ΡΠ½ΠΎ-ΠΏΠΎΡΠ°Π΄ΠΎΡΠ½ΠΎΠΉ ΠΏΠΎΠ»ΠΎΡΡ β Π Π΅Π»ΡΡ, ΠΏΠΎΠ΄Π΄Π΅ΡΠΆΠΈΠ²Π°Π΅ΠΌΡΠΉ Π±Π°Π»ΠΊΠ°ΠΌΠΈ Π²Π·Π»Π΅ΡΠ½ΠΎ-ΠΏΠΎΡΠ°Π΄ΠΎΡΠ½ΠΎΠΉ ΠΏΠΎΠ»ΠΎΡΡ, ΠΏΠΎ ΠΊΠΎΡΠΎΡΡΠΌ Π΄Π²ΠΈΠΆΠ΅ΡΡΡ ΠΌΠΎΡΡ.
S
ΠΠΎΠ»ΡΠΊΠΎΠ·Π»ΠΎΠ²ΠΎΠΉ ΠΊΡΠ°Π½ — ΠΠΎΠ·Π»ΠΎΠ²ΠΎΠΉ ΠΊΡΠ°Π½ Ρ ΠΎΠ΄Π½ΠΈΠΌ ΠΊΠΎΠ½ΡΠΎΠΌ ΠΌΠΎΡΡΠ°, ΠΆΠ΅ΡΡΠΊΠΎ ΠΏΠΎΠ΄Π΄Π΅ΡΠΆΠΈΠ²Π°Π΅ΠΌΡΠΌ Π½Π° ΠΎΠ΄Π½ΠΎΠΉ ΠΈΠ»ΠΈ Π½Π΅ΡΠΊΠΎΠ»ΡΠΊΠΈΡ ΠΎΠΏΠΎΡΠ°Ρ , ΠΊΠΎΡΠΎΡΡΠ΅ ΠΏΠ΅ΡΠ΅Π΄Π²ΠΈΠ³Π°ΡΡΡΡ ΠΏΠΎ ΡΠΈΠΊΡΠΈΡΠΎΠ²Π°Π½Π½ΠΎΠΌΡ ΡΠ΅Π»ΡΡΡ ΠΈΠ»ΠΈ Π²Π·Π»Π΅ΡΠ½ΠΎ-ΠΏΠΎΡΠ°Π΄ΠΎΡΠ½ΠΎΠΉ ΠΏΠΎΠ»ΠΎΡΠ΅, Π° Π΄ΡΡΠ³ΠΎΠΉ ΠΊΠΎΠ½Π΅Ρ ΠΌΠΎΡΡΠ° ΠΏΠΎΠ΄Π΄Π΅ΡΠΆΠΈΠ²Π°Π΅ΡΡΡ Π³ΡΡΠ·ΠΎΠ²ΠΈΠΊΠΎΠΌ Π±Π΅Π³ ΠΏΠΎ ΡΡΡΠ°ΠΊΠ°Π΄Π΅ ΠΈΠ»ΠΈ Π²Π·Π»Π΅ΡΠ½ΠΎ-ΠΏΠΎΡΠ°Π΄ΠΎΡΠ½ΠΎΠΉ ΠΏΠΎΠ»ΠΎΡΠ΅.
ΠΠΎΠΊΠΎΠ²Π°Ρ ΡΡΠ³Π° — ΠΠΎΠΌΠΏΠΎΠ½Π΅Π½Ρ ΡΡΠ³ΠΈ ΠΏΠΎΠ΄ΡΠ΅ΠΌΠ½ΠΈΠΊΠ°, Π΄Π΅ΠΉΡΡΠ²ΡΡΡΠΈΠΉ Π³ΠΎΡΠΈΠ·ΠΎΠ½ΡΠ°Π»ΡΠ½ΠΎ, ΠΊΠΎΠ³Π΄Π° ΠΏΠΎΠ΄ΡΠ΅ΠΌΠ½ΡΠ΅ ΠΊΠ°Π½Π°ΡΡ Π½Π΅ ΡΠ°Π±ΠΎΡΠ°ΡΡ Π²Π΅ΡΡΠΈΠΊΠ°Π»ΡΠ½ΠΎ.
ΠΠ΄Π½ΠΎΠ±Π°Π»ΠΎΡΠ½ΡΠΉ — ΠΠΎΡΡΠΎΠ²ΠΎΠΉ ΠΊΡΠ°Π½, ΡΠΎΡΡΠΎΡΡΠΈΠΉ ΠΈΠ· Π΄Π²ΡΡ ΠΊΠΎΠ½ΡΠ΅Π²ΡΡ ΡΠ΅Π»Π΅ΠΆΠ΅ΠΊ, ΠΎΠ΄Π½ΠΎΠΉ ΠΌΠΎΡΡΠΎΠ²ΠΎΠΉ Π±Π°Π»ΠΊΠΈ ΠΈ ΡΠ΅Π»Π΅ΠΆΠΊΠΈ. Π’Π΅Π»Π΅ΠΆΠΊΠ° Π΄Π²ΠΈΠΆΠ΅ΡΡΡ ΠΏΠΎ Π½ΠΈΠΆΠ½Π΅ΠΌΡ ΡΠ»Π°Π½ΡΡ Π±Π°Π»ΠΊΠΈ ΠΌΠΎΡΡΠ°.
ΠΡΠΎΠ»Π΅Ρ β ΡΠΌ. ΠΡΠΎΠ»Π΅Ρ ΠΊΡΠ°Π½Π°
ΠΡΠΎΠ»Π΅Ρ (ΡΡΡΠ΅Π»ΠΎΠ²ΠΎΠΉ ΠΊΡΠ°Π½) β ΠΠ»Ρ ΡΡΡΠ΅Π»ΠΎΠ²ΠΎΠ³ΠΎ ΠΊΡΠ°Π½Π° ΠΏΡΠΎΠ»Π΅Ρ β ΡΡΠΎ ΡΠ°ΡΡΡΠΎΡΠ½ΠΈΠ΅ ΠΎΡ ΡΠ΅Π½ΡΡΠ° ΡΠΎΡΠΊΠΈ ΠΏΠΎΠ²ΠΎΡΠΎΡΠ° Π΄ΠΎ ΠΊΠΎΠ½ΡΠ° ΡΡΡΠ΅Π»Ρ. ΠΠ±ΡΠ°ΡΠΈΡΠ΅ Π²Π½ΠΈΠΌΠ°Π½ΠΈΠ΅, ΡΡΠΎ Β«ΠΏΡΠΎΠ»ΡΡΒ» Π±ΠΎΠ»ΡΡΠ΅ ΡΠ°ΠΊΡΠΈΡΠ΅ΡΠΊΠΎΠ³ΠΎ Β«ΡΠ°Π±ΠΎΡΠ΅Π³ΠΎ ΠΏΡΠΎΠ»ΡΡΠ°Β» ΠΈΠ»ΠΈ Β«Π·Π°Ρ
Π²Π°ΡΠ° ΠΊΡΡΠΊΠ°Β».
Π Π΅Π·Π΅ΡΠ²Π½ΡΠΉ ΠΊΡΠ°Π½ — ΠΡΠ°Π½, ΠΊΠΎΡΠΎΡΡΠΉ Π½Π΅ Π½Π°Ρ ΠΎΠ΄ΠΈΡΡΡ Π² ΠΏΠΎΡΡΠΎΡΠ½Π½ΠΎΠΉ ΡΠΊΡΠΏΠ»ΡΠ°ΡΠ°ΡΠΈΠΈ, Π½ΠΎ ΠΈΡΠΏΠΎΠ»ΡΠ·ΡΠ΅ΡΡΡ ΠΎΡ ΡΠ»ΡΡΠ°Ρ ΠΊ ΡΠ»ΡΡΠ°Ρ ΠΈΠ»ΠΈ Ρ ΠΏΠ΅ΡΠ΅ΡΡΠ²Π°ΠΌΠΈ ΠΏΠΎ ΠΌΠ΅ΡΠ΅ Π½Π΅ΠΎΠ±Ρ ΠΎΠ΄ΠΈΠΌΠΎΡΡΠΈ.
ΠΠ³ΡΠ°Π½ΠΈΡΠΈΡΠ΅Π»Ρ — Π£ΡΡΡΠΎΠΉΡΡΠ²ΠΎ Π΄Π»Ρ ΠΎΠ³ΡΠ°Π½ΠΈΡΠ΅Π½ΠΈΡ Ρ ΠΎΠ΄Π° ΡΠ΅Π»Π΅ΠΆΠΊΠΈ ΠΈΠ»ΠΈ ΠΊΡΠ°Π½ΠΎΠ²ΠΎΠ³ΠΎ ΠΌΠΎΡΡΠ°. ΠΡΠΎ ΡΡΡΡΠΎΠΉΡΡΠ²ΠΎ ΠΎΠ±ΡΡΠ½ΠΎ ΠΊΡΠ΅ΠΏΠΈΡΡΡ ΠΊ ΡΡΠ°ΡΠΈΠΎΠ½Π°ΡΠ½ΠΎΠΉ ΠΊΠΎΠ½ΡΡΡΡΠΊΡΠΈΠΈ ΠΈ Π½Π΅ ΠΎΠ±Π»Π°Π΄Π°Π΅Ρ ΡΠΏΠΎΡΠΎΠ±Π½ΠΎΡΡΡΡ ΠΏΠΎΠ³Π»ΠΎΡΠ°ΡΡ ΡΠ½Π΅ΡΠ³ΠΈΡ.
ΠΠΎΡΡΠΎΠ²ΠΎΠΉ ΠΊΡΠ°Π½ Π΄Π»Ρ Ρ ΡΠ°Π½Π΅Π½ΠΈΡ — ΠΠΎΠ·Π»ΠΎΠ²ΠΎΠΉ ΠΊΡΠ°Π½ Ρ Π±ΠΎΠ»ΡΡΠΈΠΌ ΠΏΡΠΎΠ»Π΅ΡΠΎΠΌ, ΠΈΡΠΏΠΎΠ»ΡΠ·ΡΠ΅ΠΌΡΠΉ Π΄Π»Ρ Π±Π΅ΡΡΠ°ΡΠ½ΠΎΠ³ΠΎ Ρ ΡΠ°Π½Π΅Π½ΠΈΡ ΠΌΠ°ΡΠ΅ΡΠΈΠ°Π»ΠΎΠ²; Π±Π°Π»ΠΊΠΈ ΠΈΠ»ΠΈ ΡΠ΅ΡΠΌΡ ΠΌΠΎΡΡΠ° ΠΆΠ΅ΡΡΠΊΠΎ ΠΈΠ»ΠΈ Π½Π΅ΠΆΠ΅ΡΡΠΊΠΎ ΠΎΠΏΠΈΡΠ°ΡΡΡΡ Π½Π° ΠΎΠ΄Π½Ρ ΠΈΠ»ΠΈ Π½Π΅ΡΠΊΠΎΠ»ΡΠΊΠΎ ΠΎΠΏΠΎΡ. ΠΠ½ ΠΌΠΎΠΆΠ΅Ρ ΠΈΠΌΠ΅ΡΡ ΠΎΠ΄ΠΈΠ½ ΠΈΠ»ΠΈ Π½Π΅ΡΠΊΠΎΠ»ΡΠΊΠΎ ΡΠΈΠΊΡΠΈΡΠΎΠ²Π°Π½Π½ΡΡ ΠΈΠ»ΠΈ ΡΠ°ΡΠ½ΠΈΡΠ½ΡΡ ΠΊΠΎΠ½ΡΠΎΠ»ΡΠ½ΡΡ ΠΊΠΎΠ½ΡΠΎΠ².
ΠΠΏΠΎΡΠ½Π°Ρ ΠΊΠΎΠ»ΠΎΠ½Π½Π° — ΠΡΠ΄Π΅Π»ΡΠ½Π°Ρ ΠΊΠΎΠ»ΠΎΠ½Π½Π°, ΠΏΠΎΠ΄Π΄Π΅ΡΠΆΠΈΠ²Π°ΡΡΠ°Ρ ΠΎΠΏΠΎΡΠ½ΡΡ Π±Π°Π»ΠΊΡ ΠΏΠΎΠ΄ΡΠ΅ΠΌΠ½ΠΎΠ³ΠΎ ΠΊΡΠ°Π½Π°.
ΠΠΏΠΎΡΠ½Π°Ρ ΠΊΠΎΠ½ΡΡΡΡΠΊΡΠΈΡ (ΡΡΡΠ΅Π»ΠΎΠ²ΠΎΠΉ ΠΊΡΠ°Π½) — ΠΠ»Ρ ΠΎΡΠ΄Π΅Π»ΡΠ½ΠΎ ΡΡΠΎΡΡΠ΅Π³ΠΎ ΡΡΡΠ΅Π»ΠΎΠ²ΠΎΠ³ΠΎ ΠΊΡΠ°Π½Π° ΠΎΠΏΠΎΡΠ½ΠΎΠΉ ΠΊΠΎΠ½ΡΡΡΡΠΊΡΠΈΠ΅ΠΉ ΡΠ²Π»ΡΠ΅ΡΡΡ ΡΡΠ½Π΄Π°ΠΌΠ΅Π½Ρ, ΠΊ ΠΊΠΎΡΠΎΡΠΎΠΌΡ ΠΊΡΠ°Π½ ΠΊΡΠ΅ΠΏΠΈΡΡΡ Π±ΠΎΠ»ΡΠ°ΠΌΠΈ ΠΈΠ»ΠΈ Π² ΠΊΠΎΡΠΎΡΡΠΉ Π²ΠΆΠΈΠ²Π»ΡΠ΅ΡΡΡ.
ΠΠ»Ρ Π½Π°ΡΡΠ΅Π½Π½ΠΎΠ³ΠΎ ΠΊΡΠΎΠ½ΡΡΠ΅ΠΉΠ½Π° ΠΈΠ»ΠΈ Π½Π°ΡΡΠ΅Π½Π½ΠΎΠ³ΠΎ ΠΊΠΎΠ½ΡΠΎΠ»ΡΠ½ΠΎΠ³ΠΎ ΡΡΡΠ΅Π»ΠΎΠ²ΠΎΠ³ΠΎ ΠΊΡΠ°Π½Π° ΠΎΠΏΠΎΡΠ½ΠΎΠΉ ΠΊΠΎΠ½ΡΡΡΡΠΊΡΠΈΠ΅ΠΉ ΡΠ²Π»ΡΠ΅ΡΡΡ ΡΡΠ΅Π½Π° ΠΈΠ»ΠΈ ΠΊΠΎΠ»ΠΎΠ½Π½Π°, ΠΊ ΠΊΠΎΡΠΎΡΠΎΠΉ ΠΊΡΠ΅ΠΏΠΈΡΡΡ ΠΊΡΠ°Π½. Π‘ΡΡΠ΅Π»ΠΎΠ²ΡΠ΅ ΠΊΡΠ°Π½Ρ ΠΌΠ°ΡΡΠΎΠ²ΠΎΠ³ΠΎ ΡΠΈΠΏΠ° ΠΈΠΌΠ΅ΡΡ Π½Π΅ΡΡΡΡΡ ΠΊΠΎΠ½ΡΡΡΡΠΊΡΠΈΡ ΠΊΠ°ΠΊ Π½Π° ΠΏΠΎΡΠΎΠ»ΠΊΠ΅, ΡΠ°ΠΊ ΠΈ Π½Π° ΠΏΠΎΠ»Ρ.
ΠΠΎΠ΄Π²Π΅ΡΠ½Π°Ρ ΡΠΈΡΡΠ΅ΠΌΠ° — Π‘ΠΈΡΡΠ΅ΠΌΠ° (ΠΆΠ΅ΡΡΠΊΠ°Ρ ΠΈΠ»ΠΈ Π³ΠΈΠ±ΠΊΠ°Ρ), ΠΈΡΠΏΠΎΠ»ΡΠ·ΡΠ΅ΠΌΠ°Ρ Π΄Π»Ρ ΠΏΠΎΠ΄Π²Π΅ΡΠΈΠ²Π°Π½ΠΈΡ ΠΎΠΏΠΎΡΠ½ΡΡ Π±Π°Π»ΠΎΠΊ ΠΏΠΎΠ΄Π²Π΅ΡΠ½ΡΡ ΠΈΠ»ΠΈ ΠΌΠΎΠ½ΠΎΡΠ΅Π»ΡΡΠΎΠ²ΡΡ ΠΊΡΠ°Π½ΠΎΠ² ΠΊ ΡΡΡΠΎΠΏΠΈΠ»Π°ΠΌ ΠΊΠ°ΡΠΊΠ°ΡΠ° Π·Π΄Π°Π½ΠΈΡ.
ΠΠ΅ΡΠ΅ΠΊΠ»ΡΡΠ°ΡΠ΅Π»Ρ — Π£ΡΡΡΠΎΠΉΡΡΠ²ΠΎ Π΄Π»Ρ Π²ΠΊΠ»ΡΡΠ΅Π½ΠΈΡ, ΠΎΡΠΊΠ»ΡΡΠ΅Π½ΠΈΡ ΠΈΠ»ΠΈ ΠΈΠ·ΠΌΠ΅Π½Π΅Π½ΠΈΡ ΡΠΎΠ΅Π΄ΠΈΠ½Π΅Π½ΠΈΠΉ Π² ΡΠ»Π΅ΠΊΡΡΠΈΡΠ΅ΡΠΊΠΎΠΉ ΠΈΠ»ΠΈ ΠΏΠ½Π΅Π²ΠΌΠ°ΡΠΈΡΠ΅ΡΠΊΠΎΠΉ ΡΠ΅ΠΏΠΈ (ΠΊΠ»Π°ΠΏΠ°Π½).
T
Π’ΡΠ³Π° ΠΈ ΡΡΠ³Π° — Π‘ΠΈΠ»Ρ, Π΄Π΅ΠΉΡΡΠ²ΡΡΡΠΈΠ΅ ΡΡΡΠ΅Π»ΠΎΠ²ΡΠΌ ΠΊΡΠ°Π½ΠΎΠΌ Π½Π° Π΅Π³ΠΎ ΠΎΠΏΠΎΡΠ½ΡΡ ΠΊΠΎΠ½ΡΡΡΡΠΊΡΠΈΡ. Π’ΡΠ³Π° β ΡΡΠΎ ΡΠΎΠ»ΠΊΠ°ΡΡΠ°Ρ (ΠΈΠ»ΠΈ ΡΠΆΠΈΠΌΠ°ΡΡΠ°Ρ) ΡΠΈΠ»Π°, Π΄Π΅ΠΉΡΡΠ²ΡΡΡΠ°Ρ Π½Π° ΠΊΠΎΠ½ΡΡΡΡΠΊΡΠΈΡ, Π° Π’ΡΠ³Π° β ΡΠΈΠ»Π° ΡΠ°ΡΡΡΠΆΠ΅Π½ΠΈΡ. Π’ΡΠ³Π° ΠΈ Π’ΡΠ³Π°, ΡΠ°ΠΊΠΈΠΌ ΠΎΠ±ΡΠ°Π·ΠΎΠΌ, ΡΠ°Π²Π½Ρ (Π½ΠΎ ΠΏΡΠΎΡΠΈΠ²ΠΎΠΏΠΎΠ»ΠΎΠΆΠ½Ρ ΠΏΠΎ Π½Π°ΠΏΡΠ°Π²Π»Π΅Π½ΠΈΡ) Π΄ΡΡΠ³ Π΄ΡΡΠ³Ρ. ΠΠ°ΠΊΡΠΈΠΌΠ°Π»ΡΠ½Π°Ρ ΡΡΠ³Π° ΠΈ ΡΡΠ³Π° Π²ΠΎΠ·Π½ΠΈΠΊΠ°ΡΡ, ΠΊΠΎΠ³Π΄Π° ΠΊΡΠ°Π½ Π·Π°Π³ΡΡΠΆΠ΅Π½ Π½Π° ΠΏΠΎΠ»Π½ΡΡ ΠΌΠΎΡΠ½ΠΎΡΡΡ.
Π’Π΅Π»Π΅ΠΆΠΊΠ° — ΠΠ΅Ρ
Π°Π½ΠΈΠ·ΠΌ, ΠΊΠΎΡΠΎΡΡΠΉ ΠΏΠ΅ΡΠ΅ΠΌΠ΅ΡΠ°Π΅Ρ ΠΏΠΎΠ΄ΡΠ΅ΠΌΠ½ΠΈΠΊ ΡΠ΅ΡΠ΅Π· ΠΏΡΠΎΠ»ΠΈΠ² Π²Π΄ΠΎΠ»Ρ ΠΌΠΎΡΡΠΎΠ²ΠΎΠΉ Π±Π°Π»ΠΊΠΈ, ΠΏΠ΅ΡΠ΅ΠΌΠ΅ΡΠ°ΡΡΠ΅ΠΉ ΠΏΡΠΎΠ»Π΅Ρ.
ΠΠΎΠ΄ΡΠ΅ΠΌΠ½ΠΈΠΊ ΡΠ΅Π»Π΅ΠΆΠΊΠΈ — ΠΠ»ΠΎΠΊ, ΡΠΎΡΡΠΎΡΡΠΈΠΉ ΠΈΠ· ΠΏΠΎΠ΄ΡΠ΅ΠΌΠ½ΠΈΠΊΠ° ΠΈ ΡΠ°ΠΌΡ ΡΠ΅Π»Π΅ΠΆΠΊΠΈ.
ΠΠ΅ΡΠ΅Π΄Π²ΠΈΠΆΠ΅Π½ΠΈΠ΅ ΡΠ΅Π»Π΅ΠΆΠΊΠΈ — ΠΠ²ΠΈΠΆΠ΅Π½ΠΈΠ΅ ΡΠ΅Π»Π΅ΠΆΠΊΠΈ ΠΏΠ΅ΡΠΏΠ΅Π½Π΄ΠΈΠΊΡΠ»ΡΡΠ½ΠΎ ΠΏΠΎΠ΄ΠΊΡΠ°Π½ΠΎΠ²ΠΎΠΌΡ ΠΏΡΡΠΈ
Π’Π΅Π»Π΅ΠΆΠΊΠ° [Endtruck] — Π£Π·Π΅Π», ΡΠΎΡΡΠΎΡΡΠΈΠΉ ΠΈΠ· ΡΠ°ΠΌΡ, ΠΊΠΎΠ»Π΅Ρ, ΠΏΠΎΠ΄ΡΠΈΠΏΠ½ΠΈΠΊΠΎΠ² ΠΈ ΠΎΡΠ΅ΠΉ, ΠΏΠΎΠ΄Π΄Π΅ΡΠΆΠΈΠ²Π°ΡΡΠΈΡ ΠΌΠΎΡΡ, Π±Π°Π»ΠΊΠΈ ΠΈΠ»ΠΈ ΡΠ΅Π»Π΅ΠΆΠΊΠΈ.
ΠΠ΅ΡΡ Π½ΠΈΠΉ Ρ ΠΎΠ΄ β ΠΠΎΡΡ ΠΊΡΠ°Π½Π° ΠΏΠ΅ΡΠ΅ΠΌΠ΅ΡΠ°Π΅ΡΡΡ ΠΏΠΎΠ²Π΅ΡΡ Ρ ΡΠ΅Π»ΡΡΠΎΠ², Π·Π°ΠΊΡΠ΅ΠΏΠ»Π΅Π½Π½ΡΡ Π½Π° ΠΎΠΏΠΎΡΠ½ΠΎΠΉ Π±Π°Π»ΠΊΠ΅, ΠΏΠΎΠ΄Π΄Π΅ΡΠΆΠΈΠ²Π°Π΅ΠΌΠΎΠΉ Π»ΠΈΠ±ΠΎ ΠΊΠΎΠ»ΠΎΠ½Π½Π°ΠΌΠΈ Π·Π΄Π°Π½ΠΈΡ, Π»ΠΈΠ±ΠΎ ΠΊΠΎΠ»ΠΎΠ½Π½Π°ΠΌΠΈ, ΡΠΏΠ΅ΡΠΈΠ°Π»ΡΠ½ΠΎ ΡΠΏΡΠΎΠ΅ΠΊΡΠΈΡΠΎΠ²Π°Π½Π½ΡΠΌΠΈ Π΄Π»Ρ ΠΊΡΠ°Π½Π°.
U
ΠΠΎΠ΄ Ρ ΠΎΠ΄ΠΎΠ²ΡΠΌ ΠΊΡΠ°Π½ΠΎΠΌ — ΠΠΎΡΡ ΠΊΡΠ°Π½Π° ΠΏΠ΅ΡΠ΅ΠΌΠ΅ΡΠ°Π΅ΡΡΡ ΠΏΠΎ Π½ΠΈΠΆΠ½Π΅ΠΌΡ ΠΏΠΎΡΡΡ ΠΏΠΎΠ΄ΠΊΡΠ°Π½ΠΎΠ²ΠΎΠΉ Π±Π°Π»ΠΊΠΈ, ΠΊΠΎΡΠΎΡΠ°Ρ ΠΎΠ±ΡΡΠ½ΠΎ ΠΏΠΎΠ΄Π΄Π΅ΡΠΆΠΈΠ²Π°Π΅ΡΡΡ ΠΊΠΎΠ½ΡΡΡΡΠΊΡΠΈΠ΅ΠΉ ΠΊΡΡΡΠΈ.
Π
Π§Π°ΡΡΠΎΡΠ½ΠΎ-ΡΠ΅Π³ΡΠ»ΠΈΡΡΠ΅ΠΌΡΠΉ ΠΏΡΠΈΠ²ΠΎΠ΄ (VFD) — Π£ΡΡΡΠΎΠΉΡΡΠ²ΠΎ, ΠΈΡΠΏΠΎΠ»ΡΠ·ΡΠ΅ΠΌΠΎΠ΅ Π² ΡΠΎΡΠ΅ΡΠ°Π½ΠΈΠΈ Ρ ΠΏΠΎΠ΄Π²Π΅ΡΠ½ΡΠΌ ΠΏΡΠ»ΡΡΠΎΠΌ Π΄Π»Ρ ΠΈΠ·ΠΌΠ΅Π½Π΅Π½ΠΈΡ ΡΠ°ΡΡΠΎΡΡ Π΄Π²ΠΈΠ³Π°ΡΠ΅Π»Π΅ΠΉ, ΡΠΏΡΠ°Π²Π»ΡΡΡΠΈΡ Π΄Π²ΠΈΠΆΠ΅Π½ΠΈΠ΅ΠΌ, ΠΎΠ±Π΅ΡΠΏΠ΅ΡΠΈΠ²Π°Ρ ΠΏΠ»Π°Π²Π½ΠΎΠ΅ ΡΡΠΊΠΎΡΠ΅Π½ΠΈΠ΅ ΠΈ Π·Π°ΠΌΠ΅Π΄Π»Π΅Π½ΠΈΠ΅.
W
ΠΠ°ΡΡΠ΅Π½Π½ΡΠΉ ΠΊΡΠ°Π½ — ΠΡΠ°Π½ ΡΠΎ ΡΡΡΠ΅Π»ΠΎΠΉ Ρ ΡΠ΅Π»Π΅ΠΆΠΊΠΎΠΉ ΠΈΠ»ΠΈ Π±Π΅Π· ΡΠ΅Π»Π΅ΠΆΠΊΠΈ, ΠΏΠΎΠ΄Π΄Π΅ΡΠΆΠΈΠ²Π°Π΅ΠΌΡΠΉ Π±ΠΎΠΊΠΎΠ²ΠΎΠΉ ΡΡΠ΅Π½ΠΎΠΉ ΠΈΠ»ΠΈ Π»ΠΈΠ½ΠΈΠ΅ΠΉ ΠΊΠΎΠ»ΠΎΠ½Π½ Π·Π΄Π°Π½ΠΈΡ.
ΠΡΠΎ ΠΏΠ΅ΡΠ΅Π΄Π²ΠΈΠΆΠ½ΠΎΠΉ ΡΠΈΠΏ, ΠΊΠΎΡΠΎΡΡΠΉ ΡΠ°Π±ΠΎΡΠ°Π΅Ρ Π½Π° Π²Π·Π»Π΅ΡΠ½ΠΎ-ΠΏΠΎΡΠ°Π΄ΠΎΡΠ½ΠΎΠΉ ΠΏΠΎΠ»ΠΎΡΠ΅, ΠΏΡΠΈΠΊΡΠ΅ΠΏΠ»Π΅Π½Π½ΠΎΠΉ ΠΊ Π±ΠΎΠΊΠΎΠ²ΠΎΠΉ ΡΡΠ΅Π½Π΅ ΠΈΠ»ΠΈ ΠΊΠΎΠ»ΠΎΠ½Π½Π°ΠΌ.
Π¦Π΅ΠΏΡ ΡΠΎ ΡΠ²Π°ΡΠ½ΡΠΌΠΈ Π·Π²Π΅Π½ΡΡΠΌΠΈ — ΠΠΎΠ΄ΡΠ΅ΠΌΠ½Π°Ρ ΡΠ΅ΠΏΡ, ΡΠΎΡΡΠΎΡΡΠ°Ρ ΠΈΠ· ΡΡΠ΄Π° ΠΏΠ΅ΡΠ΅ΠΏΠ»Π΅ΡΠ΅Π½Π½ΡΡ Π·Π²Π΅Π½ΡΠ΅Π², ΡΡΠΎΡΠΌΠΈΡΠΎΠ²Π°Π½Π½ΡΡ ΠΈ ΡΠ²Π°ΡΠ΅Π½Π½ΡΡ .
ΠΠΎΠ»Π΅ΡΠ½Π°Ρ Π±Π°Π·Π° — Π Π°ΡΡΡΠΎΡΠ½ΠΈΠ΅ ΠΎΡ ΡΠ΅Π½ΡΡΠ° Π΄ΠΎ ΡΠ΅Π½ΡΡΠ° ΠΊΡΠ°ΠΉΠ½ΠΈΡ ΠΊΠΎΠ»Π΅Ρ.
ΠΠ°Π³ΡΡΠ·ΠΊΠ° Π½Π° ΠΊΠΎΠ»Π΅ΡΠΎ — ΠΠ°Π³ΡΡΠ·ΠΊΠ° Π±Π΅Π· Π²ΠΎΠ·Π΄Π΅ΠΉΡΡΠ²ΠΈΡ Π½Π° Π»ΡΠ±ΠΎΠ΅ ΠΊΠΎΠ»Π΅ΡΠΎ, ΠΊΠΎΠ³Π΄Π° ΡΠ΅Π»Π΅ΠΆΠΊΠ° ΠΈ ΠΏΠΎΠ΄Π½ΡΡΡΠΉ Π³ΡΡΠ· (Π½ΠΎΠΌΠΈΠ½Π°Π»ΡΠ½Π°Ρ Π³ΡΡΠ·ΠΎΠΏΠΎΠ΄ΡΠ΅ΠΌΠ½ΠΎΡΡΡ) ΡΠ°ΡΠΏΠΎΠ»ΠΎΠΆΠ΅Π½Ρ Π½Π° ΠΌΠΎΡΡΡ ΡΠ°ΠΊ, ΡΡΠΎΠ±Ρ ΠΎΠ±Π΅ΡΠΏΠ΅ΡΠΈΡΡ ΠΌΠ°ΠΊΡΠΈΠΌΠ°Π»ΡΠ½ΡΡ Π½Π°Π³ΡΡΠ·ΠΊΡ.
ΠΠ°Π½Π°ΡΠ½Π°Ρ Π»Π΅Π±Π΅Π΄ΠΊΠ° — ΠΡΠ΅Π½Ρ ΠΏΡΠΎΡΠ½Π°Ρ Π»Π΅Π±Π΅Π΄ΠΊΠ°, ΡΠ°ΡΡΡΠΈΡΠ°Π½Π½Π°Ρ Π½Π° Π΄Π»ΠΈΡΠ΅Π»ΡΠ½ΠΎΠ΅ ΠΈ Π½Π°Π΄Π΅ΠΆΠ½ΠΎΠ΅ ΠΈΡΠΏΠΎΠ»ΡΠ·ΠΎΠ²Π°Π½ΠΈΠ΅.
Π Π°Π±ΠΎΡΠΈΠΉ ΠΏΡΠΎΠ»Π΅Ρ — Π Π°Π±ΠΎΡΠΈΠΉ ΠΏΡΠΎΠ»Π΅Ρ (ΠΈΠ»ΠΈ ΠΎΡ Π²Π°Ρ ΠΊΡΡΠΊΠ°) ΡΡΡΠ΅Π»ΠΎΠ²ΠΎΠ³ΠΎ ΠΊΡΠ°Π½Π° ΠΌΠ΅Π½ΡΡΠ΅, ΡΠ΅ΠΌ ΠΏΡΠΎΠ»Π΅Ρ ΠΊΡΠ°Π½Π°. ΠΡΠΎ ΡΡΠ½ΠΊΡΠΈΡ ΠΌΠ°ΠΊΡΠΈΠΌΠ°Π»ΡΠ½ΠΎΠ³ΠΎ Π²ΡΠ»Π΅ΡΠ° ΠΊΡΡΠΊΠ° ΠΈ Π²ΠΎΠ·ΠΌΠΎΠΆΠ½ΠΎΡΡΠΈ ΠΏΠΎΠ΄Π²Π΅ΡΡΠΈ ΡΠ΅Π»Π΅ΠΆΠΊΡ Π±Π»ΠΈΠ·ΠΊΠΎ ΠΊ ΠΌΠ°ΡΡΠ΅. Π Π°Π±ΠΎΡΠΈΠΉ ΠΏΡΠΎΠ»Π΅Ρ = (ΡΠ°ΡΡΡΠΎΡΠ½ΠΈΠ΅ ΠΌΠ΅ΠΆΠ΄Ρ ΡΠΏΠΎΡΠ°ΠΌΠΈ ΡΠ΅Π»Π΅ΠΆΠΊΠΈ) — (Π΄Π»ΠΈΠ½Π° ΠΏΠΎΠ΄ΡΠ΅ΠΌΠ½ΠΎΠΉ ΡΠ΅Π»Π΅ΠΆΠΊΠΈ)
ΠΠ±ΡΠΈΠΉ ΠΎΠ±Π·ΠΎΡ ΠΊΡΠ°Π½ΠΎΠ² ΠΌΠ°ΡΠΈΠ½Π½ΠΎΠ³ΠΎ ΠΎΡΠ΄Π΅Π»Π΅Π½ΠΈΡ ΠΈ ΠΌΠ΅Ρ Π±Π΅Π·ΠΎΠΏΠ°ΡΠ½ΠΎΡΡΠΈ
ByAnish
ΠΠΎΡΡΠΊΠ°Ρ Π±Π΅Π·ΠΎΠΏΠ°ΡΠ½ΠΎΡΡΡ
ΠΠΎΡΠ°Π±Π»Ρ β ΡΡΠΎ ΠΎΠ³ΡΠΎΠΌΠ½Π°Ρ ΠΏΠ»Π°Π²ΡΡΠ°Ρ ΠΊΠΎΠ½ΡΡΡΡΠΊΡΠΈΡ, ΠΊΠΎΡΠΎΡΠ°Ρ ΠΏΡΠΈΠ²ΠΎΠ΄ΠΈΡΡΡ Π² Π΄Π²ΠΈΠΆΠ΅Π½ΠΈΠ΅ Ρ ΠΏΠΎΠΌΠΎΡΡΡ Π³Π»Π°Π²Π½ΠΎΠ³ΠΎ Π΄Π²ΠΈΠ³Π°ΡΠ΅Π»Ρ, Π° ΡΠ°ΠΊΠΆΠ΅ Π½Π΅ΡΠΊΠΎΠ»ΡΠΊΠΈΡ Π΄ΡΡΠ³ΠΈΡ ΠΌΠ΅Ρ Π°Π½ΠΈΠ·ΠΌΠΎΠ² ΠΈ ΡΠΈΡΡΠ΅ΠΌ Π²Π½ΡΡΡΠΈ ΠΌΠ°ΡΠΈΠ½Π½ΠΎΠ³ΠΎ ΠΎΡΠ΄Π΅Π»Π΅Π½ΠΈΡ, ΠΊΠΎΡΠΎΡΡΠ΅ ΡΡΠ΅Π±ΡΡΡ ΠΏΡΠ°Π²ΠΈΠ»ΡΠ½ΠΎΠΉ ΡΠΊΡΠΏΠ»ΡΠ°ΡΠ°ΡΠΈΠΈ ΠΈ ΠΏΠΎΡΡΠΎΡΠ½Π½ΠΎΠ³ΠΎ ΠΎΠ±ΡΠ»ΡΠΆΠΈΠ²Π°Π½ΠΈΡ. Π’Π΅Ρ Π½ΠΈΡΠ΅ΡΠΊΠΎΠ΅ ΠΎΠ±ΡΠ»ΡΠΆΠΈΠ²Π°Π½ΠΈΠ΅ ΠΈ ΡΠ΅ΠΌΠΎΠ½Ρ ΠΌΠ°ΡΠΈΠ½Π½ΠΎΠ³ΠΎ ΠΎΡΠ΄Π΅Π»Π΅Π½ΠΈΡ ΡΡΠ΅Π±ΡΡΡ ΠΏΠ΅ΡΠ΅ΠΌΠ΅ΡΠ΅Π½ΠΈΡ ΡΡΠΆΠ΅Π»ΡΡ Π΄Π΅ΡΠ°Π»Π΅ΠΉ Ρ ΠΎΠ΄Π½ΠΎΠ³ΠΎ ΠΌΠ΅ΡΡΠ° Π½Π° Π΄ΡΡΠ³ΠΎΠ΅.
ΠΠΎΡΠΊΠΎΠ»ΡΠΊΡ ΠΎΡΠ΄Π΅Π»ΡΠ½ΡΠ΅ ΡΠ°ΡΡΠΈ Π³Π»Π°Π²Π½ΠΎΠ³ΠΎ Π΄Π²ΠΈΠ³Π°ΡΠ΅Π»Ρ ΠΈ ΠΌΠ΅Ρ Π°Π½ΠΈΠ·ΠΌΠ° ΠΊΠΎΡΠ°Π±Π»Ρ Π²Π΅ΡΡΡ ΡΠΎΠ½Π½Ρ, ΡΠ°Π±ΠΎΡΠ° ΠΊΡΠ°Π½Π° ΠΌΠ°ΡΠΈΠ½Π½ΠΎΠ³ΠΎ ΠΎΡΠ΄Π΅Π»Π΅Π½ΠΈΡ ΠΈ Π±Π΅Π·ΠΎΠΏΠ°ΡΠ½ΠΎΡΡΡ ΠΈΠ³ΡΠ°ΡΡ Π²Π°ΠΆΠ½ΡΡ ΡΠΎΠ»Ρ Π² Π½Π΅ΠΏΡΠ΅ΡΡΠ²Π½ΠΎΠΉ ΡΠΊΡΠΏΠ»ΡΠ°ΡΠ°ΡΠΈΠΈ ΠΊΠΎΡΠ°Π±Π»Ρ. Π ΡΡΠΎΠΉ ΡΡΠ°ΡΡΠ΅ ΠΌΡ ΡΠ·Π½Π°Π΅ΠΌ ΠΎΠ± ΠΎΠ΄Π½ΠΎΠΌ ΡΠ°ΠΊΠΎΠΌ ΠΎΠ±ΠΎΡΡΠ΄ΠΎΠ²Π°Π½ΠΈΠΈ, ΠΊΠΎΡΠΎΡΠΎΠ΅ ΠΎΡΠ΅Π½Ρ ΠΏΠΎΠΌΠΎΠ³Π°Π΅Ρ Π² ΡΡΠΎΠΌ ΠΏΡΠΎΡΠ΅ΡΡΠ΅, β ΠΊΡΠ°Π½Π΅ ΠΌΠ°ΡΠΈΠ½Π½ΠΎΠ³ΠΎ ΠΎΡΠ΄Π΅Π»Π΅Π½ΠΈΡ.
ΠΠ±ΡΠ΅Π΅ ΠΎΠΏΠΈΡΠ°Π½ΠΈΠ΅ ΠΊΡΠ°Π½ΠΎΠ² ΠΌΠ°ΡΠΈΠ½Π½ΠΎΠ³ΠΎ ΠΎΡΠ΄Π΅Π»Π΅Π½ΠΈΡ
Π’ΠΎΡΠ³ΠΎΠ²ΡΠ΅ ΡΡΠ΄Π° ΠΎΡΠ½Π°ΡΠ΅Π½Ρ ΠΊΡΠ°Π½Π°ΠΌΠΈ ΠΌΠ°ΡΠΈΠ½Π½ΠΎΠ³ΠΎ ΠΎΡΠ΄Π΅Π»Π΅Π½ΠΈΡ Π² ΠΎΡΠ½ΠΎΠ²Π½ΠΎΠΌ Π² ΡΠΎΠΎΡΠ²Π΅ΡΡΡΠ²ΠΈΠΈ ΡΠΎ ΡΠΏΠ΅ΡΠΈΡΠΈΠΊΠ°ΡΠΈΠ΅ΠΉ Π³Π»Π°Π²Π½ΠΎΠ³ΠΎ Π΄Π²ΠΈΠ³Π°ΡΠ΅Π»Ρ. ΠΡΠΎ ΡΠ΄Π΅Π»Π°Π½ΠΎ Π΄Π»Ρ ΡΠΎΠ³ΠΎ, ΡΡΠΎΠ±Ρ ΠΊΡΠ°Π½ ΠΌΠΎΠ³ ΠΏΠΎΠ΄Π½ΠΈΠΌΠ°ΡΡ Π²ΡΠ΅ ΠΎΡΠ΄Π΅Π»ΡΠ½ΡΠ΅ ΡΠ°ΡΡΠΈ Π΄Π²ΠΈΠ³Π°ΡΠ΅Π»Ρ Π²ΠΎ Π²ΡΠ΅ΠΌΡ ΡΠ΅Π³Π»Π°ΠΌΠ΅Π½ΡΠ½ΡΡ
ΡΠ°Π±ΠΎΡ.
ΠΠ±ΡΡΠ½ΠΎ Π΄ΠΈΠ°ΠΏΠ°Π·ΠΎΠ½ Π³ΡΡΠ·ΠΎΠΏΠΎΠ΄ΡΠ΅ΠΌΠ½ΠΎΡΡΠΈ ΡΡΠΈΡ
ΠΊΡΠ°Π½ΠΎΠ² ΡΠΎΡΡΠ°Π²Π»ΡΠ΅Ρ ΠΎΡ 0,5 Π΄ΠΎ 15 ΡΠΎΠ½Π½.
ΠΠ½ΠΎΠ³Π΄Π° Π΄Π²Π° ΠΊΡΠ°Π½Π° ΡΡΡΠ°Π½Π°Π²Π»ΠΈΠ²Π°ΡΡΡΡ Π² ΠΌΠ°ΡΠΈΠ½Π½ΠΎΠΌ ΠΎΡΠ΄Π΅Π»Π΅Π½ΠΈΠΈ, Π³Π΄Π΅ ΠΏΡΠΎΡΡΡΠ°Π½ΡΡΠ²ΠΎ ΠΈ Π²ΡΠ»Π΅Ρ ΡΠ²Π»ΡΡΡΡΡ ΠΏΡΠΎΠ±Π»Π΅ΠΌΠΎΠΉ, ΡΡΠΎΠ±Ρ ΡΠΏΡΠΎΡΡΠΈΡΡ ΠΎΠΏΠ΅ΡΠ°ΡΠΈΡ ΠΏΠΎΠ΄ΡΠ΅ΠΌΠ°. ΠΠ° Π±ΠΎΡΡΡ ΡΠ°ΠΊΠΆΠ΅ ΠΎΠ±ΡΡΠ½ΠΎ ΡΡΡΠ°Π½Π°Π²Π»ΠΈΠ²Π°Π΅ΡΡΡ ΠΎΠ΄ΠΈΠ½ ΠΊΡΠ°Π½ Ρ Π΄Π²ΡΠΌΡ ΠΏΠΎΠ΄ΡΠ΅ΠΌΠ½ΠΈΠΊΠ°ΠΌΠΈ.
ΠΡΠ°Π½ ΠΌΠ°ΡΠΈΠ½Π½ΠΎΠ³ΠΎ ΠΎΡΠ΄Π΅Π»Π΅Π½ΠΈΡ ΡΠΎΡΡΠΎΠΈΡ ΠΈΠ· Π΄Π²ΠΈΠ³Π°ΡΠ΅Π»Ρ, ΡΠΎΠ΅Π΄ΠΈΠ½Π΅Π½Π½ΠΎΠ³ΠΎ Ρ ΠΏΡΠΎΠ²ΠΎΠ»ΠΎΡΠ½ΡΠΌ Π±Π°ΡΠ°Π±Π°Π½ΠΎΠΌ, ΡΠ°ΠΊ ΡΡΠΎ Π΄Π²ΠΈΠ³Π°ΡΠ΅Π»Ρ ΠΌΠΎΠΆΠ΅Ρ ΠΏΠΎΠ΄Π½ΠΈΠΌΠ°ΡΡ ΠΈΠ»ΠΈ ΠΎΠΏΡΡΠΊΠ°ΡΡ Π»Π΅Π±Π΅Π΄ΠΊΡ ΠΊΡΠ°Π½Π°, Π½Π°ΠΌΠ°ΡΡΠ²Π°Ρ ΠΈΠ»ΠΈ ΡΠ°Π·ΠΌΠ°ΡΡΠ²Π°Ρ ΡΡΠΎΡ Π½Π° Π±Π°ΡΠ°Π±Π°Π½. ΠΠ°ΡΠ΅ΠΌ Π²ΡΡ ΡΠΈΡΡΠ΅ΠΌΠ° ΡΡΡΠ°Π½Π°Π²Π»ΠΈΠ²Π°Π΅ΡΡΡ Π½Π° ΡΠ΅Π»Π΅ΠΆΠΊΡ.
Π‘ΠΎΠΎΡΡΠΆΠ°ΡΡΡΡ Π΄Π²Π° ΠΏΡΡΠΈ Ρ ΡΠ΅Π΅ΡΠ½ΠΎΠΉ ΠΏΠ΅ΡΠ΅Π΄Π°ΡΠ΅ΠΉ, ΠΊΠ°ΠΊ Π² ΠΏΠΎΠΏΠ΅ΡΠ΅ΡΠ½ΠΎΠΌ, ΡΠ°ΠΊ ΠΈ Π² ΠΏΡΠΎΠ΄ΠΎΠ»ΡΠ½ΠΎΠΌ Π½Π°ΠΏΡΠ°Π²Π»Π΅Π½ΠΈΠΈ ΠΌΠ°ΡΠΈΠ½Π½ΠΎΠ³ΠΎ ΠΎΡΠ΄Π΅Π»Π΅Π½ΠΈΡ ΠΈ Π½Π°Π΄ Π³Π»Π°Π²Π½ΡΠΌ Π΄Π²ΠΈΠ³Π°ΡΠ΅Π»Π΅ΠΌ, Π³Π΄Π΅ ΡΠ΅Π»Π΅ΠΆΠΊΠ° ΡΠ°Π·ΠΌΠ΅ΡΠ°Π΅ΡΡΡ ΡΠ°ΠΊ, ΡΡΠΎΠ±Ρ Π²ΡΡ ΡΡΡΠ°Π½ΠΎΠ²ΠΊΠ° ΠΌΠΎΠ³Π»Π° Π΄Π²ΠΈΠ³Π°ΡΡΡΡ Π²ΠΏΠ΅ΡΠ΅Π΄-Π½Π°Π·Π°Π΄ ΠΈ Π»Π΅Π²ΡΠΉ-ΠΏΡΠ°Π²ΡΠΉ Π±ΠΎΡΡ.
ΠΡΠ΅Π΄ΡΡΠΌΠΎΡΡΠ΅Π½ ΠΏΡΠ»ΡΡ Π΄ΠΈΡΡΠ°Π½ΡΠΈΠΎΠ½Π½ΠΎΠ³ΠΎ ΡΠΏΡΠ°Π²Π»Π΅Π½ΠΈΡ, ΠΏΠΎΠ·Π²ΠΎΠ»ΡΡΡΠΈΠΉ ΡΠΏΡΠ°Π²Π»ΡΡΡ ΠΊΡΠ°Π½ΠΎΠΌ ΠΈΠ· Π»ΡΠ±ΠΎΠ³ΠΎ ΠΏΠΎΠ»ΠΎΠΆΠ΅Π½ΠΈΡ, ΡΡΠΎ ΠΏΠΎΠ·Π²ΠΎΠ»ΡΠ΅Ρ ΠΏΠΎΠ»ΡΠ·ΠΎΠ²Π°ΡΠ΅Π»Ρ ΡΠΎΡ
ΡΠ°Π½ΡΡΡ Π±Π΅Π·ΠΎΠΏΠ°ΡΠ½ΠΎΠ΅ ΡΠ°ΡΡΡΠΎΡΠ½ΠΈΠ΅ ΠΎΡ ΠΏΠΎΠ΄Π½ΠΈΠΌΠ°Π΅ΠΌΠΎΠ³ΠΎ Π³ΡΡΠ·Π°. Π ΠΎΠ±ΡΠ·Π°Π½Π½ΠΎΡΡΠΈ ΠΎΡΠ²Π΅ΡΡΡΠ²Π΅Π½Π½ΠΎΠ³ΠΎ Π±ΠΎΡΡΠΎΠ²ΠΎΠ³ΠΎ ΠΈΠ½ΠΆΠ΅Π½Π΅ΡΠ° Π²Ρ
ΠΎΠ΄ΠΈΡ ΡΠΏΡΠ°Π²Π»Π΅Π½ΠΈΠ΅ ΠΊΡΠ°Π½ΠΎΠΌ ΠΈ ΡΠ΅Π³ΡΠ»ΡΡΠ½ΡΠ΅ ΠΏΡΠΎΠ²Π΅ΡΠΊΠΈ Π±Π΅Π·ΠΎΠΏΠ°ΡΠ½ΠΎΡΡΠΈ ΠΈ ΡΠ°Π±ΠΎΡΡ ΠΊΡΠ°Π½Π°.
ΠΡΠΎΡΠΎΠΉ ΠΈΠ½ΠΆΠ΅Π½Π΅Ρ ΠΎΡΠ²Π΅ΡΠ°Π΅Ρ Π·Π° ΡΠΊΡΠΏΠ»ΡΠ°ΡΠ°ΡΠΈΡ, ΡΠ΅Ρ
Π½ΠΈΡΠ΅ΡΠΊΠΎΠ΅ ΠΎΠ±ΡΠ»ΡΠΆΠΈΠ²Π°Π½ΠΈΠ΅ ΠΈ ΠΏΡΠΎΠ²Π΅ΡΠΊΡ Π±Π΅Π·ΠΎΠΏΠ°ΡΠ½ΠΎΡΡΠΈ ΠΊΡΠ°Π½Π° ΠΌΠ°ΡΠΈΠ½Π½ΠΎΠ³ΠΎ ΠΎΡΠ΄Π΅Π»Π΅Π½ΠΈΡ.
ΠΠ»Π΅ΠΌΠ΅Π½ΡΡ Π±Π΅Π·ΠΎΠΏΠ°ΡΠ½ΠΎΡΡΠΈ ΠΊΡΠ°Π½Π° Ρ ΠΌΠ°ΡΠΈΠ½Π½ΡΠΌ ΠΎΡΠ΄Π΅Π»Π΅Π½ΠΈΠ΅ΠΌ:
1)Β Β Β Β Β ΠΠ°ΠΈΠ±ΠΎΠ»Π΅Π΅ Π²Π°ΠΆΠ½ΡΠΌ ΡΠ»Π΅ΠΌΠ΅Π½ΡΠΎΠΌ Π±Π΅Π·ΠΎΠΏΠ°ΡΠ½ΠΎΡΡΠΈ ΠΊΡΠ°Π½Π° ΡΠ²Π»ΡΡΡΡΡ ΡΠ»Π΅ΠΊΡΡΠΎΠΌΠ°Π³Π½ΠΈΡΠ½ΡΠ΅ ΠΎΡΠΊΠ°Π·ΠΎΡΡΡΠΎΠΉΡΠΈΠ²ΡΠ΅ ΡΠΎΡΠΌΠΎΠ·Π°, ΠΊΠΎΡΠΎΡΡΠ΅ Π½Π΅ ΠΏΠΎΠ·Π²ΠΎΠ»ΡΡΡ ΠΊΡΠ°Π½Ρ ΡΠΏΠ°ΡΡΡ Π²ΠΌΠ΅ΡΡΠ΅ Ρ Π³ΡΡΠ·ΠΎΠΌ Π΄Π°ΠΆΠ΅ ΠΏΡΠΈ ΠΎΡΠΊΠ»ΡΡΠ΅Π½ΠΈΠΈ ΠΏΠΈΡΠ°Π½ΠΈΡ. ΠΠ»Ρ ΡΡΠΎΠ³ΠΎ:
βΒ Β Β Β Β Β Β Β Β ΠΠ±ΡΡΠ½ΠΎ ΠΈΡΠΏΠΎΠ»ΡΠ·ΡΡΡΡΡ ΡΠ΅Π½ΡΡΠΎΠ±Π΅ΠΆΠ½ΡΠ΅ ΡΠΎΡΠΌΠΎΠ·Π°, ΠΊΠΎΡΠΎΡΡΠ΅ ΡΡΡΠ°Π½Π°Π²Π»ΠΈΠ²Π°ΡΡΡΡ Π²Π½ΡΡΡΠΈ Π²ΡΠ°ΡΠ°ΡΡΠ΅Π³ΠΎΡΡ Π±Π°ΡΠ°Π±Π°Π½Π°.
βΒ Β Β Β Β Β Β Β Β Β Π’ΠΎΡΠΌΠΎΠ·Π½ΡΠ΅ ΠΊΠΎΠ»ΠΎΠ΄ΠΊΠΈ Π²ΡΠ΅Π³Π΄Π° Π½Π°Ρ ΠΎΠ΄ΡΡΡΡ Π² Π½Π°ΡΡΠ½ΡΡΠΎΠΌ ΡΠΎΡΡΠΎΡΠ½ΠΈΠΈ ΠΈ ΠΏΡΠΈΠΆΠΈΠΌΠ°ΡΡΡΡ ΠΌΠ°Π³Π½ΠΈΡΠ½ΡΠΌΠΈ ΠΏΡΡΠΆΠΈΠ½Π°ΠΌΠΈ, ΠΊΠΎΠ³Π΄Π° ΠΎΠ½ΠΈ Π½Π΅ ΠΈΡΠΏΠΎΠ»ΡΠ·ΡΡΡΡΡ ΠΈΠ»ΠΈ ΠΏΡΠΈ ΠΎΡΠΊΠ»ΡΡΠ΅Π½ΠΈΠΈ ΠΏΠΈΡΠ°Π½ΠΈΡ.
βΒ Β Β Β Β Β Β Β Β ΠΡΠΈ ΡΠ°Π±ΠΎΡΠ΅ ΠΊΡΠ°Π½Π° ΠΈΠ»ΠΈ ΠΏΠΎΠ΄Π°ΡΠ΅ ΠΏΠΈΡΠ°Π½ΠΈΡ ΠΏΡΡΠΆΠΈΠ½Π° Π²ΡΡΠ³ΠΈΠ²Π°Π΅ΡΡΡ Π²Π½ΡΡΡΡ ΠΈΠ»ΠΈ ΡΠΆΠΈΠΌΠ°Π΅ΡΡΡ ΠΈΠ·-Π·Π° ΡΠ»Π΅ΠΊΡΡΠΎΠΌΠ°Π³Π½ΠΈΡΠ½ΠΎΠ³ΠΎ Π²ΠΎΠ·Π΄Π΅ΠΉΡΡΠ²ΠΈΡ ΡΠΎΠΊΠ°. ΠΡΠΎ ΠΏΠΎΠ·Π²ΠΎΠ»ΡΠ΅Ρ ΠΊΡΠ°Π½Ρ Π½ΠΎΡΠΌΠ°Π»ΡΠ½ΠΎ ΡΠ°Π±ΠΎΡΠ°ΡΡ.
2)Β Β Β Β Β ΠΠ²Π°ΡΠΈΠΉΠ½Π°Ρ ΠΎΡΡΠ°Π½ΠΎΠ²ΠΊΠ° ΠΏΡΠ΅Π΄ΡΡΠΌΠΎΡΡΠ΅Π½Π° Π½Π° ΠΏΡΠ»ΡΡΠ΅ Π΄ΠΈΡΡΠ°Π½ΡΠΈΠΎΠ½Π½ΠΎΠ³ΠΎ ΡΠΏΡΠ°Π²Π»Π΅Π½ΠΈΡ, ΡΡΠΎΠ±Ρ ΠΎΠΏΠ΅ΡΠ°ΡΠΎΡ ΠΌΠΎΠ³ ΠΎΡΡΠ°Π½ΠΎΠ²ΠΈΡΡ ΠΊΡΠ°Π½ Π² Π»ΡΠ±ΠΎΠ΅ Π²ΡΠ΅ΠΌΡ.
3)Β Β Β Β Β ΠΠ²ΠΈΠ³Π°ΡΠ΅Π»Ρ ΠΎΡΠ½Π°ΡΠ΅Π½ ΠΊΠΎΠ½ΡΠ΅Π²ΡΠΌ Π²ΡΠΊΠ»ΡΡΠ°ΡΠ΅Π»Π΅ΠΌ ΡΠ°ΡΡΡΠΎΡΠ½ΠΈΡ ΠΊΠ°ΠΊ Π² ΠΏΠΎΠΏΠ΅ΡΠ΅ΡΠ½ΠΎΠΌ, ΡΠ°ΠΊ ΠΈ Π² ΠΏΡΠΎΠ΄ΠΎΠ»ΡΠ½ΠΎΠΌ Π½Π°ΠΏΡΠ°Π²Π»Π΅Π½ΠΈΡΡ , ΡΡΠΎΠ±Ρ Ρ ΠΎΠ΄ ΡΠ΅Π»Π΅ΠΆΠΊΠΈ ΠΈ, ΡΠ»Π΅Π΄ΠΎΠ²Π°ΡΠ΅Π»ΡΠ½ΠΎ, ΠΊΡΠ°Π½Π° Π½Π΅ Π²ΡΡ ΠΎΠ΄ΠΈΠ» Π·Π° ΠΏΡΠ΅Π΄Π΅Π»Ρ ΡΡΠ΅Π»Π»Π°ΠΆΠ°.
4)Β Β Β Β Β ΠΠ΅Ρ Π°Π½ΠΈΡΠ΅ΡΠΊΠΈΠ΅ ΡΡΠΎΠΏΠΎΡΡ ΠΏΡΠ΅Π΄ΡΡΠΌΠΎΡΡΠ΅Π½Ρ Π΄Π»Ρ ΠΎΠ±ΠΎΠΈΡ Π½Π°ΠΏΡΠ°Π²Π»Π΅Π½ΠΈΠΉ Π½Π° ΡΠ»ΡΡΠ°ΠΉ ΠΎΡΠΊΠ°Π·Π° ΡΠ»Π΅ΠΊΡΡΠΈΡΠ΅ΡΠΊΠΈΡ ΡΠ°ΡΡΠ΅ΠΏΠΈΡΠ΅Π»Π΅ΠΉ ΠΎΠ³ΡΠ°Π½ΠΈΡΠ΅Π½ΠΈΡ ΡΠ°ΡΡΡΠΎΡΠ½ΠΈΡ.
5)Β Β Β Β Β ΠΠ²ΠΈΠΆΠ΅Π½ΠΈΠ΅ ΠΊΡΡΠΊΠ° Π²Π²Π΅ΡΡ ΠΈ Π²Π½ΠΈΠ· ΡΠ°ΠΊΠΆΠ΅ ΠΎΡΠ½Π°ΡΠ΅Π½ΠΎ Π°Π²ΡΠΎΠΌΠ°ΡΠΈΡΠ΅ΡΠΊΠΈΠΌ ΡΡΠΎΠΏΠΎΡΠΎΠΌ, ΡΡΠΎΠ±Ρ ΠΈΠ·Π±Π΅ΠΆΠ°ΡΡ ΠΏΠ΅ΡΠ΅Π³ΡΡΠ·ΠΊΠΈ Π΄Π²ΠΈΠ³Π°ΡΠ΅Π»Ρ.
6)Β Β Β Β Β ΠΠ²ΠΈΠ³Π°ΡΠ΅Π»Ρ ΠΎΡΠ½Π°ΡΠ΅Π½ ΡΠ΅ΡΠΌΠΎΠ·Π°ΡΠΈΡΠΎΠΉ. ΠΡΠΈ ΠΏΠ΅ΡΠ΅Π³ΡΠ΅Π²Π΅ ΠΎΠ±ΠΌΠΎΡΠΎΠΊ Π΄Π²ΠΈΠ³Π°ΡΠ΅Π»Ρ ΡΡΠ°Π±Π°ΡΡΠ²Π°Π΅Ρ ΡΠ°ΡΡΠ΅ΠΏΠΈΡΠ΅Π»Ρ, ΡΠΏΠ°ΡΠ°ΡΡΠΈΠΉ ΠΎΠ±ΠΌΠΎΡΠΊΡ Π΄Π²ΠΈΠ³Π°ΡΠ΅Π»Ρ ΠΎΡ Π²ΠΎΠ·Π³ΠΎΡΠ°Π½ΠΈΡ.
7)Β Β Β Β Β Π’Π°ΠΊΠΆΠ΅ ΡΡΡΠ°Π½ΠΎΠ²Π»Π΅Π½ ΠΊΠΎΠ½ΡΠ΅Π²ΠΎΠΉ Π²ΡΠΊΠ»ΡΡΠ°ΡΠ΅Π»Ρ Π½Π°Π³ΡΡΠ·ΠΊΠΈ, ΠΊΠΎΡΠΎΡΡΠΉ ΠΎΡΠΊΠ»ΡΡΠ°Π΅Ρ Π΄Π²ΠΈΠ³Π°ΡΠ΅Π»Ρ, Π΅ΡΠ»ΠΈ ΠΏΠΎΠ΄Π½ΠΈΠΌΠ°Π΅ΠΌΡΠΉ Π³ΡΡΠ· ΠΏΡΠ΅Π²ΡΡΠ°Π΅Ρ Π³ΡΡΠ·ΠΎΠΏΠΎΠ΄ΡΠ΅ΠΌΠ½ΠΎΡΡΡ ΠΊΡΠ°Π½Π°.
8)Β Β Β Β Β Π ΡΠΊΠΎΠ²ΠΎΠ΄ΠΈΡΠ΅Π»ΠΈ Π²ΡΡΡΠ΅Π³ΠΎ Π·Π²Π΅Π½Π° ΠΎΠ±ΡΠ·Π°Π½Ρ ΡΠΏΡΠ°Π²Π»ΡΡΡ ΠΊΡΠ°Π½ΠΎΠΌ ΠΈ ΡΠ»Π΅Π΄ΠΈΡΡ Π·Π° ΡΠ΅ΠΌ, ΡΡΠΎΠ±Ρ Π²Π΅ΡΡ ΠΏΠ΅ΡΡΠΎΠ½Π°Π», ΡΡΠ°ΡΡΠ²ΡΡΡΠΈΠΉ Π² Π»ΡΠ±ΡΡ ΠΏΠΎΠ΄ΡΠ΅ΠΌΠ½ΡΡ ΠΎΠΏΠ΅ΡΠ°ΡΠΈΡΡ , Π½Π°Ρ ΠΎΠ΄ΠΈΠ»ΡΡ Π½Π° Π±Π΅Π·ΠΎΠΏΠ°ΡΠ½ΠΎΠΌ ΡΠ°ΡΡΡΠΎΡΠ½ΠΈΠΈ Π²ΠΎ Π²ΡΠ΅ΠΌΡ ΡΠ°Π±ΠΎΡΡ ΠΊΡΠ°Π½Π°.
9)Β Β Β Β Β ΠΠΎΠΏΠΎΠ»Π½ΠΈΡΠ΅Π»ΡΠ½ΡΠ΅ ΠΈΠ½ΡΡΡΡΠΌΠ΅Π½ΡΡ, ΡΠ°ΠΊΠΈΠ΅ ΠΊΠ°ΠΊ i-ΠΎΠ±ΡΠ°Π·Π½ΡΠ΅ Π±ΠΎΠ»ΡΡ, ΡΠΊΠΎΠ±Ρ, ΠΏΡΠΎΠ²ΠΎΠ»ΠΎΡΠ½ΡΠ΅ ΡΡΡΠΎΠΏΡ, ΡΠ΅ΠΌΠ½ΠΈ ΠΈ Ρ.
