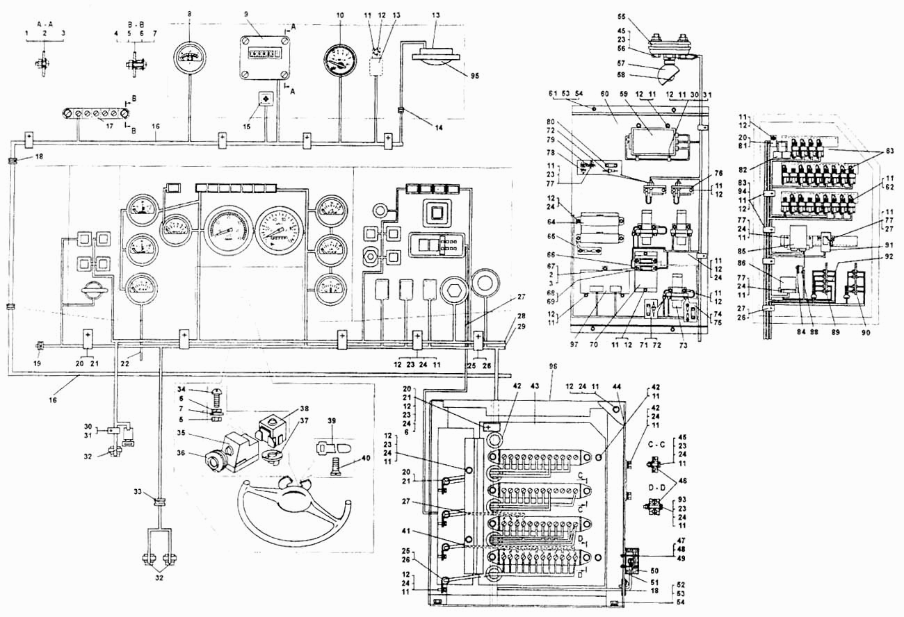
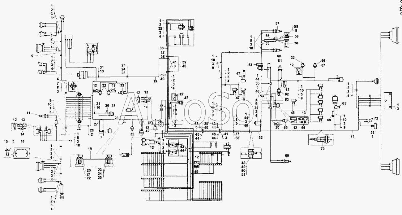
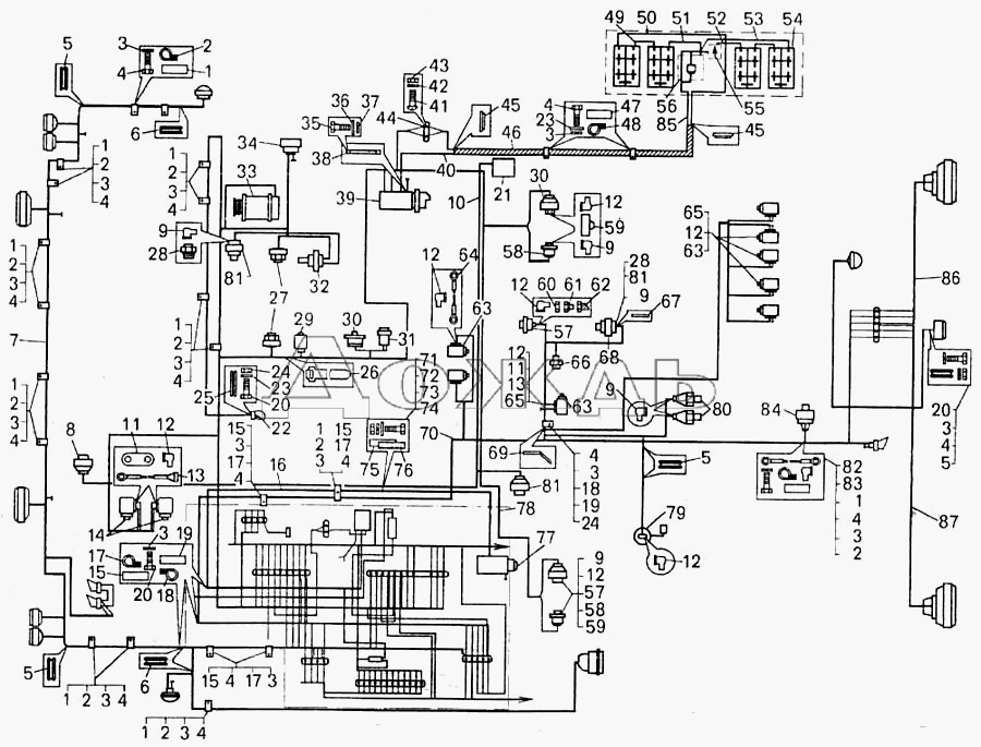
Электросхема грузового автомобиля БелАЗ 7547. Для увеличения — кликните на схему. Схема кабины находится тут. Принципиальная схема электрооборудования Белаз 7547 Описание обозначений элементов схемы: 52 11.3741 Клапан электромагнитный Принципиальная схема электрооборудования Белаз 75473 Описание обозначений элементов схемы: 57 11.3829010 Датчик давления масла двигателя на 20 кгс/см
| |||||
Капитальный ремонт Самосвала БелАЗ 7540 (ГМП 3-х ступ.) без горного тормоза
Москва
| Компании: | 131 809 (+7) |
| Товары и услуги: | 98 458 (+2) |
| Статьи и публикации: | 14 739 (+3) |
| Тендеры и вакансии: | 569 |
Вход в личный кабинет
А ваша компания есть в справочнике?
Компании
Товары и услуги
Тендеры
Вакансии
Статьи и публикации
90 000 р.
Нет в наличии
Наше предприятие специализируется на выполнении капитального ремонта гидромеханических, гидропланетарных, автоматических агрегатов-КПП, ГТР, ГМКП и имеет опыт проведения данных работ более 15 лет.
Тип запчасти: Оригинал
Состояние: Б/У
Тип техники: Грузовой автомобиль
Наше предприятие специализируется на выполнении капитального ремонта гидромеханических, гидропланетарных, автоматических агрегатов-КПП, ГТР, ГМКП и имеет опыт проведения данных работ более 15 лет. Ремонт выполняется специалистами, прошедшими подготовку на ПТЗ в г. Санкт-Петербург, с опытом работ более 10 лет. Работы выполняются на сертифицированном оборудовании, в соответствии с рекомендациями и нормативами завода-изготовителя. Нас выбрали и уже успешно работают такие предприятия и подразделения, как: ЦЭС ООО «Газпром подземремонт Оренбург», УТТ Роснефть, ТПП «Лукойл-Ухтанефтегаз», ОАО «КОМИАВИАТРАНС», ООО «Печора-Нефть», ООО «Кронолеспром», ООО «Чебоксарский трубный завод» и многие другие организации и ИП, а так же частные лица.
Звоните и Вы. Мы обязательно договоримся! Чтобы получить консультацию и заказать Капитальный ремонт БелАЗ 7540 (ГМП 3-х ступ.) без горного тормоза — позвоните нам или оставьте заявку на сайте!
посмотреть все (19)
Другие товары и услуги компании:
Капитальный ремонт КПП самосвала БелАЗ 7548 (ГМП 5-и ступ.) без горного
Наше предприятие специализируется на выполнении капитального ремонта гидромеханических, гидропланетарных, автоматических агрегатов-КПП, ГТР, ГМКП и имеет опыт проведения данных работ более 15 лет.
90 000 р.
Капитальный ремонт КПП трактора К-700А
Полный капитальный ремонт с доставкой до предприятия. Обмен агрегатов. КПП К-700; КПП К-700А; КПП К-701; КПП К-702; КПП К-703 БКУ; КПП К-744; Ремонт/продажа/обмен; Доставка до места в день обращения.
55 000 р.
Капитальный ремонт КПП трактора К-702
Ремонтно механический завод производит капитальный ремонт коробки передач КПП 5015-17.
00.000 для трактора К-702 ПК-6, К-702 УДМ, К-702 БКУ.
55 000 р.
Капитальный ремонт КПП трактора К-703
Ремонтно механический завод производит капитальный ремонт коробки передач КПП 700А.17.00.000 для трактора к-703 пк-6, к-703 удм, к-703 бку.
55 000 р.
Капитальный ремонт КПП трактора К-744
Ремонтно механический завод производит капитальный ремонт коробки передач КПП 744-17.00.000 для трактора К-744Р1, К-744Р2, К-744Р3.
55 000 р.
Капитальный ремонт КПП трактора Т-130
Капитальный ремонт КПП, ГТР, ГМКП на сертифицированном оборудовании. Оригинальные заводские комплектующие, всегда в наличии обменный фонд. Обкатка на стендах и ОТК. Доставка по всей территории России.
38 000 р.
Товары и услуги других компаний:
Капитальный ремонт квартиры
Капитальный ремонт предусматривает значительное вмешательство во внутренне пространство квартиры.
Капитальный ремонт квартир
Наша компания ООО «Титан» выполнит качественно и в срок любую поставленную задачу по ремонту квартир.
Капитальный ремонт квартир От 6000 руб/м2
6 000 р.
Капитальный ремонт
Капитальный ремонт
3 900 р.
Продаём ножницы гильотинные Н3121 12х2000мм после капитального ремонта с гарантией с проверкой.
Продаём ножницы гильотинные Н3121 12х2000мм после капитального ремонта с гарантией с проверкой. Тульский Промышленный Завод.
Капитальный ремонт, модернизация и изготовление оборудования
Основной сферой деятельности нашего ООО «КБ-МПО», расположенного в городе Коломна Московской области, является капитальный ремонт, модернизация и изготовление оборудования.
1 р.
Ремонт фасада
Косметический ремонт фасадов, Капитальный ремонт фасадов, Реконструкция
- Авто, мото
Информация о продавце
ООО «ТЕХНО»
- +7 (919) 515-07-77
- Россия, Москва, Автозаводская ул.
, 23, стр. 81 - k701.ru
Капитальный ремонт гидромеханических трансмиссий (КПП, ГТР, ГМКП) дизельных двигателей, мостов. Тракторов, спецтехники, тяжелой техники.
Карьерные самосвалы БЕЛАЗ-7530 серии
Основной
Продукты
БЕЛАЗ Оборудование
Карьерные самосвалы
Конкурентные преимущества
01
Тормозные механизмы
03
Электротрансмиссия
04
Электродинамический тормоз
05 9000 3
Двигатель
06
Рама и кузов
07
Гидравлическая система
08
Мотор-колесный редуктор
09
Рулевое управление
10
Подвеска
Тормозные механизмы
В конструкции переднего и заднего рабочих тормозов и стояночного тормоза используется единая унифицированная тормозная колодка.
Большая площадь фрикционного материала тормозных колодок позволяет использовать стояночную тормозную систему для остановки грузовика в аварийной ситуации.
В пневмоприводе установлен современный осушитель воздуха с адсорбером, который предотвращает замерзание пневмоприборов при низких температурах.
Такси
Комфортабельная кабина обеспечивает комфорт и безопасность водителя. Конструкция кабины и кузова, оснащенного защитным фонарем, обеспечивает соответствие требованиям систем безопасности ROPS и FOPS.
Электрическая трансмиссия
Соотношение мощностных и скоростных характеристик позволяет приблизить характеристики грузовика к параметрам идеальной теоретической бесступенчатой трансмиссии.
Переключение передач не требуется, ток и напряжение, подаваемые на тяговые электродвигатели, определяют крутящий момент и скорость движения тележки, обеспечивая плавное изменение мощности во время движения.
Обеспечивает более низкие эксплуатационные расходы и большую производительность транспортных операций.
Нет узлов, подверженных износу.
Электродинамический тормоз
Значительно снижает механический износ фрикционных материалов тормозных колодок.
Обеспечивает эффективное торможение во всем диапазоне скоростей вплоть до нулевой скорости.
Позволяет переключаться с тяги с полным тяговым моментом на торможение с полным тормозным моментом менее чем за секунду.
Двигатель
Дизельные двигатели с электронным управлением и центральным отключаемым рабочим колесом системы охлаждения обеспечивают высокую удельную мощность и, как следствие, высокую скорость самосвала при движении в гору, а также высокую топливную экономичность.
Для облегчения пуска двигателя в условиях низких температур карьерные самосвалы оснащены жидкостным подогревателем двигателя, который обеспечивает подогрев дизельного топлива и охлаждающей жидкости при запуске двигателя, что значительно увеличивает срок службы двигателя и обеспечивает надежную работу системы в различных климатических зонах. в том числе на Крайнем Севере.
Рама и кузов
Долгий срок службы самосвалов достигается за счет применения высокопрочных материалов для изготовления рамы и кузова.
Гидравлическая система
Интегрированная гидросистема рулевого управления, торможения и подъема кузова позволяет унифицировать гидропривод и уменьшить количество гидроагрегатов в конструкции системы.
Использование регулируемых насосов с автоматической разгрузкой позволяет снизить потери мощности в приводе и обеспечить охлаждение масла в различных климатических зонах без применения радиаторов.
Мотор-колесный редуктор
Опорные части и шестерни мотор-колеса редуктора изготовлены из высокотехнологичных легированных сталей по самым современным технологиям.
Примененная кинематическая схема позволяет передавать крутящий момент на ступицу колеса одновременно первым и вторым рядом редуктора и максимально использовать пространство внутри обода колеса, снижает фактические нагрузки в редукторе и обеспечивает его увеличение. срок службы.
Конструктивные решения редуктора исключают влияние деформаций шестерен и подшипников агрегата, которые могут возникнуть в процессе эксплуатации, что делает его надежным и долговечным.
Рулевое управление
Конструкция гидрообъемного привода исключает механическую обратную связь и обеспечивает рациональное размещение гидроприводов на шасси.
Пневмогидравлические аккумуляторы обеспечивают безопасное управление в аварийной ситуации.
Небольшой радиус поворота в сочетании с короткой колесной базой обеспечивает высокую маневренность самосвала.
Приостановка
Пневмогидравлическая подвеска карьерного самосвала со встроенным гидроамортизатором в сочетании с традиционной системой направляющего аппарата обеспечивает высокую плавность хода, производительность, техническую скорость, боковое сопротивление качению и долговечность узлов самосвала, а также комфортные условия работы оператора.
Добро пожаловать в TELMA США
- Универсальные электрические схемы
- Электрические схемы Ford
- Электрические схемы Шевроле
- Navistar / Международные электрические схемы
- Схемы подключения Mack
- Схемы подключения Bendix
- Электрические схемы Wabco
Чтобы найти правильную схему электропроводки для вашего автомобиля, вам понадобятся:
- Марка и модель ЭБУ АБС
- Расположение ЭБУ АБС (кабина, рама/шасси)
- Марка и модель ЭБУ коробки передач
- Тип управления (ножное, ручное или дроссельная заслонка)
- Тип тормоза (пневматический, гидравлический)
На универсальных схемах электропроводки не может быть указана марка и модель шасси, только ЭБУ ABS и ЭБУ Trans, к которым подключается Telma.
Номер схемы | Описание | Статус |
|---|---|---|
| TL134051 | Ручное управление с АБС | Текущий |
| TL134051a | Ручное управление без ABS | Текущий |
| TL134051e | Промышленное ручное управление с блоком реле JD331121 | Текущий |
| ТЛ134054 | Пневматический тормоз с TRCM1 (без CAN) | Архив |
| TL134057 | Пневматический тормоз с TRCM1 (J1939) | Архив |
| TL134072 | Пневматический тормоз с TRCM2 (J1939) | Текущий |
| TL134057a | Пневматический тормоз с TRCM1 (J1939) Freightliner | Архив |
| TL134075 | Пневматический тормоз с TRCM2 (J1939) Фрейтлайнер | Текущий |
| TL134069 | Пневматический тормоз с TRCM1 (J1939) PACCAR с зеленым диагностическим разъемом | Архив |
| TL134076 | Пневматический тормоз с TRCM2 (J1939) PACCAR с зеленым диагностическим разъемом | Текущий |
| TL134063 | Пневматический тормоз с TRCM1 (разъем J1939 OBD13) | Архив |
| TL134077 | Пневматический тормоз с TRCM2 (разъем J1939 OBD13) | Текущий |
| TL134058 | Пневматические тормоза с TRCM1 и блоком управления TID11057 (J1939) | Архив |
| TL134074 | Пневматические тормоза с TRCM2 и блоком управления TID11057 (J1939) | Текущий |
| TL134079 | Пневматические тормоза с TRCM2 и блоком управления TID11057 (J1939) с активацией дроссельной заслонки | Текущий |
| TL134062 | Пневматические тормоза с TRCM1 и блоком управления TID11057 (без CAN) | Архив |
| TL134059 | Преобразование пневматических тормозов с JC241105 на TRCM1 (без CAN) | Архив |
| TL134061 | Преобразование пневматических тормозов с JC241105 на TRCM1 (J1939) | Архив |
| TL134055 | Гидравлические тормоза с TRCM1 и ножным переключателем JC120102 (без CAN) | Архив |
| TL134065 | Гидравлические тормоза с TRCM1 и поворотным ножным переключателем TIG31066 (без CAN) | Архив |
| TL134060 | Гидравлические тормоза с TRCM1 и ножным переключателем JC120102 (J1939) | Архив |
| ТЛ114045 | Гидравлические тормоза с TRCM1 и поворотным ножным переключателем TIG31066 (OBD2) | Архив |
| TL134064 | Гидравлические тормоза с TRCM1 и поворотным ножным переключателем TIG31066 (J1939) | Архив |
| TL134073 | Гидравлические тормоза с TRCM2 и поворотным ножным переключателем TIG31066 (J1939) | Текущий |
| TL114047 | TRCM1 Гидравлические тормоза с ножным управлением, OBD2 и без ножного переключателя | Архив |
| ТИЛ34034 | Dual Control без ABS с блоком управления TID11008 | Архив |
| TL134035 | Универсальный пневматический тормоз с интерфейсом ABS | Архив |
| ТИЛ34035 | Dual Control с ABS с блоком управления TID11009 | Архив |
| Н/Д | Скидка 25% на активацию дроссельной заслонки с интерфейсом ABS | Архив |
| Н/Д | Скидка 50% на активацию дроссельной заслонки с интерфейсом ABS | Архив |
| TL134066 | Пневматический тормоз с TRCM1 J1939 (3 ступени) | Архив |
| TL134067 | Пневматический тормоз с TRCM1 J1939 с блоком реле, индекс 124 | Архив |
| TL134078 | Пневматический тормоз с TRCM2 J1939 с блоком реле индекс 124 | Текущий |
| TL134070 | TRCM1 с поворотным переключателем и без ABS | Архив |
Econoline в разрезе
Номер схемы | Описание | Статус |
|---|---|---|
| TL114053 | Блок реле гидравлических тормозов Foot Control Ford UIM TRCM2 124 | Текущий |
| TL114050 | Гидравлические тормоза с ножным управлением с OBD2 и TRCM2 | Текущий |
| TL114047 | TRCM1 Гидравлические тормоза с ножным управлением, OBD2 и без ножного переключателя | Архив |
| TL114045 | TRCM1 Гидравлические тормоза с ножным управлением, OBD2 и поворотным переключателем 2 | Архив |
| TL114041 | TRCM1 Гидравлические тормоза с ножным управлением, OBD2 и поворотным переключателем 1 | Архив |
| TL114031 | Гидравлические тормоза ножного управления TRCM1 с OBD2 и JC120102 | Архив |
| ТИЛ14021ф | 2010 Модельный год E350 / E450 с переключателем скорости | Архив |
| ТИЛ14021е | Модель E350/E450 2009 года выпуска с переключателем скорости | Архив |
| ТИЛ14021д | E350/E450 модельного года 2007 и 2008 с переключателем скорости | Архив |
| ТИЛ14021с | Модель E350/E450 2006 и более ранних годов выпуска с переключателем скорости | Архив |
F Сверхмощный
Номер схемы | Описание | Статус |
|---|---|---|
| TL114051 | Ford 550 2017 г. и новее с TRCM2 | Текущий |
| TL114048 | Ford 550 2017 г. и новее с TRCM1 | Архив |
| TL114042 | Гидравлические тормоза с TRCM1 и поворотным ножным переключателем 2 (OBD2) (3 ступени) | Архив |
| TL114043 | Гидравлические тормоза с TRCM1 и поворотным ножным переключателем, конструкция 1 (OBD2) (3 ступени) | Архив |
| TL114031 | Тормоза ножного управления Ф350/Ф450/Ф550 ТРКМ1 гидравлические с ОБД2 | Архив |
| TL114034 | F550 TRCM1 Гидравлические тормоза с ножным управлением с OBD2 и AD50-90 с 3 этапами | Архив |
| ТИЛ14022д | 2007 г. и позже F350 / F450 / F550 с переключателем скорости и AC50-55 | Архив |
| ТИЛ14022б | 2006 г. и ранее F350 / F450 / F550 с переключателем скорости и AC50-55 | Архив |
C4500-C5500 (GMT560, C4C042, C5C042)
Диаграмма номер | Описание | Статус |
|---|---|---|
| ТИЛ14023д | C5500 Гидравлические тормоза с ножным управлением и переключателем скорости Telma | Архив |
| C5500 с интерфейсом ABS | C4500/C5500 Ножное управление Гидравлические тормоза с интерфейсом ABS | Архив |
C4500 Экспресс (GMT610, G33903)
Номер схемы | Описание | Статус |
|---|---|---|
| TL114050 | Гидравлические тормоза с ножным управлением с OBD2 и TRCM2 | Текущий |
| TL114047 | TRCM1 Гидравлические тормоза с ножным управлением, OBD2 и без ножного переключателя | Архив |
| TL114045 | TRCM1 Гидравлические тормоза с ножным управлением, OBD2 и поворотным переключателем 2 | Архив |
| TL114041 | TRCM1 Гидравлические тормоза с ножным управлением, OBD2 и поворотным переключателем 1 | Архив |
| TL114031 | Все модели — гидравлические тормоза с ножным управлением TRCM1 и OBD2 | Архив |
| TL114035 | C4500 Express Педальное управление гидравлическими тормозами с переключателем скорости Telma | Архив |
Номер схемы | Описание | Статус |
|---|---|---|
| TL134064 | Гидравлические тормоза с TRCM1 и поворотным ножным переключателем TIG31066 (J1939) | Архив |
| TL114027 | Navistar Advanced Diamond Logic — ручное управление | Архив |
| TL114028 | Схема подключения низкого пола Champion с HPB | Архив |
| TL114029 | Navistar Advanced Diamond Logic — гидравлические тормоза — педаль управления | Архив |
| TL114030 | Navistar Advanced Diamond Logic — пневматические тормоза — педаль | Архив |
| ТИЛ14025 | 2005 — Navistar International 3200 — Пневматические тормоза — Педаль управления | Архив |
Navistar до 2005 г.![]() ![]() |
3701 Генератор (поступает с двигателем) Цены
2 Лента
15 Лакоткань
, 23, стр. 81
и новее с TRCM2
и ранее F350 / F450 / F550 с переключателем скорости и AC50-55
