Содержание
Для сухого и мокрого помола, перемешивания и увлажнения компонентов глиняной массы применяются бегуны
⇐ Предыдущая12
В бегунах СМ-268 для мокрого помола переработка массы производится двумя катками, движущимися по плитам пода чаши, которая установлена на четырех колоннах. Бегуны состоят из станины, чаши, вертикального вала с катками, механизма разгрузки, привода и кожуха. Под чаши образован сплошными стальными плитами, наружная дорожка пода выложена перфорированными плитами с овальными отверстиями. Плиты и бандажи катков изготовляются из марганцовистой стали. Катки смонтированы на осях кривошипов на разных расстояниях от вертикального вала. При установке катков на разном расстоянии от оси вала центробежные усилия действуют главным образом на внешний каток. Чтобы уравнять их, катки иногда делают разного диаметра или массы. Нижний привод состоит из электродвигателя, редуктора, фрикционной муфты и конической зубчатой передачи.
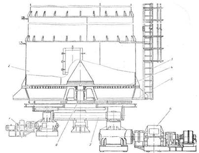
Бегуны СМ-365 (рис. 133) в основном конструктивно аналогичны бегунам СМ-268, но имеют некоторые отличия: катки расположены на одинаковом расстоянии от вала и движутся одновременно по сплошным и перфорированным плитам, что повышает производительность; масса обоих каткой одинакова; рабочее давление катков увеличивается при помощи пружин.
При отсутствии глины в чаше рабочие поверхности катков приподнимаются на 2-5 мм над поверхностью плит. Загрузка бегунов осуществляется двухпоточной вращающейся течкой, подающей материал одновременно под каждый каток. Привод вертикального вала с катками состоит из электродвигателя, фрикционной муфты, редуктора и пары зубчатых конических шестерен.
| Рис. 133. Бегуны для мокрого помола СМ-365:
1-венцовая шестерня;2 — станина; 3 – сбрасываю-ая дуга; 4-вращающаяся течка; 5 — каток; 6 – пру-инное прижимное устройство; 7 – предо-хранительный пояс; 8- ограж-дение чаши; 9 — чаша с пли-тами; 10 — вертикальный вал; 11 — разгрузочная тарель; 12 — горизонтальный вал; 13 — привод; 14 редуктор |
Предварительно переработанная глина продавливается катками через отверстия в решетках и плитах и попадает па разгрузочную тарель, откуда скребком направляется в лоток и далее на отводящий транспортер.
Бегуны для сухого помола СМ-401М (рис. 134) предназначены для непрерывного размола и просева высокопрочного кускового материала (доломита, барита и других отощающих добавок) с предельной влажностью 8% и максимальной крупностью кусков 25 мм. Бегуны состоят из станины, катков, чаши, сита и элеватора для возврата отсева, скребков и кожуха. Привод бегунов нижний, давление катка регулируемое. Чаша приводится во вращение от электродвигателя через клиноременную передачу, фрикционную муфту включения и пару конических шестерен, ‘одна из которых закреплена на валу привода, другая жестко соединена с чашей. Под чаши и катки изготовлены из гранита. Движение элеваторной цепи передается от звездочки, закрепленной на приводном валу. Возвратно-поступательное движение рамке сита сообщается посредством прерывистого магнитного поля электромагнита, притягивающего якорь, и пружинной рессоры, возвращающей рамку в исходное положение.
Рис. 134. Бегуны для сухого помола СМ-401М:
1 — каток; 2 — чаша с валом; 3 — станина; 4 — привод; 5 — течка; 6 — рама сита и элеватора;
7 — электромагнитное вибросито; 8 — элеватор; 9- кожух; 10 — кожух с загрузочной течкой; 11 — цепная передача; 12 — патрубок
Материал, поступающий на вращающуюся чашу бегунов, раздавливается и истирается катками, затем с помощью скребков и центробежной силы подается на просеивающее кольцо чаши, просыпается на неподвижный желоб, откуда выгрузочными скребками направляется через течку на вибросито для просева.
Крупные фракции отсева поступают в элеватор и подаются на повторный размол.
Смесительные бегуны СМ-568 (рис. 135) периодического действия предназначены для измельчения и перемешивания полусухих глин, шамота и других материалов. Они состоят из разъемной станины, чаши и двух катков, вращающихся вокруг осей в подшипниках качения. Станина представляет собой сварную раму, в средней части которой имеется окно для крепления корпуса подпятника вала с чашей. Чаша выполнена в виде стальной отливки с 12 броневыми и четырьмя футеровочными плитами, укрепленными в специальном углублении пода чаши. Чаша в сборе с валом и узлом подпятника устанавливается на раму. Узлы катков с рессорами подвешены на двух горизонтальных осях, прикрепленных к колоннам станины. На верхней раме станины установлен механизм разгрузочного скребка, соединенный муфтой с электродвигателем. Привод осуществляется от электродвигателя через клиноременную передачу и специальный встроенный цилин-дро-конический редуктор.
Бегуны закрыты разъемным кожухом, на котором напротив выгрузочной течки имеется дверка для осмотра механизмов и взятия проб материала. Бегуны выпускаются с правым расположением выгрузки; при монтаже с левым расположением катки вместе с осями, ползунами и скребками разворачиваются на 180° относительно первоначального положения.
Загруженный в бегуны материал неподвижно укрепленными скребками перемещается под катки. После достижения достаточной степени размола и перемешивания с помощью отдельного привода материал опускается в выгрузочный скребок и под действием центробежных сил, перемещаясь вдоль скребка, выгружается из чаши в течку, а затем на отводящий транспортер. Техническая характеристика бегунов приведена в табл. 18.
Рис. 135. Смесительные бегуны CМ-568:
1 — электродвигатель; 2 — клнноременная передача; 3 — горизонтальный приводной вал; 4 — встроенный редуктор; 5 — каток; 6 — вал с чашей; 7 — кожух: 8 — скребок; 9 — станина
Вальцы с винтовым валком СМ-416А предназначены для грубого помола керамических масс и выделения из них каменистых и других твердых включений размером от 35 до 180мм.
Основными узлами вальцов являются рама сварной конструкции, гладкий и винтовой валки, привод, кронштейн с лотком и клапаном, разъемный кожух и скребки. Каждый из валков крепиться к валу. Корпуса подшипников валов попарно соединены между собой стяжными шпильками. Зазор между валками регулируется передвижением корпусов подшипников гладкого валка. Винтовой валок имеет спиральную канавку с правой нарезкой и шагом винтовой линии 96 мм; сечение канавки прямоугольное, ширина 60 мм, глубина 10 мм.
Кронштейн с лотком и клапаном расположен за валками, со стороны выхода из них камней. Клапан состоит из поворотной пластины и противовеса в виде рычага с грузом, обеспечивающего определенное давление на клапан и автоматическое закрывание его после выделения камней. Давление на клапан регулируется перестановкой груза на рычаге.
Скребки устанавливаются под валками с зазором около 1 мм и служат для очистки валков от глины; положение скребка регулируется гайками, установленными на тяге.
Привод вальцов монтируется на отдельной сварной раме и состоит из электродвигателя, кулачковой муфты и редуктора. Кожух вальцов для удобства ремонта сделан разъемным; вращающиеся части имеют ограждение.
Глиняная масса, поступающая в приемную воронку вальцов, затягивается встречно вращающимися валками в зазор между ними, дробится, растирается и продавливается через зазор. Камни и другие твердые включения захватываются канавками винтового валка, перемещаются вдоль оси валков, попадают в лоток и накапливаются на клапане. Когда масса выделенных включений превышает усилие давления на клапан, создаваемое противовесом, пластина поворачивается, камни высыпаются на транспортер, и клапан закрывается.
Камневыделительные вальцы СМ-1198 (рис. 137, а, б) предназначены для грубого помола керамических масс и выделения твердых включений. Вальцы состоят из двух встречно вращающихся валков, один валок — гладкий, с подвижными корпусами подшипников, другой — ребристый, с жестко закрепленными корпусами подшипников.
Валки устанавливаются на сварной раме с пруинно-амортизационным предохранительным устройством, которое обеспечивает при попадании недробимых предметов отход гладкого валка на 30 мм и автоматическое отключение электродвигателей с помощью конечных выключателей. Зазор между валками регулируется в результате перемещения гладкого валка на упорных болтах. Для очистки гладкого валка от глины предусмотрен быстросъемный скребок. Валки закрыты кожухом с приемной воронкой. Привод осуществляется от электродвигателей через клиноременную и цепную передачи.
|
Глина загружается в приемную воронку вальцов, подается на быстро вращающийся ребристый валок, под действием ребер отбрасывается с большой скоростью на тихоходный гладкий валок и проминается им в зазор между валками.
Твердые включения, будучи тяжелее глины, ударяются с большой скоростью о тихоходный валок и отскакивают от него в отводящий лоток кожуха.
Дырчатые вальцы СМ-369А предназначены для дополнительной переработки глиняной массы, удаления из нее твердых включений, корней и других растительных остатков. В технологических линиях небольшой производительности они иногда устанавливаются взамен бегунов для мокрого помола или глинорастирателя.
|
Вальцы состоят из двух валков, рамы и привода.
Валки вращаются встречно; один валок установлен в подшипниках неподвижно, второй может перемещаться по направляющим на длину до 60 мм. Рабочий зазор между валками 3—5 мм; подвижный валок удерживается в рабочем положении винтовыми пружинами, давление которых регулируется болтами. Каждый валок имеет литой барабан со сквозными отверстиями на поверхности; внешняя поверхность валков футерована стальными секторами с семью рядами овальных отверстий размером 12×46 мм. Отверстия расположены рядами под углом 45 к образующей; в двух смежных рядах наклон отверстий противоположный с целью устранения осевого давления на подшипники.
Привод состоит из электродвигателя, редуктора, уравнительной муфты и цепной передачи. Глиняная масса, поступающая в загрузочную воронку кожуха, захватывается валками, продавливается через отверстия секторов внутрь валков и в виде гранул высыпается из них через окна. При попадании недробимых предметов подвижный валок отодвигается, сжимая пружины, и пропускает эти включения.
Вальцы для тонкого помола СМ-696Б (рис. 138) состоят из сварной рамы, двух встречно вращающихся валков (подвижного и неподвижного), скребков для их очистки, кожуха с приемной воронкой и двух электродвигателей с клиноременной передачей. Бандажи валков изготовляются из отбеленного чугуна. Для предохранения от поломки при попадании недробимых предметов предусмотрены пружинные амортизаторы.
Вальцы для тонкого помола СМ-1096 состоят из рамы, двух валков, пружинно-амортизационного устройства, двух скребков и двух электроприводов. В приемной воронке предусмотрен рассекатель, регулирующий по- ток сырья; быстросъемные очистные скребки постоянно прижаты к валкам с помощью пружин. Зазор между валками регулируется передвижением корпусов подшипников тихоходного валка.
Вальцы СМК-102 (рис. 139) с гладкими валками и шлифовальным устройством предназначены для тонкой переработки глиняных масс. Они состоят из двух встречно вращающихся валков (соотношение скоростей 1:2), жестко закрепленных в подшипниках качения, станины, рамы, стяжного и предохранительного устройства (разрушающиеся пластины), двух скребков, двух шлифовальных устройств с каретками и приводами про¬дольной и поперечной подачи.
Рис. 139. Вальцы для гонкого помола СМК-102:
I и 12 — приводы быстроходного и тихоходного валков; 2 и 11 — клиноременные передачи приводов валков; 3 — шлифовальное устройство для проточки валков; 4 — ограждающий кожух; 5 и 9 — быстроходный и тихоходный валки; 6- станина; 7 — загрузочная воронка; 8 — конечные выключатели; 10 — предохранительное устройство; 13 -рама; 14 — скребок
Валки изготовляются из отбеленного чугуна. Каждый валок состоит из бандажа, опирающегося на два чугунных диска, соединенных между собой шестью стяжками и закрепленных на валу шпонками и кольцами. Валки закрыты ограждениями, которые крепятся к станине, состоящей из двух вертикальных литых стоек, скрепленных четырьмя стяжными болтами. На станине предусмотрены щитки. Последние прижимаются пружинами к торцам валков и препятствуют просыпанию глины. В загрузочной воронке установлен рассекатель массы.
Шлифовальные устройства служат для восстановления геометрии валков по мере их изнашивания. На каретке, которая перемещается электродвигателем по направляющим станины с помощью ходового винта, смонтирована шлифовальная головка с кругом. Поперечная подача круга осуществляется вручную маховиком, имеющим лимб с делениями по 0,02 мм. Реверс каретки обеспечивается конечными выключателями в крайних положениях. Станины вальцов и шлифовальных устройств установлены на общей раме. После восстановления рабочей поверхности валков шлифовальные головки отводятся в крайнее заднее положение, крышки направляющих станины шлифовального устройства и ограждения валков устанавливаются на место.
Рабочий зазор в вальцах поддерживается постоянным и равным 1 мм, что обеспечивает высокое качество переработки глин.
Для всех вальцов тонкого помола размер поступающих кусков глины не должен превышать 15 мм.
Техническая характеристика1 вальцов для тонкого и грубого помола приводится в табл.
19.
Двухвальная глиномешалка с фильтрующей решеткой СМ-1238 (рис. 144) предназначена для гонкой очистки глин, перемешивания и увлажнения компонентов глиняной массы за одну операцию. Основными узлами глиномешалки являются корытообразный корпус с лопастными валами, протирочная головка с гидроприводом перемещения решетки, перемешивающие шнеки и привод. Компоненты шихты, поступающие в мешалку, перемешиваются лопатками двух горизонтальных валов в корыте смесителя, затем продавливаются двумя шнеками, установленными на концах валов, через отверстия решетки в приемную воронку последующей машины. Дно корыта выложено перфорированными плитами, что препятствует проворачиванию массы. В процессе работы отверстия решетки забиваются посторонними включениями, поэтому она заменяется очищенной решеткой без остановки машины. Таким образом, одна решетка находится в рабочем положении, другая — в процессе очистки или в резерве; замена решеток производится не чаще I раза в смену при помощи гидроцилиндра диаметром 100 мм, длиной хода 1000 мм.
С уменьшением размера отверстий в фильтрующей решетке степень очистки и однородности массы увеличивается, но повышается потребляемая мощность и возникает необходимость в более частой смене решеток. Техническая характеристика дзухвальных лопастных смесителей приведена в табл. 20.
Рис. 144. Глиномешалка с фильтрующей решеткой СМ-1238:
1 — фильтрующая решетка; 2 — гидроцилиндр перемещения решетки; 3 — корпус глиномешалки; 4 — привод
Глинозапасник СМК-178 (рис. 145) предназначен для гомогенизации (вылеживания) и повышения качества предварительно переработанной глины, а также для создания запаса глиняной массы перед прессом. Глинозапасник представляет собой цилиндрический ступенчатый сварной бункер с неподвижным перфорированным днищем, через которое глина продавливается крыльчаткой, снабженной ножами. Под перфорированным днищем расположено гладкое днище с разгрузочным окном, через которое глина выдается па конвейер к прессу.
В корпусе глино-запасника предусмотрены люки, обеспечивающие свободный доступ к узлам и возможность разгрузки бункера от глины при аварии. В верхней части бункер закрыт крышкой с загрузочным окном и автоматической заслонкой.
|
Режущие ножи установлены на шпонках втулки вала, где установлена и шестерня открытой передачи привода ножей.
Разгрузочное устройство расположено между двумя днищами корпуса и представляет собой восемь лопастей, укрепленных на шестерне. Ножи приводятся от электродвигателя через ременную передачу, муфту включения, редуктор, коническую и цилиндрическую передачи. Для дистанционного включения муфты предусмотрен электровинт.
Разгрузочное устройство приводится в действие от электродвигателя через клиноремеиную передачу, редуктор, коническую и цилиндрическую передачи.
Для контроля уровня глиняной массы на верхней крышке бункера установлены датчики. Для подогрева и увлажнения глины по кольцевым трубопроводам, проложенным внутри бункера, подается пар. Заслонка перемещается электроприводом.
Предварительно подготовленная глиняная масса подается в бункер через открытое загрузочное окно крутонаклонным конвейером. При достижении определенного уровня, установленного уровнемером, подача массы прекращается. Включаются приводы разгрузочного устройства, закрытия заслонки и через некоторое время двигатель электро-винта. Ножи начинают продавливать глину через отверстие днища; переработанная глиняная масса конвейером подается на пресс. При достижении глиняной массой уровня нижнего датчика уровнемера включается электродвигатель заслонки, открывается загрузочное окно и включается конвейер, подающий массу в глинозапаеннк.
|
|
Применение для привода ножей четырех-скоростного асинхронного двигателя допускает возможность ступенчатой регулировки частоты их вращения в зависимости от производительности пресса.
⇐ Предыдущая12 |
Дата добавления: 2014-01-05; Просмотров: 7185; Нарушение авторских прав?; Мы поможем в написании вашей работы!
Нам важно ваше мнение! Был ли полезен опубликованный материал? Да | Нет
Бегуны мокрого помола
Бегуны мокрого помола
- Главная
- →
- Каталог товаров
- →
- Дробильное оборудование
- →
- Бегуны мокрого помола
Бегуны мокрого помола используются для шлифования различных черных металлов, цветных металлов и нерудных минералов, и шлифования, отбора, обработки редких драгоценных металлов, таких как золото и серебро.
Это лучшее шлифовальное оборудование для большинства малых и средних обогатительных организаций.
Оборудование в основном состоит из силового агрегата, рамы, водного бассейна, шлифовального круга, мельницы и других деталей. Работает по методу шлифования колесного типа: во-первых, двигатель подает питание на редуктор скорости, а под приводом редуктора крутящий момент передается через большой вертикальный вал на верхнюю горизонтальную ось, затем передается на шлифовальный круг через тяговые стержни, установленные на обоих концах горизонтальной оси, так что шлифовальный круг создает движущую силу, а вращение против часовой стрелки выполняется горизонтально вдоль горизонтальной оси, а рабочее колесо может не только повернуть вокруг большого вертикального вала мокрых бегунов, но и повернуть вокруг центральной оси ролика, а мельница фиксирована. Необходимый материал подвергается силе сжатия от собственного веса ролика в шлифовальном станке и огромному трению, создаваемому колесом мельницы во время вращения колеса мельницы.
Размер подачи (мм): ≤25
Мощность двигателя (квт): 4-30
Видео:
| Поделиться: |
Избранное
Сравнить
«> Официальный дилер завода
Гарантия от 12 месяцев
Доступно в лизинг и факторинг
- Описание
- Доп. информация
- Отзывы (0)
Технические характеристики:
| Модель | Габарит (мм) | Размер подачи (мм) | Мощность двигателя (квт) | Скорость вращения (об/мин) | Вес (т) |
| 1600A | 1600×400×200×500±20 | ≤25 | 6-30 | 20-22 | 14. 5 |
| 1500A | 1500×350×200×460±20 | ≤25 | 6-22 | 20-22 | 13.3 |
| 1500B | 1500×350×150×460±20 | ≤25 | 6-22 | 20-22 | 12.3 |
| 1500C | 1500×300×150×420±20 | ≤25 | 6-22 | 20-22 | 11.3 |
| 1400A | 1400×250×150×350±20 | ≤25 | 6-18.5 | 16-18 | 8.5 |
| 1400B | 1400×250×150×350±20 | ≤25 | 6-18.5 | 21-23 | 8.5 |
| 1350A | 1350×250×150×350±20 | ≤25 | 6-18.5 | 16-18 | 8 |
| 1350B | 1350×250×150×350±20 | ≤25 | 6-18.5 | 21-23 | 8 |
| 1300A | 1300×250×150×350±20 | ≤25 | 6-15 | 16-18 | 7.5 |
| 1300B | 1300×200×150×350±20 | ≤25 | 4-15 | 21-23 | 7.5 |
| 1200A | 1200×220×80×270±20 | ≤25 | 6-7. 5 | 17-19 | 5.5 |
| 1200B | 1200×200×80×250±20 | ≤25 | 6-7.5 | 23-25 | 5.5 |
| 1100A | 1100×200×80×250±20 | ≤25 | 6-7.5 | 17-19 | 5 |
| 1100B | 1100×180×80×250±20 | ≤25 | 4-7.5 | 23-25 | 5 |
| 1000 | 1000×200×80×250±20 | ≤25 | 4-7.5 | 13-15 | 4.5 |
дробильное оборудование
Гарантия: Гарантия от 12 месяцев (но не больше срока полезной службы).
Регион: Москве/Санкт-Петербурге/Екатеринбурге/Новосибирске/Челябинске/Омске/Казани/Сочи/Благовещенске/Владивостоке/Хабаровске и другие. Доставка в любой регион РФ.
TOP
Узнать цену
Контактное лицо:*
Телефон:
Электронная почта:*
Файл
Расскажите подробней о Вашей заявке:
Согласен с политикой обработки персональных данных.
*
Быстрая заявка
Контактное лицо:*
Телефон:
Электронная почта:*
Расскажите подробней о Вашей заявке:
Согласен с политикой обработки персональных данных.*
Онлайн-заявка на лизинг оборудования
ПОДРОБНЕЕ О ЛИЗИНГЕ
Имя*
Номер телефона*
E-mail*
Город*
Сообщение
Очистка кофеварки и удаление накипи: правило фриков!
Если фразы чистка кофеварки и чистка эспрессо-машины вызывают у вас холодный пот, я здесь, чтобы вас успокоить.
Если фразы очистка кофеварки и очистка кофемашины вызывают у вас холодный пот, я здесь, чтобы вас успокоить.
На самом деле, очистка и удаление накипи с вашей машины не составляет большого труда. Тем не менее, очень важно знать, как правильно ухаживать за кофейным оборудованием.
Особенно, если вы хотите приготовить лучший кофе. И я просто знаю, что ты это делаешь. Поверьте, это ничуть не повредит!
Содержание
- Обзор
- Различные чистящие средства
- Автоматические эспрессо-машины
- Часто задаваемые вопросы по очистке и удалению накипи автоматических эспрессо-кофемашин
- Эспрессо-машины
- Часто задаваемые вопросы по чистке и удалению накипи эспрессо-машин
- Капельные кофеварки
- Очистка капельных кофеварок и удаление накипи Часто задаваемые вопросы
- Кофемолки
- Очистка кофемолки Часто задаваемые вопросы
- Заключительные мысли
Ежедневная очистка Очистка молочной системы Очистка кофейного контура Удаление накипи в автоматической эспрессо-машине 90 023 Очистка и удаление накипи производителем
Техническое обслуживание Обратная промывка Паровые трубки Удаление накипи из эспрессо-машин
Удаление накипи из капельных кофеварок 9 0023 Топ 5 средств для удаления накипи для капельных кофеварок
Очистка жерновов
Обзор очистки и удаления накипи
Постоянные читатели Coffeeness уже знают, что Я немного одержим , когда дело доходит до чистки кофеварки.
Я не ожидаю, что вы будете так увлечены этой темой, как я. Тем не менее, я считаю, что каждый должен знать, как поддерживать свое оборудование для приготовления кофе в хорошем рабочем состоянии.
Частая очистка и техническое обслуживание продлевает срок службы вашей автоматической эспрессо-машины или капельной кофеварки. Более того, это означает, что вы можете продолжать наслаждаться самым вкусным кофе. Имея это в виду, я разработал это подробное руководство по очистке кофеварки. Черт, я даже добавлю руководство по обслуживанию кофемолки.
Здесь вы найдете все, от того, как очистить эспрессо-машину от накипи, до лучшего оборудования для поддержания жерновной кофемолки в идеальном состоянии. Тем не менее, я знаю, что немногие из вас прочитают всю эту статью просто ради удовольствия.
Во всяком случае, меньше всего я хочу, чтобы глаза остекленели, а головы начали кивать. Так что смело переходите к разделу, соответствующему вашим потребностям!
Как на самом деле работают различные чистящие средства?
Большинство чистящих таблеток и порошков имеют кислотную основу.
Все кислоты расщепляют остатки кальция и жира, а добавленная вода удаляет эти частицы. Помимо прочего, именно поэтому после очистки таблетками и порошками необходимо еще хотя бы один раз промыть машину. Это гарантирует, что даже последние загрязняющие частицы вымываются из машины.
Между кислотами также есть небольшие различия.
Очистка и удаление накипи в автоматических эспрессо-кофемашинах
Если у вас суперавтоматическая эспрессо-кофемашина, вам необходимо выработать твердую привычку чистить ее. Тем не менее, как только вы войдете в курс дела, обслуживание одной из этих машин не займет у вас тоже много времени.
Однако не ждите, пока что-то пойдет не так , прежде чем пытаться почистить кофеварку. Мало того, обращайте внимание на свою машину, когда она дает указание запустить программу технического обслуживания!
Тем из вас, кто думает, что покупка машины с автоматическими функциями очистки избавит вас от хлопот, подумайте еще раз.
Конечно, автоматические программы — это круто. Тем не менее, вам тоже предстоит сыграть свою роль.
Ежедневная очистка автоматических эспрессо-кофемашин
Просто помните, что внутри вашей суперавтоматической кофемашины находится влажная среда, в которой плавают кофе, пар и молоко. Другими словами, — это потенциальная площадка для плесени, бактерий и других быстрорастущих тварей. Имея это в виду, есть несколько задач, которые вы должны выполнять в конце каждого дня:
- Опорожнить и промыть отсек для мусора и поддон для капель. Машина сообщит вам, когда они будут заполнены, но все равно опорожните их. Хорошей новостью является то, что их обычно можно мыть в посудомоечной машине.
- Снимите варочную группу и промойте ее теплой водой. Что я слышу от тебя? Не все варочные группы съемные? Что ж, вы правы. О некоем швейцарском производителе я расскажу чуть позже. В любом случае съемную варочную группу следует очищать каждый день и оставлять сохнуть на ночь.

- Снимите резервуар для воды, опорожните его и промойте горячей водой. В конце концов, кому нужны водоросли, растущие в их резервуаре с водой? Валовой! Опять же, дайте резервуару высохнуть на воздухе перед повторным наполнением.
- Очистите молочную систему. Подробнее об этом грядет резкий раскол.
Я думаю, мы все можем согласиться с тем, что все вышеперечисленное не звучит слишком сложно. На самом деле, , я обычно могу позаботиться о своей рутине в конце дня примерно за пять минут. Однако дело не только в этом — иногда вам придется копнуть глубже.
Все машины разные, и производители не могут договориться о том, как часто следует проводить глубокую очистку. Вот почему я всегда рекомендую обращаться к руководству пользователя, на всякий случай. В любом случае, давайте посмотрим, что еще нужно сделать, чтобы ваша суперавтоматическая машина работала наилучшим образом.
Очистка молочной системы автоматической эспрессо-машины
Пожалуй, нет необходимости говорить вам, что остатки молока могут довольно быстро стать неприятными.
Вот почему так важно содержать молочные системы в чистоте и гигиене.
Если ваша автоматическая эспрессо-кофемашина оснащена металлической паровой трубкой , обязательно протирайте ее влажной тканью после каждого использования. Да и прилавки этой влажной тряпкой тоже не протирай; перекрестное заражение реально.
Каждые несколько дней замачивайте паровую трубку в смеси воды и чистящего средства для вспенивателя молока. Это позаботится о любом упрямом налете и сделает вещи блестящими!
Автоматические системы вспенивания молока следует полностью разбирать и промывать в конце каждого дня использования. Подходит для любого капучинатора или встроенного кувшина для молока, независимо от того, имеет он функцию автоматической очистки или нет.
Когда дело доходит до глубокой очистки автоматической молочной системы, я бы сказал, что достаточно одного раза в неделю. Используйте очиститель молочного контура, чтобы промыть систему от любых неприятных вещей, которые могут там скрываться.
Очистка кофейного контура автоматической эспрессо-машины
Регулярная очистка кофейного контура имеет жизненно важное значение. Особенно, если у вас есть автоматическая эспрессо-машина с несъемной варочной группой. Да я к вам обращаюсь, Юра владельцы!
Тем не менее, даже в машинах со съемными варочными группами кофейные масла скапливаются в труднодоступных местах. Имея это в виду, рекомендуется запускать цикл очистки с использованием чистящих таблеток для эспрессо-машин один раз в месяц или около того.
Удаление накипи в автоматических эспрессо-машинах
Большинство кофеварок, описанных в моем руководстве по суперавтоматическим эспрессо-машинам 2023, позволяют использовать фильтр для воды. Это все хорошо и хорошо. Но факт остается фактом: известковый налет будет накапливаться со временем, и вам потребуется удалить накипь с вашей машины.
В зависимости от жесткости вашей воды, я бы сказал, что вы можете рассчитывать на удаление накипи примерно раз в три месяца.
К счастью, ваша машина сообщит вам, когда необходимо удалить накипь, и проведет вас через весь процесс.
Конечно, производители предостерегают от использования каких-либо средств, кроме их специальных средств для удаления накипи. Тем не менее, я рекомендую Urnex Descaler как безопасную и доступную альтернативу.
Автоматическая эспрессо-машина Очистка и удаление накипи производителем
При покупке суперавтоматической эспрессо-машины производитель обычно включает от одной до трех чистящих таблеток и пакетиков с порошком для удаления накипи. В руководстве пользователя машины производитель также указывает, что гарантия на продукт будет полностью действительна только в том случае, если вы используете оригинальные чистящие средства.
То, что эти оригинальные чистящие средства стоят в 10 раз дороже продукции конкурентов, является, во-первых, частью маркетингового хода и, во-вторых, часто не разглашается. Средства для удаления накипи от Delonghi, Jura и Gaggia не справляются со своей задачей лучше, чем обычные продукты, только потому, что они дороже.
Да, я считаю, что цены производителей на чистящие средства завышены. Тем не менее, имеет смысл по крайней мере использовать чистящие средства с теми же ингредиентами, что и , даже если вы покупаете более дешевые альтернативы. Думаю, тот же подход применим и к физической форме уборщика. Поставляет ли производитель таблетки, пакетики с порошком или жидкий чистящий раствор? Когда вы покупаете более дешевые чистящие средства, я бы выбрал то же самое.
Образцы чистящего средства и таблеток для удаления накипи, прилагаемые к вашей машине, могут послужить хорошим ориентиром для последующих покупок. Тем не менее, с моей точки зрения, совершенно бессмысленно вкладывать огромные суммы денег в чистящие средства только для того, чтобы на упаковке было указано имя производителя.
Часто задаваемые вопросы по очистке и удалению накипи автоматических эспрессо-машин
Очистка и удаление накипи эспрессо-машин
Вы будете рады услышать, что очистка и обслуживание эспрессо-машины проще простого по сравнению с суперавтоматической кофеваркой.
Независимо от того, используете ли вы полуавтоматическую или ручную эспрессо-кофемашину, требуется совсем немного усилий, чтобы поддерживать порядок.
Тем не менее, не думайте, что вы можете отказаться от всех мыслей о гигиене и рутине — есть много вещей, о которых нужно позаботиться. Кроме того, здесь задействована вода, так что вы не избавитесь от накипи.
Обслуживание эспрессо-машины
В зависимости от машины я обычно рекомендую до шести различных этапов очистки, которые вы должны выполнять с различной частотой и интенсивностью:
До, между и после каждой порции эспрессо
- Быстро очистите и высушите ручки и корзины портафильтра
- Удалите остатки кофе из варочной группы с помощью специальной щетки, например, насадки для кофе Pallo
- Промойте варочную группу. Пропустить небольшое количество горячей воды через машину, не прикрепляя портафильтр внешний вид чистой влажной тряпкой, предназначенной специально для этой цели
При каждом добавлении воды
- Коротко промойте бак перед повторным наполнением
В конце дня использования
- Промывка и почистите варочную группу
- Тщательно очистите и высушите все съемные компоненты (корзины, ручки, резервуар для воды, кувшин для молока, поддон для сбора капель, трамбовка, блокировка и т.
д.) - Тщательная очистка паровой трубки
Раз в неделю, в зависимости от частоты использования
- Обратная промывка варочной группы с помощью глухой корзины
Один раз в месяц, в зависимости от интенсивности использования
- Обратная промывка варочной группы с помощью глухой корзины
- Нанесение специального стирального порошка для удаления стойкого кофейного масла
Из Конечно, некоторые из машин в моем руководстве по эспрессо-машинам 2023 года представляют собой гибридные модели с кофемолкой на борту. Сразу приходят на ум Breville Oracle Touch и DeLonghi La Specialista как отличные примеры гибридных машин такого типа.
Очевидно, что техническое обслуживание и очистка кофемолки имеют первостепенное значение, , поэтому далее в этой статье вы найдете раздел, посвященный этой теме. А пока давайте более подробно рассмотрим несколько задач по очистке эспрессо-машины.
Обратная промывка эспрессо-кофемашин
Хотя я только что рекомендовал еженедельно промывать варочную группу эспрессо-кофемашины обратной промывкой, не стесняйтесь делать это так часто, как пожелаете. Это не значит, что вы повредите машину. Для успешной обратной промывки требуется глухая корзина, в которой вообще нет отверстий. Это означает, что вода не может уйти, и вместо этого она должна циркулировать в головке группы.
В этот момент я должен мягко напомнить вам, чтобы вы не оставляли глухую корзину в машине с включенной варочной группой. Насос вашей машины не скажет вам спасибо за такое испытание под давлением!
В любом случае, обратная промывка особенно эффективна при использовании в сочетании с чистящим средством для эспрессо-машин. Puro Caff — один из самых популярных брендов среди профессиональных бариста, но Urnex Cafiza должен работать не хуже.
Просто добавьте щепотку порошка в глухую корзину, зафиксируйте портафильтр на месте, затем включите варочную группу примерно на 10 секунд.
Опорожните корзину, затем повторяйте процесс, пока вода не станет чистой.
Очистка паровых трубок кофемашины для эспрессо
Если вы тщательно очищаете паровую трубку после каждого использования, у вас не должно быть сильного неприятного налета. Тем не менее, рекомендуется каждые несколько дней погружать паровую трубку в смесь воды и очистителя для вспенивателя молока.
Оставьте на 20 минут или около того, затем очистите паровую трубку в течение нескольких секунд. Да, и не волнуйтесь — раствор для очистки молочных продуктов абсолютно безопасен для пищевых продуктов. Тем не менее, я бы не рекомендовал проверять это, выпивая бутылку этого вещества!
Удаление накипи в эспрессо-машинах
Удаление накипи в эспрессо-машинах — это не та головная боль, которую вы можете себе представить. На самом деле, в зависимости от жесткости вашей воды и частоты использования, вам не нужно очищать от накипи чаще, чем раз в пару месяцев.
Внешний вид машины поможет вам оценить ситуацию. Когда вы замечаете накопление минералов в кофе, на ручке портафильтра или варочной группе, уже слишком поздно.
- Начните с того, что поместите средство для удаления накипи в резервуар для воды или миску и оставьте все движущиеся части впитываться в течение необходимого времени. Корзины и ручки портафильтра следует замочить примерно на 30 минут, затем тщательно вымыть и высушить.
- Заполните резервуар водой и соответствующей дозой порошка для удаления накипи, прежде чем оставить его на такое же время. То же самое касается наконечников молочных палочек (таких, которые отвинчиваются) и сетчатых фильтров.
Если у вас есть ручная эспрессо-кофемашина, такая как La Pavoni Professional, рассмотрите возможность использования экологически чистого средства для удаления накипи с лимонной кислотой. Поскольку котел La Pavoni никелирован , вы можете смело использовать лимонную кислоту.
Однако это не лучший выбор для эспрессо-машин с алюминиевым бойлером, так как лимонная кислота может вызвать их коррозию. Вместо этого рассмотрите возможность использования решения для удаления накипи DeLonghi EcoDecalk, которое является надежным экологически безопасным вариантом.
Часто задаваемые вопросы по очистке эспрессо-машины и удалению накипи
Очистка капельных кофеварок и удаление накипи
Раньше люди редко задумывались об очистке кофеварок. Неудивительно, что эти плохо обработанные машины задыхались и булькали, как будто мир вот-вот наступит! Я могу только представить, сколько грязи, плесени и известкового налета там висело и мешало процессу пивоварения.
Мне нравится думать, что в наши дни мы все больше заботимся о качестве нашего кофе. Кроме того, за последние годы капельные кофеварки прошли долгий путь9.0016 — ознакомьтесь с моим руководством по кофеварке 2023, если вы хотите увидеть действительно потрясающие машины.
На самом деле, большинство кофеварок практически не требует обслуживания, какими бы сложными они ни были. Тем не менее, есть много уголков и закоулков, где влага и кофейная гуща могут спровоцировать вечеринку с плесенью. Вот почему важно регулярно мыть и тщательно сушить все съемные детали. Я говорю о насадках для душа, варочных корзинах и постоянных фильтрах.
Даже если производитель говорит, что съемные детали можно мыть в посудомоечной машине, я не советую этого делать. Поверьте мне, полоскание под теплой водой с использованием небольшого количества мягкого моющего средства прекрасно справится с этой задачей. Это вдвойне и втрое для термографа. Помещение одного из них в посудомоечную машину приведет к окончательному повреждению.
Как очистить капельную кофеварку от накипи
Позвольте мне начать с мягкого напоминания вам всегда использовать фильтрованную воду для приготовления кофе. Это то же самое, что и : покупка высококачественных кофейных зерен и их помол в свежем виде с точки зрения важности.
С учетом сказанного вам нужно будет регулярно очищать кофеварку от накипи, независимо от того, насколько хорошо фильтрована ваша вода.
Известковый налет и остатки кофе со временем накапливаются, и если вы не решите эту проблему, производительность вашей кофемашины ухудшится. Мало того, ваш кофе не будет таким вкусным, как должен, что просто трагедия!
У всех производителей разные мнения о том, как часто следует запускать цикл очистки кофеварки, но на самом деле она сводится к как часто вы готовите кофе и жесткость вашей воды.
В любом случае, многие из лучших кофеварок дадут вам знать, когда пора удалять накипь. Например, кофеварка Ninja CM401 Specialty Coffee Maker имеет кнопку Clean , которая загорается, когда время приближается. Поверьте мне, лучше не игнорировать предупреждение!
Все кофеварки разные, , поэтому рекомендуется ознакомиться с руководством пользователя , чтобы узнать, как удалить накипь. Однако процесс почти всегда одинаков:
- Просто наполните резервуар для воды смесью воды и белого уксуса или раствором для удаления накипи и запустите полный цикл заваривания.

- Сделав это, запустите еще пару циклов заваривания, используя только воду, чтобы смыть оставшиеся остатки.
Я уже говорил это миллион раз, но стоит повторить: не экономьте на очистке от накипи! Ничего страшного, это не займет у вас много времени и продлит жизнь вашей кофеварке.
5 лучших средств для удаления накипи для капельных кофеварок
Наш лучший выбор
Средство для удаления накипи PurTru для кофе и эспрессо-машин
Полностью натуральное
Сделано в США
Хорошая цена
Essential Values Distiller Cleaner & Descaler
Экологичность
20 использований в контейнере
Очень хорошо работает
| ПРОВЕРИТЬ ЦЕНУ |
DeLonghi EcoDecalk
Высокая оценка
Отличная цена
Надежный бренд
| ПРОВЕРИТЬ ЦЕНУ |
Urnex Liquid Dezcal
Прост в использовании
Популярный бренд
Используется профессионалами
| КОНТРОЛЬ ЦЕНЫ |
Чистка капельной кофеварки и часто задаваемые вопросы по удалению накипи
Очистка кофемолок
Само собой разумеется, но я Я все равно скажу: использование приличной кофемолки необходимо для получения хорошего кофе независимо от того, какой метод заваривания вы используете.
Я не говорю о дешевой шлифовальной машине. Я почти предпочел бы, чтобы вы использовали предварительно молотый кофе, а не подвергали свои зерна унижению, будучи нарезанными волей-неволей вращающимися лезвиями!
В любом случае, если у вас в настоящее время нет возможности молоть кофе, ознакомьтесь с моим руководством по кофемолке 2023 для вдохновения.
Очень важно содержать кофемолку в чистоте и поддерживать ее в хорошем состоянии. Со временем в кофемолке накапливаются кофейные масла и частицы молотого кофе. Излишне говорить, что это не займет много времени, прежде чем качество вашей чашки резко упадет благодаря всей этой несвежей и прогорклой гадости.
К счастью, чистка кофемолки очень проста и не займет у вас много времени.
- Я рекомендую регулярно использовать чистящие таблетки Urnex Grindz для удаления застоявшегося кофе и остатков масла.
- Если вы используете суперавтоматическую эспрессо-машину, выберите вместо нее Urnex Supergrindz.
Они были специально разработаны для использования в кофемолках суперавтоматики.
Кстати, сделайте себе одолжение и очистите бункер кофемолки , прежде чем добавлять новую партию кофейных зерен. Вы можете использовать бумажное полотенце, чтобы позаботиться о любых оставшихся кофейных маслах.
Очистка жерновов кофемолки
Если вы будете использовать автономную кофемолку так же часто, как и я, то жернова не займут много времени, чтобы попасть в мелкую кофейную гущу. Это влияет на способность кофемолки обеспечивать стабильные результаты , и ваш кофе пострадает от последствий.
Отдельностоящая кофемолка, такая как Baratza Encore, имеет легко снимаемый верхний жернов, который можно вынуть и почистить щеткой для кофемолки. Пока вы это делаете, войдите в камеру кофемолки, желоб для молотого кофе и камеру для молотого кофе, чтобы удалить как можно больше лишней пыли, зерен и молотого кофе.
В то время как кисть вполне подойдет, Я предпочитаю пылесос.
Маленький мини-пылесос Brigii отлично справляется с уборкой в труднодоступных местах. В любом случае чистить кофемолку таким способом невероятно приятно!
Часто задаваемые вопросы по очистке кофемолки
Заключительные мысли об очистке и удалении накипи
Если вы только что прочитали всю эту статью от начала до конца, позвольте вас поздравить! Теперь вы официально являетесь экспертом по очистке и обслуживанию оборудования для приготовления кофе.
Конечно, если я что-то пропустил по пути, я очень жду от вас известий. Как всегда, я буду обновлять это руководство, добавляя любую соответствующую информацию , как только она попадет в мое поле зрения.
Для тех из вас, кто пренебрегал своими обязанностями по очистке кофеварки, я надеюсь, что это руководство станет первым шагом к исправлению ваших ошибок. Я обещаю, вы поблагодарите меня, как только почувствуете разницу между чистой, счастливой машиной и качеством вашей ежедневной чашки кофе!
Надеюсь, этот ускоренный курс по очистке кофеварки и удалению накипи оказался для вас полезным! Пожалуйста, дайте мне знать в комментариях, если у вас есть какие-либо вопросы или предложения.
Amazon.com: Miele NEW CM 5310 Silence Automatic Coffee Maker & Espresso Machine Combo, 1,3 литра, черный обсидиан
3,7 3,7 из 5 звезд
104 оценки
Стиль:
СМ 5310 Тишина
Цвет:
Черный обсидиан
| Бренд | Miele |
| Цвет | Черный обсидиан |
| Размеры продукта 903 76 | 9,5″Д x 18,1″Ш x 14,2″В |
| Особая функция | Функция Silence, ComfortClean, Функция кофейника, Приготовление одним касанием для двоих, Индивидуальный выбор языка Подробнее |
| Тип кофеварки | Эспрессо-машина |
|
| ||||
|
|
Мощность смешивания
4,7 4,7
Вкус
905 25 4.
5
5
д.)
Они были специально разработаны для использования в кофемолках суперавтоматики.