Содержание
4.4 Ремонтные площадки — septilos.ru
Опубликовано: Рубрика: Установка крановАвтор: Дмитрий Коваль (специалист)
Необходимость устройства специальных площадок для осмотра и обслуживания механизмов расположенных вне крана, Правилами по кранам (ст. 229) предусматривается только для однобалочных (опорных и подвесных) и двухбалочных подвесных кранов, если они установлены в здании и не имеют площадок и галерей, расположенных на самом кране. В остальных случаях целесообразность устройства площадок определяется организацией, проектирующей установку кранов, или предприятием, эксплуатирующим их.
Площадки могут выполняться стационарными или передвижными. В стационарных площадках расстояние от настила до нижнего габарита обслуживаемого крана должно быть не менее 1800 мм, однако при этом расстоянии доступ к механизмам весьма затруднителен.
Для создания нормальных условий обслуживания это расстояние может быть уменьшено при условии устройства на лестнице запирающейся двери с автоматической электроблокировкой, снимающей напряжение с главных троллейных проводов ремонтного участка.
Лестница должна иметь дверь, при открывании которой автоматически обесточивается секция троллей в зоне площадки. Включение троллей после ремонта крана производится рубильником ремонтной зоны. Электросхему блокировки входа на ремонтную площадку см. 7. 13.
Примерные решения стационарных ремонтных площадок приведены на рис. 4. 16—4. 22.
Требование к двери ремонтной площадки однобалочных и двухбалочных подвесных кранов, когда расстояние от пола ремонтной площадки до нижних частей крана менее 1800 мм и когда токопровод к крану осуществляется не троллейными проводами, а гибким кабелем. В связи с этим необходимость устройства блокировки для автоматического снятия напряжения с гибкого кабеля в этом случае
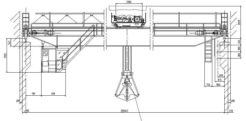
Рисунок 4.18 Ремонтная площадка в конце пролета для мостовых электрических однобалочных кранов с управлением из кабины грузоподъемностью 1—5 тс пролетом от 4, 5 до 10, 5 м: 1 — площадка; 2 — цепочка; 3 — упор; 4 — кабина
должна быть определена с учетом количества кранов, работающих в одном пролете, способа управления кранами (из кабины или с пола) и возможности принятия других мер, предупреждающих выход людей на ремонтную площадку во время работы кранов и наезда на них.
Ремонтная площадка рассчитывается на равномерно распределенную нагрузку кранов 20U кгс/см2, а участок площадки, назначаемый
Рисунок 4.19. Ремонтная площадка в конце пролета мостовых электрических однобалочных кранов с управлением из кабины грузоподъемностью 1—5 тс пролетом от 13, 5 до 23, 5 м (1—4-см. рис. 4. 18):
для ремонта электротали, на сосредоточенный вес электростали соответствующей грузоподъемности.
Для двух балочных мостовых опорных кранов целесообразно предусматривать в ремонтном вагоне (см. 7. 5) площадки для осмотра и смены ходовых колес крана, если от торцовой части крана до стены
здания имеется расстояние не менее 600 мм. Доступ на такие площадки предусматривается с моста крана или через люк в настиле, закрытый во время работы кранов. Доступ на такую ремонтную площадку производится по наряду — допуску.
Управляемые из кабины мостовые краны (кроме однобалочных и подвесных) должны быть оборудованы кабинами для обслуживания главных троллейных проводов и токоприемников, если они расположены ниже настила галереи моста (ст.
230 Правил по кранам). Люк для входа с настила моста в эту кабину должен быть снабжен крышкой с запором.
Размеры кабины для обслуживания главных троллеев и их токоприемников не регламентированы и обычно принимаются 1000X1400 при высоте не менее 1800 мм. Принимать площадь кабины менее чем 800X800 мм не следует. Кабина должна быть ограждена перилами высотой не менее 1 м со сплошной подшивкой по низу па высоту 100 мм. Она подвешивается на расстоянии 1000—1100 от оси подкранового рельса. При токоподводе кабелем кабины не устраиваются. Пол кабины застилается диэлектрическим ковриком.
Рисунок 4.20. Ремонтная площадка для подвесных двух и трехпролетных электрических однобалочных кранов грузоподъемностью 1—5 тс (1—3 — см. рис. 4. 18)
|
04.09.2017
В первую очередь пролетная конструкция должна иметь проходную галерею. В исключения попадают краны с электроталями и без передвижных кабин управления, а также если на мосту нет особо важных и ответственных узлов, нуждающихся в периодическом обслуживании. Проходная галерея несет еще одну важную функцию — возможность перехода на нее машиниста из кабины управления, при остановке последней в любом положении.
При двухбалочной структуре листовой мост крана нередко оборудуется боковой площадкой. Выбор правильного крепления ее настила позволяет увеличить жесткость балки по горизонтальной и вертикальной оси на 10-20%. Для быстрого доступа к механизмам грузовой тележки на одну из опор крана также устанавливают площадку. Она может иметь откидную конструкцию, чтобы не препятствовать работе, если кран оснащается электроталью.
Когда козловой кран имеет троллевую систему питания, на краю моста монтируют специальную люльку, для удобного обслуживания токосъемников.
Все лестницы, проходы и площадки должны обязательно снабжаться ограждениями, за исключением тех случаев, когда они предназначены только для эпизодического использования, например, при монтаже крана. При этом суммарная масса всех элементов для обслуживания крана не должна превышать установленных Гостехнадзором правил. Так, для
Автоматическая блокировка гарантирует работу с закрытой дверью, предупреждает выпадение человека из кабины в ходе эксплуатации, а также исключает посадку и выход «на ходу» (при незапертой двери).
Кабины электрических кранов помещаются под галереей моста и сообщаются с ней лестницей. При этом расположение лестницы в кабине не должно мешать работе крановщика. На тех
кранах, где кабина мала и стеснена оборудованием и аппаратурой управления, лестницу выхода на галерею, если позволяют
условия, рекомендуется выносить наружу, за пределы кабины.
Такая практика на некоторых предприятиях оправдывает себя.
В необычных условиях работают краны, занятые в копровых
цехах по разделке металлического лома с помощью электромагнитов и бойных шаров. Кабины таких кранов должны иметь
надежную зашивку понизу, защищающую кабину и крановщика
от металлических осколков. В этом случае открытая часть кабины должна заполняться стойким, прозрачным материалом.
Все краны, работающие на открытом воздухе, должны иметь
утепленные, зашитые со всех сторон и застекленные кабины
Летом в них устраиваются солнцезащитные козырьки,
а зимой для их отопления разрешается устанавливать электрические обогревательные приборы.
Однако они должны быть
электро- и пожаробезопасными, присоединяться к электрической
сети после главного рубильника в кабине крана. Рекомендуется
также теплоизоляция кабин таких кранов, установка механических стеклоочистителей и оконных обогревателей. Это исключает необходимость открывания окон в зимнее время.
Чтобы создать крановщику удобства в работе, Правилами
предусматривается оборудование кабин новых кранов стационарными сиденьями, регулирующимися по высоте и в горизонтальной плоскости. На кранах запрещено использовать для сидения случайные предметы (перекладины). Предусматривается
электрическое освещение, которое не зависит от того, есть ли
напряжение на электрооборудовании крана. Подкрановое освещение устанавливается на самом кране.
Площадки, галереи, лестницы и оградительная техника
В соответствии с Правилами для удобного и безопасного
обслуживания кранов, их механизмов и электрического оборудования, расположенных вне кабины, предусматривается устройство соответствующих галерей, площадок и лестниц.
Посадочные площадки.
Для входа крановщика в кабину
управления краном устраиваются посадочные площадки с постоянными лестницами. Посадочные площадки бывают двух типов:
торцевые и промежуточные. Торцевые устраиваются в тупике
в торце пролета, у стены здания. Промежуточные — при работе
в одном пролете нескольких мостовых кранов на технологически
выгодном, удобном и безопасном участке пути их работы.
Наиболее безопасны посадочные площадки, размещаемые у
торцевой стены здания. Поэтому если в пролете на одном подкрановом пути действует не более двух кранов, их следует размещать с обоих торцов е здания. Промежуточные посадочные
площадки, расположенные вдоль пролета цеха, требуют особого
внимания во время эксплуатации. Из-за небольшого расстояния
между кабиной и площадкой создается угроза травмирования людей.
На одном из заводов бригада подсобных рабочих литейноro цеха использовала промежуточную посадочную площадку для
побелки здания. По окончании работы штукатур опускал на пол
цеха пульверизатор и шланги.
В этот момент мимо проходил
мостовой кран и кабиной травмировал рабочего.
Важное требование правил техники безопасности к устройству посадочных площадок — обязательно размещать их с противоположной стороны троллейных проводов. Исключение, как
и при размещении кабин кранов, допускается только тогда,
когда троллейные провода недоступны для случайного прикосновения к ним с посадочной площадки, лестницы, кабины. Посадочная площадка должна быть достаточно свободной и соответствовать Правилам.
Рис. 10. Ограждение промежуточных посадочных площадок.
Расстояние от пола до нижних частей
перекрытия или выступающих частей конструкций — не менее
1800 мм. Пол площадки должен быть расположен на одном
уровне с полом кабины для нормального и безопасного перехода с площадки в кабину и наоборот. Зазор образующийся
между кабиной и площадкой, должен быть не менее 60 мм и
нс более 150 мм. Иногда разрешается устройство посадочной
площадки ниже уровня пола кабины (не более чем на 250 мм),
если при расположении посадочной площадки на одном уровне
с полом кабины нельзя обеспечить габаритный размер (1800 мм)
по высоте.
Разрешается также наезд кабины на площадку (не
более чем на 400 мм) при полностью сжатых буферах, если посадочная площадка в торце здания сделана ниже уровня полз
кабины. Правилами предусматривается, что при этом необходимо соблюдать следующие зазоры:
между посадочной площадкой и нижней частью кабины (по
вертикали) — не менее 100 мм:
между кабиной и ограждением посадочной площадки не менее 400 мм;
со стороны входа в кабину — не менее 700 мм.
В некоторых случаях, когда по конструктивным или другим
производственным причинам невозможен непосредственный вход
в кабину крана, с ведома местных органов Госгортехнадзора
разрешается вход в нее через крановую галерею. При открывании двери в ограждении галереи автоматически обесточиваются
троллеи, пролегающие вдоль моста крана.
При расположении главных крановых троллей выше уровня
подкрановых путей посадка на кран разрешается только с той
стороны, где не проходят главные троллейные провода; во всех
случаях у стоянки крана они должны быть зашиты щитом из
изолирующего материала.
Вход в кабину через мост крана,
у которого. грузоподъемные и транспортные операции выполняются с помощью электрического магнита и расположение
троллей для питания магнита не исключает случайных прикосновений к ним, запрещается.
Галереи.
Настил галерей, всех ремонтных и других площадок
должен быть металлическим, из стальных рифленых или дырчатых листов с отверстиями не более 20 мм. Вместе с тем Правилами разрешается устройство деревянного настила, если он
достаточно прочный и отвечает противопожарным требованиям.
Металлический или деревянный настил должен быть уложен по
всей длине и ширине галерей, площадок, переходов. Все галереи, и площадки, предназначенные для обслуживания грузоподъемных кранов, а также концевые балки мостовых кранов обязательно ограждаются перилами высотой 1 м со сплошной зашивкой понизу защитной полосой высотой не менее 100 мм. Галереи
для прохода вдоль подкрановых путей должны отвечать указанным выше требованиям и иметь удобные безопасные лестницы.
Проходная галерея имеет перила со стороны пролета и с противоположной стороны, если она не ограничена стеной.
Ширина
прохода — не менее 400 мм, а высота — не менее 1800 мм. Для
электробезопасности людей галереи располагаются со стороны
пролета, противоположного троллеям. Наиболее удачным следует считать устройство легкой переходной галереи, расположенной выше уровня подкрановых путей со специальными проходами в металлических колоннах здания. Оставлять у колонн неогражденный участок галереи не разрешается. При устройстве
прохода внутри колонны за 1 м до подхода к ней ширина прохода по галерее уменьшается до ширины прохода в колонне.
Каждая галерея обязательно имеет выходы не реже чем
через 200 м. Если есть непроходные подкрановые пути (неогражденный проход менее 400 мм), пребывание на них людей запрещено.
Лестницы.
Обслуживание кранов вызывает необходимость
устройства лестниц для выхода на площадки, галереи. Лестницы
должны быть удобными и безопасными. Правила предусматривают ширину лестниц не менее»600 мм, а расстояние между сту-
пенями — не более 300 мм. Ширина лестниц на самом кране — не менее 500 мм.
Исключение допускается для лестниц высотой
менее 1,5 м. Эти лестницы, в том числе предназначенные для выхода из кабины на крановую галерею, могут выполняться шириной не менее 350 мм. Ступени вертикально расположенных лестниц должны отстоять не менее чем на 150 мм от металлоконструкций крана.
Лестницы для выхода на посадочные, ремонтные площадки
и на галереи (для прохода вдоль крановых путей) необходимо располагать так, чтобы находящихся на них людей не зажать
случайно краном или его кабиной. Угол наклона лестниц к roризонту не должен превышать 60 град. Если высота лестниц
более 10 м, то через каждые 6 — 8 м устраиваются площадки.
Специальные требования предъявляются и к наклонным
лестницам. При наклоне их к горизонту на 75.град..и менее они
должны иметь перила и плоские ступени из стальных рифленых
или гладких с направленным рельефом листов. Разрешается выполнять ступени из двух-трех стержней.
Лестницы с углом наклона к горизонту более 75 град. или
вертикальные при высоте более 5, начиная с высоты 3,5 мм,
должны иметь защитные дугообразные ограждения.
Дуги располагаются друг от друга на расстоянии не более 800 мм и соединяются между собой не менее чем тремя продольными полосами.
Полезная информация:
На сегодня, они являются средством малых механизаций и предназначаются для осуществления погрузочно-разгрузочной работы. Подобные устройства состоят из крюковых подвесок, рабочих ходов, которые используются для изменения местонахождения груза, и с холостых ходов, которые необходимы для возвращения пустого механизма к начальному местонахождению. Довольно часто сфера применения мостовых кранов находится в ремонтных цехах или на подразделениях разных промышленных отраслей.
Разновидности монтажа
Существует две разновидности монтажа: комплексный и частичный, каждый из которых имеет свои особенности и нюансы. Комплексные разновидности включают установку подкранного пути и лишь потом сбор грузоподъёмных приспособлений. В то время как частичное монтирование подразумевает установку спецтехники на подкрановый путь. При этом стоит учитывать тот факт, что любой подкрановый путь данной разновидности монтажа требует дополнительных процессов нивелировки, в соответствии с нормативными требованиями с такими нормативными документами, как ГОСТ, СНиП, РД 10-138-97 и ПБ 10-382.
При монтаже кранов следует четко следовать инструкции, которая включает: принятие решения о месте установки кранов с проведением расчетов и выбор правильных путей создания механизмов. После получения этих данных происходит их сравнение для выявления полной идентичности, что необходимо для последующего правильного разработанного ППР (Проекта производственной работы). В подобных проектах представлены все ключевые технологические решения, которые касаются монтажа грузоподъемных устройств.
Именно поэтому принято полагать, что наиболее многообещающими и приемлемыми способами установки являются крупноблочные и полноблочные. В данных технологиях уменьшено количество операций, использующихся на высоте. Так же есть вероятность применения грузоподъемных устройств в ускоренные сроки исполнений по сравнению с поэлементными процессами сборки.
Процесс монтирования подкрановых путей
Стоит заметить тот факт, что специфика выполнения подкрановых путей зависит от типажа и уникальных особенностей грузоподъемных устройств.
Именно поэтому принято различать несколько разновидностей выполнения подкрановых путей для каждого мостового крана:
- комплексы каждой подкрановой балки, которые крепятся на несущие элементы конструкции помещения.
- опорный подкрановый путь, который устанавливается на несущие колоны строения.
- подвесные крановые пути, которые крепятся на стропилы, усиленными фермами.
Этапы монтажа подкрановых путей
- Разработка проекта подкранового пути
- Экспертиза места, на котором будет располагаться данная конструкция
- Разработка ППР
- Прием всех элементов металлоконструкций и крепежа, необходимых для монтажа
- Монтаж покрановых балок и рельс
- Нивелировка подкрановых путей
Специфика установки подвесных однобалочных и опорных кранов
Нужно учитывать тот факт, что на каждый этап сбора грузоподъемных конструкций имеет некое влияние способ крепления кранов в отношении к несущим конструкциям всех производственных помещений, зданий.
Именно поэтому установка подвесных однобалочных конструкций состоит из нескольких этапов:
- установка пролетных балок на особую подставку.
- осуществления процессов сборки каждой концевой балки.
- осуществление процессов сборки электротельферов.
- электромонтажная работа на основе проекта.
После соблюдение вышеперечисленных этапов необходимо подходить к непосредственному монтированию опорных однобалочных кранов на подкрановую балку, где монтаж также имеет свои этапы:
- устанавливание концевой балки на подкрановый путь.
- процесс сборки мостов.
- процесс монтирования готовых мостов на концевую балку.
- процесс проверки на прочность соединений (сварочных и болтовых).
Но, следует заметить, что после окончания работ, не следует приступать к скорому применению, ведь каждая конструкция должна проходить еще некоторые испытания, чтобы избежать появления дефектов и проблем на основе такого нормативного документа, как ПБ 10-382-00.
В частности:
- статические испытания, которые заключаются в проверках кранов на наличие поднятия грузов, которые превышают зарекомендованные изготовителями показатели грузоподъемности до двадцати пяти процентов.
- динамические проверки, которые позволяют совершить проверку способностей кранов поднимать грузы, которые превышают рекомендованные показатели грузоподъемности в процессах движения до десяти процентов.
Использование подобных испытаний позволяет полностью совершить проверку на наличие работоспособности тормоза и других элементов, исключая при этом вероятности возникновения аварийных ситуаций и даже летального исхода, которые могут быть связанны с изначальными неисправностями грузоподъемных конструкций.
Как правильно выбрать технологии монтирования?
Стоит учитывать, что технологии монтирования в полной мере зависят от объема и габарита всех устанавливаемых элементов оборудования, от качеств мощений и даже планировок зданий, цеха и склада.
К тому же не стоит недооценивать важность влияния площади монтажных площадок, способов и последовательностей проведенных работ по собиранию кранов.
Существует несколько подходов к монтированию одно- или двубалкового крана:
1. Подход поэлементной установки, который подразумевает сборку каждой конструктивной части на рабочих площадях грузоподъемных устройств. Именно поэтому в обязательном порядке нужно каждую деталь поднимать к местам установки. Естественно, существуют некоторые недочеты использования подхода, но при отсутствии достаточного пространства этот тип монтажа будет наиболее удачным. Для этого подхода установки необходимо придерживаться нескольких этапов: очередное поднятие полумостовых группировок, монтажа грузовых тележек, с анализами их геометрического размера при процессе сборки.
2. Крупноблочная установка, которая включает монтирование каждого отдельного блочного устройства, где угодно. Сюда входит электрооборудование, узлы и механизмы кранов. Следующим этапом является поднятие укомплектованных и собранных узлов на площадки монтирования грузоподъемных устройств для сборки их воедино.
Применение подобного подхода позволяет сократить опасность процессов сборки на высоте, а также ускорить процессы установки в общем. Но, тем не менее, наличие малого количества площадей для сборки крупногабаритной конструкции не позволит воспользоваться этим подходом.
3. Подход полноблочной установки конструкии, который заключается в сборке в нижних положениях. Что позволит после сборки поднять спецтехнику для монтажа на крановые пути.
Особенности сметы по монтированию
В обязательном порядке для завершения успешного процесса монтирования следует четко следовать тому перечню работ, что были проведены, в этом случае не учитывается тот факт косвенно или непосредственно они касались монтажа.
Что касается содержания деятельности, то все зависит от методов монтирования, которые команда мастеров может определить, делая уклон на необходимое обстоятельство.
На любые способы монтирования влияет масса самих кранов, их конструкции. В периоды написания планов работ особый уклон делается на специфику помещений для грузоподъемных устройств, которые могут находится у заказчиков.
К самым популярным методам монтирования можно отнести:
- монтирование при помощи стрелового самоходного крана.
- монтирование с использованием башенного крана.
- монтирование совместно со стреловыми рельсовыми кранами.
- монтирование, основанное на специфики каркасных конструкций помещений, сооружений.
Довольно часто из-за частого использования оборудования можно столкнуться с необходимостью проведениях их ремонтных работ. Что касается мелких ремонтных работ, то они осуществляются в обычном режиме, чего нельзя сказать о капитальном ремонте, ведь он нуждается в специализированных организациях. Именно поэтому в сметах должны указываться проведения ремонтных работ с указанием:
- крановой разборки и определенных частей крана, которые нуждаются в проведении капитального ремонта.
- промывание каждой детали, включая очистку каждого узла и механизма.
- замены сломанной, изношенной детали, механизма или узла.
- перепроверки, ремонтных работ любого крепежного элемента.

- процесс сборки и проверки, обкатки механизмов, которые были повреждены или заменены.
Именно поэтому не стоит самостоятельно приступать к проведению ремонтных работ изношенных деталей, так как это повлечет за собой лишь появление еще больших проблем, которые можно будет решить, но за более высокую цену. Лучше всего обратится к специалистам своего дела, которые являются опытными и квалифицированными в своей области, и моментально устранят все неисправности, дадут рекомендации по дальнейшему пользованию и, тем самым смогут сэкономить силы, время и средства владельцу.
Возможно, Вас также заинтересует:
Калифорнийский свод правил, раздел 8, раздел 5004. Подвесные платформы для персонала крана или деррик-крана.
Перейти к основному содержанию
Эта информация предоставляется бесплатно Департаментом производственных отношений.
со своего веб-сайта www.dir.ca.gov. Эти правила предназначены для
удобства пользователя, и не делается никаких заявлений или гарантий, что информация
является текущим или точным.
Полный отказ от ответственности см. на странице https://www.dir.ca.gov/od_pub/disclaimer.html.
Подраздел 7. Общие приказы по промышленной безопасности
Группа 13. Краны и другое грузоподъемное оборудование
Статья 98. Правила работы
| Вернуться к указателю Новый запрос |
(a) Область действия. Эти Приказы применяются к проектированию, строительству, испытаниям, использованию и техническому обслуживанию платформ для персонала, а также подъему платформ для персонала на грузоподъемных кранах и вышках.
(б) Определения. Для целей раздела 5004 настоящих Приказов применяются следующие определения:
Отказ. Отказ означает отказ от загрузки, поломку или разделение компонентов.
Подъемник (подъемный). Под подъемным механизмом понимаются все функции крана или вышки, такие как опускание, подъем, поворот, подъем и подъем, подъем и опускание или подвешивание платформы для персонала.
Отказ от загрузки. Отказ от нагрузки означает момент превышения предела прочности.
(c) Общие требования. Использование крана или вышки для подъема сотрудников на платформу для персонала запрещено, за исключением случаев, когда монтаж, использование и демонтаж обычных средств доступа к рабочей площадке, таких как подъемник для персонала, лестница, лестница, воздушный подъемник, подъемная рабочая платформа или строительные леса, будет более опасным или невозможным из-за конструкции конструкции или условий на рабочей площадке.
(d) Эксплуатационные критерии.
(1) Подъем платформы для персонала должен выполняться медленно, подконтрольно и осторожно, без резких движений крана, стрелы или платформы.
(2) Грузовые канаты должны выдерживать без разрушения по крайней мере семикратную максимальную предусмотренную нагрузку, за исключением случаев, когда используется веревка, устойчивая к вращению. максимальная предполагаемая нагрузка.
Требуемый расчетный коэффициент достигается за счет текущего коэффициента запаса прочности 3,5 [требуется в соответствии с разделом 4884(b) настоящих Приказов] и применения 50-процентного снижения грузоподъемности крана, которое требуется в соответствии с разделом 5004(d)(5) настоящих Приказов. Заказы.
(3) Барабанные тормоза груза и подъема стрелы, тормоза поворота и блокирующие устройства, такие как собачки или собачки, должны быть задействованы, когда платформа для персонала находится в стационарном рабочем положении.
(4) Кран должен стоять на одном уровне и стоять на прочном основании. Краны, оснащенные выносными опорами, должны быть полностью развернуты в соответствии с техническими условиями производителя, насколько это применимо, при подъеме сотрудников.
(5) Общий вес загруженной платформы для персонала и связанного с ней такелажа не должен превышать 50 процентов номинальной грузоподъемности для радиуса и конфигурации крана или стрелы.
(6) Запрещается использовать машины с движущимися стрелами (стрелы, опускание которых осуществляется тормозом без помощи других устройств, замедляющих скорость опускания).
(7) Для подвешивания платформ для персонала должны использоваться только тросовые или стальные цепные стропы и подвески.
(e) Инструменты и компоненты.
(1) Краны и стрелы с изменяемым углом наклона стрелы должны быть оборудованы индикатором угла наклона стрелы, хорошо видимым оператору.
(2) Краны с телескопической стрелой должны быть оборудованы устройством, четко указывающим оператору в любое время на выдвинутую длину стрелы, или точное определение радиуса груза, который будет использоваться во время подъема, должно быть сделано до к подъемному персоналу.
(3)(A) Необходимо использовать устройство защиты от двух блокировок, которое при активации отключает все функции крана, которые могут вызвать две блокировки.
(B) Когда для подъема платформ для персонала используется деррик-кран, должны быть установлены ограничительные устройства, предотвращающие двойную блокировку.
(4) Барабан подъемника грузовой линии должен иметь систему или устройство на силовой передаче, кроме тормоза подъемника, которое регулирует скорость снижения скорости подъемного механизма (управляемое опускание груза).
Свободное падение запрещено.
(f) Платформы для персонала – критерии проектирования.
(1) Платформа для персонала и система подвески должны быть спроектированы инженером-регистратором.
(2) Система подвески должна быть спроектирована так, чтобы свести к минимуму опрокидывание платформы из-за движения сотрудников, занимающих платформу.
(3) Сама платформа для персонала, за исключением системы ограждений и креплений ремней/привязных ремней, должна выдерживать без повреждений собственный вес и по крайней мере пятикратную максимальную предполагаемую нагрузку. Критерии для систем ограждений и креплений нательных ремней/привязных ремней содержатся в статье 2 Общих приказов по промышленной безопасности и статье 24 Приказов о безопасности строительства соответственно.
(g) Технические характеристики платформы.
(1) Каждая платформа для персонала должна быть оборудована системой ограждений, отвечающей требованиям статьи 2 Общих приказов по промышленной безопасности, и должна быть ограждена, по крайней мере, от нижнего борта до середины поручня либо цельной конструкцией, либо просечно-вытяжным листом, имеющим отверстия не более 1/2 дюйма.
(2) Поручни должны быть установлены внутри всего периметра платформы для персонала.
(3) Въездные ворота, если они установлены, не должны открываться наружу во время подъема.
(4) Въездные ворота, в том числе раздвижные или откидные ворота, должны быть оборудованы ограничительным устройством для предотвращения случайного открывания.
(5) Должна быть обеспечена высота над головой, позволяющая сотрудникам стоять на платформе вертикально.
(6) В дополнение к использованию касок, работники должны быть защищены накладными средствами на платформе для персонала, когда работники подвергаются воздействию падающих предметов.
(7) Все шероховатые кромки, с которыми соприкасаются работники, должны быть зачищены или сглажены, чтобы предотвратить травмы работников от проколов или порезов.
(8) Все сварные работы платформы для персонала и ее компонентов должны выполняться сертифицированным сварщиком, знающим марки, типы и материалы сварки, указанные в проекте платформы.
(9) Платформа для персонала должна иметь на видном месте табличку или другую постоянную маркировку, указывающую вес платформы и ее номинальную грузоподъемность.
(h) Загрузка платформы для персонала.
(1) Платформа для персонала не должна загружаться сверх ее номинальной грузоподъемности.
(2) Количество работников, занимающих персональную платформу, не должно превышать количества, необходимого для выполнения работы.
(3) Платформы для персонала должны использоваться только для сотрудников, их инструментов и материалов, необходимых для выполнения их работы, и не должны использоваться только для подъема материалов или инструментов, если не для подъема персонала.
(4) Материалы и инструменты, используемые во время подъема персонала, должны быть закреплены для предотвращения смещения.
(5) Материалы и инструменты для использования во время подъема персонала должны быть равномерно распределены в пределах платформы, когда платформа подвешена.
(i) Такелаж.
(1) Если для соединения платформы для персонала с грузовым тросом используется стропа из проволочного троса, каждая ножка стропы должна быть соединена с главным звеном или скобой таким образом, чтобы нагрузка равномерно распределялась между стропами. ноги.
(2) Крюки на ремонтных шаровых узлах, нижних грузовых блоках или других узлах крепления должны быть такого типа, чтобы их можно было закрыть и заблокировать, исключая открытие горловины крюка. В качестве альтернативы можно использовать анкерную скобу из сплава с болтом, гайкой и стопорным штифтом.
(3) Тросы, скобы, кольца, основные звенья и другое такелажное оборудование должны выдерживать без отказа по меньшей мере пятикратную максимальную предполагаемую нагрузку, приложенную или переданную этому компоненту.
Там, где используется веревка, устойчивая к вращению, стропы должны выдерживать без отказа по меньшей мере десятикратную максимальную предполагаемую нагрузку.
(4) Все проушины в канатных стропах должны быть изготовлены с коушами.
(5) Стропы и соответствующий такелаж для крепления платформы персонала к подъемному тросу должны использоваться только для платформы и необходимых сотрудников, их инструментов и материалов, необходимых для выполнения их работы, и не должны использоваться для каких-либо других целей. когда не поднимается персонал.
(j) Пробный подъем, осмотр и контрольные испытания.
(1) Пробный подъем с незанятой платформой для персонала, нагруженной по крайней мере до предполагаемой грузоподъемности, должен быть выполнен с уровня земли или любого другого места, где сотрудники будут подниматься на платформу, в каждое место, где должна быть установлена платформа для персонала. подняты и поставлены. Этот пробный подъем должен выполняться непосредственно перед размещением персонала на платформе.
Оператор должен убедиться, что все системы, органы управления и предохранительные устройства активированы и функционируют должным образом; отсутствие помех; и что все конфигурации, необходимые для достижения этих рабочих мест, позволят оператору оставаться ниже 50-процентного предела номинальной грузоподъемности подъемника. Материалы и инструменты, которые будут использоваться во время фактического подъема, могут быть загружены на платформу, как это предусмотрено в разделе 5004(h)(4) и (5) для пробного подъема. Один пробный подъем может быть выполнен одновременно для всех мест, которые должны быть достигнуты из одного исходного положения.
(2) Пробный подъем должен быть повторен до подъема работников всякий раз, когда кран или вышка перемещаются и устанавливаются в новом месте или возвращаются в ранее использовавшееся место. Кроме того, пробный подъемник должен быть заменен при изменении маршрута подъемника, за исключением случаев, когда оператор определяет, что изменение маршрута незначительно, т.
е. изменение маршрута не повлияет на безопасность подъемных работников.
(3) После пробного подъема и непосредственно перед подъемом персонала платформа должна быть поднята на несколько дюймов и проверена, чтобы убедиться, что она закреплена и должным образом сбалансирована. Работников нельзя поднимать, если не установлено, что существуют следующие условия:
(A) Подъемные канаты не должны иметь перегибов;
(B) Линии из нескольких частей не должны перекручиваться друг вокруг друга;
(C) Основное крепление должно располагаться по центру платформы; и
(D) Подъемная система должна быть проверена на предмет провисания грузового каната, чтобы убедиться, что все канаты правильно расположены на барабанах и шкивах.
(4) Визуальный осмотр крана или деррик-крана, такелажа, платформы для персонала, а также опоры или основания крана или деррик-крана должен быть проведен квалифицированным специалистом сразу после пробного подъема, чтобы определить, не выявили ли испытания каких-либо дефектов.
или оказали какое-либо неблагоприятное воздействие на какой-либо компонент или конструкцию.
(5) Любые дефекты, обнаруженные во время осмотра и создающие угрозу безопасности, должны быть устранены до подъема персонала.
(6) На каждой рабочей площадке, перед подъемом сотрудников на платформу для персонала и после любого ремонта или модификации, платформа и такелаж должны пройти контрольные испытания на 125 процентов номинальной грузоподъемности платформы, удерживая ее в подвешенном состоянии. в течение пяти минут с равномерным распределением тестовой нагрузки на помосте (можно одновременно с пробным подъемом). После контрольных испытаний квалифицированное лицо должно осмотреть платформу и такелаж. Обнаруженные недостатки должны быть исправлены, и должны быть проведены повторные контрольные испытания. Подъем персонала не должен производиться до тех пор, пока не будут выполнены требования контрольных испытаний.
(k) Методы работы.
(1) Работники должны держать все части тела внутри платформы во время подъема, опускания и позиционирования.
Это положение не распространяется на лиц, находящихся на перроне, выполняющих обязанности сигнальщика.
(2) Перед выходом или входом сотрудников на незаземленную подъемную платформу для персонала платформа должна быть прикреплена к конструкции, на которой должны выполняться работы, если только крепление к конструкции не создает небезопасной ситуации.
(3) Линии тегов должны использоваться, если только их использование не создает небезопасных условий.
(4) Оператор крана или деррик-крана должен постоянно находиться у органов управления, когда работает двигатель крана и занята платформа.
(5) Подъем работников должен быть немедленно прекращен при появлении любых опасных погодных условий или другой надвигающейся опасности.
(6) Поднимаемые работники и сигнальщики должны поддерживать непрерывную радиосвязь с оператором.
(7) За исключением воды, сотрудники, занимающие платформу для персонала, должны использовать систему поясных ремней/привязных ремней со шнуром, соответствующим образом прикрепленным к нижнему грузовому блоку или шару для ремонта, или к конструктивному элементу платформы для персонала, способному выдержать удар при падении.
для сотрудников, использующих анкерное крепление. При работах над водой применяются требования статьи 1602 Правил техники безопасности.
(8) Запрещается выполнять подъемы на другом грузовом канате крана или деррик-крана, когда персонал подвешен на платформе.
( l ) Путешествие.
(1) Подъем работников во время движения крана запрещен, за исключением портальных, башенных и кранов на фиксированных путях или железных дорогах.
(2) При любых обстоятельствах, когда кран перемещается во время подъема персонала, работодатель должен применять следующие процедуры для защиты работников: ; и
(B) Стрела должна быть параллельна направлению движения;
(C) Должен быть выполнен полный пробный запуск для проверки маршрута движения, прежде чем сотрудникам будет разрешено занять платформу. Этот пробный заезд может быть выполнен одновременно с пробным подъемником, требуемым разделом 5004(j)(1) настоящего Приказа, который проверяет маршрут подъемника.
(м) Совещание перед подъемником.
(1) Проводится совещание с участием машиниста крана или деррик-крана, сигнальщика (лиц) (если это необходимо для подъема), работника (работников), подлежащего подъему, и лица, ответственного за выполнение задачи. ознакомиться с соответствующими требованиями раздела 5004 настоящего Приказа и процедур, которым необходимо следовать.
(2) Это совещание должно проводиться перед пробным подъемом на каждом новом рабочем месте и должно повторяться для всех сотрудников, вновь назначенных на операцию.
Примечание: Цитируемый орган: Раздел 142.3 Трудового кодекса. Ссылка: статья 142.3 Трудового кодекса.
ИСТОРИЯ
1. Отзыв подан 7-27-73; вступает в силу на тридцатый день после этого (регистр 73, № 30).
2. Новый раздел подан 12-11-90; оперативный 1-10-91 (регистр. 91, № 4).
3. Редакционная исправление опечатки в заголовке раздела (регистр 91, № 31).
4.
Редакторское исправление опечаток в подразделах (d)(2) и (h)(4) (регистр 92, № 33).
5. Изменение, не имеющее регулирующей силы, вносящее поправки в подраздел (i)(3), поданное 2-16-95 в соответствии с разделом 100, раздел 1, Свода правил Калифорнии (Реестр 95, № 7).
6. Редакционная правка подпунктов (i)(1) и (j)(1) (регистр 95, № 24).
7. Редакционная правка подраздела (g)(1) (Реестр 2005 г., № 44).
8. Новый подраздел (d)(7), поданный 24 апреля 2007 г .; в рабочем состоянии от 24.05.2007 (регистр. 2007 г. № 17).
9. Изменение названия и изменение прежнего подраздела (e)(3) новым подразделом (e)(3)(A) и новым подразделом (e)(3)(B), поданным 17 июля 2008 г.; действует 16.08.2008 (регистр. 2008 г. № 29).
10. Изменение, не имеющее регулирующей силы, вносящее поправки в подраздел (d)(2), поданное 5 августа 2013 г. в соответствии с разделом 100, раздел 1, Свода правил Калифорнии (Реестр 2013 г., № 19).).
Вернуться к статье 98 Содержание
Временная аренда подвесной платформы и крана • The Crane Guys
Crane Service, Новости
Комментарии закрыты
Хотя слова временная подвесная платформа и аренда крана не всегда сочетаются друг с другом, они естественным образом сочетаются друг с другом.
Это связано с тем, что наши широко известные операции по аренде кранов часто требуют подъема персонала на специальной платформе.
Звоните: (855) 482-7263
Платформа для персонала , которую иногда называют корзиной , используется для доступа к труднодоступным местам обычными средствами. Если лестница или подмости не справляются с поставленной задачей, платформа часто заполняет счет. Верхние области вышки сотовой связи являются одной из областей, требующих подъемной силы человеческой корзины. Но имейте в виду, платформы не являются автономными. Им требуются мощные краны, чтобы поднять их на место. Для этого корзина прикрепляется к наконечнику крана и поднимается в указанное место, естественно, с дееспособным экипажем на борту.
Учитывая широту наших услуг, неудивительно, что The Crane Guys предлагает широкий выбор корзин для людей. Как и в случае с нашими услугами, для любой ситуации есть решение.
При рассмотрении вариантов первый вопрос, на который мы хотели бы ответить, — как далеко мы должны зайти? Где-то между облаками и землей находится ответ. К счастью, наши возможности досягаемости могут привести нас в любую точку этого спектра. Мы можем пройти небольшое расстояние с 30-футовыми корзинами. Или мы можем растянуть путешествие, доставив бригады на высоту до 327 футов над землей. На самом деле нет места вне нашей досягаемости.
Услуги подвесных платформ
Не менее важна пассажировместимость. Вы можете поспорить, что в корзине для мужчин, которой управляют The Crane Guys, никогда не бывает переполнено. На наших платформах легко могут разместиться 2, 4 или 6 членов экипажа, в зависимости от необходимости. И независимо от размера экипажа, все корзины доступны круглосуточно и без выходных.
Где обычно используются корзины? Одно из самых распространенных мест, где их можно найти, — это вершины вышек сотовой связи. Платформы для персонала часто задействуются при обслуживании вышек сотовой связи или удаление вышек сотовой связи требуется.
Эти антенны могут достигать 200 футов в высоту, поэтому путешествия на большие расстояния часто являются обязательными. Будь то ремонт или модернизация оборудования вышек сотовой связи, крановщики и бригады должны выполнять все операции с неизменной точностью. Корзины не просто поднимаются; они тщательно маневрируют в идеальное положение. Нет проблем для The Crane Guys. Благодаря тщательному обучению и обширному опыту они неизменно преуспевают в своей работе. Некоторые говорят, что они делают невозможное. Не совсем, но близко.
Как и во всех других наших услугах, безопасность является приоритетом номер один при развертывании корзин для людей. Одной из причин, по которой мы с уверенностью обеспечиваем безопасность операций, является обучение и квалификация нашего персонала. Любой, кто катается на корзине, будет иметь высокую квалификацию благодаря важным сертификатам, таким как обозначение OSHA.
Вполне естественно беспокоиться о безопасности корзины. В конце концов, платформы путешествуют далеко над землей.
Расстояние от пола посадочной площадки до низших частей конструкции, расположенных над полом, должно быть не менее 1800 мм.
При этом зазор между настилом площадки и нижней частью кабины (по вертикали) должен быть не менее 100 мм и не более 250 мм, между кабиной и ограждением посадочной площадки — не менее 400 мм, а со стороны входа в кабину — не менее 700 мм.
п.). В этом случае вход на кран должен предусматриваться в специально отведенном месте, через дверь в перилах моста, оборудованную электрической блокировкой. Устройство такого входа у магнитных кранов допустимо только в том случае, когда блокировка не обесточивает троллейные провода, питающие его, расположены в недоступном для соприкосновения месте крана или ограждены (ст. 233 Правил по кранам).
4. 7 и рис. 4. 13.
4. 7. Выход с площадки на подкрановый путь должен быть закрыт;
Лестницы на самом кране выполняются вертикальными или с любым требуемым углом наклона; ширина этих лестниц принимается не менее 500 мм.

