Содержание
4.3 Посадочные площадки — septilos.ru
Для каждого мостового крана и передвижного консольного, снабженных кабиной управления, должна быть устроена посадочная площадка для доступа с пола цеха в кабину. Расстояние от пола посадочной площадки до низших частей конструкции, расположенных над полом, должно быть не менее 1800 мм.
Схема первого варианта посадочной площадки изображена на рис. 4. 11. Вход в кабину с такой площадки осуществляется с продольной стороны корпуса или эстакады (со стороны колони), а настил ее располагается на одном уровне с полом кабины или тамбура, сели кабина снабжена тамбуром. Допускается устройство посадочной площадки ниже уровня поля кабины, но не Солее чем па 250 мм, в случаях,
если при расположении ее на одном уровне с полом кабины не может быть выдержан габарит (1800 мм) по высоте. Зазор между посадочной площадкой и порогом двери кабины (тамбура) должен быть в пределах от 60 до 350 мм.
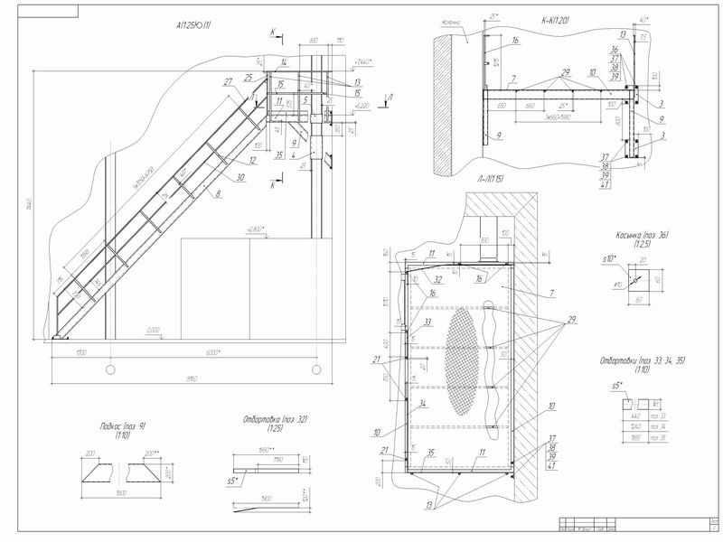
Рис. 4 11. Схема посадочной площадки (вариант 1).
Посадочные площадки по второму варианту (рис. 4. 12) устраиваются в конце подкранового пути с доступом в кабину со стороны торца здания.
Для такой площадки допускается наезд на нее кабины, по не более чем на 400 мм при полностью сжатых буферах крана. При этом зазор между настилом площадки и нижней частью кабины (по вертикали) должен быть не менее 100 мм и не более 250 мм, между кабиной и ограждением посадочной площадки — не менее 400 мм, а со стороны входа в кабину — не менее 700 мм.
У посадочных площадок, выполненных по второму варианту, приближать ограждение к кабине менее чем на 400 мм нельзя, так как это может быть причиной несчастного случая: стоящий у перил ограждения человек может быть прижат кабиной или сбит при наезде ее на площадку. Для предупреждения падения крановщика в зазор между ограждением и кабиной вход в кабину следует предусматривать со стороны, наиболее удаленной от края площадки.
Устройство посадочных площадок, предусматривающих посадку в кабину через мост (ферму крана), допускается только в обоснованных случаях, когда выполнение посадочных площадок для непосредственной посадки в кабину крана затруднено по конструктивным или производственным причинам (например, при расположении кранов в два или три яруса, креплении кабины к грузовой тележке крана и т.
п. ). В этом случае вход на кран должен предусматриваться в специально отведенном месте, через дверь в перилах моста, оборудованную электрической блокировкой. Устройство такого входа у магнитных кранов допустимо только в том случае, когда блокировка не обесточивает троллейные провода, питающие его, расположены в недоступном для соприкосновения месте крана или ограждены (ст. 233 Правил по кранам).
Для посадки в кабину через мост также должны устраиваться посадочные площадки. Допускается предусматривать такую посадку с общей проходной галереи (если она имеет ширину не менее 500 мм и со стороны подкранового пути ограждена перилами).
Рис. 4. 12. Схема посадочной площадки (вариант 2) a — кабина
В этом случае для каждого крана на галерее отводится определенное место и устраивается переходная лестница с посадочной площадкой. Примерная высота концевых балок мостовых электрических кранов общего назначения, по которой определяется высота посадочных площадок для входа в кабину через мост, может быть принята по табл.
4. 7 и рис. 4. 13.
Таблица 4. 7
Высота концевых балок
При устройстве посадочных площадок следует выполнять еще одно очень важное требование безопасности: конструкции крепления посадочной площадки, расположенные на высоте более 1 м от настила ее, должны отстоять от кабины на расстояние не менее 400 мм.
Рисунок 4.13. Схема концевой балки
Рисунок 4 14. Варианты площадки для доступа на настил моста:
1 — площадка; 2 — упор: 3 — проем в перилах моста; 4— сторона механизма передвижения крана
Специфика устройства посадочной площадки для непосредственного входа в кабину, подвешенную к грузовой тележке крана, в Правилах по кранам не отражена. В связи с этим зазоры между площадкой и кабиной при подходе последней к площадке должны быть приняты с учетом обеспечения безопасности пользования площадкой и предупреждения повреждения площадки возможным наездом на нее кабины.
Вход в кабину, подвешенную к грузовой тележке крана, можно выполнить через настил моста с соблюдением определенных требований.![]()
Рисунок 4.15. Посадочные площадки. а — вариант 1; б — вариант 2; в — вариант 3; г — вариант 4; д — вариант 5
Посадочные площадки должны быть расположены с той стороны, где не проходят главные троллейные провода. Исключение допускается в том случае, когда троллейные провода не доступны для случайного прикосновения людей, находящихся на лестницах и площадках.
Для доступа на галерею (площадку) мостовых кранов, не снабженных кабиной управления (управляемых с пола или дистанционно), должны быть устроены площадки с лестницей, установку которых можно произвести по одному из следующих вариантов:
а) площадка и лестница располагаются в плоскости строительных колонн, и вход на мост производится с торца крана через концевую балку (рис. 4. 14, а). Отметка площадки делается на высоте головки под кранового рельса плюс высота концевой балки. Устройство площадки по такому варианту должно быть увязано со строительной частью проекта корпуса.
Высоту концевых балок следует принимать по табл. 4. 7. Выход с площадки на подкрановый путь должен быть закрыт;
б) площадка устанавливается у торцовой стены здания, а выход на крап произ водится с фронта моста, для чего в перилах крановой галереи делается проем (рис. 4. 14, б). Площадка размещается па уровне головки подкранового рельса. При устройстве такой площадки в установочных чертежах крана необходимо обязательно обозначать сторону крана, где расположена площадка для механизмов крана. Вход на кран может быть устроен только с этой стороны;
в) при наличии проходной галереи вдоль подкрановых путей вход на мост крана может производиться с этой галереи через концевую балку крана.
Во всех трех вариантах дверь в перилах моста крана следует снабдить электроблокировкой.
Примерные конструкции посадочных площадок приведены на рис. 4. 15.
При разработке проекта не всегда имеются фактические размеры, определяющие положение кабины крана, поэтому на рабочих чертежах посадочных площадок следует указывать: «При монтаже посадочной площадки необходимо уточнить ее вертикальную отметку и горизонтальное положение по фактической привязке кабины устанавливаемого крана».
Ростехнадзор разъясняет: Использование кабины кранов, управляемых с пола, в качестве площадки для выхода на мост крана
Вопрос от 19.09.2019:
Необходима ли постановка на учет подъемного сооружения (кран мостового типа, г/п 10 тн) в органах Ростехнадзора, переведенный на радио управление (с пола) в 2014 году? На тот момент в Приказе №533 о демонтаже кабины управления ничего не было сказано. Сейчас на кране есть кабина, но органы управления демонтированы при переводе крана на радиоуправление. Стекла забиты фанерой, и кабина используется только для доступа на мост крана (другого пути попасть на мост крана нет).
Ответ: В соответствии с пунктом 148 Федеральных норм и правил в области промышленной безопасности «Правила безопасности опасных производственных объектов, на которых используются подъемные сооружения», утвержденных приказом Ростехнадзора от 12 ноября 2013 года №533 (далее ФНП по ПС):
«.
..148. Не подлежат учету в федеральных органах исполнительной власти в области промышленной безопасности, осуществляющих ведение реестра ОПО, следующие ПС:а) краны мостового типа и консольные краны грузоподъемностью до 10 т включительно, управляемые с пола посредством кнопочного аппарата, подвешенного на кране, или со стационарного пульта, а также управляемые дистанционно по радиоканалу или иной линии связи, за исключением кранов мостового типа, имеющих кабины управления;…».
В соответствии с пунктом 60 ФНП по ПС «…60. …При переводе кранов мостового типа и консольных кранов грузоподъемностью до 10 т включительно на дистанционное управление (радиоуправление) они подлежат снятию с учета в органах Ростехнадзора при условии демонтажа кабины управления…».
Следовательно, наличие кабины управления у мостового крана грузоподъемностью 10 т, оснащенного дистанционным управлением (радиоуправлением) является основанием для постановки на учет в органах Ростехнадзора.
Вопрос от 06.
2016:
В 2014-2015 годах на нашем предприятии часть кранов была переоборудована на радиоуправление. Краны были переведены в разряд нерегистрируемых. Возможно ли использование кабин кранов, из которых демонтированы аппараты управления и сидения крановщика, в качестве площадок для выхода на мост крана с целью его осмотра, обслуживания и ремонта? Не приведёт ли использование данных площадок к необходимости перевода кранов в разряд регистрируемых?
Ответ: Ответ на данный вопрос подготовлен специалистами Управления государственного строительного надзора Ростехнадзора.
Требования » подпункта «а» пункта 148 Федеральных норм и правил в области промышленной безопасности «Правила безопасности опасных производственных объектов, на которых используются подъёмные сооружения», утверждённых приказом Федеральной службы по экологическому, технологическому и атомному надзору от 12.11.2013 № 533 (в редакции приказа Ростехнадзора от 12.04.2016 № 146, далее – ФНП по ПС), в части одного из обязательных условий по демонтажу кабины управления мостового крана для снятия данного крана с учёта, в случае его переоборудования на управление с пола, применимо только в отношении мостовых кранов, реконструкция которых осуществлялась после вступления в силу приказа Ростехнадзора от 12.
04.2016 № 146, а именно после 05.06.2016.
Постановка на учёт в органах исполнительной власти в области промышленной безопасности ранее снятых с учёта мостовых кранов грузоподъёмностью до 10 т. включительно, переведённых до 05.06.2016 на управление с пола (управление посредством кнопочного аппарата, подвешенного на кране, или со стационарного пульта, а также управляемые дистанционно по радиоканалу или иной линии связи) без демонтажа кабины управления, не требуется.
Кабина таких мостовых кранов может быть использована в качестве площадки для выхода на мост крана для его осмотра, обслуживания и ремонта только в случаях, если при проведении реконструкции крана по переводу его на управление с пола в руководство по эксплуатации крана были внесены соответствующие изменения и дополнения.
Одновременно Управление разъясняет, что требования » ФНП по ПС обязательны для применения на всех стадиях жизненного цикла ПС и оборудования, используемого совместно с ПС, введённых в обращение до вступления в силу технического регламента Таможенного союза «О безопасности машин и оборудования» (ТР ТС 010/2011), а также на другие ПС и оборудование, используемое совместно с ПС, в части, не противоречащей требованиям законодательства о техническом регулировании (п.
6 ФНП по ПС в редакции приказа Ростехнадзора от 12.04.2016 № 146).
Портативный кран
CXT Explorer | Konecranes США
| Гибкий и экономичный мобильный полевой кран
Konecranes CXT Explorer — это переносное экономичное решение для всех видов подъема. Наш популярный электрический мостовой кран CXT с простой, но инновационной запатентованной конструкцией встроен в прочную стальную конструкцию на основе двух стандартных транспортных контейнеров ISO. В результате получился прочный фундамент под мощный, адаптируемый и мобильный кран, способный поднимать до 5 тонн как в помещении, так и на открытом воздухе.
Кран представляет собой полноценную, долговечную и эффективную мастерскую по техническому обслуживанию, готовую к работе. У вас достаточно места для работы при высоте подъема 16,4 футов (5 метров) и пролете 16,4 футов (5 метров). Благодаря простой сборке CXT Explorer готов к подъему всего за несколько часов, а когда вы закончите, он складывается еще быстрее.
Транспортные контейнеры также служат единицами хранения компонентов крана, сервисных инструментов, оборудования и запасных частей. Теперь вы действительно можете поднять где угодно.
особенности продукта
Konecranes CXT Explorer имеет множество стандартных функций и:
• Электрическая канатная таль CXT
• 2-скоростной подъем с контакторным управлением
• 1-скоростное перемещение с контакторным управлением
• Два 20-футовых (6 м) стандартных транспортных контейнера ISO
• 16,5 футов (5 метров) в высоту и 16,4 футов (5 метров) между пролетами
• Компактная и прочная стальная конструкция
• Тепловая защита и защита от атмосферных воздействий для экстремальных климатических условий и местности
• Может использовать генератор, когда электричество недоступно
Технические характеристики
ХАРАКТЕРИСТИКИ | ХАРАКТЕРИСТИКИ |
Грузоподъемность | Груз 5т
|
Высота подъема | 16,4 футов (5 м) |
Пролет | 16,4 футов (5 м) |
Взлетно-посадочная полоса | 20 футов (6 м) |
Диапазон температур | Диапазон температуры окружающей среды -20…+50°С |
Напряжение | Напряжение 400 В/ 50 Гц/ 48 В или 460 В/ 60 Гц/ 48 В (все напряжения и частоты CXT доступны по запросу)
|
Подъемник | Канатная таль CXT
|
Управление краном | Радио/кулон |
преимущества
Konecranes CXT Explorer предлагает следующие преимущества для операторов и объектов.
Быстрый, безопасный и простой подъем на заводе практически в любом месте
Основание транспортировочного контейнера обеспечивает широкую рабочую зону
Инновационная конструкция снижает усилие, необходимое для подъема тяжелых грузов
Работает даже без подключения к сети
Идеально подходит для временного подъема
Установка не требует изменения строительных конструкций
Быстрое реагирование сервисной службы и эффективная поставка запасных частей
Идеально подходит для широкого спектра промышленных применений и сфер бизнеса:
Строительство
Горнодобывающая промышленность
Техническое обслуживание автомобилей
Сельское хозяйство
Компрессорные станции природного газа
Разведка нефти, бурение на суше и в море
| CXT Explorer предназначен для использования в полевых условиях.

Konecranes CXT Explorer — это портативное, прочное и доступное решение для всех видов подъема. Его простая, но инновационная запатентованная конструкция позволяет использовать его как в помещении, так и на улице, поэтому вы можете легко взять его с собой куда угодно, чтобы поднять до 5 тонн.
| Хотите узнать больше о кране CXT Explorer?
Свяжитесь с Konecranes, чтобы узнать больше о том, как Konecranes CXT Explorer может удовлетворить ваши потребности в грузоподъемности.
Свяжитесь с нами
| Подъем в любом месте, безопасно и эффективно
CXT Explorer — это стандартный кран, легко перемещаемый в специально подобранном дорожном комплекте, поэтому он всегда может быть с вами, где бы вам ни потребовалось подъемное оборудование. Мы в Konecranes стремимся к тому, чтобы каждая единица нашего грузоподъемного оборудования повышала безопасность и производительность операций наших клиентов. Все компоненты крана разрабатываются собственными силами специально для использования на кранах, а наша программа Lifecycle Care предлагает комплексный и систематический подход к техническому обслуживанию, поддерживаемый инструментами и процессами мирового класса.
| Хотите проверить Build & Quote?
Build & Quote — это быстрый и простой инструмент, который поможет вам не только определить цену, но и спроектировать мостовой кран в соответствии с вашими потребностями.
Узнать цену
Видео
Галерея изображений
Защита от падения: передовой опыт для промышленных мостовых кранов
Промышленные мостовые краны, используемые на объектах для перевозки больших, тяжелых и громоздких грузов, обеспечивают ряд преимуществ в плане безопасности операций благодаря точному дистанционному управлению и способности оператора сохранять безопасное расстояние при управлении оборудованием. Большинство кранов используются для перемещения груза из стороны в сторону, назад и вперед из одной точки в другую, в то время как оператор остается на уровне пола. Однако при осмотре или обслуживании кранов эти действия требуют, чтобы персонал работал на высоте.
Несмотря на то, что мобильный ножничный подъемник, подъемная платформа или мостик крана могут обеспечить доступ к компонентам крана, при работе на высоте необходимо всегда использовать средства защиты от падения.
В некоторых ситуациях — например, при производстве и сборке очень большого или высокого оборудования или при необходимости проведения технического обслуживания крупного оборудования — для доступа к оборудованию может использоваться физическая платформа. В этих случаях для обеспечения безопасного выполнения такого рода работ необходимо установить систему защиты от падения.
Наиболее часто используемая система защиты от падения для обеспечения безопасности оператора при работе в кранах и вокруг них на высоте известна как система защиты от падения. Эти устройства включают в себя привязь, которую надевает оператор, пристегнутую к самоутягивающемуся стропу, соединенному с верхней точкой крепления. Если оператор теряет равновесие и падает, система немедленно реагирует, обеспечивая его остановку и зависание в воздухе.
При использовании в тех же местах, где расположены мостовые краны, необходимо принять решение о том, где разместить точку крепления или несколько точек крепления.
В зависимости от операции, типа используемого мостового крана и работы, которую необходимо выполнить, могут быть использованы различные решения.
Стандарт OSHA для критериев и практики систем защиты от падения гласит:
1926.502(d)(15) Крепления, используемые для крепления средств индивидуальной защиты от падения, не должны зависеть от каких-либо креплений, используемых для поддержки или подвешивания платформ, и способны поддерживать не менее 5000 фунтов (22,2 кН) на каждого присоединенного работника или должны быть спроектированы, установлены и использованы следующим образом:
1926.502(d)(15)(i) как часть полной индивидуальной защиты от падения система, сохраняющая коэффициент запаса не менее двух; и
1926.502(d)(15)(ii) под наблюдением квалифицированного специалиста.
В некоторых системах используется фиксированная точка крепления на кране, способная выдерживать требуемые OSHA 5000 фунтов; другие используют вторую систему защиты от падения, добавленную вдоль взлетно-посадочных полос или моста в качестве отдельной точки крепления, позволяющую сотруднику свободно передвигаться.
В этих ситуациях кран должен быть заблокирован/обозначен биркой, чтобы предотвратить его движение, пока сотрудник работает на кране. Кроме того, другие системы безопасности могут складываться и убираться из рабочей зоны крана по мере необходимости, когда кран обездвижен и заблокирован.
В тех случаях, когда и оператор, и кран должны иметь возможность двигаться, над мостом и балками крана можно установить дополнительную систему поддержки для точек соединения стропов. В этом случае должны быть установлены системы, предотвращающие столкновение крана с системой защиты от падения, они могут включать ограничения зоны или физические остановки крана.
Передовые методы защиты сотрудников от падений при работе на высоте включают:
- Всегда используйте систему защиты от падения.
- Назначьте второго сотрудника на земле для наблюдения за территорией в дополнение к рабочему на высоте. Этот человек наблюдает за помехами, в то время как накладные расходы оператора сосредотачиваются на текущей задаче.
Работник, работающий на этаже, также предупреждает других, приближающихся к месту выполнения работ над головой. В случае задействования системы безопасности они также могут оказать немедленную помощь рабочему на высоте, поскольку подвешивание на привязи в течение длительного времени может привести к травме. - Ограждение всей рабочей зоны на уровне пола для защиты пешеходов от возможных падающих инструментов, деталей или других предметов, которые не могут быть закреплены над головой.
- Перед выполнением работ по техническому обслуживанию заблокируйте/пометьте мостовой кран в соответствии с инструкциями OSHA.
Ищете дополнительную информацию о мостовых кранах и системах защиты от падения? Члены Американской ассоциации производителей кранов (CMAA) представляют ведущих в отрасли поставщиков систем мостовых кранов и готовы ответить на любые вопросы. Кроме того, группа предлагает различные ресурсы, в том числе руководства для покупателей, технические спецификации, советы по безопасности и информационные бюллетени OSHA Alliance, контрольные списки проверок и технического обслуживания, семинары по безопасности и многое другое — на своем веб-сайте по адресу www.
Работник, работающий на этаже, также предупреждает других, приближающихся к месту выполнения работ над головой. В случае задействования системы безопасности они также могут оказать немедленную помощь рабочему на высоте, поскольку подвешивание на привязи в течение длительного времени может привести к травме.