Содержание
Грузовой лифт: размеры, грузоподъемность, устройство грузового лифта
Компания «Лифт Пласт» предлагает купить запчасти для грузовых лифтов, установленных в жилых домах или на промышленных предприятиях. В ассортименте представлены все необходимые комплектующие для своевременного ремонта и сервисного обслуживания подъемников известных марок. Также мы изготавливаем уникальные детали для усовершенствования промышленных грузовых лифтов устаревших модификаций.
Актуальность применения грузовых лифтов
Согласно ГОСТу 53771 грузовой лифт — подъемное устройство, предназначенное для транспортировки какого-либо груза на верхние этажи жилого здания или промышленного предприятия. Оборудование этой категории классифицируется по грузоподъемности, скорости подъема и габаритам в соответствии с таблицами, имеющимися в указанном ГОСТе.
Грузоподъемность грузового лифта
Производители обеспечивают грузоподъемность грузового лифта определенной модели, исходя из приведенного в ГОСТе 8032 ряда значений.
При этом они руководствуются определением, где номинальная грузоподъемность — это максимальная масса всех грузов с учетом упаковочной тары и сопровождающего персонала, для транспортировки которой рассчитано оборудование.
На практике в жилых домах чаще всего встречаются малые грузовые лифты, способные перевозить грузы массой от 400 до 2500 кг. В больших зданиях и на промышленных предприятиях устанавливаются подъемники, рассчитанные на транспортировку грузов массой 6300 кг и более.
Размер грузового лифта в жилом доме
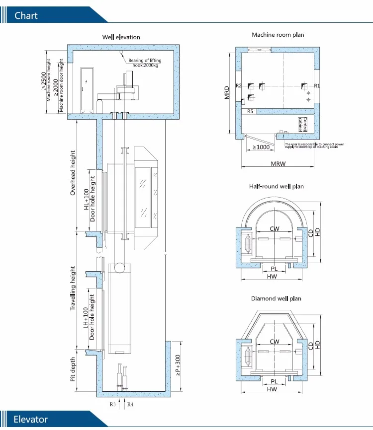
Согласно ГОСТ габариты грузового лифта определяются следующими параметрами:
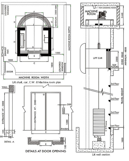
- Ширина кабины — расстояние между боковыми внутренними стенками кабины лифта без учета декоративных накладок, поручней (если они есть) и защитных панелей. Для жилых домов стандартная ширина грузового лифта составляет от 1580 мм.
- Глубина кабины — один из важнейших параметров для жителей дома, так как влияет на возможность перевозить негабаритные и длинномерные грузы — строительные материалы, бытовую технику и прочее.
Определяется расстоянием между передней и задней стекой кабины лифта без учета поручней, защитных панелей и декоративных накладок. Обычно размер грузового лифта в жилом доме составляет от 1580 до 2580 мм. - Высота кабины — обычно составляет 2000 мм. Высота грузового лифта измеряется между полом и потолком кабины без учета отделки и осветительной техники.
- Габариты двери — также являются важными для пользователей показателем, так как именно из-за недостаточной ширины двери грузового лифта отпадает возможность доставить наверх длинномерные стройматериалы или мебель. Стандартно для жилого дома ширина двери грузового лифта составляет 1100 мм. Высота дверного проема обычно соответствует высоте кабины лифта, что для жилого дома обычно составляет 2000 мм. Оба этих параметра измеряются при полностью распахнутых дверях шахты и самой кабины.
Причины неисправностей грузовых лифтов и их диагностика
Главной причиной нарушения нормальной функциональности грузового подъемного оборудования, к сожалению, является несвоевременное техническое обслуживания.
Реже неисправности возникают в результате нарушения правил эксплуатации, перегруза и по другим причинам.
Основные признаки нарушения работоспособности грузового лифта следующие:
- лифт перемещается с явным перекосом кабины;
- при транспортировке грузов в кабине ощущается вибрация;
- наблюдаются посторонние шумы, например, звук металлического трения;
- неточная остановка лифта напротив порталов.
При этих и других неполадках требуется обязательный ремонт, так как дальнейшая эксплуатация может привести к более серьезным убыткам. Также рекомендуется регулярно проводить осмотр и профилактику грузовых лифтов на предмет износа деталей и правильности работы электроники.
Как заказать запчасти для грузовых лифтов
Чтобы купить запчасти для грузового лифта, позвоните нам по указанному номеру телефона или свяжитесь с нами другим удобным для вас способом. Наш менеджер предложит комплектующие из имеющегося ассортимента или примет заказ на изготовление уникальных или отсутствующих в номенклатуре деталей.
Лифты пассажирские, грузовые, грузопассажирские, больничные
Лифты
Лифт — грузоподъемная машина, которая предназначена для вертикального, горизонтального или наклонного перемещения различных грузов, находящихся на специальных платформах.
Само слово «лифт» пришло из Великобритании, и практически в точности повторяет английский глагол «поднимать».
Впервые о лифтах услышали в 236 году до нашей эры, когда римский архитектор Витрувий стал использовать в своих проектах уникальные подъемные механизмы, созданные Архимедом.
После этого подобные подъемные механизмы стали использовать с VI по XVIII век в разных странах мира. Самые известные лифты были установлены в Египте в Монастыре Святой Екатерины, а так же в Англии, после чего за подъемными механизмами и закрепилось название «лифт».
В XVIII веке лифты стали устанавливать и в Российской империи. В 1816 году Кулибин усовершенствовал устройство и лифты появились в нескольких дворцах и главных усадьбах.
С каждым годом производители лифтов совершенствуют свою продукцию. В начале XX века лифты стали электрическими, позднее – безредукторными, а в 2000-ых годах начали производить лифты без машинного помещения, стали использовать ремни и кабины разных размеров.
Изначально конструкции подъемных механизмов были очень громоздкими и дорогостоящими, сегодня лифты устанавливают практически в каждом высотном доме и приобрести, и смонтировать лифт могут позволить себе многие компании.
Благодаря лифтам у людей появилась возможность строительства высотных зданий и небоскребов. Если бы не изобрели лифты, то использование высотных зданий было бы нецелесообразным.
Лифт сегодня — качественная и внешне привлекательная конструкция, которая является самым безопасным видом транспорта. Благодаря современным технологиям, четкому контролю производителей и специальных комиссий, а так же безотказной системе безопасности, лифты последнего поколения просто исключают возможность несчастного случая.
Современные лифты имеют срок службы в 25 лет, ежегодно проходят полное освидетельствование, могут перемещать до 30 человек одновременно, в зависимости от размера кабины, обладают скоростями от 0,5 до 18 метров в секунду, и выдерживают вес до 10 тонн.
Эскалаторы, траволаторы и автоматизированные парковочные системы тоже перемещают грузы в разном направлении, и являются подъемными механизмами, поэтому их можно отнести к лифтам.
На сегодняшний день создано огромное количество разнообразных моделей лифтов различного назначения. Классифицировать их можно по применению, по конструкции самого лифта, и по конструкции его привода.
По применению лифты разнятся в основном в зависимости от своих кабин, так они подразделяются на:
— пассажирские лифты, предназначенные для перевозки людей и небольших грузов. Такие лифты можно встретить практически в любом здании, в каждом высотном доме или бизнес-центре.
Обычно они вмещают от 4 до 8 человек, и обладают грузоподъемностью около 320 кг. При этом материал изготовления и дизайн лифта может быть самым разнообразным.
— грузовые лифты, в свою очередь подразделяются на те, что разрешают перевозку сопровождающих грузы людей, и тех, где перевозка людей строго воспрещается, там перевозятся исключительно грузы. Грузовые лифты встречаются очень часто, применяются в жилых домах, бизнес-центрах, различных предприятиях, в том числе на заводах и комбинатах. Они обладают повышенной грузоподъемностью, могут перемещать грузы весом до 10 тонн.
— больничные лифты, предназначены специально для медицинских учреждений. Они отличаются плавным ходом, точной остановкой, широким входом, и длинной кабины, так как изготавливаются намеренно для перевозки больных, раненых и инвалидов в инвалидных креслах и на медицинских каталках, с обязательным сопровождением.
— грузопассажирские, являются гибридом пассажирских и грузовых лифтов. Отличаются широким входом и повышенной грузоподъемностью, чаще всего применяются в высоких зданиях.
— грузовые платформы, используются для транспортировки собственно грузов, материалов и различного оборудования. Отличаются от лифтов, которые мы привыкли видеть отсутствием кабины, как таковой. Грузовые платформы подразделяются на используемые с проводником, то есть с сопровождающим груза, без проводника, малые грузовые платформы и промышленные. Малые грузовые платформы или лифты часто применяются в крупных ресторанах, прачечных или отелях, используются для быстрой доставки продуктов питания или необходимых предметов. Их грузоподъемность, как правило, от 5 до 300 килограмм, такие платформы очень часто демонстрируются в киноиндустрии, как крайне полезные устройства.
Промышленные платформы не менее полезны, особенно для здоровья и безопасности людей, их используют в местах и зданиях, где содержатся или могут содержаться опасные газы, взрывоопасные и пожароопасные вещества.
По своей конструкции лифты делятся на:
— выжимные, в которых натяжные канаты крепятся и обхватывают кабину снизу.
— тротуарные, где кабина лифта выезжает из пола. Кстати, тротуарные лифты могут быть одновременно и выжимными.
— с монорельсом, встроенным в кабину, что чаще всего используется в грузовых лифтах.
— малые грузовые лифты, часто используемые в магазинах.
— лифты, специально созданные для инвалидов, с возможностью удобного заезда инвалидных колясок, наличием специальных поручней и низкого расположения кнопок.
— пневмолифты, где движения происходят за счет высокого давления воздуха, который накапливается в цилиндре, расположенном ниже чем кабина. Такие лифты часто используют в банках и компаниях с крупным документооборотом, который необходимо постоянно перемещать.
— коттеджные, которые являются разновидностью обычного пассажирского лифта, выделяются малым весом, размером и низким энергопотреблением. Иногда обладают возможностью автономной работы, при проблемах с электричеством.
— специальные строительные подъемники, созданные для поднятия различных необходимых материалов на крышу, или в определенные проемы, вроде тех, которыми пользуются установщики окон в небоскребах.
— ножницевидные подъемники, используются в узкоспециализированных производствах, где существует постоянная необходимость перемещения чего-либо с одного уровня на другой.
— специальные системы парковки автомобилей, которые в нашей стране только набирают популярность. Используются для парковки автомобилей в места, куда самостоятельно автомобиль не смог бы заехать, для экономии места.
— панорамные, отличаются от обычных пассажирских отсутствием шахты.
Применяются для обзорных экскурсий в зданиях и на открытом воздухе, а так же для отсутствия эффекта клаустрофобии. Сегодня часто встречаются в крупных торговых центрах.
— домашние лифты, в принципе являются обычными пассажирскими, но все же выделены в отдельных класс, так как обладают отличительными особенностями – минимальной требуемой мощностью от 700 Вт, в результате чего экономится электричество, питанием от сети 220В, и очень малым весом самой кабины.
По конструкции привода лифты подразделяются на:
— лифты с электрическим приводом;
— лифты с гидравлическим приводом;
— лифты с пневматическим приводом.
Пневматический привод подразумевает давление воздуха, которое скапливается ниже кабины лифта, что и толкает ее. Они, как правило, очень просты в конструкции и компактны. Используются для перемещения небольших предметов.
Лифты с электрическим приводом содержат в устройстве средства подвески кабины и ее противовеса. Как правило, чаще всего используются стальные проволочные канаты, на которых и держится сама кабина, они наиболее прочные и долговечные. Но, в последнее время стали использоваться и плоские канаты из других материалов, которые уменьшают шум. Канатов всегда несколько, они связывают между собой кабину, лебедку и противовес, а иногда еще и саму шахту лифта. Лебедка является силовой установкой, двигающей кабину. Лебедки различаются на редукторные и безредукторные.
Кабина такого лифта предназначена для перевозки людей или каких-либо грузов, снаружи у нее находятся направляющие «башмаки», которые скользят по направляющим шахты и удерживают кабину в вертикальном положении. К кабине крепятся канаты подвески, чаще всего сверху, исключение составляют выжимные лифты, где они крепятся снизу.
Противовес уравновешивает вес кабины, иногда вместе с грузом, он связан с ней и лебедкой едиными канатами.
Шахта лифта является огороженным местом от пола нижнего помещения до потолка верхнего помещения. Это как раз то место, где движется кабина и противовес, если он используется. Шахта обладает своими, дополнительными дверями, расположенными на каждом этаже.
В каждой шахте располагаются специальные ловители, для аварийной остановки лифта, а так же этажные переключатели, которые срабатывают во время подъезда к нужному этажу. На дне шахты устанавливаются буфера, для плавной остановки лифта, они могут быть из полиуретана, пружин или масляного типа.
Так же каждая лифтовая система оборудована электрическими устройствами безопасности и освещением, имеет станцию управления лифтом, откуда его можно остановить или же запустить, в случае аварийной остановки.
Лифты с гидравлическим приводом сегодня уже практически не используются, так как практически не изменились с конца XIX века и имеют множество недостатков по сравнению с электрическими.
Такими лифтами оснащались только малоэтажные здания, так как на большое количество этажей они не рассчитаны. Для их работы необходимо большое количество масла, около 200 литров, которое легковоспламенимо и неэкологично. Им так же требуется резервуар для этого масла, а значит и машинное отделение значительного размера и шумный насос, который тратит большое количество энергии.
Система гидравлического лифта действует таким образом: насос подает масло в высокий вертикальны цилиндр, давление этого масла заставляет двигаться поршень, расположенный в цилиндре, поршень же в свою очередь через систему блоков и тросов заставляет двигаться кабину. Единственным достоинством лифта такого типа можно назвать только то, что вниз кабина идет своим ходом, за счет собственного веса, в этот момент все механизмы практически не работают и не тратят энергию.
На сегодняшний день в нашей стране существует множество компаний, занимающихся производством лифтов разного вида, назначения, применения и устройства, в том числе производители эскалаторов, траволаторов и парковочных систем, а так же компании, занимающиеся производством только комплектующих к лифтам: двери, механизмы и системы освещения.
Вы можете выбрать производителя, ознакомившись с его методами производства и ценовой категорией:
BLT
BUCHER Hydraulic
DALDOS
DOPPLER
FERMATOR
FUJITEC
Hidral
HIRO LIFT
Hitachi Elevator
Hyundai Elevator
IGV
KLEEMANN
KONE
KOYO
LiftingItalia
LM-Liftmaterial (SEMATIC)
Metron
MITSUBISHI
MONITOR
Nippon Elevator
ORONA
Otis Elevator
Schindler Elevator
SEC
SELCOM doors (WITTUR)
SEMATIC lift doors
SIGMA / LG
Standard-Lift
ThyssenKrupp
Toshiba Elevator Corp.
Wellmaks
XIZI OTIS
Карачаровский механический завод
Латрэс
Могилёвлифтмаш
МЭЛ
НМЗ-НГО
Сибирский лифт (СИБЛИФТ)
СТИЛКОН
Универсалмаш
Щербинский лифтостроительный завод
Центральная мастерская
СитиЛифт
HongBo
OMER
АРК-Паркинг
Космос Лифт
TECHNOS
ТЕЛЬФЕРЛИФТ
Gidrolast
Покупка коммерческого лифта: Руководство по продаже коммерческих лифтов
Руководство по покупке коммерческого лифта: Как приобрести и установить коммерческий лифт
Ваше коммерческое помещение многоэтажное? Если это так, по закону вы обязаны сделать все помещения доступными для людей с любыми способностями, и кухонный лифт не справится с этой задачей.
К счастью, специалисты Nationwide Lifts помогут вам поддерживать вашу собственность в соответствии с нормами и сделать ее доступной для всех с помощью коммерческого лифта. Nationwide Lifts стала надежным поставщиком коммерческих подъемников и лифтов, предлагая компаниям только лучшие продукты, независимо от того, покупают ли они онлайн или делают покупки в нашем бесплатном каталоге.
Мы знаем, что у вас, вероятно, есть много вопросов о покупке коммерческого лифта: Сколько стоит коммерческий лифт? Сколько места вам нужно для установки? Какой тип коммерческого лифта лучше? Вот почему наша опытная команда составила это руководство, чтобы помочь вам принять взвешенное решение. Конечно, вы также можете позвонить нам, чтобы узнать стоимость установки коммерческого лифта или узнать больше о доступных лифтах. Владельцам коммерческого бизнеса не нужно беспокоиться о соблюдении законов о доступности при покупке нашей продукции: компания Nationwide Lifts удовлетворит ваши потребности по доступной цене на коммерческий лифт.
Изучение возможностей вашего коммерческого лифта
Независимо от того, управляете ли вы многоуровневым торговым центром или офисным зданием, вам не обойтись без коммерческого подъемника для инвалидных колясок или лифта. Коммерческие предприятия всех видов обратились к Nationwide Lifts за широким выбором продукции, от пассажирских лифтов до подъемников для инвалидных колясок, грузовых лифтов и кухонных лифтов. Коммерческие лифты и подъемники, которые мы продаем, представляют собой надежные конструкции, которые гарантированно работают в соответствии со своими спецификациями, а среди коммерческих лифтов, которые продаются в Nationwide Lifts, у нас есть много разных размеров, стилей и конструкций, подходящих для различных целей.
Например, наши пассажирские лифты идеально подходят практически для любого применения, позволяя перевозить людей и громоздкие предметы с одного этажа на другой. А наши лифты LULA (ограниченного использования/ограниченного применения) идеально подходят для повышения доступности церквей, небольших офисов или других помещений высотой до трех этажей.
Эти лифты немного меньше обычных пассажирских лифтов, поэтому их легко установить практически в любом здании. Но какой тип коммерческого лифта подходит именно вам? Ответ будет зависеть от таких факторов, как количество людей или грузов, которые вам нужно поднять, и количество места, которое у вас есть.
Типы коммерческих лифтов
Пассажирские
Пассажирские лифты используются для перевозки людей в деловых и жилых помещениях. Они могут включать в себя такие функции, как реклама, музыка или телевидение. В зданиях с мансардным вестибюлем может быть скоростной лифт, который перемещается из вестибюля на первый этаж без остановок между ними.
LULA
«LULA» означает «ограниченное использование/ограниченное применение». Эти лифты ограничены по весу, который они могут нести, занимаемой площади и расстоянию до них. LULA обычно используются, чтобы сделать здания доступными для инвалидов. Они выглядят и управляются так же, как обычный пассажирский лифт.
Подъемники для инвалидных колясок
Подъемники для инвалидных колясок — это платформы под открытым небом, которые поднимают человека в инвалидной коляске с одного уровня на другой.
Некоторые модели путешествуют по дорожке, проложенной рядом с лестницей. Подъемники для инвалидных колясок имеют очень ограниченное расстояние движения. Подъемник для инвалидных колясок можно использовать во многих типах зданий, от торговых центров до офисных комплексов. Коммерческий лифт может быть установлен для небольших лестниц, но большой пассажирский лифт может быть лучше для более высоких зданий или зданий, в которых может потребоваться размещение нескольких пользователей в инвалидных креслах.
Грузовые лифты
Эти лифты предназначены для перевозки грузов, а не людей. Они имеют прочную внутреннюю часть, чтобы выдерживать процессы погрузки и разгрузки и могут выдерживать большой вес.
Кухонный официант
Кухонный официант можно представить как миниатюрную версию грузового лифта. Они также предназначены для перевозки грузов, но в гораздо меньших масштабах. Кухонные тележки часто встречаются на кухнях ресторанов, используются для перевозки блюд, и в библиотеках, для перевозки книг.
Гидравлический
Гидравлические лифты приводятся в действие поршнем, который движется внутри цилиндра. Они чаще всего используются в зданиях с пятью или шестью этажами, но не могут использоваться в зданиях, превышающих восемь этажей.
Тяговый
Тяговый подъемник движется с помощью плоских стальных ремней и шкива с желобками. Это один из первых коммерческих лифтов. Когда он был создан в 1900 году, вместо стальных ремней, используемых сегодня, использовались канаты.
Кабельный барабан
В этих лифтах используется компактная система привода, мощная и надежная. Эти лифты бесшумны, плавно едут и могут подниматься до шести этажей.
Винтовой привод
В лифтах с винтовым приводом для перемещения платформы лифта используется винтовой вал и приводная гайка. Это одни из самых медленно движущихся лифтовых механизмов. Их предпочитают для жилых лифтов, потому что они не требуют машинного помещения.
Стекло
Стеклянные панели могут использоваться в нескольких моделях лифтов.
Эти красивые лифты обычно выбирают из эстетических соображений.
MRL
«MRL» означает «без машинного помещения». MRL представляют собой либо тяговые, либо гидравлические лифты, и их предпочитают люди, которым нужно сэкономить место.
Наружный
Эти лифты часто изготавливаются из алюминия для обеспечения долговечности. Наружные лифты обычно перемещаются на короткие расстояния и часто используются для перевозки инвалидных колясок.
Как это работает? / Обучающие видео
Безотверстная гидравлика — как это работает?
Винтовой привод – как это работает?
Цепная гидравлика – как она работает?
Спецификации/BIM/Чертежи
Размеры коммерческого лифта
Коммерческие лифты можно использовать для подъема объектов и групп любых размеров в коммерческих условиях. Размер коммерческого лифта может варьироваться от кухонного лифта до грузового лифта. Предприятия, которым необходимо перевозить небольшие предметы с этажа на этаж, такие как книги и посуда, могут эффективно использовать кухонный лифт.
Другим предприятиям потребуется перемещать большие и тяжелые грузы, доставленные с помощью вилочного погрузчика или другой тяжелой техники, и грузовой лифт рассчитан на такое использование.
Тип установленного лифта зависит от вашего бюджета, требований и места, поэтому компания Nationwide Lifts предлагает широкий выбор коммерческих лифтов для удовлетворения любых потребностей. При изучении доступных лифтов одной из первых деталей, которую следует учитывать, являются типичные размеры лифтовой шахты. Наши представители могут помочь клиентам определить размеры коммерческого лифта, которые лучше всего подходят для их бизнеса.
Компания Nationwide Lifts предлагает множество коммерческих лифтов с различными характеристиками для удовлетворения различных потребностей и областей применения.
Тип лифта | Технические характеристики |
Навеса на землю | Установка подъездного подъема Требуется линейка PVC между грунтом и COLIND. |
Стандартный лифт | Шахта должна иметь приямок глубиной не менее 4 футов и высотой потолка не менее 150 дюймов. Эти лифты могут перевозить от 2100 до 5000 фунтов. Внутренние размеры составляют от 5 футов 8 дюймов на 4 фута 3 дюйма до 5 футов 8 дюймов на 7 футов 11 дюймов. |
Лифт без отверстий | Этот тип подъемника имеет такую же грузоподъемность и размеры, что и стандартный лифт, и, как и для подземного лифта, для него требуется яма глубиной не менее 4 футов. Они ограничены приложениями с двумя-четырьмя остановками. |
Насколько велика шахта лифта? Размеры шахты лифта и рекомендации
- Требования к размерам коммерческих лифтов: На верхней площадке высота потолка составляет 106 дюймов для реконструкции и 134 дюйма для новой конструкции.
Эти лифты могут обеспечить доступ к трем различным уровням и могут подниматься на высоту до 25 футов. Размеры лифта в футах варьируются от 4 на 4,5 (48 дюймов на 54 дюйма) до 3,5 на 5 (42 дюйма на 60 дюймов). - Требования к размеру коммерческих подъемников для инвалидных колясок: Для перемещения инвалидных колясок с одного уровня на другой в коммерческих условиях можно использовать ряд подъемников, и они различаются по размеру. Несколько различных вертикальных подъемников для инвалидных колясок имеют стандартный размер кабины 36 на 54 дюйма. Настраиваемые размеры также доступны до 18 квадратных футов. Наклонный подъемник для инвалидных колясок обеспечивает доступность по лестнице с помощью платформы, которая перемещается вверх и вниз по ступеням. Размеры платформы 30 дюймов на 49.дюймов, а также доступна настройка для больших размеров.
Вопросы доступности
Коммерческие лифты не только удобны для пользователей, но и обеспечивают доступность для клиентов, что крайне важно для предприятий.
Наши лифты соответствуют стандартам ADA, что позволяет людям с любым уровнем подготовки пользоваться лифтом и получать доступ ко всем частям вашего здания. «ADA» означает «Закон об американцах с ограниченными возможностями», который определяет принципы обеспечения доступности зданий и лифтов для людей с ограниченными возможностями. Доступные лифты важны для вашего бизнеса, потому что они создают инклюзивную культуру и гарантируют, что ни один посетитель не будет отвергнут из-за ограниченного доступа. Они также могут помочь вам избежать штрафов за несоблюдение стандартов ADA.
Модернизация коммерческого лифта
Если вы хотите отремонтировать или модернизировать свой существующий лифт или лифт, мы также можем помочь с этим, предоставив услуги по ремонту, техническому обслуживанию и модернизации лифтов.
Модернизация лифта заключается в модификации старого лифта, чтобы убедиться, что он соответствует нормам. Модернизация лифта помогает сделать ваш лифт максимально безопасным.
По мере старения лифтов и разработки новых мер безопасности ваш лифт может начать портиться или устареть. Модернизация может состоять из обновления тормозной системы, обновлений аварийной поддержки и других модификаций, которые либо улучшат безопасность, либо функциональность. Лифт должен соответствовать строительным нормам для безопасности пассажиров и для того, чтобы его можно было использовать на законных основаниях. Такие аспекты, как размер лифта и размеры шахты лифта, должны соответствовать стандартам безопасности.
Еще одна часть модификации лифта, которую следует учитывать, — это обновления для соответствия стандартам соответствия ADA. Если у вас есть коммерческий лифт, размеры лифта должны соответствовать стандартам ADA. Обычно это легкодоступное размещение рабочих механизмов и достаточные размеры автомобиля для размещения пассажира в инвалидной коляске. Другие характеристики включают маркировку Брайля, нескользящее напольное покрытие и звуковые сигналы. Наша служба модернизации лифтов может определить, соответствует ли ваш лифт стандартам ADA, и помочь вам внести необходимые изменения.
Часто задаваемые вопросы о коммерческих лифтах
Что такое коммерческий лифт?
Лифты для коммерческих зданий могут иметь различные формы, включая пассажирские лифты, предназначенные для того, чтобы сливаться с окружающей средой и перевозить людей с одного этажа на другой, грузовые лифты, предназначенные для перевозки грузов и тяжелых грузов, и служебные лифты, которые могут перевозить как пассажиров, так и груз в зависимости от потребности.
Что такое пассажирский лифт?
Пассажирский лифт полностью соответствует своему названию: он предназначен для перевозки людей с одного этажа на другой.
Нужен ли двухэтажному зданию лифт?
Как правило, если в вашем здании менее трех этажей, вам не нужно устанавливать лифт, но есть исключения, поэтому вам следует проверить стандарты ADA. Кроме того, учтите, что хотя лифт может и не требоваться по закону, все же может быть важно разрешить людям перемещаться между этажами.
Каков стандартный размер подъемника в футах?
Типичные размеры лифта в футах варьируются от 5 футов 8 дюймов на 4 фута 3 дюйма до 5 футов 8 дюймов на 7 футов 11 дюймов.
Размеры лифта могут быть настроены в зависимости от ваших потребностей.
Насколько большим должен быть коммерческий лифт?
Для коммерческого лифта минимальные размеры лифта, соответствующие спецификациям ADA, зависят от расположения двери. Если дверь расположена по центру, кабина лифта должна быть 51 дюйм в глубину и 80 дюймов в ширину; для лифтов с дверью, расположенной сбоку, минимальная ширина составляет 68 дюймов.
Сколько места нужно для лифта?
Для кабины стандартного лифта потребуется от 5 до 7 футов пространства в длину и ширину, а для шахты потребуется яма глубиной не менее 4 футов.
Что такое шахта лифта?
Шахта — проход, через который проходит лифт. Это пространство, к которому у пассажира нет доступа в обычных обстоятельствах.
Каков размер шахты лифта?
Это полностью зависит от размеров рассматриваемого лифта. В большинстве случаев шахта лифта должна иметь как минимум 4 фута приямка внизу, но длина и ширина обычно немного больше, чем размер кабины лифта.
Сколько человек может поместиться в лифте?
Количество людей, которые могут поместиться в лифте, зависит от конфигурации и размеров лифта, но хорошим показателем является указание на указанную вместимость. В большинстве случаев лифт может выдержать больший вес, чем количество людей, которое физически может поместиться в лифте, поэтому должно быть легко поддерживать надлежащую грузоподъемность.
Насколько широка типичная дверь лифта?
Рекомендации ADA, которые определяют стандартные размеры лифта для обеспечения доступности для людей с ограниченными возможностями, требуют, чтобы размеры дверей лифта были не менее 36 дюймов в ширину, чтобы инвалидные коляски могли свободно проходить.
Какова высота стандартного лифта и двери лифта?
Стандартная дверь лифта имеет высоту от 6 до 8 футов, при этом общая высота лифта находится где-то в этом диапазоне.
Как рассчитать грузоподъемность?
Размер вашего лифта будет зависеть от рекомендаций ADA, от того, сколько у вас места и сколько людей вам нужно разместить.
Имейте в виду, что кабины коммерческих лифтов, как правило, должны быть шире, чем жилые лифты, чтобы у групп людей было достаточно места для безопасного входа и выхода из кабины. Кроме того, обязательно соблюдайте местные законы: в каждом штате действуют свои уникальные кодексы и правила для лифтов, которые необходимо соблюдать, которые могут включать требуемый стандартный размер лифта.
Сколько стоит поставить лифт в двухэтажном коммерческом здании?
Средняя стоимость коммерческого лифта начинается примерно с 55 000 долларов США, но зависит от размера и грузоподъемности лифта.
Сколько стоит подъемник для четырех человек?
Стоимость установки коммерческого помещения, вмещающего четырех человек, частично зависит от того, сколько этажей необходимо преодолеть промышленному лифту. Свяжитесь с нами для бесплатной оценки стоимости для вашей уникальной ситуации.
Сколько стоит обслуживание лифта?
В среднем расходы на проверку лифта профессиональным персоналом по обслуживанию лифтов составляют около 300 долларов в год; к этому добавится стоимость необходимого ремонта.
Имейте в виду, что регулярное техническое обслуживание может помочь вам избежать больших счетов за ремонт в будущем, а также проблем с безопасностью.
Что такое грузовые лифты?
Грузовой лифт предназначен для перевозки грузов, а не людей. Эти подъемники обычно могут выдерживать более тяжелые нагрузки.
Каков размер грузового лифта?
Размеры и грузоподъемность грузового лифта зависят от ваших потребностей. Самые маленькие грузовые лифты имеют размеры менее 6 на 8 футов внутри и могут вместить 4000 фунтов; самый большой из них имеет размеры 12 футов и около 17,5 футов внутри и может поднимать до 15 000 фунтов.
Какой вес может выдержать грузовой лифт?
Грузовой лифт может вместить от 4000 до 15000 фунтов.
Сколько стоит грузовой лифт?
Грузовые лифты обычно стоят от 65 000 до 75 000 долларов в зависимости от грузоподъемности и размера лифта, а также от того, сколько этажей лифт должен преодолеть.
Что такое служебный лифт?
Служебный лифт аналогичен грузовому лифту.
Размеры служебного лифта достаточно велики, чтобы перевозить товары и людей с одного этажа на другой. Служебный лифт обычно используется персоналом и ограничен доступом только для сотрудников. Вы часто увидите служебный лифт в больнице, чтобы персонал мог быстро перемещать тележки и предметы снабжения с этажа на этаж.
Хотите узнать больше? Запросите бесплатный каталог или коммерческое предложение
Если вы все еще не уверены, какой коммерческий лифт подходит для ваших нужд, мы будем рады выслать вам бесплатный полноцветный каталог: Он включает в себя размеры коммерческого лифта для каждой модели, а также а также его емкость, требования к установке и многое другое. Мы также будем рады предоставить бесплатное ценовое предложение. Просто сообщите нам несколько деталей о том, что вы ищете, чтобы получить цену на лифт, соответствующий вашим требованиям. Представители также доступны для помощи клиентам по телефону, отвечая на соответствующие вопросы о размерах лифта, его грузоподъемности, вариантах настройки и многом другом.
Позвоните нам: мы здесь, чтобы помочь!
Последнее обновление страницы: Andy Darnley
Насколько большим должен быть ваш лифт?
Размеры шахты лифта
Какой размер лифта вам нужен для вашего здания?
Необходимый размер и грузоподъемность лифта зависят от нескольких факторов. Первое — это приложение. Например, в офисном здании потребуются более широкие кабины лифта, чем в жилых лифтах, чтобы большие группы людей могли входить и выходить упорядоченно.
Требования к лифту также могут различаться в зависимости от штата. В каждом штате действуют уникальные нормы и правила для лифтов, которым необходимо следовать, включая размеры и количество лифтов, необходимых в определенных зданиях.
В дополнение к местоположению вашего лифта перед модернизацией или установкой необходимо рассмотреть несколько основных вопросов:
- Вы проектируете офисное или многоквартирное здание?
- Сколько лифтов потребуется в соответствии с кодом штата в любом случае?
- Если вам потребуется транспорт для 15 000 человек в течение дня, сколько лифтов вам потребуется?
- Потребуется ли в вашем здании служебный лифт?
- Что лучше для вашего конкретного проекта: тяговый или гидравлический подъемник?
Требования к пропускной способности лифта
Вместимость стандартных коммерческих лифтов зависит от типа здания и его использования.
Жилые лифты будут иметь самые низкие требования к мощности, в то время как грузоподъемность лифтов будет самой высокой. Требования к пропускной способности в конечном итоге будут определяться предполагаемым использованием лифта, государственными и местными кодами и функциональностью лифта.
Размеры шахты подъемника зависят от ряда факторов, в том числе:
- Емкость
- Ожидаемое количество пассажиров
- Скорость
- Количество кабин лифта
- План этажа
Соответствие требованиям ADA для коммерческих лифтов
В Законе об американцах-инвалидах (ADA) есть особые правила для коммерческих лифтов в зданиях, основанные на количестве этажей или общей площади в квадратных футах на этаж. Эти правила необходимы для обеспечения легкого доступа к общественным лифтам для людей с ограниченными возможностями, а также для людей с нарушениями зрения или слуха.
Требования ADA зависят от штата и/или региона. Например, в Массачусетсе действуют очень строгие правила по сравнению с другими местами..jpg)
Определяется расстоянием между передней и задней стекой кабины лифта без учета поручней, защитных панелей и декоративных накладок. Обычно размер грузового лифта в жилом доме составляет от 1580 до 2580 мм.
Установка коммерческого лифта также включает сверление глубокого отверстия для гидравлического домкрата. Эти лифты могут двигаться со скоростью до 150 футов в минуту.
Эти лифты могут обеспечить доступ к трем различным уровням и могут подниматься на высоту до 25 футов. Размеры лифта в футах варьируются от 4 на 4,5 (48 дюймов на 54 дюйма) до 3,5 на 5 (42 дюйма на 60 дюймов).