Содержание
Бетонный завод с двумя смесителями БСУ-2х60-л
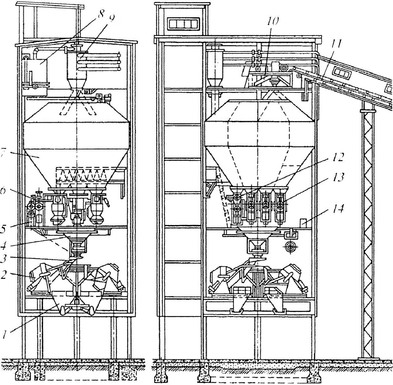
Бетонный завод БСУ-2х60-л
Характеристики и Комплектация
Технические характеристики
- Производительность по готовой смеси в час — 120 м3
- Количество и объем приемных бункеров инертных материалов 3 бункера по 10 м3 каждый — стандартно (на выбор 2 / 3 / 4 бункера по 10 / 15 / 20 / 25 м3 каждый) — 2 комплекта
- Тип смесителя — горизонтальный двухвальный объем 1 500 литров — 2 комплекта
- Объем смесителя по выходу готовой смеси объем 1 000 литров — 2 комплекта
- Система загрузки инертных материалов в смеситель — ленточный конвейер / рифленый ленточный конвейер — 2 комплекта
- Система управления Бетонным Заводом — полностью автоматическая на базе промышленного компьютера EVOC 810E (системный блок 2 комплекта, 1 рабочий + 1 резервный, клавиатура, монитор, мышь)
- Энергопотребление Бетонного Завода — 190 кВт
- Общий вес оборудования — 67 тн
Смеситель
- Горизонтальный двухвальный смеситель: объем загружаемой смеси — 1 500 литров, объем выгружаемой смеси — 1 000 литров — 2 комплекта
- Броня смесителей — NIHARD 500HB, лопатки и стойки лопастей — NIHARD 600HB
- Редуктора смесителей BONFIGLIOLI Italy — 4 комплекта
- Энергопотребление привода смесителя 2 х 22 кВт — 2 комплекта
- Выгрузка готовой смеси — шиберная заслонка на гидроцилиндре — 2 комплекта
- Автоматическая смазочная система смесителя — YOKE-BEST Germany — 2 комплекта
- Система промывки — 2 комплекта
ИНЕРТНЫЕ МАТЕРИАЛЫ дозировка и подача в смеситель
- Приемные бункера инертных материалов на раме, стандартно 3 бункера по 10 м3 каждый (на выбор 2 / 3 / 4 бункера по 10 / 15 / 20 / 25 м3 каждый) — 2 комплекта
- Весовые бункеры-дозаторы 1 500 кг, тип взвешивания индивидуально для каждого бункера — 3 шт — 2 комплекта
- Весовые S-образные Тензодатчики 1500 кг TRANSCELL (USA) — 6 комплектов
- Ленточный конвейер 32 000 х 800 мм — 2 комплекта
- Пневмоцилиндры AIRTEC Korea — 18 шт
- Вибраторы сводообрушения WAM Italy — 6 шт
- Решетки на бункера (опция)
- Ленточный конвейер общая длина 30 метров, ширина 800 мм, угол наклона 18 град — 2 комплекта
- Энергопотребление ленточных конвейеров — 2 х 22 кВт
- Устройство натяжения ленты — 2 комплекта
- Верхние и нижние опорные ролики — 2 комплекта
- Устройство очистки ленты — 2 комплекта
ВОДА дозировка и подача
- Дозировочная емкость 300 л на раме — 2 комплекта
- Весовые S-образные Тензодатчики 500 кг TRANSCELL (USA) — 3 шт — 2 комплекта
- Двусторонний пневмоклапан ∅ 100 мм WAM (Italy) — 2 шт
- Насос подачи воды, энергопотребление 3 кВт — 2 шт
- Пластиковый трубопровод — 2 комплекта
ЦЕМЕНТ дозировка и подача
- Дозировочная емкость 0,6 м3 на раме — 2 комплекта
- Весовые S-образные Тензодатчики 1 000 кг TRANSCELL (USA) — 6 шт
- Двусторонний пневмоклапан ∅ 250 мм WAM (Italy) — 2 шт
- Шнековый конвейер подачи цемента Ø 219 мм, длина 6 м Sicoma (Italy) — 2 шт, стандартно
- Вибратор сводообрушения WAM (Italy) — 2 шт
ХИМ ДОБАВКИ дозировка и подача
- Дозировочная емкость 50 л на раме — 2 шт
- Весовые S-образные Тензодатчики 100 кг TRANSCELL (USA) — 2 комплекта
- Двусторонний пневмоклапан ∅ 50 мм WAM (Italy) — 2 шт
- Насос Хим Добавок в антикоррозионном исполнении — 2 комплекта
- Трубопроводы, фитинги, запорная арматура, пластик — 2 комплекта
Пневматика
- Компрессор Fusheng Korea — 2 шт
- Осушитель воздуха, тройники, соединители Airtеc (Korea) — 2 комплекта
- Магистрали сжатого воздуха, пластик — 2 комплекта
- Ресивер 200 литров — 2 шт
- Энергопотребление компрессора — 2 х 5 кВт
Система управления Бетонным Заводом
- Металлический силовой шкаф — 1 шт
- Консоль управления — 1 шт
- Теплоизолированная комната оператора 6 м2 оборудованная кондиционером Midea (China) — 1 шт
- Система управления Бетонным Заводом — полностью автоматическая на базе промышленного компьютера EVOC 810E (системный блок 2 комплекта, 1 рабочий + резервный, клавиатура, монитор, мышь)
- Программируемый Логистический Контроллер PLC OMRON (Japan)
- Автоматы защиты, Реле, Переключатели рабочих режимов — Schneider (France)/ABB (Switzerland)
- UPS источник бесперебойного питания — SANTEK (Korea)
- Принтер — Panasonic
- Комплект медных многожильных соединительных кабелей и проводов различной площади сечения
Опорные металлические конструкции
- Опорные и металлические конструкции бетонного завода выполнены из высококачественно стали
- Все сварные швы и соединения проходят контрольные проверки перед отгрузкой Клиентам
- Окраска металлоконструкций выполнена с применением высококачественных лакокрасочных материалов, препятствующих появлению коррозии на протяжении всего срока службы оборудования не менее 12 лет
Дополнительные Опции к БСУ
Силоса хранения Цемента
Сборно-разборные и цельносварные силоса цемента.
Объем от 50 до 500 тонн. Комплектующие: фильтра, датчики верхнего и нижнего уровней положения цемента, поворотная заслонка, система аэрации, автоматическая система продувки фильтров
Подробнее
Утепленная Обшивка
Сэндвич-панели толщиной 100 мм, утеплитель пенополистирол или минеральная плита. В комплектацию входят входные и оконные группы, несущие металлоконструкции, механизированные утепленные крышки приемных бункеров
Подробнее
Теплогенераторы — Воздухонагреватели
Теплогенераторы осуществляют прогрев инертных материалов при помощи горячего воздуха с температурой до + 200 С. Это позволят существенно сократить сроки прогрева песка и щебня, а так же избежать повышенной влажности материала.
Подробнее
Растариватели Биг-Бэгов
Электрическая или ручная грузоподъемная таль до 2 000 кг.
Подача цемента с помощью шнекового конвейера SICOMA Italy или пневмовакуумным насосом. Управление производится с помощью пульта оператора. Высокая производительность
Подробнее
Установки Рециклинга
Переработка отходов бетона после промывки автомиксеров и автобетононасосов. Возможность повторного использования полученного на выходе сырья. Соблюдение санитарных и экологических норм. Повторное использование воды в производстве бетона.
Подробнее
Оборудованием для Лаборатории
Тестирование на прочность, морозостойкость, подвижность бетонной и растворной смеси. Контроль качества входящих инертных материалов песок, щебень, цемент. Все оборудование сертифицировано и полностью отвечает современным требованиям.
Подробнее
2023 ТехноСпектр
Responsive Joomla Templates by RSJoomla!
Комплексная модернизация БСУ КЗССМ, г.
Казань
1. Основные требования к модернизации:
Состав рабочей документации:
- ТХ – Технология производства с разработкой заданий на на выполнение смежных частей проекта;
- КМО – Конструкции из металла с деталировкой;
- СА – Системы аспирационные;
- ВС – Внутреннее воздухоснабжение;
- ОВ – Внутреннее водоснабжение;
- ЭМ – Силовое электрооборудование;
- АК – Комплексная автоматизация;
Основные задачи:
- Увеличение производительности с 55 м3/час до 110 м3/час.
- Исключение человеческого фактора.
- Бетонная смесь со стабильными характеристиками по: пластичности,
- Соответствие нормам экологичности, предъявляемым ….
- Аспирация
Номенклатура производимых бетонов:
- Жесткие, сверхжесткие и подвижные бетонные смеси по ГОСТ 7475:
- Жесткость Ж1, Ж2, Ж3, Ж4
- Подвижность П2, П3, П4
Требования к точности дозирования:
- Крупные заполнители +/- 1,0%;
- Цемент +/- 0,2%;
- Вода и химические добавки +/- 0,05%.

Разделы модернизации:
- Модернизация склада инертных материалов
- Модернизация БСУ
- Доставка бетона в цех
- Запуск новой линии безопалубочного формования, требовательной к качеству бетонной смеси и к производительности линии БСУ
2. Произведенные работы:
Старая башня имела низкую производительность. Для увеличения производительности было принято нестандартное решение вынести цементный силос на улицу и за счет этого увеличить бункер инертных материалов для загрузки двух полуторакубовых бетоносмесителей. Было принято решение установить планетарные бетоносмесители SICOMA, так как только на них возможно обеспечить заданные характеристики смеси за кратчайшие сроки.
Заменив маленькие дозаторы инертных одним на 2,5 м3 и загружая дозатор цемента прямо из силоса мы увеличили производительность за счет объема дозирования, сократив количество циклов. При старой схеме пришлось бы дозировать чаще и непрерывно заполнять расходные бункера.
Полный демонтаж всего оборудования: электрика, металлоконструкции, трубопроводы, отопление. Было освобождено все помещение, удалены окна и полы, уборка и чистка.
Сборка бункера инертных материалов, основы башни БСУ. Установка бетоносмесителей. Четверть трехэтажного здания занял бункер. Объем бункера инертных материалов получился 3,25 м3. Склада инертных, с которого питалась вторая башня, запущенная на время модернизации первой. Удалось проводить работы без остановки производства.
Все работы велись последовательно: менялись, высвобождались бункеры, менялись затворы. Была полностью заменена электрика: все силовые линии, замена вибраторов, исполнительных механизмов, протянуты новые пневмомагистрали.
Для работы башни был установлен автономный компрессор в специально отведенном помещении, чтобы не нагружать основной.
Так как раньше не было расходных баков химических добавок, были проложены трубопроводы с нуля.
Для этого выделили место, установили 3 расходных бака на хим.добавку внизу и организовали подачу насосами, а не самотеком, как это чаще всего бывает. А точнее насосами подачей снизу сразу в дозатор, что обеспечивало удобство загрузки. Ранее были проблемы с загрузкой на верхние этажи, когда были случаи пролива химии в здании БСУ из шлангов. Все на виду, установлены датчики в верхнем и нижнем положении для загрузки. Нижняя – для включения насоса, верхняя для отключения. Для 3 химических добавок было протянуто около 200 метров трубопровода.
При старой схеме над цементным бункером располагался цементный осадитель «Циклон». Система очистки была демонтирована и установлена автоматическая поворотная воронка, для исключения необходимости моториста в зоне загрузки. Была установлена камера для визуального контроля, датчики уровня инертных материалов для управления загрузкой инертных материалов из операторской одним человеком на весь процесс.
Было установлено 2 бетоносмесителя 1,5 кубовых по выгрузке готового бетона Siсoma.
Один с одним затвором, второй с двумя затворами выгрузки для одновременной подачи в цех и загрузки миксеров товарного бетона. Оба бетоносмесителя работают в цех, имеют возможность дублировать товарку.
Были установлены датчики влажности в бункере песка, чтобы на этапе дозирования скорректировать воду в рецепте: убрать лишнюю воду, которая присутствует уже в песке. Были установлены датчики влажности Hydromix 7 в бетоносмесители для корректировки готовых смесей бетона путем добавления при перемешивании. Для этих целей установлена дополнительно система подачи воды с импульсным счетчиком. По датчику влажности вода доливается автоматически до идеальной пластичности, той, которая задана в рецепте.
При старой схеме использовались телеги, которые в одну точку доставляли бетон, откуда кранами ее развозили по цеху. Сейчас организована адресная подача, 5 пролетов, 6 точек выгрузки, 2 кюбеля по 1,8 куба. Добились очень высокой скорости, при которой смесители не стоят в ожидании.
Даже на самый дальний пролет без остановки производства в цехе и БСУ.
Для заказа бетона установлены панели заявок в каждый пролет. С первых же дней запуска начали на них работать. Чаще всего есть телефон, рация, записки – на разных объектах по-разному. Здесь ничего этого не было, поэтому новой удобной схемой начали пользоваться с первых же дней.
Никакой связи операторов с формовщиками кроме как панели заказов не существует. Смесь заказывается по изделиям, а не объему и марке требуемого бетона, поэтому никаких расхождений с утвержденным рецептом.
Формовщик выбирает только то изделие, которое у него есть на пролете, чтобы исключить путаницу и ускорить процесс выбора на несколько секунд. Заявка мгновенно попадает в очередь оператору, в зависимости от места нахождения кабеля.
Для обучения работе с БСУ и АСУ SmartMix руководством был выбран персонал, участвующий в обслуживании новой системы. Обучение коснулось, как обслуживания механической части и пневматики, так и знание АСУ.
По результатам ряд сотрудников были допущены к работе на БСУ и выданы именные свидетельства о соответствующих полномочиях и допуску к работе.
3. Установленное оборудование.
- Затвор дисковый ДУ 300
- Силовой пневмопривод
- Микропереключатель (датчик положения)
- Пневмораспределитель в сборе
- Тензодатчик, балочный
- Пневмовибратор
- Затвор дисковый Ду300
- Привод ручной
- Шнек D=219 мм, L=10 метров
- Сигнализатор уровня вибрационный(вилка) 0,5 м.
- Сигнализатор уровня вибрационный(вилка) 1,0 м.
- Фильтр круглый
- Установочное кольцо для SILOTOP R03
- Клапан сброса давления
- Вибровинтелятор
- Тензодатчик 2 т.
- Электровибратор
- Сигнализатор уровня вибрационный(вилка) 0,5 м.
- Сигнализатор уровня вибрационный(вилка) 1,0 м.

- Электровибратор
- Электровибратор
- Пневмоцилиндр
- Затвор дисковый поворотный Ду100 с пневмоприводом
- Тензодатчик,S-образный
- Датчик уровня 24 v
- Затвор дисковый поворотный Ду80 с пневмоприводом
- Затвор дисковый поворотный Ду100 с пневмоприводом
- Распределитель
- Датчик положения (свитч-бокс)
- Клапан пережимной
- Датчик тензометрический
- Датчик влажности
- Автоматическая система управления процессом приготовления бетона на базе контроллеров WAGO (Германия)
- Пульт управления складом инертных
- Пульт управления загрузкой воды
- Пульт управления шнеками и ЭВ
- Шкаф управления насосами
- Шкаф управления бетоносмесителем
- Пневмоэлектрический шкаф управления
- дозатор хд
- дозатор воды
- дозатор цемента
- ЗИМ-420
- Переключатель потока цемента
- Затвор СИМ
- Рама
- Поворотная воронка
- Дозатор инертных материалов
4.
Итоги модернизации.
При старой схеме башню обслуживали 5 человек:
- Оператор стоял на конвейере загрузки, открывал вручную затворы;
- Один моторист стоял на приемке инертных и распределял, крутил поворотную воронку;
- Оператор, моторист и слесарь на башне БСУ следили за поломками, открытием/закрытием затворов, регулировка рычагов и человек, который управляет телегами в цех.
В новой схеме всего один оператор за пультом управляет процессом и по монитору наблюдает за процессом.
За счет установки импортных бетоносмеситей гомогенности смесь достигает за время в 6 раз меньше. То есть меньше энергозатрат, больше производительность. За счет этого уменьшенный износ, реже обслуживание смесителей. Разница колоссальная между 3 минутами на 1,5 м3 бетона и 30 секундами при новой схеме. Более того, при меньшем времени качество перемешивания на порядок выше.
За оператором не осталось физической работы, появилась лишь промывка смесителей, которая требуется постоянно.
Чем чаще осуществляется промывка, тем меньше обслуживаешь. Оператор наблюдает за процессом, если произошла аварийная ситуация, они устраняют ее, например переходом в ручной режим.
BSU Mixer возвращает выпускников в туалет – The Elm
выпускники собрались, чтобы почтить память покойного конгрессмена от Мэриленда Элайджи Каммингса, пообщаться,
и поделиться своим опытом борьбы с расизмом на WC в субботу, 8 февраля, для Black
Миксер выпускников Студенческого союза.
Смеситель, проходивший в г.
Hynson Lounge был проведен в рамках серии мероприятий Black History.
Месяц.
Племянник Элайджи Каммингса, Рэймонд
Каммингс, выпускник 1999 г., выступил с программной речью и принял диплом выпускников.
Affinity Leaders for the Alumni Writer’s Union Award от имени его покойного
дядя, скончавшийся в октябре 2019 года.
Вице-президент и старший вице-президент БГУ
Эрвенс Жан-Пьер представил Рэймонда Каммингса слайд-шоу фотографий
из политической карьеры Элайджи Каммингса, показывая, как он говорит и протестует как
а также цитаты.
Первая спица Рэймонда Каммингса
о своем собственном опыте в WC. «Здорово быть здесь со старыми друзьями и новыми
друзей в этой школе, которая дала мне так много», — сказал он.
«Это фантастическое место в
много способов. У него много проблем, — сказал он под смех публики, — и
здесь делается много хорошего и много хорошего исходит от
здесь. Но всегда гордись тем, что поехала сюда».
Рэймонд Каммингс поделился
анекдот вскоре после смерти его дяди о Калебе, азиатском инвалиде
Американец, которого он встретил в спортзале, рассказал ему, как его дядя помог ему и его
семья получает экскурсию по Белому дому.
Когда Калеб обратился к Элайдже
Каммингс за помощь в организации тура, Каммингс ответил в тот же день и помог
организовать специальный тур для Калеба и его семьи.
«Он вышел за пределы того, что было
попросил его помочь кому-то», — сказал Рэймонд Каммингс.
Помощь другим была темой в
его речь.
«Он остается легендарным благодаря своей
поздние ночные и предрассветные электронные письма и телефонные звонки, его способность
сон и его суета между Балтимором и округом Колумбия несколько раз в день.
После его
смерти мой дядя Элайджа стал первым афроамериканским законодателем, солгавшим в
штата в столице страны», — сказал Рэймонд Каммингс.
За обширным пространством Элайджи Каммингса
политическое влияние, Рэймонд Каммингс говорил о дяде, что он
знал.
«Он видел мир, равенство,
успех и возможность для каждого американца, и он боролся за это с
каждой частичкой своего существа и даже больше, каждый день своей жизни», — сказал Рэймонд.
— сказал Каммингс. «Я не могу говорить за его избирателей, но быть его родственником было
чувствовать себя мейнстримным политическим представительством в особенно
личным образом и понять глубоким, особенным образом, сколько усилий
должен был на самом деле быть Элайджей Каммингсом».
«Хороший местный мальчик — поп-культура
клише, но местный мальчик, ставший великим, — это именно то, кем он был, и он мог бы дать
адская речь, — сказал Рэймонд Каммингс.
Рэймонд Каммингс закончил свой
речь с вопросом к аудитории, которую он трижды повторил, чтобы
чтобы вникнуть.
«Это то, чем вы сейчас занимаетесь
лучшее использование вашего времени?» он спросил.
Он призвал комнату к действию
против таких проблем, как расизм, сексизм, гомофобия, трансфобия и религиозная
преследованию и умолял участников посвящать больше времени помощи другим
и поднимал их, как это делал его дядя.
«Существует множество способов
перевести наш гнев и разочарование жестокостью мира в действие,
но это действие должно быть настолько конструктивным и позитивным, насколько это возможно».
он сказал.
После своего выступления Рэймонд
Каммингс получил аплодисменты и овации, затем он принял награду.
от имени своего дяди.
После дани Илии
Каммингс, старший президент BSU Джоселин Элмор рассказала о клубе и его
мероприятия и инициативы.
Элмор сказал, что они сделали
Миксер БГУ большой в этом году, потому что это нужно, говоря, что «черная история
каждый день, а не только один месяц в году».
«Сегодня нам еще предстоит драться
так же сильно, как вы [выпускники] боролись, когда были здесь… это наш способ сохранить
продвигаясь вперед, продолжайте бороться, чтобы достичь конечной цели, чтобы мы все могли быть
относитесь к ним как к равным и объединяйтесь как одно целое», — сказала советник БГУ Эрнеатка Вебстер.
Фредерик Дуглас в гостях
коллега 2019 года Джейсон Паттерсон рассказал о своем проекте по созданию арта на основе
история афроамериканцев в WC и в Честертауне и округе Кент.
«Мы смотрим на этих великих людей,
но мы забываем говорить о том, против чего они боролись. Поэтому нам нужно
говорить о превосходстве белых», — сказал Паттерсон.
Он привел несколько неизвестных фактов
о WC, который подпитывал его проект, в том числе о том, что 13-й президент покинул
USC, потому что они приняли одного чернокожего студента. Тот самый бывший президент WC
также отстаивали превосходство белых и категорически протестовали против прав женщин и
чернокожие голосуют.
Паттерсон также говорил о
1961 инцидент. В том же году, когда первые два чернокожих студента были приняты в
В туалете многие белые студенты представили шоу под названием «Возвращение к шоу менестрелей».
«Это истории, которые мы должны
знать, и вы не можете примирить это, пока мы не узнаем, что мы примиряем
примерно, — сказал Паттерсон.
БГУ продолжил этот разговор
ссылаясь на некоторые из своих собственных усилий, чтобы их голоса были услышаны в кампусе.
Жан-Пьер выразил потребность
чтобы у клуба было место в кампусе, и попросил помощи у выпускников
собрать средства на покупку дома.
Многие выпускники были удивлены, узнав,
услышать это, как они боролись в конце 1990-х годов, чтобы иметь дом в кампусе, посвященный
к черной культуре.
Другие случаи стирания
черной культуры и истории в WC также были рассмотрены.
Выпускники поделились, что первый
Группа поддержки на ЧМ была создана чернокожими студентами, что было удивительно
для нынешних студентов, чтобы услышать. Когда они отправились искать доказательства
бывший отряд поддержки в старых выпусках ежегодника Pegasus, они нашли
ничего.
«Вот почему нам нужны наши выпускники
чтобы поддержать нас и постоять за нас», — сказал Вебстер. «Нам нужно услышать ваше
голоса».
Озвучены как выпускники, так и студенты
необходимость поддерживать друг друга.
Первокурсник Джона Николсон сказал: «Я,
и я уверен, что никто из нас ничего не знал об этом, и мне очень жаль, что они
стер вашу историю, но я хочу вернуть эту историю, и я хочу знать, как мы
может вмешаться, например, немедленно».
Фелиция Аттор, старший и
Секретарь Ассоциации студенческого самоуправления по разнообразию ответил, что БГУ
необходимо подтолкнуть администрацию WC к действию, ссылаясь на отмену в прошлом семестре
«Иностранец» как доказательство того, что протест добивается цели.
Аттор также подчеркнул увеличение
общение между выпускниками и нынешними студентами.
«Нужно больше
связь между нами, потому что мы хотим знать историю, которую вы, ребята,
боролись, потому что мы боремся за подобные вещи. Честно говоря, я не могу
представьте, как бы я себя чувствовал, если бы я вернулся в туалет двадцать лет спустя и все
работа, которую мы вложили в это место, стерта», — сказала она.
Жан-Пьер рассказал группе, как
группа студентов издавала над ним обезьяньи звуки в спортзале, когда он был на первом курсе.
Младшая Рода Олувалана рассказала, что ей отказали в поступлении в местную начальную школу.
где она учила детей танцевать степ из-за цвета
ее кожу и одежду, которую она носила.
«Как еще мы можем показать, что мы
пытаетесь внести свой вклад в это сообщество?» — сказал Олувалана.
Из-за этих случаев
студенты, преподаватели и сотрудники постоянно покидают школу.
«Мы сдаемся, поэтому теряем
советник, мы теряем преподавателя или сотрудника, потому что они устали бороться,
и нет следов этих вещей, так что вы начинаете все сначала, потому что есть
нет истории. Мы хотим, чтобы этот цикл остановился и мы нашли способ сделать кампус
лучше, — сказал Вебстер.
После открытого форума всем
разбились на группы и разговаривали небольшими группами, делясь историями из прошлого WC
и настоящее.
Лия Синглтон, выпуск 2001 г.,
сказал, что слушая, как нынешние студенты говорят о положении дел в туалете
сделал ее «очень грустной».
Синглтон был президентом Союза чернокожих студентов, который был основан всего около 20 лет назад.
Группа называлась Черная
Студенческий Альянс до того, как их заставили изменить его на «Союз», потому что он
звучало менее «страшно».
Коллина Калхун, выпуск 1999 г.,
была первым президентом тогдашнего Альянса чернокожих студентов, опыт, который она
описывается как «трудный, но полезный».
«Оглядываясь назад, когда это было
трудно, это стоило каждой минуты опыта. Конечно, климат
здесь было, это звучит так же, как и сегодня, только из-за того, кто у нас есть
президент, люди немного более энергичны по поводу открытого расизма, в то время как
у нас это было не совсем в том же масштабе. Мы имели дело со многими вещами, и
теперь это звучит так же, только, может быть, немного хуже»,
— сказал Калхун.
Кэлхун сказала, что она обычно приходит
вернуться в туалет несколько раз в год, хотя в последние годы это замедлилось. Она сейчас
возобновил интерес к тому, чтобы чаще возвращаться, чтобы помогать и бороться за
нынешние студенты.
«Возмущение, которое здесь выражено, вызвано только тем, что это был такой вызов.
Было много поздних ночей, много работы, и чтобы это стереть, очень похоже на обновление городов — это похоже, только в меньшем масштабе», — сказал Синглтон.
Синглтон был далеко не единственным
выпускница не впечатлена ухудшением межрасовых отношений в WC.
Айя Джонс, выпускница 2002 г., сказала:
«Это душераздирающе, как квасцы, слышать это. Наш опыт в WC был большим
другой.»
Несмотря на разочарование,
выпускники были вдохновлены текущей работой студентов.
Кристалин Грандисон, Винсент
Хинсон, ученый класса 2011 года, сказал: «Я рад, что пришел. это был глаз
открытие и вдохновение. Я намерен намеренно стать бывшим
участвуют одноклассники».
Грандисон также сказал, что
нынешние студенты побудили ее возвращаться чаще.
«Мне нравится быть в кампусе, но это
меня огорчает, что студенты борются так же, как мы 20 лет
назад. Я с нетерпением жду посещения, когда настроение изменится, и Колледж
прогресс», — сказал Синглтон.
Новое руководство БГУ для расширения участия студентов – The GW Hatchet
Новоизбранные лидеры Союза чернокожих студентов планируют активизировать участие студентов и наладить отношения с другими организациями чернокожих студентов, чтобы усилить свое присутствие в сообществе GW в следующем учебном году.
Сопрезиденты BSU Келси Бейкер и Бэйли Мур возглавят организацию в 2023-24 учебном году, возглавив исполнительный совет, состоящий в основном из новых членов. Новые сотрудники электронного совета заявили, что планируют включить в БГУ более разнообразную группу студентов, таких как первокурсники и студенты разных специальностей, чтобы повысить вовлеченность студентов и надеются укрепить связи с другими группами чернокожих студентов в кампусе, такими как Ассоциация африканских студентов.
Мур, младший специалист по общественному здравоохранению и сопрезидент, сказала, что она была представителем первокурсников БГУ на первом курсе и восхищалась организаторскими способностями предыдущих лидеров, таких как бывший президент Джианна Кук, которые вдохновили ее взять на себя новую роль. Она сказала, что планирует увеличить посещаемость традиционных мероприятий бывшего руководства БГУ, таких как Конференция солидарности, обсуждение таких тем, как предпринимательство, культура и средства массовой информации в чернокожем сообществе, а также гала-концерт о положении в стране, мероприятие, проведенное впервые в прошлом году.
в ознаменование работы членов чернокожего сообщества.
«Если организация стоит на месте, значит, она не выполняет свою работу», — сказал Мур. «Он должен постоянно расти, непрерывно строиться с каждым годом. Поэтому, когда я говорю «укрепите фундамент», я имею в виду «строить на том фундаменте, который уже был».
Мур сказал, что БГУ избрал двух сопрезидентов на следующий учебный год, в отличие от прошлых лет, чтобы лучше сбалансировать большую нагрузку президента. Мур сказал, что БГУ является головной организацией для всех групп чернокожих студентов в кампусе, и решение об избрании двух президентов лучше распределит обязанности президента, обеспечив «гладкую» и «эффективную» работу организации.
Мур сказала, что надеется укрепить связи с другими организациями, такими как ASA, чтобы проводить в кампусе больше мероприятий, ориентированных на чернокожее население.
«Я хочу попытаться объединить два сообщества, афроамериканское сообщество и африканское сообщество в GW, потому что я чувствую, что были некоторые разногласия, но я знаю, что можно проделать работу, чтобы объединить это», — Мур.
сказал.
Мур сказала, что надеется проводить больше мероприятий в кампусе Маунт-Вернон, чтобы привлечь первокурсников в БГУ, потому что в прошлые годы группа в основном проводила мероприятия в Туманном Нижнем. Она сказала, что планирует напрямую спросить первокурсников, что они надеются увидеть больше на мероприятиях БГУ, чтобы гарантировать, что они останутся членами, и мотивировать их к более активному участию в последующие годы.
«Если у нас есть мероприятия, на которые никто не хочет идти, то это бессмысленно», — сказал Мур. «Увидев, чего они хотят, и увидев, что они чувствуют, они останутся в БГУ. Вместо того, чтобы гадать, просто услышьте это непосредственно от них».
Калах Нил, первокурсница, специализирующаяся в области международных отношений и будущий вице-президент БГУ, сказала, что в ее обязанности входит организация встреч с членами электронного совета и контроль за тем, чтобы они выполняли свои обязанности в БГУ. Нил сказала, что планирует проводить более регулярные мероприятия и расширять контакты в течение учебного года, потому что в прошлом события в основном приходились на начало и конец семестра.
Нил сказала, что планирует проводить мероприятия на свежем воздухе между неделей ориентации первокурсников и перед началом занятий, такие как пикники и пикники, чтобы набрать больше первокурсников в группу до начала занятий.
«Это сохранение той же последовательности и вовлечение сообщества в общественные работы, игры или просто предложение немного большего количества учебных часов и предоставление нашим ученикам возможности научиться быть прилежными чернокожими учителями», — сказал Нил.
Оливия Джастис, первокурсница, специализирующаяся на политических коммуникациях, социальных услугах и социальной справедливости, а также вице-президент по специальным мероприятиям и программированию, сказала, что ее новая роль будет контролировать планирование крупных мероприятий, таких как Kickball on the Mall, совместная игра в кикбол с Американским университетом. БГУ впервые провел этот последний семестр, а также Финал, ежегодное празднование, посвященное окончанию Месяца истории чернокожих в феврале, где члены сообщества общаются за едой и танцами.
Как бывший представитель первокурсников, Джастис сказала, что в конце марта она планировала встречу первокурсников и старшеклассников в Окружной палате, чтобы собрать вместе учеников разных классов БГУ. Она сказала, что на мероприятии пожилые люди давали советы, основанные на их четырехлетнем опыте работы в БГУ, чтобы направлять первокурсников в их будущих начинаниях в организации.
«Я хотел собрать вместе старшеклассников, особенно старшеклассников и первокурсников, чтобы дать небольшой совет, немного мудрых слов, например, рассказать нам о своем четырехлетнем опыте, дать нам ключевые вещи, которые нам нужно знать. — сказал Джастис.
Девин Теннант, первокурсник, специализирующийся на общественном здравоохранении и будущий вице-президент по маркетингу, сказал, что BSU работал над увеличением вовлеченности первокурсников в прошлом году и планирует продолжить свои усилия за счет расширения присутствия BSU в социальных сетях, начиная с лета. Он сказал, что планирует размещать контент в социальных сетях с помощью «любых внутренних шуток» о кампусе GW, чтобы удовлетворить чувство юмора студентов через такие платформы, как TikTok, GW Engage, Instagram и Twitter, чтобы первокурсники с большей вероятностью услышали об этом и присоединились.
организация.
Он сказал, что с помощью социальных сетей БГУ «установит культуру» в кампусе, чтобы информировать студентов, которые не являются чернокожими, о культуре чернокожих.
«Я чувствую себя чернокожим, мне нужно, чтобы люди знали, что мы здесь, и чтобы они знали, что в кампусе для нас есть безопасное место, и БГУ позволяет это», — сказал Теннант. «Я просто хочу, чтобы люди знали, что здесь есть чернокожие студенты, и если вы чернокожий студент, вы можете чувствовать себя комфортно и найти свою толпу».
Рея Тернер, первокурсница, специализирующаяся на общественном здравоохранении и науке о данных и будущий вице-президент по финансам, сказала, что она «гордится» тем, что отделилась от других организаций, в которых она участвовала в старшей школе, таких как школьный совет, присоединившись к организации, которая представляет ее личность.
Тернер сказала, что надеется повысить вовлеченность студентов в BSU за счет увеличения финансирования, чтобы у участников было достаточно средств для проведения мероприятий, когда они захотят.


